Алекс777 000 Опубліковано: 12 травня 2013 Автор Поділитись Опубліковано: 12 травня 2013 И ещё, вопрос по армопоясу: Посилання на коментар Поділитися на інших сайтах More sharing options...
dvk Опубліковано: 21 травня 2013 Поділитись Опубліковано: 21 травня 2013 И ещё, вопрос по армопоясу: Второй вариант лучше, но почему вы не хотите сделать вариант 100гб-30эппс-бетон-100гб ? Или уже придумали, как внутреннюю опалубку удобно делать ? Или вам нужен голый бетон внутри помещения? Посилання на коментар Поділитися на інших сайтах More sharing options...
Алекс777 000 Опубліковано: 21 травня 2013 Автор Поділитись Опубліковано: 21 травня 2013 но почему вы не хотите сделать вариант 100гб-30эппс-бетон-100гб Тогда плиты перекрытия будут лежать всего 100 мм на бетоне,( или это допустимо?) по поводу бетона внутри - в целом всё равно, так как верхний уровень будет закрыт подвесным потолком. Если сравнить первый и второй варианты - у какого теплопроводность ниже? Посилання на коментар Поділитися на інших сайтах More sharing options...
Zak Опубліковано: 21 травня 2013 Поділитись Опубліковано: 21 травня 2013 Второй вариант лучше, но почему вы не хотите сделать вариант 100гб-30эппс-бетон-100гб ? Или уже придумали, как внутреннюю опалубку удобно делать ? Или вам нужен голый бетон внутри помещения? А ещё лучше 100гб-50эппс-200бетон-50гб 1 Посилання на коментар Поділитися на інших сайтах More sharing options...
Алекс777 000 Опубліковано: 29 травня 2013 Автор Поділитись Опубліковано: 29 травня 2013 100гб-50эппс-200бетон-50гб Решено делать так, спасибо, вот только вопрос - эппс клеить к блоку или достаточно что его бетон придавит? Посилання на коментар Поділитися на інших сайтах More sharing options...
InSAn Опубліковано: 30 травня 2013 Поділитись Опубліковано: 30 травня 2013 А ещё лучше 100гб-50эппс-200бетон-50гб Два вопроса - кто Вам сказал, что так лучше? И пробовали ли Вы вырезать ГБ толщиной 50мм? Если вырезать еще теоретически возможно - то эксплуатировать - нет. Подумайте хотя бы о том, как будете карнизы (шторы) на дюбеля вешать... Не, можно конечно использовать дюбеля 100мм (но не расколется ли блок такой толщины?). И подумайте о том, на какую часть стены идет максимальная нагрузка от перекрытия. Добавлено через 1 минуту эппс клеить к блоку или достаточно что его бетон придавит? Если Вы сможете ЭППС зафиксировать, чтобы он не сдвинулся при заливке - то клеить не нужно. Посилання на коментар Поділитися на інших сайтах More sharing options...
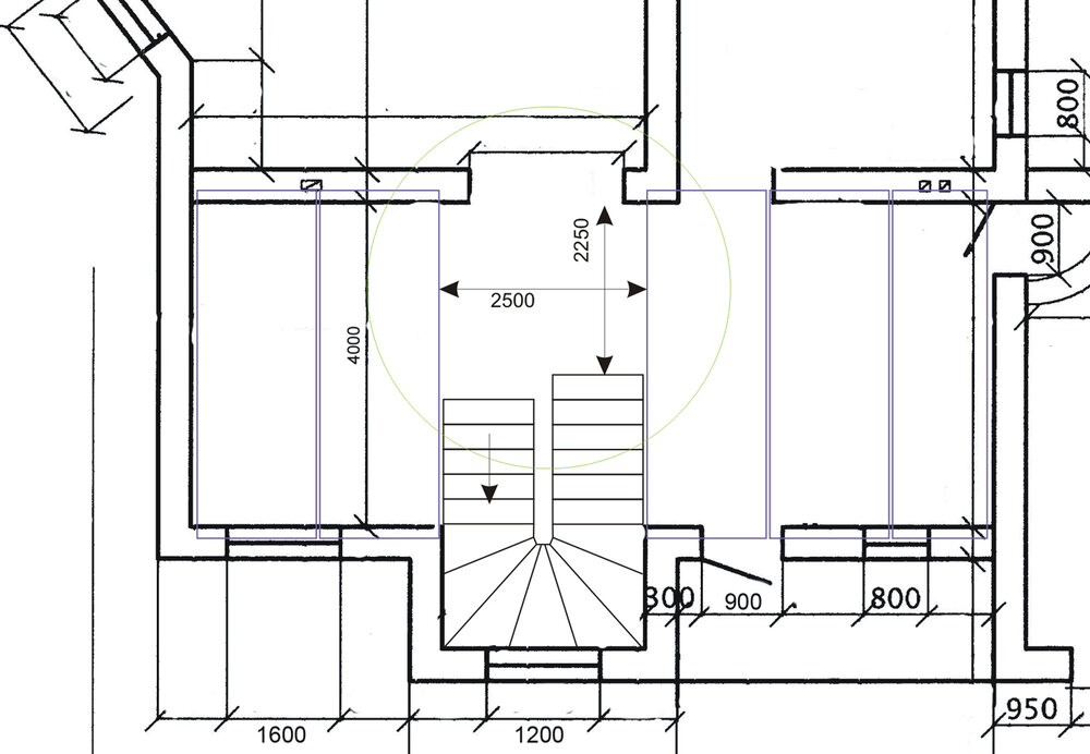
Алекс777 000 Опубліковано: 31 травня 2013 Автор Поділитись Опубліковано: 31 травня 2013 (змінено) Два вопроса - кто Вам сказал, что так лучше? И пробовали ли Вы вырезать ГБ толщиной 50мм? Если вырезать еще теоретически возможно - то эксплуатировать - нет. Подумайте хотя бы о том, как будете карнизы (шторы) на дюбеля вешать... Не, можно конечно использовать дюбеля 100мм (но не расколется ли блок такой толщины?). И подумайте о том, на какую часть стены идет максимальная нагрузка от перекрытия. Добавлено через 1 минуту Если Вы сможете ЭППС зафиксировать, чтобы он не сдвинулся при заливке - то клеить не нужно. Если всё же придётся клеить - то чем? И ещё один момент - перекрытие меж этажное - решили всё таки использовать плиты перекрытия, так вот танцы вокруг проёма для лестницы. Как можно подвесить короткую плиту между двумя длинными, без опоры внизу? О монолите читал, но может быть существует ещё варианты. Змінено 31 травня 2013 користувачем Алекс777 000 Посилання на коментар Поділитися на інших сайтах More sharing options...
InSAn Опубліковано: 1 червня 2013 Поділитись Опубліковано: 1 червня 2013 Если всё же придётся клеить - то чем?Клеем для ППС В любом строительном маркете выбор клеев огромный. В данном случае можно просто монтажной пеной (наносите, ждете 5 мин, прижимаете). Хотя клей в баллонах не намного дороже монтажной пены. Посилання на коментар Поділитися на інших сайтах More sharing options...
Zak Опубліковано: 1 червня 2013 Поділитись Опубліковано: 1 червня 2013 Два вопроса - кто Вам сказал, что так лучше? И пробовали ли Вы вырезать ГБ толщиной 50мм? Если вырезать еще теоретически возможно - то эксплуатировать - нет. Подумайте хотя бы о том, как будете карнизы (шторы) на дюбеля вешать... Не, можно конечно использовать дюбеля 100мм (но не расколется ли блок такой толщины?). И подумайте о том, на какую часть стены идет максимальная нагрузка от перекрытия. Армопояс уже залит, режется из 100-ки элементарно. Я эти 50 мм расцениваю как несъемную опалубку и дополнительное утепление, а не как несущую часть стены. Соответственно опирание плиты 120-150 мм подбирается от начала армопояса, а не от начала стены. Чесно говоря слабо представляю какой прогиб должен быть у плиты, чтобы повредить 50-ку. Посилання на коментар Поділитися на інших сайтах More sharing options...
Рекомендовані повідомлення
Створіть акаунт або увійдіть у нього для коментування
Ви маєте бути користувачем, щоб залишити коментар
Створити акаунт
Зареєструйтеся для отримання акаунта. Це просто!
Зареєструвати акаунтУвійти
Вже зареєстровані? Увійдіть тут.
Увійти зараз