Tom Anderson Опубліковано: 28 грудня 2012 Автор Поділитись Опубліковано: 28 грудня 2012 Вставлю свои 5 копеек по планировке. Своеобразный лабиринт у входа - ведет к потерям площади. Подумайте о смещении лестницы между кухней и гостиной Второй этаж вызывает недоумение небольшие по площади спаленки и плюс ко всему еще и так переломаны. Простота - основа красоты и удобства -попытайтесь сделать комнаты прямоугольными и планировка станет более эргономичной Это ж памятник, кто ж его посадит! :D Как же сделать спаленки прямоугольными не уменьшая их в размере? Разве что убрать одну из них. И не совсем понятно куда подвинуть лестницу. Если вам будет не тяжело, набросайте схематично в пейнте, как вы видите эту перестановку (и комнат в т.ч.). Спасибо! Посилання на коментар Поділитися на інших сайтах More sharing options...
FashionFace Опубліковано: 29 грудня 2012 Поділитись Опубліковано: 29 грудня 2012 сыроватый набросок- в мелочах нужно додумывать, но я бы двигался в этом направлении, лестницу в подвал предусматриваю, но подвал под домом - усложнение конструкции и существенное удорожание, как не крутите. Как вариант лестница может идти из тамбура рядом с домом, чтобы он не попадал под пятно застройки.000.pdf 1 Посилання на коментар Поділитися на інших сайтах More sharing options...
Tom Anderson Опубліковано: 29 грудня 2012 Автор Поділитись Опубліковано: 29 грудня 2012 сыроватый набросок- в мелочах нужно додумывать, но я бы двигался в этом направлении, лестницу в подвал предусматриваю, но подвал под домом - усложнение конструкции и существенное удорожание, как не крутите. Как вариант лестница может идти из тамбура рядом с домом, чтобы он не попадал под пятно застройки. В том то и дело, что из-за небольшой площади развернуться особо негде, и любая мелочь тянет за собой переработки чуть-ли не по всему дому . Комнаты не совсем прямоугольные только потому, что лестница слишком длинная. Вариант с забежными ступенями сразу отбрасываем. Кухня и комната 2.2 на 4.5 тоже не самый лучший вариант, как по мне, уж лучше не совсем прямоугольные но более ближе к квадрату по пропорциям. В любом случае благодарю за пример , подумаем еще, может чего и переиграем Посилання на коментар Поділитися на інших сайтах More sharing options...
Ольга В Опубліковано: 29 грудня 2012 Поділитись Опубліковано: 29 грудня 2012 В том то и дело, что из-за небольшой площади развернуться особо негде, и любая мелочь тянет за собой переработки чуть-ли не по всему дому . Почему то на форуме было много проектов, где люди могли добавить по 2-3м по ширине и/или длине фундамента, и все было бы красиво и удобно. Но ведь нет - пытаются выйти из положения. Посилання на коментар Поділитися на інших сайтах More sharing options...
Tom Anderson Опубліковано: 29 грудня 2012 Автор Поділитись Опубліковано: 29 грудня 2012 Почему то на форуме было много проектов, где люди могли добавить по 2-3м по ширине и/или длине фундамента, и все было бы красиво и удобно. Но ведь нет - пытаются выйти из положения. На самом деле уже добавили . По сравнению с самым первым вариантом, дом стал шире на метр и появились выступы с боков по 1.5м. Дело не только в бюджете, но и в размере участка. С боков дома осталось по 2.5м, спереди площадка для машины и за домом 10х13 для пары деревьев. Вот и ищем компромисс. Тем и интереснее :D. Отгрохать "Хонку" в 4 этажа на 130 гектарах земли - скучно . Посилання на коментар Поділитися на інших сайтах More sharing options...
Olenevod Опубліковано: 29 грудня 2012 Поділитись Опубліковано: 29 грудня 2012 С такими габаритами Вы слишком плохо относитесь к забежным ступеням. Не такое уж оно и зло, если идти по большому радиусу. Посилання на коментар Поділитися на інших сайтах More sharing options...
Tom Anderson Опубліковано: 29 грудня 2012 Автор Поділитись Опубліковано: 29 грудня 2012 Дело не только в бюджете, но и в размере участка. Хотя, пожалуй, только в бюджете. Иначе был бы участок на 130га Посилання на коментар Поділитися на інших сайтах More sharing options...
Ольга В Опубліковано: 29 грудня 2012 Поділитись Опубліковано: 29 грудня 2012 Может тогда в высоту добавить? У меня кстати тоже забежные ступени. Посилання на коментар Поділитися на інших сайтах More sharing options...
Tom Anderson Опубліковано: 29 грудня 2012 Автор Поділитись Опубліковано: 29 грудня 2012 С такими габаритами Вы слишком плохо относитесь к забежным ступеням. Не такое уж оно и зло, если идти по большому радиусу. Тогда нужно лестницу пошире, чтоб можно было по широкому краю спокойно идти (в месте шага с узкой стороны оставалось не менее 25см). Добавлено через 2 минуты Может тогда в высоту добавить? У меня кстати тоже забежные ступени. 3 этажа это уже будет перебор). Какие параметры лестницы не помните? И как опыт эксплуатации? Посилання на коментар Поділитися на інших сайтах More sharing options...
Ольга В Опубліковано: 29 грудня 2012 Поділитись Опубліковано: 29 грудня 2012 3 этажа это уже будет перебор). Какие параметры лестницы не помните? И как опыт эксплуатации? Не будет - а будут оптимальные размеры помещений. Вы же для себя строите? Высота типа 16.5 см, ширина типа 27 см, ступени - с мысочком. Посилання на коментар Поділитися на інших сайтах More sharing options...
Tom Anderson Опубліковано: 14 січня 2013 Автор Поділитись Опубліковано: 14 січня 2013 Есть еще пара вопросов: 1. Обязательно ли должны двери на балкон на втором этаже находится над дверями на террасу на первом, или вполне нормально когда их расположение не совпадает как на рисунке. Есть ли какие-то рекомендации? 2. Как лучше расположить камин, в углу или по центру гостиной? В углу вроде как компактней, но по центру зато более равномерно распределяется тепло по первому этажу. Спасибо. Посилання на коментар Поділитися на інших сайтах More sharing options...
FashionFace Опубліковано: 16 січня 2013 Поділитись Опубліковано: 16 січня 2013 Есть еще пара вопросов: 1. Обязательно ли должны двери на балкон на втором этаже находится над дверями на террасу на первом, или вполне нормально когда их расположение не совпадает как на рисунке. Есть ли какие-то рекомендации? 2. Как лучше расположить камин, в углу или по центру гостиной? В углу вроде как компактней, но по центру зато более равномерно распределяется тепло по первому этажу. Спасибо. Привязка дверей балкона- не принципиальна - здесь могут руководить только Ваши эстетические предпочтения. На мой взгляд лучше не привязывать - легкая ассиметрия может придать изюминку. А на счет камина лучше в угол, меньше будет разноситься грязь по дому, и дым в моменты отсутствия тяги меньше будет разносится сквозняками. А тепло распределится и так- все равно основным источником отопления ему не быть! 1 Посилання на коментар Поділитися на інших сайтах More sharing options...
Tom Anderson Опубліковано: 17 січня 2013 Автор Поділитись Опубліковано: 17 січня 2013 А на счет камина лучше в угол, меньше будет разноситься грязь по дому, и дым в моменты отсутствия тяги меньше будет разносится сквозняками. А тепло распределится и так- все равно основным источником отопления ему не быть! Да, вы правы, в углу гораздо практичнее. Остановился на этом варианте. Посилання на коментар Поділитися на інших сайтах More sharing options...
Tom Anderson Опубліковано: 17 січня 2013 Автор Поділитись Опубліковано: 17 січня 2013 Немного обновил планировку. Ничего кардинального, но кажется стало немного лучше. первый этаж: 1. Расширил тамбур на всю площадь выступа, крыльцо будет пристроено отдельно. Теперь там поместится полноценный, хороший шкаф. 2. Перенес несущую стену в холле перпендикулярно центральной стене (раньше она предполагалась вдоль лестницы). 3. Туалет перекочевал к лестнице и немного увеличился. Возможно туда даже влезет душ!:D Но, если не влезет, то будет без него. 4. Камин переставил в угол 5. Выход на террасу сместился левее, ближе к центру стены, благодаря чему получился уютный уголок у камина. 6. Кухня переехала под другую стену, а под окно встал обеденный стол. мансарда: 1. выровнял спальню рядом с ванной, в связи с чем в ванной влез шкаф для полотенец. Хотя можно сделать из этого уголка кладовую с дверь в холл. 2. Труба камина переползла под стену. 1 Посилання на коментар Поділитися на інших сайтах More sharing options...
blacktigra Опубліковано: 22 січня 2013 Поділитись Опубліковано: 22 січня 2013 Tom Anderson, тоже строим дуплекс. Только не симметричный, но та же задача впихнуть невпихуемое. Глядя на ваш план рождаются следующие "мисли": - убрать тамбур, а на входе предусмотреть две двери на случай сильных морозов. - вентканалы в зоне кухни и от камина разместить в теле стены - не будет выступов на втором этаже. Если стена между половинами дома в полтора кирпича, то должно получиться. - кровать на втором этаже не ставить изголовьем к лестнице, а развернуть на 90 градусов против часовой стрелки, но это мелочи. - сомнительная польза от балкона при таких ужатых размерах комнат. Можно продлить комнату сделав ее просторнее. - смущает туалет по центру. Как делать из него вытяжку? 1 Посилання на коментар Поділитися на інших сайтах More sharing options...
Tom Anderson Опубліковано: 22 січня 2013 Автор Поділитись Опубліковано: 22 січня 2013 - убрать тамбур, а на входе предусмотреть две двери на случай сильных морозов. Ну это не равноценная замена. А зачем его убирать? В нем разместится шкаф для верхней одежды, полка для обуви чтоб грязь не тащить в дом. - вентканалы в зоне кухни и от камина разместить в теле стены - не будет выступов на втором этаже. Если стена между половинами дома в полтора кирпича, то должно получиться. Диаметр трубы 150-200мм, если его полностью утопить в стену, то получится что дымоход одной половины ничем не отделен от дымохода другой? Единственное, в зоне кухни, короба с коммуникациями можно спрятать не за слоем кирпича, а за гипсокартоном, по крайней мере на втором этаже. Но дымовой канал все-равно нужно закрыть кирпичем и он будет выступать... Кстати, в этих местах получается провал в звукоизоляции двух половин, может можно как-то исправить? - кровать на втором этаже не ставить изголовьем к лестнице, а развернуть на 90 градусов против часовой стрелки, но это мелочи. Это уже будет видно когда будет стоять крыша) - сомнительная польза от балкона при таких ужатых размерах комнат. Можно продлить комнату сделав ее просторнее. Ну польза от балкона в открытом пространстве на свежем воздухе, хочется именно балкон, чтобы можно было выйти на него ранним летним утром или пить чай перед сном поздним вечером - смущает туалет по центру. Как делать из него вытяжку? Я думаю, можно прятать короб под потолком над входом в кухню. Добавлено через 51 секунду По поводу продлить комнату на балкон, интересно, можно ли сэкономить, если сократить площадь первого этажа и фундамента, соответственно, но сделать шире мансарду, опирая ее на консольные выносы перекрытия? Посилання на коментар Поділитися на інших сайтах More sharing options...
Tom Anderson Опубліковано: 22 січня 2013 Автор Поділитись Опубліковано: 22 січня 2013 Единственное, в зоне кухни, короба с коммуникациями можно спрятать не за слоем кирпича, а за гипсокартоном Примерно так, как на рисунке: Посилання на коментар Поділитися на інших сайтах More sharing options...
blacktigra Опубліковано: 23 січня 2013 Поділитись Опубліковано: 23 січня 2013 Вы планируете строиться по этому эскизу, или вам потом будет делать полноценный проект архитектор? Ну это не равноценная замена. А зачем его убирать? В нем разместится шкаф для верхней одежды, полка для обуви чтоб грязь не тащить в дом. Видел несколько современных домов с тамбуром и без тамбура. Там где не было тамбура, особого дискомфорта я не ощутил, т.к. был теплый пол. Там где тамбур был - вторая дверь обычно была не закрыта. Наличие тамбура - это больше вопрос религии, как мне кажется. Если вы его уберете - получите холл большей площади, где будет просто удобнее раздеться/одеться. Диаметр трубы 150-200мм, если его полностью утопить в стену, то получится что дымоход одной половины ничем не отделен от дымохода другой? Единственное, в зоне кухни, короба с коммуникациями можно спрятать не за слоем кирпича, а за гипсокартоном, по крайней мере на втором этаже. Но дымовой канал все-равно нужно закрыть кирпичем и он будет выступать... Кстати, в этих местах получается провал в звукоизоляции двух половин, может можно как-то исправить? Для чего вам нужны трубы диаметром 150-200 мм? Мне слабо верится что диаметр газохода от котла будет больше 140 мм. (минимальный размер вентканала в кирпичной стене - 140х140). Дымоход от камина можно сделать непосредственно в кирпичном канале 270х140. Для остальных нужд, типа вытяжка из кухни и санузлов с головой хватит каналов размером 140х140. По поводу звука - я не думаю что узким местом будут именно вентканалы. Если сосед затеет ремонт или устроит дискотеку, то вы услышите и через стенку. А звуки разговора или работающего телевизора - врядли. ИМХО. Это уже будет видно когда будет стоять крыша) Да, забыл что у вас мансардный этаж. Ну польза от балкона в открытом пространстве на свежем воздухе, хочется именно балкон, чтобы можно было выйти на него ранним летним утром или пить чай перед сном поздним вечером Чай - мочегонное. По поводу продлить комнату на балкон, интересно, можно ли сэкономить, если сократить площадь первого этажа и фундамента, соответственно, но сделать шире мансарду, опирая ее на консольные выносы перекрытия? Так строят турки, видел такие дома в Стамбуле и в Анталии. Попросите конструктора посчитать, может и колонны не понадобятся. Только не забудьте про утепление нижней части. Но внешний вид дома будет необычный. Примерно так, как на рисунке: А как будете вести вентканалы и дымоходы дальше над кровлей? Они у вас далеко от конька выходят, нужно прилично поднимать. Вот фрагмент чертежа с вентканалами из моего проекта. Эта стена между двумя половинами дома. 1 Посилання на коментар Поділитися на інших сайтах More sharing options...
blacktigra Опубліковано: 23 січня 2013 Поділитись Опубліковано: 23 січня 2013 Вот еще интересное решение по лестнице в середине комнаты: Здесь больше фоток - www.magazindomov.ru/2012/05/26/rekonstrukciya-doma-v-yaponii-2/ С вашими небольшими площадями нужно смотреть как строят японцы - они мастера в компактном строительстве. 1 Посилання на коментар Поділитися на інших сайтах More sharing options...
Tom Anderson Опубліковано: 23 січня 2013 Автор Поділитись Опубліковано: 23 січня 2013 Вы планируете строиться по этому эскизу, или вам потом будет делать полноценный проект архитектор? Ну по этому эскизу точно не будем. Но заказывать ли полноценный проект мнения у половинщиков разделились. С оформлением земли траблы, так что пока думаем... Видел несколько современных домов с тамбуром и без тамбура. Там где не было тамбура, особого дискомфорта я не ощутил, т.к. был теплый пол. Там где тамбур был - вторая дверь обычно была не закрыта. Ну если вторую дверь не закрывать, то точно смысла в нем нет. А так, вроде бы необходимая весчь! Согласно нормативам, жилые комнаты (спальни и детские) от улицы должны отделяться не менее чем тремя дверями. Нужен для борьбы со сквозняками при открытии/закрытии входной двери, сохранении тепла/прохлады в доме, поддержании чистоты. А вообще перегородка тамбура не несущая, можно будет безболезненно отказаться от него в итоге. Для чего вам нужны трубы диаметром 150-200 мм? Мне слабо верится что диаметр газохода от котла будет больше 140 мм. (минимальный размер вентканала в кирпичной стене - 140х140). Дымоход от камина можно сделать непосредственно в кирпичном канале 270х140. Для остальных нужд, типа вытяжка из кухни и санузлов с головой хватит каналов размером 140х140. Ну 150 планировалось для котла (небольшой запас), а 200 для камина. Особо не продумывали как избавиться от выступов, пока вы не подсказали . Спасибо за совет! По поводу звука - я не думаю что узким местом будут именно вентканалы. Если сосед затеет ремонт или устроит дискотеку, то вы услышите и через стенку. А звуки разговора или работающего телевизора - врядли. ИМХО. Разговора очень даже может быть, особенно на повышенных тонах, перегородка то всего в пол кирпича. Как минимум, кирпич должен быть полнотелый. Чай - мочегонное. И в этом еще один плюс открытого балкона! :D Шутко) А как будете вести вентканалы и дымоходы дальше над кровлей? Они у вас далеко от конька выходят, нужно прилично поднимать. Вы имеете в виду высоту самого дымохода? Он может быть ниже конька, при условии определенного отступа от него. mainliberhous.ru/wp-content/uploads/2012/01/img14.png Но возводить будет, наверное, тяжелее, так как опереться толком не на что. Вот фрагмент чертежа с вентканалами из моего проекта. Эта стена между двумя половинами дома. Такой вариант в голову не приходил (зациклился на симметричности), действительно, все можно упечь в стену! Еще раз благодарю, очень помогли. Добавлено через 3 минуты Вот еще интересное решение по лестнице в середине комнаты: Красиво, но займет места больше чем лестница буквой Г, да и проем в перекрытиях под нее больше (под оба пролета), соответственно площадь на втором этаже съедается. Вот еще интересное решение по лестнице в С вашими небольшими площадями нужно смотреть как строят японцы - они мастера в компактном строительстве. Спасибо, обращу внимание. Посилання на коментар Поділитися на інших сайтах More sharing options...
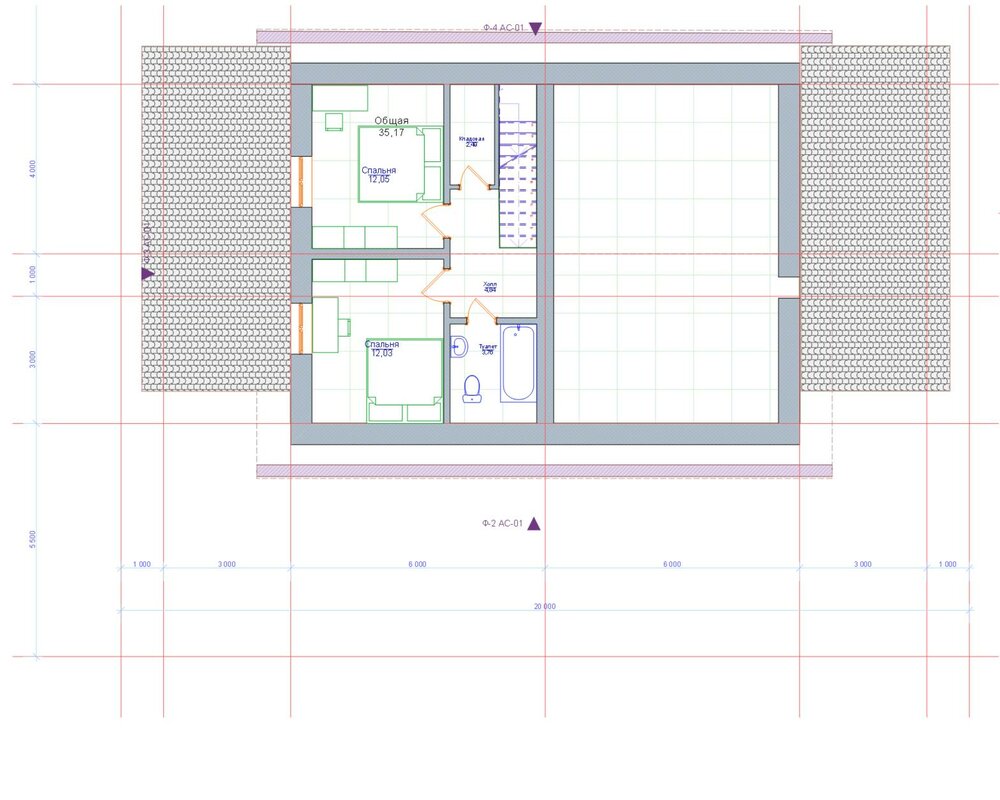
Tom Anderson Опубліковано: 11 березня 2013 Автор Поділитись Опубліковано: 11 березня 2013 Всем привет! Пока с регистрацией земли проблемы, продолжаем фантазировать над планировкой дома. Вот набросал новый вариант небольшого дуплекса, все вводные те же (участок 6сот, дуплекс с мансардой и подвалом, для двух семей из 4х человек каждая). Во вложении картинки с детализацией одной половины. Покритикуйте пожалуйста. Лучше ли данный вариант, на ваш взгляд, по сравнению с первым? Заранее благодарю за внимание! Посилання на коментар Поділитися на інших сайтах More sharing options...
blacktigra Опубліковано: 11 березня 2013 Поділитись Опубліковано: 11 березня 2013 Лучше. Я бы попробовал поменять местами кухню и спальню. Можете сбросить мне .pln файл? Попробую поиграться. Посилання на коментар Поділитися на інших сайтах More sharing options...
Suwin Опубліковано: 11 березня 2013 Поділитись Опубліковано: 11 березня 2013 Всем привет! Пока с регистрацией земли проблемы, продолжаем фантазировать над планировкой дома. Вот набросал новый вариант небольшого дуплекса, все вводные те же (участок 6сот, дуплекс с мансардой и подвалом, для двух семей из 4х человек каждая). Во вложении картинки с детализацией одной половины. Покритикуйте пожалуйста. Лучше ли данный вариант, на ваш взгляд, по сравнению с первым? Заранее благодарю за внимание! А какие проблемы регистрацией земли, можно в личку. Спасибо Посилання на коментар Поділитися на інших сайтах More sharing options...
Tom Anderson Опубліковано: 21 березня 2013 Автор Поділитись Опубліковано: 21 березня 2013 Лучше. Я бы попробовал поменять местами кухню и спальню. Можете сбросить мне .pln файл? Попробую поиграться. Отписался в личку. Добавлено через 1 минуту А какие проблемы регистрацией земли, можно в личку. Спасибо Никак не можем получить вытяг по участку из Госземуправления. Подробности в теме: www.stroimdom.com.ua/forum/showthread.php?t=121134 Добавлено через 28 минут Лучше. Я бы попробовал поменять местами кухню и спальню. Пробовал менять, но как-то не очень получается, там спуск в цоколь под лестницей, да и туалеты с ваннами лучше ближе к кухне в плане коммуникаций. Посилання на коментар Поділитися на інших сайтах More sharing options...
blacktigra Опубліковано: 24 березня 2013 Поділитись Опубліковано: 24 березня 2013 Tom Anderson, а вам дают добро в архитектуре на такую посадку дома на участок? Там от дома до границы участка с каждой стороны 1 метр остается. Или на чертеже неверные размеры? Посилання на коментар Поділитися на інших сайтах More sharing options...
Рекомендовані повідомлення
Створіть акаунт або увійдіть у нього для коментування
Ви маєте бути користувачем, щоб залишити коментар
Створити акаунт
Зареєструйтеся для отримання акаунта. Це просто!
Зареєструвати акаунтУвійти
Вже зареєстровані? Увійдіть тут.
Увійти зараз