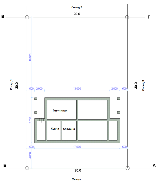
Tom Anderson Опубліковано: 11 квітня 2013 Автор Поділитись Опубліковано: 11 квітня 2013 на входную я бы делала с отступом, т.к. так дверь чуть шире открывается и меньше вероятность удара ручкой об стену в подвале мне вообще такое размещение дверей не понравилось, захотелось сразу поменять направление открывания и сторону... Вы представьте, как Вы будете эти двери открывать... Входная в дом будет на расстоянии 10-15см от стены. А вот проемы между кухней и гостиной думаю проще будет сделать впритык. В подвале, открывать входную дверь наружу будет неудобно, так как там (снаружи) будет маленькая площадочка 90х90, на которой будет стоять открывающий. Сменить сторону можно, но что это даст? С тем что проем в углу, я так понимаю, возражений нет? Посилання на коментар Поділитися на інших сайтах More sharing options...
Luko Опубліковано: 11 квітня 2013 Поділитись Опубліковано: 11 квітня 2013 А вот проемы между кухней и гостиной думаю проще будет сделать впритык. если там будут только проемы, без дверей - почему нет? С тем что проем в углу, я так понимаю, возражений нет? честно, есть... у меня всегда возникает желание отступить дверью 400мм, чтобы можно было полки сделать, по крайней мере в кладовой так точно... и сделать открывание "на себя" входная в цоколь - если по другому переиграть вход не получается, то что ж делать но мне такой вариант кажется неудобным Посилання на коментар Поділитися на інших сайтах More sharing options...
Tom Anderson Опубліковано: 15 квітня 2013 Автор Поділитись Опубліковано: 15 квітня 2013 Кто может подсказать, реально ли будет разместить в кладовой рядом с котельной склад консервации и овощей? Какие меры нужно предпринять чтобы там поддерживалась необходимая температура и влажность? Второй вопрос, как лучше сделать козырек над ступеньками в цоколь, интересный вариант с козырьком-крышкой, что скажете? Посилання на коментар Поділитися на інших сайтах More sharing options...
blacktigra Опубліковано: 15 квітня 2013 Поділитись Опубліковано: 15 квітня 2013 Кто может подсказать, реально ли будет разместить в кладовой рядом с котельной склад консервации и овощей? Какие меры нужно предпринять чтобы там поддерживалась необходимая температура и влажность? Стену между котельной и кладовой, а также перекрытие между кладовой и прихожей необходимо будет теплоизолировать со стороны кладовой, и желательно в кладовой предусмотреть естественную вентиляцию. Самый простой вариант - делается в виде двух труб разнесенных по диагонали помещения. Одна обрывается под потолком, другая возле пола. На улице накрываются козырьком. Или вместо одной из труб сделать вытяжной канал в кирпичной стене, будет лучше. 1 Посилання на коментар Поділитися на інших сайтах More sharing options...
Tom Anderson Опубліковано: 15 квітня 2013 Автор Поділитись Опубліковано: 15 квітня 2013 Ясно. А как быть с внешним утеплением кладовой, делать как по всему дому на всю высоту стены ЭППС или может оставить снизу под чертой промерзания неутепленную часть? Посилання на коментар Поділитися на інших сайтах More sharing options...
blacktigra Опубліковано: 15 квітня 2013 Поділитись Опубліковано: 15 квітня 2013 Ясно. А как быть с внешним утеплением кладовой, делать как по всему дому на всю высоту стены ЭППС или может оставить снизу под чертой промерзания неутепленную часть? Мне кажется что лучше утеплить. Так зимой не будет риска промерзания, а летом кладовая не будет нагреваться. Хотя, учитывая что у вас не полноценный подвал а цокольный этаж, погреба не получится. Посилання на коментар Поділитися на інших сайтах More sharing options...
Tom Anderson Опубліковано: 22 квітня 2013 Автор Поділитись Опубліковано: 22 квітня 2013 Как вы считаете, как лучше посадить дом на участке, учитывая его (участка) малый размер: Вариант 1: в конце участка, в притык к границе (1-1.5м). плюсы: - перед домом больше места - 20х10 (для одной половины) минусы: - теряется полоска, которая остается за домом - ничего не посадишь да и ходить там не будешь - окна спальни и кухни выходят на участок соседа (пока пустой, но на долго ли) - дальше тянуть коммуникации (от дороги) Вариант 2: в начале участка, с отступом 5 метров для места под машину плюсы: - есть небольшой двор за домом, окна выходят во двор - используется вся площадь участка минусы: - и без того маленький участок разбит на две части 5х10 и 16х10 Что скажете? Посилання на коментар Поділитися на інших сайтах More sharing options...
Катерина Ш Опубліковано: 22 квітня 2013 Поділитись Опубліковано: 22 квітня 2013 Мне больше нравиться вариант 2, когда дом ближе к улице)))) Посилання на коментар Поділитися на інших сайтах More sharing options...
Luko Опубліковано: 22 квітня 2013 Поділитись Опубліковано: 22 квітня 2013 Мне больше нравиться вариант 2, когда дом ближе к улице)))) аналогично, только на картинке этот вариант зовется "Посадка1" Посилання на коментар Поділитися на інших сайтах More sharing options...
AНДРЮША Опубліковано: 22 квітня 2013 Поділитись Опубліковано: 22 квітня 2013 Я в такой же ситуации выбрал первый вариант (картинка 2). Только отступил от забора больше, там будет типа хоздвор: белье посушить, инструмент, может грядочки какие. Перед домом только травка и цветы. Посилання на коментар Поділитися на інших сайтах More sharing options...
blacktigra Опубліковано: 22 квітня 2013 Поділитись Опубліковано: 22 квітня 2013 Вариант 2 (ближе к улице). Посилання на коментар Поділитися на інших сайтах More sharing options...
Tom Anderson Опубліковано: 22 квітня 2013 Автор Поділитись Опубліковано: 22 квітня 2013 аналогично, только на картинке этот вариант зовется "Посадка1" Да с названием файлов я напутал, но вы все замечательно поняли Мне тоже кажется, что вариант 2 будет лучше, хоть и места за домом кажется совсем мало... Добавлено через 10 минут Кстати, и под дорожки во втором случае уйдет меньше земли. Т.е. в первом варианте мы теряем 1х20м за домом + 1х20м*2 для дорожек ко входам, а во втором сохраняем площадь за домом и на дорожки уйдет в 4 раза меньше. Итого 360м2 полезной площади против 410м2 . Значит оставим как есть... Посилання на коментар Поділитися на інших сайтах More sharing options...
ievgen.p Опубліковано: 23 квітня 2013 Поділитись Опубліковано: 23 квітня 2013 Да с названием файлов я напутал, но вы все замечательно поняли Мне тоже кажется, что вариант 2 будет лучше, хоть и места за домом кажется совсем мало... Добавлено через 10 минут Кстати, и под дорожки во втором случае уйдет меньше земли. Т.е. в первом варианте мы теряем 1х20м за домом + 1х20м*2 для дорожек ко входам, а во втором сохраняем площадь за домом и на дорожки уйдет в 4 раза меньше. Итого 360м2 полезной площади против 410м2 . Значит оставим как есть... я бы привязал к сторонам света, это практично Посилання на коментар Поділитися на інших сайтах More sharing options...
Tom Anderson Опубліковано: 24 квітня 2013 Автор Поділитись Опубліковано: 24 квітня 2013 (змінено) Всем доброго утра! Родился еще один вариант планировки , оцените, пожалуйста! Все не прорисовано пока, так что нужно будет включить фантазию 1. Значит, половина теперь ориентирована не поперек а вдоль участка, за счет этого с боков освободилось по 4.5м, где может спокойно разместиться машина, небольшой сарайчик и даже терраса. 2. Несущая стена по центру делит половину не симметрично - с одной стороны 5м с другой около 4х. 3. Подвала нет (или лучше с ним?). 4. Гостиная на самом деле будет кухня-столовая-гостиная. 5. Вход в дом в углу сбоку 6. Вход в котельную из тамбура, там же можно устроить хламо-склад Змінено 24 квітня 2013 користувачем Tom Anderson Посилання на коментар Поділитися на інших сайтах More sharing options...
Tom Anderson Опубліковано: 24 квітня 2013 Автор Поділитись Опубліковано: 24 квітня 2013 (змінено) Какие есть мысли: 1. Все-таки делать подвал... или 2. Сделать низкий (до 1.8) погребок под частью дома (котельная, коридор, туалет) с люком из котельной. Использовать как склад для консервации, овощей. Плюс пустить через него канализацию. Утеплять/не утеплять?. 3. Септик будет в левом нижнем углу, возможно стоит поменять местами котельную и туалет чтобы проще и ближе канализацию разводить? 4. Можно еще расширить дом на пол метра с каждой стороны, сбоку останется 4 метра, вроде как тоже достаточно. Гостиная, котельная, тамбур и спальни на 2м этаже станут немного больше. Змінено 24 квітня 2013 користувачем Tom Anderson Посилання на коментар Поділитися на інших сайтах More sharing options...
Tom Anderson Опубліковано: 24 квітня 2013 Автор Поділитись Опубліковано: 24 квітня 2013 Также есть навязчивая идея () сделать антресоли в детских и утилизировать таким образом чердак: 1. В коридоре и детских высота потолков до 2.2м. В родительской спальне - 2.4-2.5м. 2. Крыша делается с разными уклонами. Правая часть (на срезе) 35градусов, левая - 15градусов и состоит из двух частей. 3. В каждой детской по лесенке под которой можно разместить шкаф или книжные полки. 4. На чердаке, дополнительно, получается по комнате размером около 10м2 5. За центральной несущей стеной на чердаке можно разместить гардеробные/кладовки, либо же вместо несущей стены поставить стойки и получить больше комнаты, но тогда они будут находится над родительской спальней(11,5м2) Из возможных вариантов реализации: 1. Полноценный второй этаж, полноценный чердак-мансарда (но уже без подъема стен) 2. Перенести детские на эту мансарду, а вместо них на втором этаже разместить просторную общую комнату Посилання на коментар Поділитися на інших сайтах More sharing options...
Tom Anderson Опубліковано: 25 квітня 2013 Автор Поділитись Опубліковано: 25 квітня 2013 Небольшой апдейт по антресолям: Потолок в детских делается открытым, т.е. под крышей, а антресоль остается только над коридором. Посилання на коментар Поділитися на інших сайтах More sharing options...
alyoha Опубліковано: 14 травня 2013 Поділитись Опубліковано: 14 травня 2013 У вас все еще много вопросов по планировке, надо так понимать что к стройке еще не приступили. Тут на форуме много опытных застройщиков, которые могут дать вам советы с точки зрения практичности. Но практичность в нашем понимании может не всегда совпадать с таковой с точки зрения природы. Не думали отталкиваться не от людских соображений, а обратится к какой либо древней науке/системе? Посилання на коментар Поділитися на інших сайтах More sharing options...
Tom Anderson Опубліковано: 15 травня 2013 Автор Поділитись Опубліковано: 15 травня 2013 У вас все еще много вопросов по планировке, надо так понимать что к стройке еще не приступили. Тут на форуме много опытных застройщиков, которые могут дать вам советы с точки зрения практичности. Но практичность в нашем понимании может не всегда совпадать с таковой с точки зрения природы. Не думали отталкиваться не от людских соображений, а обратится к какой либо древней науке/системе? Да, все еще ходим вокруг да около . Пока доки оформляются, пытаемся продумать максимальное количество вариантов. Вы имеете в виду феншуй? Думаю, сама концепция "дуплекс на 6 сотках" уже не по феншую :D. Посилання на коментар Поділитися на інших сайтах More sharing options...
tobias Опубліковано: 14 липня 2013 Поділитись Опубліковано: 14 липня 2013 -мансарды - от 1.3-1.5м (в месте примыкания крыши) до 2.6-2.8мДля себя я обозначил смысл этих понятий вот так: (ссылка на изображение устарела) (ссылка на изображение устарела) (ссылка на изображение устарела) наприклад багатьом не подобаються мансардні поверхи саме через низьку і нахилену лінію стелі. В минулому році тестував такий варіант 2 тижні - висота короткої стіни близько метра, високої 2.5м площа кімнати 10-12 метрів, відповідає 3-му малюнку. Відчуваю дискомфорт, кілька разів мабуть і затулив головою в стелю. Не хотів би жити на мансардному поверсі кілька років чи мати там спальню. Посилання на коментар Поділитися на інших сайтах More sharing options...
Oleg8510 Опубліковано: 14 липня 2013 Поділитись Опубліковано: 14 липня 2013 Очень часто, застройщики ошибочно полагают, что перекрытие - мелочи. У меня эти "мелочи" - 480мм. Правда у меня очень "жирный" пирог перекрытия. Но, думаю, что не лишним будет "не забыть" под перекрытие оставить как минимум 300(+)мм (это между чистовым потолком и полом). Вопрос Игорехе:для чего делать пирог 480мм?Я так понимаю,что это перекрытие первого этажа... Посилання на коментар Поділитися на інших сайтах More sharing options...
Рекомендовані повідомлення
Створіть акаунт або увійдіть у нього для коментування
Ви маєте бути користувачем, щоб залишити коментар
Створити акаунт
Зареєструйтеся для отримання акаунта. Це просто!
Зареєструвати акаунтУвійти
Вже зареєстровані? Увійдіть тут.
Увійти зараз