Gitan Опубліковано: 30 грудня 2008 Поділитись Опубліковано: 30 грудня 2008 Участок был приобретен в 2007г. На начало строительства средств не хватило. Решил перенести на 2008. В этом же году куплен проект www.mukhin.ru/catalogpr/p/j-208-1p.html Строится планирую из одного газобетона с последующей штукатуркой. Выбор сделан по итогам длительных чтений данного форума и иной литературы. Не хочу многослойный пирог дома. Хочется просто и тепло. Для привязки дома к местности сделал геологию, которая показала наличие грунтовых вод на глубине 0,9м и плывун. Фактически заболоченная местность. Участок выбирал долго. Много обьездил. Хотелось купить не в чистом поле, а в обжитом районе в черте города. Также в районе Салтовки. НА ней родственники живут. В общем нашел и не жалею. 1 Посилання на коментар Поділитися на інших сайтах More sharing options...
Gitan Опубліковано: 30 грудня 2008 Автор Поділитись Опубліковано: 30 грудня 2008 Сложность геологии видна была сразу по весне. По результатам отчета контруктор доработал фундамент и приговорил к плите. Ну плита так плита. Дорого, но зато основательно. Хочется жить и не сомневаться в надежности дома. Посилання на коментар Поділитися на інших сайтах More sharing options...
Gitan Опубліковано: 30 грудня 2008 Автор Поділитись Опубліковано: 30 грудня 2008 В 2007 начал отсыпать участок. Решил сразу сделать задел для поля фильтрации, а т.к грунтовые воды близко сделал отсыпку камнем. Затем геотекстиль и потом песок с отвалок литейки. Посилання на коментар Поділитися на інших сайтах More sharing options...
Gitan Опубліковано: 30 грудня 2008 Автор Поділитись Опубліковано: 30 грудня 2008 Абориген. Посилання на коментар Поділитися на інших сайтах More sharing options...
Gitan Опубліковано: 30 грудня 2008 Автор Поділитись Опубліковано: 30 грудня 2008 (змінено) Следующий шаг это установка забора на дальней части участка с установкой подпорной стенки. В результате получил равный участок с проложенной водоотводной трубой, полем фильтрации и поднятый на 0,8м Вырыта дренажная канава для водоотвода. Змінено 30 грудня 2008 користувачем Gitan 1 Посилання на коментар Поділитися на інших сайтах More sharing options...
Gitan Опубліковано: 30 грудня 2008 Автор Поділитись Опубліковано: 30 грудня 2008 По осени забор обработан грунтовкой от влаги. С фасадной стороны Спектрой. С тыльной Полифарб. ПОлифарб дешевле раза в полтора от импорта. Разве что он на уайт-спирите. ПО расходу лучше. 1 Посилання на коментар Поділитися на інших сайтах More sharing options...
Gitan Опубліковано: 30 грудня 2008 Автор Поділитись Опубліковано: 30 грудня 2008 Осенью 2008 с божьей помощью начали строить. Котлован. Посилання на коментар Поділитися на інших сайтах More sharing options...
Gitan Опубліковано: 30 грудня 2008 Автор Поділитись Опубліковано: 30 грудня 2008 Подушка - песок. Затем щебень 5-20 10 см. По щебню мембрану. Оная позволила сэкономить на бетонной подготовке и гидроизляции. Посилання на коментар Поділитися на інших сайтах More sharing options...
Gitan Опубліковано: 30 грудня 2008 Автор Поділитись Опубліковано: 30 грудня 2008 Плита толщиной 30 см. Арматура 12 с шагом 200мм. Два слоя. Между слоями по краям и середине вертикальные стойки из катанки 6мм. Конструктор говорит - балки. 3 Посилання на коментар Поділитися на інших сайтах More sharing options...
Gitan Опубліковано: 30 грудня 2008 Автор Поділитись Опубліковано: 30 грудня 2008 Бетон заливали с ноябре. Температура прыгала от +3 до -5 ночью. На ЖБК 5 был заказан бетон В25 П3. Обработан глубинным вибратором. Укрыт пленкой. Переживал по поводу ночных морозов, но все прошло нормально. Посилання на коментар Поділитися на інших сайтах More sharing options...
Gitan Опубліковано: 30 грудня 2008 Автор Поділитись Опубліковано: 30 грудня 2008 Первый камень дома. Посилання на коментар Поділитися на інших сайтах More sharing options...
Gitan Опубліковано: 30 грудня 2008 Автор Поділитись Опубліковано: 30 грудня 2008 До снега по морозу успели сделать армопояс. Выручили противоморозные добавки от Пропеллера. 1 Посилання на коментар Поділитися на інших сайтах More sharing options...
Gitan Опубліковано: 30 грудня 2008 Автор Поділитись Опубліковано: 30 грудня 2008 Теперь вопросы. Цокольный этаж не планировал, но из-за плиты получается подпол высотой 1,35м. Буду оставлять. Думаю что будет полезен при разводке труб канализации, воды и др. слажить хлам какой никакой. Может еще что подскажете? В части дома под гаражем и котельной высота 0,9м и будет засыпаться песком. Перед засыпкой хочу сделать в гараже сливное отверстие посередине с отводом за дом в дренажный колодец. Смущает надобность оного. Может вонять из трубы .Или придется делать гидрозамок. Аналогично есть мысль сделать сливную яму в топочной. Жалко просто так засыпать столько места. На фотке часть фундамента где будет гараж и топочная. Топочная в конце. Посилання на коментар Поділитися на інших сайтах More sharing options...
LaRsoN Опубліковано: 30 грудня 2008 Поділитись Опубліковано: 30 грудня 2008 С началом Вас! Очень аккуратно. У нас тоже на этом этапе стройка остановилась. А меня строители уговаривали продолжать в конце октября. Я не согласилась. Никто не ожидал такого снега!!! Посилання на коментар Поділитися на інших сайтах More sharing options...
lonjin Опубліковано: 30 грудня 2008 Поділитись Опубліковано: 30 грудня 2008 Серьезный подход к фундаменту! Все по уму! С почином. Посилання на коментар Поділитися на інших сайтах More sharing options...
Dave Опубліковано: 30 грудня 2008 Поділитись Опубліковано: 30 грудня 2008 Ну, с почином, земляк Все выглядит надежно и аккуратно. Сливная яма в цоколе, в общем-то, полезная штука. Имеет смысл сделать. Для чего отсыпка и поле фильтрации, для поднятия участка и септика? И еще вопрос. Как делалось бетонное основание для забора? Просто подливался бетон по бокам прямо на грунт, или делалась траншея с песчаной подушкой? Посилання на коментар Поділитися на інших сайтах More sharing options...
Gitan Опубліковано: 30 грудня 2008 Автор Поділитись Опубліковано: 30 грудня 2008 Ну, с почином, земляк Все выглядит надежно и аккуратно. Спасибо. Сливная яма в цоколе, в общем-то, полезная штука. Имеет смысл сделать. Машину мыть в гараже? ;) Для чего отсыпка и поле фильтрации, для поднятия участка и септика? Отсыпал для поднятия участка. Ну и сразу камнем засыпал. Грунтовая вода очень близко и рассчитывать на отвод в землю не стоило. Думаю по большой площади между камнями вода будет уходить хорошо. И еще вопрос. Как делалось бетонное основание для забора? Просто подливался бетон по бокам прямо на грунт, или делалась траншея с песчаной подушкой? Подушку из песка делали небольшую. Прокапывали прим на 10 см. Все равно засыпаться будет с обеих сторон. По низу кинул две нитки арматура д8. Затем щиты из ОСБ с двух сторон и залили. На каждый столбик с двух сторон монолитил арматуру д14 для усиления. А то столб длинный. Пятисекционный. Посилання на коментар Поділитися на інших сайтах More sharing options...
Лида Опубліковано: 31 грудня 2008 Поділитись Опубліковано: 31 грудня 2008 С началом стройки вас! Давно присматриваюсь к этому проекту и удивлялась что никто не выбрал его.Я все рисовала сама себе проект,но узнав сколько будет стоить сделать его,решила что я еще не такая богатая,а в этом проекте почти все совпадает с тем что я хочу,да и внешний вид не такой "затасканый"как польские проекты.Скажите,пожалуйста,вы его утверждали где-то на Украине?И как производится оплата? Я новичок ,так что может задаю глупые вопросы,не сердитесь,пожалуйста. С наступающим Новым годом вас и удачи в строительстве.:D Посилання на коментар Поділитися на інших сайтах More sharing options...
Dave Опубліковано: 31 грудня 2008 Поділитись Опубліковано: 31 грудня 2008 Машину мыть в гараже? ;) Нет, я имел ввиду сливную яму в котельной, под сброс воды (в т.ч. аварийный) из отопительной системы, если понадобится. Насчет слива воды из гаража пока ничего не скажу. У себя пока не делал. Наверное, буду делать пол под наклоном в сторону ворот, а перед воротами сделаю приемные отверстия (под решетками) и отводы в ливневку за отмосткой гаража. Подушку из песка делали небольшую. Прокапывали прим на 10 см. Все равно засыпаться будет с обеих сторон. По низу кинул две нитки арматура д8. Затем щиты из ОСБ с двух сторон и залили. На каждый столбик с двух сторон монолитил арматуру д14 для усиления. А то столб длинный. Пятисекционный. Спасибо за подробности. Видимо, буду делать что-то похожее. У нас с двух сторон участка такой забор, пока что поставленный "начерно", без отливов. Без бетонного основания выглядит ненадежно. А упомянутая подпорная стенка - это отдельная конструкция или ее роль выполняет бетонное основание забора? Посилання на коментар Поділитися на інших сайтах More sharing options...
Gitan Опубліковано: 31 грудня 2008 Автор Поділитись Опубліковано: 31 грудня 2008 С началом стройки вас! Давно присматриваюсь к этому проекту и удивлялась что никто не выбрал его.Я все рисовала сама себе проект,но узнав сколько будет стоить сделать его,решила что я еще не такая богатая,а в этом проекте почти все совпадает с тем что я хочу,да и внешний вид не такой "затасканый"как польские проекты.Скажите,пожалуйста,вы его утверждали где-то на Украине?И как производится оплата? Я новичок ,так что может задаю глупые вопросы,не сердитесь,пожалуйста. С наступающим Новым годом вас и удачи в строительстве.:D Мне в проекте понравилось двухуровневое решение комнаты над гаражем. Такая себе комната-оранжерея со входом с половины лестничного марша. Проект я покупал за 1000 долл в Питере. Перевел деньги Вестерн Юнион и пришел пакет на дом. Из-за зеркального варианта проекта небыло инженерной части. Сунулся утверждать в архитектуру. Там начали крутить носом. Лицензия российская. Надо ставить печать украинской фирмы с лицензией. Обратился к нашему архитектору...... Короче лучше платить 170 грн штрафа ежемесячно в худшем случае, чем связываться с разрешениями на стройку. Главное есть проект. По нему просто и удобно строится. Особенно в таком разноуровневом варианте дома. Спасибо за подробности. Видимо, буду делать что-то похожее. У нас с двух сторон участка такой забор, пока что поставленный "начерно", без отливов. Без бетонного основания выглядит ненадежно. А упомянутая подпорная стенка - это отдельная конструкция или ее роль выполняет бетонное основание забора? Подпорной стенкой решал две задачи. Собственно подпор насыпанного грунта и связь между столбами. Грунт влажный. Не надежный. Боялся что столбы наклонятся в разные строны. Посилання на коментар Поділитися на інших сайтах More sharing options...
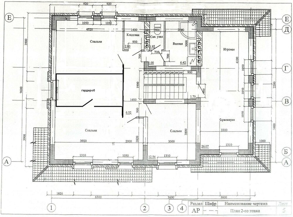
Gitan Опубліковано: 14 січня 2009 Автор Поділитись Опубліковано: 14 січня 2009 Мои поэтажные планы. Посилання на коментар Поділитися на інших сайтах More sharing options...
Гість lerax2010 Опубліковано: 14 січня 2009 Поділитись Опубліковано: 14 січня 2009 Хоть с виду ничего так проект , но внутри на любителя, если честно. 1. Ну кто же размещает гараж прямо у спальни? Жене в воскресение вздумается в гипермаркет поехать, - так фик поспишь ,если через стенку машина прогревается. 2. Котельная имеет вход прямо из гаража, с ГСМ. Как же пожарная безопасность? 3. Как-то неудобно с дверьми санузлов придумано. Особенно на втором этаже. Один выходит из ванной тыкает дверь того кто идет в с/у. 4. Ну еще эта манера дробить все на комнатушки. Надо простор любить! Или по хрущевкам ностальгируем? И мастерской нет. Где учить сына в какой руке правильно держать паяльник? Посилання на коментар Поділитися на інших сайтах More sharing options...
LaRsoN Опубліковано: 14 січня 2009 Поділитись Опубліковано: 14 січня 2009 lerax2010 тут человек проект кинул не на обсуждение! Фундамент уже залит. Или Вы предлагаете сейчас всё бросить и переделывать проект? Посилання на коментар Поділитися на інших сайтах More sharing options...
Gitan Опубліковано: 14 січня 2009 Автор Поділитись Опубліковано: 14 січня 2009 Хоть с виду ничего так проект , но внутри на любителя, если честно. 1. Ну кто же размещает гараж прямо у спальни? Жене в воскресение вздумается в гипермаркет поехать, - так фик поспишь ,если через стенку машина прогревается. 2. Котельная имеет вход прямо из гаража, с ГСМ. Как же пожарная безопасность? 3. Как-то неудобно с дверьми санузлов придумано. Особенно на втором этаже. Один выходит из ванной тыкает дверь того кто идет в с/у. 4. Ну еще эта манера дробить все на комнатушки. Надо простор любить! Или по хрущевкам ностальгируем? И мастерской нет. Где учить сына в какой руке правильно держать паяльник? 1. Машину планирую ставить под навес спарва от гаража. 2. Предусмотрена обшитая металлом противопожарная дверь. 3. Согласен. Буду думать. 4. И не планировал делать на 2 эт 3 спальни. Сделаю две и еще гардероб. 5. Сыну уже 22. Умеет. Сам буду летом мастерить. А авто под навесом. Посилання на коментар Поділитися на інших сайтах More sharing options...
Лида Опубліковано: 15 січня 2009 Поділитись Опубліковано: 15 січня 2009 Я только сейчас увидела что у вас зеркальный вариант.Я нашла этот проект на ВUDDOM.COM.UA может сможете с ними договориться о печати. Я смотрю у вас на первом этаже только туалет?Обязательно сделайте душ!Для себя я думала сделать(не знаю правда возможно ли так)ванную шириной 1.4-1.5м и по всей длинне т.е.-3м.тогда под окном можно поставить ванную или душевую и туалет и умывальник вдоль стены.А вход в постирочную надо делать под лесницей.Возможно ли так?Может кто-нибудь подскажет? Я правда начиталась тут,сколько стоит дом построить и не только в деньгах...А сейчас смотрю дом готовый можно купить по той же цене что и строиться,вот и задумалась что лучше?;) Посилання на коментар Поділитися на інших сайтах More sharing options...
Рекомендовані повідомлення
Створіть акаунт або увійдіть у нього для коментування
Ви маєте бути користувачем, щоб залишити коментар
Створити акаунт
Зареєструйтеся для отримання акаунта. Це просто!
Зареєструвати акаунтУвійти
Вже зареєстровані? Увійдіть тут.
Увійти зараз