Слава Н. Опубліковано: 5 лютого 2013 Поділитись Опубліковано: 5 лютого 2013 Здравствуйте уважаемые форумчане! Спасибо всем кто делится своим опытом и дает полезные советы! Так как я ни разу не строился решил с вами посоветоваться. Я прочитал много тем на этом форуме, но все равно возникает немало вопросов по моему будущему дому. Начну по порядку. Я женат, вместе с женой воспитываем двоих детей (5ти и 2х лет). Живем с родителями жены в частном доме, с моими родителями в трехкомнатной квартире живет брат с женой. Как вариант расширения жилой площади, вариант покупки квартиры не рассматривался главным образом по причине нежелания "уходить с земли". Тесть отдает половину участка и половину дома. Поэтому мы решили пристроится к старому дому. Старый дом это шлаковая конструкция 50х годов постройки. Согласен с мнением что его лучше снести и на его месте построить новый, но, увы, этого сделать никак не сможем по причине ограниченных финансов. Новый дом-пристройка предполагается с собственными коммуникациями. Планирую строится в три этапа. Первый год фундамент, второй -- стены и крыша, третий (и не последний) -- внутренние и наружные работы. Первый этап: май-июнь 2013г. Характеристики дома. Двухэтажный дом, без цокольного этажа. Холодный чердак. Не отапливаемый гараж внутри дома (из-за малых габаритов участка). Площадь: 150 м2 Высота этажей: чистая 2,85м (перекрытие 0,2 м) Фундамент: в земле Хм, над землей 0,30 м (чтобы вровень с полами старого дома), в гараже -- 0,05 м. Первый этаж: прихожая, кухня/столовая, санузел, комната, спальная комната. Второй этаж: коридор, 2 жилые комнаты (одна из них над гаражем), санузел. Стены: неопределенно из-за отсутствия расчетов нагрузок на грунт и воздействия на соседний дом. Предположительно газобетон. Перекрытия ж/б плиты на армопояс (потому что пролеты 5м, звукоизоляция) Крыша из металочерепицы, чердак не отапливаемый с люком на крышу. Чердак с двумя окнами для проветривания Частично теплый пол: - на первом этаже в прихожей, кухне, санузле; - на втором этаже в санузле, жилой комнате над гаражом. Батареи: - на первом этаже в спальной комнате, в рабочем кабинете: - на втором этаже в спальной комнате. Окна: металопластковые. Теперь основные вопросы: 1. Подскажите где разместить: котельную, если получится кладовую и гардеробную? 2. Как лучше оформлять документы, сначала на тестя, а потом по дарственной на жену, или сначала оформить дарственную на жену, а затем соответственно все документы на дом? 3. Посоветуйте толкового архитектора и конструктора на этот проект. Также очень интересует мнение специалистов по кровле, отоплению, канализации, электричеству и пр. Вообще приветствуется конструктивная критика и дельные советы от всех кто сталкивался с таким или похожим строительством. Схема участка (4 сотки, Дарницкий район) прилагается. Посилання на коментар Поділитися на інших сайтах More sharing options...
Kox4 Опубліковано: 5 лютого 2013 Поділитись Опубліковано: 5 лютого 2013 Не понятно, где будет жить прислуга. :D 2 Посилання на коментар Поділитися на інших сайтах More sharing options...
Aleksandr2508 Опубліковано: 5 лютого 2013 Поділитись Опубліковано: 5 лютого 2013 Подскажите, что уже построено и во сколько этаже Старый дом это шлаковая конструкция 50х годов постройки Можно фото с места событий? Какой примерно бюджет? Посилання на коментар Поділитися на інших сайтах More sharing options...
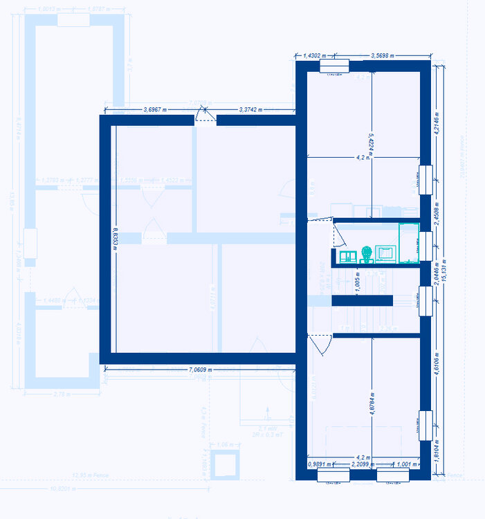
Александр2008_111 Опубліковано: 5 лютого 2013 Поділитись Опубліковано: 5 лютого 2013 1 поверх: - 2 входи зі старого будинку, а окремий з надвору? - незрозумілий апендикс біля С/У. 2 поверх: - 2 поверх ???? Можливо варто перепланувати так, щоб сходи були десь по середині будинку, тоді другий поверх розділиться на дві повноцінні кімнати??? Варто подивитись на те, що є на об'єкті і тільки потім щось говорити. 1 Посилання на коментар Поділитися на інших сайтах More sharing options...
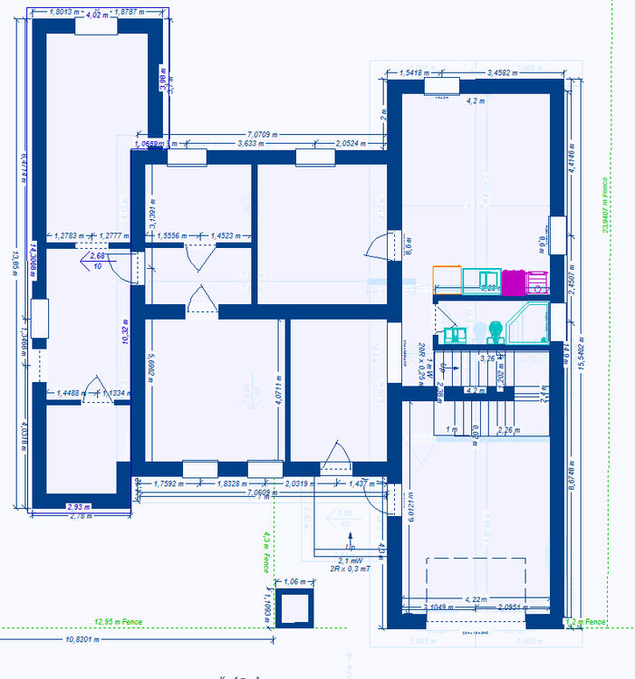
Слава Н. Опубліковано: 5 лютого 2013 Автор Поділитись Опубліковано: 5 лютого 2013 Подскажите, что уже построено и во сколько этаже Можно фото с места событий? Какой примерно бюджет? Пока еще ничего не построено. Идет процесс поиска оптимального решения. Вот фото дома к которому слева будет пристраиваться новый дом. Это вид со двора. Бюджет пока не известен, т.к. есть неопределенность по материалу для стен. Добавлено через 27 минут 1 поверх: - 2 входи зі старого будинку, а окремий з надвору? - незрозумілий апендикс біля С/У. 2 поверх: - 2 поверх ???? Можливо варто перепланувати так, щоб сходи були десь по середині будинку, тоді другий поверх розділиться на дві повноцінні кімнати??? Варто подивитись на те, що є на об'єкті і тільки потім щось говорити. Ось схема після добудови. На ній видно два окремі входи з вулиці до старого будинку, та до нового (вибачте що одразу не вказав). Апендикс біля с/в потрібен для того, щоб можна було без перешкод заходити/виходити до кімнати, що розташована зліва. 2 поверх потрібен для роширення житлової площі, заради цього усе і затіяно. Згоден з тим що другий поверх сплановано не найкращим чином, ще працюю над цим. Це обумовлено малою площею першого поверху і необхідністю розмістити на ньому такі приміщення як кухня та с/в. Добавлено через 4 минуты Вот еще для большей наглядности вход в дом. Посилання на коментар Поділитися на інших сайтах More sharing options...
вторик Опубліковано: 6 лютого 2013 Поділитись Опубліковано: 6 лютого 2013 проект, Ваш неплох. но это первая ласточка. отложите его на недельку, и приступите к новому, в совсем другом направлении. например вместо гаража навес перед домом, а основной вход за машиной.... стенну существуюшего я бы не грузил. 1 Посилання на коментар Поділитися на інших сайтах More sharing options...
Слава Н. Опубліковано: 6 лютого 2013 Автор Поділитись Опубліковано: 6 лютого 2013 Спасибо за совет. У меня уже до этого было несколько вариантов, и этот мне показался самым удачным, но не окончательным. Поиск продолжается. стенну существуюшего я бы не грузил. Сейчас на на эту стену опирается крыша. Мне придется поворачивать крышу старого дома на 90 градусов, иначе вода будет стекать в стену. А раз придется разбирать крышу, то я хочу придется убрать и старую стену. Вместо нее будет стена уже нового дома. Между старым и новым домом, на стыке, -- деформационный шов. Посилання на коментар Поділитися на інших сайтах More sharing options...
вторик Опубліковано: 7 лютого 2013 Поділитись Опубліковано: 7 лютого 2013 неполучится. стену придется оставить. она держит не только крышу, перекрытие но и весь дом. так сказать несущий кузов. есть вариант поддомкратить перекрытие, но просядет 100% и дом поведет. всетаки логичней сносить дом вместе со сеной, но остатся на руинах без денег тоже невариант. Вам возле стены нужно ставить колонны и ригеля между ними, тогда внутреннее пространство непострадает при сохранении внешнего размера, и конструкции дома не нарушатся, и работы можно проводить невыселяясь. Посилання на коментар Поділитися на інших сайтах More sharing options...
Слава Н. Опубліковано: 8 лютого 2013 Автор Поділитись Опубліковано: 8 лютого 2013 неполучится. стену придется оставить. она держит не только крышу, перекрытие но и весь дом. так сказать несущий кузов. есть вариант поддомкратить перекрытие, но просядет 100% и дом поведет. всетаки логичней сносить дом вместе со сеной, но остатся на руинах без денег тоже невариант. Вам возле стены нужно ставить колонны и ригеля между ними, тогда внутреннее пространство непострадает при сохранении внешнего размера, и конструкции дома не нарушатся, и работы можно проводить невыселяясь. да, пожалуй Вы правы. Вообще эта стена проблемное место. Я совсем не представляю как под фундамент старого дома можно залить часть фундамента нового при этом так подкопать чтоб не обвалилась стена. У соседа был случай когда он обкладывал веранду газобетоном. Так вот, строитель вырыл траншею под фундамент и когда начал немного под стену подкапывать, чуть этой стеной не привалило. Как вообще такие работы проводят, непонятно. Я пока себе представляю два варианта, это подпирать стену и рыть траншею, а второй выкапывать вдоль стены что то типа колодцев через 1м и бетонировать их с выпуском арматуры над уровнем земли, а затем делать общий армопояс по верху. Посилання на коментар Поділитися на інших сайтах More sharing options...
Drosselbeere Опубліковано: 9 лютого 2013 Поділитись Опубліковано: 9 лютого 2013 Я совсем не представляю как под фундамент старого дома можно залить часть фундамента нового при этом так подкопать чтоб не обвалилась стена. все это выполняется, стена бьется на захватки и в шахмотном порядке вырывается траншея, подкапываетесь под существующий фундамент и заливаете бетон. или же сделать новый ленточный фундамент независимо от старого, если второй этаж будет над пристройкой, то это лучшей вариант. Что бы вам что то посоветовать надо иметь больше информации. конструктора на этот проект. могу вам помочь Посилання на коментар Поділитися на інших сайтах More sharing options...
Слава Н. Опубліковано: 10 лютого 2013 Автор Поділитись Опубліковано: 10 лютого 2013 Меня все беспокоит один вопрос. Я забыл озвучить важный нюанс, старая стена из-за отсутствия отмостки, лет 6 назад отстала от дома посредине в верхней точке сантиметров на 8. Теперь если делать новый ленточный фундамент независимо от старого, то придется вдоль старой стены вырыть траншею глубиной, к примеру, 1,3 метра, то что помешает старой стене просто съехать в эту траншею. Посилання на коментар Поділитися на інших сайтах More sharing options...
vickov Опубліковано: 11 лютого 2013 Поділитись Опубліковано: 11 лютого 2013 Меня все беспокоит один вопрос. Я забыл озвучить важный нюанс, старая стена из-за отсутствия отмостки, лет 6 назад отстала от дома посредине в верхней точке сантиметров на 8. Теперь если делать новый ленточный фундамент независимо от старого, то придется вдоль старой стены вырыть траншею глубиной, к примеру, 1,3 метра, то что помешает старой стене просто съехать в эту траншею. Я бы разметил и последовательно, отдельными фрагментами по метру, через метр, вырыл новый фундамент, засверливался к старому и вбивал арматуру в старый и также, фрагментами, заливал до уровня земли, оставляя запас арматуры. Потому выбрал бы землю между залитыми участками и залил оставшуюся часть, а над залитыми участками - типа армопояса с армированием. Если заливать такими небольшими фрагментами, то старый фундамент никуда не съедет. В селе, примерно, таким же способом, усиливал старый фундамент. 1 Посилання на коментар Поділитися на інших сайтах More sharing options...
Слава Н. Опубліковано: 14 лютого 2013 Автор Поділитись Опубліковано: 14 лютого 2013 Лестница посредине. Первый пролет находится в доме, второй -- в гараже. "Японские фавеллы" получаются )). Можно ли так вообще делать? Посилання на коментар Поділитися на інших сайтах More sharing options...
Слава Н. Опубліковано: 2 березня 2013 Автор Поділитись Опубліковано: 2 березня 2013 Неужели из всех тех, кто делал пристройку к дому и сказать-то нечего? Кто может порекомендовать толковых геодезистов? Посилання на коментар Поділитися на інших сайтах More sharing options...
Drosselbeere Опубліковано: 2 березня 2013 Поділитись Опубліковано: 2 березня 2013 порекомендовать толковых геодезистов зачем они вам? 1 Посилання на коментар Поділитися на інших сайтах More sharing options...
Слава Н. Опубліковано: 3 березня 2013 Автор Поділитись Опубліковано: 3 березня 2013 зачем они вам? чтобы сделали топосьъемку и геологию. или это не нужно делать? Посилання на коментар Поділитися на інших сайтах More sharing options...
Гість remontmaster Опубліковано: 4 березня 2013 Поділитись Опубліковано: 4 березня 2013 В целом план неплохой. Однако отсутствие информации о свойстве грунта затрудняет дельный совет по фундаменту. Если грунт не очень просадочный, я бы дополнительно бросил арматурную обвязку 6х4 как мин. по периметру нового и старого здания с Т-образной перемычкой по несущей параллельной передней стене для того, чтобы исключить возможность растрескивания в дальнейшем соединенных конструкций (новой и старой), и надо более тщательно просчитать весовую нагрузку нового фундамента дабы избежать "качели". Привязочную арматуру через 3-4 уровня кладки рекомендуется вбивать под осевым вертикальным наклоном. Отпишитесь по предполагаемому материалу, кот. Вам лучше достать в вашей местности, может еще чего подскажем. А так, удачи! Главное, не торопиться. Выдержите нормально фундамент под влагой. Посилання на коментар Поділитися на інших сайтах More sharing options...
Слава Н. Опубліковано: 4 березня 2013 Автор Поділитись Опубліковано: 4 березня 2013 Отпишитесь по предполагаемому материалу, кот. Вам лучше достать в вашей местности, может еще чего подскажем. Планирую газобетон, плиты перекрытия. В ближайшее время будет сделана геология, о результатах напишу. Посилання на коментар Поділитися на інших сайтах More sharing options...
Игорь Валерьевич Опубліковано: 24 липня 2013 Поділитись Опубліковано: 24 липня 2013 Слава Н., Вы уже начали работы? Посилання на коментар Поділитися на інших сайтах More sharing options...
Рекомендовані повідомлення
Створіть акаунт або увійдіть у нього для коментування
Ви маєте бути користувачем, щоб залишити коментар
Створити акаунт
Зареєструйтеся для отримання акаунта. Це просто!
Зареєструвати акаунтУвійти
Вже зареєстровані? Увійдіть тут.
Увійти зараз