XL.pro Опубліковано: 11 квітня 2013 Автор Поділитись Опубліковано: 11 квітня 2013 Дерево. В наш регион в 95-99% случаев завозят дерево из Житомирской и Черниговской областей. Если Вам будут говорить, что рядом с Киевом - врут. Я с отцом объездил несколько пилорам, где обычные сотрудники говорили, что и откуда везется, ихние же директора - 50/50. Цены везде приблизительно одинаковые, где дерево дешевле - доставка дороже, и наоборот. Заказали дерево через знакомых (из под Киева), когда привезли машину, спросили у водителя, где резали - в Житомирской области, ответил он :D. Важно. Дерево режется, остаются отходы, при закупке материалов многие добавляют 10-20% от спецификации, указанной в проекте и все. Это не правильно. В зависимости от пилорамы можно заказать дерево длиной 4м, 6м, 6,5м (есть и 7-8 м., но они значительно дороже). Чтобы меньше было отходов, берете проект, смотрите какой длинны кобылка (например) 1,5м или 2м. Если 1,5м, то лучше заказать 6м (6/1,5= 4 целые части), если же 2 м, то - 4 м дерево (4/2=2 целые части). Когда все посчитаете, теперь можете добавить по 1-2 позиции в каждое наименование. Это трудоемкий процесс, но при стропильных работах, Вам не нужно будет дозавозить материалы и не останется больших отходов. Прикрепляю файл, как рассчитывал я.Дерево.xls 2 Посилання на коментар Поділитися на інших сайтах More sharing options...
XL.pro Опубліковано: 12 квітня 2013 Автор Поділитись Опубліковано: 12 квітня 2013 Заранее выкладываю план крыши дома и гаража+летней кухни. Тип крыши - четырехскатная для дома и трехскатная для гаража, выглядит интереснее, чем двухскатная ....ИМХО Посилання на коментар Поділитися на інших сайтах More sharing options...
XL.pro Опубліковано: 12 квітня 2013 Автор Поділитись Опубліковано: 12 квітня 2013 Обработка дерева. Дерево (стропильная система) обрабатывается по двум причинам: 1. От возгорания (для пожарников, при сдаче дома в эксплуатацию), 2. От насекомых (жучков-паучков и пр.). Существует много разных пропитывающих защитных средств начиная от порошка, который нужно разводить водой, заканчивая готовым раствором, наиболее популярный (на форуме) - Антисептик ФН ТАМАК-3Н. Наиболее эффективным способом нанесение раствора является пропитка в "ванночке": в земле вырывается "яма" длиной 7м, шириной 0,3 м, глубиной 0,3 м, гидроизолируется самым дешевым гидробарьером, заливается раствор, опускается дерево и пропитывается определенное время. Это советуют делать специалисты данного форума. У себя я так не делал. Наши строители обычной щеткой наносили раствор на дерево, промазывая его (называется для успокоения души). Объясняю, почему сделал иначе: 1. Дом будет сдаваться в эксплуатацию через год, а то и через два после обработки, за это время весь раствор испариться, как бы тщательно Вы его не пропитывали. Перед приходом пожарников придется промазывать повторно либо договариваться с ними. 2. Раньше не было подобных средств и деревянные крыши (дома) стояли веками и ничего не случалось. Куда важнее обеспечить правильный микроклимат на крыше, чтобы не было сыро, чтобы была вентиляция. 3. На чердаке гаража и дома я думаю (по крайней мере планирую) хранить вещи, предметы, которые редко используются (чтобы не захламлять жилые помещения), а все антисептики очень токсичные ... и испаряясь, будут летать по всей крыше. Это мое личное мнения (свои тараканы), а как правильно нужно делать описано выше, решать Вам. 1 Посилання на коментар Поділитися на інших сайтах More sharing options...
Luko Опубліковано: 12 квітня 2013 Поділитись Опубліковано: 12 квітня 2013 для пожарников, при сдаче дома в эксплуатацию для пожарников сейчас ничего не делают, они не участвуют в сдаче дома в эксплуатацию Посилання на коментар Поділитися на інших сайтах More sharing options...
Татьяна5 Опубліковано: 12 квітня 2013 Поділитись Опубліковано: 12 квітня 2013 для пожарников сейчас ничего не делают, они не участвуют в сдаче дома в эксплуатацию ровно как и влагостойкую фанеру под битумку не используют - но то такое , придираюсь 1 Посилання на коментар Поділитися на інших сайтах More sharing options...
XL.pro Опубліковано: 12 квітня 2013 Автор Поділитись Опубліковано: 12 квітня 2013 для пожарников сейчас ничего не делают, они не участвуют в сдаче дома в эксплуатацию То есть сейчас не осматривают обработана ли стропильная система антисептиком или нет? (Прочел на форуме, раньше так точно проверяли). ровно как и влагостойкую фанеру под битумку не используют - но то такое , придираюсь Пускай будет ОСБ (имел ввиду, что эти материалы теряют свои свойства при намокании)... или ее тоже не используют? Посилання на коментар Поділитися на інших сайтах More sharing options...
Luko Опубліковано: 12 квітня 2013 Поділитись Опубліковано: 12 квітня 2013 То есть сейчас не осматривают обработана ли стропильная система антисептиком или нет? (Прочел на форуме, раньше так точно проверяли). нет почитайте тему о вводе в эксплуатацию 1 Посилання на коментар Поділитися на інших сайтах More sharing options...
Татьяна5 Опубліковано: 12 квітня 2013 Поділитись Опубліковано: 12 квітня 2013 Пускай будет ОСБ (имел ввиду, что эти материалы теряют свои свойства при намокании)... или ее тоже не используют? фанера и ОСб - разница как между словами канал и канализация )) ОСБ чудненько себя чувствует, главное на долго не оставлять Посилання на коментар Поділитися на інших сайтах More sharing options...
XL.pro Опубліковано: 12 квітня 2013 Автор Поділитись Опубліковано: 12 квітня 2013 фанера и ОСб - разница как между словами канал и канализация )) ОСБ чудненько себя чувствует, главное на долго не оставлять Ок,спасибо, что исправили - ОСБ. Но смысл от этого не меняется, во время дождя ОСБ тоже намокает, она не потеряет 50-60% своих свойств, пускай это будет 10-15%....у меня хоть и была черепица, но дождь тоже доставил много хлопот, дальше опишу. Посилання на коментар Поділитися на інших сайтах More sharing options...
Татьяна5 Опубліковано: 12 квітня 2013 Поділитись Опубліковано: 12 квітня 2013 Ок,спасибо, что исправили - ОСБ. Но смысл от этого не меняется, во время дождя ОСБ тоже намокает, она не потеряет 50-60% своих свойств, пускай это будет 10-15%....у меня хоть и была черепица, но дождь тоже доставил много хлопот, дальше опишу. да я ж не спорю , просто формулировка резануло ухо Посилання на коментар Поділитися на інших сайтах More sharing options...
XL.pro Опубліковано: 12 квітня 2013 Автор Поділитись Опубліковано: 12 квітня 2013 да я ж не спорю , просто формулировка резануло ухо Все правильно. Вещи должны называться своими именами, впредь буду внимательней и перечитывать, что пишу. :roll: Посилання на коментар Поділитися на інших сайтах More sharing options...
XL.pro Опубліковано: 13 квітня 2013 Автор Поділитись Опубліковано: 13 квітня 2013 Мауэрлат. Проектной частью предусмотрен размер 100мм*100мм (на форуме специалисты придерживаются такого же мнения), по просьбе крышников я заказал 130мм*130мм, разница в цене - копейки, если ребята привыкли работать с этим размером, пускай работают. Крепится мауэрлат при помощи шпилек, установленных в кирпичную стену и закручивается болтами. Для предотвращения намокания дерева от кирпичной стены раскатывают еврорубероид. Стропила. Размер стропил тоже был изменен с 50мм*180мм на 70мм*180мм (хотя архитектор несколько раз пересчитывал с учетом максимальной нагрузки), но опять же, дерево стоит не так дорого, я перестраховался. Когда кровельщики делали стропильную систему на гараже, я неделю отдыхал, отец не обратил внимание, что ребята крепили стропила к мауэрлату путем выдалбливании в последнем дырки, так называемого "волчьего зуба", и установки в него стропилины (так быстрее). Проектом же предусмотрено вырезание "пятки", поэтому крепление стропил на крыше дома делалось согласно проекту. 1 Посилання на коментар Поділитися на інших сайтах More sharing options...
Игореха Опубліковано: 13 квітня 2013 Поділитись Опубліковано: 13 квітня 2013 ребята крепили стропила к мауэрлату путем выдалбливании в последнем дырки, так называемого "волчьего зуба", и установки в него стропилины (так быстрее).. С этого момента поподробнее Есть еще фотографии кровли и узла мауэрлат-стропило? У вас несущий коньковый прогон есть? Посилання на коментар Поділитися на інших сайтах More sharing options...
XL.pro Опубліковано: 15 квітня 2013 Автор Поділитись Опубліковано: 15 квітня 2013 Есть еще фотографии кровли и узла мауэрлат-стропило? У вас несущий коньковый прогон есть? Фотки есть, хотелось к фото сделать описание, не успеваю (завтра-послезавтра появится свободное время более детально опишу...). Мое мнение, когда стропило упирается на пятку, так надежнее или я ошибаюсь? Как говорил раньше, что все строители одинаковы, спешат, сделать бы быстрее....хотя, крышниками я доволен больше всех. Опять же, проект был изначально, почему не следовать ему. 1 Посилання на коментар Поділитися на інших сайтах More sharing options...
val.kudrya Опубліковано: 15 квітня 2013 Поділитись Опубліковано: 15 квітня 2013 хотя, крышниками я доволен больше всех. Похоже, это Вы зря Есть ли фото стропильной системы над домом? Места опирания стропил на прогон? И как пережила кровля эту зиму, нет ли деформаций? Посилання на коментар Поділитися на інших сайтах More sharing options...
Игореха Опубліковано: 15 квітня 2013 Поділитись Опубліковано: 15 квітня 2013 Фотки есть, хотелось к фото сделать описание, не успеваю (завтра-послезавтра появится свободное время более детально опишу...). Мое мнение, когда стропило упирается на пятку, так надежнее или я ошибаюсь? Как говорил раньше, что все строители одинаковы, спешат, сделать бы быстрее....хотя, крышниками я доволен больше всех. Опять же, проект был изначально, почему не следовать ему. Да вот я и хочу понять, стропила опираются на мауэрлат горизонтальной пяткой/запилом, или в мауэрлате что-либо выбрали/вырезали и как. По фотографиям не очень ясно. Вроде как кобылка "врезана" в мауэрлат, а стропилина запилена горизонтально в плоскости мауэрлата. Но из вашего описания так и не уловил связи с фотографиями. В любом случае, это узел очень важен и от того, как запилить, работа стропильной системы может поменяться радикальным образом. ;) В любом случае, мауэрлат пилить - моветон 1 Посилання на коментар Поділитися на інших сайтах More sharing options...
XL.pro Опубліковано: 15 квітня 2013 Автор Поділитись Опубліковано: 15 квітня 2013 Похоже, это Вы зря Из тех бригад, которые мне строили дом, крышники оказались более-менее ... правда были свои нюансы, но о них позже. Вроде как кобылка "врезана" в мауэрлат, а стропилина запилена горизонтально в плоскости мауэрлата. Но из вашего описания так и не уловил связи с фотографиями. В любом случае, это узел очень важен и от того, как запилить, работа стропильной системы может поменяться радикальным образом. В любом случае, мауэрлат пилить - моветон Вечером добавлю фото, поищу. Гараж. В мауэрлате выдолблена дырка, стропило поставлено углом в дырку, мауэрлат подпилен, в него вставлена кобылка. Дом. Стропило стоит на "пятке", мауэрлат подпилен, в него вставлена кобылка. Я тоже думал, что правильнее кобылку подпилить (сделать в ней "зуб") и установить в мауэрлат.....а не пилить последний. Посилання на коментар Поділитися на інших сайтах More sharing options...
Игореха Опубліковано: 15 квітня 2013 Поділитись Опубліковано: 15 квітня 2013 Гараж. В мауэрлате выдолблена дырка, стропило поставлено углом в дырку, А как в проекте было изначально? Именно этот узел? Посилання на коментар Поділитися на інших сайтах More sharing options...
XL.pro Опубліковано: 15 квітня 2013 Автор Поділитись Опубліковано: 15 квітня 2013 А как в проекте было изначально? Именно этот узел? Пост №188 "Проектом же предусмотрено вырезание "пятки", поэтому крепление стропил на крыше дома делалось согласно проекту". Изначально было по-людски ))) Когда крышники приступили к работе (начали с гаража) я отдыхал, стропильные работы велись ... отец приезжал на стройку вечером, уже было темно ...на крышу поднимался, но не всматривался, как стропила крепились, а когда увидел - было поздно. Я когда приехал на объект сам офигел. Спросил зачем так выдалбливать, есть проект, делайте согласно ему... правда, под конец стройки понял, что не на кого обижаться))))) Игорь, Вы верно подсказали по раскладке облицовочного кирпича, что можно высчитать "средний вертикальный шов" между облицовочными кирпичами и облицовывать дома без подрезки .... но на практике получается совсем другое, нужно брать на полгода отпуск (или бросать работу) и тупо "ночевать" на стройке. Подобных моментов очень много. При строительстве коробки дома у меня было 3 бригады (прораб за авторским надзором по укладке блоков не в счет ), причем знакомые, которые их посоветовали, расхваливали (грубо говоря, как у нас форумчане, кому что не сделают дом - везде специалисты, а вот я сижу от нефиг делать и ищу недостатки), реальность показывает совсем обратное. Хочу, чтобы на меня не обижались, но как у нас строят дороги, многоэтажные дома .... точно так же строят и частные дома, и хорошо, если успел хозяин заметить "халтуру, прокол, ошибку", а главное вовремя исправить .... Посилання на коментар Поділитися на інших сайтах More sharing options...
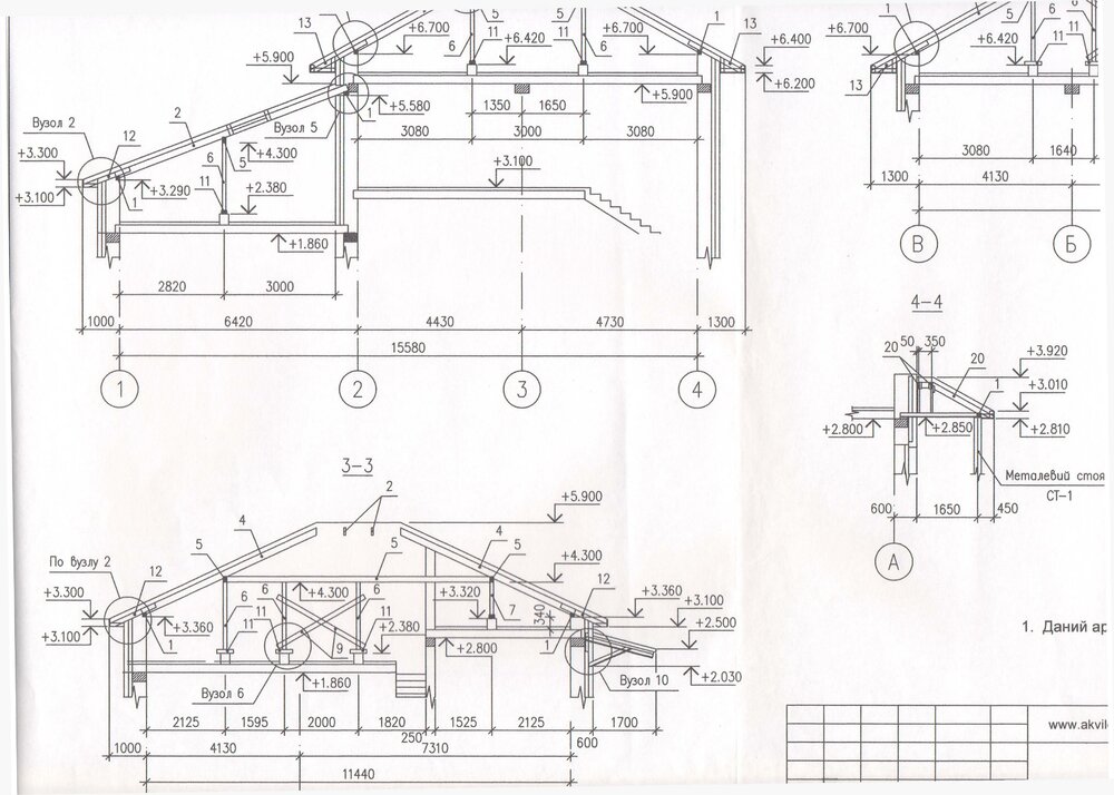
Игореха Опубліковано: 15 квітня 2013 Поділитись Опубліковано: 15 квітня 2013 Пост №188 "Проектом же предусмотрено вырезание "пятки", Ну если именно пятка, а не обратная врубка/зарезка была предусмотрена проектом, то они этими действиями создали вам распор на стены, которого изначально не был запроектирован. У вас есть чертеж этого узла в проекте? ПС Остальные узлы крепления этих стропил (в вальме и на прогонах) выполнены в соответствии с проектом? Посилання на коментар Поділитися на інших сайтах More sharing options...
XL.pro Опубліковано: 16 квітня 2013 Автор Поділитись Опубліковано: 16 квітня 2013 У вас есть чертеж этого узла в проекте? ПС Остальные узлы крепления этих стропил (в вальме и на прогонах) выполнены в соответствии с проектом? В любом случае все построено, выдержало снеговые нагрузки этой зимы (3 р.тьфу). Можете еще своим опытным глазом взглянуть со стороны, далее крышу сделали согласно проекту. Посилання на коментар Поділитися на інших сайтах More sharing options...
Игореха Опубліковано: 16 квітня 2013 Поділитись Опубліковано: 16 квітня 2013 В любом случае все построено, выдержало снеговые нагрузки этой зимы (3 р.тьфу). Можете еще своим опытным глазом взглянуть со стороны, далее крышу сделали согласно проекту. Это все чертежи? К стропилке гаража относится узел 2 и 5, на сколько я вижу. Не детализирован узел крепления стропил на промежуточном прогоне. Что касается узла стропило-мауэрлат. Там у вас должно быть 2 различных узла. Один - для вальмовых стропил. Второй - для нарожников и рядовых стропил. Обычно эти узлы иддентичны. Собственно это у вас и показано ("узел 2" и по "узлу 2") Но. На чертеже ясно видно, что стропила стыкуются с мауэрлатом обратной зарубкой. т.е. стропила нижним зубом упираются в мауэрлат. В тоже время на стропилах есть пятка. В верхнем узле также есть пятка и упор в верхний прогон. В общем случае, большого распора быть не должно, но узел 2 запроектирован некорректно. А есть описательная часть проекта кровли? В тоже время, строители внесли еще и своих тараканов. И выполнили этот узел не взирая на работу стропильной системы в совокупности с остальными узлами. Зуб он обеспечили, несколько извращенным способом, но он таки есть в проекте. НО! Они еще и убрали горизонтальную пятку в итоге, а это уже существенное изменение в работе стропильной системы. Теперь (в отличии от проекта) стропило пытаестя сьехать с мауэрлата, т.к. нет горизонтальной опоры/пятки. Его удерживает только зуб и верхний узел крепления. Но это добавляет распор на несущие стены. То что кровля относительно небольшая и то что система в принципе наслонная а не висячая, а также наличие кирпичной обвязки спасает вашу крышу. Но система запроектирована немного не верно и выполненна "немного" неверно в отличии от проекта. Масло масляное :D В общем, учитывая достаточно большую дуракаустойчивость оригинальной стропильной системы и конструкции в целом - можно спать спокойно. Я бы только доработал узел "стропило - промежуточный прогон", чтобы спать уж совсем спокойно 2 Посилання на коментар Поділитися на інших сайтах More sharing options...
XL.pro Опубліковано: 16 квітня 2013 Автор Поділитись Опубліковано: 16 квітня 2013 (змінено) Это все чертежи? Я отсканировал несколько страниц для примера. В тоже время, строители внесли еще и своих тараканов. И выполнили этот узел не взирая на работу стропильной системы в совокупности с остальными узлами. Ох, уж эти строители..... Но система запроектирована немного не верно и выполненна "немного" неверно в отличии от проекта Вы строите не первый дом, знаете что к чему ... я особо не перепроверял архитектора (конструктора), в крыше не силен ... при возведении фундамента, стен были свои недочеты, но в целом рассчитано правильно. Я бы только доработал узел "стропило - промежуточный прогон", чтобы спать уж совсем спокойно Спасибо, что вникли в мою стройку..... Сейчас добавлю больше фоток, распишу..... если что-то не так - пишите, всем замечаниям буду рад, да и кому-то тоже эти знания пригодятся. Каким образом доработать? Меня интересует крепление стропил к диагональной ноге, ведь они на стульчик "не ложатся", держатся на 3-х гвоздях, надежно ли это? Некоторые форумчане используют железный уголок, я как-то побоялся вбивать, чтобы стропило не раскололось. Змінено 16 квітня 2013 користувачем XL.pro Посилання на коментар Поділитися на інших сайтах More sharing options...
XL.pro Опубліковано: 16 квітня 2013 Автор Поділитись Опубліковано: 16 квітня 2013 По-порядку. Обратите внимание, при установки "стульчика" делаются кирпичные столбики, на них положили "куски" деревянных брусков 100*150. В гараже строители сделали согласно проекту, но лучшая "устойчивость" будет, если положить целый брус (фото 2). Посилання на коментар Поділитися на інших сайтах More sharing options...
Игореха Опубліковано: 16 квітня 2013 Поділитись Опубліковано: 16 квітня 2013 По-порядку. Обратите внимание, при установки "стульчика" делаются кирпичные столбики, на них положили "куски" деревянных брусков 100*150. В гараже строители сделали согласно проекту, но лучшая "устойчивость" будет, если положить целый брус (фото 2). Не принципиально. Лучшая устойчивость будет только у тех кусков бруса что под стойками. На общую устойчивость "стульчика" это не сильно влияет. Главное, чтобы по горизонтали было закреплено хорошо (чтобы ноги стульчика не сьехали с постамента). Добавлено через 2 минуты Каким образом доработать? Есть фото изнутри? У вас ничего не подшито снизу кровли над гаражом? Доступ к стропилам и промежуточным прогонам (стульчику) есть? Посилання на коментар Поділитися на інших сайтах More sharing options...
Рекомендовані повідомлення
Створіть акаунт або увійдіть у нього для коментування
Ви маєте бути користувачем, щоб залишити коментар
Створити акаунт
Зареєструйтеся для отримання акаунта. Це просто!
Зареєструвати акаунтУвійти
Вже зареєстровані? Увійдіть тут.
Увійти зараз