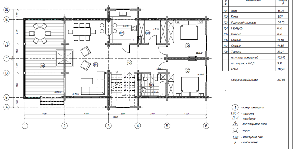
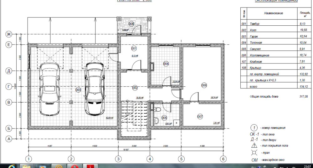
zhupanenko Опубліковано: 24 лютого 2013 Поділитись Опубліковано: 24 лютого 2013 пересматривая свой проект понял, что тамбур и холл у меня будут темными. единственный открытый источник света - это окно на северной стороне в лестничном проеме. какие есть архитектурные решения чтоб пустить туда дневной свет? пока придумалось такое: - дверь пропускающая свет (как-то ненадежно) - окно над дверью (с учетом накрытого крыльца врядли это что-то даст) (ссылка устарела) (ссылка устарела) Посилання на коментар Поділитися на інших сайтах More sharing options...
Надежда Опубліковано: 24 лютого 2013 Поділитись Опубліковано: 24 лютого 2013 пока придумалось такое: - дверь пропускающая свет (как-то ненадежно) - окно над дверью (с учетом накрытого крыльца врядли это что-то даст) Если рядом есть стеклянная дверь на террасу, то почему не можеть быть входная дверь, пропускающая свет (из тамбура в дом тоже). Сделайте и фрамугу над дверью, и двери с пропусканием света. У меня так (фото сделала сейчас). Навес над крыльцом тоже есть, как у Вас. 2 Посилання на коментар Поділитися на інших сайтах More sharing options...
zhupanenko Опубліковано: 24 лютого 2013 Автор Поділитись Опубліковано: 24 лютого 2013 Надежда, это увеличенная высота дверного проема? сколько в см? Посилання на коментар Поділитися на інших сайтах More sharing options...
Надежда Опубліковано: 24 лютого 2013 Поділитись Опубліковано: 24 лютого 2013 Надежда, это увеличенная высота дверного проема? сколько в см? Вся высота 260 см. Посилання на коментар Поділитися на інших сайтах More sharing options...
Newww Опубліковано: 24 лютого 2013 Поділитись Опубліковано: 24 лютого 2013 стеклоблоки над или сбоку от дверей. дверь с небольшими стёклами. световоды, правда дорого. хотя весьма интересно... Посилання на коментар Поділитися на інших сайтах More sharing options...
Drosselbeere Опубліковано: 24 лютого 2013 Поділитись Опубліковано: 24 лютого 2013 zhupanenko,у вас холл будет освещаться как за счет окна на лестнице и частично из зала, также что вам мешает вторую дверь тамбура сделать остекленной? Посилання на коментар Поділитися на інших сайтах More sharing options...
zhupanenko Опубліковано: 25 лютого 2013 Автор Поділитись Опубліковано: 25 лютого 2013 zhupanenko,у вас холл будет освещаться как за счет окна на лестнице и частично из зала, также что вам мешает вторую дверь тамбура сделать остекленной? мне кажется, что если не сделать входную дверь со стеклами, то эта часть будет слабоосвещаемая Посилання на коментар Поділитися на інших сайтах More sharing options...
seyvalter Опубліковано: 25 лютого 2013 Поділитись Опубліковано: 25 лютого 2013 Ну власне вишивати ви там і не будете - аби не спотикатись..... Або засклені двері - або віконце поряд з дверима. ну і + лампочка Іліча. 1 Посилання на коментар Поділитися на інших сайтах More sharing options...
vickov Опубліковано: 25 лютого 2013 Поділитись Опубліковано: 25 лютого 2013 Про окно рядом с дверью не думали? Типа, как на фото, только с одной стороны. Посилання на коментар Поділитися на інших сайтах More sharing options...
vickov Опубліковано: 25 лютого 2013 Поділитись Опубліковано: 25 лютого 2013 Ну власне вишивати ви там і не будете - аби не спотикатись..... Або засклені двері - або віконце поряд з дверима. ну і + лампочка Іліча. Пока искал фотку, уже и ответ появился Посилання на коментар Поділитися на інших сайтах More sharing options...
zhupanenko Опубліковано: 25 лютого 2013 Автор Поділитись Опубліковано: 25 лютого 2013 вариант Надежды с окном сверху визуально нравится больше Посилання на коментар Поділитися на інших сайтах More sharing options...
irina1969 Опубліковано: 25 лютого 2013 Поділитись Опубліковано: 25 лютого 2013 а если запланировать глухое окно на лестничном пролете первого этажа ?.у меня похожая ситуация, только вход( тамбур) вообще в цоколе и свет будет литься сверху 1 Посилання на коментар Поділитися на інших сайтах More sharing options...
loader Опубліковано: 25 лютого 2013 Поділитись Опубліковано: 25 лютого 2013 мне кажется, что если не сделать входную дверь со стеклами, то эта часть будет слабоосвещаемая 1. диодная лампочка 3-5 Вт (аналог 60-ки), цена вопроса 80грн + датчик движения, цена вопроса 70грн, итого 150130грн разово + какие-то копейки в год... 2. окно в дверях как показали выше (безопасность - тогда и окон нужно не делать.... + есть зарешеченые варианты) Посилання на коментар Поділитися на інших сайтах More sharing options...
Oleksandr Protsev Опубліковано: 26 лютого 2013 Поділитись Опубліковано: 26 лютого 2013 Мы ставили дверь с окошком. И свет проникает, и дверь неплохая, и решеточка есть. Посилання на коментар Поділитися на інших сайтах More sharing options...
zhupanenko Опубліковано: 26 лютого 2013 Автор Поділитись Опубліковано: 26 лютого 2013 Oleksandr Protsev, по деньгам это дороже чем такая же дверь только глухая? и на сколько? Посилання на коментар Поділитися на інших сайтах More sharing options...
Oleksandr Protsev Опубліковано: 27 лютого 2013 Поділитись Опубліковано: 27 лютого 2013 Oleksandr Protsev, по деньгам это дороже чем такая же дверь только глухая? и на сколько? Мы брали две (дуб и винорит) со склада, получается дешевле чем на заказ. berislav.com.ua/ К сожалению, цена постоянно растет. Посилання на коментар Поділитися на інших сайтах More sharing options...
Рекомендовані повідомлення
Створіть акаунт або увійдіть у нього для коментування
Ви маєте бути користувачем, щоб залишити коментар
Створити акаунт
Зареєструйтеся для отримання акаунта. Це просто!
Зареєструвати акаунтУвійти
Вже зареєстровані? Увійдіть тут.
Увійти зараз