Оля (boyarka) Опубліковано: 26 травня 2013 Поділитись Опубліковано: 26 травня 2013 Всем добрый день, встал вопрос с откатными воротами, ставить будем через месяц-два, но заклвдную уже делать нужно сейчас. Плиткой уже подошли до нужного места, поэтому ворос стоит очено остро, как сделать эту закладную? нашла на сайте схему? правильна ли она? (ссылка устарела) На каком расстоянии от начала швеллера приваривается часть к которой будет крепится автоматика? и соответственно куда выводить повода? Ворота как на фото, с калиткой в воротах, длинна проема приличная 5.3 метра. Фото двора тоже прилагаются. Новые ворота буду от столба до столба(которые ржавые на фото) Еще просьба кто занимается продажей и установкой, просчитайте пожалуйста, автоматика среднего уровня, профнастил с двух сторон, будет (домофон и електорозамок , уже в наличии) Посилання на коментар Поділитися на інших сайтах More sharing options...
VOROTOK Опубліковано: 27 травня 2013 Поділитись Опубліковано: 27 травня 2013 Ворота как на фото, с калиткой в воротах, длинна проема приличная 5.3 метра Какая нужна высота ворот? Посилання на коментар Поділитися на інших сайтах More sharing options...
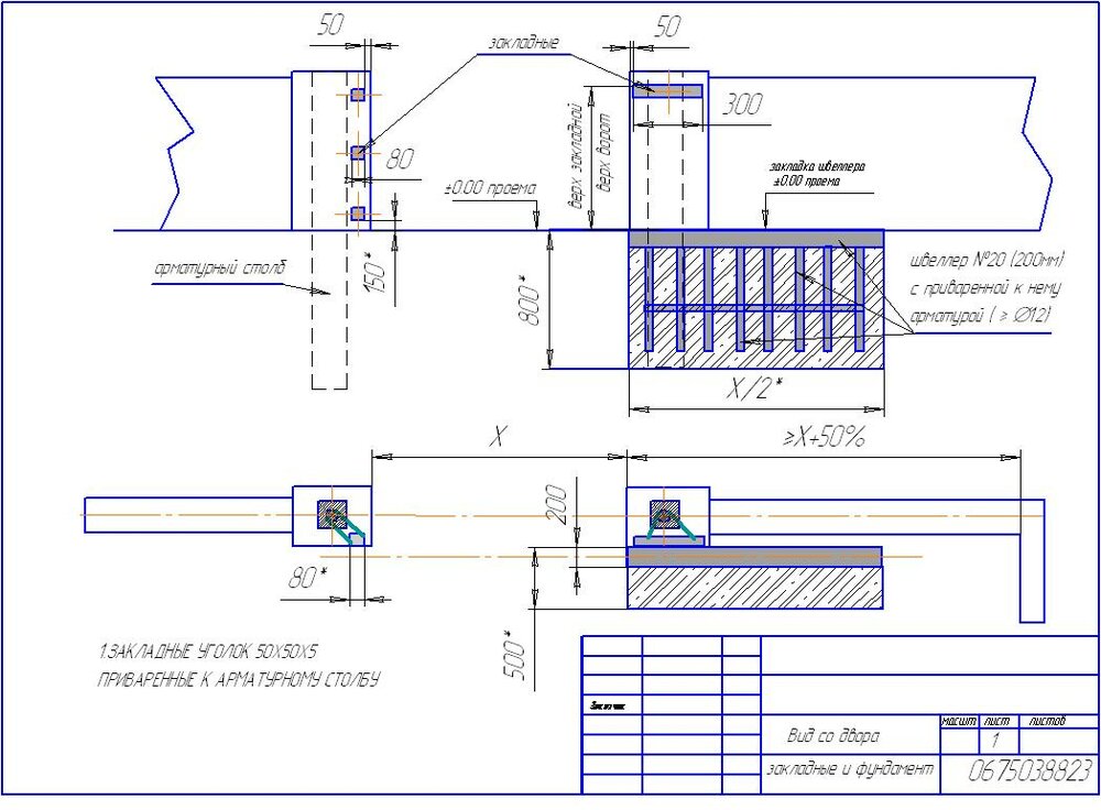
gnom_slava Опубліковано: 27 травня 2013 Поділитись Опубліковано: 27 травня 2013 нашла на сайте схему? правильна ли она? в общем и целом правильна. правда швеллер не обязательно аж №20 брать, можно обойтись и №№8-12 (в зависимости от размера ворот и используемой фурнитуры). по сути главное назначение швеллера - правильно задать горизонталь и нулевую отметку будущих ворот, а также упростить монтаж. основную нагрузку принимает арматура, поэтому важнее не размер швеллера, а качество его крепления к армированию. под двигатель отдельную площадку если и не сделать это не будет большой ошибкой. всё равно привод крепится в основном немного выше нулевой отметки ворот, поэтому он ставится на переходной каркас, который можно приварить и к основному швеллеру. провода (там не только питание должно быть, а и ещё хотя бы один, минимум 2х0,5 а лучше 4х0,22, на другую сторону проёма должен идти - для фотоэлементов) нужно выводить примерно к середине уложенного закладного швеллера, можно немного к воротам сместить, но не к самой кромке. Посилання на коментар Поділитися на інших сайтах More sharing options...
Вратарь Опубліковано: 27 травня 2013 Поділитись Опубліковано: 27 травня 2013 Рекомендую так подготовить проем для установки ворот, автоматики и калитки. Комментарии могу дать по телефону. Укомплектуйте ворота качественной фурнитурой и автоматикой - залог долгой и бесперебойной работы. 4 Посилання на коментар Поділитися на інших сайтах More sharing options...
Оля (boyarka) Опубліковано: 30 травня 2013 Автор Поділитись Опубліковано: 30 травня 2013 Спасибо всем, будем стараться..... Посилання на коментар Поділитися на інших сайтах More sharing options...
LITMANENko Опубліковано: 3 червня 2013 Поділитись Опубліковано: 3 червня 2013 Насколько мощные должны быть столбики слева и справа от проема ворот? Рабочие говорят, что там могут быть любые столбы, ворота на себе они не несут и главное заложить этот швеллер внизу. Так ли это? Или должны быть мощные бетонные армированные (кирпичные) столбы? К примеру можно ли установить по бокам проема вот такие распространенные дешевые столбики: Посилання на коментар Поділитися на інших сайтах More sharing options...
VOROTOK Опубліковано: 3 червня 2013 Поділитись Опубліковано: 3 червня 2013 Эти столбики держут ветровую нагрузку на закрытые откатные ворота. 1 Посилання на коментар Поділитися на інших сайтах More sharing options...
LITMANENko Опубліковано: 3 червня 2013 Поділитись Опубліковано: 3 червня 2013 VOROTOK, Насколько мощные должны быть столбики слева и справа от проема ворот? И раз уж пошла такая пьянка -- какой ширины фундамент должен быть? Допустим лента 30 см шириной пойдет? Слева справа что забетонировать? Посилання на коментар Поділитися на інших сайтах More sharing options...
VOROTOK Опубліковано: 3 червня 2013 Поділитись Опубліковано: 3 червня 2013 LITMANENko, под этими двумя столбами глубина фундамента 1,5 м. В середине столба металлическая труба (можно профильная), к ней привариваются закладные. 1 Посилання на коментар Поділитися на інших сайтах More sharing options...
LITMANENko Опубліковано: 3 червня 2013 Поділитись Опубліковано: 3 червня 2013 VOROTOK, понял, итого покупаю трубу 3,5 метра, 1,5 метра под землей, 2 метра над землей. Эту трубу заливаю бетоном 20х20 см. То есть получаю столб толщиной 20 см, внутри труба. Похоже на правду? Труба какого диаметра? Просто у меня забор деревянный, в вышеприведенные дешевые столбики от евро забора буду вставлять доски. Но вот под ворота получается столбы надо делать по другому... Посилання на коментар Поділитися на інших сайтах More sharing options...
Вратарь Опубліковано: 3 червня 2013 Поділитись Опубліковано: 3 червня 2013 По большому счету ворота можно вообще не крепить к столбам, сделать порталы из металла. Для калитки указанный Вами столб не подходит - некуда крепить. Нужно бетонировать металлическую трубу 80х80х3 мм. или делать столбы из облицовочного кирпича с трубой внутри, закладными и проводами или бетонный с связанным из арматуры каркасом. На бетонном столбе закладные можно не выводить. Фундамент для забора зависит от глубины грунтовых вод. Ширина 300 мм достаточна для бетонного столба, для кирпичного 380-400 мм. Посилання на коментар Поділитися на інших сайтах More sharing options...
LITMANENko Опубліковано: 3 червня 2013 Поділитись Опубліковано: 3 червня 2013 Вратарь, я понял спасибо, итого оба проема (и под калитку и под ворота) можно ограничить вот такими столбами: Пойдет? Кирпич я точно не хочу, торчащий метал (швеллера сваренные вместе, трубу и т.п.) тоже не хочу. Остается выставить опалубку да забетонировать столбы? Посилання на коментар Поділитися на інших сайтах More sharing options...
Вратарь Опубліковано: 3 червня 2013 Поділитись Опубліковано: 3 червня 2013 (змінено) Вратарь, я понял спасибо, итого оба проема (и под калитку и под ворота) можно ограничить вот такими столбами: Пойдет? Кирпич я точно не хочу, торчащий метал (швеллера сваренные вместе, трубу и т.п.) тоже не хочу. Остается выставить опалубку да забетонировать столбы? Все верно, как правильно написал VOROTOK фундамент столбов должен быть заглублен на 1500 мм. (на мой взгляд если отсутствует глина достаточно 1200 мм.), в проеме калитки обязательно должна быть перемычка из бетона (фундамент как на схеме подготовки проема для калитки). При высоте калитки 2000-2200 мм. хорошо смотрится калитка шириной 900-1000 мм. Максимально-рекомендованная ширина проема калитки 1100 мм. Змінено 3 червня 2013 користувачем Вратарь Написал по-албански)) 2 Посилання на коментар Поділитися на інших сайтах More sharing options...
Vikctor Опубліковано: 6 січня 2014 Поділитись Опубліковано: 6 січня 2014 в проеме калитки обязательно должна быть перемычка из бетона (фундамент как на схеме подготовки проема для калитки). Имеется ввиду как на Вашей схеме - перемычка по уровень нуля? Сверху ведь над калиткой ни каких перемычек не нужно? Последняя жёсткости конструкции конечно добавит, но выглядеть будет как-то стрёмненько (мне так кажется.) С другой стороны как посмотришь на многолетнюю эпопею Igor_M со своими проёмом/калиткой/замком, то возможно выбор калитки с верхней перемычкой не так и плох... На Вашей же схеме под откатные ворота подобной перемычки на уровне нуля нет. Т.е. в четырёхметровом проёме фасадного забора фундамент вполне можно прервать без последствий? Возможно бестолково излагаю, поясню свои потребности. В предстоящем сезоне хочу сделать фундамент, цоколь и столбы фасадного забора из бутовой кладки, а также предусмотреть и смонтировать все необходимые закладные под откатные ворота 4000*2000 (каркас из профильной трубы с двусторонней обшивкой деревом) и калитку 1000*2000 (тот же конструктив.) А деревянное заполнение забора и монтаж ворот/калитки перенести на следующий сезон. Ваша схема по воротам очень доходчива и наглядна. Есть лишь пара моментов, по которым хотелось бы получить разъяснения. Первый - если таки продолжить фундамент и под проёмом ворот, то принесёт ли мне это какие-то плюсы в процессе эксплуатации ворот? Или не заморачиваться? Второй - если для каркаса ворот использовать профилированную трубу 60*40*3, для обрешётки трубу 40*20*2, для зашивки доску двадцадку, фурнитуру Rolling Center Basic, автоматику CAME (модель пока не изучал), то не избыточен ли 20-ый швеллер под закладную роликовых кареток(опор/платформ) для такого конструктива? Или для спокойного сна таки нужен именно такой? Третий - можно ли заливать фундамент закладной одновременно с фундаментом забора и не разделять их? Или правильнее отдельно? Подскажите ещё по закладным кабелям для калитки (домофон, электро замок) - какой кабель где выводить (на схеме калитки отсутствуют.) Посилання на коментар Поділитися на інших сайтах More sharing options...
muvic Опубліковано: 6 січня 2014 Поділитись Опубліковано: 6 січня 2014 Vikctor, швелер 20, можна й 18, але не менше. якщо нормально забетонувати стовпи під хвіртку - то не треба робити горизонтальних перемичок. перемичка під воротами - вона там не потрібна зовсім. навантаження йде переважно на бетонну подушку, а ще на нижній уловлювач, розташований на протилежному від подушки стовпі. 60х40х3+40х20+дошка 20, та на РЦ і Каме - оптитмальний варіант для воріт до 4000 мм завширшки під домофон кабель не підкажу, а під електрозамок - залежить від відстані, 2х1 повинно вистачити. краще взяти інструкцію до замка та почитати виводити кабель для замка потрібно до того боку хвіртки, на якому завіси. а потім по внутрішньому простору труби протягнути до замка. висота, на якій виводити - суто від ваших забаганок залежить. 1 Посилання на коментар Поділитися на інших сайтах More sharing options...
Vikctor Опубліковано: 6 січня 2014 Поділитись Опубліковано: 6 січня 2014 виводити кабель для замка потрібно до того боку хвіртки, на якому завіси. а потім по внутрішньому простору труби протягнути до замка. Дякую за швидку відповідь. Все зрозуміло крім одного моменту - завіси це петлі маються на увазі? Тобто невеликий відрізок кабелю між стовпом і хвірткою буде відкритий (в метало гофре)? Посилання на коментар Поділитися на інших сайтах More sharing options...
muvic Опубліковано: 6 січня 2014 Поділитись Опубліковано: 6 січня 2014 Vikctor, так, петлі. буде відкритий. є спеціальні маленькі з'єднувальні гофри, які мають на обидвох кінцях кріплення під саморіз. 1 Посилання на коментар Поділитися на інших сайтах More sharing options...
Вратарь Опубліковано: 6 січня 2014 Поділитись Опубліковано: 6 січня 2014 Vikctor, горизонтальную перемычку над калиткой можно смонтировать в любой момент, из опыта она редко помогает (если столбы "играют" из-за пучинистых грунтов перемычка столбы не удержит). 20-й швеллер заложен в фундамент из-за ширины платформы опорной каретки Rolling Center (Basic 140 мм., Stnadart 150 мм. + возможная регулировка ворот относительно швеллера). С Виктором согласен по всем пунктам. 1 Посилання на коментар Поділитися на інших сайтах More sharing options...
Шарманщик Опубліковано: 6 січня 2014 Поділитись Опубліковано: 6 січня 2014 С Виктором согласен по всем пунктам. Ну а второй вариант - электрозамок в столбе (неподвижной части) почему не подскажешь вопрошающему? Почему механизм замка должен непременно быть на подвижной створке ворот? Ты ж уже лично лицезрел подобные замки и признал, что так более надёжно и симпотно получается? Нафига эти гибкие переходы, что в мороз лопаются вдоль и поперёк? 1 Посилання на коментар Поділитися на інших сайтах More sharing options...
muvic Опубліковано: 6 січня 2014 Поділитись Опубліковано: 6 січня 2014 Шарманщик, тому що не завжди виходить втулити замок на стовпа. якщо хвірточка йде в одній площині з стовпом - тоді можливо. а якщо хвіртка утоплена вглиб? а таких варіантів - переважна більшість. як тоді замок тулити? Посилання на коментар Поділитися на інших сайтах More sharing options...
Vikctor Опубліковано: 6 січня 2014 Поділитись Опубліковано: 6 січня 2014 якщо хвірточка йде в одній площині з стовпом - тоді можливо. Маєте на увазі розташування хвіртки по внутрішній площині стовпів? І відкриватися при цьому вона буде у всередину, або назовні на обмежений кут? Посилання на коментар Поділитися на інших сайтах More sharing options...
muvic Опубліковано: 6 січня 2014 Поділитись Опубліковано: 6 січня 2014 Vikctor, дуже швидко і дуже схематично повісити замок на стовпа можна лише для верхнього варіанту. решта - буде ускладнено. але, на мою думку, при встановленні замка на стовпа - у отворі буде стричати "собачка", яку рано чи пізно хтось зачепить собою. при розташуванні завмка на хвіртці - нічого стричати у отворі не буде але майте на увазі - відкотні ворота будуть бігати по внутрішнім сторонам стовпів. 1 Посилання на коментар Поділитися на інших сайтах More sharing options...
Шарманщик Опубліковано: 6 січня 2014 Поділитись Опубліковано: 6 січня 2014 Шарманщик, тому що не завжди виходить втулити замок на стовпа. якщо хвірточка йде в одній площині з стовпом - тоді можливо. а якщо хвіртка утоплена вглиб? а таких варіантів - переважна більшість. як тоді замок тулити? Вы неверно представляете себе конструктив замка - попросите коллегу Вратаря - пусть фотки выложит в эту тему, у него точняк есть. По теме вопроса добавлю - "утопленность" полотна калитки/дверки даже приветствуется, замок врезается внутрь столба проёма калитки (неподвижная часть "входной группы)+ кабели не испытывают 101 раз в день на "изгиб-излом" и весь набор "кабели-замочки" не подвержен влиянию атмосферных катаклизмов, а значит служит долго и нудно... Удачи! Добавлено через 3 минуты але, на мою думку, при встановленні замка на стовпа - у отворі буде стричати "собачка", яку рано чи пізно хтось зачепить собою. при розташуванні завмка на хвіртці - нічого стричати у отворі не буде Я оказался прав - Вы зациклились на накладных эл мех замках... А представляете, есть замки без "собачек"... и никто-никого не цепляет и одёжку не рвёт... ;) Посилання на коментар Поділитися на інших сайтах More sharing options...
muvic Опубліковано: 6 січня 2014 Поділитись Опубліковано: 6 січня 2014 Шарманщик, коли пропадає світло - як тримається магнітний замок? звісно, що є та ж електромеханічна чіза, котра просто ховається у каркасу трубу, але там зовсім інші прайси вже йдуть Добавлено через 1 минуту да, і стосовно різання стовпів. різаний стовп має жалюгідний вигляд. теж не хворати Посилання на коментар Поділитися на інших сайтах More sharing options...
kaskad_2437 Опубліковано: 6 січня 2014 Поділитись Опубліковано: 6 січня 2014 в общем и целом правильна. правда швеллер не обязательно аж №20 брать, можно обойтись и №№8-12 (в зависимости от размера ворот и используемой фурнитуры). по сути главное назначение швеллера - правильно задать горизонталь и нулевую отметку будущих ворот, а также упростить монтаж. основную нагрузку принимает арматура, поэтому важнее не размер швеллера, а качество его крепления к армированию. под двигатель отдельную площадку если и не сделать это не будет большой ошибкой. всё равно привод крепится в основном немного выше нулевой отметки ворот, поэтому он ставится на переходной каркас, который можно приварить и к основному швеллеру. провода (там не только питание должно быть, а и ещё хотя бы один, минимум 2х0,5 а лучше 4х0,22, на другую сторону проёма должен идти - для фотоэлементов) нужно выводить примерно к середине уложенного закладного швеллера, можно немного к воротам сместить, но не к самой кромке. А если не выдержана линия отката, тогда что разбирать плитку? ШВ 12 - это при идеальных условиях, а так лучше 20. Добавлено через 9 минут Vikctor, горизонтальную перемычку над калиткой можно смонтировать в любой момент, из опыта она редко помогает (если столбы "играют" из-за пучинистых грунтов перемычка столбы не удержит). 20-й швеллер заложен в фундамент из-за ширины платформы опорной каретки Rolling Center (Basic 140 мм., Stnadart 150 мм. + возможная регулировка ворот относительно швеллера). С Виктором согласен по всем пунктам. Тут не согласен - перемычка над калиткой работает на сжатие - т.е. держит проем калитки от защемления калитки, а защемляется как правило верх, потому вверху перемычка лишней не будет. Добавлено через 9 минут Вы неверно представляете себе конструктив замка - попросите коллегу Вратаря - пусть фотки выложит в эту тему, у него точняк есть. По теме вопроса добавлю - "утопленность" полотна калитки/дверки даже приветствуется, замок врезается внутрь столба проёма калитки (неподвижная часть "входной группы)+ кабели не испытывают 101 раз в день на "изгиб-излом" и весь набор "кабели-замочки" не подвержен влиянию атмосферных катаклизмов, а значит служит долго и нудно... Удачи! Добавлено через 3 минуты Я оказался прав - Вы зациклились на накладных эл мех замках... А представляете, есть замки без "собачек"... и никто-никого не цепляет и одёжку не рвёт... ;) Нет таких замков. Или язычек будет торчать или в случае с електромагнитным замком - ввесь замок. Изучите матчасть или выложите фото неторчащих замков. Посилання на коментар Поділитися на інших сайтах More sharing options...
Рекомендовані повідомлення
Створіть акаунт або увійдіть у нього для коментування
Ви маєте бути користувачем, щоб залишити коментар
Створити акаунт
Зареєструйтеся для отримання акаунта. Це просто!
Зареєструвати акаунтУвійти
Вже зареєстровані? Увійдіть тут.
Увійти зараз