sergeystav Опубліковано: 22 червня 2013 Поділитись Опубліковано: 22 червня 2013 Помогите пожалуйста с отоплением в часном доме,котел буду ставить лемакс ксг10,как правельно расчитать радиаторы и какую систему лучше выбрать,моё мнение ставить двупроводную систему, поправьте если что не так. Посилання на коментар Поділитися на інших сайтах More sharing options...
ts3 Опубліковано: 22 червня 2013 Поділитись Опубліковано: 22 червня 2013 Помогите пожалуйста с отоплением в часном доме,котел буду ставить лемакс ксг10,как правельно расчитать радиаторы и какую систему лучше выбрать,моё мнение ставить двупроводную систему, поправьте если что не так. В прихожей (где котел установлен) тоже нужен радиатор. Для расчета размера радиаторов необходимо считать теплопотери. Посилання на коментар Поділитися на інших сайтах More sharing options...
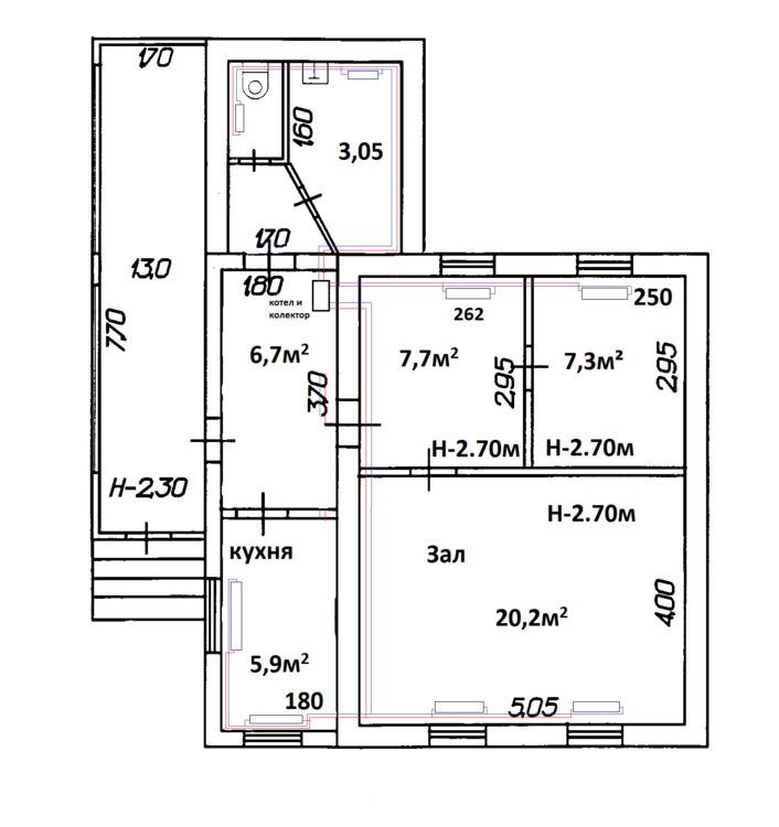
sergeystav Опубліковано: 23 червня 2013 Автор Поділитись Опубліковано: 23 червня 2013 В прихожей (где котел установлен) тоже нужен радиатор. Для расчета размера радиаторов необходимо считать теплопотери. дом зделан из шлакобетона,в зале потолок натяжной,хочу зделать ппр трубой диаметром 25 и отводы на радиаторы зделать 20, коллектор поставить на два отвода 1) кухня-зал и 2) санузел и спальни,поправьте что если не так Посилання на коментар Поділитися на інших сайтах More sharing options...
Leon26 Опубліковано: 24 червня 2013 Поділитись Опубліковано: 24 червня 2013 ИМХО в кухне один радиатор лишний. Я бы установил следующее к-во секций из рассчёта обычных чугунных (секция) : кухня - 6, зал 2х10, комнаты по 8, ванная 5 + полотенчик (или без него), туалет 2-3, прихожая 4-5. 1 Посилання на коментар Поділитися на інших сайтах More sharing options...
sergeystav Опубліковано: 24 червня 2013 Автор Поділитись Опубліковано: 24 червня 2013 ИМХО в кухне один радиатор лишний. Я бы установил следующее к-во секций из рассчёта обычных чугунных (секция) : кухня - 6, зал 2х10, комнаты по 8, ванная 5 + полотенчик (или без него), туалет 2-3, прихожая 4-5. как правельно собрать закрытую систему отопления с котлом Лемакс Премиум КСГ-10 Посилання на коментар Поділитися на інших сайтах More sharing options...
Leon26 Опубліковано: 25 червня 2013 Поділитись Опубліковано: 25 червня 2013 как правельно собрать закрытую систему отопления с котлом Лемакс Премиум КСГ-10 Схема разводки магистралей (при условии что подключение ОП двухтрубное) ИМХО оптимальная. Определитесь с видами материалов и обращайтесь к проверенным монтажникам, которые работают с этими материалами. 1 Посилання на коментар Поділитися на інших сайтах More sharing options...
murava Опубліковано: 25 червня 2013 Поділитись Опубліковано: 25 червня 2013 как правельно собрать закрытую систему отопления с котлом Лемакс Премиум КСГ-10 А кто сказал, что она должна быть именно закрытой? В паспорте на котел ни слова о максимальном и рабочем давлении теплообменника. 1 Посилання на коментар Поділитися на інших сайтах More sharing options...
sergeystav Опубліковано: 25 червня 2013 Автор Поділитись Опубліковано: 25 червня 2013 А кто сказал, что она должна быть именно закрытой? В паспорте на котел ни слова о максимальном и рабочем давлении теплообменника. обращался в техподдержку Лемакс,сказали что в закрытой СО может работать котел, но необходимо обязательно установить сбросной клапан на 1,5 Атм Добавлено через 46 секунд Схема разводки магистралей (при условии что подключение ОП двухтрубное) ИМХО оптимальная. Определитесь с видами материалов и обращайтесь к проверенным монтажникам, которые работают с этими материалами. Трубы ППР диаметр магистралей 25, отводы 20. Посилання на коментар Поділитися на інших сайтах More sharing options...
ts3 Опубліковано: 25 червня 2013 Поділитись Опубліковано: 25 червня 2013 обращался в техподдержку Лемакс,сказали что в закрытой СО может работать котел, но необходимо обязательно установить сбросной клапан на 1,5 Атм Обязательно нужно. А у некоторых производителей в рекомендованных схемах встречаются предохранительные клапаны даже в открытых схемах Посилання на коментар Поділитися на інших сайтах More sharing options...
SON Опубліковано: 25 червня 2013 Поділитись Опубліковано: 25 червня 2013 дом зделан из шлакобетона,.........,поправьте что если не так Правая (по рис.) наружная стена без радиаторов не совсем хорошо. Посилання на коментар Поділитися на інших сайтах More sharing options...
sergeystav Опубліковано: 26 червня 2013 Автор Поділитись Опубліковано: 26 червня 2013 что можете сказать по поводу вот этого котла Житомир3 КСГ-10С Посилання на коментар Поділитися на інших сайтах More sharing options...
Leon26 Опубліковано: 26 червня 2013 Поділитись Опубліковано: 26 червня 2013 что можете сказать по поводу вот этого котла Житомир3 КСГ-10С Хороший котёл для системы с естественной циркуляцией. Да и с насосом хорошо работает. Правда вроде как раньше толщина стенок теплообменника была 3мм. Если брать такой, то с дымоходом вверх (есть ещё взад ), в нём площадь теплообменника больше. Посилання на коментар Поділитися на інших сайтах More sharing options...
sergeystav Опубліковано: 26 червня 2013 Автор Поділитись Опубліковано: 26 червня 2013 Хороший котёл для системы с естественной циркуляцией. Да и с насосом хорошо работает. Правда вроде как раньше толщина стенок теплообменника была 3мм. Если брать такой, то с дымоходом вверх (есть ещё взад ), в нём площадь теплообменника больше. а как на счет закрытой СО он ведет себя? а про этот Лемакс Премиум КСГ-10 нечего не слышал? Посилання на коментар Поділитися на інших сайтах More sharing options...
Leon26 Опубліковано: 26 червня 2013 Поділитись Опубліковано: 26 червня 2013 а как на счет закрытой СО он ведет себя? а про этот Лемакс Премиум КСГ-10 нечего не слышал? Для работы системы принципиальной разницы нет открытая она или закрытая. Максимально допустимое давление указано в мануале и на передней крышке котла с внутренней стороны. Посилання на коментар Поділитися на інших сайтах More sharing options...
sergeystav Опубліковано: 2 липня 2013 Автор Поділитись Опубліковано: 2 липня 2013 поправьте если что не так Посилання на коментар Поділитися на інших сайтах More sharing options...
ts3 Опубліковано: 2 липня 2013 Поділитись Опубліковано: 2 липня 2013 поправьте если что не так Не нужно два предохранительных клапана и уберите кран между котлом и группой безопасности 1 Посилання на коментар Поділитися на інших сайтах More sharing options...
sergeystav Опубліковано: 3 липня 2013 Автор Поділитись Опубліковано: 3 липня 2013 а каким диаметром лучше монтировать систему от котла до колектора,диаметр выхода патрубков из котла 1,5 дюйма. Посилання на коментар Поділитися на інших сайтах More sharing options...
Рекомендовані повідомлення
Створіть акаунт або увійдіть у нього для коментування
Ви маєте бути користувачем, щоб залишити коментар
Створити акаунт
Зареєструйтеся для отримання акаунта. Це просто!
Зареєструвати акаунтУвійти
Вже зареєстровані? Увійдіть тут.
Увійти зараз