dove1980 Опубліковано: 2 жовтня 2013 Поділитись Опубліковано: 2 жовтня 2013 Помогите пожалуйста определиться с выбором проекта. Интересует насколько удобны планировки и какой из трех вариантов экономичнее в строительстве? www.dom-ua.com/index.php?c=319&o=1364 www.dom-ua.com/index.php?c=319&o=12860 www.dom-ua.com/index.php?c=319&o=13334 Заранее огромное спасибо. Посилання на коментар Поділитися на інших сайтах More sharing options...
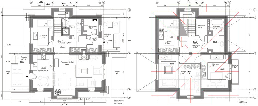
Kysil Опубліковано: 2 жовтня 2013 Поділитись Опубліковано: 2 жовтня 2013 Помогите пожалуйста определиться с выбором проекта. Интересует насколько удобны планировки и какой из трех вариантов экономичнее в строительстве? www.dom-ua.com/index.php?c=319&o=1364 www.dom-ua.com/index.php?c=319&o=12860 www.dom-ua.com/index.php?c=319&o=13334 Заранее огромное спасибо. Перший проект - для вузької ділянки та/або будівництва серед тісної забудови. На двох фасадах вікон нема. Планування раціональне, але дуже маленькі кімнати. На три спальні - один класичний балкон і два французьких? Гм, на любителя. Другий проект - однозначно кращий за перший. Є комора на першому поверсі. Кімнати більші. Третій проект - щось середнє між першим і другим. Недолік - нема тамбура. Кабінет на першому поверсі і маленька спальня на другому - дефективні: ширина менше 2,5 м. Другий і третій проекти мають тераси. Якщо інших варіантів нема - я б обрав другий (Проект 58065). П'ять кімнат на загальній площі 116 кв. м - це дуже пристойно. Добавлено через 20 минут Ще одне. У першому проекті вкрай невдале за формою студіо. Простір (умовно) 6х5 м дуже важко розчленувати на повноцінні зони "кухня-їдальня-вітальня". Та це видно і на малюнку. Найкраще студіо, знову ж таки, у другому проекті. Добавлено через 17 минут Що б я змінив у проекті 58065: збільшив би вікна у технічних приміщеннях і зробив би всі чотири однаковими. Я, чесно, не розумію, навіщо низьке вікно у санвузлі першого поверху - щоб зручніше було зазирати з вулиці? :D 4 Посилання на коментар Поділитися на інших сайтах More sharing options...
Studio Z500 Опубліковано: 2 жовтня 2013 Поділитись Опубліковано: 2 жовтня 2013 dove1980, подскажите, пожалуйста, Ваши пожелания по проекту, расположение дома на участке, по сторонам света и возможно Вам тут на сайте смогут предложить другие варианты 1 Посилання на коментар Поділитися на інших сайтах More sharing options...
va$yl Опубліковано: 3 жовтня 2013 Поділитись Опубліковано: 3 жовтня 2013 все очень компактны и удобные по планировке. мне больше последний понравился 1 Посилання на коментар Поділитися на інших сайтах More sharing options...
Andrei constructor Опубліковано: 3 жовтня 2013 Поділитись Опубліковано: 3 жовтня 2013 Сразу бросается в глаза: -нет тамбуров. -лестницы с забежными ступенями неудобные и опасные. 1 Посилання на коментар Поділитися на інших сайтах More sharing options...
wipe Опубліковано: 7 жовтня 2013 Поділитись Опубліковано: 7 жовтня 2013 Планировка первого и второго, практически начисто слизана с проекта Обитель ангелов, которая в свое время архитектором Шильниковым была слизана с проекта Эдна. Но вот внешний вид Обитель-Эдны, намного круче, вопрос, почему бы не строить то, что красивее ? 2 Посилання на коментар Поділитися на інших сайтах More sharing options...
Kysil Опубліковано: 9 жовтня 2013 Поділитись Опубліковано: 9 жовтня 2013 Планировка первого и второго, практически начисто слизана с проекта Обитель ангелов, которая в свое время архитектором Шильниковым была слизана с проекта Эдна. Но вот внешний вид Обитель-Эдны, намного круче, вопрос, почему бы не строить то, что красивее ? Кгм! "Обитель демонов" (на малюнку виглядає саме так) - проект з мансардою. Автор, як я розумію, шукає проект з повноцінним другим поверхом. Звідки ви взяли, що проект 58065 злизаний саме у цих "обителей" із заплутаним родоводом? :D 1 Посилання на коментар Поділитися на інших сайтах More sharing options...
wipe Опубліковано: 9 жовтня 2013 Поділитись Опубліковано: 9 жовтня 2013 відки ви взяли, що проект 58065 злизаний саме у цих "обителей" із заплутаним родоводом? открыл проект и увидел, что кроме разных выходов и отзеркаленой гостиной с кухней, разницы нет, но суть не в том, даже, если и обитель слизана с этого проекта, вопрос во внешнем виде, если вам не нравится обитель а больше нравится приведенные проекты ТС, то как то даже странно, но в спор вступать не буду, вкусы у всех разные. 1 Посилання на коментар Поділитися на інших сайтах More sharing options...
Kysil Опубліковано: 9 жовтня 2013 Поділитись Опубліковано: 9 жовтня 2013 открыл проект и увидел, что кроме разных выходов и отзеркаленой гостиной с кухней, разницы нет... Я вам відкрию страшну таємницю: всі п'ятикімнатні двоповерхові будинки за плануванням схожі один на одного! :D Скрізь кухня-вітальня з вікнами "в сад", кабінет з вікном на вулицю і три спальні нагорі. ...но суть не в том, даже, если и обитель слизана с этого проекта, вопрос во внешнем виде, если вам не нравится обитель а больше нравится приведенные проекты ТС, то как то даже странно, но в спор вступать не буду, вкусы у всех разные. Я теж не сперечатимусь. Що той проект, що цей - не дуже тривожать мое серце. P.S. Варіант "обители", який ви представили, занадто похмурий для ангелів. Швидше, це палац чаклуна Ольдеквіта - де той п'є чарівне зілля з мальованого горнятка... 2 Посилання на коментар Поділитися на інших сайтах More sharing options...
BoomerS Опубліковано: 11 жовтня 2013 Поділитись Опубліковано: 11 жовтня 2013 Мені також 2-й подобається. Раніше для себе приглянув 1-й. Для мене велику роль грає щоб санвузол на 1-му поверсі, кухня та ванна на 2-му були близько, для зменшення тепловтрат гарячої води, і щоб менше приходилось спускати холодну. 1 Посилання на коментар Поділитися на інших сайтах More sharing options...
akvilonpro Опубліковано: 15 жовтня 2013 Поділитись Опубліковано: 15 жовтня 2013 Если хотите брать 58065, то берите у нас как у производителей (возможно изменение проекта под ваши требования). Он называется "Абрикос". И есть еще варианты подобные этому проекту. Так что заходите, и обращайтесь. Поможем чем сможем. Добавлено через 4 минуты А 58146 это проект "Ласточка". Оба проекта популярные. 1 Посилання на коментар Поділитися на інших сайтах More sharing options...
Грабовский Опубліковано: 16 жовтня 2013 Поділитись Опубліковано: 16 жовтня 2013 dove1980, могу помочь с приобретением проекта Посилання на коментар Поділитися на інших сайтах More sharing options...
Сергей Валерьевич Опубліковано: 23 жовтня 2013 Поділитись Опубліковано: 23 жовтня 2013 Как по мне то 3 проект самый симпатичный, и в принципе он имеет большой навес и две двери, но решать вам! 1 Посилання на коментар Поділитися на інших сайтах More sharing options...
Анна Васильевна Опубліковано: 1 листопада 2013 Поділитись Опубліковано: 1 листопада 2013 первые два вообще ни о чем - коробки с проемами, над последним еще можно подумать 1 Посилання на коментар Поділитися на інших сайтах More sharing options...
dove1980 Опубліковано: 3 листопада 2013 Автор Поділитись Опубліковано: 3 листопада 2013 А как насчет этого проекта? Какие плюсы и минусы? akvilonpro.com.ua/ru/docs/proektu-domov/100-150-m2/home-project-abricos-2.html Посилання на коментар Поділитися на інших сайтах More sharing options...
Andrei constructor Опубліковано: 3 листопада 2013 Поділитись Опубліковано: 3 листопада 2013 А как насчет этого проекта? Какие плюсы и минусы? akvilonpro.com.ua/ru/docs/proektu-domov/100-150-m2/home-project-abricos-2.html Главный плюс бюджетность. Недостатки планировочные: лестница с забежными ступенями как в польских проектах, нет техпомещения, кладовка 7 не нужна таких размеров (нужно расширить санузел за ее счет). Почему аквилон не показывает открывание дверей я не знаю? 1 Посилання на коментар Поділитися на інших сайтах More sharing options...
wipe Опубліковано: 3 листопада 2013 Поділитись Опубліковано: 3 листопада 2013 А как насчет этого проекта? Какие плюсы и минусы? (ссылка устарела) уменьшенная копия третьего проекта из вашего первого поста. 1 Посилання на коментар Поділитися на інших сайтах More sharing options...
dove1980 Опубліковано: 10 листопада 2013 Автор Поділитись Опубліковано: 10 листопада 2013 А на много ли дороже будет строить дом 130кв.м. чем 116кв.м.? Или разница не сильно существенная? Посилання на коментар Поділитися на інших сайтах More sharing options...
Andrei constructor Опубліковано: 10 листопада 2013 Поділитись Опубліковано: 10 листопада 2013 А на много ли дороже будет строить дом 130кв.м. чем 116кв.м.? Или разница не сильно существенная? Есть понятие средняя стоимость 1 м2 площади дома. Узнайте эту цифру для вашего региона и конструктивного исполнения дома. 1 Посилання на коментар Поділитися на інших сайтах More sharing options...
Drosselbeere Опубліковано: 10 листопада 2013 Поділитись Опубліковано: 10 листопада 2013 А на много ли дороже будет строить дом 130кв.м. чем 116кв.м.? Или разница не сильно существенная? 40-50 к грн для вас существенная разница или нет? Посилання на коментар Поділитися на інших сайтах More sharing options...
dove1980 Опубліковано: 11 листопада 2013 Автор Поділитись Опубліковано: 11 листопада 2013 если можно будет уложиться в коробку дома 116м.кв. 40т уе или в коробку 130м.кв.за 45т уе, то я бы выбрала дом, что побольше... простите, но я совсем новичок в этих вопросах... просто хочу определиться, стоит ли ввязываться в строительство дома, имея на руках на все про все 90т уе... Посилання на коментар Поділитися на інших сайтах More sharing options...
Drosselbeere Опубліковано: 11 листопада 2013 Поділитись Опубліковано: 11 листопада 2013 просто хочу определиться, стоит ли ввязываться в строительство дома, имея на руках на все про все 90т уе... можно, главное без фанатизма все предварительно просчитать, особенно подключение коммуникаций. 1 Посилання на коментар Поділитися на інших сайтах More sharing options...
Andrei constructor Опубліковано: 11 листопада 2013 Поділитись Опубліковано: 11 листопада 2013 dove1980, какой состав вашей семьи? Посилання на коментар Поділитися на інших сайтах More sharing options...
dove1980 Опубліковано: 11 листопада 2013 Автор Поділитись Опубліковано: 11 листопада 2013 dove1980, какой состав вашей семьи? 4 человека. 2 взрослых и 2 ребенка. Посилання на коментар Поділитися на інших сайтах More sharing options...
Andrei constructor Опубліковано: 11 листопада 2013 Поділитись Опубліковано: 11 листопада 2013 4 человека. 2 взрослых и 2 ребенка. ИМХО Для 4-х человек 116 м2 достаточно. Это бюджетно, как при строительстве, так и при эксплуатации. Но если будет перспективно больше людей, то делайте 130 м2. 1 Посилання на коментар Поділитися на інших сайтах More sharing options...
Рекомендовані повідомлення
Створіть акаунт або увійдіть у нього для коментування
Ви маєте бути користувачем, щоб залишити коментар
Створити акаунт
Зареєструйтеся для отримання акаунта. Це просто!
Зареєструвати акаунтУвійти
Вже зареєстровані? Увійдіть тут.
Увійти зараз