Kysil Опубліковано: 17 жовтня 2013 Поділитись Опубліковано: 17 жовтня 2013 Если вы добавили тамбур, то зачем вам еще один? Имхо, тогда целесообразно увеличить прихожую за счет ненужного тамбура. Згоден. Краще б ТС розширив вузькі кімнати. Посилання на коментар Поділитися на інших сайтах More sharing options...
2778 Опубліковано: 17 жовтня 2013 Автор Поділитись Опубліковано: 17 жовтня 2013 Как то так Посилання на коментар Поділитися на інших сайтах More sharing options...
2778 Опубліковано: 17 жовтня 2013 Автор Поділитись Опубліковано: 17 жовтня 2013 Чувствую эту тему надо закрывать и открывать другую, перечитал топик и понял, название ей не соответствует. Посилання на коментар Поділитися на інших сайтах More sharing options...
Kysil Опубліковано: 17 жовтня 2013 Поділитись Опубліковано: 17 жовтня 2013 Чувствую эту тему надо закрывать и открывать другую... Не треба плодити зайві теми. Чим ця погана? Посилання на коментар Поділитися на інших сайтах More sharing options...
2778 Опубліковано: 17 жовтня 2013 Автор Поділитись Опубліковано: 17 жовтня 2013 Не треба плодити зайві теми. Чим ця погана? Она то не плохая, просто содержание не соответствует названию. Добавлено через 41 секунду Kysil, Как вам последний вариант планировки? Посилання на коментар Поділитися на інших сайтах More sharing options...
Kysil Опубліковано: 17 жовтня 2013 Поділитись Опубліковано: 17 жовтня 2013 Она то не плохая, просто содержание не соответствует названию. Все у вас нормально. Хто пам'ятає вас, кому цікаво - той прийде і подивиться. Тут надавно один любитель - намалював одну халабуду, потім іншу. Для кожної відкривав окрему тему... :D Деякі люди сприймають таку тактику як елементарну неповагу. Kysil, Как вам последний вариант планировки? 1. Якщо у вас є окремий тамбур, і немаленький - я б радив подумати над другим санвузлом. 2. Бачу, розширили майстер-спальню. Але ширина інших двох кімнат - 2,7-2,8 м, на око. Це спальний стандарт для трикімнатних хрущовок-"вертольотів". Там буде некомфортно. Кажу з власного досвіду молодих років. ;) Посилання на коментар Поділитися на інших сайтах More sharing options...
2778 Опубліковано: 17 жовтня 2013 Автор Поділитись Опубліковано: 17 жовтня 2013 Еще не много Посилання на коментар Поділитися на інших сайтах More sharing options...
Andrei constructor Опубліковано: 17 жовтня 2013 Поділитись Опубліковано: 17 жовтня 2013 Это будет тамбур-летняя веранда? Посилання на коментар Поділитися на інших сайтах More sharing options...
Kysil Опубліковано: 17 жовтня 2013 Поділитись Опубліковано: 17 жовтня 2013 Еще не много [ATTACH]314612[/ATTACH] Хм... Мабуть, краще буде перемістити у тамбур гардероб. А вхід у другий санвузол має бути там, де зараз шафа-купе. Санвузол у тамбурі не дуже зручний для користування, як ергономічно, так і кліматично. Стіни там які? P.S. Ви, мабуть, зрозуміли мою фразу (Якщо у вас є окремий тамбур, і немаленький - я б радив подумати над другим санвузлом) буквально. Посилання на коментар Поділитися на інших сайтах More sharing options...
2778 Опубліковано: 17 жовтня 2013 Автор Поділитись Опубліковано: 17 жовтня 2013 Вариант №3444:D Посилання на коментар Поділитися на інших сайтах More sharing options...
Kysil Опубліковано: 17 жовтня 2013 Поділитись Опубліковано: 17 жовтня 2013 Вариант №3444 Раніше робили літні кухні - а у вас літня ванна. :D Посилання на коментар Поділитися на інших сайтах More sharing options...
Всеволодович Опубліковано: 17 жовтня 2013 Поділитись Опубліковано: 17 жовтня 2013 Вариант №3444 Кто будет жить в двух комнатах в которые вход из "зала"? Если дети, то не совсем удобно. Первым делом шум, а детям спать пора. Да и такая ситуация возможна, вы с друзьями за рюмкой чая засиделись. А тут ребенок через Ваше заседание в туалет чимчикует. У меня у друзей так. ИМХО - неудобно. Посилання на коментар Поділитися на інших сайтах More sharing options...
2778 Опубліковано: 17 жовтня 2013 Автор Поділитись Опубліковано: 17 жовтня 2013 Раніше робили літні кухні - а у вас літня ванна Не ванна а клозет с раковиной А тут ребенок через Ваше заседание в туалет чимчикует. Мне кажется это не проблема, на участке есть беседка свежая (тока закончил) и летняя кухня отдельно стоящая (она же в дальнейшем баня) Так, что погудеть с друзьями есть где. Если серьезно я уже сломал весь мозг за последнюю неделю "Утро вечера мудренее" пересплю с новыми мыслями там посмотрим. Всем спасибо за советы Посилання на коментар Поділитися на інших сайтах More sharing options...
Всеволодович Опубліковано: 17 жовтня 2013 Поділитись Опубліковано: 17 жовтня 2013 Так, что погудеть с друзьями есть где. А зимой? Мне кажется это не проблема У моих друзей похожая дислокация (или диспозиция) помещений. И реально либо ребенок напрягает нас, потому что спать хочет. Либо мы его, потому что не хотим. Да и самому ребенку в трусах дефилировать перед нашими пьяными мордами, тоже не комильфо. Посилання на коментар Поділитися на інших сайтах More sharing options...
2778 Опубліковано: 17 жовтня 2013 Автор Поділитись Опубліковано: 17 жовтня 2013 А зимой? летняя кухня отдельно стоящая (она же в дальнейшем баня) В бане зимой особенно хорошо Посилання на коментар Поділитися на інших сайтах More sharing options...
Всеволодович Опубліковано: 17 жовтня 2013 Поділитись Опубліковано: 17 жовтня 2013 В бане зимой особенно хорошо Возможно, я не особо по баням. Посилання на коментар Поділитися на інших сайтах More sharing options...
Kysil Опубліковано: 17 жовтня 2013 Поділитись Опубліковано: 17 жовтня 2013 Не ванна а клозет с раковиной Можу припустити, що таким санвузлом користуватимуться в 1 випадку з 10. А взимку цей показник опуститься ще нижче: холодно. Я мав на увазі два санвузли поруч в межах "коробки": 1) великий з ванною; 2) маленький "гостьовий", можливо, з душовою кабіною. Якщо трохи відсунути стіну майстер-спальні і ліквідувати в коридорі шафу - влізуть. ;) Посилання на коментар Поділитися на інших сайтах More sharing options...
2778 Опубліковано: 17 жовтня 2013 Автор Поділитись Опубліковано: 17 жовтня 2013 Можу припустити, що таким санвузлом користуватимуться в 1 випадку з 10 Как по мне в этом и заключаться его работа, сбегать если основной занят. Над вашим предложениям я думаю. Посилання на коментар Поділитися на інших сайтах More sharing options...
2778 Опубліковано: 18 жовтня 2013 Автор Поділитись Опубліковано: 18 жовтня 2013 Ну вот а я хотел тему переименовать Что мы имеем 132 м.кв площади кубик 12х10 + тамбур котельная 2,5Х5 Посилання на коментар Поділитися на інших сайтах More sharing options...
2778 Опубліковано: 18 жовтня 2013 Автор Поділитись Опубліковано: 18 жовтня 2013 Вроде все уже ясно но тут я увидел его: Немного переделал: Выношу снова на ваш суд. Посилання на коментар Поділитися на інших сайтах More sharing options...
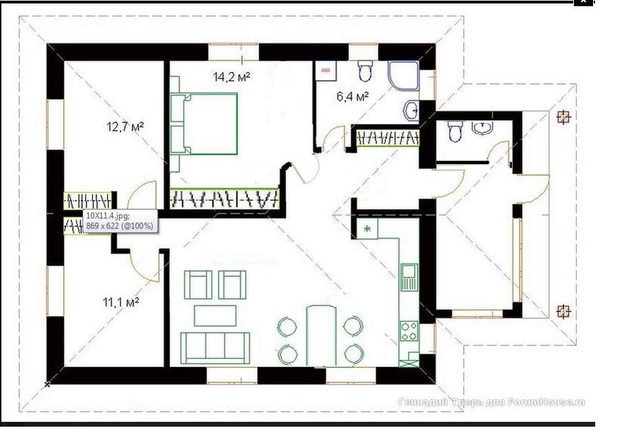
Kysil Опубліковано: 18 жовтня 2013 Поділитись Опубліковано: 18 жовтня 2013 Вроде все уже ясно но тут я увидел его: ... Немного переделал: ... Выношу снова на ваш суд. Мені більше подобається ваш власний з #69. Хіба що додати віконце у великий санвузол. Площу приміщень рахували? Посилання на коментар Поділитися на інших сайтах More sharing options...
2778 Опубліковано: 19 жовтня 2013 Автор Поділитись Опубліковано: 19 жовтня 2013 Площу приміщень рахували? На вскидку: Посилання на коментар Поділитися на інших сайтах More sharing options...
2778 Опубліковано: 19 жовтня 2013 Автор Поділитись Опубліковано: 19 жовтня 2013 Еще один Посилання на коментар Поділитися на інших сайтах More sharing options...
Andrei constructor Опубліковано: 19 жовтня 2013 Поділитись Опубліковано: 19 жовтня 2013 Еще один Слишком длинные коридоры и длинный путь через кухню-столовую. Нет тамбура. Вход по короткой стороне справа или есть другие варианты? Имхо: нужно продолжать поиск. Посилання на коментар Поділитися на інших сайтах More sharing options...
2778 Опубліковано: 19 жовтня 2013 Автор Поділитись Опубліковано: 19 жовтня 2013 Слишком длинные коридоры и длинный путь через кухню-столовую. Нет тамбура. Вход по короткой стороне справа или есть другие варианты? Имхо: нужно продолжать поиск. У меня сейчас состояние, как на рынке, когда ты заходишь за нужной тебе вещью и видишь то, что нужно в первом ларьке. А ты по инерции идешь дальше чтобы удостоверится, что лучше ничего нет. Добавлено через 2 минуты Вопрос в зал: Мне предложили сделать эскизный проект по моему плану за 100 дол. С какими проблемами я столкнусь если построюсь без официального проекта? Посилання на коментар Поділитися на інших сайтах More sharing options...
Рекомендовані повідомлення
Створіть акаунт або увійдіть у нього для коментування
Ви маєте бути користувачем, щоб залишити коментар
Створити акаунт
Зареєструйтеся для отримання акаунта. Це просто!
Зареєструвати акаунтУвійти
Вже зареєстровані? Увійдіть тут.
Увійти зараз