Kysil Опубліковано: 16 січня 2014 Поділитись Опубліковано: 16 січня 2014 Он же Тут вітальня якась несерйозна. У кольорі трохи краще, але теж не ідеально. 1 Посилання на коментар Поділитися на інших сайтах More sharing options...
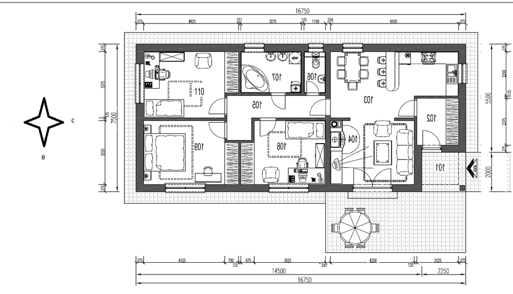
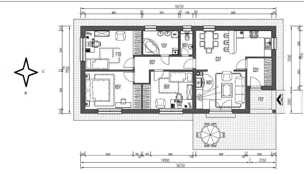
2778 Опубліковано: 21 січня 2014 Автор Поділитись Опубліковано: 21 січня 2014 Еще один Оригинал poland RD_Bungalov02_Zrkadlo.pdf Посилання на коментар Поділитися на інших сайтах More sharing options...
Andrei constructor Опубліковано: 21 січня 2014 Поділитись Опубліковано: 21 січня 2014 Еще один Нет гостевого с/у возле входа-выхода 1 Посилання на коментар Поділитися на інших сайтах More sharing options...
2778 Опубліковано: 22 січня 2014 Автор Поділитись Опубліковано: 22 січня 2014 Финишная прямая, два претендента на победу: №: 1 (Рожденный на форумах СНГ:aga:) Плюсы: 1) Отдельная котельная(под вопросом + или -, понимаю, что при такой площади котел и на кухне можно повесить) 2) Просторные комнаты 3) Нет узких длинных коридоров 4) Светлые теплые 2 спальни и гостиная, (В, Ю), кухня (В,С) что тоже не плохо светло и не жарко. 5) Несущая стена по центру, простое деревянное перекрытие 6) Мокрые зоны почти в одну линию Минусы: 1) Нет разделения дневной и спальной зоны 2) Проходная гостиная (телевизор в неудобном месте) №: 2 (чистый поляк) Плюсы: 1) Узкий всего 7 м. (для моего участка чем уже тем лучше) 2) Есть разделение на дневную и ночную зону 3) Есть ощущение(подсознательное наверно), что так как он польский то в нем продумано все до мелочей 4) Светлые теплые 3 спальни и гостиная, (В, Ю), кухня (С,З) что тоже не плохо не жарко. 5) Мокрые зоны в одну линию 6) Есть возможность повесить котел на кухне Минусы: 1) Нет несущей стены по центру, крыша фермы (гемор как по мне) 2) Входиш сразу на кухню 3) Длинный темный коридор по центру 4) Темная обеденная зона (З) 5) Маленькая гостиная 14 м.кв Помогите выбрать!!!! Посилання на коментар Поділитися на інших сайтах More sharing options...
Избранная Опубліковано: 29 січня 2014 Поділитись Опубліковано: 29 січня 2014 первый вариант лучше (с моей женской точки зрения), но жить ведь Вам там, поэтому решать все таки нужно Вам с семьей Посилання на коментар Поділитися на інших сайтах More sharing options...
Рекомендовані повідомлення
Створіть акаунт або увійдіть у нього для коментування
Ви маєте бути користувачем, щоб залишити коментар
Створити акаунт
Зареєструйтеся для отримання акаунта. Це просто!
Зареєструвати акаунтУвійти
Вже зареєстровані? Увійдіть тут.
Увійти зараз