vorbey Опубліковано: 15 жовтня 2013 Поділитись Опубліковано: 15 жовтня 2013 Допоможіть прочитати "проект" в частині конструкції покрівлі, а саме: 1. Правильність вибору геометричних розмірів деревини, згідно специфікації. "Ескізний проект" попередньо готувався під покрівлю з металочерепиці, та з часом зупинився на виборі мякої криші (бітумної черепиці). 2. Правильності вибору кроку (відстані) розташування крокв та відповідно балок перекриття (957 -1070), не розумію чому на однаковій відстані їх розмістити... 3. Із (схеми розташування балок перекриття) для мене абсолютно є незрозумілим яким чином їх кріпити: чи потрібно іх опирати на перестінки кімнат 2-го (мансардного поверху) чи додатково змонтувати балку паралельну мауерлату та закріпити обпираючись на неї (але її не "запроектовано"), чи кріпляться вони просто до крокв -в підвішеному стані... 4. Для чого призначені "решетування" та "контрлата" , згідно Специфікації деревини... Одним словом питань більше ніж відповідей. Додаткова інформація: геометричні розміри будинку 12м на 10.5м, покрівля двохскатна під 45 градусів, стіни: газоблок АЕРОК 200*300*600, 1-ий поверх -Д400, 2-ий поверх Д300. На сьогоднішній день збудовано 75% першого поверху. Будівництво законсервовано. Зимою планую замовити всю деревину на покрівлю (читав, що зимній ліс найкращий), через те і звертаюсь до форумчан за пісказками, порадами. З самого початку будівництва зрозумів, що довіряти свому ескізному проекту неможна, так-як уже на початковій стадії виявив безліч невідповідностей (деталі не для цього розділу). Фундамент, стіни будую сам з друзями, завдяки форуму. Якщо детально розбирусь (до осені 2014 р) з основами будівництва покрівлі, спробуємо також робити своїми силами. Надіюсь в ці осінні дощові вечори спеціалістів біля власних моніторів буде більше ніж в період розпалу будівництва...Вдячний наперед за всі поради. PS. фото завантажу зранку Посилання на коментар Поділитися на інших сайтах More sharing options...
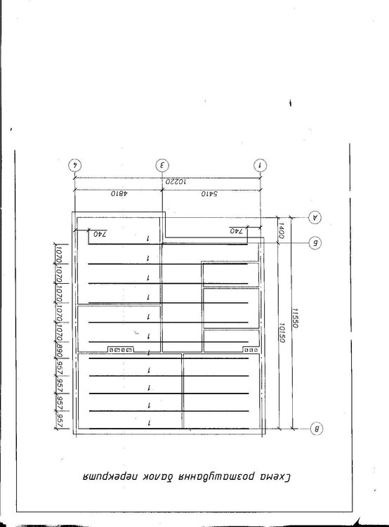
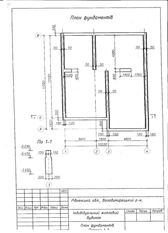
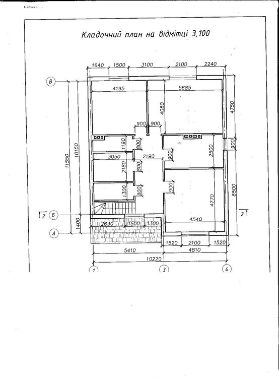
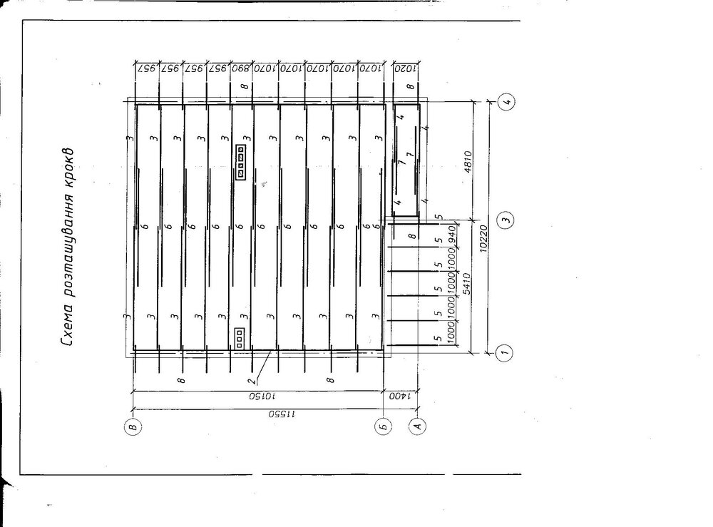
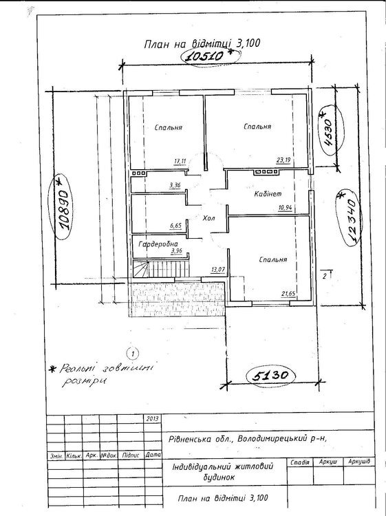
vorbey Опубліковано: 16 жовтня 2013 Автор Поділитись Опубліковано: 16 жовтня 2013 Доповнюю інфу графічним матеріалом: Посилання на коментар Поділитися на інших сайтах More sharing options...
Gothia Опубліковано: 16 жовтня 2013 Поділитись Опубліковано: 16 жовтня 2013 1. На ваших чертежах, особо и нечего читать. 2. Ничего кроме как "сделать заново" посоветовать и не могу. Приезжайте в гости, отрисуем вашу крышу и стропилку в 3D, погутарим в живом режиме. Посилання на коментар Поділитися на інших сайтах More sharing options...
vorbey Опубліковано: 16 жовтня 2013 Автор Поділитись Опубліковано: 16 жовтня 2013 Gothia,дякую за запрошення, а що на стільки все запущено? В гості нажаль приїхати незможу... робота. Якщо є можливісь (час та бажання) можна коротенько прокоментувати мої попередні чотири запитання... де є значні недоліки? Посилання на коментар Поділитися на інших сайтах More sharing options...
Drosselbeere Опубліковано: 16 жовтня 2013 Поділитись Опубліковано: 16 жовтня 2013 де є значні недоліки? схема стропилки и балок перекрытия, сечение и длина самих стропил для меня странное, но надо понимать нагрузки, а так же наличие древесины длиной 7,2м. расположение затяжки, не на том она месте (... Посилання на коментар Поділитися на інших сайтах More sharing options...
vorbey Опубліковано: 16 жовтня 2013 Автор Поділитись Опубліковано: 16 жовтня 2013 Gothia, актуальна на даний час пропозиція??? "Уважаемые застройщики. Хочу пригласить Вас принять участие в акционном предложении: проект крыши+полноценная смета на крышу бесплатно! Цель акции заключается в том что бы все желающие смогли ознакомиться поближе с нашей технологией проведения кровельных работ и изготовления стропильных комплектов, посетить нашу кровельную "кухню-лабораторию" и получить на руки бесплатный проект. Если ваша крыша простой формы (одно или двускатная) то мы обязуемся выдать вам на руки: *10-15 листов с чертежами *смету на всю крышу *график проведения работ У нас сейчас в штате работает 3 инженера-конструктора которые способны выдавать результаты по простым крышам в течении 3-4 дней. Если крыша вальмовая или имеет иные усложняющие элементы то стоимость проекта (пока что) будет составлять 500-1000 грн. Это в 5-10 раз дешевле реальной стоимости но мы осознанно идём на определённые траты дабы максимально быстро донести до застройщиов особенности нашей работы. Так же приглашаем посетить наш цех и убедиться воочию в эффективности нашей экспресс-технологии. тел для предварительных заявок: (Oб7)23-9ноль9-88" Якщо так, то цікавить смета на всю кришу (+ вартісь монтажних робіт, враховуючи регіон. Рівненська обл., м. Кузнецовськ). PS. Реальні геометричні розміри свого будинку потрібно буде зняти по місцю. Цю уточнену інформацію надам взавтра- після завтра. В моєму варіанті Вам не потрібно буде виїзджати на місце, криша проста , двухскатна під 45 градусів... Дякую наперед. Посилання на коментар Поділитися на інших сайтах More sharing options...
Gothia Опубліковано: 16 жовтня 2013 Поділитись Опубліковано: 16 жовтня 2013 (змінено) ну как бы... в воздухе всё у вас висит проще заново запроектировать тем более что крыша простая Добавлено через 4 минуты PS. Реальні геометричні розміри свого будинку потрібно буде зняти по місцю. Цю уточнену інформацію надам взавтра- після завтра. В моєму варіанті Вам не потрібно буде виїзджати на місце, криша проста , двухскатна під 45 градусів... Дякую наперед. без проблем. отправляйте размеры но стоит учесть что есть текущие проекты и есть живая очередь желающих на "акцию" Змінено 16 жовтня 2013 користувачем Gothia 1 Посилання на коментар Поділитися на інших сайтах More sharing options...
Drosselbeere Опубліковано: 16 жовтня 2013 Поділитись Опубліковано: 16 жовтня 2013 ну как бы... в воздухе всё у вас висит проще заново запроектировать все правильно ибо запроектирова схема стропилки не предназначена для пролета 10 м, точнее больше подойдет для 6-7м 1 Посилання на коментар Поділитися на інших сайтах More sharing options...
vorbey Опубліковано: 16 жовтня 2013 Автор Поділитись Опубліковано: 16 жовтня 2013 Gothia, зовнішні розміри будинку уже зняв по факту, наведені в плані на відм. 3.1 м. Дякую наперед... чекаю з нетерпінням на результат Посилання на коментар Поділитися на інших сайтах More sharing options...
Gothia Опубліковано: 16 жовтня 2013 Поділитись Опубліковано: 16 жовтня 2013 vorbey, наберите. Есть вопросы Посилання на коментар Поділитися на інших сайтах More sharing options...
vorbey Опубліковано: 17 жовтня 2013 Автор Поділитись Опубліковано: 17 жовтня 2013 Gothia, надаю додаткову інформацію: - на мансардному поверсі балки можуть обпиратись на стіни які наведені жирним на рисунку. товщину стін можу зробити як 200 мм так і 300 мм з газоблоку. - перекриття між 1-им та мансардним поверхами планується з пустотних плит. - надаю додатково план фундаменту. Посилання на коментар Поділитися на інших сайтах More sharing options...
vorbey Опубліковано: 17 жовтня 2013 Автор Поділитись Опубліковано: 17 жовтня 2013 Gothia,контактні адреса: vorrbey@yandex.ua - електронна домашня адреса VoAM@rnpp.atom.gov.ua - електронна робоча адреса Посилання на коментар Поділитися на інших сайтах More sharing options...
OlegArh Опубліковано: 17 жовтня 2013 Поділитись Опубліковано: 17 жовтня 2013 Странный "проект" , но сама стропилка - не сложная как в проектировании так и в исполнении. Посилання на коментар Поділитися на інших сайтах More sharing options...
Andrei constructor Опубліковано: 17 жовтня 2013 Поділитись Опубліковано: 17 жовтня 2013 2. Правильності вибору кроку (відстані) розташування крокв та відповідно балок перекриття (957 -1070), не розумію чому на однаковій відстані їх розмістити... Шаг нормальный. С одинаковым шагом не получится их расставить Добавлено через 1 минуту 3. Із (схеми розташування балок перекриття) для мене абсолютно є незрозумілим яким чином їх кріпити: чи потрібно іх опирати на перестінки кімнат 2-го (мансардного поверху) чи додатково змонтувати балку паралельну мауерлату та закріпити обпираючись на неї (але її не "запроектовано"), чи кріпляться вони просто до крокв -в підвішеному стані... Полагаю здесь балка является дополнительной нижней затяжкой. Т.е. они опираются на стропильные ноги. Добавлено через 1 минуту 4. Для чого призначені "решетування" та "контрлата" , згідно Специфікації деревини... Одним словом питань більше ніж відповідей. Наверное контробрешетка предусматривалась для крепления подкровельной пленки под металлочерепицу. Добавлено через 1 минуту 1. Правильність вибору геометричних розмірів деревини, згідно специфікації. "Ескізний проект" попередньо готувався під покрівлю з металочерепиці, та з часом зупинився на виборі мякої криші (бітумної черепиці). Имхо: это уже оплачиваемая работа. Наймите инженера - проверит принятые сечения. 1 Посилання на коментар Поділитися на інших сайтах More sharing options...
vorbey Опубліковано: 20 жовтня 2013 Автор Поділитись Опубліковано: 20 жовтня 2013 OlegArh да згідний що це не "проект", але саме проектне рішення є реальним? Уже стало зрозумілим, що балки будуть складатись з двох частин та зєднуватись на несучих стінах мансардного поверху (зверху є рис). Andrei constructor, а чим є поганим, що балка буде являтись нижньою затяжкою? навантаження на неї зверху небуде.. чи є такий варіант допустимим? Drosselbeere, а чому затяжка не на тому місці? Якщо замовити крокви довжиною 7,2 м невдасться, чи реальним (практичною) є можливість їх зєднати? Крокви (з врахуванням того, що змінились плани: перекривати не металочерепицею а бітумною металочерепицею) можна замовити 75 на 200 (як балки). Gothia взявся за розробку покрівлі, але поки немає зворотнього звязку, хочу для себе більше розібратись з цією, як на перший погляд, нелегкою задачею.. Буду аналізувати пропозиції, фінансові можливості та не виключено, що будувати покрівлю будемо власними силами.. Надайте плиз посилання на графічне зображення "правильного " пиріга мансардної покрівлі (багато варіантів зустрічалось, але до кінця не розібрався). Після мотажу крокв, що йде слідуючим етапом? Плити ОСБ-3 (1 мм) не кріпляться зразу на крокви, а ще потрібно якісь планки (якою товщиною?) уздовж крокв набивати для улаштування вентиляційного зазору (саме цей момент мені незовсім зрозумілий) і т.д. Дякую наперед за будь-які поради... Посилання на коментар Поділитися на інших сайтах More sharing options...
Andrei constructor Опубліковано: 20 жовтня 2013 Поділитись Опубліковано: 20 жовтня 2013 Andrei constructor, а чим є поганим, що балка буде являтись нижньою затяжкою? навантаження на неї зверху небуде.. чи є такий варіант допустимим? Такой вариант допустим; нагрузка на нижнюю затяжку будет также от потолка, утеплителя и пр. Пролет этой затяжки большой около 8 м, поэтому ее в пролете лучше подхватить коньковой стойкой. 1 Посилання на коментар Поділитися на інших сайтах More sharing options...
Drosselbeere Опубліковано: 20 жовтня 2013 Поділитись Опубліковано: 20 жовтня 2013 vorbey, я бы делал наслонные стропила, не зависиио от типа покрытия кровли, а стыковку стропил выполнил на прогонах. Еще раз повторю, что ваша схема стропилки не правильная как для мансарды тем более при ширине здания 10 м. Верхняя затяжка сделана по принцепу слышу звон да не знаю где он. 2 Посилання на коментар Поділитися на інших сайтах More sharing options...
OlegArh Опубліковано: 20 жовтня 2013 Поділитись Опубліковано: 20 жовтня 2013 OlegArh да згідний що це не "проект", але саме проектне рішення є реальним? Уже стало зрозумілим, що балки будуть складатись з двох частин та зєднуватись на несучих стінах мансардного поверху (зверху є рис).Я уже писал, что так построить крышу можно, но на рисунке показаны кобылки, а не место сращивания стропил. И, кстати, тут кто написал, что невозможно сделать одинаковый шаг стропил, так я скажу, что это чушь! Можно и нужно стремиться к одинаковому шагу, тем более, что крышу нужно утеплять, а кратность утеплителя равна чему-нибудь: например Роквул 1200*600 и т.д. vorbey, я бы делал наслонные стропилаа я бы подождал результата Gothia взявся за розробку покрівлі, а то еще насоветуем... 1 Посилання на коментар Поділитися на інших сайтах More sharing options...
vorbey Опубліковано: 24 жовтня 2013 Автор Поділитись Опубліковано: 24 жовтня 2013 Gothia дякую за виконану роботу(3D проект + смета). Так-як монтаж покрівлі запланований на 2014 р (літо-осінь) наразі приймати (не приймати) пропозицію є не зовсім адекватно. Для визначення цінової політики як мінімум мені потрібні геометричні розміри основних елементів: крокв та балок перекриття (затяжок) чи вони залишаються "стандартними" 50*150 (мм)? Ще питання: не порушуючи "авторських прав" чи допустимим є обговорення даного проекту в даній темі? PS. Ваші контакти передав знайомим з Києва, для можливої співпраці (проект, монтаж приватного будинку). Посилання на коментар Поділитися на інших сайтах More sharing options...
Gothia Опубліковано: 24 жовтня 2013 Поділитись Опубліковано: 24 жовтня 2013 дякую за виконану роботу(3D проект + смета) пожалуйста. но учтите, что это прикидочные эскизы и предварительная смета. Добавлено через 1 минуту Для визначення цінової політики як мінімум мені потрібні геометричні розміри основних елементів: крокв та балок перекриття (затяжок) чи вони залишаються "стандартними" 50*150 (мм)? спецификацию мы не готовили. я не готов сейчас предоставить эту информацию. у вас есть общая кубатура. от неё пляшите. Добавлено через 2 минуты Ще питання: не порушуючи "авторських прав" чи допустимим є обговорення даного проекту в даній темі? Я вас умоляю, да без проблем! 1 Посилання на коментар Поділитися на інших сайтах More sharing options...
vorbey Опубліковано: 27 жовтня 2013 Автор Поділитись Опубліковано: 27 жовтня 2013 Пошаривши по просторам інтернета, все більше схиляюсь до ідеї монтажа покрівлі власними силами (тесть допоможе, в нього є трохи практичного досвіду). Gothia зробив 3Д проект, а за розмірами деревини (складання специфікації) буду звертатись за допомогою до форумчан. Дерево треба замовити цієї зими. За основу візьму свій ескізний "проект". взавтра закину проект.. Посилання на коментар Поділитися на інших сайтах More sharing options...
vorbey Опубліковано: 27 жовтня 2013 Автор Поділитись Опубліковано: 27 жовтня 2013 а от власне і проект в 3Д: Посилання на коментар Поділитися на інших сайтах More sharing options...
Drosselbeere Опубліковано: 27 жовтня 2013 Поділитись Опубліковано: 27 жовтня 2013 vorbey, что это? Это все? Посилання на коментар Поділитися на інших сайтах More sharing options...
Gothia Опубліковано: 27 жовтня 2013 Поділитись Опубліковано: 27 жовтня 2013 vorbey, что это? Это все? Это всё. Это не проект. Его и не заказывали. Мы набросали "на коленке" конструктивную схему, выполнили расчёт нес. способности. Сняли объём леса, просчитали крепёж и передали объёмы автору темы. В рамках взаимопомощи на общественных началах, этого более чем, ИМХО. В принципе, ничто не мешает, на 0,5 закарпатского, сформировать и полноценную спецификацию. Посилання на коментар Поділитися на інших сайтах More sharing options...
Drosselbeere Опубліковано: 27 жовтня 2013 Поділитись Опубліковано: 27 жовтня 2013 Gothia, что за чудо конструкция???? вот что я хотел понять. А то что вы на коленке делаете это видно)))) Посилання на коментар Поділитися на інших сайтах More sharing options...
Рекомендовані повідомлення
Створіть акаунт або увійдіть у нього для коментування
Ви маєте бути користувачем, щоб залишити коментар
Створити акаунт
Зареєструйтеся для отримання акаунта. Це просто!
Зареєструвати акаунтУвійти
Вже зареєстровані? Увійдіть тут.
Увійти зараз