ДОКС Опубліковано: 13 січня 2014 Поділитись Опубліковано: 13 січня 2014 посещал её регулярно лет 15 Вспомнил, - вот где мы могли видеться))) ТС - а где ещё три ступени делись в Вашем рисунке?... Посилання на коментар Поділитися на інших сайтах More sharing options...
qipru Опубліковано: 13 січня 2014 Автор Поділитись Опубліковано: 13 січня 2014 С такой высотой - 1997,9 - от третьей забежной до перекрытия (это в чистоте?) лично я к Вам в гости не ходок.:D Это ж почти 2м высота ( в чистоте)! Есть еще вариант сделать подъем по 200, тогда плюс еще 110 получится. Есть механизм для таких окон с электроприводом. И окно и шторки можно с пульта открывать/закрывать или с без провоного или проводного, стоит это совсем не дорого. Демонтаж части перекрытия тоже не сложно сделать. Если ходить даже не касаясь головой перекрытия, все равно инстинктивно будете пригибаться. Я бы лестницу развернул, проем расширил, окно на пульт и ходил с высоко поднятой головой по удобной лестнице, ИМХО конечно. К сожалению, не получится. Иначе не только доступа к окну, а и доступа в ванную на 2 этаже не будет. Ну и на первом никуда не пройти. Посилання на коментар Поділитися на інших сайтах More sharing options...
Crash m.d. Опубліковано: 13 січня 2014 Поділитись Опубліковано: 13 січня 2014 Я бы резал перекрытия, пока вмешательство можно выполнить с минимальным риском. Сейчас это просто. Лучше поступиться площадью помещений и сделать площадку и обойтись без забежных ступеней. р.s. Пока писал, Вы уже ответили, что это невозможно. 1 Посилання на коментар Поділитися на інших сайтах More sharing options...
qipru Опубліковано: 13 січня 2014 Автор Поділитись Опубліковано: 13 січня 2014 Вспомнил, - вот где мы могли видеться))) ТС - а где ещё три ступени делись в Вашем рисунке?... Не помещаются. Посилання на коментар Поділитися на інших сайтах More sharing options...
ДОКС Опубліковано: 13 січня 2014 Поділитись Опубліковано: 13 січня 2014 Не помещаются. Что значит - "не помещаются"? Мне кажется, что "самолечение" вредно... Или не прав? Посилання на коментар Поділитися на інших сайтах More sharing options...
Игореха Опубліковано: 13 січня 2014 Поділитись Опубліковано: 13 січня 2014 Это ж почти 2м высота ( в чистоте)! Не годится! Высоту проема надо измерять от предыдущей (верхней) ступени. Это когда вы стоите на ступени, от которой отмеряли 2 метра - все хорошо. И даже когда поднимаетесь - тоже нормально. Но когда начнете спускаться, то корпус тела должен быть отклонен назад, чтобы человек, выше чем 182 см не убился об угол перекрытия. Что же вы про перекрытие только сейчас начинаете писать? ;) 3 Посилання на коментар Поділитися на інших сайтах More sharing options...
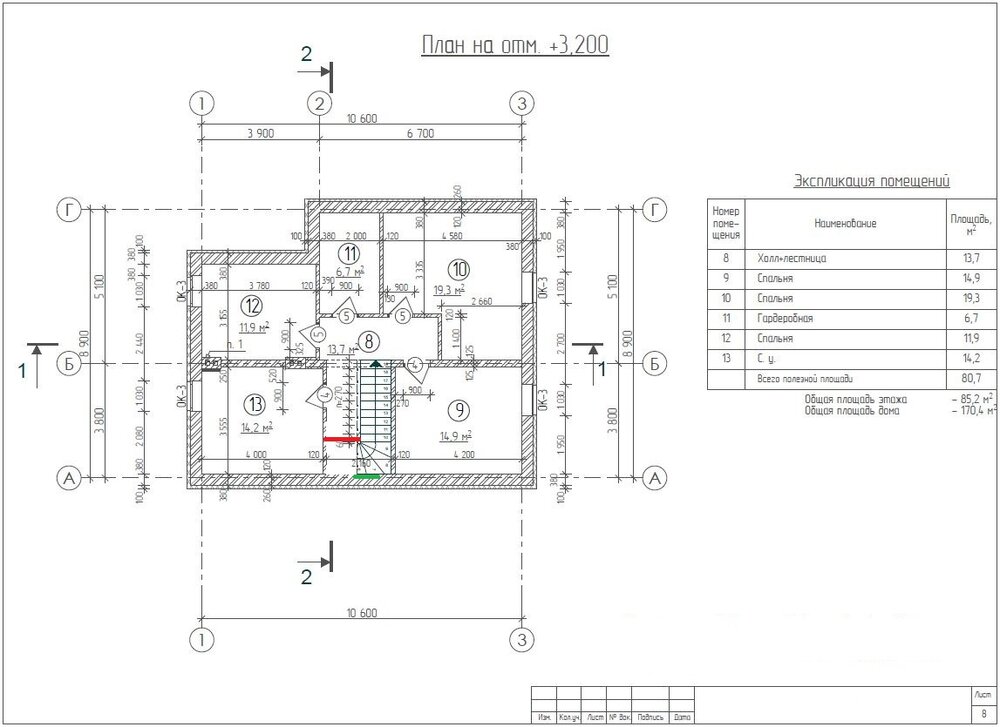
qipru Опубліковано: 13 січня 2014 Автор Поділитись Опубліковано: 13 січня 2014 Я бы резал перекрытия, пока вмешательство можно выполнить с минимальным риском. Сейчас это просто. Лучше поступиться площадью помещений и сделать площадку и обойтись без забежных ступеней. р.s. Пока писал, Вы уже ответили, что это невозможно. Разве что так, как на рисунке. Красной линией - предполагаемый срез перекрытия. Зеленой - недоступное окно . Но площадку это все равно не даст, разве что можно будет уменьшить высоту ступеней. Посилання на коментар Поділитися на інших сайтах More sharing options...
qipru Опубліковано: 13 січня 2014 Автор Поділитись Опубліковано: 13 січня 2014 Что значит - "не помещаются"? Мне кажется, что "самолечение" вредно... Или не прав? Может и правы. Но размеры ж проема не изменятся? Посилання на коментар Поділитися на інших сайтах More sharing options...
ДОКС Опубліковано: 13 січня 2014 Поділитись Опубліковано: 13 січня 2014 ТС - в среду-четверг наш сотрудник будет на Вашем объекте работать. Прорабы сделают все замеры, которые мне необходимы проверить схему ступеней. Результат будет мною тут озвучен. з.ы. остаюсь при своём мнении - "Минздрав предупреждает - самолечение не всегда хорошо для результата"... 2 Посилання на коментар Поділитися на інших сайтах More sharing options...
Luko Опубліковано: 13 січня 2014 Поділитись Опубліковано: 13 січня 2014 Красной линией - предполагаемый срез перекрытия а можно ли его ТАМ резать? 1 Посилання на коментар Поділитися на інших сайтах More sharing options...
Игореха Опубліковано: 13 січня 2014 Поділитись Опубліковано: 13 січня 2014 а можно ли его ТАМ резать? Я вот тоже думаю, а на чем оно потом держаться будет? Посилання на коментар Поділитися на інших сайтах More sharing options...
qipru Опубліковано: 13 січня 2014 Автор Поділитись Опубліковано: 13 січня 2014 Не годится! Высоту проема надо измерять от предыдущей (верхней) ступени. Это когда вы стоите на ступени, от которой отмеряли 2 метра - все хорошо. И даже когда поднимаетесь - тоже нормально. Но когда начнете спускаться, то корпус тела должен быть отклонен назад, чтобы человек, выше чем 182 см не убился об угол перекрытия. Что же вы про перекрытие только сейчас начинаете писать? ;) Там не совсем, как спускаешься. Начало перекрытия будет как раз над центром этой ступени. Хотя, с другой стороны, ступень тоже не слишком широкая. а можно ли его ТАМ резать? Может небольшой вырез для головы? Посилання на коментар Поділитися на інших сайтах More sharing options...
Luko Опубліковано: 13 січня 2014 Поділитись Опубліковано: 13 січня 2014 Может небольшой вырез для головы? Оббить войлоком и подписать ;) 1 Посилання на коментар Поділитися на інших сайтах More sharing options...
qipru Опубліковано: 13 січня 2014 Автор Поділитись Опубліковано: 13 січня 2014 ТС - в среду-четверг наш сотрудник будет на Вашем объекте работать. Прорабы сделают все замеры, которые мне необходимы проверить схему ступеней. Результат будет мною тут озвучен. з.ы. остаюсь при своём мнении - "Минздрав предупреждает - самолечение не всегда хорошо для результата"... Мы брали еще на 1 этаже 80 +50+20 на чистовой пол, на втором 50+20 на чистовой и на натяжной потолок первого этажа 40. И 7 забежных - это очень много. Там реально тесно подниматься будет Посилання на коментар Поділитися на інших сайтах More sharing options...
Luko Опубліковано: 13 січня 2014 Поділитись Опубліковано: 13 січня 2014 если серьезно - можете обвести цветным на плане, что уже есть готового в доме? и файл скечапа выслать? 1 Посилання на коментар Поділитися на інших сайтах More sharing options...
ДОКС Опубліковано: 13 січня 2014 Поділитись Опубліковано: 13 січня 2014 а можно ли его ТАМ резать? Я вот тоже думаю, а на чем оно потом держаться будет? Вы в Бога верите? Ведь правда, - так удобно на вопрос вопросом отвечать? Я в Бога верю. Поэтому "на честном слове обрезанное" (не по-иудейски) перекрытие держаться ни как не будет... 1 Посилання на коментар Поділитися на інших сайтах More sharing options...
Luko Опубліковано: 13 січня 2014 Поділитись Опубліковано: 13 січня 2014 так удобно на вопрос вопросом отвечать? не поверите, насколько удобно Посилання на коментар Поділитися на інших сайтах More sharing options...
ДОКС Опубліковано: 13 січня 2014 Поділитись Опубліковано: 13 січня 2014 И 7 забежных - это очень много. Там реально тесно подниматься будет кто принял такое решение? Про трудность подъёма... Посилання на коментар Поділитися на інших сайтах More sharing options...
qipru Опубліковано: 13 січня 2014 Автор Поділитись Опубліковано: 13 січня 2014 кто принял такое решение? Про трудность подъёма... Будущие пользователи. Соорудили и походили. 1 Посилання на коментар Поділитися на інших сайтах More sharing options...
ДОКС Опубліковано: 13 січня 2014 Поділитись Опубліковано: 13 січня 2014 Будущие пользователи. Соорудили и походили. То есть вы соорудили лестницу в доме? Есть фото и остальные размеры? Спасибо. Посилання на коментар Поділитися на інших сайтах More sharing options...
Vikctor Опубліковано: 13 січня 2014 Поділитись Опубліковано: 13 січня 2014 Есть механизм для таких окон с электроприводом. Не уверен, что его можно установить в смонтированное окно. И стоит окошко с таким механизмом наверняка не дёшево. Впрочем все мансардные не бюджетные решения... Вспомнил, - вот где мы могли видеться))) Дмитрий, я это... в общественной бане на голых мужиков старался не смотреть.:D Это ж почти 2м высота ( в чистоте)! Так во время ходьбы человек же не только вперёд движется, но и вверх. Ого, пока писал, целая страница постов нарисовалась. 2 Посилання на коментар Поділитися на інших сайтах More sharing options...
qipru Опубліковано: 13 січня 2014 Автор Поділитись Опубліковано: 13 січня 2014 То есть вы соорудили лестницу в доме? Есть фото и остальные размеры? Спасибо. Если б мы соорудили лестницу, я бы про нее уже не писала Расчертили размеры на полу и с помощью кирпичей и доп.материалов выкладывали высоту по центру забежных. Потом пробовали. Потом пробовали просто на полу. Тесно. 5 намного лучше. Проем 3470 на 2160 без прикидок на штукатурку. Высота от чернового до чернового 3250. Высота от чернового до перекрытия 3060. Посилання на коментар Поділитися на інших сайтах More sharing options...
ДОКС Опубліковано: 13 січня 2014 Поділитись Опубліковано: 13 січня 2014 Расчертили размеры на полу и с помощью кирпичей и доп.материалов выкладывали высоту по центру забежных. Потом пробовали. Потом пробовали просто на полу. есть фото и т.д.? на почту сбросьте... спасибо. Посилання на коментар Поділитися на інших сайтах More sharing options...
Vikctor Опубліковано: 13 січня 2014 Поділитись Опубліковано: 13 січня 2014 Это когда вы стоите на ступени, от которой отмеряли 2 метра - все хорошо. И даже когда поднимаетесь - тоже нормально. Но когда начнете спускаться, то корпус тела должен быть отклонен назад, чтобы человек, выше чем 182 см не убился об угол перекрытия. А я всё думал, чего это я только на спуске бился...Вот что значит отсутствие инженерного образования. Посилання на коментар Поділитися на інших сайтах More sharing options...
qipru Опубліковано: 13 січня 2014 Автор Поділитись Опубліковано: 13 січня 2014 есть фото и т.д.? на почту сбросьте... спасибо. Честно говоря, запечатлеть не догадались Есть только фото самого проема. Добавлено через 3 минуты А я всё думал, чего это я только на спуске бился...Вот что значит отсутствие инженерного образования. Эх, приезжайте, на первом посидим Совсем забыла с этой лестницей, со Старым Новым Годом вас !!!!:roll: И так хочется верить, что чудеса иногда бывают... 3 Посилання на коментар Поділитися на інших сайтах More sharing options...
Рекомендовані повідомлення
Створіть акаунт або увійдіть у нього для коментування
Ви маєте бути користувачем, щоб залишити коментар
Створити акаунт
Зареєструйтеся для отримання акаунта. Це просто!
Зареєструвати акаунтУвійти
Вже зареєстровані? Увійдіть тут.
Увійти зараз