Chiara Опубліковано: 7 травня 2007 Поділитись Опубліковано: 7 травня 2007 Ребята, прошу помощи! Выбрала проект, сдержанный фасад, простота форм и первый этаж которого устраивает меня на 99%. Но вот второй - с точностью до-наоборот!!! Как бы второй этаж развернуть на восток? www.cottage.com.ua/project_kirp_j370-03.html Дело в том что у меня узкий дачный участок, север 14м( тыл), восток/запад 29м, юг (фасад) 12м. Домик придется придвинуть к восточной границе до упора с северной стороны. Терасса (небольшая) будет с западной стороны. Поэтому представительская часть дома с выходом на запад - самое оно. Глухой фасад и тыл меня устраивают. Но вот спальни нам нужно сориентировать на восток - мы законченные совы Из-за этого (если просто перевернуть) - непонятно куда уйдет лестница и непонятно сколько стояков канализации придется делать? 4-5, вместо двух? Может, у кого есть мысли на этот счет? Или кто-то видел проект с представительской частью на запад и приватной - на восток? И еще вопрос, можно ли сделать разноуровневый потолок/пол по несущим, они практически посередине идут? Дело в том, что, насколько я разглядела высота первого этажа 3,30. Разреза нет, но похоже и второй такой же. Потолки в кухне, котельной, холле такой высоты не нужны - в принципе, а вот в представительской части - можно и повыше. В целом по проекту что я бы не делала - несущую стену между столовой и гостинной, добавила бы камин, сделала бы шире лестицу. Зашила бы ее стеклом, и под ней устроила бы зимний сад :-D Я прикинула, что вынос лестницы 11 ступенек*0,30 =3,3м, а высота 11*0,18*2=3,96м - что-то у меня не сходится определенно? Или она более пологая и длинная или высота потолков другая? Не делала бы полукруглых стенок и треугольного непонятно-чего на крыше. Похоже, исходя из общей площади и мансардных окон, не показан третий - мансардный этаж, (хотя крыша достаточно пологая), поэтому можно было бы увеличить высоту первого за счет второго и приподнять потолок второго за счет нежилого чердака. Может, тогда бы и высота дома не была бы драматичной. ПыСы А кто-нибудь на этом сайте проекты покупал? Спасибо за помощь! Посилання на коментар Поділитися на інших сайтах More sharing options...
XamGelo Опубліковано: 7 травня 2007 Поділитись Опубліковано: 7 травня 2007 Попробую помочь, если получится, - выложу здесь картинки Заодно и размеры с площадями проверим а то на таких картинках редко правду пишут ИМХО - симпатичный домик - простенько и со вкусом и функционально А гаража не будет? Посилання на коментар Поділитися на інших сайтах More sharing options...
Chiara Опубліковано: 8 травня 2007 Автор Поділитись Опубліковано: 8 травня 2007 Спасибо большое, что откликнулись!!!! Гараж будет. Дело в том, что мои соседи выстроили свой дом на западной меже(какой там отступ на хотя бы 1 м????) Туда и планирую поставить гараж. Расчет простой: Глубина участка 29м -1 м отступ от забора -13м глубина домика=15м остается. Можно сделать гараж (навес) на 2 машины паровозом и в торце стационарный "сарай" для резины, газонокосилки и проч. Можно сделать навес на 1 машину и в торце "сарай"+котельная. Я попозже выложу план участка и попробую расстановку сил. Дом мне и самой понравился, такой сдержанный без выкрутасов. Не помню архитектора, но примерно такими домами застроен Париж после реконструкции, каатся 18века, когда они центр расчистили и канализацию провели. Сюда просятся французские окна. (Выложу в ссылках) На стены или штукатурка, или состаренный кирпич. или ракушняк - что-нибудь под-старину. Портик и обрамление окон нужно оформить по-другому. Но прямоугольник, с симметричной планировкой, простой крышей - что может быть лучше???? Смущает меня только общая площадь дома, нам не нужно 277м! Не нужна мансарда. Зато каждому по туалету и гардеробу - сибаритство одним словом Посилання на коментар Поділитися на інших сайтах More sharing options...
XamGelo Опубліковано: 8 травня 2007 Поділитись Опубліковано: 8 травня 2007 Да, согласен площадь великовата. А если попробовать сделать дом несколько уже? Он ведь явно широк для вашего участка? Я сегодня вечером займусь, вчера только наружные стены нарисовал, а внутри - пока пусто. Рисунок с планом участка включая часть соседского дома очень помог бы Посилання на коментар Поділитися на інших сайтах More sharing options...
Chiara Опубліковано: 8 травня 2007 Автор Поділитись Опубліковано: 8 травня 2007 вот сосканировала с держакта. Села и заплакала. Опять хочу купить землю! Ну, что это такое? И как тут разместиться? Внутри пунктира - уже существующий дом 5*8 Можно, конечно же, сделать дом уже. Но это уже будет индивидуальный проект - другие деньги. Что критично - геометрия дома и крыши, вход с юга, высота потолков, количество и размеры санузлов и гардеробных( могут быть даже больше) Спальни, кухня, столовая - могут быть меньше. Гостинная, кабинет и холлы - больше. Неужели ни у кого нет соображений или замечаний? Обычно проекты обсуждаются бодренько, а тут - все в засаде (или на стройке??? :wink: ) HELP!!!! Посилання на коментар Поділитися на інших сайтах More sharing options...
XamGelo Опубліковано: 8 травня 2007 Поділитись Опубліковано: 8 травня 2007 А где же отсканированная картинка? Посилання на коментар Поділитися на інших сайтах More sharing options...
КиевлянинЪ Опубліковано: 9 травня 2007 Поділитись Опубліковано: 9 травня 2007 я бы порекомендовал вытянутый проект размерами 8 на 15 на участке станет более комфортно Посилання на коментар Поділитися на інших сайтах More sharing options...
XamGelo Опубліковано: 9 травня 2007 Поділитись Опубліковано: 9 травня 2007 Я так понимаю участок дачный? Поэтому наверное имеет смысл купить типовой проект в сельсовете или еще где гривен за 300, а строить то что хочется и нравится. :-D Главное только чтобы обязательно деревья были на участке Вот посмотрите что я сделал с проектом. Размеры уменьшил и подогнал так что почти везде можно использовать стандартные ПК для перекрытий если есть желание. Минимальное расстояние до забора на западе получилось 3.4 м Как Ваше мнение? Посилання на коментар Поділитися на інших сайтах More sharing options...
Chiara Опубліковано: 9 травня 2007 Автор Поділитись Опубліковано: 9 травня 2007 Очень нравится!! Спасибо! А есть размеры помещений:ширина*длина? Так как Вы переделали второй этаж - дает возможность сделать второй свет. Я не особая его поклонница, обычно это помещение получается слишком пустым, но вот недавно в salon.ru наткнулась на очень уютную гостинную со вторым светом. А вот так решается вопрос с соседями - на узких участках Посилання на коментар Поділитися на інших сайтах More sharing options...
alyak Опубліковано: 9 травня 2007 Поділитись Опубліковано: 9 травня 2007 подаю идею , дом поставить таки в глубине и сделать к нему аллею . Посилання на коментар Поділитися на інших сайтах More sharing options...
XamGelo Опубліковано: 9 травня 2007 Поділитись Опубліковано: 9 травня 2007 Фотки понравились. Водоемчик за окном - обалденный, так и хочется использовать это в вашем случае Вот только в этом доме потолки 1 этажа 3.30, на 2-м я заложил 3м. Если делать 2-й свет - однозначно нужно уменьшать высоту потолков на обоих этажах, чтобы не получился туннель вместо 2-го света. А возможно и делать 2-й этаж мансардным, что испортит облик дома (Я так думаю!=цитата) Размеры дам завтра (длину и ширину помещений) Посилання на коментар Поділитися на інших сайтах More sharing options...
Chiara Опубліковано: 9 травня 2007 Автор Поділитись Опубліковано: 9 травня 2007 Нужно подкорректировать по стоякам, воздуховодам. Наверное, котельную и кухню нужно перенести налево, чтоб были в аккурат под ванными комнатами второго этажа. Туалет останется рядом с котельной/постирочной. На месте котельной останется квадратный хол/тамбур , туда при необходимости может переехать лестница. Если ее оставить в центре нужно будет обыграть ее в focal point. Кабинет уменьшится в размерах в пользу кухни и поменяется местами со столовой. В кухне для "стола для завтраков" останется место. Зато блок гостинная-столовая будет приличных размеров. Их можно будет условно разделить или лестницей или камином. Не знаю как там с несущей осевой стенкой получится, XamGelo? Я по размерам плит полный 0 В худшем случае пожно будет оставить широкие проемы или подпереть коллоннами. Вариант лестницы - очень аккуратный вариант, один из моих любимых - для "парадных" лестниц ( вместо окна - зеркало. Даст возможность разделить верхний этаж два на почти автономных крыла. Вариант лестницы в центре м.б такой, в нее можно, кстати, зашарашить камин ре: высота потолков Я поэтому и спрашивала можно ли делать потолок 1/пол2 этажа разоноуровневым? Под спальнями пониже, под ванными - повыше? Кстати, центральная спальня второго этажа планируется под орхидариум, типа зимний сад. В нее можно сделать выход из обоих спален и чуть поменьше. Высота там 3 метра не нужна, не дотянусь, так что в нижнем холле можно будет сохранить высоту 3 м Вариантов для маленьких садов множество. В Англии очень маленькие участки 4-6 соток, вытянутые. Они обычно строят фасад на всю ширину участка и оставляют задний двор - для садика. ( к сожалению - у меня север, иначе и я бы так сделала!!!) По BBC Prime шел цикл передеч дизайна для маленьких городских садов - крышу срывает - что можно сделать на 2-х сотках!!!! Главное чтоб был акцент - фокус на чем-то, например, на таком А вот так выглядят шпалерные деревья - одуренно!!! Нюся, Вам тоже подойдет для забора с соседями! Посилання на коментар Поділитися на інших сайтах More sharing options...
XamGelo Опубліковано: 10 травня 2007 Поділитись Опубліковано: 10 травня 2007 Я полагал пустить канализацию и турбы в разрыве несущей стены поэтому положение кухни не имеет значения. Может есть определенный смысл поменять кабинет со столовой и объединить столовую с гостиной? Тогда несущими пожалуй надо будет сделать поперечные стены. Вашу прекрасную лестницу тогда можно перенести к восточной стене, только проверить, будет ли она функциональна при этих размерах помещений. Вход в спальни 2 этажа будет из орхидариума Плиты ЖБИ выпускают с шагом 600мм начиная с 2.4 до 6 м (некоторые заводы до 7.2) Если менять высоту помещений по продольной оси, придется менять крышу. Мне такие крыши не нравятся, может видели - 2-скатная, одна половинка выше, другая ниже Может имеет смысл сделать все помещения ниже и подумать о вторм свете в гостиной? Посилання на коментар Поділитися на інших сайтах More sharing options...
XamGelo Опубліковано: 10 травня 2007 Поділитись Опубліковано: 10 травня 2007 Вот с изменениями. Лестница не много ли места занимает? Посилання на коментар Поділитися на інших сайтах More sharing options...
Chiara Опубліковано: 10 травня 2007 Автор Поділитись Опубліковано: 10 травня 2007 Спасибо большое, XamGelo! А в чем Вы рисуете? У меня только эскизные наброски. Сканер у секретарши Чичас буду колдовать с сантиметром А как можно пускать канализацию в проемах несущих? Почему же такая борьба, чтобы "палочки были строго попендикулярны"?(с) Вход из орхидариума невозможен, это все-таки не зимний сад, а больше техническое помещение - теплица. Орхидеям нужен свой микроклимат: от минусовой ночью до плюсовой днем, нектороым тропики подавай. Сложно все, просто в обычной квартире они плохо себя чувствуют, плохо цветут. Из пятидесяти горшков у меня осталось тридцать восемь У меня есть мысли сделать ванные-гардеробные с метровым выносом, лестница ведь будет закругляться, площадь увеличится. Столовая пока на месте кабинета, только урежу я ее - мы привыкли без столовой жить, редко будем пользоваться, и кабинетом наверное тоже, нам бы мастерских побольше!!! По-поводу высоты. Да, можно оставить первый 3м, я передумала делать разноуровневые потолки/полы, еще ночью кто-нить сверзится! Второй можно будет сделать пониже и завести чуток под скаты крыши, почти што не меняя ее формы. До 2,6-2,7м. Мансарды жилой у нас не будет, только холодный чердак. Так что под коньком будет больше 3. Под скаты можно завести ванну, в спальне камод с теликом. Посилання на коментар Поділитися на інших сайтах More sharing options...
XamGelo Опубліковано: 10 травня 2007 Поділитись Опубліковано: 10 травня 2007 Я пользуюсь профессиональной программой. Вы для себя можете попробовать 3D Home Architect, она проще в освоении и весьма эффективна кажется, если не путаю. Просто помню мне попадалась 1 прога для любителей, кажется немецкая, очень приличная. Картинки здесь выложенные - в jpeg, это растровая графика и соответственно пропорции могут не сохраниться, поэтому с линейкой может и не получиться :-D В несущей стене можно сделать разрыв около 20% ширины ПК и пустить в нем трубопроводы. Во 2-м варианте несущие стены - с востока на запад, при этом можно использовать толька 2 размера плит Похоже нужно комбинировать 1-й и 2-й вариант. Орхидариум перенести к западной стене, думаю там и растениям будет лучше Во вотором варианте я снизил высоту 1 этажа до 3 и второго до 2.7. Немного уменьшил высоту окон. При этом ничего не надо "заводить под скаты" - это уже будет полумансарда что-ли Про санузлы не понял? Посилання на коментар Поділитися на інших сайтах More sharing options...
Chiara Опубліковано: 10 травня 2007 Автор Поділитись Опубліковано: 10 травня 2007 Во вотором варианте я снизил высоту 1 этажа до 3 и второго до 2.7. Немного уменьшил высоту окон. При этом ничего не надо "заводить под скаты" - это уже будет полумансарда что-ли Про санузлы не понял? Второй вариант там где лестница? Она получилась в натуральную величину? По ширине гостинной? ре: Сан узлы - вынос типа балкончика на 0,5-1м., занятого санузлами. Проем второго света сузится по периметру на 1-2 м. Ведь можно же лестницу заводить на 2-й этаж не до самой торцевой стены( где окна гостинной) а только до дверей комнат/гардеробных. Я, правда не очень ориентируюсь как лестница встанет, с прямолинейными - как то проще. Я завтра попробую нарисовать и сосканировать, что я имею ввиду. прграмм я побаиваюсь, рисовать мне легче, был бы сканер! Посилання на коментар Поділитися на інших сайтах More sharing options...
XamGelo Опубліковано: 11 травня 2007 Поділитись Опубліковано: 11 травня 2007 Да, лестница в натуральную величину, естественно :-D Причем получилась вполне удобной. Насчет остального по лестнице не понял? Повторюсь - предлагаю отказаться от второго света, орхидариум перенести к западной стене. Тогда проще будет увеличить санузлы. Хотя можно немножко уменьшить спальни Посилання на коментар Поділитися на інших сайтах More sharing options...
Chiara Опубліковано: 11 травня 2007 Автор Поділитись Опубліковано: 11 травня 2007 Повторюсь - предлагаю отказаться от второго света Это как??????? Это ж выплыло только после Ваших чертежей! И теперь отказаться? Нет уж!!! Я тут, как дурень ношусь с писаной торбой, понимаешь :-D Ищу размеры котлов для котельной, орхидариума, ванн, умывальников и душевых кабин, кроватей и антикварных буфетов... А Вы - "отказаться"!!! Только сегодня смогла распечатать Ваши чертежи. Хочу уточнить по размерам. Пролет лестничный 40 см - кажется мне маловатым, я коэчно же газель, но вечно такой быть не смогу - законы природы, а как же с моими друзьями - некоторые - очень пышных форм - их, что на 2 этаж не пускать? 0,12 - это простенок? Десятичные знаки после запятой - из-за размеров плит перекрытия? У меня есть несколько мыслей, но показать их пока не смогу. Прорисую на выходных, потом отсканирую. Видно придется все-таки програмулину покупать... Посилання на коментар Поділитися на інших сайтах More sharing options...
XamGelo Опубліковано: 11 травня 2007 Поділитись Опубліковано: 11 травня 2007 Мое дело предложить :-D Тем более сам 2-й свет не жалую, хотя видел один американский проектик который понравился. Попробую сделать 3Д картинки завтра такие, чтобы было понятно как проходит лестница и что получается на 2 этаже при этом, почему и предложил отказаться от 2 света, не хочется просто отказываться от ТАКОЙ лестницы (сам мечтал а вышла похожая на лестницы в подъездах :-D - по форме конечно) Помилуйте, это программа 40 см автоматом толщину стены зацепила! По лестнице я думаю и в 75 лет будет вполне удобно ходить. Ширина парадной части 1.4, ломаной верхней - почти метр 12 см - это просто простенки в 1/4 кирпича, в реальности со штукатуркой будет немного больше. Насчет проги я кажется ошибся, та по другому называлась как-то . Их много есть, поспрашивайте у народа какая удобнее ЗЫ: А что, для орхидариума отдельный котел нужен? :-D Посилання на коментар Поділитися на інших сайтах More sharing options...
Chiara Опубліковано: 11 травня 2007 Автор Поділитись Опубліковано: 11 травня 2007 Мое дело предложить :-D Тем более сам 2-й свет не жалую, хотя видел один американский проектик который понравился. Попробую сделать 3Д картинки завтра такие, чтобы было понятно как проходит лестница и что получается на 2 этаже при этом, почему и предложил отказаться от 2 света, не хочется просто отказываться от ТАКОЙ лестницы (сам мечтал а вышла похожая на лестницы в подъездах :-D - по форме конечно) Помилуйте, это программа 40 см автоматом толщину стены зацепила! По лестнице я думаю и в 75 лет будет вполне удобно ходить. Ширина парадной части 1.4, ломаной верхней - почти метр 12 см - это просто простенки в 1/4 кирпича, в реальности со штукатуркой будет немного больше. Насчет проги я кажется ошибся, та по другому называлась как-то . Их много есть, поспрашивайте у народа какая удобнее ЗЫ: А что, для орхидариума отдельный котел нужен? :-D Ой, 3Д картиинки..., жду с громадным нетерпением!!!! А может нам, XamGelo в архитекторы-дизайнеры податься? Меня уже сегодня за архитектора приняли Я б почла за честь, конечно, но я больше по дизайнерской части Так вот что это за размеры! Я еще повнимательнее посмотрю. Может и выйдет у нас и второй свет, и лестница. Есть мысль! Орхидариуму отдельный котел не нужен, а вот кондишн и вентиляция - пожалуй, и вода не помешает с раковиной - их купать нужно время от времени... вот моя ссылка на орхи, если интересно home-and-garden.webshots.com/album/202224440pvJhLg Посилання на коментар Поділитися на інших сайтах More sharing options...
XamGelo Опубліковано: 12 травня 2007 Поділитись Опубліковано: 12 травня 2007 Вот 3D на втором этаже, и почему я говорил об отказе от 2 света. Лестницу такой формы сместить не получится - потеряем очень сильно пространство гостиной. Орхидеи посмотрел, красиво конечно, но хлопотно очень :-D Посилання на коментар Поділитися на інших сайтах More sharing options...
Chiara Опубліковано: 14 травня 2007 Автор Поділитись Опубліковано: 14 травня 2007 Ой, пропало сообщение которое постила XamGelo, я закончила эскизные наброски поэтажных планов с расстановкой техники/мебели. Чтоб сделать чертежи и вынести на обсуждение не хватает размеров ЖБ плит перекрытий, внешних/несущих/межкомнатных (кирпич/ГКЛ) перегородок. Помогите с размерами, пожалуйста! Может Ваша программа делает схему перекрытия 1/2 этажа ЖБ плитами. Было бы здорово! Спасибо! Посилання на коментар Поділитися на інших сайтах More sharing options...
XamGelo Опубліковано: 14 травня 2007 Поділитись Опубліковано: 14 травня 2007 Плиты использовал 5.4, 4.8, 4.2, 3.6 метра, ширина 1.2 и 1.5 м. Внешние и несущие стены принимайте 40 см, внутренние 20 (пенобетон), 12 (1/4 кирпича) ГК перегородки - сколько вам нравится. С отделкой будт толще конечно ... :-D Вот примерная раскладка плит для обоих вариантов. Несущие стены расположены по-разному! Посилання на коментар Поділитися на інших сайтах More sharing options...
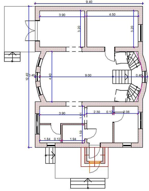
Chiara Опубліковано: 14 травня 2007 Автор Поділитись Опубліковано: 14 травня 2007 Вот, что пока получилось. Взяла внешние стены 0,6. Несущие 0,38. Межкомнатные 0,12. Окна/двери не успела прорисовать. Завтра Какая-то хрень (сорри за мой французский), получилась с лестницей. Она получается АГРОМАДНАЯ и крутая. Что делать - не представляю ( просчитывала 3,3/2 высота до пролета, 0,15 высота ступенек, 0,3 ширина ступенек. Ширина лестничных маршей и площадки 1,2. Внутрь засунула трубу от камина (опять-таки не могу сложить размеры ни того ни другого ) Не пойму останется ли место для прохода вокруг лестницы, в кухню и столовую. Надписи 1этаж/2этаж нужно поменять местами! XamGelo, может Вам встречалась инфа по заведению газа в дом. У меня получается газовый котел и газовая плита разнесены в разные крылья дома. Если придется вести трубу вокруг фасада - я повешусь! Нужно будет менять местами котельную и кабинет ПыСы Завтра выложу (надеюсь) вариант со "спасенной" парадной лестницей. ПыПыСы чтойто я не разберу из-за фона сколько каких перекрытий??? Посилання на коментар Поділитися на інших сайтах More sharing options...
Рекомендовані повідомлення
Створіть акаунт або увійдіть у нього для коментування
Ви маєте бути користувачем, щоб залишити коментар
Створити акаунт
Зареєструйтеся для отримання акаунта. Це просто!
Зареєструвати акаунтУвійти
Вже зареєстровані? Увійдіть тут.
Увійти зараз