Nneta Опубліковано: 18 листопада 2013 Поділитись Опубліковано: 18 листопада 2013 Крутили, вертели, представляли, считали, сопоставляли…. В итоге решили рассмотреть вариант проекта «Мартуся» от Архетона, но без гаража. Он идеально ложится нам на участок и вполне нравится по планировке. Буду признательна за комментарии относительно функциональности данного проекта. Критика также приветствуется www.archeton.com.ua/proekt-doma_943_obshcheye-opisaniye Посилання на коментар Поділитися на інших сайтах More sharing options...
mavriciy Опубліковано: 18 листопада 2013 Поділитись Опубліковано: 18 листопада 2013 archon.pl/gotowe-projekty-domow/dom-w-wisteriach-2-w/m5124fa976f791 Аналог, есть подобные на сайте. Применять в реальных размерах)) Посилання на коментар Поділитися на інших сайтах More sharing options...
mavriciy Опубліковано: 19 листопада 2013 Поділитись Опубліковано: 19 листопада 2013 Еще дом в Амаралисах archon.pl/gotowe-projekty-domow/dom-w-amarylisach-w-ver-2/ma8b1fa14880e9 Необходимо прочертить планировку с реальными размерами, а то на этих сайтах иногда несовподения. Добавьте кладовку, определите содержание топочной, будет ли там мойка и система водоочистки.Толщина и материал стен. Высота мансардной стены 0,9м это мало, у меня 1,6м. Посилання на коментар Поділитися на інших сайтах More sharing options...
Zeland Опубліковано: 19 листопада 2013 Поділитись Опубліковано: 19 листопада 2013 Поменял бы местами кухню и столовую..и обеденный стол поставил бы у красивого окна Посилання на коментар Поділитися на інших сайтах More sharing options...
Nneta Опубліковано: 19 листопада 2013 Автор Поділитись Опубліковано: 19 листопада 2013 Поменял бы местами кухню и столовую..и обеденный стол поставил бы у красивого окна А мне как раз нравится проектное размещение гостинной и кухни У нас "южный" вход с видом на сосновый лес. На всю "западную сторону" есть идея сделать террасу. Посилання на коментар Поділитися на інших сайтах More sharing options...
Kysil Опубліковано: 19 листопада 2013 Поділитись Опубліковано: 19 листопада 2013 А мне как раз нравится проектное размещение гостинной и кухни Це класичне Г-подібне зонування "кухня-їдальня-вітальня". Тут нічого кращого не вигадаєш. Єдине слабке місце проекту - спільний балкон для двох кімнат. Якщо одна з цих кімнат майстер-спальня, а інша кабінет, тоді без питань. В усіх інших випадках виникне питання приватності. Посилання на коментар Поділитися на інших сайтах More sharing options...
Nneta Опубліковано: 19 листопада 2013 Автор Поділитись Опубліковано: 19 листопада 2013 Єдине слабке місце проекту - спільний балкон для двох кімнат. Якщо одна з цих кімнат майстер-спальня, а інша кабінет, тоді без питань. В усіх інших випадках виникне питання приватності. Вот на счет балкона я тоже очень думаю..... Лишний мостик холода, функционала - ноль. Стоит ли его вообще делать? Есть идея заменить его французским балконом с деревянными перилами "а-ля фахверк" + повесить красивые кашпо с цветами. Внизу будет терраса на всю западную стену. Поэтому вариант с французскими балкончиками будет, ни менее симпатичный и более рациональный. Как думаете? У меня еще сомнения на счет кол-ва мансардных окон. Делать их по проекту по два на каждую комнату или все же одного мансардного + 1-го фронтонного будет достаточно? Посилання на коментар Поділитися на інших сайтах More sharing options...
Zeland Опубліковано: 19 листопада 2013 Поділитись Опубліковано: 19 листопада 2013 Вот на счет балкона я тоже очень думаю. Если в доме есть курящие то балкончик лучше оставить)) Посилання на коментар Поділитися на інших сайтах More sharing options...
Nneta Опубліковано: 19 листопада 2013 Автор Поділитись Опубліковано: 19 листопада 2013 Если в доме есть курящие то балкончик лучше оставить)) Курящих в доме нет и НЕ БУДЕТ! Курению и пьянству бой 3 Посилання на коментар Поділитися на інших сайтах More sharing options...
Kysil Опубліковано: 19 листопада 2013 Поділитись Опубліковано: 19 листопада 2013 Вот на счет балкона я тоже очень думаю..... Лишний мостик холода, функционала - ноль. Стоит ли его вообще делать? Есть идея заменить его французским балконом с деревянными перилами "а-ля фахверк" + повесить красивые кашпо с цветами. Внизу будет терраса на всю западную стену. Поэтому вариант с французскими балкончиками будет, ни менее симпатичный и более рациональный. Как думаете? Підтримую. У меня еще сомнения на счет кол-ва мансардных окон. Делать их по проекту по два на каждую комнату или все же одного мансардного + 1-го фронтонного будет достаточно? Мансардні вікна це зло. Хоч і не абсолютне. Чим менше їх - тим краще. Посилання на коментар Поділитися на інших сайтах More sharing options...
Nneta Опубліковано: 27 листопада 2013 Автор Поділитись Опубліковано: 27 листопада 2013 Почему мансардные окна - зло? Криворукие мастера - да, это- зло. А если правильно установить, то проблем быть не должно. Вся Европа в мансардных окнах, сама жила в таком доме год. Одни плюсы. Меня вот в этом проекте еще смущает освещение лестницы. Если посмотреть на срез, то окошко там крохотное совсем и где-то на уровне коленки. Армопояс разрывать и делать скворешник совсем не хочется. Может лучше сделать мансардное над лестницей? Кто делал? Как оно мансардное окно над лестницей в эксплуатации? В частности - помыть, проветрить, открыть\закрыть..... Какие тут могут быть советы рекомендации? Посилання на коментар Поділитися на інших сайтах More sharing options...
Nneta Опубліковано: 18 грудня 2013 Автор Поділитись Опубліковано: 18 грудня 2013 Типа АП! Люди, неужели все так плохо в данном проекте, или так хорошо, что и комментировать нечего?:D Знающие товарищи, подскажите по моему последнему вопросу на счет оптимального кол-ва мансардных окон и в частности по мансардному окошку над лестницей. У кого такое есть? Как оно в эксплуатации? 1 Посилання на коментар Поділитися на інших сайтах More sharing options...
loader Опубліковано: 18 грудня 2013 Поділитись Опубліковано: 18 грудня 2013 (змінено) Знающие товарищи, подскажите по моему последнему вопросу на счет оптимального кол-ва мансардных окон и в частности по мансардному окошку над лестницей. У кого такое есть?У меня не было ни одного по плану, но крышник склонил делать как раз над лесницей.... Пока ничего не могу сказать т.к. крышу только начали. Змінено 18 грудня 2013 користувачем loader Посилання на коментар Поділитися на інших сайтах More sharing options...
Andrei constructor Опубліковано: 19 грудня 2013 Поділитись Опубліковано: 19 грудня 2013 Типа АП! Люди, неужели все так плохо в данном проекте, или так хорошо, что и комментировать нечего? Уже думал, что вы уже въехали . Месяц однако. Домик зачетный. Учтите рекомендации по улучшению. Поставьте одно окно в санузле. Есть окна-люки выхода на кровлю. 1 Посилання на коментар Поділитися на інших сайтах More sharing options...
abelor Опубліковано: 19 грудня 2013 Поділитись Опубліковано: 19 грудня 2013 Комментировать действительно нечего. Если Вам нравится "пятикомнатная квартира на земле", а именно такие проекты у "Архетона", "Архона", да и у нашего "Особняка" не лучше, тогда стройте. Я бы такое на земле не строила, так как в нем неуютно. Ну, это мое личное мнение практикующего архитектора, может быть и слишком искушенного в этом вопросе, что порой тоже не есть хорошо. Типа АП! Люди, неужели все так плохо в данном проекте, или так хорошо, что и комментировать нечего?:D Знающие товарищи, подскажите по моему последнему вопросу на счет оптимального кол-ва мансардных окон и в частности по мансардному окошку над лестницей. У кого такое есть? Как оно в эксплуатации? Посилання на коментар Поділитися на інших сайтах More sharing options...
Nneta Опубліковано: 16 січня 2014 Автор Поділитись Опубліковано: 16 січня 2014 Выношу на суд присяжных этот же проект, но уже с адаптацией под наши пожелания. Промежуточные варианты не выкладывала, так как не хотелось засорять тему кучей ненужных картинок. Буду признательна за свежий взгляд на итоговую версию. Очень надеемся, что мы все предусмотрели Посилання на коментар Поділитися на інших сайтах More sharing options...
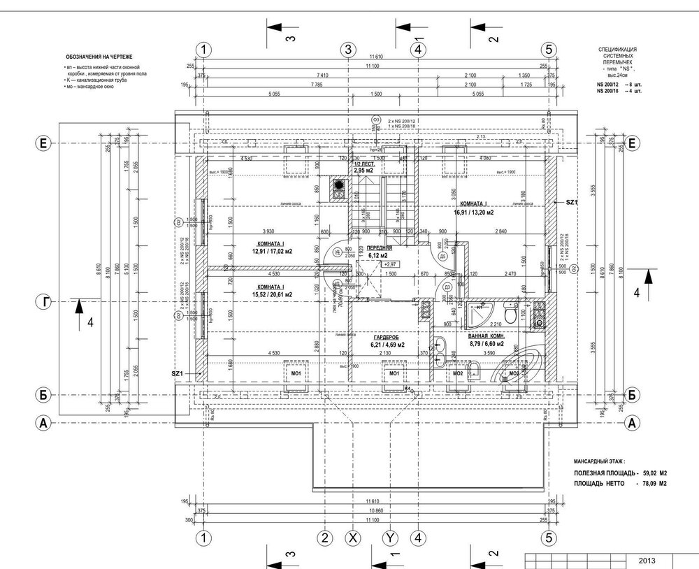
Kysil Опубліковано: 16 січня 2014 Поділитись Опубліковано: 16 січня 2014 Выношу на суд присяжных этот же проект, но уже с адаптацией под наши пожелания. Промежуточные варианты не выкладывала, так как не хотелось засорять тему кучей ненужных картинок. Буду признательна за свежий взгляд на итоговую версию. Очень надеемся, что мы все предусмотрели Загалом гут. Стіни між кімнатами на 2-му поверсі з чого будуть? Посилання на коментар Поділитися на інших сайтах More sharing options...
Nneta Опубліковано: 16 січня 2014 Автор Поділитись Опубліковано: 16 січня 2014 Загалом гут. Стіни між кімнатами на 2-му поверсі з чого будуть? Дякую за таку лакоічну відповідь :D Для внутрішніх перегородок будемо використовувати кирпич. Зовнішні стіни газоблок Д400 Посилання на коментар Поділитися на інших сайтах More sharing options...
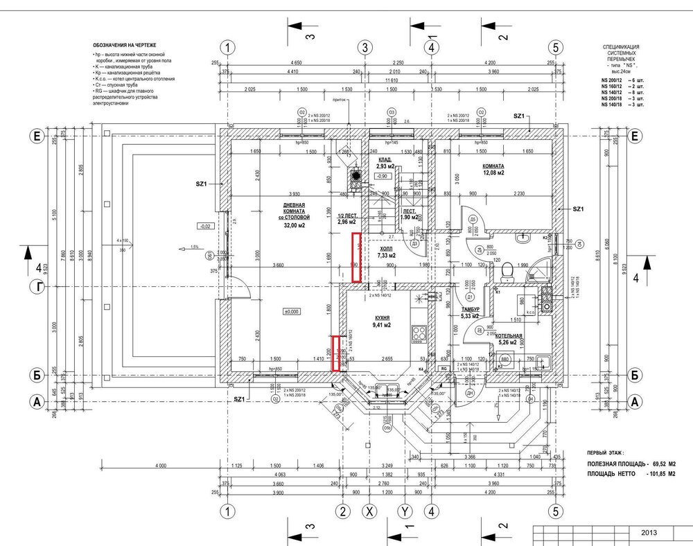
Nneta Опубліковано: 16 січня 2014 Автор Поділитись Опубліковано: 16 січня 2014 Почти на финальной стадии вылез еще один МИНУС адаптированного проекта: высота потолков первго этажа. Практически во всех польских проектах высота потолков в перделах 2,60-2,70. В Мартусе высота изначально была 2,70. Мы с этим согласились. И тут в финальном разговоре с архитектором выяснилось, что он по какой-то причине забыл, что мы оговаривали ложить териву на перекрытие вместо монолита и теперь при перерасчетах высота первого этажа сократилась на 5 см. Итого имеем 2,65 м от чистового пола. Либо все по новой пересчитывать, так как при увеличении высоты стен хотя бы на один блок поплывет весь проект, включая лестницу. И тут у меня родилась идея, а что если понизить уровень гостинной на одну ступеньку вниз? (мал.красным) Собственно, высота потолков для меня кртична только в гостинной. На кухне, котельной и коридоре пусть будет 2,65. В семье у нас великанов нет.:D Что вы думаете по данному решению? Посилання на коментар Поділитися на інших сайтах More sharing options...
Drosselbeere Опубліковано: 16 січня 2014 Поділитись Опубліковано: 16 січня 2014 Либо все по новой пересчитывать, так как при увеличении высоты стен хотя бы на один блок поплывет весь проект, включая лестницу.а что именно пересчитывать? отметки? лестницу? добавте ряд ГБ и не заморачивайтесь)))) если что поменяйте в ручную для себя и строителей отметки на чертежах И тут у меня родилась идея, а что если понизить уровень гостинной на одну ступеньку вниз? (мал.красным) Собственно, высота потолков для меня кртична только в гостинной. На кухне, котельной и коридоре пусть будет 2,65.единственное обратите внимание на фундамент и устройство полов, выход на терасу и расположение горизонтальной гидроизоляции 1 Посилання на коментар Поділитися на інших сайтах More sharing options...
Leon Опубліковано: 16 січня 2014 Поділитись Опубліковано: 16 січня 2014 если что поменяйте в ручную для себя и строителей Сергей, этой прямой путь дать строителям возможность фантазировать в свою пользу, а потом чуть что, они скажут: "Так в проекте так было..." Посилання на коментар Поділитися на інших сайтах More sharing options...
Drosselbeere Опубліковано: 16 січня 2014 Поділитись Опубліковано: 16 січня 2014 В любом случае правильно, что бы изменения внес автор проект, но я повторюсь, что можно с помощью коректтора и ручки все исправить , главное все это сделать до начала работ и тогда у строителей не будет повода фантазировать в свою пользу 1 Посилання на коментар Поділитися на інших сайтах More sharing options...
Kysil Опубліковано: 17 січня 2014 Поділитись Опубліковано: 17 січня 2014 Для внутрішніх перегородок будемо використовувати кирпич. Зовнішні стіни газоблок Д400 Мене, як аматора і ламера, цікавить, чи все буде гаразд з вашим перекриттям - під цегляною стіною над вітальнею. Посилання на коментар Поділитися на інших сайтах More sharing options...
Nneta Опубліковано: 17 січня 2014 Автор Поділитись Опубліковано: 17 січня 2014 Мене, як аматора і ламера, цікавить, чи все буде гаразд з вашим перекриттям - під цегляною стіною над вітальнею. Хм.....я не знаю. А що саме Вам здається неправильним? Буду вдячна за розгорнуту відповідь, бо саме для цього я й відкрила тему, щоб розуміючі люди ще в процесі проектування дали пораду, наголосили про можливі недоліки, прорахунки....... Ми запланували перекриття теріва. Всі розрахунки і адаптування до проекту робить архітектор з Архетону. Проект типовий, вже будувався в Польщі. Основні перегородки в кухні та біля сходів товщі - в 1 цеглу (24 см). Вони, як я розумію, являються несучими стінами для додаткової опори перекриття. Посилання на коментар Поділитися на інших сайтах More sharing options...
Термен Опубліковано: 17 січня 2014 Поділитись Опубліковано: 17 січня 2014 мы оговаривали ложить териву на перекрытие вместо монолита и теперь при перерасчетах высота первого этажа сократилась на 5 см. Итого имеем 2,65 м от чистового пола. Вы планируете не делать монолитный армирующий пояс? Посилання на коментар Поділитися на інших сайтах More sharing options...
Рекомендовані повідомлення
Створіть акаунт або увійдіть у нього для коментування
Ви маєте бути користувачем, щоб залишити коментар
Створити акаунт
Зареєструйтеся для отримання акаунта. Це просто!
Зареєструвати акаунтУвійти
Вже зареєстровані? Увійдіть тут.
Увійти зараз