Sumchanka Опубліковано: 8 січня 2014 Поділитись Опубліковано: 8 січня 2014 Поделюсь своим пирогом cтены: 1. газоблок Стоунлайн 600*400*200( D400) с пазами 2. воздушная прослойка 30-35 мм 3. клинкер "Керамейя" -120 мм в данном пироге была возможность съэкономить на материале: 1.газоблок - часть брали так называемый 2-й сорт- он значительно дешевле 1-го, шел в основном на места,где нужно было подрезать... Отличие между 1-м и 2-м сортом - незначительные сколы(такие могут быть и при транспортировке), на блоке были наметки среза(глубина наметки 0,2-0,3 см), отклонения геометрии незначительные( у некоторых производителей такие отклонения не учитываются)- конкретного боя не было - в палетах где 1,92 м.куб если и был , то 1-2 шт негодных... Еще совет- если будете брать газоблок(да и не только)- берите напрямую у диллеров заводов- так проще решить, не дай бог, проблемы... 3. клинкер - так как завод производитель находится в нашем городе, была возможность также взять клинкер уцененный(выбирала сама на заводе)- внешний вид достойный, кирпич по характеристикам плотности как у 1-го сорта, немного разница по геометрии, кое-где были сколы, но они были либо с внутренней стороны кирпича , либо шли в подрезку... Цена вопроса - почти в 2 раза дешевле,чем 1-й сорт Делали, как у Вас на схеме- нависающий фасад. Не забудьте связать блок и кирпич, установить вентиляционные коробочки(или сделать вент .шов), сразу продумать оконные проемы для последующей установки окон, блок обязательно в необходимых рядах армировать, вообщем сразу делать "как правильно". Удачи! Посилання на коментар Поділитися на інших сайтах More sharing options...
Ger@ Опубліковано: 8 січня 2014 Автор Поділитись Опубліковано: 8 січня 2014 А вы ведь затевались с клинкером только из-за внешнего вида? Та да, больно нравилась задумка дизайнера, но поездив по новостройкам, посмотрев и подсмотрев за процессом, пообщавшись с людьми, и не только знакомыми, решил остановиться на проектном газоблоке плюс фасад из облицовочного, только плотность облицовочного не меньше 200, гараж наверное все-таки увеличу немного (около 30см) и в бой. Фундамент само собой пересчитать. Сейчас что-то посетила мысля бытовки, нужна она, скорее всего да, инструмент положить, прочее. И вот задумался, купить б/у или самому смастерить? К б/у душа как-то не лежит вообще( та и цены на б/у я Вам скажу..... Вспомнить молодость, в далеком 96 - 97 призовые места брал по обработке дерева, плюс авиамоделирование, автомоделирование, все из дерева.... Надо будет прикинуть чертежик. Посилання на коментар Поділитися на інших сайтах More sharing options...
Ger@ Опубліковано: 9 січня 2014 Автор Поділитись Опубліковано: 9 січня 2014 Поделюсь своим пирогом cтены: 1. газоблок Стоунлайн 600*400*200( D400) с пазами 2. воздушная прослойка 30-35 мм 3. клинкер "Керамейя" -120 мм ........, вообщем сразу делать "как правильно". Удачи! Да, именно такой будет пирог стены. Спасибо, удача понадобится. 1 Посилання на коментар Поділитися на інших сайтах More sharing options...
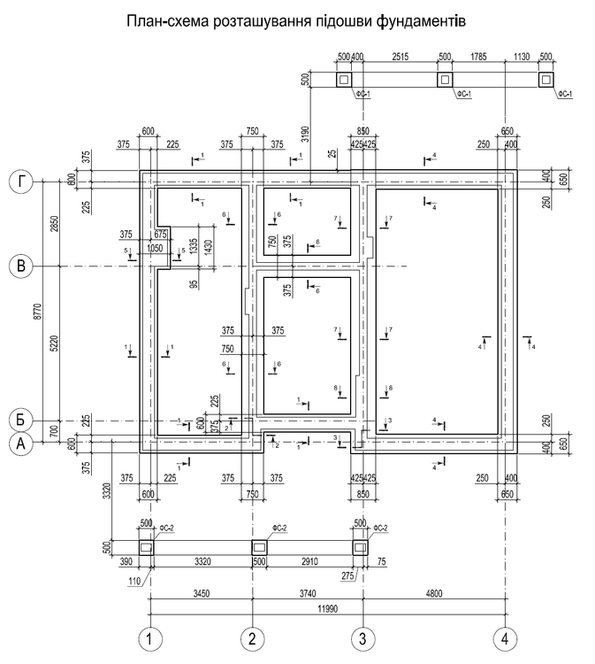
Drosselbeere Опубліковано: 9 січня 2014 Поділитись Опубліковано: 9 січня 2014 Теперь нарисовался вопрос по фундаменту. а если точно по его ширине. выложите сечение по фундаменту из вашего проекта. ширина цокольной части может остаться без изменений единственное необходимо правильно откорректировать общие размеры, осевые привязки и тд, а так же пересмотреть ширину ленты фундамента, замена материала и конструкции стены несет за собой смену нагрузок на основание. Я так подозреваю его надо ложить с выступом, нормально ли будет выступ 20 мм? вполне достаточно, единственное что не нравится в данном узле, так это нет возможности нормально выполнить наружное утепление цоколя Посилання на коментар Поділитися на інших сайтах More sharing options...
blacktigra Опубліковано: 9 січня 2014 Поділитись Опубліковано: 9 січня 2014 Ger@, я просто к чему спросил - вид у БЦ кирпича будет совсем не такой как у вас на картинке. Черного ведь у них нет. Черный есть у Roben, CRH. Да, будет, конечно, дороже, но у дома появится изюминка. Посилання на коментар Поділитися на інших сайтах More sharing options...
Ger@ Опубліковано: 9 січня 2014 Автор Поділитись Опубліковано: 9 січня 2014 Ger@, я просто к чему спросил - вид у БЦ кирпича будет совсем не такой как у вас на картинке. Черного ведь у них нет. Черный есть у Roben, CRH. Да, будет, конечно, дороже, но у дома появится изюминка. Я уже смирился с отсутствием изюминки, и буду делать как у всех на улице (имею в виду на улице где я буду строиться), уже почти все построенны, кроме как пару участков, а у всех белая церьков облицовочный. Я даже было чуть не купил керамею (30-го) перед новым годом по акции, да потом манагер мне не потравился, пытался мне втулить по старой цене (на 1 грн. шт. дороже, а у мну более 11кшт), мол все акции нету, но при нем звоню на керамею уточняю цену, попускаю его (а они офф дилеры), говорю что с таким подходом к покупателю покупать не буду, так и не купил. буду все постепенно и по очереди. пока смотрю в сторону БЦ М250 Янтарный, после заливки фундамента буду более детально анализировать цены и цвет. Посилання на коментар Поділитися на інших сайтах More sharing options...
Ger@ Опубліковано: 9 січня 2014 Автор Поділитись Опубліковано: 9 січня 2014 выложите сечение по фундаменту из вашего проекта. ширина цокольной части может остаться без изменений единственное необходимо правильно откорректировать общие размеры, осевые привязки и тд, а так же пересмотреть ширину ленты фундамента, замена материала и конструкции стены несет за собой смену нагрузок на основание. вполне достаточно, единственное что не нравится в данном узле, так это нет возможности нормально выполнить наружное утепление цоколя Ширину ленты надо менять, потому как она была ранее 400 мм, и можно поподробнее касательно исполнения стены фундамента цоколя, а менно его его утепления. Спасибо. ХМ. только заметил, исходя из разреза 1-1 то ранее цоколя небыло(( Посилання на коментар Поділитися на інших сайтах More sharing options...
Drosselbeere Опубліковано: 9 січня 2014 Поділитись Опубліковано: 9 січня 2014 Ширину ленты надо менять, лента у вас разная мин 600 макс 850 не считая выступа под камин можно поподробнее касательно исполнения стены фундамента цоколя толщина стен фундамента у вас будет не 400, а 500 мм и в некоторых местах можно уменьшить до 450, если уж сильно хочется уменьшить кол. бетона. менно его его утепления в вашем случае делать внутреннее утепление или выступающий цоколь. еще мне не нравится высота цоколя в вашем проекте, так же две ступени на входе. Ger@, вы делали геологию? какие у вас грунты, под какое расчетное сопротивление грунта запроектирован ваш фундамент, в проекте должно быть указано Посилання на коментар Поділитися на інших сайтах More sharing options...
Ger@ Опубліковано: 9 січня 2014 Автор Поділитись Опубліковано: 9 січня 2014 лента у вас разная мин 600 макс 850 не считая выступа под камин Я честно говоря думал что лента и подошва разные вещи, по проекту на разрезе 1-1 видно подошву она размером 600 мм. (в других местах 850)и потом стена фундамента она 400 мм поскольку газоблок 400мм. Все соседи, да и в принципе большинство по Борисполю копают в земле углубление на 1м, ширина ленты (стены) фундамента исходя из пирога стены, после чего заливают ее, потом через некоторое время делают опалубку и заливают цоколь. Арматура на всех этапах. В два залива (этапа). Я хочу немного сделать по другому вот мне понравился вариант Но в любом случае буду делать без подушки такой как на разрезе 1-1. Заливать планирую по возможности в одну заливку, всю оплубку (или может получится ее часть) сразу в траншею, копать будем семейно-кумовским подрядом с участием строителя, арматуру закажу готовую повареную, трамбовать подсыпку, заливать будут строители. схематически задумка выглядит так. ПС. Сори я не художник как смог так и нарисовал )) Метр в глубину, пол метра в высоту. По ширине посоветуйте пожалуйста, так что-бы сразу гидроизоляцию и утеплитель по наруже бросить. в вашем случае делать внутреннее утепление или выступающий цоколь. еще мне не нравится высота цоколя в вашем проекте, так же две ступени на входе. Зачем внутренее утепление?, цоколь да, был маловат, подымаем до 500 мм. и что не то с двумя ступенями? Ger@, вы делали геологию? какие у вас грунты, под какое расчетное сопротивление грунта запроектирован ваш фундамент, в проекте должно быть указано Нет геологию я не делал, у нас на улице самое высокое место в Борисполе, соседи копали подвалы, ямы, колодцы - водой даже не пахло, вода в скважыне на 10-12 метрах от уровня земли. Пол метра грунта далее сулгинок. Посилання на коментар Поділитися на інших сайтах More sharing options...
Drosselbeere Опубліковано: 9 січня 2014 Поділитись Опубліковано: 9 січня 2014 Ger@, на счет ширины ленты я не понял вас, то есть что вы не будете делать подушку. на счет высоты будьте внимательно, 500 от земли это будет уровень чистого пола или же только фундамента + еще 150-180 мм утеплитель и конструкция пола. Арматуру можно повязать по месту, сложного не чего нет))) 1 Посилання на коментар Поділитися на інших сайтах More sharing options...
Ger@ Опубліковано: 9 січня 2014 Автор Поділитись Опубліковано: 9 січня 2014 Ger@, на счет ширины ленты я не понял вас, то есть что вы не будете делать подушку. на счет высоты будьте внимательно, 500 от земли это будет уровень чистого пола или же только фундамента + еще 150-180 мм утеплитель и конструкция пола. Арматуру можно повязать по месту, сложного не чего нет))) Сорри, я не правильно написал, имелось в виду без подошвы. Завтра попробую изобразить на бумаге. Посилання на коментар Поділитися на інших сайтах More sharing options...
Ger@ Опубліковано: 10 лютого 2014 Автор Поділитись Опубліковано: 10 лютого 2014 Добрый вечер Немного был отвлекся от темы стройки с переключением на работу, потихоньку возвращаюсь к вопросу постройки, блин вчера даже заснуть не мог мысли как поперли :D еле уснул. Все никак не могу выбросить из головы изначальную задумку дизайнера о картинке фасада, освежу фоточкой. На днях наткнулся на вентилируемые фасады сканрок и (или) клинкерстоун, есть еще масса других производителей, курил пока этого, есть много инфы тут и на дружественном форумхаусе, вроде как и нормуль, но реально сам пока в живую не видел и не щупал что это за штука. Задался вопросом к представителю, он не далеко от офиса, жду ответа, но при хорошем раскладе впарить можно все что угодно потому и не сдержался что-бы услышать Ваше немаловажное для меня мнение. По ходу дела я смогу оставить фундамент согласно проекту 400 мм. как и в проекте (выбросить из головы задумку облицовочного кирпича и ленты фундамента 500мм), построить коробку из 400-го газоблока который можно и не утеплять, накрыть коробку крышей, возможно поставить окна и двери - программа минимум на 2014 год. А уже в 2015 (или в любое другое время, даже зимой) установить этот фасад. Фундамента для него не надо, но умну вопрос выдержит ли стена из газоблока такую конструкцию? Также думаю что скорее всего 400-й газоблок можно не утеплять как показано на картинке производителя фасада, не использовать горизонтальные направляющие, не использовать утеплитель, смонтировать вертикальные направляющие на них камень, и вроде как должно получиться зачетненько. Хотя с другой стороны можно и утеплить, лишним точно не будет. (%D1%81%D1%81%D1%8B%D0%BB%D0%BA%D0%B0%20%D0%BD%D0%B0%20%D0%B8%D0%B7%D0%BE%D0%B1%D1%80%D0%B0%D0%B6%D0%B5%D0%BD%D0%B8%D0%B5%20%D1%83%D1%81%D1%82%D0%B0%D1%80%D0%B5%D0%BB%D0%B0) Ребят, нужен Ваш совет по этому фасаду, может кто сталкивался, может у кого уже установлен, интересуют отзывы. Читал что со временем 2-3 года тускнеет, кто-то говорит что плохо моется, другие говорят о множестве плюсов, можно самому без усилий заменить поврежденный камень, множество вариантов дизайнерских-архитектурных решений, выбор цветовой гаммы, прочее. Я уверен что с этим материалом будет соблюдена паропроницаемость газоблоков, и не мало важно возможность добиться архитектурного решения как на картинке, пускай не на все 100% но очень близко, хотя может и оооочень близко если все грамотно сделать и обдумать. 1 Посилання на коментар Поділитися на інших сайтах More sharing options...
Drosselbeere Опубліковано: 10 лютого 2014 Поділитись Опубліковано: 10 лютого 2014 Ger@, расмотрите фиброцементные панели ничиха, если интересно вентилируемые фасады 2 Посилання на коментар Поділитися на інших сайтах More sharing options...
Ger@ Опубліковано: 10 лютого 2014 Автор Поділитись Опубліковано: 10 лютого 2014 Ger@, расмотрите фиброцементные панели ничиха, если интересно вентилируемые фасады О! так это.. тут и цвета вроде поинтереснее и .... бегло полистав фото галерею мне пока больше нравится, изучаю. Спасибо за наводку Добавлено через 38 минут О! так это.. изучаю. Че то либо руки кривые, либо действительно траблы со швами, накладки на углах - как то не то пальто тыц хотя на рус. сайте представителя все очень даже красиво тыц Посилання на коментар Поділитися на інших сайтах More sharing options...
Ger@ Опубліковано: 10 лютого 2014 Автор Поділитись Опубліковано: 10 лютого 2014 Нееее..., мне как-то более нравится сканрок или марморок, вот кстати нашел фото схожого дома, фасад из марморока. Хотя не исключаю вариант комбинации сканрока (марморока) и ничихи (или аналоги). сканрок внизу, фиброцементные плиты (у них более богатая фактура для решения верхней части) - вверху. Посилання на коментар Поділитися на інших сайтах More sharing options...
Linelka Опубліковано: 11 лютого 2014 Поділитись Опубліковано: 11 лютого 2014 У нас сканроком отделаны трубы... в фасад тоже планируем вставлять... на трубах смотрится классно, да и работать с ним не сложно. Обшивали трубы сами. Хотим еще столбики на забор им обшить, дорого конечно но пока в планах есть. Посилання на коментар Поділитися на інших сайтах More sharing options...
Sumchanka Опубліковано: 11 лютого 2014 Поділитись Опубліковано: 11 лютого 2014 Прошу прощения у ТС, но хочу сразу спросить: Linelka, а дымники на трубах из чего: по фото- каркас из уголка и квадрата? а накрыто чем -просто металл? и расстояние от трубы до нижнего и верхнего края дымника какое? Сейчас мучаюсь - нужно ставить, а вся в непонятках ... Посилання на коментар Поділитися на інших сайтах More sharing options...
Linelka Опубліковано: 11 лютого 2014 Поділитись Опубліковано: 11 лютого 2014 (змінено) Дымники делали сами... варили и гнули из квадрата красили тоже сами... все по собственным задумкам и чертежам. Метал которым накрыты сами дымники заказывали у изготовителя метало черепицы и поясок которым сканрок обвит тоже там. А вот по расстоянию точно не помню, но знаю что крышники советовали немного по нормам поднять края, мы не согласились они обещали если при эксплуатации будут проблемы потом можно исправить. Вот фото в процессе может тут понятнее... Прошу прощения у Т С что в его теме Змінено 11 лютого 2014 користувачем Linelka 3 Посилання на коментар Поділитися на інших сайтах More sharing options...
Ger@ Опубліковано: 15 лютого 2014 Автор Поділитись Опубліковано: 15 лютого 2014 (змінено) Нееее..., мне как-то более нравится сканрок или марморок,... Забираю свои слова обратно. Вживую посмотрел на оба материала, и есть у мну некоторые сомнения касательно сканрока, забьется он мне кажется пылью очень быстро, ничиха оказалась вовсе не пластмассовой, внешне очень даже ничего, на ощупь схоже к камню, конечно не камень, но красиво. И разнообразие цветов и фактур у ничихи куда получше чем допустим у сканрока. Да есть минус - вертикальный шов, который нужен для компенсации линейных расширений, но я так думаю что учитывая что у меня будет несколько видов фактур и сочетаний, то можно минимизировать эти стыки на большом участке стены, и все верт. швы максимально перенести под окна, там площадь стены меньше, и визуально шов будет виден меньше. Думаю очень даже самое оно. Фундамент решил не изменять, оставить согласно проекта, осталось только определиться с наружными стенами, керамоблок 44-й (или 38-й) или газоблок 400мм марки Д400. Блин как начнешь вникать что лучше - голова кругом идет. А вот если смотреть с точки зрения крепления вент фасада, и всей системы обрешетки, с использованием дюбелей, хим анкеров, для крепления этой обрешетки, как Вы думаете какая стена лучше, из газоблока или керамоблока? Заранее благодарен за отзывы и помощь в выборе и обсуждении. Змінено 15 лютого 2014 користувачем Ger@ Посилання на коментар Поділитися на інших сайтах More sharing options...
Ger@ Опубліковано: 10 березня 2014 Автор Поділитись Опубліковано: 10 березня 2014 Сегодня начал с туалета Вырыл яму, обустроил ее слегка чтобы не обваливалась внутрь, Стены, двери, на крышу времени не хватило, доделаю на следующих выходных. Доволен как слон, не смотря на то что очень давно такими работами не занимался. А самое главное сам, давно руки чесались. Усталый и довольный, пойду-ка я отмечу это дело бокальчиком коньячка! 1 Посилання на коментар Поділитися на інших сайтах More sharing options...
Шаркер Опубліковано: 10 березня 2014 Поділитись Опубліковано: 10 березня 2014 Ger@, расмотрите фиброцементные панели ничиха, если интересно вентилируемые фасады Тоже достаточно долго планировали вентфасад. Проработали массу вариантов, и выбрали собственно из производителей - "Ничиху". Но, разобравшись собственно в том, что от "полосочек" - стыки панелей - не уйти, и я точно не хочу их видеть - было принято решение отделывать фасад штукатуркой. Кстати денег "ничихино" удовольствие стоит тоже нормально. На мой объем - это около 280 м.кв., посчитано было что-то около 16-18 к. денег. Я даже прорабатывал вариант купить у них напрямую и самому "затянуть" в страну. Но потом передумал, так что считайте. Удачи. 1 Посилання на коментар Поділитися на інших сайтах More sharing options...
Ger@ Опубліковано: 15 березня 2014 Автор Поділитись Опубліковано: 15 березня 2014 Тоже достаточно долго планировали вентфасад. Проработали массу вариантов, и выбрали собственно из производителей - "Ничиху". Но, разобравшись собственно в том, что от "полосочек" - стыки панелей - не уйти, и я точно не хочу их видеть - было принято решение отделывать фасад штукатуркой. Кстати денег "ничихино" удовольствие стоит тоже нормально. На мой объем - это около 280 м.кв., посчитано было что-то около 16-18 к. денег. Я даже прорабатывал вариант купить у них напрямую и самому "затянуть" в страну. Но потом передумал, так что считайте. Удачи. Я с Вами полностью согласен, и может быть посмотрю в сторону кирпича - клинкера, при этом не отходя от изначальной картинки, кирпича у мну где-то 60-65% от 220 м2 площади наружных стен, и на этот объем кирпича - клинкера вроде не так уж и затратно, всего-то зажать поясок потуже, потерпеть малость, и построить так как душа просит. Фигня на данный момент только в одном - бабло и бл*дская ситуация...... (сори за прямоту) думаю продолжать тему ситуации безсмыслено, и так всем все видно. Зато продолжил строение тубзика , как на меня очень даже ничего получилось, как для "временного" туалета, осталось только маленький штрих - вырезать дырку, на участке еще нету электричества, а без лобзика никак, забрал на склад верхушку сидушки для вырезать дырку под сидушку. Некоторые соседи молча завидуют, шутка, в основном говорят зачем такой капитальный с расчета только на стройку? А кто его знает на сколько затянется......... надеемся на лучшее, да и не привык я делать халтуру, даже на время, как себе так и Людям! ПС. за идею этого тубзика Огромное спасибо Oleg8510 идея была позаимствована именно с его ветки www.stroimdom.com.ua/forum/showpost.php?p=2210578&postcount=19 1 Посилання на коментар Поділитися на інших сайтах More sharing options...
Ger@ Опубліковано: 22 березня 2014 Автор Поділитись Опубліковано: 22 березня 2014 Вчора трошки попрацював на складі над "кріслом" На днях поставлю на місце. 1 Посилання на коментар Поділитися на інших сайтах More sharing options...
Ger@ Опубліковано: 23 березня 2014 Автор Поділитись Опубліковано: 23 березня 2014 Сьогодні завершив з туалетом. Наступний крок - фундамент. Хоча зараз собі знову весь мозок виніс стосовно підвалу. З онієї сторони розумію що потрібен погреб, а додаткових споруд на ділянці не планую, хіба-що баня. Рвати фундамент на дві частини з підвалом та без підвалу - дурня, зробити стрічковий фундамент а потім під гаражом зробити погреб(менших розмірів ніж розмір гаражу) - та чи не буду потім собі кусати локті що не зробив повноцінний підвал? А ще з іншої сторони розумію що підвальне приміщення в тій частині (якшо робити підвал під всім будинком) де наприклад буде кінозал або аналогічне приміщення потрібно буде опалювати, то чи не буде таке опалення пагубним для приміщення в якому будуть зберігатися консервація та якісь мінімальні запаси картошки моркви.. інше. От і стою над питанням бути чи не бути................. Посилання на коментар Поділитися на інших сайтах More sharing options...
serg9 Опубліковано: 6 квітня 2014 Поділитись Опубліковано: 6 квітня 2014 туалет получився на славу. фундаментальна споруда про каркас арматури для фундаменту - я читав, що арматуру зварювати не можна ні в якому разі, тільки в"язати. зварка позбавляє конструкцію еластичності. 1 Посилання на коментар Поділитися на інших сайтах More sharing options...
Рекомендовані повідомлення
Створіть акаунт або увійдіть у нього для коментування
Ви маєте бути користувачем, щоб залишити коментар
Створити акаунт
Зареєструйтеся для отримання акаунта. Це просто!
Зареєструвати акаунтУвійти
Вже зареєстровані? Увійдіть тут.
Увійти зараз