InSAn Опубліковано: 20 січня 2014 Поділитись Опубліковано: 20 січня 2014 Друзья, посоветуйте нормальное оборудования для организации стабильной высокоскоростной домашней сети. Краткая вводная: интернет от Фрештела - роутер с Wi-Fi (но Wi-Fi отключил по причине постоянной глючности). Он используется только как внешний модем - подключен роутер Д-Линк, который и раздает сеть. Хочу заменить этот Д-Линк (не менее глючный) на что-то нормальное (Mikrotik, Ubiquiti) а на этажах установить Wi-Fi-репитеры (шнурки к местам установки репитеров проложены). На форуме в какой-то из тем уже советовали оборудование для такой организации сети, но не могу найти тему Добавлено через 25 минут Забыл добавить - хочу организовать два SSID (рабочий и гостевой). Смотрю на точку доступа от Ubiquiti - UniFi. Кто может рассказать о плюсах и минусах? И какой роутер посоветуете? Посилання на коментар Поділитися на інших сайтах More sharing options...
ticon Опубліковано: 20 січня 2014 Поділитись Опубліковано: 20 січня 2014 У меня для домашнего использования установлен Mikrotik 751U-2HnD аптайма 280 дней и то по причине обновления прошивки. Установлен при входе в квартиру. Покрывает уверенно 2-шку. В комплекте нет внешней антенны (коннектор есть). Можно практически использовать из коробки. Документации по настройке много, в том числе и русскоязычной. У него есть 1usb. На форумах пишут, что может работать с usb модемами. Но предварительно нужно уточнить список совместимых модемов. Как я понял есть заморочки с модемами у которых нельзя отключить встроенную флешку. 1 Посилання на коментар Поділитися на інших сайтах More sharing options...
toksoft Опубліковано: 20 січня 2014 Поділитись Опубліковано: 20 січня 2014 Я поставил ASUS RT-N66U. 2,4/5gHz. На чердаке. Неотапливаемом. Раздает нормально, постоянно в коннекте 5 устройств, на одно заливал торренты, в качестве экперимента,- не тормозит. На телевизоры путем DLNA раздаются фильмы с битрейтом ~8mbps. Торрентам не мешает. Если еще к нему в комплекте взять егошный ASUS адаптер (я взял USB), то link в доме будет от 135 до 450 mbit/s. Без "родного" адаптера и, соотв. поддержки multilink клиентом, 135 - 150 mbit/s. За пределами дома,- прием в радиусе 75-100м (2,4). На границе,- 10-20 mbit/s, потом резко рвет. Это кстати в доме. В городе, в квартире не тестировал. Прошивка - последняя стоковая. Зависаний не замечено. uptime (после последней перезагрузки, когда электричество кончилось на ~5 часов, и UPS не удержал),- 6 дней. Гостевые сети есть для 2,4 и 5. По 3 штуки на каждый диапазон. Полностью изолированные. Шейпера для гостевых сетей к сожалению нет. Греется не сильно, что будет летом пока не знаю, но сам роутер в боксе с 2мя Noktua винтиляторами, и датчиком температуры, который их должен запускать. 1 Посилання на коментар Поділитися на інших сайтах More sharing options...
uafisher Опубліковано: 20 січня 2014 Поділитись Опубліковано: 20 січня 2014 на этажах установить Wi-Fi-репитеры (шнурки к местам установки репитеров проложены). Добавлено через 25 минут Забыл добавить - хочу организовать два SSID (рабочий и гостевой). Смотрю на точку доступа от Ubiquiti - UniFi. Кто может рассказать о плюсах и минусах? И какой роутер посоветуете? Если репитеры - то шнурки не нужны, но скорость падает. Если есть шнурки - то ставим как АР. А Юнифай классная штука - позволяет организовать бесшовный роуминг. При этом за относительно вменяемые деньги. А на счёт роутеров - лично меня Asus очень разочаровывает, в последнее время.. Микротики вроде ничего, Драйтек нравится, Линксисы - неплохо, но имхо цена завышена. Кстати говоря очень нравиться ТП Линк - недорого и сердито.. Реально. И поддержка неплохая есть. 2 Посилання на коментар Поділитися на інших сайтах More sharing options...
bampo Опубліковано: 20 січня 2014 Поділитись Опубліковано: 20 січня 2014 поставил Asus RT-AC56U, позволяет разграничить доступ(рабочий, гостевой), мощности(регулируемая) хватает покрыть весь участок 22мх50м, двух-диапазонный 2,4;5мГц, на ближайшее будущее, думаю, хватит. Посилання на коментар Поділитися на інших сайтах More sharing options...
toksoft Опубліковано: 20 січня 2014 Поділитись Опубліковано: 20 січня 2014 Лучше конечно со шнурками,- только вот если уже все сделано, и либо шнурков не хватает, либо вообще нет ? Тогда имеет смысл по воздуху. Репитеры это последнее средство,- когда совсем выхода нет. Почему ? Bandwidth съедают и latency добавляют. Очень показательный тест,- это взять пару Hdrip фильмов (высокий bitrate), и по воздуху зарядить их на пару телевизоров. Параллельно можно еще посерфить и поторрентить. Все сразу станет на свои места. Лучше все-таки использовать один WIFI маршрутизатор, установив его в наиболее возвышенной точке дома. Можно добавить внешние антенны, и поднять мощность передатчика (у большинства маршрутизаторов эта скорость кстати регулируется без Вашего участия,- Вы только ограничиваете max уровень). С трудом себе представляю целесообразность бесшовного роуминга для частного дома. Прощадь более гектара что ли, с 0.5м+ бетонными стенами ? Моя оценка касательно 75-100м подразумевает что мой ASUS находится на высоте ~7м над уровнем земли, за кирпичной стеной, с внешними антеннами не заморачивался,- 100mBit+ уверенно есть по всем этажам. Плотность застройки правда небольшая (участки от 10 до 20 соток), и высотных домов нет. ASUS я выбирал по причине дальнобойности, air radar (работает кстати), и по причине нагрева приемно/передающих трактов. Летом будут продуваться вентиляторами, а зимой поддерживать приемлимую температуру в боксе (обычный электрощиток на 48 позиций, вентиляционные отверстия закрытые тонкой сеткой внизу, 2 80ки вентилятора вверху, термостат на включение рядом с 5gHz передатчиком,- возле корпуса). 400+ открытых TCP сессий, да еще и за NATом, меня более чем устраивают, а там ведь еще и UDP стримы есть... Интерфейс командной строки кстати при этом не тормозит. Загрузка по top - более 60% не замечал. Температура каждого из модулей (wl -i), колеблется от 52 до 65 градусов цельсия (x/2+20). Можно кстати и микротик,- разницы особой я думаю не будет, только вот когда рылся выбирал, первым на глаза попался ASUS. Посилання на коментар Поділитися на інших сайтах More sharing options...
InSAn Опубліковано: 20 січня 2014 Автор Поділитись Опубліковано: 20 січня 2014 ставим как АР Это как ? Посилання на коментар Поділитися на інших сайтах More sharing options...
uafisher Опубліковано: 21 січня 2014 Поділитись Опубліковано: 21 січня 2014 Это как ? Как точку доступа (Access Point). Витуху от роутера тянем к точке доступа, ДШСП на ней отключаем - получаем (грубо говоря) Wi-fi антенны, подсоединённые к роутеру. Размещаем их в нужных местах - получаем нужное покрытие без потери скорости как с репитерами. Хотя если скорость максимальная будет только от Фрештел, то в таком случае не критично. Но на скорости внутрисетевого обмена это повлиять может. Да и на будущее плюс надёжность лучше вместо обычных репитеров устанавливать точки доступа (но Юнифай я всё равно очень уважаю ) В любом случае (не важно запускать репитера или точки доступа) остаётся вопрос подбора оборудования для обеспечения: 1. Гостевой сети, а также 2. Возможности вещать одновременно (а не на выбор) в 2 диапазонах (2,4 и 5ГГц). Моё ИМХО. Принципиальный смысл в 5 ГГц для частного дома мне не очень понятен... Многоэтажка с 50 соседними точками/девайсами это одно, а частный дом обычно таких помех не испытывает, да и не все клиентские устройства работают на 5 ГГц. Если очень много будет устройств дома, то тогда подразгрузить сеть таким образом конечно вариант. Добавлено через 17 минут С трудом себе представляю целесообразность бесшовного роуминга для частного дома. Прощадь более гектара что ли, с 0.5м+ бетонными стенами ? Это кому как-какие требования и задачи А стены 0,5 м. и не обязательны для переключения клиента между точками. Хотя Юнифай именно полностью нулевой роуминг не делает вроде всё равно, но очень близко, SIP вроде не страдает.. 1 Посилання на коментар Поділитися на інших сайтах More sharing options...
toksoft Опубліковано: 21 січня 2014 Поділитись Опубліковано: 21 січня 2014 То есть каждая точка,- независима€ AP ? забьете радиодиапазон, особенно на границах, где будут присутствовать сигналы от нескольких точек. "Широких" каналов, на которых можно использовать всю полосу (с MIMO например) кажется 4. То есть 4 точки, с разными SSIDами, и все,- после этого полоса только 20, а не 40. ј если еще сосед или 2 пойдут по аналогичному пути ? ќбратите внимание на то, что 2,4 - самый "дальнобойный". 5 - менее. AC (2.4+5)- вообще, по дальности сравним с bluetooth, и может рассматриватьс€ грубо говор€ в пределах 1й комнаты. я думаю сейчас уже проблема найти маршрутизатор, который работает либо на 2.4, либо на 5. ќбычно сразу на 2х, причем один или оба сразу можно отключить. ” моего старенького Zyxel (RT какой-то) есть крайне полезнай функция,- шейпер (ограничитель скорости) дл€ гостевых сетей. “акого в современных WiFi машрутизаторах не нашел (Cisco и прочие industrial solutions не рассматриваем). ≈сли мы говорим о VoIP (h323, SIP, ...), то переход между точками тоже как-бы не актуален, если ¬ы конечно не горите желанием построить подобие GSM сети на WiFi внутри дома. *ак правило, дл€ дома, площадью ~400 квадратов, и этажностью 3, вполне хватает обычного 2х диапазонного WiFi маршрутизатора, с докупленными выносными антеннами, и поддерживающего MIMO. ћожно установить например на 2м этаже, ну или на 3м. «ависит от задач. ≈сли хотим захватить большую площадь,- то на 3м. ≈сли обеспечить максимально качественный сигнал в самом доме, с учетом например жб стен,- можно на 2м. я понимаю, что переключением можно управл€ть программно, равно как и мер€ть уровень сигнала, потери пакетов, ...,- но слабо представл€ю себе реализацию и практическое применение такой схемы, как для дома. 1 Посилання на коментар Поділитися на інших сайтах More sharing options...
InSAn Опубліковано: 21 січня 2014 Автор Поділитись Опубліковано: 21 січня 2014 вполне хватает обычного 2х диапазонного WiFi маршрутизатора, с докупленными выносными антеннами, и поддерживающего MIMO. Например ? Посилання на коментар Поділитися на інших сайтах More sharing options...
toksoft Опубліковано: 21 січня 2014 Поділитись Опубліковано: 21 січня 2014 Например ? Я уже писал,- я выбрал ASUS. Сначала планировал подключить внешние антенны вместо комплектных,- но оказалось не нужно. Наблюдал у друзей пару Kineticов (Zyxel которые), по моделям не помню, помню только что у одного точно были гигабитные порты,- не впечатлили. С настройками не игрался, но наблюдал на телевизоре (тоже через DLNA) на фильме периодическую заставку "loading", и это через стену,- гипс кажется, или может четверть кирпича. Может какие другие причины были, но осадок остался. С Android телефона метров 20 от дома кажется было 30 с чемто, или даже 54 попугая (скорость связи), так что если честно, то моя оценка субъективна. dlink сгорел когда-то давно, причем в самый неподходящий момент,- зарекся. А больше как-бы вибирать особо не из чего было. В плане доступного на рынке, чтобы значит если из него пойдет синий дым,- просто поехать и купить например точно такой-же, а не рыскать по интернету и/или по городу. Мое мнение,- ищите какой Вам понравится, у которого не менее 3х антенн и поддержка 2х диапазонов (2.4 и 5). Думаю выбор будет среди 2х или 3х моделей,- а там уже как душа попросит и кошелек сожмется. Посилання на коментар Поділитися на інших сайтах More sharing options...
Crazy Опубліковано: 22 січня 2014 Поділитись Опубліковано: 22 січня 2014 поддержка 2х диапазонов Зачем в чистом поле понты InSAn вы бы схемку дом/пользователи набросали - тогда было бы проще что-то посоветовать. А так, каждый под себя (свои буйные фантазии) советует :D. Может достаточно поиграться с настройками того, что у вас есть (длинк прошить другой настройкой). Интернета считай у вас нету - Фрештел это не интернет. Если у вас нету большого траффика по вайфаю, то достаточно будет включить вайфай на фрештеловском роутера, подключить к нему (ссылка устарела)для кабелей, а длинк точкой (АР) - где-то подальше. Вааще, советы "шо лучше феррари или таврия" бессмысленны без четкой постановки задачи 1 Посилання на коментар Поділитися на інших сайтах More sharing options...
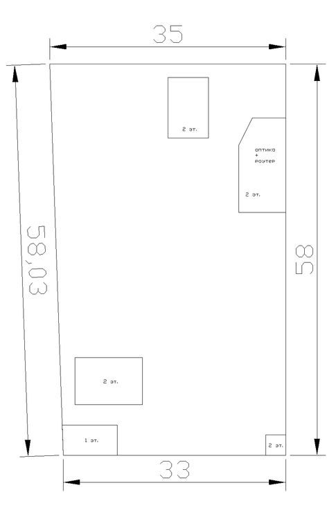
carambassy Опубліковано: 16 квітня 2014 Поділитись Опубліковано: 16 квітня 2014 Дабы не плодить темы, с разрешения ТС изложу и свою проблемку. В дом заведена оптика с медиаконвертером, после него роутер D-link DIR-825 (с такими антеннами TL-ANT2408C), роутер установлен на 2-м этаже и антенны близко к окнам). В доме с сигналом все нормально, но по участку прием не уверенный, а во втором доме с ноутбуком можно работать только возле окна. Пожалуйста, посоветуйте как-бы оптимально охватить весь участок стабильным сигналом (места установки оборудования и модели). Нравится оборудование Mikrotik, Ubiquiti. Схема участка во вложении Посилання на коментар Поділитися на інших сайтах More sharing options...
Crazy Опубліковано: 16 квітня 2014 Поділитись Опубліковано: 16 квітня 2014 Дабы не плодить темы, с разрешения ТС изложу и свою проблемку. ... Расстояния у вас небольшие - можно завести в соседний дом витую пару, а там поставить точку. Это будет проще, лучше и дешевле :D 1 Посилання на коментар Поділитися на інших сайтах More sharing options...
carambassy Опубліковано: 16 квітня 2014 Поділитись Опубліковано: 16 квітня 2014 Согласен с Вами, но основная проблема не в доме - это просто решить, а в остальной территории участка, ну любит у меня папа с айпадом побродить Просто думал на стене дома повесить какой-то роутер с всенаправленными антеннами, но я не настаиваю на оптимальности данного решения Посилання на коментар Поділитися на інших сайтах More sharing options...
YURKA_DJ Опубліковано: 16 квітня 2014 Поділитись Опубліковано: 16 квітня 2014 Моя история. Точно надо сказать, что лучше проводов ничего нет. Лет пять назад не заложил провода и с тех пор все время пытаюсь улучшить свой WiFi. Вначале поставил Tp-Link TL-WR941ND (у меня ADSL) к нему 3 шт. 901-х в качестве репитеров. Результат- прекрасное покрытие, отвратный инет и постоянно что-то глючило. Затем поставил Cisco 4401, покрытие у него слабоватое, плюс к нему нужен модем (было несколько) с которым жили они плохо (настраивал и мостом и роутером и т.д.). Потом были пару D-Linkov. Пол года назад поставил ASUS DSL-N55U, купил на Амазоне 3 антены по 40 см. вместо штатных. Он двухдиапазонный, что в условиях дома бесполезная опция (5мгц слабый сигнал), очень развитое меню с разными настройками, позволяет 3 гостевые сети организовать, можно цеплять USB модем в качестве резервного и еще много чего. Раз в три месяца выходит новая прошивка на базе OpenWRT. Пока пожалуй наиболее удовлетворяет меня. Справедливости ради надо сказать, что субъективно старый Tp-Link ничем не хуже по покрытию Asus cо стандартными антеннами. Что точно не стоит делать, так цеплять к говенному Фрештелу ЮниФи (ничего личного, только опыт использования), инету это никак не поможет. Да, совсем забыл, в ответственные точки завел инет от роутера через розетки, это верняк, но есть нюансы- сеть должна висеть на оной фазе. Ну вот вроде все. 1 Посилання на коментар Поділитися на інших сайтах More sharing options...
Diver Опубліковано: 16 квітня 2014 Поділитись Опубліковано: 16 квітня 2014 лучше проводов ничего нет. Лет пять назад не заложил провода и с тех пор все время пытаюсь улучшить свой WiFi. стандартная ситуация, хорошо если прочитают 5-10 человек и не станут наступать на грабли. 1 Посилання на коментар Поділитися на інших сайтах More sharing options...
uafisher Опубліковано: 25 квітня 2014 Поділитись Опубліковано: 25 квітня 2014 Поддерживаю идею с роутером mikrotik можно взять новую серию 951. Либо же посмотреть в сторону устройств фирмы ubiquiti. Это дорого, но зато стабильно. А Микротики и UBNT все настроят? Если хоть шаг в сторону от просто прописать IP.. P.S. Из того, что пробовал цена/качество для "хом юзер" - оптимально у ТпЛинк, ИМХО. ИМХО сформировалось не к модели, а к бренду. Прям как рекламщик ТПЛинков . Такое же негавтиное ИМХО сформировалось к Асусу, в частности, то что остаётся от скорости при использовании Wi-Fi. При приличных скоростях, в частности, например со 100 остаётся 40-45 . Посилання на коментар Поділитися на інших сайтах More sharing options...
Diver Опубліковано: 25 квітня 2014 Поділитись Опубліковано: 25 квітня 2014 Поддерживаю идею с роутером mikrotik можно взять новую серию 951. но юзер или компьютерщиком должен быть, или пиглашать специалиста на обьект. Посилання на коментар Поділитися на інших сайтах More sharing options...
toksoft Опубліковано: 26 квітня 2014 Поділитись Опубліковано: 26 квітня 2014 но юзер или компьютерщиком должен быть, или пиглашать специалиста на обьект. Не бывает плохих специалистов. Бывают недостаточно острые иглы, или недостаточно плотные плоскогубцы. Верьте в людей,- когда прижмет - разберутся. :-) 1 Посилання на коментар Поділитися на інших сайтах More sharing options...
y-dom Опубліковано: 3 травня 2016 Поділитись Опубліковано: 3 травня 2016 Лучше все-таки использовать один WIFI маршрутизатор, установив его в наиболее возвышенной точке дома. Можно добавить внешние антенны, и поднять мощность передатчика (у большинства маршрутизаторов эта скорость кстати регулируется без Вашего участия,- Вы только ограничиваете max уровень). Помогите разобраться Роутер Асус N66 стоит в гостиной возле телевизора, приблизительно в центре на 1 этаже дома 10х10. Wi-fi на втором этаже в углах дома уже берет нестабильно. В подвале вообще никак. Перекрытие плиты. Здесь в теме пишут, что этот роутер может вообще и участок накрыть. А у меня еле через этаж пробивает. Прошивка от Асус. Кто с этим роутером знаком, посоветуйте, что можно сделать Посилання на коментар Поділитися на інших сайтах More sharing options...
Crazy Опубліковано: 3 травня 2016 Поділитись Опубліковано: 3 травня 2016 .... Кто с этим роутером знаком, посоветуйте, что можно сделать Поставьте вайфай аналайзер и пробуйте разные варианты направленности антенн, ну и сам роутер немного подвигать. Я на своем (не асус) роутере антенну направил вниз (со второго) и в цоколе (через две плиты перекрытия) появился рабочий сигнал. 2 Посилання на коментар Поділитися на інших сайтах More sharing options...
uafisher Опубліковано: 4 травня 2016 Поділитись Опубліковано: 4 травня 2016 Помогите разобраться Роутер Асус N66 стоит в гостиной возле телевизора, приблизительно в центре на 1 этаже дома 10х10. Wi-fi на втором этаже в углах дома уже берет нестабильно. В подвале вообще никак. Перекрытие плиты. Здесь в теме пишут, что этот роутер может вообще и участок накрыть. А у меня еле через этаж пробивает. Прошивка от Асус. Кто с этим роутером знаком, посоветуйте, что можно сделать Это весьма неплохой роутер при выборе этого производителя. Но сколько-ко бы трафика он через себя не мог пробрасывать, важна чувствительность его антенн и мощность передатчика. Мощность передатчика, как и чувствительность антенн (то, что обычно называют коэффициентом усиления, "мощностью" антенны) производителем почему-то не раскрывается. Но судя по некоторым вещам, скорее всего антенны всего по 3 дБи.. А это как бы не фонтан. Впрочем это похоже на норму в топовых девайсах от них. Для сравнения старая, простенькая но удачная моделька RT-N10U B1 - 5 дБи, как и ряд других. Есть у Асуса замена штатным "рожкам" - например WL-ANT191 - она имеет показатель в 9 дБи... И дома у всех разные. Расположение роутера тоже разное. Роутер этот двух диапазонный, если Вы используете 5 Гц режим то его радиус действия прилично может быть меньше чем на 2,4 Гц. Как советовали поработайте анализатором, меняйте режимы, по возможности расположение роутера, направление хотя бы антенн. Не помогает - можно попробовать заменить антенны на более мощные, либо установить на втором этаже отдельную точку доступа/репитер. А вообще лично я не в восторге от Асуса. Не знаю как сейчас, ещё сравнительно недавно при звонке на горячую линию и выборе раздела "Сетевое оборудование" звучала "приятная" фраза - "В настоящее время мы не оказываем поддержки сетевого оборудования по телефону"... Ну и функционал моделей. Сел как-то после Микротика за Асус 18 (тоже прикольный, хоть и проще) - чуть не заплакал от примитивности.. Дело кончено вкуса/задач, если для себя, для дома, раздача по радио/шнурку, обеспечение IPTV, простенького медиасервера - то вполне сгодиться. Что хорошо ещё у Вашей модели, у него заявлено 300 000 пакетов/с, как у шлягера прошлых лет N16, как у N18, на дальность полёта сигнала это не влияет, но говорит о производительности, - это хорошо, так что пробуйте с каналами/антеннами! 2 Посилання на коментар Поділитися на інших сайтах More sharing options...
y-dom Опубліковано: 4 травня 2016 Поділитись Опубліковано: 4 травня 2016 А вообще лично я не в восторге от Асуса. А какой роутер нравится в работе и почему? Посилання на коментар Поділитися на інших сайтах More sharing options...
uafisher Опубліковано: 4 травня 2016 Поділитись Опубліковано: 4 травня 2016 А какой роутер нравится в работе и почему? Мне нравиться Микротик, из-за своего функционала и стабильности за нормальную цену для такого набора. Функционал можно подобрать под задачи в зависимости от версии ПО (зависит часто от модели). Перечислять можно оччччень долго. Для сравнения просто банально в каком Асусе в гостевой сети можно ограничить скорость доступа для клиентов в интернет (чтобы не забивали канал). Есть некоторые минусы, также для серьёзной работы с ним и использования всех возможностей старший версий прошивок необходимы определённые знания. Если знания не свои они будут стоить денег). Но даже на простых моделях, можно несложные вещи настроить через WEB интерфейс и получить устройство - включил, настроил и забыл где находиться. Линксис значительно уступает ему в плане функционала, но есть свои плюсы, особенно если этот функционал не нужен. Также относительно стабилен. Можно смотреть на Зиксели. Странно, но нравиться ТП Линк. Из-за своей стоимости). У меня в квартире например сейчас установлен недорогой C20i тоже на 2 диапазона, при входящем 100 мбитс канале на 5 ГГц около 100 и отдаёт, мне ничего от него особо не надо, устраивает. Рожек кстати нет (они внутренние, т.е. заменить не получиться). А вообще можно найти модели, которые будут более/мене стабильно работь (кстати много у них моделей с антеннами 5 дБи) за недорого с необходимым набором функций. Качалок, медиасервисов и пр. у них как правило меньше, чем у Асус, также сложнее наверное и со сторонними прошивками. Но надо смотреть конкретные модели под конкретные задачи. Не всегда старшие модели лучше младших). И если важна стабильность/функционал, и есть возможность потратиться - то лучшим решением возможно будет маршрутизатор без WI-Fi, с подключением отдельных Wi-Fi точек доступа, при необходимости с организацией бесшовного (практически) роуминга и в т.ч. в уличном исполнении. Тогда и покрытие Wi-Fi будет стабильное везде, без дикого излучения в центре, и шина самого маршрутизатора разгрузиться, но это не решение из одной коробки. Не уверен, что Вам необходима сразу замена роутера - попробуйте сначала бесплатные варианты по настройке. 2 Посилання на коментар Поділитися на інших сайтах More sharing options...
Рекомендовані повідомлення
Створіть акаунт або увійдіть у нього для коментування
Ви маєте бути користувачем, щоб залишити коментар
Створити акаунт
Зареєструйтеся для отримання акаунта. Це просто!
Зареєструвати акаунтУвійти
Вже зареєстровані? Увійдіть тут.
Увійти зараз