Деревянщик Опубліковано: 5 липня 2017 Поділитись Опубліковано: 5 липня 2017 Дом не такой уж и маленький (120 м) но очень лаконичный. Похож на спроектированный и построенный мною в прошлом году. Площадь примерно такая же. работы сейчас продолжаются. Посилання на коментар Поділитися на інших сайтах More sharing options...
jokes Опубліковано: 12 липня 2017 Поділитись Опубліковано: 12 липня 2017 Похож на спроектированный и построенный мною в прошлом году. Площадь примерно такая же. работы сейчас продолжаются. Подскажите что это за стены у вас? Это Sip-панели? Они сразу имеют наружную отделку получается? Посилання на коментар Поділитися на інших сайтах More sharing options...
StNick Опубліковано: 12 липня 2017 Поділитись Опубліковано: 12 липня 2017 у меня рядом ангар такими кроют вата склеенная с гладким профнастилом, выглядит оно таки индустриально... Посилання на коментар Поділитися на інших сайтах More sharing options...
bambino Опубліковано: 12 липня 2017 Поділитись Опубліковано: 12 липня 2017 выглядит оно таки индустриально... Но если объяснить, что это industrial и очень круто... Посилання на коментар Поділитися на інших сайтах More sharing options...
Деревянщик Опубліковано: 12 липня 2017 Поділитись Опубліковано: 12 липня 2017 Подскажите что это за стены у вас? Это Sip-панели? Они сразу имеют наружную отделку получается? Панели Кингспан. Заполнение негорючий материал типа пенопласта, но нового поколения. Заменяет по теплопроводности 1.5 м кладки. Быстро монтируется, но при монтаже нужно понимание нюансов. Сейчас сделали перекрытие второго этажа. Заказчик, понимая финансовый объем, ушел в отпуск и решил некоторые работы сделать самостоятельно. По стоимости коробки дома, а именно: наружная отделка (крашеный металл), утеплитель, внутренняя отделка (крашеный металл) и каркас, получается процентов на 20-30 дешевле, чем классический каркасник со всем "пирогом" или газобетонный дом, с утепленным фасадом и отделанным фасадом и внутренней стеной. 2 Посилання на коментар Поділитися на інших сайтах More sharing options...
korund Опубліковано: 12 липня 2017 Поділитись Опубліковано: 12 липня 2017 Панели Кингспан. но нового поколения вот это подход! Вот это по-нашему!!! Только ни на оф.сайте, ни на дочерних клонах я не нашел показателей теплопроводности панелей. Кроме как вот такого: Тепловые характеристики Теплоизоляционная сердцевина из твердого уретана обладает одной из самых низких проводимостью из всех изоляционных материалов. Благодаря этому способность сохранять тепло более высока, таким образом, облегчается эффективное содержание среды с регулируемой температурой ОООчень информативно... Посилання на коментар Поділитися на інших сайтах More sharing options...
jokes Опубліковано: 12 липня 2017 Поділитись Опубліковано: 12 липня 2017 Панели Кингспан. Заполнение негорючий материал типа пенопласта, но нового поколения. Заменяет по теплопроводности 1.5 м кладки. Круто, спасибо! Novus на Академгородке построен из таких панелей по всей видимости (боковые стены, не фасад). Я давно на них там обратил внимание, но не знал как найти название. Спасибо! Посилання на коментар Поділитися на інших сайтах More sharing options...
Деревянщик Опубліковано: 12 липня 2017 Поділитись Опубліковано: 12 липня 2017 вот это подход! Вот это по-нашему!!! Только ни на оф.сайте, ни на дочерних клонах я не нашел показателей теплопроводности панелей. Кроме как вот такого: Тепловые характеристики Теплоизоляционная сердцевина из твердого уретана обладает одной из самых низких проводимостью из всех изоляционных материалов. Благодаря этому способность сохранять тепло более высока, таким образом, облегчается эффективное содержание среды с регулируемой температурой ОООчень информативно... Кто ищет, тот всегда найдет paneli.kingspan.ua/sendvic-paneli-9999.html 1 Посилання на коментар Поділитися на інших сайтах More sharing options...
korund Опубліковано: 12 липня 2017 Поділитись Опубліковано: 12 липня 2017 Кто ищет, тот всегда найдет paneli.kingspan.ua/sendvic-paneli-9999.html В 2005году на стоительном рынке массово появился пеноизол у меня даже установка дя его пр-ва была позже появились такие темы на форумах оттуда: пеноизол имеет право на жизнь, но не надо ждать от него каких-то чудес, а тем более обещать эти чудеса клиенту. А то ведь и побить могут вот когда подобные темы появятся о кингспане после его массового применения - тогда и пообсуждаем подробнее ок? удачи Посилання на коментар Поділитися на інших сайтах More sharing options...
Деревянщик Опубліковано: 12 липня 2017 Поділитись Опубліковано: 12 липня 2017 В 2005году на стоительном рынке массово появился пеноизол у меня даже установка дя его пр-ва была позже появились такие темы на форумах оттуда: пеноизол имеет право на жизнь, но не надо ждать от него каких-то чудес, а тем более обещать эти чудеса клиенту. А то ведь и побить могут вот когда подобные темы появятся о кингспане после его массового применения - тогда и пообсуждаем подробнее ок? удачи Искренне насмешил))) Понятно, что завод Тесла в Неваде, для вас не объект. Вот если бы Вы мне сарай под мотовиловкой накрыли, тогда да, для меня аргумент))) Помню в 1994 году, один заказчик вызвал гипсокартонщиков из Турции, потому как никто о гипсокартоне у нас и слыхом не слышал. Вы хоть в 2017 году о гипсокартоне наконец услышали? Или все ждете его массового применения 2 Посилання на коментар Поділитися на інших сайтах More sharing options...
Николай78 Опубліковано: 13 липня 2017 Автор Поділитись Опубліковано: 13 липня 2017 Оптимально по расходу стройматериалов. 2 Посилання на коментар Поділитися на інших сайтах More sharing options...
ЩербачОК Опубліковано: 13 липня 2017 Поділитись Опубліковано: 13 липня 2017 Цей будиночок-гараж вже був тут.. Чи то у ВК. Японці цікаві, меблів взагалі немає. В наших реаліях багато простору займуть саме меблі. Посилання на коментар Поділитися на інших сайтах More sharing options...
Николай78 Опубліковано: 13 липня 2017 Автор Поділитись Опубліковано: 13 липня 2017 Учитывая, что внутренней обшивки нет, то можно глянуть как сделан каркас. 1 Посилання на коментар Поділитися на інших сайтах More sharing options...
Николай78 Опубліковано: 13 липня 2017 Автор Поділитись Опубліковано: 13 липня 2017 Цей будиночок-гараж вже був тут.. Чи то у ВК. Японці цікаві, меблів взагалі немає. В наших реаліях багато простору займуть саме меблі. Да, был в вк. Вк я особо уже не поддерживаю. Переношу наиболее интересные домики сюда иногда. И еще в ФБ если кому удобно: https://www.facebook.com/smallhouseua/ Посилання на коментар Поділитися на інших сайтах More sharing options...
ЩербачОК Опубліковано: 13 липня 2017 Поділитись Опубліковано: 13 липня 2017 я би свій гараж так реконструював) Посилання на коментар Поділитися на інших сайтах More sharing options...
Николай78 Опубліковано: 13 липня 2017 Автор Поділитись Опубліковано: 13 липня 2017 10 символов 1 Посилання на коментар Поділитися на інших сайтах More sharing options...
Николай78 Опубліковано: 13 липня 2017 Автор Поділитись Опубліковано: 13 липня 2017 10 символов 2 Посилання на коментар Поділитися на інших сайтах More sharing options...
Николай78 Опубліковано: 14 липня 2017 Автор Поділитись Опубліковано: 14 липня 2017 Домик для семейного отдыха на выходных. 10 квадратных метров. 1 Посилання на коментар Поділитися на інших сайтах More sharing options...
Николай78 Опубліковано: 14 липня 2017 Автор Поділитись Опубліковано: 14 липня 2017 И совсем малюсенький домик. Но зато двухэтажный 1 Посилання на коментар Поділитися на інших сайтах More sharing options...
Николай78 Опубліковано: 14 липня 2017 Автор Поділитись Опубліковано: 14 липня 2017 Все свое вожу с собой 1 Посилання на коментар Поділитися на інших сайтах More sharing options...
Николай78 Опубліковано: 14 липня 2017 Автор Поділитись Опубліковано: 14 липня 2017 У меня спросили в личку: Что можно сделать из комнаты 18 кв. метров. при высоте потолков 4 метра. Отвечаю: из этой комнаты можно сделать вообще все 2 Посилання на коментар Поділитися на інших сайтах More sharing options...
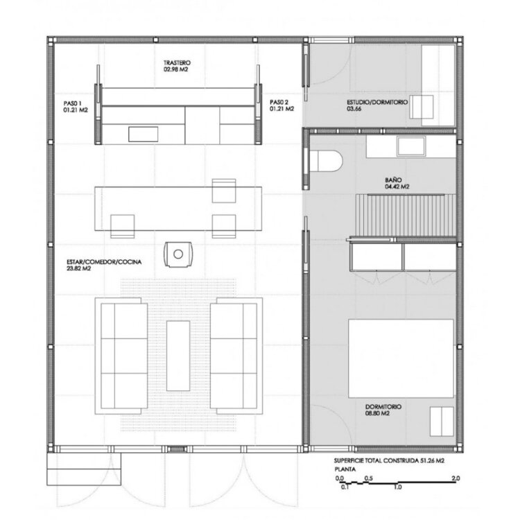
Николай78 Опубліковано: 14 липня 2017 Автор Поділитись Опубліковано: 14 липня 2017 Присмотритесь внимательно к картинке №5, например, в каменте выше. Там комната 13 квадратов, но содержит: кухню, спальню, сан.узел, кабинет, велосипед и почему-то гамак 1 Посилання на коментар Поділитися на інших сайтах More sharing options...
Николай78 Опубліковано: 15 липня 2017 Автор Поділитись Опубліковано: 15 липня 2017 10 символов 3 Посилання на коментар Поділитися на інших сайтах More sharing options...
Николай78 Опубліковано: 15 липня 2017 Автор Поділитись Опубліковано: 15 липня 2017 Над пропастью 1 Посилання на коментар Поділитися на інших сайтах More sharing options...
Николай78 Опубліковано: 15 липня 2017 Автор Поділитись Опубліковано: 15 липня 2017 На первый взгляд вагончик. 1 Посилання на коментар Поділитися на інших сайтах More sharing options...
Рекомендовані повідомлення
Створіть акаунт або увійдіть у нього для коментування
Ви маєте бути користувачем, щоб залишити коментар
Створити акаунт
Зареєструйтеся для отримання акаунта. Це просто!
Зареєструвати акаунтУвійти
Вже зареєстровані? Увійдіть тут.
Увійти зараз