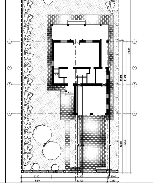
tosic_od Опубліковано: 12 квітня 2014 Поділитись Опубліковано: 12 квітня 2014 Всем привет, вот уже пришла пора создавать тему про свое строительство. Правда стойка еще не началась, но вот вот начнется. Введение. Нам с женой надоели соседи в многоэтажках, и вечная проблема со стоянкой авто во дворе, и мы решились построить дом, хотя ситуация в стране очень неспокойная, и я сам на службе в армии и знаю обстановку изнутри, решил успеть хотя бы начать. В прошлом году купил участок, 12 соток, пару км от города, в Червоном Хуторе. Так как все органы на измене и не требуют взяток, я без проблем и достаточно быстро получил все разрешительные документы на стройку. Вот уже весна, пора начинать. С одним соседом я уже познакомился ( между прочем тут на форуме ) Он уже поставил временный забор, с другой стороны земля коператива на которой стоит трансформаторная будка. Проект. Как как я хороший пользователь ПК, думал что сам нарисую что хочу получить в итоге, однако за пару месяцев я так и не нарисовал то, что мне с женой хотелось. В результате посоветовали мне архитектора, которому я передал свои наброски и думать уже начал он. За очень адекватную стоимость он очень быстро изобразил мои желания. Правда я думал Экономить на материале и гараж сделать внутри дома, однако это лишняя отаплеваемая площадь может выливаться в копеечку в будущем, и сделали только одну общую стенку . Сперва думал о плащади в 150-180 м2 но понял, что с гаражом будет тесно, и пришлось увеличить до 202м Участок имеет размеры 20х60 и был немного не ровный, на прошлых выходных разровнял бульдозером, убрал холм, кусты, мусор итд. Участок стал. На Этих выходных привез кунг, правда кунг очень печальный, но мастера его немного подлатают. Строиться буду из газобетона 40см. Центральная несущая стена из кирпича. Фундамент ленточный 40х80 (20 см подложка) Выкладываю фото проекта и первый фото отчет, критику и советы приветствую . 4 Посилання на коментар Поділитися на інших сайтах More sharing options...
Koskos Опубліковано: 13 квітня 2014 Поділитись Опубліковано: 13 квітня 2014 Так как все органы на измене и не требуют взяток, я без проблем и достаточно быстро получил все разрешительные документы на стройку. это приятно впечатляет Посилання на коментар Поділитися на інших сайтах More sharing options...
Шаркер Опубліковано: 13 квітня 2014 Поділитись Опубліковано: 13 квітня 2014 Поздравляю с началом! В добрый путь! 1 Посилання на коментар Поділитися на інших сайтах More sharing options...
JamGreen Опубліковано: 13 квітня 2014 Поділитись Опубліковано: 13 квітня 2014 Скажите пожалуйста, а сколько услуги архитектора обошлись? Я в такой же ситуации как и Вы. Нарисовать могу только удобную планировку, но реально нормальных эскизов - нету. Посилання на коментар Поділитися на інших сайтах More sharing options...
Шаркер Опубліковано: 13 квітня 2014 Поділитись Опубліковано: 13 квітня 2014 Скажите пожалуйста, а сколько услуги архитектора обошлись? Я в такой же ситуации как и Вы. Нарисовать могу только удобную планировку, но реально нормальных эскизов - нету. Ну у власника темы - реально хороший проект, есть только несколько моментов: 1. Гараж примыкает к дому. 2. Площадь коридора 2-го этажа. А так вообще очень-очень разумно. Кстати, пришлите расшифровку по помещениям, а то может поторопился? Догадками определял назначение! Посилання на коментар Поділитися на інших сайтах More sharing options...
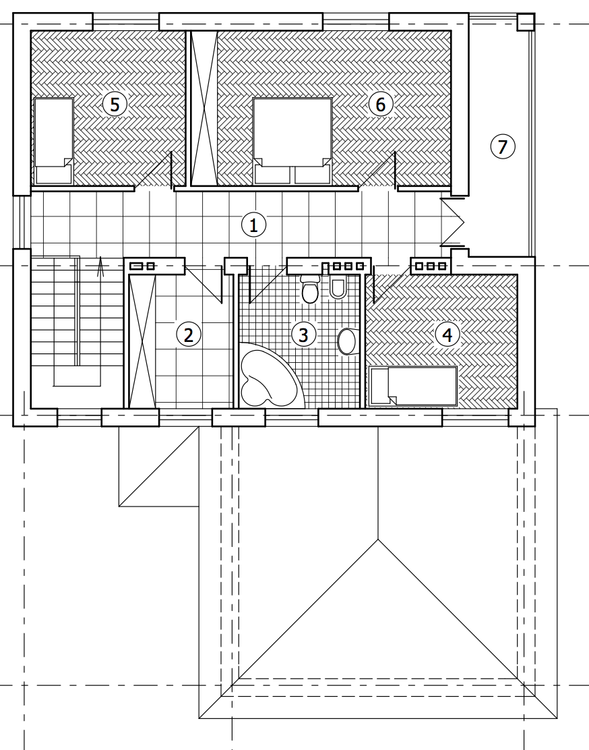
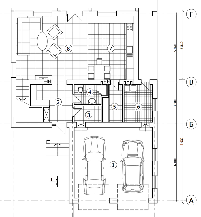
tosic_od Опубліковано: 14 квітня 2014 Автор Поділитись Опубліковано: 14 квітня 2014 Скажите пожалуйста, а сколько услуги архитектора обошлись? Я в такой же ситуации как и Вы. Нарисовать могу только удобную планировку, но реально нормальных эскизов - нету. Стоимость проекта составил 7000 гр. (по ценам за февраль этого года) Входит расчет кол-во строй материала, армопоясов, итд Добавлено через 5 минут я и хотел чтобы гараж примыкал, изначально я рисовал его вообще внутри дома, но меня уговорили на одну общую стенку. 1 этаж 1 - гараж 35,9 м 2 прихожая - 8,8 м 3 Кладовая - 2,9м 4 санузел 3,9м 5 кладовая кухонная - 4,3 6 котельная 6,9м 7 кухня 19,9м 8 зал 28,7 2 этаж 1 коридор 14,2м 2 гардероб 7,1м 3 санузел 8,3м 4 кабинет 10,4 м 5 спальня 12,2м 6 спальня 20,6м 7 балкон 2,5м Посилання на коментар Поділитися на інших сайтах More sharing options...
tosic_od Опубліковано: 14 квітня 2014 Автор Поділитись Опубліковано: 14 квітня 2014 Подскажите какой лучше газобетон брать ? UDK или СтоунЛайт ? Udk как то больше внушает доверия а СтоунЛайт гораздо дешевле Есть смысл сэкономить на этом ? Продавцы говорят что оба хороши просто СтоунЛайт менее раскрученный Посилання на коментар Поділитися на інших сайтах More sharing options...
tosic_od Опубліковано: 5 травня 2014 Автор Поділитись Опубліковано: 5 травня 2014 пока была погода хорошая, вырыли канал под фундамент Посилання на коментар Поділитися на інших сайтах More sharing options...
Шаркер Опубліковано: 5 травня 2014 Поділитись Опубліковано: 5 травня 2014 Подскажите какой лучше газобетон брать ? UDK или СтоунЛайт ? Udk как то больше внушает доверия а СтоунЛайт гораздо дешевле Есть смысл сэкономить на этом ? Продавцы говорят что оба хороши просто СтоунЛайт менее раскрученный Если не закупили еще, то обратил бы внимание на Аэрок. Хорошее качество и хорошая геометрия. Плюс "обломков" практически нет. т.е. брака при доставке. Почитайте, если надумаете, напишите лс, я состыкую с продавцами у которых самая хорошая цена в Одессе. Кстати тему мою посмотрите, на первых этапах, там очень подробно описывал свои шаги. Удачи! Посилання на коментар Поділитися на інших сайтах More sharing options...
tosic_od Опубліковано: 5 травня 2014 Автор Поділитись Опубліковано: 5 травня 2014 Если не закупили еще, то обратил бы внимание на Аэрок. Хорошее качество и хорошая геометрия. Плюс "обломков" практически нет. т.е. брака при доставке. Почитайте, если надумаете, напишите лс, я состыкую с продавцами у которых самая хорошая цена в Одессе. Кстати тему мою посмотрите, на первых этапах, там очень подробно описывал свои шаги. Удачи! Да вот уже 2 недели читаю вашу тему )) Много интересного, но я всеравно по другому делаю ) а вот дешевых продавцов Аэрок кидайте )) елси они еще дешовые ) Посилання на коментар Поділитися на інших сайтах More sharing options...
tosic_od Опубліковано: 9 травня 2014 Автор Поділитись Опубліковано: 9 травня 2014 Сегодня приехал посмотреть как вяжут арматуру. Увидил, офигел и начал сам показывать как надо вязать, исправьте меня если я не прав. Ширина траншеи 40-43 см Они начали вязать 30х30 см .... Мне показалось что неправильно и сказал вязать 30х20, дале как они вязали, проволокой 6мм просто по кругу арматур без кольца, и к самой арматуре прикрепляли вязальной проволокой ( видно на первых 2х фото) Так как я перечитал достаточно тем из этого форума, я сделал шаблон, вбили в доску 4 точки и по ним гнули, и обязательно вокруг каждой арматуры в кольцо. а потом еще что бы не ездило прикрепляем вязальной проволокой. сама арматура 12мм кольцовка 6мм вязальная 1мм Правильно ли я сделал что уменьшил ширину с 30 см до 20 см ? Посилання на коментар Поділитися на інших сайтах More sharing options...
siy Опубліковано: 10 травня 2014 Поділитись Опубліковано: 10 травня 2014 Между гаражем и домом, верандой и домом наверно надо усадочный шов делать, чтоб трещина не появилась. И арматуру в фундаменте где примыкает стенка , будут продолжать за угол хотя бы 30 см? А чем и как вязать, в принципе не важно, в итоге работает только арматура в верхнем и нижнем слоях. Посилання на коментар Поділитися на інших сайтах More sharing options...
tosic_od Опубліковано: 10 травня 2014 Автор Поділитись Опубліковано: 10 травня 2014 Между гаражем и домом, верандой и домом наверно надо усадочный шов делать, чтоб трещина не появилась. И арматуру в фундаменте где примыкает стенка , будут продолжать за угол хотя бы 30 см? А чем и как вязать, в принципе не важно, в итоге работает только арматура в верхнем и нижнем слоях. Что такое усадочный шов ? и как он работает Вы имеете ввиду деформационный шов ? Отделить фундамент гаража от дома ? Загибаться арматура не будет, но будет вертикально к углам приматываться штыри Пока еще не связаны углы, ее еще нужно приподымать от низа на 5 см, Пока привезли доски для опалубки Фундамент будем заливать в 2 этапа Сперва в землю, гдето 60 см высотой, в нем одна армированная лента 20х30 и вытащим наружу штыри к которой будет вязаться вторая армирующая лента 20х20 и заливаться вторым этапом по опалубке еще 50-60 см Посилання на коментар Поділитися на інших сайтах More sharing options...
siy Опубліковано: 10 травня 2014 Поділитись Опубліковано: 10 травня 2014 Дом тяжелее гаража и просядет больше, то же и крыльцо. Про арматуру на углах фундамента лучше почитать в инете. Посилання на коментар Поділитися на інших сайтах More sharing options...
1tsov77 Опубліковано: 11 травня 2014 Поділитись Опубліковано: 11 травня 2014 Вот как-то так: 4 Посилання на коментар Поділитися на інших сайтах More sharing options...
Шаркер Опубліковано: 12 травня 2014 Поділитись Опубліковано: 12 травня 2014 Что такое усадочный шов ? и как он работает Вы имеете ввиду деформационный шов ? Отделить фундамент гаража от дома ? Загибаться арматура не будет, но будет вертикально к углам приматываться штыри Пока еще не связаны углы, ее еще нужно приподымать от низа на 5 см, Пока привезли доски для опалубки Фундамент будем заливать в 2 этапа Сперва в землю, гдето 60 см высотой, в нем одна армированная лента 20х30 и вытащим наружу штыри к которой будет вязаться вторая армирующая лента 20х20 и заливаться вторым этапом по опалубке еще 50-60 см Фундамент лить надо за 1 раз. Посилання на коментар Поділитися на інших сайтах More sharing options...
Игореха Опубліковано: 13 травня 2014 Поділитись Опубліковано: 13 травня 2014 Сегодня приехал посмотреть как вяжут арматуру. Увидил, офигел и начал сам показывать как надо вязать, исправьте меня если я не прав. Правильно ли я сделал что уменьшил ширину с 30 см до 20 см ? Дааа... познущалиь вы над хлопцами Надо было сразу им дать задание - согнуть рельсу в бараний рог. Если не смогли - идут искать работу. Где вы видели такое загибание конструктивной и распределительной арматуры? Нет.. конечно ничего страшного не случилось, но я бы на месте работяг от такого заказчика сбежал, ибо хрен его знает, что он завтра заставит делать ))) Абсолютно правильно! Но только в том случае, если у вас бетон на щебне фракции 40-70 и выше. ;) А иначе зачем защитный слой 10см? А изгибающие моменты в горизонтальной плоскости (например от морозного пучения) такой фундамент будет воспринимать хуже. 1 Посилання на коментар Поділитися на інших сайтах More sharing options...
tosic_od Опубліковано: 13 травня 2014 Автор Поділитись Опубліковано: 13 травня 2014 Дааа... познущалиь вы над хлопцами Надо было сразу им дать задание - согнуть рельсу в бараний рог. Если не смогли - идут искать работу. Где вы видели такое загибание конструктивной и распределительной арматуры? Нет.. конечно ничего страшного не случилось, но я бы на месте работяг от такого заказчика сбежал, ибо хрен его знает, что он завтра заставит делать ))) Абсолютно правильно! Но только в том случае, если у вас бетон на щебне фракции 40-70 и выше. ;) А иначе зачем защитный слой 10см? А изгибающие моменты в горизонтальной плоскости (например от морозного пучения) такой фундамент будет воспринимать хуже. Я потерял предложение, где закончился сарказм Я как говорится хочу что бы было все по инструкциям, так как уже делали ) Добавлено через 4 минуты Фундамент лить надо за 1 раз. За раз не получится, пошел по не совсем правильному пути, сперва зальем в землю, на 50 см (из 70) , а через 4 дня в опалубку - он же цоколь. То есть получается цоколь будет монолитным в верьх 40 см, и уходить в землю где то на 20 см. и он будет гидроизалироваться . 1 Посилання на коментар Поділитися на інших сайтах More sharing options...
loader Опубліковано: 13 травня 2014 Поділитись Опубліковано: 13 травня 2014 и обязательно вокруг каждой арматуры в кольцо. погарячились конечно жестко. Посилання на коментар Поділитися на інших сайтах More sharing options...
Игореха Опубліковано: 13 травня 2014 Поділитись Опубліковано: 13 травня 2014 Я потерял предложение, где закончился сарказм Я как говорится хочу что бы было все по инструкциям, так как уже делали ) Да сарказм и не вкладывал в свои слова Это правда, но в шутливой форме, ибо ничего страшного не произошло. Но можно и расшифровать. Т.к. делали хлопцы изначально - правильно. "Хомуты" из катанки - в виде рамки, без этих выкрутасов. Защитный слой арматуры 50мм - с головой. Вы сделали 100. Это оправдано только когда бетон с очень крупным заполнителем. И заполнитель должен проходить между опалубкой и арматурой. Посилання на коментар Поділитися на інших сайтах More sharing options...
Валюша74 Опубліковано: 14 травня 2014 Поділитись Опубліковано: 14 травня 2014 Так как все органы на измене и не требуют взяток, я без проблем и достаточно быстро получил все разрешительные документы на стройку. Согласна, мы тоже сейчас оформляем документы на раздел земли и разрешение на строительство. Везде стоят камеры, денег не берут и даже не просят, от коньяка шугаются, как от чумы, ещё и милицией пугают! Поздравляю с началом строительства! Посилання на коментар Поділитися на інших сайтах More sharing options...
tosic_od Опубліковано: 15 травня 2014 Автор Поділитись Опубліковано: 15 травня 2014 Т.к. делали хлопцы изначально - правильно. Форум я перечитал хорошо и где то было упоминание что именно так надо ) Ну уже не важно, залил фундамент. Успели залить, теперь идут дожди. К кому то бетон не доехал ( Приступаем делать опалубку. Посилання на коментар Поділитися на інших сайтах More sharing options...
tosic_od Опубліковано: 15 травня 2014 Автор Поділитись Опубліковано: 15 травня 2014 Согласна, мы тоже сейчас оформляем документы на раздел земли и разрешение на строительство. Везде стоят камеры, денег не берут и даже не просят, от коньяка шугаются, как от чумы, ещё и милицией пугают! Поздравляю с началом строительства! Спасибо. Посилання на коментар Поділитися на інших сайтах More sharing options...
tosic_od Опубліковано: 17 травня 2014 Автор Поділитись Опубліковано: 17 травня 2014 Еще фото отчет про цоколь Посилання на коментар Поділитися на інших сайтах More sharing options...
Шаркер Опубліковано: 17 травня 2014 Поділитись Опубліковано: 17 травня 2014 Еще фото отчет про цоколь Вы пожалуйста "прощупайте" и "не похитритесь" что странно советует одессит одесситу и весь грунт уже внутри пространства, где будут комнаты, снимите до глины и обсыпьте новой глиной и утрамбуйте, перед черновой стяжкой. Посилання на коментар Поділитися на інших сайтах More sharing options...
Рекомендовані повідомлення
Створіть акаунт або увійдіть у нього для коментування
Ви маєте бути користувачем, щоб залишити коментар
Створити акаунт
Зареєструйтеся для отримання акаунта. Це просто!
Зареєструвати акаунтУвійти
Вже зареєстровані? Увійдіть тут.
Увійти зараз