-electron- Опубліковано: 8 липня 2014 Поділитись Опубліковано: 8 липня 2014 (змінено) Прийшла і моя черга створити свою тему, на даному форумі. Почну з проекту. Так як з цього починається не просто уявне будівництво, чи мрії про будинок, а саме перший етап який несе якусь конкретику. Так як земля вже має місце бути, тому можна відштовхуватись від якихось ввідних і починати щось ваяти, а не мріяти. Як там в школі задачі описують? Дано: 1 сімя з 3 чоловік, яка переживає за покращення демографічної ситуації в країні, тому маю надію буде 4 члени сімї. 2 бажання усіх членів цієї самої ячейки суспільства жити в власному помешканні. Мала давно вже збирала камінці (я гальку привозив для доріжки), казала : "це на хатку!". 3 земельна ділянка 10 соток 24*40, прямокутна, рівна (перепад всього 10-30 см). Фінанси, планується витратити 100 000 убиєнних єнотів. Коробка бажано вкластись в 40-50 к тих самих тваринок, решта оздоблення, мережі, утеплення, вода, септик, електрика, газ...... Умова Потрібен будинок з 1 спальнею для батьків і 2 дитячими. Плюс кімната для роботи, ми працюємо вдома, тому їздити з будинку в квартиру не мудро. Вітальня суміщена з кухнею. Гараж прибудований на 1 авто, з коморою за ним, в цій же коморі котельня і вхід в підвал, площа підвалу 15-16 квадратів, суто для картоплі, консервації ну і дружина придумає що туди всунути. ;) Будинок не мансардний, зараз живемо в мансарді, і бачимо які є цуриси, якщо майстри заженуть шару, а також яких вливань потребує переробка браку, тому грати по новій в цю рулетку не хочу. Каналізація в дууууууууже далеких планах. Газ поки теж примарний, на вулиці мій будинок буде 6, майже закінчений 1, 1 явний довгобуд. Хоча труба в 100 метрах від моєї ділянки на початку вулиці. Шукається Проект цього самого омріяного гніздечка в якому буде зручно жити всій сім'ї. Давайте за допомогою колективного розуму спробуємо вирішити от цю задачу. Щоб я мав аргументи для розмови з архітектором. Колективний розум то є сила. Як кажуть одна голова добре, а два чоботи пара. Щоб не було багато буков, а то не всі люблять читати опуси, свій розвязок напишу в наступному пості. Змінено 8 липня 2014 користувачем -electron- Посилання на коментар Поділитися на інших сайтах More sharing options...
-electron- Опубліковано: 8 липня 2014 Автор Поділитись Опубліковано: 8 липня 2014 Розвязання. Виходячи з умов потрібно будинок на 4 кімнати. Одноповерхові на сімейній нараді відкинули. Так як при такій кількості кімнат зявляються неосвітлені природнім світлом коридори і приміщення. Також велика площа забудови. Проблему з коридором можна обійти погравшись з геометрією ділянки забудови, але тоді площа забудови взагалі за межею моїх допусків. Так як планується на ділянці окрім будинку: альтанка, пару дерев, клумби і тд. Тому вибір пав на 2 поверхову будівлю. Мансарду згідно умов відкинули, тому маємо повних два поверхи. Пройшовшись по сайтам з проектами знайшов пару які спробую скомпілювати. Найбільш підходящий проект знайшов на сайті z500, а саме z63 z500.com.ua/ru/project/z63 Я не буду вдаватись в дивне планування в якому каналізацію треба вести по всьому будинку, а санвузли в різних рівнях знаходяться не один над одним. Це ж тільки заготовка. Ну і звісно треба зробити його в 2 поверхи. Виходячи з цього етапу зявляється нова умова сходи. Забіжні не хочу, максимум 1-2 сходинки і то це крайній випадок. Ширина маршу 100-110 см. Ну і саме цікаве, що я забув дати в умовах то площа, будинок без гаража і комірчини з підвалом бажано вкластись в 150 квадратів. Виходить десь 10*10 розмір плюс гараж 4*6 і клмірчина маємо 14*10 площа забудови. Дружина захотіла еркер. Я запропонував еркер не прямокутний, а розвернути бокові стіни під кутом 120 градусів, пів шестикутника виходить. І робити його тільки внизу. Дах хочу простий двухскатний, скати орієнтувати на південь-північ, може колись розживусь на колектори. Заодно північний скат буде до дороги. 1 Посилання на коментар Поділитися на інших сайтах More sharing options...
ДОКС Опубліковано: 8 липня 2014 Поділитись Опубліковано: 8 липня 2014 Шановний ТС, Ви б озвучили свої питання, що б було про що тут Вам відповісти ... Так буде легше, в першу чергу Вам... Посилання на коментар Поділитися на інших сайтах More sharing options...
-electron- Опубліковано: 8 липня 2014 Автор Поділитись Опубліковано: 8 липня 2014 (змінено) Ну так запитання просте. Покритикувати сам проект, щоб мати з чим іти до архітектора. Але його в темі ще немає. Я поки шукаю програму в якій можна накреслити план поверхів, А то зараз креслити, сканувати і викладати скан трішки не те Викладу, тоді вже можна буде задавати конкретні запитання. А то запитувати в людей, як ви думаєте про даний план, без нього думаю не коректно. Форум же не екстрасенсів. Перше запитання. Ширина маршу сходів 100-110, з площадкою, висота поверху 270 в чистому, який розмір на плані резервувати під сходи? 400*250 270 самі сходи плюс 130 площадка? Плюс місце перед сходами 150? Змінено 8 липня 2014 користувачем -electron- Посилання на коментар Поділитися на інших сайтах More sharing options...
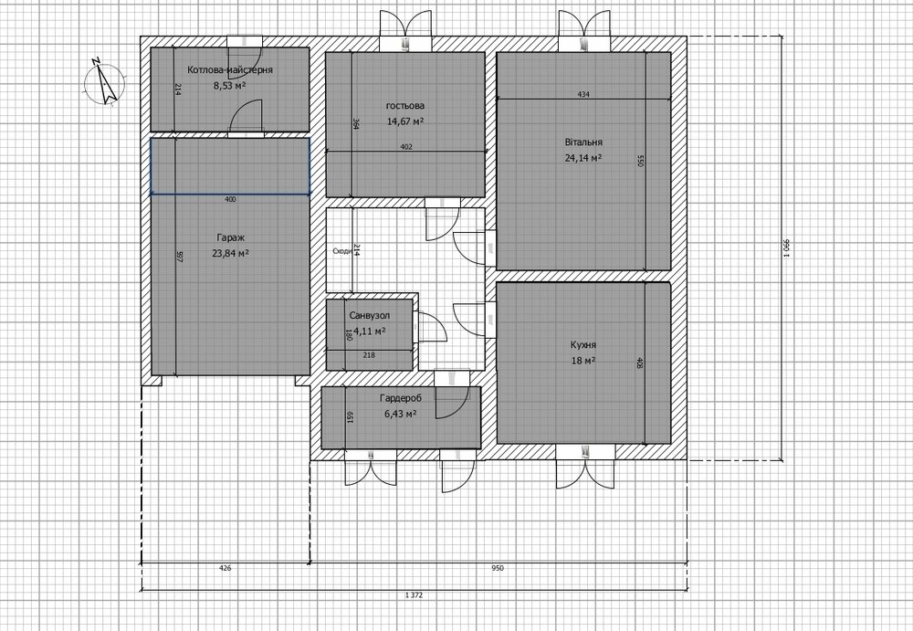
-electron- Опубліковано: 9 липня 2014 Автор Поділитись Опубліковано: 9 липня 2014 Викладу чорновий варіант плану першого поверху. Якщо не робити вхід з гаража, то можна ще гардероб втулити. Над сходами буде вікно (на площадці), яке буде освітлювати коридор. Плюс розміри не остаточні, здається треба гараж розширити, щоб в чистому вийшла ширина 4 метри. Те саме з вікнами, їх буду точно розміщувати, коли зроблю весь фасад. І програма якось дивно їх креслить, і вікна і двері однакові позначення. П.С. Що сам бачу. немає місця в тамбурі для одягу, взуття. Посилання на коментар Поділитися на інших сайтах More sharing options...
scorpp Опубліковано: 9 липня 2014 Поділитись Опубліковано: 9 липня 2014 Але його в темі ще немає. Посмотрите предыдущий пост ))) Посилання на коментар Поділитися на інших сайтах More sharing options...
-electron- Опубліковано: 9 липня 2014 Автор Поділитись Опубліковано: 9 липня 2014 Посмотрите предыдущий пост ))) Почуття гумору оцінив. Але дам Вам Вашу ж пораду ;) Посмотрите предыдущий пост ))) Найбільш підходящий проект знайшов на сайті z500, а саме z63 z500.com.ua/ru/project/z63 Я не буду вдаватись в дивне планування в якому каналізацію треба вести по всьому будинку, а санвузли в різних рівнях знаходяться не один над одним. Це ж тільки заготовка. Запитання 2. Висота 270, для 1 поверху і 250 для другого, достатні? Архітектор каже про 285 для 1 поверху і 265 для другого. Посилання на коментар Поділитися на інших сайтах More sharing options...
Hordi Опубліковано: 9 липня 2014 Поділитись Опубліковано: 9 липня 2014 Висота 270, для 1 поверху і 250 для другого, достатні? Архітектор каже про 285 для 1 поверху і 265 для другого. Индивидуально все конечно, но 285 - самое меньшее, что для первого, что для второго. Обычные квартиры менее 2.80 уже не строят. Чем выше комната - тем длиннее лестничный марш (без забежных ступеней). Если говорить о забежных, то это не особая и проблема - вся жизнь, как правило, проходит на первом этаже (полезен большой зал), а на втором этаже - спальни. Т.е. по лестнице не так уж и часто бегают. Вы хотите 2х этажный, приводите проект дома с мансардой и хотите что-то обсуждать. Обсуждать здесь нечего - сначала общую концепцию картинкой нарисуйте и к Вам потянутся... Посилання на коментар Поділитися на інших сайтах More sharing options...
-electron- Опубліковано: 9 липня 2014 Автор Поділитись Опубліковано: 9 липня 2014 Як казав один діяч в агітфільмі "Мы пойдем другим путем" (с). План першого поверху є вище, щоб ніхто більше не писав, про проект який я брав за основу і міняв місцями приміщення, а також змінював розмір я прошу модератора видалити той план. а далі прошу учасників теми обговорювати мій план. От ще варіант Посилання на коментар Поділитися на інших сайтах More sharing options...
loader Опубліковано: 9 липня 2014 Поділитись Опубліковано: 9 липня 2014 Запитання 2. Висота 270, для 1 поверху і 250 для другого, достатні? Архітектор каже про 285 для 1 поверху і 265 для другого. скорее поддержу архитектора. тут еще важна площадь, на больших пространствах низкий потолок будет давить. посмотрите Яспис (есть несколько реализаций) - www.tmv.com.ua/proekty-domov-Jaspis+5 1 Посилання на коментар Поділитися на інших сайтах More sharing options...
dmitriylaser Опубліковано: 9 липня 2014 Поділитись Опубліковано: 9 липня 2014 Як казав один діяч в агітфільмі "Мы пойдем другим путем" (с). Мда, я смотрю легких (читай простых-гениальных) путей мы не ищем... Хорошо, тогда ответьте каким образом будет освещена лестница+ коридор, находящаяся посреди дома? Посилання на коментар Поділитися на інших сайтах More sharing options...
-electron- Опубліковано: 9 липня 2014 Автор Поділитись Опубліковано: 9 липня 2014 Як казав один діяч в агітфільмі "Мы пойдем другим путем" (с). Мда, я смотрю легких (читай простых-гениальных) путей мы не ищем... Хорошо, тогда ответьте каким образом будет освещена лестница+ коридор, находящаяся посреди дома? Всё уже украдено до нас Викладу чорновий варіант плану першого поверху. Якщо не робити вхід з гаража, то можна ще гардероб втулити. Над сходами буде вікно (на площадці), яке буде освітлювати коридор. Плюс розміри не остаточні, здається треба гараж розширити, щоб в чистому вийшла ширина 4 метри. Те саме з вікнами, їх буду точно розміщувати, коли зроблю весь фасад. І програма якось дивно їх креслить, і вікна і двері однакові позначення. П.С. Що сам бачу. немає місця в тамбурі для одягу, взуття. Плюс в вітальню не обовязково робити двері, цілком може бути арка, а в вітальні будуть також вікна. Звісно вишивати болгарським хрестиком в коридорі при такому "природньому освітленні" не вийде, але погодьтесь, що для рукоділля є інші приміщення окрім коридора. Добавлено через 19 минут скорее поддержу архитектора. тут еще важна площадь, на больших пространствах низкий потолок будет давить. посмотрите Яспис (есть несколько реализаций) - www.tmv.com.ua/proekty-domov-Jaspis+5 Яспіс вже бачив, дякую за посиланя. Але там забагато кутів. Я б хотів будинок квадрат, або прямокутник в плані. Максимум на що мене дружина добила, це еркер в вітальні Посилання на коментар Поділитися на інших сайтах More sharing options...
loader Опубліковано: 9 липня 2014 Поділитись Опубліковано: 9 липня 2014 Яспіс вже бачив, дякую за посиланя. Але там забагато кутів. Я б хотів будинок квадрат, або прямокутник в плані. Максимум на що мене дружина добила, це еркер в вітальні ну я себе тоже переделал, оставил только концепцию планировки, тоже упростил форму, посадил на участок, добавил сауну, терассу, внешнюю отделку думаю по другому совсем. план сделал почти этот (не финальный): www.stroimdom.com.ua/forum/showpost.php?p=1788271&postcount=39 www.stroimdom.com.ua/forum/showpost.php?p=2843716&postcount=52 Посилання на коментар Поділитися на інших сайтах More sharing options...
ДОКС Опубліковано: 9 липня 2014 Поділитись Опубліковано: 9 липня 2014 Запитання 2. Висота 270, для 1 поверху і 250 для другого, достатні? Архітектор каже про 285 для 1 поверху і 265 для другого. то мій колега має рацію... вітання йому))) Посилання на коментар Поділитися на інших сайтах More sharing options...
Kysil Опубліковано: 10 липня 2014 Поділитись Опубліковано: 10 липня 2014 Виходячи з умов потрібно будинок на 4 кімнати. Виходячи з вашого стартового повідомлення, вам потрібен будинок на 5 кімнат: три спальні, кабінет, вітальня. Вітальня вважається кімнатою, навіть якщо це студіо. Одноповерхові на сімейній нараді відкинули. Так як при такій кількості кімнат зявляються неосвітлені природнім світлом коридори і приміщення. 100% Мансарду згідно умов відкинули... ...і одразу ж виклали проект з мансардою як відправну точку. :D Добавлено через 20 минут Плюс в вітальню не обовязково робити двері, цілком може бути арка Навіщо вам цей циганський шик? Ви справляєте враження притомного чоловіка, тому раджу вам мислити сучасніше і масштабніше. Перш за все, відмовтеся від спроб створити проект шляхом безперервного псування паперу. Вам зараз треба: 1. Шукати і викладати тут проекти, зовнішній та внутрішній вигляд яких близький до бажаного. 2. Повідомити чесному товариству, яка у вас ділянка, що на ній, як вона орієнтована за сторонами світу, звідки вхід, що за парканами тощо. Ось тоді можна починати розмову. ;) 1 Посилання на коментар Поділитися на інших сайтах More sharing options...
-electron- Опубліковано: 10 липня 2014 Автор Поділитись Опубліковано: 10 липня 2014 ...і одразу ж виклали проект з мансардою як відправну точку. :D Це просто прект в якому більш менш сподобалось планування. Потрібно адаптувати під повних 2 поверхи. Це вже не до мене запитання чому на сайтах 30% одноповерхові, 50% мансардні і 20 % двоповерхові будинки. Це якщо брати площу не 250+ квадратів. А брати будинок на 300 квадратів, бо він не мансардний і ужимати, якось не те. Потім виходить, що і планування не фонтан, і щось не вміщається. Про циганський шик. Арка не обовязково з позолотою ну щоб було боХато :D. Плюс арка це як відповідь на те що коридор темний, можна зробити вільний прохід в вітальню, чи навіть не ставити всю стіну між коридором і кухнею, а поставити тільки до сходів. Арка це перше що спало на думку як можна освітити коридор, якщо вікна буде не достатньо. От варіант без перестінків, але все одно простір використовується не ефективно. 2. Повідомити чесному товариству, яка у вас ділянка, що на ній, як вона орієнтована за сторонами світу, звідки вхід, що за парканами тощо. Ось тоді можна починати розмову. :wink: Дано: 3 земельна ділянка 10 соток 24*40, прямокутна, рівна (перепад всього 10-30 см:sad:). Там опечатка 25*40. Уточнюю за Вашими запитаннями. Ділянка чиста як голова у Коліни. Ні будинків ні дерев. Поруч є тільки один будинок, вже внутрішні роботи роблять. І навпроти один. От з гугл мапс фото. Дорога вище від ділянки десь на 5-10 см її підсипали гравієм. Потім ділянка майже рівна, дальній кінець має нахил десь тих самих 5-10 см від фасаду. Тут є проблема, доведеться будинок піднімати і підсипати грунт, щоб був схил від будинку до дороги і в кінець ділянки. А то після дощів може замокати підвал. Поруч сусід поставив будинок, десь 2-3 метра від межі 2 поверхи, він на схід від ділянки. За ділянкою ділянки на вулиці на якій ще ніхто нічого не будує. Ці данні поки не давав, бо не знаю коли буде готовий топографічний план, обіцяли на пятницю, а там подивимось. Посилання на коментар Поділитися на інших сайтах More sharing options...
-electron- Опубліковано: 10 липня 2014 Автор Поділитись Опубліковано: 10 липня 2014 (змінено) До речі на розташування вікон дверей не дивіться, вони приблизні. Просто щоб показати в яких стінах вони. А то двері з гаража явно заважають дверям з санвузла. До речі, чи так вже потрібні двері напряму з гаража. Та ще й в коридорі який іде повз санвузол? Приїхав, загнав авто в гараж і пішов в брудних черевиках до входу щоб роззутись. В акурат повз клозет, а потім вдягнув тапки (я до речі їх не переварюю і ходжу босий, а дружина в них ходить) і при мандрівці за маршрутом санвузол-вітальня/кімната/кухня (потрібне підкреслити) розносиш пісок по всьому будинку... Напрошується варіант ставити горщик біля сходів, а на його місці робити прохідний гардероб з гаража в тамбур. Але я б хотів мати природнє освітлення в санвузлі. Або переносити вхід до гаража і з гаража робити вхід напряму в тамбур. Змінено 10 липня 2014 користувачем -electron- Посилання на коментар Поділитися на інших сайтах More sharing options...
vickov Опубліковано: 11 липня 2014 Поділитись Опубліковано: 11 липня 2014 Странно, что пятно застройки почти 10*13 м. При такой площади можно и одноэтажник с 4-мя комнатами спланировать, правда, без гаража... Посилання на коментар Поділитися на інших сайтах More sharing options...
-electron- Опубліковано: 11 липня 2014 Автор Поділитись Опубліковано: 11 липня 2014 (змінено) Странно, что пятно застройки почти 10*13 м. При такой площади можно и одноэтажник с 4-мя комнатами спланировать, правда, без гаража... В точку без гаража і комірчини для інструментів і тд. А якщо відкинути гараж з комірчиною, то маємо 10*9 розмір. Якщо гараж будувати окремо, то це ще один будинок з 1 додатковою стіною, от та яка в випадку з гаражем в будинку буде спільною для будинку і гаражу, та ще і зявляються обмостки, доріжки які зїдають площу ділянки, також на ділянці потрібно буде гратись з розташуванням будинку, гаражу, альтанки, все ж таки будинок і альтанку легше нормально розташувати. Гараж ставити в притул до дороги не хочу, а якщо ставити його на відстані від дороги, то вигляд з вікна першого поверху буде на стіну гаража. Тому будинок з гаражем в комплекті цікавить. Змінено 11 липня 2014 користувачем -electron- Посилання на коментар Поділитися на інших сайтах More sharing options...
Kysil Опубліковано: 11 липня 2014 Поділитись Опубліковано: 11 липня 2014 electron - у вас на гугл-мапі вхід на ділянку з дороги. Це північний схід, я правильно зрозумів? Дивіться, у вас вікно вітальні виходить акурат на паркан і будинок сусіда. Не годиться це планування. Я вам казав, ви не з того почали. Для початку чітко визначтеся: - зі сторонами світу; - з сусідськими "загрозами" (існуючими і перспективними); - з орієнтацією головних приміщень. Вікна вітальні і хазяйської спальні (найкраще місце для якої над вітальнею) - мають виходити у двір. У майбутній сад. Кухня може виходити на сусідів. Гараж - на дорогу. Кабінет краще теж вивести вікном у двір, а дитячі спальні розмістити одна над іншою. Від цього і "танцюйте". P.S. Ще одне спостереження. Класичний двоповерховий п'ятикімнатник гарно лягає у формулу 3+3: кухня, вітальня, кімната - на першому поверсі, три кімнати - на другому. У вашому випадку гараж і мастерня створюють явний надлишок площі на другому поверсі. Виходить 7-кімнатник. До того ж, рівень гаража нижчий за рівень першого поверха, про це слід пам'ятати. Ймовірно, варто подумати про терасу над гаражем, як варіант. Але терасу слід робити лише тоді, якщо у вас на другому поверсі буде кафе. Звідки можна винести каву-чай-лимонад-бутерброди. А хто обіцяв, що буде легко? Посилання на коментар Поділитися на інших сайтах More sharing options...
-electron- Опубліковано: 11 липня 2014 Автор Поділитись Опубліковано: 11 липня 2014 Це я ступив коли робив в програмі план, не врахував цю особливість. Має бути гараж з боку сусіда. Тобто дзеркальне відображеня. Моя спальня в сторону південного сходу. Але вікна на південь. В сусіда вікна на схід і захід, я не хочу з свого вікна дивитись, що він робить, і щоб він дивився чим я займаюсь. І будинок по максимуму до його ділянки підвести. Щоб на захід (там де зараз пусто поставити альтанку). Треба дивитись як там з нормами. Цим по ідеї займається архітектор, але він в відпустку гайнув, тому поки точно сказати не можу. До речі всплила ще одна обставина. Я памятав про паводок 2008 запитував в людей, всі казали, що вода не дійшла. Але я забув про паводок 1969 року, тоді ця ділянка плавала. Зараз правда Прут пішов вниз круто, дно пішло в низ десь на 3 метри з того часу, вибірка гравію з дна дається взнаки. Я ще памятаю як карьєр поруч сполучався з річкою, а зараз річка вже не доходить до карьєру. Але варто передбачити можливість затоплення. Тому будинок мабуть буду піднімати. Заодно підсиплю грунтом і зроблю схил до дороги і вглиб ділянки, щоб вода скоріше стікала. Посилання на коментар Поділитися на інших сайтах More sharing options...
-electron- Опубліковано: 20 серпня 2014 Автор Поділитись Опубліковано: 20 серпня 2014 P.S. Ще одне спостереження. Класичний двоповерховий п'ятикімнатник гарно лягає у формулу 3+3: кухня, вітальня, кімната - на першому поверсі, три кімнати - на другому. У вашому випадку гараж і мастерня створюють явний надлишок площі на другому поверсі. Виходить 7-кімнатник. До того ж, рівень гаража нижчий за рівень першого поверха, про це слід пам'ятати. Ймовірно, варто подумати про терасу над гаражем, як варіант. Але терасу слід робити лише тоді, якщо у вас на другому поверсі буде кафе. Звідки можна винести каву-чай-лимонад-бутерброди. А хто обіцяв, що буде легко? Гараж буде прибудований, в 1 пості було зображення, можу пошукати зображення не з мансардним будинком, а з повними 2 поверхами, але саму суть передає. Тому маємо в акурат класику. На верху 3 спальні, санвузол, гардероб. В низу кабінет, кухня-вітальня, малий санвузол, гардероб (мабуть під сходами влаштую, думаю перенести сходи на сторону фасаду, а вхід змістити до гаража, щоб облаштувати вхід з гаража в тамбур) і прибудований гараж. Терасу на 2 поверсі не хочу, воно прикольно, але нею навряд чи будемо користуватись. Посилання на коментар Поділитися на інших сайтах More sharing options...
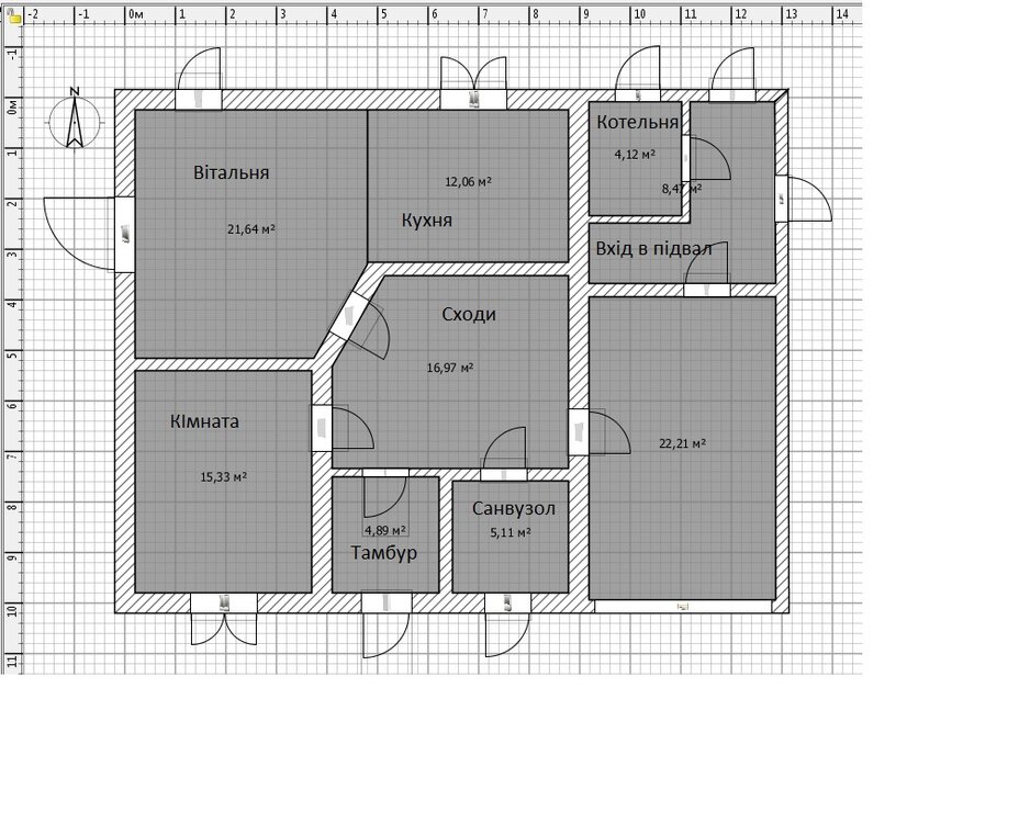
-electron- Опубліковано: 22 вересня 2014 Автор Поділитись Опубліковано: 22 вересня 2014 Прошу критики такого варіанта, запропонованого архітектором. З того, що мені не подобається. Санвузол на другому поверсі має розмір 1870*4020. В ньому в кінці під лівою стіною ставимо ванну, а потім треба думати як поставити горщик і умивальник, щоб і пройти було зручно і не митись, чи сидіти на горщику перед вікном. Думаю збільшити його розширивши на ширину санвузла 1 поверху і гардероба з тамбуром (він вийшов сумісним). Тоді ширина буде майже 3500. Заодно простіше двускатний дах зробити. Хоча архітектор ще фасади не давав, щоб прикинути як воно все виглядати буде. Також не знаю чи варто ділити гардероби на 2 поверсі. Там кожен має аж по цілих 3 квадрата. Думаю може зробити 1 гардероб. Або залишити 3 квадрата зі спальні господарів, і ще з коридора, для всіх. Але мало мені здається. Скажіть чи варто розширювати ванну на 2 поверсі. Посилання на коментар Поділитися на інших сайтах More sharing options...
Andrei constructor Опубліковано: 25 вересня 2014 Поділитись Опубліковано: 25 вересня 2014 Скажіть чи варто розширювати ванну на 2 поверсі. Варто взагалі спитати чи він архітектор, або ні. 1 Посилання на коментар Поділитися на інших сайтах More sharing options...
-electron- Опубліковано: 26 вересня 2014 Автор Поділитись Опубліковано: 26 вересня 2014 Варто взагалі спитати чи він архітектор, або ні. Не зовсім зрозумів сарказму? Я бачу 2 варіанти відповіді. 1 архітектор він, а не я, тому я маю будувати те що він запропонував і не лізти в чужу роботу. 2 він не архітектор, а запропонований ним варіант, мяко кажучи, не вельми якісний. Але для цього я і запитую думку в участників форуму. Щоб почути окрім своєї думки і думки архітектора ще і інші точки зору ;) Можете хоч в 2 словах уточнити що саме не подобається в запропонованому ним варіанті. І чи вірні мої зауваження. Посилання на коментар Поділитися на інших сайтах More sharing options...
Рекомендовані повідомлення
Створіть акаунт або увійдіть у нього для коментування
Ви маєте бути користувачем, щоб залишити коментар
Створити акаунт
Зареєструйтеся для отримання акаунта. Це просто!
Зареєструвати акаунтУвійти
Вже зареєстровані? Увійдіть тут.
Увійти зараз