Andrei constructor Опубліковано: 26 вересня 2014 Поділитись Опубліковано: 26 вересня 2014 Не зовсім зрозумів сарказму? Я бачу 2 варіанти відповіді. 1 архітектор він, а не я, тому я маю будувати те що він запропонував і не лізти в чужу роботу. 2 він не архітектор, а запропонований ним варіант, мяко кажучи, не вельми якісний. Але для цього я і запитую думку в участників форуму. Щоб почути окрім своєї думки і думки архітектора ще і інші точки зору Можете хоч в 2 словах уточнити що саме не подобається в запропонованому ним варіанті. І чи вірні мої зауваження. Другий варіант. Я більше сподівався, що це ваша фантазія і Ви і є той самий архітектор . Для оцінки якості планування необхідно на планах розташувати: меблі, санітарне обладнання, обладнання для кухні, автомобіль (гараж), технічне обладнання, вентканали, сходи з нормальним ухилом маршів та ін. Як тільки Ви це зробите, необхідно буде ментально «пожити» в цьому творінні. В цьому випадку Ви особисто визначите косяки та позитивні моменти планування. 1 Посилання на коментар Поділитися на інших сайтах More sharing options...
loader Опубліковано: 26 вересня 2014 Поділитись Опубліковано: 26 вересня 2014 Прошу критики такого варіанта, запропонованого архітектором. Сами рисовали? :D Добавлено через 6 минут 1 архітектор він, а не я, тому я маю будувати те що він запропонував і не лізти в чужу роботу. суровое раздвоение личности Посилання на коментар Поділитися на інших сайтах More sharing options...
-electron- Опубліковано: 26 вересня 2014 Автор Поділитись Опубліковано: 26 вересня 2014 Сами рисовали? Добавлено через 6 минут суровое раздвоение личности А без тролінгу нізя? Чи я маю доводити, що то планував не я? Мені цікавіше було б критику проекту почитати, а не критику мене;) Другий варіант. Я більше сподівався, що це ваша фантазія і Ви і є той самий архітектор . Для оцінки якості планування необхідно на планах розташувати: меблі, санітарне обладнання, обладнання для кухні, автомобіль (гараж), технічне обладнання, вентканали, сходи з нормальним ухилом маршів та ін. Як тільки Ви це зробите, необхідно буде ментально «пожити» в цьому творінні. В цьому випадку Ви особисто визначите косяки та позитивні моменти планування. Ні я не архітектор. Якби я був ним, то не робив би цього. Санвузол на другому поверсі має розмір 1870*4020. В ньому в кінці під лівою стіною ставимо ванну, а потім треба думати як поставити горщик і умивальник, щоб і пройти було зручно і не митись, чи сидіти на горщику перед вікном. Також не знаю чи варто ділити гардероби на 2 поверсі. Там кожен має аж по цілих 3 квадрата. Думаю може зробити 1 гардероб. Або залишити 3 квадрата зі спальні господарів, і ще з коридора, для всіх. Але мало мені здається. Косяк з санвузлами, холодним гардеробом в тамбурі, я ж сам бачу. Думав більш досвідчені ще щось підкажуть. Меблі розставлю, і подивлюсь як то все буде виглядати. Але думаю, що від цього варіанта відмовлюсь. Буду щось інше думати, щоб архітектор тільки допилював те що я приблизно накидаю. До речі от фасад з варіанта архітектора. Там вікно на 2 поверсі в санвузлі якось не грає і кут нахилу даху над гардеробом треба зменшувати, а то прямо під вікно дах піднімається. Посилання на коментар Поділитися на інших сайтах More sharing options...
loader Опубліковано: 26 вересня 2014 Поділитись Опубліковано: 26 вересня 2014 А без тролінгу нізя? Чи я маю доводити, що то планував не я? Мені цікавіше було б критику проекту почитати, а не критику мене;) без тролинга низя. нарисованое не тянет на архитектора. тот кто рисовал не способен допиливать (ему нужно нарисовать еще сотню вариантов чтобы понять что-то). критику? выбросьте это нафиг и возьмите нормальный проект, где лесница будет помещаться, где топочаня будет иметь вход с дома, где ориентация по сторонам света будет для человека а не для гаража, где в гостинной будет свет, как и в кухне, где вход в комнаты не будет над пустотой, где гараж не будет висеть в воздухе..... Посилання на коментар Поділитися на інших сайтах More sharing options...
-electron- Опубліковано: 26 вересня 2014 Автор Поділитись Опубліковано: 26 вересня 2014 без тролинга низя. нарисованое не тянет на архитектора. тот кто рисовал не способен допиливать (ему нужно нарисовать еще сотню вариантов чтобы понять что-то). Я так їй і скажу Дякую за критику. Спробую відповісти на деякі з моментів. критику? выбросьте это нафиг и возьмите нормальный проект, где лесница будет помещаться, Треба прорахувати довжину сходів, я ще це не робив, архітектор казала про висоту сходинки 15 см глибину 27, ширина 100. Висота стелі 270 в чистому варіанті. где топочаня будет иметь вход с дома, будуть двері з будинку в гараж, а звідти в топочну. Гараж нижче рівня будинку на 60 см, тому під сходами буде 4 сходинки вниз і під площадкою між поверхами вихід в гараж. где ориентация по сторонам света будет для человека а не для гаража, Орієнтація вказана на пару постів вище, (вже продублював) орієнтується не за гаражем, а за розташуванням вулиці, заїзду і існуючих будинків. Житлові кімнати другого поверху на півдні. Коли робив в програмі то не подивився на компас. где в гостинной будет свет, как и в кухне,Треба продивитись где вход в комнаты не будет над пустотой,Знущаєтесь? Чомусь думав, що наявність коридора. Якщо він настільки важливий, то где гараж не будет висеть в воздухе..... А хто сказав, що він висить ;) Рівень очей високо, от тому і здається що він в повітрі. Хотів як краще, так як сканера немає, робив в Світ Хоум план і постив його. От план від архітектора, сорі за якість фото з мобілки . Там ще добавлений еркер збоку, в вітальні, дружина хотіла таку цяцьку. Вже переконав, що воно не потрібно. Посилання на коментар Поділитися на інших сайтах More sharing options...
loader Опубліковано: 26 вересня 2014 Поділитись Опубліковано: 26 вересня 2014 :D ну часть вопросов фото оригинала таҡи сняло, но удобство лесницы, вопрос по высоте в 270 (думаю получше делать 285), выход в гараж-эти остались точно. Посилання на коментар Поділитися на інших сайтах More sharing options...
-electron- Опубліковано: 26 вересня 2014 Автор Поділитись Опубліковано: 26 вересня 2014 :D ну часть вопросов фото оригинала таҡи сняло, но удобство лесницы, вопрос по высоте в 270 (думаю получше делать 285), выход в гараж-эти остались точно. Висота узгоджена в сімї, дякую за пораду, але мабуть таки буде 270. Відносно розрахунків сходів. При висоті 270 і заданій висоті і глибині сходинок я отримую такі параметри. 270+30=300 300/15=20 20 сходинок. в одному марші 10 штук. 10*27 маємо 270. Плюс ширина майданчика 1 метр в купі 370 см. Кут нахилу сходів 29 градусів. Виходить сходи не влізають. Треба або кут збільшувати, або глибину зменшувати. Глибину немає куди вже зменшувати. Маю досвід прогулянок по сходах з глибиною 22 см, чесно скажу не фонтан. Але висота стелі 320 плюс перекриття ще понад 30, в купі з обмеженим простором на першому поверсі не дали можливості зробити нормальні сходи. Можна ще зробити 4 забіжних сходинки з розворотом на 180 градусів, тоді економимо по 2 сходинки на марші. 370-(27*2)=316 так вже влізає. Що саме Вам не подобається в зручності сходів? А то важко архітектору казати, що це не добре без аргументів. Посилання на коментар Поділитися на інших сайтах More sharing options...
loader Опубліковано: 26 вересня 2014 Поділитись Опубліковано: 26 вересня 2014 исота узгоджена в сімї, дякую за пораду, але мабуть таки буде 270.это задача архитектора обьяснять вам и ваша задача решать. Добавлено через 2 минуты Можна ще зробити 4 забіжних сходинки з розворотом на 180 градусів, тоді економимо по 2 сходинки на марші. 370-(27*2)=316 так вже влізає. Що саме Вам не подобається в зручності сходів? вобщемто забежные ступени и есть далеко не самый удобный и безопасный вариант, но опять же см.выше. Посилання на коментар Поділитися на інших сайтах More sharing options...
-electron- Опубліковано: 26 вересня 2014 Автор Поділитись Опубліковано: 26 вересня 2014 А відносно зручності сходів? Маєте на увазі, що при заданих габаритах отримуємо кут менше 30 градусів і малу глибину сходинки? По габаритах не влізає також. Треба кут збільшувати. От погрався з розмірами і отримав наступні результати. кут 33,2 Висота підйому 3000 мм Довжина сходового отвору в плані 3160 мм Ширина площадки 1000 мм Кількість ступенів 17 -до сходинкового майданчика 8 Товщина ступенів 50 мм Виступ сходинок 50 мм Розміри ступенів Висота сходинок 176 мм Глибина сходинок 320 мм Відстань від стіни до першої сходинки 316 см. Про забіжні знаю, зараз такими користуюсь. З майданчиком воно краще. От варіант з 4 забіжними Кут нахилу сходів 33.5° Висота сходи 3000 мм Довжина сходового отвору в плані 2600 мм Ширина площадки 1000 мм Кількість ступенів 17 Поворотних ступенів 4 Кількість кроків нижче забіжних 7 Товщина ступенів 50 мм Виступ сходинок 50 мм від рівня підлоги Розміри ступенів Глибина сходинок 317 мм Висота сходинок 176 мм Відстань від стіни до 1 сходинки 286,7 см. Посилання на коментар Поділитися на інших сайтах More sharing options...
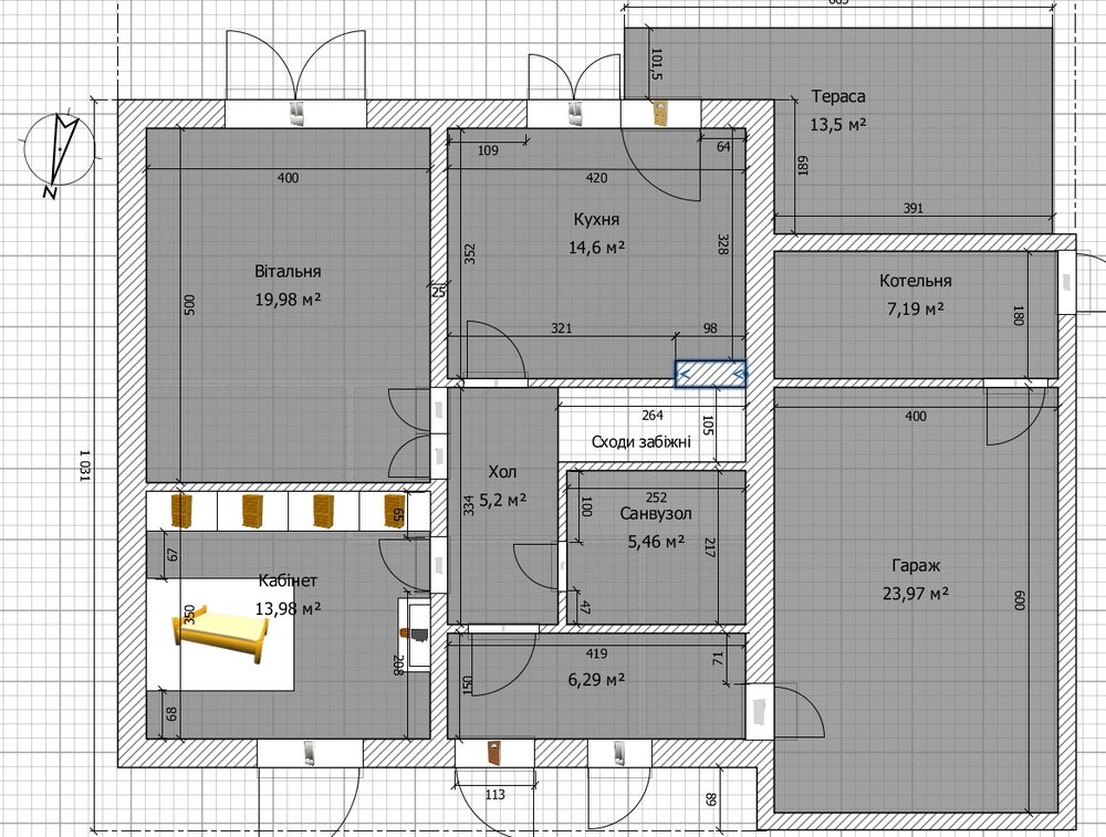
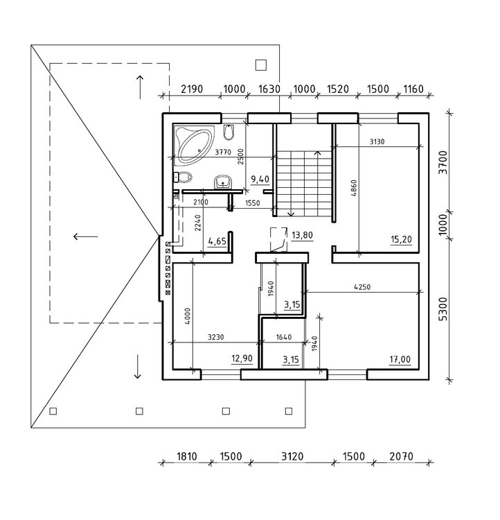
-electron- Опубліковано: 6 травня 2015 Автор Поділитись Опубліковано: 6 травня 2015 Спробую ще раз апнути тему. Може щось вийде. Прошу нещадної критики проекту. Меблі, техніку, розставлю пізніше. Є уявлення як воно має стояти, але в тій програмі в якій працюю на плані показує квадратики, нормально буде видно на візуалізації. Сходи забіжні нижче кухні, потім поворот і над санвузлом, під сходи стає з боку гаража пральна машина (під поворотом) а з боку від коридору стає душова кабінка. На другому поверсі санвузол виходив понад 10 квадратів, це трішки перебор, тому поки що вирішили відділити в кінці кімнатку, можливо потім сауну зробимо. Котельня між гаражем і терасою. В будинку буде два димо вентканали. Один показаний на кухні, а інший буде з санвузлів 3 канали вентиляція і фанова труба, але буде прямо в стіні. Сходи прораховував тут www.zhitov.ru/uk/lestnica5/ Рекомендації Матч формула об'єктів Глибина сходини достатня Зручний кут нахилу сходів 33.8° Зручна сходи Висота сходи 3000 мм Довжина сходового отвору в плані 2680 мм Ширина площадки 1000 мм Кількість ступенів 16 Поворотних ступенів 4 Кількість кроків нижче Ротарі клубів 6 Товщина ступенів 50 мм Виступ сходинок 50 мм Розміри сходинок Глибина сходинок 330 мм Висота сходинок 188 мм Висота підсходинки 138 мм Можна ще погратись і зробити на одну сходинку до повороту більше зробити і винести її вперед, така собі запрошуюча сходинка. Освітлення сходів буде за рахунок вікна над поворотом. Коли зроблю дах гаража то подивлюсь як воно буде. Дах двухскатний, скати опираються на стіну між будинком і гаражем і протилежну (східна-західна), дах гаража повернутий на 90 градусів. Поки фасади не даю, так як спочатку б плани допилити. Посилання на коментар Поділитися на інших сайтах More sharing options...
apxitektop.s Опубліковано: 6 травня 2015 Поділитись Опубліковано: 6 травня 2015 Спробую ще раз апнути тему. Може щось вийде. Багато нюансів, що ви не описали, також не вистачає розмірів для орієнтації в вашому кресленні, багато питань щодо вентиляції як самого гаража, так до прикладу на мій погляд - вентиляція топочної у вас іраціональна якась, ну і санвузла що поруч...Не є зрозумілим чому така тонка стіна посередині, я так розумію ви застосовуватимете ПК плити чи як ? Щоб давати поради - треба ставити конкретні питання ), але ліпше в вашому випадку, як вам вже радили вище - знайти архітектора, який би до прикладу все перекреслив, взявши за основу набір приміщень, що вам потрібен, їх квадратуру, ну і все б переробив як треба Посилання на коментар Поділитися на інших сайтах More sharing options...
loader Опубліковано: 7 травня 2015 Поділитись Опубліковано: 7 травня 2015 Спробую ще раз апнути тему. Може щось вийде. Прошу нещадної критики проекту. выгнали таки архитектора или как? :D задам вопрос - у вас вполне стандартный набор помещений, если не хотите архитектора, может стоит обратить внимание на готовый проект? 1 Посилання на коментар Поділитися на інших сайтах More sharing options...
-electron- Опубліковано: 7 травня 2015 Автор Поділитись Опубліковано: 7 травня 2015 выгнали таки архитектора или как? :D задам вопрос - у вас вполне стандартный набор помещений, если не хотите архитектора, может стоит обратить внимание на готовый проект? Та ні не вигнали. З тим який ваяв перший проект розпрощались, залишивши їй завдаток. Хоча вона не робила нічого, просто дала на розгляд два готових проекти. Ну то таке. Потім знайшли другого. Вона зробила проект, але там є кімнати розміром 3*5 метрів короче за роботу заплатили і теж розпрощались, проект на руках є, але будувати за ним бажання немає. Знайшли іншого дали плани які треба було допилити і зробити фасади. На виході зробила все від фонаря, там навіть розміри не грали, а по фасадам був не симетричний фронтон, при чому не з тилу, а з вулиці, кажу треба щось робити. Відповідь мене вбила думайте самі :o:o Прикольно так платиш гроші і сам все думаєш. Шукати четвертого, воювати з ним, щоб отримати проект, або самому все робити, а він просто надрукує і поставить автограф (як мало бути з третім) якось не прикольно. Готових просто не можу знайти. Воно то є готові, але на мою ділянку не стануть. Треба проект в якому жилі кімнати виходять на тил (в мене там південь), котельня не в середині будинку, а збоку, та ще і з виходом на зад, так як топити буду дровами і не хочу тягати їх через перед. Плюс ззаду можна біля будинку їх скласти, щоб не далеко носити, а от спереду так не вийде, а взимку холодно їх тягати. Тераса ззаду будинку. От я дав план який зробив другий архітектор. Там все враховано, санвузел і кухня на першому поверсі зібрані до купи, тобто мала відстань від бойлера в котельній і не довго треба буде чекати поки тепла вода дійде. Але кімната біля сходів 3000*4850 це щось.3.pdf 1 Посилання на коментар Поділитися на інших сайтах More sharing options...
-electron- Опубліковано: 7 травня 2015 Автор Поділитись Опубліковано: 7 травня 2015 Багато нюансів, що ви не описали, також не вистачає розмірів для орієнтації в вашому кресленні, багато питань щодо вентиляції як самого гаража, так до прикладу на мій погляд - вентиляція топочної у вас іраціональна якась, ну і санвузла що поруч...Не є зрозумілим чому така тонка стіна посередині, я так розумію ви застосовуватимете ПК плити чи як ? Щоб давати поради - треба ставити конкретні питання ), але ліпше в вашому випадку, як вам вже радили вище - знайти архітектора, який би до прикладу все перекреслив, взявши за основу набір приміщень, що вам потрібен, їх квадратуру, ну і все б переробив як треба Я вже з трьома архітекторами мав справу, на виході купа викинених на вітер грошей..... Перекриття моноліт, стіни 250 не достатньо? Чим саме іраціональна вентиляція топочної? Я розвернув канали, щоб вони йшли вздовж скатів і переніс в будинок, щоб взимку не промерзали. В гаражі буде просто прохід через дах, чимось на зразок Вільпе. Розміри зараз проставлю, заодно розміри дверей зміню, а то автоматом поставило всюди 90 см. Посилання на коментар Поділитися на інших сайтах More sharing options...
apxitektop.s Опубліковано: 7 травня 2015 Поділитись Опубліковано: 7 травня 2015 Я вже з трьома архітекторами мав справу, на виході купа викинених на вітер грошей..... Перекриття моноліт, стіни 250 не достатньо? Чим саме іраціональна вентиляція топочної? Я розвернув канали, щоб вони йшли вздовж скатів і переніс в будинок, щоб взимку не промерзали. В гаражі буде просто прохід через дах, чимось на зразок Вільпе. Розміри зараз проставлю, заодно розміри дверей зміню, а то автоматом поставило всюди 90 см. Ви скорше винаймали студентів, які готові розробити всі частини робочого проекту за 70 грн/м2, а треба бути реалістом, тому й гроші на вітер, як приклад, коли хочеш купити файний adidas, а на базарі купуєш - китайський Abibbas і дивуєшся його якості і ногам які його пошили, але останній проект, то виключення з правил - виглядає нормальним, що ви виклали От я дав план який зробив другий архітектор. Там все враховано, санвузел і кухня на першому поверсі зібрані до купи, тобто мала відстань від бойлера в котельній і не довго треба буде чекати поки тепла вода дійде. Але кімната біля сходів 3000*4850 це щось. Стіна цегляна в 250 мм - умовно кажучи без достатнього розрахунку, то є просто перегородка, а не несуча стіна. Окрім того, по факту, ви дуже рідко в своїх питаннях - буваєте конкретні, ось до прикладу питаєте про стіну в 250 мм, а не описуєте важливі речі, такі як з якого матеріалу вона. Ви взяли за основу той проект архітектора, що я писав тут вище, як бачите там - стіни не 250 мм, а 380 Посилання на коментар Поділитися на інших сайтах More sharing options...
-electron- Опубліковано: 7 травня 2015 Автор Поділитись Опубліковано: 7 травня 2015 Ви скорше винаймали студентів, які готові розробити всі частини робочого проекту за 70 грн/м2, а треба бути реалістом, тому й гроші на вітер, як приклад, коли хочеш купити файний adidas, а на базарі купуєш - китайський Abibbas і дивуєшся його якості і ногам які його пошили, але останній проект, то виключення з правил - виглядає нормальним, що ви виклали Стіна цегляна в 250 мм - умовно кажучи без достатнього розрахунку, то є просто перегородка, а не несуча стіна. Окрім того, по факту, ви дуже рідко в своїх питаннях - буваєте конкретні, ось до прикладу питаєте про стіну в 250 мм, а не описуєте важливі речі, такі як з якого матеріалу вона. Ви взяли за основу той проект архітектора, що я писав тут вище, як бачите там - стіни не 250 мм, а 380 Та не студентів. Хоча може в 40-50 років і бувають студенти за станом душі. Був в двох різних конторах, не з вулиці брав проектантів. Але то таке, не про це зараз мова іде. До речі яку ціну за екскізний проект Ви вважаєте коректною? Стіна з керамблоку, типа 2нф місцевого розливу. Можу збільшити до 380, то не є проблема. Я в сусідній темі запитався в конструктора з приводу товщини стіни. Що відносно вентиляції? Чому саме вона іраціональна? Посилання на коментар Поділитися на інших сайтах More sharing options...
apxitektop.s Опубліковано: 7 травня 2015 Поділитись Опубліковано: 7 травня 2015 Та не студентів. Хоча може в 40-50 років і бувають студенти за станом душі. Був в двох різних конторах, не з вулиці брав проектантів. Але то таке, не про це зараз мова іде. До речі яку ціну за екскізний проект Ви вважаєте коректною? Стіна з керамблоку. Можу збільшити до 380, то не є проблема. Що відносно вентиляції? Чому саме вона іраціональна? так треба визначитись взагалі з матеріалом, то до прикладу для цегли я б зробив ту стіну в 380 мм, а газобетон в 300мм, якщо буде монолітний пояс. Керамоблок так само як і газобетон, тут теж обов'язково даємо пояс під кроквяними конструкціями та під перекриттям. Так, можливо в 40-50 років, то може й не архітектори були, а в проектній конторі сидять багато наших суміжників - конструктора в сфері ПЦБ, інженери - ОВ, ВК, електрики, та й так, начальство як правило дає таку роботу студентам практикантам, то ж можливо ці архітектори виступали в ролі менеджерів, а роботу давали - практикантам Що відносно вентиляції? Чому саме вона іраціональна? на тому останньому кресленні, де робив архітектор - все окей з вентиляцією і зрозуміло, окрім відсутності вентиляції самого гаража але на ваших попередніх планах, планування ж інші, тому питання було актуальне саме до тих планів, які вже накидували ви Посилання на коментар Поділитися на інших сайтах More sharing options...
-electron- Опубліковано: 7 травня 2015 Автор Поділитись Опубліковано: 7 травня 2015 так треба визначитись взагалі з матеріалом, то до прикладу для цегли я б зробив ту стіну в 380 мм, а газобетон в 300мм, якщо буде монолітний пояс. Керамоблок так само як і газобетон, тут теж обов'язково даємо пояс під кроквяними конструкціями та під перекриттям. Так, можливо в 40-50 років, то може й не архітектори були, а в проектній конторі сидять багато наших суміжників - конструктора в сфері ПЦБ, інженери - ОВ, ВК, електрики, та й так, начальство як правило дає таку роботу студентам практикантам, то ж можливо ці архітектори виступали в ролі менеджерів, а роботу давали - практикантам Стоп, тобто лиючи моноліт на це Керамический блок 2NF (эквивалент 2,12 шт. условного кирпича) www.sbk.com.ua/product/prod-nf Треба робити армопояс? Під кроквами і плитами перекриття я знаю, а під моноліт? І що відносно ціни на екскізний проект? А також відносно вентиляції? Посилання на коментар Поділитися на інших сайтах More sharing options...
apxitektop.s Опубліковано: 7 травня 2015 Поділитись Опубліковано: 7 травня 2015 Треба робити армопояс? Під кроквами і плитами перекриття я знаю, а під моноліт? І що відносно ціни на екскізний проект? А також відносно вентиляції? я відповів стосовно вентиляції вище, звісно, треба робити пояс, якщо цей блок буде сприймати навантаження , та й блок цей, скорше під перегородку в 120мм. всього, а тому він не є актуальним. так само й під моноліт, цей керамоблок, так само погано сприймає горизонтальні навантаження як і газобетонний блок, тому й роблять пояса = щоб розподілити навантаження рівномірно, та прибрати розпір, до прикладу від даху. Стосовно ескізного проекту, я рідко роблю тільки його, зазвичай роблю комплекс, де ескізний проект, то тільки початок, зазвичай проект містить в собі : ескізну частину архітектурну конструктивну. По цінам та умовам - закинув відповідь вам особисто Посилання на коментар Поділитися на інших сайтах More sharing options...
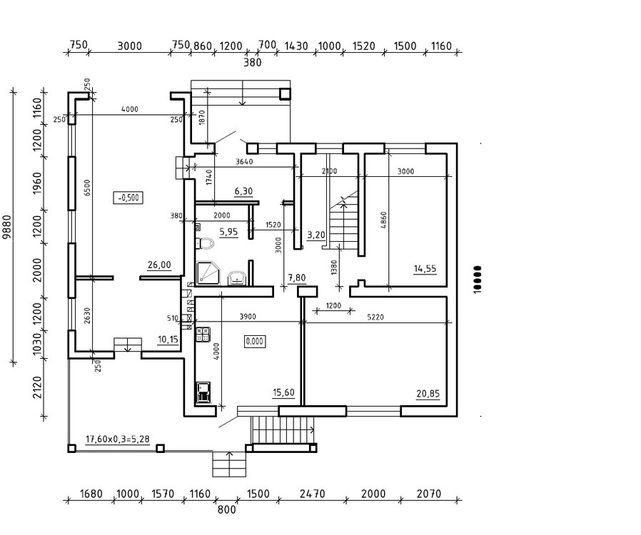
-electron- Опубліковано: 7 травня 2015 Автор Поділитись Опубліковано: 7 травня 2015 я відповів стосовно вентиляції вище, звісно, треба робити пояс, якщо цей блок буде сприймати навантаження , та й блок цей, скорше під перегородку в 120мм. всього, а тому він не є актуальним. так само й під моноліт, цей керамоблок, так само погано сприймає горизонтальні навантаження як і газобетонний блок, тому й роблять пояса = щоб розподілити навантаження рівномірно, та прибрати розпір, до прикладу від даху. Тут якось не так Прямо на кладку лили плиту перекриття. Завжди читав, що переваги плит це швидкість монтажу, а в моноліту зачасту називають перевагу це відсутність армопоясу і чорнової стяжки. Скажіть навіщо під монолітну плиту армопояс? Монолітна плита ж не розїдеться, як можуть зробити готові плити, а навантаження в сусільної плити теж відносно рівномірно розподілиться, а не як в наборних плит, тиск іде виключно на те на що вона опирається. Тут же опирається весь поверх на всі несучі стіни. І не важливо в якому місці стоїть ванна повна води, де шафа, а де нічого немає Відносно того що цей блок під перегородку, в нас всі 5-9 поверхівки з нього зроблені, і нічого стоять, навіть не один землетрус витримали. З вентиляцією подумаю. Дякую за підказку Не хотів її розвертати вздовж стіни, так як тоді вона іде поперек скату (я розвернув дах) і не хотілось би дах ускладнювати, а зробити простий 2 скатний без виступів і тд. От перший поверх з розмірами. В одній кімнаті розклав меблі. І план ділянки Посилання на коментар Поділитися на інших сайтах More sharing options...
apxitektop.s Опубліковано: 7 травня 2015 Поділитись Опубліковано: 7 травня 2015 Тут якось не так Прямо на кладку лили плиту перекриття. Завжди читав, що переваги плит це швидкість монтажу, а в моноліту зачасту називають перевагу це відсутність армопоясу і чорнової стяжки. Скажіть навіщо під монолітну плиту армопояс? Монолітна плита ж не розїдеться, як можуть зробити готові плити, а навантаження в сусільної плити теж відносно рівномірно розподілиться, а не як в наборних плит, тиск іде виключно на те на що вона опирається. Тут же опирається весь поверх на всі несучі стіни. І не важливо в якому місці стоїть ванна повна води, де шафа, а де нічого немає Відносно того що цей блок під перегородку, в нас всі 5-9 поверхівки з нього зроблені, і нічого стоять, навіть не один землетрус витримали. З вентиляцією подумаю. Дякую за підказку Не хотів її розвертати вздовж стіни, так як тоді вона іде поперек скату (я розвернув дах) і не хотілось би дах ускладнювати, а зробити простий 2 скатний без виступів і тд. От перший поверх з розмірами. В одній кімнаті розклав меблі. І план ділянки Все залежить від типу, та конструктиву монолітної плити, адже так званий пояс може буде невідємною частиною плити монолітної , розгляньте до прикладу консруктив від Теріва, тощо... Щодо швидкості , тут спірне питання ), як на мене, то мені простіше по часу за півдня покласти плити ПК, ніж виставляти опалубку і очікувати відносно довго технологічну перерву до того, як бетон набере необхідну міцність в монолітній плиті. Щодо вашого плану, нащо той простінок 980 мм в районі кухні, адже санвузли у вас і так розділені й всі канали можна заліпити в стіну між гаражем та будинком Посилання на коментар Поділитися на інших сайтах More sharing options...
-electron- Опубліковано: 7 травня 2015 Автор Поділитись Опубліковано: 7 травня 2015 Все залежить від типу, та конструктиву монолітної плити, адже так званий пояс може буде невідємною частиною плити монолітної , розгляньте до прикладу консруктив від Теріва, тощо.. Ні я буду лити саму звичайну плиту, арматура і бетон. Хочу мати нормальне суцільне перекриття, я памятаю як мінімум 3 землетруси, останній недавно я відчував на 2 поверсі. Тому зупинився на такому варіанті. ;) Посилання на коментар Поділитися на інших сайтах More sharing options...
apxitektop.s Опубліковано: 7 травня 2015 Поділитись Опубліковано: 7 травня 2015 Ні я буду лити саму звичайну плиту, арматура і бетон. Хочу мати нормальне суцільне перекриття, я памятаю як мінімум 3 землетруси, останній недавно я відчував на 2 поверсі. Тому зупинився на такому варіанті. Звісно треба врахувати тоді сейсмічність вашої ділянки, це впливає на конструктивні рішення і з цим треба рахуватись при армуванні, тощо... Посилання на коментар Поділитися на інших сайтах More sharing options...
-electron- Опубліковано: 7 травня 2015 Автор Поділитись Опубліковано: 7 травня 2015 Звісно треба врахувати тоді сейсмічність вашої ділянки, це впливає на конструктивні рішення і з цим треба рахуватись при армуванні, тощо... Ну це вже запитання конструктиву, на разі вони не на часі. Як відносно планів? Які ще косяки окрім вентиляції? Посилання на коментар Поділитися на інших сайтах More sharing options...
loader Опубліковано: 7 травня 2015 Поділитись Опубліковано: 7 травня 2015 Як відносно планів? Які ще косяки окрім вентиляції? а можно глянуть на детальную посадку на участок, так чтоб были комнаты первого этажа, дорога, дом соседа, место для септика, колодец/скважина. Посилання на коментар Поділитися на інших сайтах More sharing options...
Рекомендовані повідомлення
Створіть акаунт або увійдіть у нього для коментування
Ви маєте бути користувачем, щоб залишити коментар
Створити акаунт
Зареєструйтеся для отримання акаунта. Це просто!
Зареєструвати акаунтУвійти
Вже зареєстровані? Увійдіть тут.
Увійти зараз