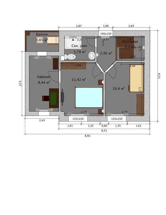
SergeyNikolaevich Опубліковано: 22 лютого 2015 Поділитись Опубліковано: 22 лютого 2015 Всем привет. Помогите с планировкой моего домика, а то у меня уже иссякли идеи. Размеры дома и несущие стены двигать поздно потому что уже залит фундамент с перекрытым подвалом. Расположение лестницы тоже не изменить. Дом находится на участке с уклоном, наивысшая точка со стороны входа. Лично меня смущает площадь отведенная под лестницу, ну и размер кухни тоже. Первый этаж Второй этаж Посилання на коментар Поділитися на інших сайтах More sharing options...
Сватик Опубліковано: 22 лютого 2015 Поділитись Опубліковано: 22 лютого 2015 Всем привет. Помогите с планировкой моего домика, а то у меня уже иссякли идеи. Размеры дома и несущие стены двигать поздно потому что уже залит фундамент с перекрытым подвалом. Расположение лестницы тоже не изменить. Дом находится на участке с уклоном, наивысшая точка со стороны входа. Лично меня смущает площадь отведенная под лестницу, ну и размер кухни тоже. Первый этаж [ATTACH]415989[/ATTACH] Второй этаж [ATTACH]415990[/ATTACH] Доброго вечера , из чего строить собираетесь ? сколько по затратам ушло за фундамент ? в какую сумму планируете уложиться по коробке ? Посилання на коментар Поділитися на інших сайтах More sharing options...
SergeyNikolaevich Опубліковано: 22 лютого 2015 Автор Поділитись Опубліковано: 22 лютого 2015 Доброго вечера , из чего строить собираетесь ? Стены в полтора кирпича, перекрытие жб плиты сколько по затратам ушло за фундамент ? уже не помню, материалы скупал в разное время, работу делали три разные бригады %) в какую сумму планируете уложиться по коробке ? без понятия, с таким курсом и такими ценами... Посилання на коментар Поділитися на інших сайтах More sharing options...
seyvalter Опубліковано: 24 лютого 2015 Поділитись Опубліковано: 24 лютого 2015 кухня 4 квадрата - це вдвоє менше за норматив - можуть бути проблеми з газифікацією. крім того - кухня далеко від ванни. Я б радив перекинути кухню на місце де коридор і сходи -а сходи - на місце кухні. тоді кухня буде через стіну від ванни - що є добре. А сходи - будуть відкриті - з залу - що буде цікаво дивитись у інтерєрі. Ну і відповідно 2-й поверх перекроїтся. 1 Посилання на коментар Поділитися на інших сайтах More sharing options...
Перманент Опубліковано: 25 лютого 2015 Поділитись Опубліковано: 25 лютого 2015 Кухня маленькая. Стол не поставите, кухню увеличить в 3 раза точно для удобства кашеварить, для пожарных норм, для уюта, в кухне можете установить также котел настенный, что бы не делать котельную отдельную. Если строите дом то на 2 этаже сан.узел сделайте с ванной или джакузи. Столько бабла вкладывать для душа одного с учетом того что этот дом вам на всю жизнь точно не целесообразно. А так в принципе мне нравится и конструкции кирпич, плиты ж/б. Прочный, надежный дом. Утеплить только грамотно снаружи и хорошее экономичное отопления сделать, и крышу утеплить мин ватой или базальтовой 200-300 мм. И можете наслаждаться своей маленькой резиденцией. Посилання на коментар Поділитися на інших сайтах More sharing options...
SergeyNikolaevich Опубліковано: 25 лютого 2015 Автор Поділитись Опубліковано: 25 лютого 2015 Кухня маленькая. Стол не поставите, кухню увеличить в 3 раза точно для удобства кашеварить, для пожарных норм, для уюта, в кухне можете установить также котел настенный, что бы не делать котельную отдельную. Маленькая. Но предполагается что на ней только кашу и варить. Для покушать рядом с кухней в гостинной стоит большой стол и стулья. Это типа студия, большой проем без двери будет соединять кухню с гостинной. Котельная у меня в подвале, как раз под прихожей и кухней. Под домом подвал на всю площадь с высотой стен 2.7м. Если строите дом то на 2 этаже сан.узел сделайте с ванной или джакузи. Столько бабла вкладывать для душа одного с учетом того что этот дом вам на всю жизнь точно не целесообразно. Думал об этом, но отговорил себя Ванну у нас в семье только ребенок принимает, мы же в душе моемся. На втором этаже планирую душкабину с глубоким поддоном, будет детям ванная. Второй санузел наверху получился исключительно для удобства, потому как лестница маленька и похоже что будет крутая. Чтобы лишний раз из спальни по ней не бегать продублировал сан узел на втором этаже. Посилання на коментар Поділитися на інших сайтах More sharing options...
SergeyNikolaevich Опубліковано: 25 лютого 2015 Автор Поділитись Опубліковано: 25 лютого 2015 В моем случае, судя по фото, еще не все так плохо Посилання на коментар Поділитися на інших сайтах More sharing options...
ПГС-Проект Опубліковано: 25 лютого 2015 Поділитись Опубліковано: 25 лютого 2015 В моем случае, судя по фото, еще не все так плохо В тесноте- да не в обиде! Посилання на коментар Поділитися на інших сайтах More sharing options...
Odessit Опубліковано: 25 лютого 2015 Поділитись Опубліковано: 25 лютого 2015 Переименуйте тему. У меня сейчас соседи строятся - 6*4 метра. Вот это крошечный домик. У вас - нормальный размер. По теме - мало места для лестницы. Ничего удобного туда не впихнешь. Посилання на коментар Поділитися на інших сайтах More sharing options...
SergeyNikolaevich Опубліковано: 25 лютого 2015 Автор Поділитись Опубліковано: 25 лютого 2015 Переименуйте тему. По теме - мало места для лестницы. Ничего удобного туда не впихнешь. та да...может если уменьшить высоту потолка с 2.7 до 2.5 то уже можно на одну ступеньку меньше делать. Посилання на коментар Поділитися на інших сайтах More sharing options...
AНДРЮША Опубліковано: 26 лютого 2015 Поділитись Опубліковано: 26 лютого 2015 А среднюю стену нельзя подвинуть, чтобы дверь впихнуть (по рис. из с\у в прихожую)? Тогда бы я поменял местами прихожую и с\у. Вместе с коридором прихожая будет просторная, лестницу можно подвигать, и вход в с\у и второй этаж будет скрыт из гостиной. А сейчас студия транзитная зона. Посилання на коментар Поділитися на інших сайтах More sharing options...
SergeyNikolaevich Опубліковано: 26 лютого 2015 Автор Поділитись Опубліковано: 26 лютого 2015 (змінено) А среднюю стену нельзя подвинуть, чтобы дверь впихнуть (по рис. из с\у в прихожую)? Тогда бы я поменял местами прихожую и с\у. Вместе с коридором прихожая будет просторная, лестницу можно подвигать, и вход в с\у и второй этаж будет скрыт из гостиной. А сейчас студия транзитная зона. Фундамент с подвалом уже залит и перекрыт. Несущие стены двигать поздно. Змінено 26 лютого 2015 користувачем SergeyNikolaevich Посилання на коментар Поділитися на інших сайтах More sharing options...
ScorpMax Опубліковано: 26 лютого 2015 Поділитись Опубліковано: 26 лютого 2015 Всем привет. Помогите с планировкой моего домика, а то у меня уже иссякли идеи. Размеры дома и несущие стены двигать поздно потому что уже залит фундамент с перекрытым подвалом. Расположение лестницы тоже не изменить. Дом находится на участке с уклоном, наивысшая точка со стороны входа. Лично меня смущает площадь отведенная под лестницу, ну и размер кухни тоже. Лестница не войдёт нормально. Как Вам такой вариант: Объединяем площадь прихожей и кухни - получаем более менее нормальную кухню, Вход в дом делаем там где ванная - объединяем прихожую и зону лестницы, На первом этаже оставляем только туалет, размещаем его под лестницей тут надо покрутить лестницу будет но варианты есть. В вашем варианте чтобы попасть на второй этаж, кухню, туалет надо всегда пройти через гостиную. Вы старались сделать студию а получили кучу дверей и проходную комнату, попробуйте обыграть и другие варианты например вынести лестницу на второй этаж в зал и сделать её элементом декора. 1 Посилання на коментар Поділитися на інших сайтах More sharing options...
SergeyNikolaevich Опубліковано: 26 лютого 2015 Автор Поділитись Опубліковано: 26 лютого 2015 Лестница не войдёт нормально. Как Вам такой вариант: Объединяем площадь прихожей и кухни - получаем более менее нормальную кухню, Вход в дом делаем там где ванная - объединяем прихожую и зону лестницы, На первом этаже оставляем только туалет, размещаем его под лестницей тут надо покрутить лестницу будет но варианты есть. В вашем варианте чтобы попасть на второй этаж, кухню, туалет надо всегда пройти через гостиную. Вы старались сделать студию а получили кучу дверей и проходную комнату, попробуйте обыграть и другие варианты например вынести лестницу на второй этаж в зал и сделать её элементом декора. Тут не все так просто, плиты перекрытия уже лежат, а под домом подвал. Выделить два места под лестницу с моими размерами дома не получится. Посилання на коментар Поділитися на інших сайтах More sharing options...
ScorpMax Опубліковано: 26 лютого 2015 Поділитись Опубліковано: 26 лютого 2015 Тут не все так просто, плиты перекрытия уже лежат, а под домом подвал. Выделить два места под лестницу с моими размерами дома не получится. Да понятно что непросто, но надо думать, как на меня толку с подвала если в него ТОЖЕ надо идти через Зал. И я могу ошибаться но кто Вам даст добро разместить котёл в подвале, хотя если у вас участок неровный и есть окно в котельную то впринципе могут дать добро, мне пришлось поставить газовый анализатор и клапан на подвод газа к котлу - чему в итоге несказанно рад. Посилання на коментар Поділитися на інших сайтах More sharing options...
SergeyNikolaevich Опубліковано: 26 лютого 2015 Автор Поділитись Опубліковано: 26 лютого 2015 Да понятно что непросто, но надо думать, как на меня толку с подвала если в него ТОЖЕ надо идти через Зал. И я могу ошибаться но кто Вам даст добро разместить котёл в подвале, хотя если у вас участок неровный и есть окно в котельную то впринципе могут дать добро, мне пришлось поставить газовый анализатор и клапан на подвод газа к котлу - чему в итоге несказанно рад. Да, не ровный, есть окна. Размер окна, размер двери, размер и кубатура комнаты под котельную с лихвой перекрывают требования. Посилання на коментар Поділитися на інших сайтах More sharing options...
Татьяна5 Опубліковано: 26 лютого 2015 Поділитись Опубліковано: 26 лютого 2015 Что-то пропустила - почему нельзя сменить место лестницы? При таких микроразмерах придется чем-то поступиться. Я бы разместила лестницу и горшок под лестницей на месте кухни (все равно все жилые зоны на втором этаже, потому не вижу смысла в душе на первом этаже), а кухню закинула на место текущего санузла, коридора и лестницы Посилання на коментар Поділитися на інших сайтах More sharing options...
SergeyNikolaevich Опубліковано: 26 лютого 2015 Автор Поділитись Опубліковано: 26 лютого 2015 Что-то пропустила - почему нельзя сменить место лестницы? Придется плиты разбирать, дозаказывать другого размера, и по новой ложить. И спуск в подвал получится через котельню. Или устроить две лестницы в доме: одна в подвал, другая на верх. Этот вариант сожрет еще места. Посилання на коментар Поділитися на інших сайтах More sharing options...
Татьяна5 Опубліковано: 26 лютого 2015 Поділитись Опубліковано: 26 лютого 2015 можно в подвал сделать вход извне дома? Посилання на коментар Поділитися на інших сайтах More sharing options...
ScorpMax Опубліковано: 26 лютого 2015 Поділитись Опубліковано: 26 лютого 2015 можно в подвал сделать вход извне дома? Да при желании можно, только бежать за банкой огурцов в кладовку через улицу :) - как то не очень. SergeyNikolaevich покрутите ещё свой проект - извините, очень смахивает на старые проходные хрущёвки. По лестнице будет просто жесть если вы её разместите в том объёме который выделили. Посилання на коментар Поділитися на інших сайтах More sharing options...
SergeyNikolaevich Опубліковано: 26 лютого 2015 Автор Поділитись Опубліковано: 26 лютого 2015 можно в подвал сделать вход извне дома? Поздно. Там ФБСки, два слоя рубероида, обратная засыпка сделана. Добавлено через 2 минуты Да при желании можно, только бежать за банкой огурцов в кладовку через улицу :) - как то не очень. SergeyNikolaevich покрутите ещё свой проект - извините, очень смахивает на старые проходные хрущёвки. По лестнице будет просто жесть если вы её разместите в том объёме который выделили. Да, сходство с хрущевкой я тоже заметил...особенно кухня Одно тешит, что в отличии от хрущевки здесь прилагается двор, сад, беседки, огород и хороший вид из окна Посилання на коментар Поділитися на інших сайтах More sharing options...
SergeyNikolaevich Опубліковано: 26 лютого 2015 Автор Поділитись Опубліковано: 26 лютого 2015 (змінено) Подвигал я лестницу по плану, перенес кухню, санузел...в общем больше минусов чем плюсов. Сейчас у меня окна кухни и гостинной выходят на южную сторону, так же как и окна спален и кабинета. Если двигается лестница, то двигаются и комнаты, в итоге у одной комнаты всегда получается окнама с северной стороны, а кабинет и вовсе выпадает из плана. Еще минус, то что дорога с северной стороны и выше на 2.5 метра от пола первого этажа, т.е. с дороги будут просматриваться окна спальни. Просчитал для текущего плана одномаршевую лестницу со средними забежными ступенями с поворотом на 180 градусов, получается 17 ступеней высотой 16см, с шириной полки 29см и нависанием проступни 50мм. При условии что 6 ступеней на повороте не прямоугольные. Как думаете, будет удобно? Змінено 26 лютого 2015 користувачем SergeyNikolaevich Посилання на коментар Поділитися на інших сайтах More sharing options...
Sерджио Опубліковано: 27 лютого 2015 Поділитись Опубліковано: 27 лютого 2015 Переименуйте тему. У меня сейчас соседи строятся - 6*4 метра. Вот это крошечный домик. У вас - нормальный размер. По теме - мало места для лестницы. Ничего удобного туда не впихнешь. А винтовую интересно туда можно было бы впихнуть? Посилання на коментар Поділитися на інших сайтах More sharing options...
SergeyNikolaevich Опубліковано: 27 лютого 2015 Автор Поділитись Опубліковано: 27 лютого 2015 А винтовую интересно туда можно было бы впихнуть? Винтовую куда угодно можно впихнуть. По ней достаточно один раз подняться и спуститься, сразу приходит понимание что она уместна только в маяке 2 Посилання на коментар Поділитися на інших сайтах More sharing options...
Sерджио Опубліковано: 27 лютого 2015 Поділитись Опубліковано: 27 лютого 2015 Ну, не буду спорить, поднимался не так давно по винтовой и таких ощущений не было. Просто размер Вашего помещения под обычную, маршевую лестницу все же маловат. Посилання на коментар Поділитися на інших сайтах More sharing options...
Рекомендовані повідомлення
Створіть акаунт або увійдіть у нього для коментування
Ви маєте бути користувачем, щоб залишити коментар
Створити акаунт
Зареєструйтеся для отримання акаунта. Це просто!
Зареєструвати акаунтУвійти
Вже зареєстровані? Увійдіть тут.
Увійти зараз