Yurii_ Опубліковано: 8 квітня 2015 Поділитись Опубліковано: 8 квітня 2015 (змінено) Есть хатка 85 кв.м жилой этаж - теплый пол 80 кв. м мансарда - радиаторы 85 кв. м цоколь - радиаторы на всяк случай разведу, но вот топить - х. з., поживем увидим, а пока не планирую Тобишь 3 отопительных контура Основное топливо - дрова Котельня в цоколе. Под это дело куплено котел Будерус Логано S111-2 на 32 кВт бак косвенного нагрева с 1 змеевиком Flamco Duo на 1000 л. Для автономности и резерва планирую в бак установить и эл. тены нагрева. Ну и хотелось бы косвенник пользовать и в качестве ТА и для горячего водоснабжения. Радиаторы брал с полуторным запасом по мощности, чтоб снизить температуру подачи теплоносителя Подскажите пожалуйста схему обвязки и автоматику, чтоб не бегать к задвижкам, когда котел погаснет Да, если че, тех кто непосредственно будет это реализовывать еще не искал. Пока в процессе выбора и закупки материалов и оборудования Змінено 8 квітня 2015 користувачем Yurii_ Посилання на коментар Поділитися на інших сайтах More sharing options...
murava Опубліковано: 8 квітня 2015 Поділитись Опубліковано: 8 квітня 2015 Берите монтажника, типовые схемы - и начинайте допиливать и модернизировать. Очень сомневаюсь, что в формате форума Вам выдадут готовую схему под Вашу задачу - уж очень немало надо потратить времени на выяснение многих аспектов, чтобы делать это на форуме... Посилання на коментар Поділитися на інших сайтах More sharing options...
Interso Опубліковано: 8 квітня 2015 Поділитись Опубліковано: 8 квітня 2015 Есть хатка 85 кв.м жилой этаж - теплый пол 80 кв. м мансарда - радиаторы 85 кв. м цоколь - радиаторы на всяк случай разведу, но вот топить - х. з., поживем увидим, а пока не планирую Тобишь 3 отопительных контура Под это дело куплено котел Будерус Логано S111-2 на 32 кВт бак косвенного нагрева с 1 змеевиком Flamco Duo на 1000 л. Для автономности и резерва планирую в бак установить и эл. тены нагрева. Ну и хотелось бы косвенник пользовать и в качестве ТА и для горячего водоснабжения. Подскажите пожалуйста схему обвязки и автоматику, чтоб не бегать к задвижкам, когда котел погаснет 1-Под ту конфигурацию которую вы хотите использовать этот косвенник не подходит,для этого лучше бы подошол ТА со встроенным баком для ГВС. 2- Если он уже есть в наличии то есть один нестандартный вариант подключения для этого косвенника,саму ёмкость использовать как ТА для отопления а змеевик для приготовления ГВС,но этот вариант не очень харош так как змеевик находится в нижней части. 3-Продать его и купить то что надо Хотя можно сделать вот так 1 Посилання на коментар Поділитися на інших сайтах More sharing options...
Yurii_ Опубліковано: 8 квітня 2015 Автор Поділитись Опубліковано: 8 квітня 2015 Хотя можно сделать вот так Ну да, это именно то. Посилання на коментар Поділитися на інших сайтах More sharing options...
Interso Опубліковано: 8 квітня 2015 Поділитись Опубліковано: 8 квітня 2015 Ну да, это именно то. А зачем вам 1000л. ГВС ? Посилання на коментар Поділитися на інших сайтах More sharing options...
Yurii_ Опубліковано: 8 квітня 2015 Автор Поділитись Опубліковано: 8 квітня 2015 Ну шоб 2 в 1. Шоб 100 л из них использовать для потребностей в ГВС, а лишние 900 л для подогрева отопительного контура. А вот эта штука страшная ладдомат 21 - это обязательная фича или можно шоб подешевше к примеру 3-х ходовым клапаном с сервоприводом обойтись? Посилання на коментар Поділитися на інших сайтах More sharing options...
Interso Опубліковано: 8 квітня 2015 Поділитись Опубліковано: 8 квітня 2015 Ну шоб 2 в 1. Шоб 100 л из них использовать для потребностей в ГВС, а лишние 900 л для подогрева отопительного контура. А вот эта штука страшная ладдомат 21 - это обязательная фича или можно шоб подешевше к примеру 3-х ходовым клапаном с сервоприводом обойтись? Можна но только нада считать будет ли дешевле. Посилання на коментар Поділитися на інших сайтах More sharing options...
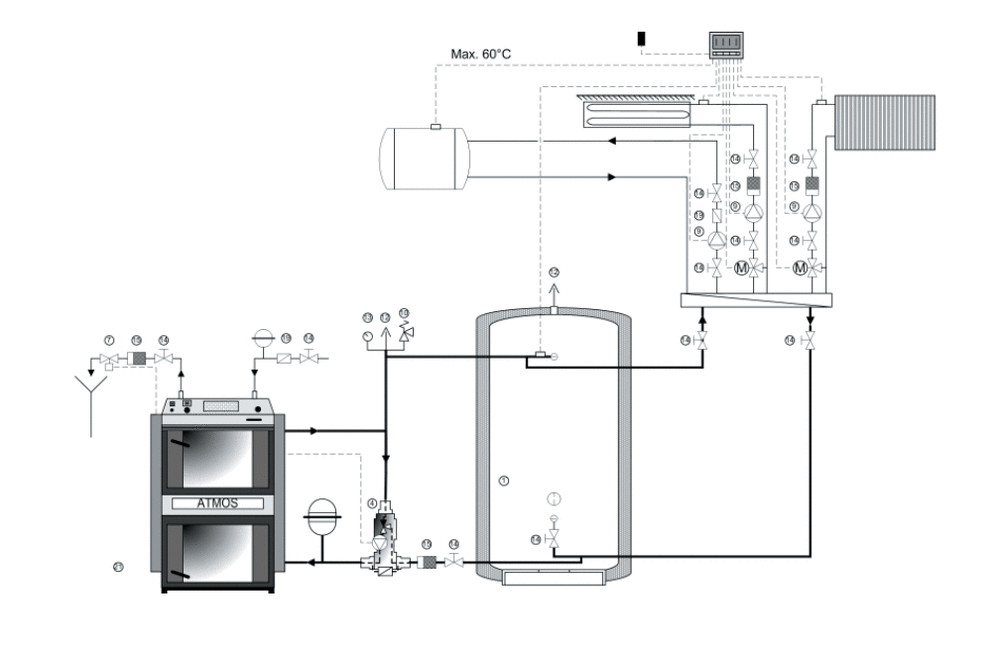
sasko Опубліковано: 8 квітня 2015 Поділитись Опубліковано: 8 квітня 2015 Я бы сделал так... Но правильно - прислушаться к совету murava Посилання на коментар Поділитися на інших сайтах More sharing options...
Interso Опубліковано: 8 квітня 2015 Поділитись Опубліковано: 8 квітня 2015 Я бы сделал так... Но правильно - прислушаться к совету murava В идеале прислушатся конечно же к совету murava Но с тем косвенником который у топика такую схему как у вас сделать невозможно,вернее возможно но надо тогда докупить ТА,но тогда вопрос а что делать с 1000 литрами ГВС. Посилання на коментар Поділитися на інших сайтах More sharing options...
sasko Опубліковано: 8 квітня 2015 Поділитись Опубліковано: 8 квітня 2015 В идеале прислушатся конечно же к совету murava Но с тем косвенником который у топика такую схему как у вас сделать невозможно,вернее возможно но надо тогда докупить ТА,но тогда вопрос а что делать с 1000 литрами ГВС. Ниче не делать... Надо было бак покупать вот www.flamcogroup.com/ru/catalog/rassiritel-nye-sistemy-i-prinadleznosti/vodonagrevateli-i-baki-nakopiteli/kombinirovannye-baki-kps/kps-750-1000 А так сделать из бойлера ТА, Змеевик для ГВП но прижать пропускную способность... Минусом будет поддержа постоянной температуры в "ТА ака бойлере" Или это чудо на тону продать, а купить то-что надо... ;) 2 Посилання на коментар Поділитися на інших сайтах More sharing options...
Yurii_ Опубліковано: 8 квітня 2015 Автор Поділитись Опубліковано: 8 квітня 2015 (змінено) Ниче не делать... Надо было бак покупать вот www.flamcogroup.com/ru/catalog/rassiritel-nye-sistemy-i-prinadleznosti/vodonagrevateli-i-baki-nakopiteli/kombinirovannye-baki-kps/kps-750-1000 А так сделать из бойлера ТА, Змеевик для ГВП но прижать пропускную способность... Минусом будет поддержа постоянной температуры в "ТА ака бойлере" Или это чудо на тону продать, а купить то-что надо... ;) 1. Зачем взял вот такой, а не вот такой? Как всегда если не все, то многое упирается в финансы. Там другого - не было, а если где то было, то стоило денег, которые я не готов был заплатить. А этот был в наличии и были готовы его отдать за адекватные для меня деньги. 2. Это чудо на тонну продавать задешево, чтоб купить другое чудо на тонну, но уже задорого - тоже не вариант. Да и жалко продавать, тем более что у него перед штатным ТА есть и свои плюсы. Толще металл под 10 бар давления против 3 бар ну и внутреннее покрытие эмалью Значит и будет он ТА, ну а ежели не сложится, как хочется, для обеспечения ГВС буду думать альтернативный вариант. Во, осенило ;) Вместо заглушки на ревизионном фланце возьму да примайструю грушу для ГВС от 100 литрового гидробака ;) Вода, хоть и снизу, ну да не кипяток, но все равно очень-очень теплая должна быть. Е-мае, а если чего, то тены тогда куда Змінено 8 квітня 2015 користувачем Yurii_ Посилання на коментар Поділитися на інших сайтах More sharing options...
sasko Опубліковано: 8 квітня 2015 Поділитись Опубліковано: 8 квітня 2015 Значит и будет он ТА, ну а ежели не сложится, как хочется, для обеспечения ГВС буду думать альтернативный вариант А че тут думать. Покупаете бойлер косвенного нагрева, насос загрузочный и управление типа www.kgelektronik.pl/produkty/sterowniki/cs-12.html, соединяете теплообменники между собой и будет Вам счастье... Посилання на коментар Поділитися на інших сайтах More sharing options...
Рекомендовані повідомлення
Створіть акаунт або увійдіть у нього для коментування
Ви маєте бути користувачем, щоб залишити коментар
Створити акаунт
Зареєструйтеся для отримання акаунта. Це просто!
Зареєструвати акаунтУвійти
Вже зареєстровані? Увійдіть тут.
Увійти зараз