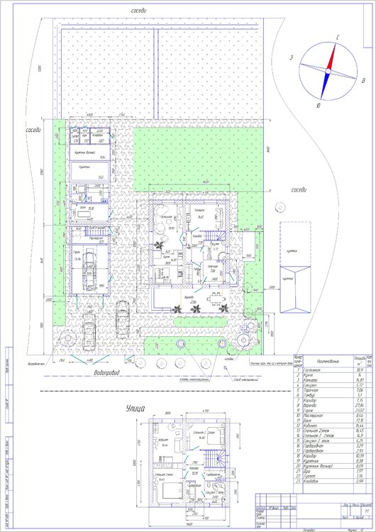
kylinar Опубліковано: 8 квітня 2015 Поділитись Опубліковано: 8 квітня 2015 Добрый вечер. Вот сбылась мечта "идиота" , приобрёл с женой участок в селе 10 соток 25х40 м. По фасаду 25 м. На участке есть колодец. Планируем провести там старость. Сейчас нам 40 лет. И так дом одноэтажный (условия жены ,боится лестниц) на двоих постоянно проживающих. дочка ( 18 лет) будет жить в городе в двушке. отопление планирую комбинированное газ,дрова, пиллеты. первый проект был двух этажный, жена категорически против. Просьба посмотреть и покритиковать.Дом план.pdf Посилання на коментар Поділитися на інших сайтах More sharing options...
kylinar Опубліковано: 8 квітня 2015 Автор Поділитись Опубліковано: 8 квітня 2015 Вот предыдущий проект двух этажный. может кому понадобиться.Exfcnj4).pdf Посилання на коментар Поділитися на інших сайтах More sharing options...
loader Опубліковано: 8 квітня 2015 Поділитись Опубліковано: 8 квітня 2015 критикую (возьмите то что актуально) - терасса должна быть на северо-восток, иначе там буде жарко и некомфортно в терасное время года - у вас 2 дома по факту - основной + хозблок, оно вам нужно реально? оцените бюджет мероприятия, конечно если тут без проблем - то хоз части таки лучше отдельно стоять - основной дом - полностью не понимаю эту сарйную крышу. зачем это в одноэтажном доме, как и лесница того плана что вы прорисовали. (да у нас такая же в селе, ценность этого понять не могу). сделать бы поменьше угол, градусов 23 - будет красивей, меньше площадь, дешевле. - как для двоих много помещений но все малой площади при этом, подумал бы о более продвинутой планировке, тем более что вы достаточно свободны, может на одну спальню меньше, но побольше жилого пространства, побольше интеграции с ландшафтом. Посилання на коментар Поділитися на інших сайтах More sharing options...
Andrei constructor Опубліковано: 8 квітня 2015 Поділитись Опубліковано: 8 квітня 2015 на двоих постоянно проживающих Для этого нужен четырехкомнатный жилой дом? Возможно 3 комнаты будет вполне достаточно. Посилання на коментар Поділитися на інших сайтах More sharing options...
kylinar Опубліковано: 9 квітня 2015 Автор Поділитись Опубліковано: 9 квітня 2015 (змінено) Для этого нужен четырехкомнатный жилой дом? Возможно 3 комнаты будет вполне достаточно. есть ребёнок дочка 18 лет . Выйдет замуж будут дети. где разместить , когда приедут? Так же живые родители. С учётом этого и проектировалось Добавлено через 1 час 19 минут критикую (возьмите то что актуально) - терасса должна быть на северо-восток, иначе там буде жарко и некомфортно в терасное время года - у вас 2 дома по факту - основной + хозблок, оно вам нужно реально? оцените бюджет мероприятия, конечно если тут без проблем - то хоз части таки лучше отдельно стоять - основной дом - полностью не понимаю эту сарйную крышу. зачем это в одноэтажном доме, как и лесница того плана что вы прорисовали. (да у нас такая же в селе, ценность этого понять не могу). сделать бы поменьше угол, градусов 23 - будет красивей, меньше площадь, дешевле. - как для двоих много помещений но все малой площади при этом, подумал бы о более продвинутой планировке, тем более что вы достаточно свободны, может на одну спальню меньше, но побольше жилого пространства, побольше интеграции с ландшафтом. Вот можно и такую крышу. второй этаж чердак , но с возможностью переделки в жилую зону стены приподнял на 1,3 метра. ну и сама крына высотой 2 м по коньку по поводу терассы . а почему она должна быть на северо-запад. наоборот терраса должна быть с юга, в жаркую погоду тень даёт комнаты Змінено 9 квітня 2015 користувачем kylinar Посилання на коментар Поділитися на інших сайтах More sharing options...
Andrei constructor Опубліковано: 9 квітня 2015 Поділитись Опубліковано: 9 квітня 2015 наоборот терраса должна быть с юга, в жаркую погоду тень даёт комнаты Терраса может быть с юга, но тогда обязательно нужно делать солнцезащитный навес, который также уменьшает инсоляцию гостиной в летнее время Посилання на коментар Поділитися на інших сайтах More sharing options...
Sерджио Опубліковано: 9 квітня 2015 Поділитись Опубліковано: 9 квітня 2015 Мне планировка понравилась. А крыша - нет. Второй вариант крыши - больше понравился. Непонятно, зачем лестницу снаружи размещать? Можно же если чердак - то складную с люком например, в коридоре. А если переделка в жилую зону - то лестница снаружи вообще непонятна. Но тогда конечно нужно пересматривать планировку или искать проект одноэтажника, предусматривающий расширение до второго этажа (мансарды). Имхо. Посилання на коментар Поділитися на інших сайтах More sharing options...
kylinar Опубліковано: 9 квітня 2015 Автор Поділитись Опубліковано: 9 квітня 2015 Мне планировка понравилась. А крыша - нет. Второй вариант крыши - больше понравился. Непонятно, зачем лестницу снаружи размещать? Можно же если чердак - то складную с люком например, в коридоре. А если переделка в жилую зону - то лестница снаружи вообще непонятна. Но тогда конечно нужно пересматривать планировку или искать проект одноэтажника, предусматривающий расширение до второго этажа (мансарды). Имхо. Вам крыша какая именно из трёх понравилась,1- масандра, 2 - двухскатная с малым углом и приподнятая на 1,3 м над уровнем 1 этажа или 3 просто двухскатная?. крыша пока как чердак Ну а если изменится материальное положение , и ребёнок с семьёй захочет жить у нас то , тогда делается второй этаж , а в место одной из комнат будет лестница с кладовкой. Посилання на коментар Поділитися на інших сайтах More sharing options...
Sерджио Опубліковано: 9 квітня 2015 Поділитись Опубліковано: 9 квітня 2015 Понравилась последняя двускатная. Домик совсем иначе смотрится, нежели с той ломаной крышей, как у сарая. Но тут уже есть нюанс. Вы определились для себя с тем, что будет один этаж, но так сказать ждете волеизъявления ребенка. В этой ситуации сложно чего-то советовать - но наверное было бы более правильным делать одноэтажник с мансардой и сразу предусматривать место для лестницы на второй этаж. Думается для этого больше подошел бы вариант с крышей приподнятой на 1,3 м. Посилання на коментар Поділитися на інших сайтах More sharing options...
kylinar Опубліковано: 10 квітня 2015 Автор Поділитись Опубліковано: 10 квітня 2015 Добрый день. Ест ещё вопросик по стенам и потолку. Ширина дома 9,6 м. Наружные стены я сделал несущими в 0,5 м. Внутренние - только перестенки 0,12 м. Поэтому я предполагал крыть коробку плитами перекрытия длиной по 9м. правильно ли. Опыта в строительство НОЛЬ. Что посоветуете? Как правильно поступить. Крыша будет двускатная как на последнем рисунке. Посилання на коментар Поділитися на інших сайтах More sharing options...
Sерджио Опубліковано: 10 квітня 2015 Поділитись Опубліковано: 10 квітня 2015 Ну, мое имхо - если это все же одноэтажник - то смысла крыть железобетоном - нет в принципе. Очень приличный вес, который, кстати, обусловит необходимость гораздо более мощного фундамента. Нужна опять же тяжелая техника, дабы это все поднять и уложить. А это опять же финансы - и для чего? Вы же не бункер строите. Если с эксплуатируемым чердаком (или мансардой) то наверное тоже нет. Можно по деревянным балкам, есть еще вариант "Терива" (часторебристые). Посилання на коментар Поділитися на інших сайтах More sharing options...
kylinar Опубліковано: 10 квітня 2015 Автор Поділитись Опубліковано: 10 квітня 2015 Ну, мое имхо - если это все же одноэтажник - то смысла крыть железобетоном - нет в принципе. Очень приличный вес, который, кстати, обусловит необходимость гораздо более мощного фундамента. Нужна опять же тяжелая техника, дабы это все поднять и уложить. А это опять же финансы - и для чего? Вы же не бункер строите. Если с эксплуатируемым чердаком (или мансардой) то наверное тоже нет. Можно по деревянным балкам, есть еще вариант "Терива" (часторебристые). В принципе я так понимаю можно один внутренний перестенок ( санузлы, кухня, топочная) увеличить по толщине с 120 мм до 400 мм (сделать несущим ) при этом ширина дома увеличится на 300 мм в сторону хоз построек и 9,9 м разбить на две части 5,75 м и 4,130 м. Или же можно балки деревянные использовать 9,6 м без промежуточной опоры? спасибо за подсказки? Посилання на коментар Поділитися на інших сайтах More sharing options...
Andrei constructor Опубліковано: 10 квітня 2015 Поділитись Опубліковано: 10 квітня 2015 Или же можно балки деревянные использовать 9,6 м без промежуточной опоры? Можно продольную несущую стену не делать, а этот пролет перекрыть треугольными стропильными фермами. Преимущества такого решения описаны здесь Посилання на коментар Поділитися на інших сайтах More sharing options...
kylinar Опубліковано: 10 квітня 2015 Автор Поділитись Опубліковано: 10 квітня 2015 Можно продольную несущую стену не делать, а этот пролет перекрыть треугольными стропильными фермами. Преимущества такого решения описаны здесь спасибо за ответ, но есть вопрос. проходимость чердака уменьшается за счёт связей в ферме? хотелось бы максимально использовать площадь чердака . Посилання на коментар Поділитися на інших сайтах More sharing options...
Sерджио Опубліковано: 10 квітня 2015 Поділитись Опубліковано: 10 квітня 2015 Смотрите. Вы определитесь все же - какой дом Вы хотите получить на выходе. В стартовом посте у Вас - одноэтажник, сейчас вот - нюансы. Максимальное использование чердака- это не чердак, а мансарда. С соответствующими планировочными решениями по первому и по мансардному этажам. Может стоит сначала на семейном совете более детально проработать вопрос - что именно Вы хотите построить с точки зрения достаточности? Потому, как этот вопрос - самый главный. Может статься, что Ваш эскиз не вполне и подходящ. Посилання на коментар Поділитися на інших сайтах More sharing options...
Andrei constructor Опубліковано: 10 квітня 2015 Поділитись Опубліковано: 10 квітня 2015 спасибо за ответ, но есть вопрос. проходимость чердака уменьшается за счёт связей в ферме? хотелось бы максимально использовать площадь чердака . Фермы можно сделать такими, чтобы можно было в самой высокой части чердака свободно проходить без преград. Посилання на коментар Поділитися на інших сайтах More sharing options...
Музей Опубліковано: 10 квітня 2015 Поділитись Опубліковано: 10 квітня 2015 Фермы можно сделать такими, чтобы можно было в самой высокой части чердака свободно проходить без преград. А надо? В доме должна быть удобная планировка, которая соответствует стилю жизни семьи, и стоимость такого дома должна соответствовать карману Застройщика. Остальное второстепенно. 1 Посилання на коментар Поділитися на інших сайтах More sharing options...
Тюня Опубліковано: 10 квітня 2015 Поділитись Опубліковано: 10 квітня 2015 хотелось бы максимально использовать площадь чердакаПриезжайте в гости - 15 км от Киева - все покажу на этапе стройки, как это выглядит. Жадно было - приподняла крышу чердака на 15 см, теперь себя ругаю страшно за все, даже строить дальше не хочется. Самая большая ошибка - это чердак. Мне один архитектор говорил - не делай, не послушала умного человека. сейчас расстроена - не то слово. Надо определиться - чердак - это холодное помещение, мансарда - отапливаемое. А у меня просто получилось - деньги на ветер. Короче - лучше один раз увидеть, чем 100 услышать. И еще куча ошибок, в частности по ориентации помещений дома. И на угол крыши можно посмотреть тоже - у меня 30 град, и если делать мансарду, то хочется больше, очень неудобно оказалось с окнами мансардными, а если не делать (т.е. одноэтажный), то может и не надо перекрытий - подняли крышу, добавили пару мансардных окон и будет красиво и светло Посилання на коментар Поділитися на інших сайтах More sharing options...
vickov Опубліковано: 10 квітня 2015 Поділитись Опубліковано: 10 квітня 2015 У нас, примерно, такой же участок. И по годам мы не намного старше - 46 и 43. И дочка есть, 19 лет и младшая 12 лет. Требование в нашей семье - обязательно 3 спальни. К сожалению, на предоставленной планировке не видно общих размеров, но... Сразу, в глаза бросается, что у есть возможность эксплуатации только жилой зоны для проживающих, уменьшив, при этом, расходы на отопление спален. Я считаю, что это + Название ванной "гараж" - это, видимо, опечатка. Крыша - жах... Хотя, такие крыши очень часто встречаются под Киевом. Мое мнение - лучше сделать вальмовую, но это, естественно, дороже. Опять же, ИМХО, гостинная по площади маловата. Во вложении мой вариант, правда, еще "сырой", не отображены окна в гостинной/кухне с выходом на терассу. По сторонам света - у нас направление на север, примерно, правый угол гостинной. Добавлено через 9 минут Какие размеры дома? На планировке, вроде, видно, размеры, но в глазах "рябит" от всего остального. Еще раз, на счет крыши - вальмовая лучше, с длинными свесами и углом не больше 30 градусов. Поиск: вальмовая кровля на длинном доме. Посилання на коментар Поділитися на інших сайтах More sharing options...
vickov Опубліковано: 10 квітня 2015 Поділитись Опубліковано: 10 квітня 2015 Еще раз расскажу про преимущества Вашей планировки ( и моей тоже). При ограниченных ресурсах возможно строительство и обустройство условной половины дома. Т.е., отделка внутренних помещений может быть выполнена через некоторое время. В Вашем случае - это 2 спальни, расположенные на юге. В моем случае - 2 спальни, расположенные на юго-западе. Посилання на коментар Поділитися на інших сайтах More sharing options...
vickov Опубліковано: 10 квітня 2015 Поділитись Опубліковано: 10 квітня 2015 Еще одной особенностью моей планировки является симметричность, что удобно для проведения расчетов, разметки и т.д. В этой планировке - все спальни одного размера. Ширина гостинной - равна расстоянию от внешней стены спальни до внутренней стены кухни. Длина средней спальни до внутренней стены - равна размеру от входа до внутренней стены санузла. В общем, и с севера на юг, и с запада на восток - моя планировка симметричная. Некоторые проектанты, которым показывал этот вариант, спрашивали, возможно ли, использовать планировку с некоторыми изменениями в своих целях. Мне не жалко, пусть пользуются... Где-то, еще есть визуализация, которую сделали, но мне кое-что не нравится... Найду - выложу. Что-то, затихла тема про одноэтажники...www.stroimdom.com.ua/forum/forumdisplay.php?f=9 На всякий случай, пример вальмовой кровли для прямоугольного дома. В живую должно быть красиво! У меня, практически, квадрат, но будет вальма, однозначно. Посилання на коментар Поділитися на інших сайтах More sharing options...
Andrei constructor Опубліковано: 10 квітня 2015 Поділитись Опубліковано: 10 квітня 2015 А надо? В доме должна быть удобная планировка, которая соответствует стилю жизни семьи, и стоимость такого дома должна соответствовать карману Застройщика. Остальное второстепенно. Как я понял ТС хотел неэксплуатируемый чердак. Вы там будете делать удобную планировку? Там нужен только удобный проход. Посилання на коментар Поділитися на інших сайтах More sharing options...
Музей Опубліковано: 11 квітня 2015 Поділитись Опубліковано: 11 квітня 2015 Как я понял ТС хотел неэксплуатируемый чердак. Вы там будете делать удобную планировку? Там нужен только удобный проход. Речь о планировке дома, а не чердака. Если прогуливаясь по чердаку придется слегка наклонить голову, то это уже проблема? Добавлено через 7 минут проектанты, которым показывал этот вариант, спрашивали, возможно ли, использовать планировку с некоторыми изменениями в своих целях. Мне не жалко, пусть пользуются. Даже не знаю, что интересного они нашли в такой планировке. На 2-х проживающих 1 с\у достаточно, но для +дочь и +зять+ внуки в будущем - экологическая катастрофа. Места для снать пальто, разуться, войдя в дом, даже для двоих нет. Там только двери и проходы. Негде поставить даже крошечный табурет, что бы усадить ребенка и одеть ему обувь. А еще у деток бывают коляски и велики. Вход с улицы находится в зоне спален. Котельная крошечная. Постирочной нет вовсе. Гостиная - скучный, темный прямоугольник с единственным окном и без выхода на террасу. Впрочем, крытой террасывовсе нет. Козырька над входом в дом нет. Скат кровли "прицелен" на головы входящих\выходящих. Это опасно. Пожалуй, симметричность единственное достоинство такой планировки. Посилання на коментар Поділитися на інших сайтах More sharing options...
PRO100_MASTER Опубліковано: 11 квітня 2015 Поділитись Опубліковано: 11 квітня 2015 Еще одной особенностью моей планировки является симметричность, что удобно для проведения расчетов, разметки и т.д. В этой планировке - все спальни одного размера. Ширина гостинной - равна расстоянию от внешней стены спальни до внутренней стены кухни. Длина средней спальни до внутренней стены - равна размеру от входа до внутренней стены санузла. В общем, и с севера на юг, и с запада на восток - моя планировка симметричная. Некоторые проектанты, которым показывал этот вариант, спрашивали, возможно ли, использовать планировку с некоторыми изменениями в своих целях. Мне не жалко, пусть пользуются... Где-то, еще есть визуализация, которую сделали, но мне кое-что не нравится... Найду - выложу. Что-то, затихла тема про одноэтажники...www.stroimdom.com.ua/forum/forumdisplay.php?f=9 На всякий случай, пример вальмовой кровли для прямоугольного дома. В живую должно быть красиво! У меня, практически, квадрат, но будет вальма, однозначно. Мне интересен кострукив перекрытия, особенно над гостиной, у вас там срощеные балки, но нет под ними опоры, видно что не из ферм, вот просто любопытно как??? Посилання на коментар Поділитися на інших сайтах More sharing options...
vickov Опубліковано: 11 квітня 2015 Поділитись Опубліковано: 11 квітня 2015 Мне интересен кострукив перекрытия, особенно над гостиной, у вас там срощеные балки, но нет под ними опоры, видно что не из ферм, вот просто любопытно как??? Я еще проект кровли не делал, картинка - из нета, для наглядности. Ширина гостинной 5 метров, зачем фермы? Посилання на коментар Поділитися на інших сайтах More sharing options...
Рекомендовані повідомлення
Створіть акаунт або увійдіть у нього для коментування
Ви маєте бути користувачем, щоб залишити коментар
Створити акаунт
Зареєструйтеся для отримання акаунта. Це просто!
Зареєструвати акаунтУвійти
Вже зареєстровані? Увійдіть тут.
Увійти зараз