AmateurFF Опубліковано: 7 грудня 2009 Автор Поділитись Опубліковано: 7 грудня 2009 Всё-таки, над отливчиками надо задуматься..... Снег будет подтаивать, проникать в штукатурку, ночью замерзать.... Штукатурка ниже может пузырями пойти и отлущиваться... У соседа, в прошлом сезоне, именно так и произошло.... Абидна будет! Эт точно. Это пока касается карнизов разделяющих 2-й этаж и чердак, а также "зеркал" в колонах. Между первым и вторым этажами пока горизонтальная поверхность не штукатурена. В этом году уже вряд ли что-то будем предпринимать. Посмотрим, как они перезимуют, а там будем решать... Посилання на коментар Поділитися на інших сайтах More sharing options...
Soyka Опубліковано: 8 грудня 2009 Поділитись Опубліковано: 8 грудня 2009 Что-то я не пойму, какой натуральный цвет штукатурки? И о каких отливах вы постоянно спорите? Посилання на коментар Поділитися на інших сайтах More sharing options...
AmateurFF Опубліковано: 8 грудня 2009 Автор Поділитись Опубліковано: 8 грудня 2009 Что-то я не пойму, какой натуральный цвет штукатурки? И о каких отливах вы постоянно спорите? Цвет почти такой и есть. Он чуть-чуть меняется от освещения, в солнечную погоду светлее. Об отливах мы не спорим. Korni предупредил, что могут быть проблемы с горизонтальной штукатуркой (водичка замерзает/оттаивает - разрушает). Она на карнизах, пока между 2-м этажом и чердаком и немного на зеркалах. Между 1-м и 2-м этажами в этом году поштукатурить не успели. Как предотвратить разрушение? Саша предлагает установку отливов на горизонтальные поверхности, а мне это очень не нравиться (не красиво). Я думаю, пока перезимуем одну зиму, посмотрим, как разрушается, а в следующем году будем решать. 2 Посилання на коментар Поділитися на інших сайтах More sharing options...
Korni Опубліковано: 8 грудня 2009 Поділитись Опубліковано: 8 грудня 2009 ..... а в следующем году будем решать..... Есть вариант. На вертикальную часть карнизика наклеить что-то типа малярной ленты, выступающей на 2-3 мм выше карниза - использовать это, как "опалубочку" для чего-нибудь гидроизоляционного (гипердесмо, силикон, etc.). На стене выше тоже можно наклеить, чтобы штукатурку не запачкать. После работ, ленту снять. 2 Посилання на коментар Поділитися на інших сайтах More sharing options...
AmateurFF Опубліковано: 9 грудня 2009 Автор Поділитись Опубліковано: 9 грудня 2009 Есть вариант. На вертикальную часть карнизика наклеить что-то типа малярной ленты, выступающей на 2-3 мм выше карниза - использовать это, как "опалубочку" для чего-нибудь гидроизоляционного (гипердесмо, силикон, etc.). На стене выше тоже можно наклеить, чтобы штукатурку не запачкать. После работ, ленту снять. Спасибо Саша! Технология понятна! С силиконами работал, расход примерно представляю, много потребуется да и не быстро это если из тюбиков выжимать. С помощью гипердесмо это наверно будет быстрее и дешевле? Только в эту зиму наверно штукатурка уйдет без гидроизоляции, не успеем, да и погода не даст. Посилання на коментар Поділитися на інших сайтах More sharing options...
Soyka Опубліковано: 9 грудня 2009 Поділитись Опубліковано: 9 грудня 2009 Цвет почти такой и есть. Он чуть-чуть меняется от освещения, в солнечную погоду светлее. Так он персиковый, песочный или розовый? Посилання на коментар Поділитися на інших сайтах More sharing options...
Korni Опубліковано: 9 грудня 2009 Поділитись Опубліковано: 9 грудня 2009 .....С силиконами работал, расход примерно представляю, много потребуется да и не быстро это если из тюбиков выжимать. С помощью гипердесмо это наверно будет быстрее и дешевле?.... Из тюбиков - думаю это экономически неоправданное решение. Действительно, пойдёт много. С гипердесмо не работал - это к Пропеллеру. Я бы взял (сделал) какой-нибудь гидроизоляционный раствор на основе цемента (и гипердесмо, например). Или что-нибудь на основе Ceresita, вплоть до cамовыравнивающейся смеси - правда уже на основе Thomsit. А потом подкрасил бы. Или, может быть, сразу краситель подмешал.... Посилання на коментар Поділитися на інших сайтах More sharing options...
AmateurFF Опубліковано: 9 грудня 2009 Автор Поділитись Опубліковано: 9 грудня 2009 (змінено) Так он персиковый, песочный или розовый? Я вроде бы и не дальтоник, но какой это цвет сказать затрудняюсь. Штукатурка: (ссылка устарела), и нам ее колеровали как (ссылка устарела). Штукатурка колон, карнизовссылка устарела), колеровали как (ссылка устарела). Змінено 9 грудня 2009 користувачем AmateurFF Дополнил Посилання на коментар Поділитися на інших сайтах More sharing options...
Soyka Опубліковано: 9 грудня 2009 Поділитись Опубліковано: 9 грудня 2009 Я вроде бы и не дальтоник, но какой это цвет сказать затрудняюсь. Штукатурка: (ссылка устарела), и нам ее колеровали как (ссылка устарела). Штукатурка колон, карнизовссылка устарела), колеровали как (ссылка устарела). Ясно! Надо ехать в гости!;) Посилання на коментар Поділитися на інших сайтах More sharing options...
AmateurFF Опубліковано: 9 грудня 2009 Автор Поділитись Опубліковано: 9 грудня 2009 Ясно! Надо ехать в гости!;) Всегда пожалуйста. Кстати Bora-b всего в каких-то 9 км от меня. 2 Посилання на коментар Поділитися на інших сайтах More sharing options...
AmateurFF Опубліковано: 21 грудня 2009 Автор Поділитись Опубліковано: 21 грудня 2009 Поехали вчера посмотрели как наша стройка зимует. В доме на 1м этаже -1. Штукатурка зимует в приямке, накрытая ЭППС. Думаем не замерзнет. На балконе снега не много (думали больше намело). Почистили снежок. Посилання на коментар Поділитися на інших сайтах More sharing options...
AmateurFF Опубліковано: 11 січня 2010 Автор Поділитись Опубліковано: 11 січня 2010 Вчера решили проехать посмотреть, как зимует стройка. Потом пожалели что поехали – дорога никудышная. Добирались 1 час 25 минут, вместо привычных 25-30 минут. Ехали с Бортнич через Петровское, Мартусовку Ревное. С Ревного поехали через Процев. В Пороцеве дороги почищены. Думали до конюшен, но оказалось что возле конюшен они не очень то и почищены. Возвращались через Глыбокое, Борисполь. Доехали за 50 минут, хотя по км это на много больше. В Глыбоком дорога конечно лучше чем в Петровском. Снега на огроде где-то около 40 см. Не понятно почему на желобе с тыльной стороны дома снег, снегозадержатели вроде бы стоят?. Наверно ветер надул больше снега. Штукатурка вроде-бы зимует нормально, хотя на балконе чуть-чуть намокла от растаявшего снега. 1 Посилання на коментар Поділитися на інших сайтах More sharing options...
AmateurFF Опубліковано: 26 березня 2010 Автор Поділитись Опубліковано: 26 березня 2010 Пришла пора возобновлять стройку. Пока в планах закончить наружную штукатурку. Вчера закупили шпаклевку клеевую Baumit ProContact и 2 рулона стеклосетки. В эти выходные начнем работы. Возникли проблемы с подключением электричества. Сделали ТУ на 3ф. 8 квт, проект нам сделали на 5 квт. Разрешение не дают - ТП перегружен. Пытаемся решать. Посилання на коментар Поділитися на інших сайтах More sharing options...
brw Опубліковано: 26 березня 2010 Поділитись Опубліковано: 26 березня 2010 Пришла пора возобновлять стройку..... Как дорога? Я в прошлое воскресенье решил съездить к себе.. Возле леска есть участок без асфальта..., сел на пузо когда туда ехал.., сосед на Mercedes ML вытягивал. Вытащил он меня, думаю, чего разворачиваться, поеду к участку. Возвращаясь с участка, уже вечером, когда стемнело, опять сел на пузо, но ни соседей ни других машин уже не было.. Начал переживать и т.п. Собирался каким-то фигом добираться до Киева, а на след. день заниматься этим вопросом.. Или идти пешком в Вороньков и ходить по хатам спрашивать трактор (в воскресенье в 9 вечера). Чудом в телефоне нашелся номер человека из Воронькова, у которого летом доски покупал.. Набрал, объяснил ситуацию, спросил есть ли у соседей трактор. Перезванивает, мол, говорит-"нуу якшо 100 грывэнь дастэ, тоди вас вытягнуть". Я конечно согласился. Думал что такая радость мне обойдется дороже. Через 20 хвилин приїхав дядько на тракторі, прицепив на ціпок і витягнув з багнюки.... Теперь вот думаю, наверное нужно подождать недельку-вторую чтоб подсохло, а то опять придется дядьке на тракторе звонить..... Посилання на коментар Поділитися на інших сайтах More sharing options...
AmateurFF Опубліковано: 26 березня 2010 Автор Поділитись Опубліковано: 26 березня 2010 Как дорога? ... Пока не знаеи. Я давно там не был. Зять 1,5 недели назад. Не жаловался. Съездим - расскажу. Посилання на коментар Поділитися на інших сайтах More sharing options...
Мышка Опубліковано: 28 березня 2010 Поділитись Опубліковано: 28 березня 2010 Заезжали в гости... дороги отличные. Домик уже язык не поворачивается называть гаражом... Так что удачи вам и сил побольше, будем соседями по селам 1 Посилання на коментар Поділитися на інших сайтах More sharing options...
AmateurFF Опубліковано: 29 березня 2010 Автор Поділитись Опубліковано: 29 березня 2010 Заезжали в гости... дороги отличные. Домик уже язык не поворачивается называть гаражом... Так что удачи вам и сил побольше, будем соседями по селам Спасибо, мы гостям, тем более форумчанам, всегда рады! И Вам удачи в ваших начинаниях. Да, согласен, домик уже на гараж не тянет, ворот больших нет.. Уже и соседи не спрашивают - "Гараж строите?". Но мы уже привыкли и в шутку продолжаем называть гаражом. Посилання на коментар Поділитися на інших сайтах More sharing options...
AmateurFF Опубліковано: 29 березня 2010 Автор Поділитись Опубліковано: 29 березня 2010 Сезон открыли! Клеили 2-й слой сетки в воскресенье. Вот результат: Есть большое разочарование украинским производителем:sad:. Шпаклевка клеевая Baumit ProContact украинского производителя сильно отличается от польской. В прошлом году использовали 52 мешка шпаклевки польского производства. В конце года докупили купили 2 мешка украинского. Сразу увидели качество другое. Грешили на Анжио. В этом году купили 16 мешков укр. изготовления. Теперь точно могу сказать отличия: - по объему, укр. занимает меньший объем. Вес не проверяли. Но метку на ведре (делим мешок пополам) пришлось изменить; - укр. имеет более грубый помол? или песка больше сыпят? - укр. смесь на стене быстрее схватывается и хуже разглаживается. - укр. смесь сильнее загрязняет инструмент (прилипает к шпателям). Очистить шпатель об шпатель не удается. Ну и отмываются шпателя хуже. Это наверно не весь перечень, только часть того что мы, не специальсты, почуствовали. Работать с польской шпатлевкой было приятней. Обидно.:sad::bad: Как-то обещал выложить фотки с боковым освещением штукатурки (чтоб наш брак было видно). Выкладываю то что удалось сфоткать: 1 Посилання на коментар Поділитися на інших сайтах More sharing options...
Soyka Опубліковано: 30 березня 2010 Поділитись Опубліковано: 30 березня 2010 Как-то обещал выложить фотки с боковым освещением штукатурки (чтоб наш брак было видно). Выкладываю то что удалось сфоткать: [ATTACH]46108[/ATTACH][ATTACH]46109[/ATTACH][ATTACH]46110[/ATTACH] Молодцы! Трудяги-мурахи! А барашек мне нравится!:D Посилання на коментар Поділитися на інших сайтах More sharing options...
AmateurFF Опубліковано: 30 березня 2010 Автор Поділитись Опубліковано: 30 березня 2010 Молодцы! Трудяги-мурахи! А барашек мне нравится!:D Спасибо! Нам тоже нравиться. Есть там не большие дефекты, при этом освещении чуть видны. Но это свои! :) 1 Посилання на коментар Поділитися на інших сайтах More sharing options...
AmateurFF Опубліковано: 31 березня 2010 Автор Поділитись Опубліковано: 31 березня 2010 В прошлом году, в начале весны, вырыли в доме и частично забетонировали приямок для насосной станции. Зимой использовали его как погреб - хранили в нем штукатурку чтобы не замерзла. Когда открыли - на дне вода. Вычерпал 5 ведер. К вечеру опять набралось немного воды. Очень высокий уровень грунтовых вод. Глубина приямка - 130 см от верха фундамента. Надо будет подумать как загидроизолировать. Посилання на коментар Поділитися на інших сайтах More sharing options...
AmateurFF Опубліковано: 5 квітня 2010 Автор Поділитись Опубліковано: 5 квітня 2010 Давно уже ламаю голову как из гаража сделать дом. Видов снаружи я выкладывал достаточно. А вот что внутри - гараж - гаражом. Посилання на коментар Поділитися на інших сайтах More sharing options...
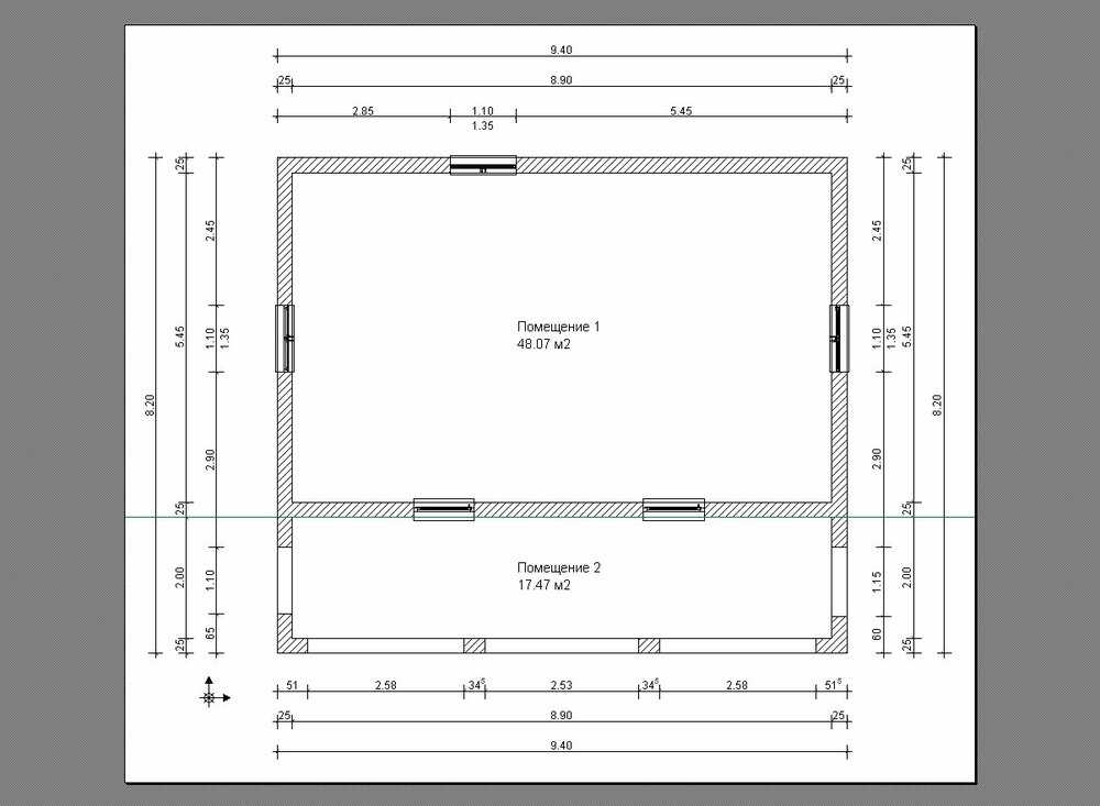
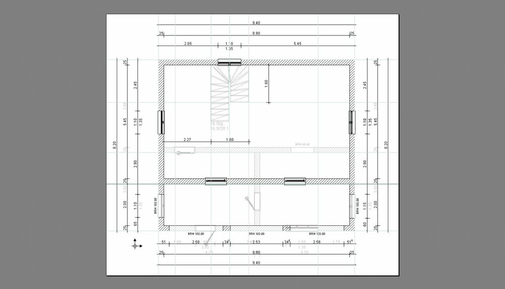
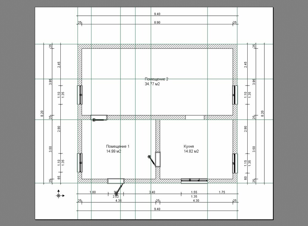
AmateurFF Опубліковано: 6 квітня 2010 Автор Поділитись Опубліковано: 6 квітня 2010 Что бы хотелось. На первом этаже иметь: - одну комнату (на зал слабо тянет); - прихожую и кухню (тут более менее понятно); - топочную (скорее место где расположен газовый котел и пр. обвязка); - санузел, совмещенный с душем; Требования ко второму этажу проще: - две спальни; - санузел, совмещенный с душем; Проблема: Проем в перекрытии расположен неудачно и имеет размер 180*180. Ширина лестницы получается около 85 см. А хотелось бы иметь метровую, удобную лестницу. Посилання на коментар Поділитися на інших сайтах More sharing options...
Soyka Опубліковано: 6 квітня 2010 Поділитись Опубліковано: 6 квітня 2010 А можно поподробнее про нишу для лестницы? Посилання на коментар Поділитися на інших сайтах More sharing options...
AmateurFF Опубліковано: 6 квітня 2010 Автор Поділитись Опубліковано: 6 квітня 2010 А можно поподробнее про нишу для лестницы? Спасибочки, там действительно плохо видно этот проем. Вот так лучше видно. Прорисовал один из вариантов расположения лестницы. Проход между нижней ступенькой и стенкой 122 см. Конечно можно укоротить лестницу (сейчас 270 см), но не сильно. Проем в перекрытии огражден швеллерами П16. Два швеллера лежат между несущими стенами и кусок длинной 180 см опирается на эти швеллера. Были мысли развернуть лестницу вдоль стены, но тогда от комнаты на 1-м этаже ничего не останится. Тогда бы можно былобы разобрать чуть-чуть перекрытие и увеличить проем до 180*210 см. И ширина лестницы бы стала 1 м. ПС. Кстати санузел на 1-м этаже планируется в левом углу от лестницы. Параллельно приямку (видно на чертеже фундамента) для насосной станции . Посилання на коментар Поділитися на інших сайтах More sharing options...
Рекомендовані повідомлення
Створіть акаунт або увійдіть у нього для коментування
Ви маєте бути користувачем, щоб залишити коментар
Створити акаунт
Зареєструйтеся для отримання акаунта. Це просто!
Зареєструвати акаунтУвійти
Вже зареєстровані? Увійдіть тут.
Увійти зараз