Перейти до публікації
Пошук в
  • Додатково...
Шукати результати, які містять...
Шукати результати в...

Строим Jaspis 4 / Яспис 4

bett

Рекомендовані повідомлення

Сегодня наконец -то был поставлен первый кирпич нашего домика! Ура! По- тихоньку движемся к нашей мечте о собственном доме))). Конечно чуть позновато. Надо много чего успеть . И к зиме желательно поставаить под крышу.Ну если погода будет хорошая надеемся к концу ноября реализовать запланированное.Завезли вчера 5 тыс кирпича.Будем подвозить по мере надобности . Остальной стоит на складе в 2 км от стройки. Вместо извести на раствор взяли пластификатор -жидкость.

Никак не получается сфотографировать одним кадром весь обём, ну как получилось так и выставляю....

DSC07486.thumb.JPG.df274610e54ff1f79bed3f727f0a73c5.JPG

333.jpg.2826074e4b1a7aeb2faf20ee1049375f.jpg

334.jpg.da400ba16f433b834843e60700fe466d.jpg

337.jpg.b9dd1b2e8ef7bffb70c67d758f14eae3.jpg

336.jpg.25887c324684c3f50a67a21de58ecf27.jpg

3393.jpg.17d9a46258c78b4db5cb48f63c40cf06.jpg

Змінено користувачем bett
  • Лайк 2
Посилання на коментар
Поділитися на інших сайтах

двери из кабинета (или что у вас там в комнате) будут да?

и топочную решили таки да?

 

Досторйка- (это где площадка на фото )будет под Т/Т котёл... Если он будет. Прочитав кучу информации и отзывов решили изолировать от основной части дома. Двери во втором помещении о котором вы спаршиваете там будут . Где у вас кабинет мы разделили по полам , в передней половинке ванная , а во второй у нас уже ударена скважина была,так что только под хоз помещение.

Боковая площадка таки будет возле кухни. С задней пока непонятно, муж уговаривает не делать выход в этой части дома оставить просто как окно. Попросили строителей пролёт оставить так ,чтоб если что то можно было доложить кирпичи.

Да ...и ещё наверное боковую колону (та что с лева при вьезде в гараж), не будем ставить. В проекте у нас есть но встал вопрос ...нужна ли она нам:unknown:... смотрю некоторые не ставили...

  • Лайк 1
Посилання на коментар
Поділитися на інших сайтах

Первый кирпич, это важное событие поздравляем!!!:):):)

 

поделитесь с подписчиками почему выбрали таки кирпич? не керамоблок, не ракушняк, не газоблок, не белый кирпич, а простой красный кирпич? Толщина кстати какая будет? Просчитывали другие варианты?

 

Мы например столкнувшись с темой утепления поняли почему керамоблок дороже кирпича... Это конечно не значит, что сейчас бы строили из КБ, но считать бесспорно надо, а иногда так не хочется, точнее просто некогда или некому...

Посилання на коментар
Поділитися на інших сайтах

Почему кирпич.... Всё таки материал проверен не одним десятилетием. Экологичность и прочность дома также сыграла немаловажную роль в нашем решении, + у нас сейсмическая зона.

Тут каждый сам выбирает что ему больше подходит и что доступнее. Изначально ориентировались на кирпич и смотрели чуть- чуть в сторону газоблока как второй вариант . Учитывая что газ будет не скоро (а может и не будет) - кирпич будет дольше держать тепло в доме.

Потом вся эта возня с креплениями на стену каких то предметов ( мебель, кондиционеры и прочее) из газоблока и пеноблока.... - как-то не нравилась.

Если честно, скорее на интуитивном уровне решили что хотим кирпич.

Завод находится рядом в 20 км от нас. На складе предложили бесплатную доставку кирпича на участок...

Кстати, недалеко от нас начали одновременно с нами строить дом.Через неделю сняли опалубку с фундамента и начали возводить стены из газобетона Aeroc. Дом чуть меньше нашего с обычной 2-х скатной крышей . На данный момент уже ставят крышу.

У нас канечно не початый край работы по сравнению с ними . Но нам пока жить есть где ,спешка нам никчему.

 

Внешние стены в полтора кирпича, чем будем утеплять ещё не решили .

Просчитывать и нам особо некому. Смотрим ,спрашиваем ,читаем ,достаём вопросами уже опытных форумчан)))- вот и весь информативный источник.

 

Добавлено через 19 минут

Первый кирпич, это важное событие поздравляем!!!:):):)

 

Спасибо !Работа пока идёт с <<раскачкой>> ,не полный состав рабочих (((.

Что-то ещё доделывают на другом обьекте.

Обещают что со следующей недели динамичнее пойдёт стройка...

Посилання на коментар
Поділитися на інших сайтах

практически один в один как и мы... посмотрели, послушали, интутитивно на тех же аргументах решили КИРПИЧ. Правда смотрели на керамоблок (знакомый хвалил), но купив 1 блок - покрутили, повертели, пробовали даже дюбель загнать, может такой попался - но он был хрупкий и стремный. Хорошего качества стоил на то время просто немеренно в сравнении с кирпичем (тоже заводик рядом).

 

Вообщем удачи Вам!

 

П.С. а в 2 кирпича не думали?

  • Лайк 1
Посилання на коментар
Поділитися на інших сайтах

Вообщем удачи Вам!

 

П.С. а в 2 кирпича не думали?

 

 

Спасибо, в 2 кирпича...как-то даже не задумывались... На утепление больше внимания обратим. Да и расходов больше уже некуда - по сегодняшним ценам на стройматериалы.

 

Из не очень приятного: урезали задний выход из гостинной и терассу :cry: . Будет просто окно . Зато сделали выход возле кухни- на боковую (там обзор красивее будет с терассы). Возможно даже будет на всю длину.

 

 

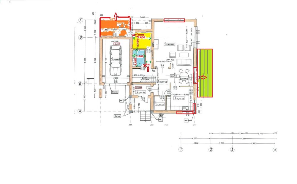
Что изменили в 4-ом ясписе:

- поменяли местами терассы ,

- достроили сзади гаража топочную ,

- изменили с/у на первом этаже

-сделали коридорчик с дверью в типа хозяйственную комнату, (поставим там стиралку , спрячем в шкафчиках разные там моющие средства , химию бытовую, вёдра швабры и т.д)

 

После достройки топочной вроде решился вопрос как попасть туда через дом , что было очень важно в плане удобства перемещения . Особенно этот вопрос волновал мужа. Хотя он не из ленивых, скорее наоборот трудоголик, но комфорт ценит выше всего.

Чтобы не бегать через улицу дров подкидывать зимой, решили сделать дверь из этой хоз.комнаты в топочную(см.рисунок ) перемещение указано красными стрелками.

Таким образом топочная получилась как бы и отдельно, но в то же время туда можно будет попасть если понадобится через хоз. комнату.

 

Пока под вопросом где ставить дверь в этот мини с/у. Может её сделать на левую руку прямо в коридорчике этом? (отмечено крестиком это место)

Изменения все на фото .

Ой... накрутили навертели...:-o Почему - то прям на ходу всё происходит...

 

И Вас kruchenik , поздравляем с началом утепления домика.Ждём продолжения всех остальных процесов!

 

Вот состояние нашей стройки на сегодняшний день.

508391063_D0E36E7C844FBB4A09E3A300BB8CBD84EAC33FB10122FD3EA7pimgpsh_fullsize_distr.thumb.jpg.6ce11a5af9797f57f538a9ef90dce252.jpg

741167621_032B72C84A4BAA46AD7E3028DD792753DB9F065C12F5670562pimgpsh_fullsize_distr.thumb.jpg.4d67a0a1b539c79fbceabf7c84c56fcd.jpg

1520671734_38F48C8F208F175C49E42CF8EAB115F044BF39DD22885A84E9pimgpsh_fullsize_distr.thumb.jpg.b55860fc4a702516008a4884ef3731ec.jpg

611775766_7FE48E807BB87CDB8B27F2891000ABC8F8857968FDFCE0D016pimgpsh_fullsize_distr.thumb.jpg.8ea7832cb147c0d14cdf382dd5e7f88a.jpg

1496206976_8017DAE0A22733493C98D0C911FFD7CBC6D6678C74A9445165pimgpsh_fullsize_distr.thumb.jpg.b4fd29366cdae1b7e55032f373ca49f1.jpg

123.thumb.jpg.ecf2fbcf6b648ea3d805ff1ccf05b185.jpg

  • Лайк 4
Посилання на коментар
Поділитися на інших сайтах

посмотрел, почитал... ну терассы такое дело. Решили так то и так.

а вот топочная и та хоз.комната, мне по чесному вообще не нравится. Во-первых хранить моющие, чистящие - под лестницей много места (особенно если правильно все это спланировать, раз уж отказались от прохода в гараж). Ну стиральная машина - это ваш личный фен-шуй (мы купили тихонькую и поставили в санузле на втором этаже, есть люди которые в кухню тулят, кстати есть комнатка возле кухни...)

 

Комфорт говорите? ну дрова - это уже как бы не совсем комфортно само по себе, ведь дрова нельзя (да и негде) хранить в топочной, то есть мороз и солнце день чудесный, прийдется в трусах, тапках и пальто вылазить на улицу. Да конечно можно запас сделать, и пару раз сходить просто посмотреть датчики (хотя предполагаю что в 21м веке при большом желании комфорта это все можно вывести куда угодно хоть и по вайфаю). А еще получился какой-то апендикс между гостинной и топочной. А еще коридор съел санузел, и вышел кишкой, и тоже не есть хорошо, поскольку площадь первого этажа особо ценная. Почему решили не делать этот "задний проход" через гараж не пойму. Я уже одну зиму прожил, очень удобно и пожаробезопаснее мне кажется.

 

Короче это я к чему - может пока не поздно обратиться к доктору... то есть к архитектору?

  • Лайк 1
Посилання на коментар
Поділитися на інших сайтах

посмотрел, почитал... ну терассы такое дело. Решили так то и так.

а вот топочная и та хоз.комната, мне по чесному вообще не нравится. Во-первых хранить моющие, чистящие - под лестницей много места (особенно если правильно все это спланировать, раз уж отказались от прохода в гараж). Ну стиральная машина - это ваш личный фен-шуй (мы купили тихонькую и поставили в санузле на втором этаже, есть люди которые в кухню тулят, кстати есть комнатка возле кухни...)

 

Комфорт говорите? ну дрова - это уже как бы не совсем комфортно само по себе, ведь дрова нельзя (да и негде) хранить в топочной, то есть мороз и солнце день чудесный, прийдется в трусах, тапках и пальто вылазить на улицу. Да конечно можно запас сделать, и пару раз сходить просто посмотреть датчики (хотя предполагаю что в 21м веке при большом желании комфорта это все можно вывести куда угодно хоть и по вайфаю). А еще получился какой-то апендикс между гостинной и топочной. А еще коридор съел санузел, и вышел кишкой, и тоже не есть хорошо, поскольку площадь первого этажа особо ценная. Почему решили не делать этот "задний проход" через гараж не пойму. Я уже одну зиму прожил, очень удобно и пожаробезопаснее мне кажется.

 

Короче это я к чему - может пока не поздно обратиться к доктору... то есть к архитектору?

С дровами понятно возиться надо, но что- то на перёд угадать сложно. А вдруг на улице - 20... и так не хочется через улицу бежать в топочную дров подкинуть вечерком. Ну типа как дежурная дверь получается. Она и так узкая будет 50 см всего.

Все проблемы из-за этого газа! Поставили бы газовый котёл и не надо ничего пристраивать , придумывать. Всё это и нам не очень нравится, а именно переделывать что то в ясписе .

В коморочке возле кухни будет храниться посуда может, какие то кастрюли мелкая быт.техника . Мешок муки ,мешок макарон, мешок сахара...-шутка конечно :D...ну вобщем ,то что связано с кухней . Стиралка на кухне это не наш вариант. На второй этаж тоже не хотим. Вот она и приютится там в коморочке сзади с/у. и всё что связано со стиркой и уборкой дома будет храниться там.

Через гараж ходить, была такая мысль но потом отказались.

Место между топочной и гостинной на улице получилось шир. 2.600 , глубина 2.000 пока оставим так как есть , а там видно будет.Может полочку аккуратную для дровишек там примостим. Как раз это место под балконом получилось. Сверху можно будет кондиционеры повесить чтоб не портить вид фасада внешними блоками.

 

С/у на первом 2.45 на 1.60 -почти 4 кв.м. Ширина коридора (+,- ) 0,80 см или 100 , длина 2,450.

В плане места на первом этаже для нас должно хватить.

Архитектор в смысле Доктор одобрил ... сказал что не совсем грамотно , но если нам так удобно то ок.:oops:

  • Лайк 1
Посилання на коментар
Поділитися на інших сайтах

Согласна с машинкой в кухне не совсем феншуй, мы сразу планировали топочную делить на постирочную и топочную, но с появлением твердотопа я поняла что места для стиралки и всего к ней прилагаемого теперь там явно не хватает. Решили оставить ее в комнате над гаражом. Минусы... ее надо будет встраивать в барный уголок( где она временно уже пол года как пашет), плюсы вся стирка с первого и мансарды собирается на "нейтральном" этаже( что как показала практика удобно).
  • Лайк 1
Посилання на коментар
Поділитися на інших сайтах

отчёт за неделю...

Подогнали гараж и топочную до конечного уровня.

Привезли и установили доски для перекрытия гаража.

Вроде всё идёт по -плану, чуть вздохнули от дикой жары.

Погода чуть пакостит дождиком(((.

1407508208_2015-09-0717_20_14.jpg.91ef00309b01564426fbfe0340df05a6.jpg

1020911046_2015-09-0717_20_30.jpg.26b9b70c3fbe1e049f62bc0ec6b9c687.jpg

3213884_2015-09-0717_26_45.jpg.46ce83e797f6d0e8cf332ca1634bee55.jpg

1038718691_2015-09-0717_27_27.jpg.42212ce4dd6a5564f3d183847b335360.jpg

  • Лайк 3
Посилання на коментар
Поділитися на інших сайтах

  • 3 тижні потому...

Прошло чуть больше месяца после старта от первого кирпича. Готовы стены первого этажа. Также залили перекрытие над гаражом. Установили опалубку для перемычек. Кладку кирпича в углах делали с колодцами под заливку бетона с армированием. Перемычки по наружным стенам соединим в один сплошной пояс. Углы и этот пояс будем заливать вместе.

На счет углового окна...стали перед выбором если без боковой колонны то нужно уменьшить окно(((. Или чуть уменьшить саму колонну , тогда окно можно не урезать...Так что на угловом стыке будет колонна 20*20.

Хочется поставить забор по некоторым причинам. Желательно сразу глухой и 2-х метровый , но пока нет лишних финансов, а участок не маленький...

Есть вопрос по дереву на крышу. Какой размер стропил лучше ставить? Предлагают нам 150*70 стропила . С утеплением минватой 10см говорят что это достаточно. Климат у нас не суровый. Но что-то сомневаемся. И ещё 2800грн за куб это нормально?

Вывезли нашу любимицу на смотрины,пусть присматривается к будущим владениям.

4d6bf88815c50e2a89ba81c39eaa4415b5e0e271ef572d04dec68850fa434c85.thumb.jpg.30fcd2bbcdb22f66fa145435e89d9e20.jpg

2fe587da691e24f121a473477ef79f1d2176430b3ce8037427e9df79c8146348.thumb.jpg.92359e21161565ceb5c61f4c920e90d4.jpg

f07718ddb7407a1ecf88ae012e8216242f2925b366ca0c39b508788e414830eb.thumb.jpg.dfa0ca4da2ae0814890f96d2d5f6df29.jpg

7230eb3b65ddcc01545e0681f2458f209d3f22019f10bc62d95c69cdcdc461a1.thumb.jpg.1bfec5308cd6bb5eea8d1b8c58a11a89.jpg

0ae015f1a0ae77f536e161240eccf358572658d80de5fcf33915fb593dc240ff.thumb.jpg.43257ce75f2406577bbb6c9e40c83c4d.jpg

933252148_742096CAF715B8745C277B2A7D9CB7EE7B69CF0FA1DFA90DCBpimgpsh_fullsize_distr.thumb.jpg.2d717f45e404fd795030189287de2eca.jpg

2098404621_.thumb.jpg.b82b78bd313939fce85f19466d956671.jpg

342cce28a0d9f8f13556f753eb2fdadf4b9cd1a490f6c52d146e7def1eba8b07.thumb.jpg.a4abc30a5716d78f1cb0bf9b9fce7190.jpg

  • Лайк 4
Посилання на коментар
Поділитися на інших сайтах

Предлагают нам 150*70 стропила

Нормально.

 

С утеплением минватой 10см

Мало. Надо 20 см.

 

И ещё 2800грн за куб

Дорого!!!

  • Лайк 1
Посилання на коментар
Поділитися на інших сайтах

Mikloshill, яка норм ціна на дерево? (щоб знати як торгуватися), знайшли ще одного продавця за 2 400. Змінено користувачем bett
Посилання на коментар
Поділитися на інших сайтах

Mikloshill, яка норм ціна на дерево?

Я починав з 2200грн.куб, закінчив 1500грн.куб до речі з Міжгір'я. Якщо буде якась інфа дам знати:).

  • Лайк 1
Посилання на коментар
Поділитися на інших сайтах

утепление вроде 25 см норма. мы 40 см делали (может перегнули чуток)

по забору уже писал раньше... чем дальше, тем мысли о заборе будут вас посещать чаще и чаще. думаю особо вариантов немного, хотя бы некоторые участки прийдется закрывать хоть как-то хоть чем-то.

  • Лайк 1
Посилання на коментар
Поділитися на інших сайтах

Поздравляю с успешным продвижением строительства! Очень интересный вариант для дома! Возможно ли купить у Вас проект?
  • Лайк 1
Посилання на коментар
Поділитися на інших сайтах

Поздравляю с успешным продвижением строительства! Очень интересный вариант для дома! Возможно ли купить у Вас проект?

Ответила в личку. Проект мы делали под себя. Грунты, стороны света, размер участка, много чего надо брать во внимание.

Посилання на коментар
Поділитися на інших сайтах

утепление вроде 25 см норма. мы 40 см делали (может перегнули чуток)

по забору уже писал раньше... чем дальше, тем мысли о заборе будут вас посещать чаще и чаще. думаю особо вариантов немного, хотя бы некоторые участки прийдется закрывать хоть как-то хоть чем-то.

 

Будут 150*70 стропила ...посоветуйте как лучше сделать 20- 25 утепление чтоб правильно было. И ещё вопрос, читала что ясписоводы меняли высоту мансарды по высоте мансардного этажа.У нас вот так в проэкте ,стоит ли нам что - то менять относительно высоты?(на цоколь не смотрим -его мы не делали)

1859750868_2015-10-0714_54_47.jpg.12f7d0fa9ead35abfc289e0dc44d4156.jpg

Посилання на коментар
Поділитися на інших сайтах

  • 2 тижні потому...
У нас вот так в проэкте ,стоит ли нам что - то менять относительно высоты?(на цоколь не смотрим -его мы не делали)
многое зависит от планировки, там где есть вероятность "хождения" возле стены - лучше когда высота выше. Есть определенные эргономические нормы, спросите у продавца проекта или архитекторов. Например мы подняли везде потолок даже на первом, и еще и вытянули дом ради кухни (это все она, жена!) Теперь немного есть ощущение "лишнего". Хотя по докризисным понятиям жилплощади (и жилобъема) много не было, а теперь при цене на газ/электро/стройматериалы оказалось что бывает. Яспис вообще по планировке продуман неплохо. Посмотрите например мансарда - там везде кровати под скос. По идее должно быть норм. Помните что за каждый сантиметр выше вам прийдется платить за все много много раз. В комнате над гаражом не видно по вашему чертежу какая высота. Лично я если бы откатиться назад не задирал бы так сильно мансарду как мы это сделали. Оно не нужно там настолько. У нас 2 комнаты - детские, они огромезные для детей как по мне. 2 санузла - потолки будут опущены пластиковой вагонкой. Ну 1 спальная родительская - как бы да ощущение пространства - но ради одной комнаты и этого ощущения переплачивать на отоплении и стройматериалах всего этажа (а этаж не маленький) - не целесообразно. Насчет комнаты над гаражом - опять таки что там будет? У нас игровая-кинозал-библиотека-творческая мастерская и временно склад-бардак в одном наборе. Мы подняли чуток совсем - не жалеем. Вышло то что надо. Не забывайте что там площадь большая и низкий потолок будет трохи давить на мозг из-за приплюснутости. Но если там у вас пространство не будет "перегружено" шкафами-диванами-игрушками-фигнюшками то может и нет смысла поднимать стену. Опять таки отопление - сейчас там дети мало проводят времени и отапливаем еле еле чтоб душа в теле. Был бы объем меньше - отапливали бы больше (не так жалко).
  • Лайк 1
Посилання на коментар
Поділитися на інших сайтах

Спасибо что откликнулись. Вопрос и был задан из-за того что kruchenik и Linelka добавили по- высоте мнсарды. Вот и крутились мысли , чем было мотивировано такое решение. Сейчас стало понятно.

У нас комната над гаражом 23 кв.м (гараж на 1 машину).Что там будет пока не определились. Наверное сильно поднимать не будем а может и вообще не будем

Немного о стройке...всё идёт черепашьими темпами. Пошли дожди, когда погода позволяет работаем. Застряли на этапе перекрытия на остальную часть дома.

Начали тянуть стены над гаражом. Были сильные ливни получился бассейн в плохом смысле этого слова. Воде некуда деваться . Решили просверлить 2 отверствия чтоб вода не задерживалась и стекала .

Опаздываем по планируемым срокам на месяц(((грустно.

Проезжали вчера возле стройки что стартовала в одно время с нами -(газоблок). Дом под крышей , с окнами дверьми , делают фасад под чистовую...

2c3076dcf4e47d7beae2b735bc83151951ee31deadfc665628eccff911f78cc1.thumb.jpg.0f08de0c4f13db605e75cb4fdcbefca5.jpg

495282d2fffe7399125220567835242d42c7efae28bec84f6f1b0a42203d0a3b.thumb.jpg.0196e7af4f68513fe5a55c029babb1ed.jpg

dc6d6a540fa6427c0ae39fb0f5b29d6f89b8674812bc9a4321637d191cbd6104.thumb.jpg.9a30a925b2bff4372cb8082e75094800.jpg

  • Лайк 1
Посилання на коментар
Поділитися на інших сайтах

У нас комната над гаражом 23 кв.м (гараж на 1 машину).Что там будет пока не определились. Наверное сильно поднимать не будем а может и вообще не будем

 

На самом деле как выше сказали - таки важно функционально все продумать ну и представить как это будет работать.

Пардон за пример, но если унитаз стоит под скосом, то высота стены должна быть хотя бы 170см в чистовом, так сказать под стоящего мужика :D

 

Аналогичного плана вопросы по 2-м элементам - например ванная (нужно учитывать что имеет высоту от пола еще +15см, или душевая кабина.

 

 

Остальное вроди столов и кроватей - вроди проблем как правило нет.

 

Еще момент - если подымаете основную часть, то наверное нужно пропорционально и гараж - специфика кровли. Но как минимум по всем изменениям смотрите как влияет на кровлю (особенно если поднимите на разные уровни) и где окажутся дымоходы (чтобы не попали на ендовы и т.п.) ну и их высоту не забудьте менять.

 

Вобщем себе делал мансарды так чтобы проблем не было - гдето 170-175 в чистоте в доме, над гаражом больше, но там по плану был спортзал на момент начала стройки, там еще и потолок повторяет скат крыши под конек :D Комната огромезная вышла, поэтому решили ее пока вообще отложить в ящик, вобщем таки совет думать о реальных потребностях тоже в тему.:)

 

Добавлено через 2 минуты

Опаздываем по планируемым срокам на месяц(((грустно.

Проезжали вчера возле стройки что стартовала в одно время с нами -(газоблок). Дом под крышей , с окнами дверьми , делают фасад под чистовую...

 

не грустите, мне банально терассу не могут накрыть уже подгода :D месяц по меркам такой стройки это пыль. а соседи да они такие :D

  • Лайк 1
Посилання на коментар
Поділитися на інших сайтах

Про душевую как раз думали. А вот про унитаз спасибо за подсказку. :good: Мужиков у меня аж 3 ... Один правда мелкий ещё но подрастёт же)))
Посилання на коментар
Поділитися на інших сайтах

посмотрите на реализацию Ясписа на сайте ТМВ. Там толково продумано пространство на мансарде. Особенно не поленитесь загрузите ихнюю софтину для просмотра в 3D. Очень полезно. Еще вот с польских реализаций вам картинки.

(ссылка устарела)

 

89791357506a9720b2f33.md.jpg

 

8979135750128e6da1c5b.md.jpg

 

89791357506a97b1e0f1f.md.jpg

 

89791357506a97400c1c3.md.jpg

  • Лайк 1
Посилання на коментар
Поділитися на інших сайтах

Створіть акаунт або увійдіть у нього для коментування

Ви маєте бути користувачем, щоб залишити коментар

Створити акаунт

Зареєструйтеся для отримання акаунта. Це просто!

Зареєструвати акаунт

Увійти

Вже зареєстровані? Увійдіть тут.

Увійти зараз
×
×
  • Створити...