Maniac Опубліковано: 10 липня 2009 Поділитись Опубліковано: 10 липня 2009 Доверили форумчанину (имена позже, человек занят!) создание проекта. В сад стандартные ;) Первый же вариант по функционалу оооооочень понравился. Разве что размеры надо слегка уменьшить. Не нравится только одно - цокольный этаж. Очень многие говорят, что его наличие удорожает строительство. Меня же в нем больше беспокоит гараж на 2 машины. Насколько комфортно будет заезжать? Не будем ли мы лениться? Как с сыростью и водой? И немного картинок: Примечание: проект персональный, запрещается использование без разрешения! А то ;) Посилання на коментар Поділитися на інших сайтах More sharing options...
InSAn Опубліковано: 10 липня 2009 Поділитись Опубліковано: 10 липня 2009 В гостинной не увидел место под телевизор (или ошибся?). Обратил внимание, т.к. сам сейчас мучаюсь - как расположить мебель Посилання на коментар Поділитися на інших сайтах More sharing options...
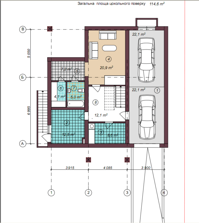
Tugarin Опубліковано: 10 липня 2009 Поділитись Опубліковано: 10 липня 2009 Здравствуйте! Можно назначение комнат+внешний вид? Посилання на коментар Поділитися на інших сайтах More sharing options...
Tugarin Опубліковано: 10 липня 2009 Поділитись Опубліковано: 10 липня 2009 Понял правильно: слева до границы участка 4510 мм, справа 1780 мм? Посилання на коментар Поділитися на інших сайтах More sharing options...
Игорь-Одесса Опубліковано: 10 липня 2009 Поділитись Опубліковано: 10 липня 2009 Гараж трамваем неудобно. Будете друг друга будить. А так ли обязателен гараж в доме? Может быть отдельно или вообще навес? Посилання на коментар Поділитися на інших сайтах More sharing options...
Maniac Опубліковано: 11 липня 2009 Автор Поділитись Опубліковано: 11 липня 2009 Здравствуйте! Можно назначение комнат+внешний вид? Внешнего вида еще нет, назначение комнат могу разве что примерно назвать: в подвале домашний кинозал и технические помещения, на первом зал, столовая, кухня, спальня. На втором взрослая спальня со своей ванной и гардеробом, детская, кабинет, спальня. Посилання на коментар Поділитися на інших сайтах More sharing options...
Maniac Опубліковано: 11 липня 2009 Автор Поділитись Опубліковано: 11 липня 2009 Понял правильно: слева до границы участка 4510 мм, справа 1780 мм? Да, все правильно. Мало? У соседей домов пока нет - картошкой засадили огороды Посилання на коментар Поділитися на інших сайтах More sharing options...
Maniac Опубліковано: 11 липня 2009 Автор Поділитись Опубліковано: 11 липня 2009 В гостинной не увидел место под телевизор (или ошибся?). Обратил внимание, т.к. сам сейчас мучаюсь - как расположить мебель Спасибо, надо будет посмотреть. До мебели еще очень далеко, поэтому в этот момент не вникал. Посилання на коментар Поділитися на інших сайтах More sharing options...
Maniac Опубліковано: 11 липня 2009 Автор Поділитись Опубліковано: 11 липня 2009 Гараж трамваем неудобно. Будете друг друга будить. А так ли обязателен гараж в доме? Может быть отдельно или вообще навес? Вот и у меня такие сомнения. Типа будем тупо во дворе машины оставлять. Архитектор предоставил еще 2 варианта дома без цокольного этажа, не очень понравились Посилання на коментар Поділитися на інших сайтах More sharing options...
InSAn Опубліковано: 11 липня 2009 Поділитись Опубліковано: 11 липня 2009 Внешнего вида еще нет, назначение комнат могу разве что примерно назвать: в подвале домашний кинозал и технические помещения, на первом зал, столовая, кухня, спальня. На втором взрослая спальня со своей ванной и гардеробом, детская, кабинет, спальня. Представьте себе, что Вы утром поснулись и захотели посмотреть фильм. Спускаться с второго этажа в цоколь? ИМХО не практично. По поводу гаража трамвайчиком - согласен с замечанием Игоря: если второй машине нужно будет уехать, а Вы в это время смотрите кино в кинозале - то Вам будет в облом выгонять первую машыну, чтобы дать возможность выехать второй. Раз на десятый надоест - будете заганять только одну машинку, а вторая будет ночвать на улице. Посилання на коментар Поділитися на інших сайтах More sharing options...
Maniac Опубліковано: 11 липня 2009 Автор Поділитись Опубліковано: 11 липня 2009 Представьте себе, что Вы утром поснулись и захотели посмотреть фильм. Спускаться с второго этажа в цоколь? ИМХО не практично. Сейчас мне фильмы удобнее смотреть в кабинете Но все равно достают, ломятся всякие мелкие ;). Поэтому хочется что-то более изолированное, в цоколе делать нечего. По поводу гаража трамвайчиком - согласен с замечанием Игоря: если второй машине нужно будет уехать, а Вы в это время смотрите кино в кинозале - то Вам будет в облом выгонять первую машыну, чтобы дать возможность выехать второй. Раз на десятый надоест - будете заганять только одну машинку, а вторая будет ночвать на улице. По идее можно каждому раздать по ключу от каждой машины и если хочется выехать, то и пусть выезжает самостоятельно. А как по поводу затекания воды? Сильно ли увеличивается стоимость стройки при наличии цокольного этажа? Посилання на коментар Поділитися на інших сайтах More sharing options...
InSAn Опубліковано: 11 липня 2009 Поділитись Опубліковано: 11 липня 2009 А как по поводу затекания воды? Сильно ли увеличивается стоимость стройки при наличии цокольного этажа? По поводу воды - не скажу. А по стоимости - один цокольный этаж равен двум надземным. Посилання на коментар Поділитися на інших сайтах More sharing options...
Maniac Опубліковано: 11 липня 2009 Автор Поділитись Опубліковано: 11 липня 2009 По поводу воды - не скажу. А по стоимости - один цокольный этаж равен двум надземным. Жесть Спасибо за инфо. Посилання на коментар Поділитися на інших сайтах More sharing options...
Tugarin Опубліковано: 11 липня 2009 Поділитись Опубліковано: 11 липня 2009 Да, все правильно. Мало? У соседей домов пока нет - картошкой засадили огороды Когда-то поднимал пожарные нормы и требования, прочел в них приблизительно следующее: "от самой выступающей части дома до границы участка должно быть расстояние равное 1 м.50 см". Справа самой выстурающей частью будет тжелоб водостока да еще и свес кровли, т.е. 1780-600(min)=1180 мм, т.е. как до норм, то нехватает 1500-1180=320 мм и это в том случае если от стены до крайней точки водосточного желоба будет действительно 600 мм. 2 Посилання на коментар Поділитися на інших сайтах More sharing options...
Amazonka Опубліковано: 11 липня 2009 Поділитись Опубліковано: 11 липня 2009 По поводу воды - не скажу. А по стоимости - один цокольный этаж равен двум надземным. С грунтовыми водами у нас в Горе все нормально, не высокие, цокольный этаж можно сделать без проблем. А вот по стоимости - полностью поддерживаю InSAn, недешевое удовольствие. Земляные работы, бетонные, хорошая гидроизоляция обойдутся дороже, чем кладка надземных этажей. По-поводу планировки - очень функционально, много хоз. помещений (чего у меня, к сожалению нет). Понравилась планировка хозяйской спальни на 2-м этаже. Пожалуй, стоит увеличить площадь котельной, 3м все-таки маловато, учитывая сколько разного оборудования туда нужно будет поставить. Что касается гаража, под него лучше делать высокий цоколь. Иначе может получиться большой уклон, сложно будет заезжать особенно зимой. Посилання на коментар Поділитися на інших сайтах More sharing options...
Maniac Опубліковано: 11 липня 2009 Автор Поділитись Опубліковано: 11 липня 2009 С грунтовыми водами у нас в Горе все нормально, не высокие, цокольный этаж можно сделать без проблем. А вот по стоимости - полностью поддерживаю InSAn, недешевое удовольствие. Земляные работы, бетонные, хорошая гидроизоляция обойдутся дороже, чем кладка надземных этажей. По-поводу планировки - очень функционально, много хоз. помещений (чего у меня, к сожалению нет). Понравилась планировка хозяйской спальни на 2-м этаже. Пожалуй, стоит увеличить площадь котельной, 3м все-таки маловато, учитывая сколько разного оборудования туда нужно будет поставить. Что касается гаража, под него лучше делать высокий цоколь. Иначе может получиться большой уклон, сложно будет заезжать особенно зимой. Ольга, спасибо за отзыв! Тогда скажу останавливаться на этом проекте (от Романса отказались) и рисовать фасад. Посилання на коментар Поділитися на інших сайтах More sharing options...
Maniac Опубліковано: 11 липня 2009 Автор Поділитись Опубліковано: 11 липня 2009 Пожалуй, стоит увеличить площадь котельной, 3м все-таки маловато, учитывая сколько разного оборудования туда нужно будет поставить. Насколько понял, котельная будет в подвале, отмечена на рисунке (2), там сейчас 12.5 м2. 3-метровая фигня (17) для всяких садовых инструментов. Хотя могу ошибаться Посилання на коментар Поділитися на інших сайтах More sharing options...
Amazonka Опубліковано: 11 липня 2009 Поділитись Опубліковано: 11 липня 2009 А-а, тогда я ошиблась. Именно № 17 с отдельным входом я и приняла за котельную. Еще добавлю по-поводу размещения дома в границах участка. Зарегистрируете проект с такой привязкой к межам в районной архитектуре, получите строительный паспорт - и все. Потом соседи, если надумают строиться должны будут отступать от Вашего дома положенные 8м. А Вам останется только проследить за соблюдением норм. Кстати, Ваш дом получается не намного шире нашего - у нас с одной стороны до межи 5м (от выступающего эркера), с другой 2м (тоже от эркера). Посилання на коментар Поділитися на інших сайтах More sharing options...
Maniac Опубліковано: 11 липня 2009 Автор Поділитись Опубліковано: 11 липня 2009 А-а, тогда я ошиблась. Именно № 17 с отдельным входом я и приняла за котельную. Еще добавлю по-поводу размещения дома в границах участка. Зарегистрируете проект с такой привязкой к межам в районной архитектуре, получите строительный паспорт - и все. Потом соседи, если надумают строиться должны будут отступать от Вашего дома положенные 8м. А Вам останется только проследить за соблюдением норм. Кстати, Ваш дом получается не намного шире нашего - у нас с одной стороны до межи 5м (от выступающего эркера), с другой 2м (тоже от эркера). Так и сделаю, осталось только проект доделать Посилання на коментар Поділитися на інших сайтах More sharing options...
архітектор Опубліковано: 11 липня 2009 Поділитись Опубліковано: 11 липня 2009 С грунтовыми водами у нас в Горе все нормально, не высокие, цокольный этаж можно сделать без проблем. А вот по стоимости - полностью поддерживаю InSAn, недешевое удовольствие. Земляные работы, бетонные, хорошая гидроизоляция обойдутся дороже, чем кладка надземных этажей. Поправка! В Горе действительно низкий уровень грунтовых вод (в радиусе 150 метров от данного дома - точно) Так зачем, скажите, дорогая гидроизоляция? Чего от чего изолировать? Верховодку (дождевую воду) надо обязательно убрать, чтобы не замачивала потенциально просадочные Горянские лессовидные грунты. По стоимости фундамента или цоколя - ищите честных прорабов, а то действитель дорого будет, пока все откаты уплатите. По одной из последних смет, которая есть у меня в распоряжении, и которая уже наполовину выполнена по цокольному этажу (покупка материалов, согласование расценок строителей). Цоколь на подобном грунте немного дороже (прим. на 15 проц.), чем первый этаж. Затратные позиции по цоколю - это перекрытие. При высоте потолков цоколя 2,5 м, высота стен примерно 2,9 м. Высота же фундамента без цоколя - 1,5 м + пол по грунту, что дешевле, чем перекрытие. Зато экономия места на участке. Есть проблема - навес над пандусом очень нужен, а то он (пандус) превратится в речку с устьем в гараже. Чтобы этого не случилось, нужно делать накрытие над пандусом, желательно не из гнутого прозрачного поликарбоната (безобразного синего или зеленого цвета) и дренажную трубу с приямком в самом низком месте пандуса. Посилання на коментар Поділитися на інших сайтах More sharing options...
Maniac Опубліковано: 11 липня 2009 Автор Поділитись Опубліковано: 11 липня 2009 Есть проблема - навес над пандусом очень нужен, а то он (пандус) превратится в речку с устьем в гараже. Чтобы этого не случилось, нужно делать накрытие над пандусом, желательно не из гнутого прозрачного поликарбоната (безобразного синего или зеленого цвета) и дренажную трубу с приямком в самом низком месте пандуса. Про это, пожалуйста, подробнее Посилання на коментар Поділитися на інших сайтах More sharing options...
InSAn Опубліковано: 11 липня 2009 Поділитись Опубліковано: 11 липня 2009 Доверили форумчанину (имена позже, человек занят!) создание проекта. В Горе действительно низкий уровень грунтовых вод (в радиусе 150 метров от данного дома - точно) А вот и автор проекта нашелся :D Посилання на коментар Поділитися на інших сайтах More sharing options...
Maniac Опубліковано: 11 липня 2009 Автор Поділитись Опубліковано: 11 липня 2009 А вот и автор проекта нашелся :D Архитектор дом поблизости проектировал ;) Посилання на коментар Поділитися на інших сайтах More sharing options...
архітектор Опубліковано: 11 липня 2009 Поділитись Опубліковано: 11 липня 2009 Когда-то поднимал пожарные нормы и требования, прочел в них приблизительно следующее: "от самой выступающей части дома до границы участка должно быть расстояние равное 1 м.50 см". Справа самой выстурающей частью будет тжелоб водостока да еще и свес кровли, т.е. 1780-600(min)=1180 мм, т.е. как до норм, то нехватает 1500-1180=320 мм и это в том случае если от стены до крайней точки водосточного желоба будет действительно 600 мм. В ДБН 79-92 "Житлові будинки для індивідуальних забудовників Українани" 92 года издания в п.2,20 пишут " Відстань від межі суміжної ділянки до стін житлового будинку або госп. споруди слід приймати не менше 1 м. Конструкції будинків і споруд, що виступають, не повинні перетинати меж сусідніх ділянок". Естественно, при условии выполнения противопожарных и санитарных разрывов.это 8 м или согласно таблицы из ДБН, в зависимости от степени огнестойкости дома. Посилання на коментар Поділитися на інших сайтах More sharing options...
архітектор Опубліковано: 11 липня 2009 Поділитись Опубліковано: 11 липня 2009 Архитектор дом поблизости проектировал ;) Вот ветка о начале строительства этого дома: Гора Посилання на коментар Поділитися на інших сайтах More sharing options...
Рекомендовані повідомлення
Створіть акаунт або увійдіть у нього для коментування
Ви маєте бути користувачем, щоб залишити коментар
Створити акаунт
Зареєструйтеся для отримання акаунта. Це просто!
Зареєструвати акаунтУвійти
Вже зареєстровані? Увійдіть тут.
Увійти зараз