архітектор Опубліковано: 11 липня 2009 Поділитись Опубліковано: 11 липня 2009 Кстати, сегодня был на стройплощадке, где строим дом с цоколем. Проблема возникла с вывозом земли. Наняли эскаватор и ЗИЛ (для вывоза земли) - это 300 грн в час. Землю возили в яр, который в конце участка в 49 соток (140 км от Киева). Земли много, 10 тонный ЗИЛ возил землю 16 часов (две смены). Прибежал депутат райсовта с корочкой - начал грузить, что это за самоволка, обещал позвать сельского голову, бывшего прапорщика. Это отдаленный от Киева район, сельский голова уже дал добро, но местные хотят поиметь что-то со строительства. Тем более - это первый строящийся дом в селе за последние 5 лет. Да еще и по проекту. Посилання на коментар Поділитися на інших сайтах More sharing options...
Maniac Опубліковано: 11 липня 2009 Автор Поділитись Опубліковано: 11 липня 2009 Вот ветка о начале строительства этого дома: Гора Интересно, спасибо, почитаю. Посилання на коментар Поділитися на інших сайтах More sharing options...
EugeneH Опубліковано: 11 липня 2009 Поділитись Опубліковано: 11 липня 2009 Здається мені що шахта замала - в ній димар (150мм), витяжка з котельні (150мм) кухонна витяжка (150 мм), витяжка з санвузла першого поверху (100 мм), витяжка з санвузла 2-го поверху (100 мм), тільки чистих каналів на 750 мм, а ще ж і перегородки якісь там мають бути. Також я не уявляю як можна зробити витяжки з інших санвузлів (цоколь, 2-й поверх) та пральні - нема ні шахти ні капітальної стіни що б проходила через усі поверхи. Тепер про каналізацію - на якій глибині підлога цокольного поверху? 1.5 м? Через наявність ванни в цоколі випуск з дому має бути нижче підлоги цокольного поверху і вся Ваша зовнішня каналізація має бути заглиблена на ці додаткові 1.5 м. Посилання на коментар Поділитися на інших сайтах More sharing options...
архітектор Опубліковано: 11 липня 2009 Поділитись Опубліковано: 11 липня 2009 Здається мені що шахта замала - в ній димар (150мм), витяжка з котельні (150мм) кухонна витяжка (150 мм), витяжка з санвузла першого поверху (100 мм), витяжка з санвузла 2-го поверху (100 мм), тільки чистих каналів на 750 мм, а ще ж і перегородки якісь там мають бути. Також я не уявляю як можна зробити витяжки з інших санвузлів (цоколь, 2-й поверх) та пральні - нема ні шахти ні капітальної стіни що б проходила через усі поверхи. Тепер про каналізацію - на якій глибині підлога цокольного поверху? 1.5 м? Через наявність ванни в цоколі випуск з дому має бути нижче підлоги цокольного поверху і вся Ваша зовнішня каналізація має бути заглиблена на ці додаткові 1.5 м. Ви ж називаєтеся досвідченим форумчанином, а такі питання ставите... По вентиляційним каналам: у цегляній кладці розмір каналу стандартний 140*140. Очевидно, при розмірі цегли 250*120*65 і шві в 1 см (з допусками) 140*140 і виходить. Занадто високі вимоги ставите до ескізу проекту. Якщо проект розмістити у повному обсязі, буде багато спокус скористатися ним на шару. Щодо ванни у цоколі - люди вже давно внайшли прилад типу "Сололіфт", що подрібнює і підкачує на висоту випуску каналізації з будинку (-1м нижче землі) випуски з туалету у цоколі. Розмір цього приладу дозволяє встановлювати його під бачком унітазу. Вартість - від 2800 грн і більше. Його треба мати постійно ввімкненим у електромережу. Посилання на коментар Поділитися на інших сайтах More sharing options...
Tugarin Опубліковано: 11 липня 2009 Поділитись Опубліковано: 11 липня 2009 В ДБН 79-92 "Житлові будинки... Не буду спорить, попытаюсь найти эту книгу и ответить более конкретно, что и где. Посилання на коментар Поділитися на інших сайтах More sharing options...
EugeneH Опубліковано: 12 липня 2009 Поділитись Опубліковано: 12 липня 2009 Ви ж називаєтеся досвідченим форумчанином, а такі питання ставите... А ви ж називаєтсь архитектор а такі відповіді даєте По вентиляційним каналам: у цегляній кладці розмір каналу стандартний 140*140. Очевидно, при розмірі цегли 250*120*65 і шві в 1 см (з допусками) 140*140 і виходить. Якщо канали цегляні по 140 мм і перегородкою в 120 мм то виходить така арифметика: 5 каналів по 140 мм, 7 стінок по 120 мм - 1540 мм, у проекті навіть стіни такої довжини нема. Занадто високі вимоги ставите до ескізу проекту. Якщо проект розмістити у повному обсязі, буде багато спокус скористатися ним на шару. Якщо про такі речі не подумати на стадії ескізу то на стадії робочих кресленнь полізуть всякі нестиковки, зміни в ескізі, стінку туди стінку сюди... Щодо ванни у цоколі - люди вже давно внайшли прилад типу "Сололіфт", що подрібнює і підкачує на висоту випуску каналізації з будинку (-1м нижче землі) випуски з туалету у цоколі. Розмір цього приладу дозволяє встановлювати його під бачком унітазу. Вартість - від 2800 грн і більше. Його треба мати постійно ввімкненим у електромережу. А в електромережі мати напругу безперебійно. Я надіюсь про ці нюанси Maniac дізнався не з Вашого повідомлення на форумі Посилання на коментар Поділитися на інших сайтах More sharing options...
архітектор Опубліковано: 12 липня 2009 Поділитись Опубліковано: 12 липня 2009 EugeneH Чи знаєте Ви про вентиляційні канали, що підключаються один над одним ? Ці тонкощі ми вирішимо, коли буде остаточно затрверджене планування будинку. А от будинок з накритим пандусом: Посилання на коментар Поділитися на інших сайтах More sharing options...
Maniac Опубліковано: 12 липня 2009 Автор Поділитись Опубліковано: 12 липня 2009 Щодо ванни у цоколі - люди вже давно внайшли прилад типу "Сололіфт", що подрібнює і підкачує на висоту випуску каналізації з будинку (-1м нижче землі) випуски з туалету у цоколі. Розмір цього приладу дозволяє встановлювати його під бачком унітазу. Вартість - від 2800 грн і більше. Його треба мати постійно ввімкненим у електромережу. Чего-то мне такой вариант не очень нравится. Еще погуглю про него. Посилання на коментар Поділитися на інших сайтах More sharing options...
архітектор Опубліковано: 12 липня 2009 Поділитись Опубліковано: 12 липня 2009 вот пару картинок и сайт по Сололифту (ссылка устарела) Посилання на коментар Поділитися на інших сайтах More sharing options...
EugeneH Опубліковано: 12 липня 2009 Поділитись Опубліковано: 12 липня 2009 EugeneH Чи знаєте Ви про вентиляційні канали, що підключаються один над одним ? Так, знаю. Також знаю що є певні обмеження на таке об'єднання витяжок. А от будинок з накритим пандусом: Хм, виходить що площа відведена під пандус та виїзд практично рівна площі окремого гаража. Чи доцільно в такому випадку робити підземний гараж? 2 Посилання на коментар Поділитися на інших сайтах More sharing options...
Maniac Опубліковано: 12 липня 2009 Автор Поділитись Опубліковано: 12 липня 2009 вот пару картинок и сайт по Сололифту (ссылка устарела) Там написано про потребляемую мощность 300-400 ватт. Это постоянно такое потребление, 24 часа в сутки? Посилання на коментар Поділитися на інших сайтах More sharing options...
Maniac Опубліковано: 12 липня 2009 Автор Поділитись Опубліковано: 12 липня 2009 Хм, виходить що площа відведена під пандус та виїзд практично рівна площі окремого гаража. Чи доцільно в такому випадку робити підземний гараж? Согласен, ерунда какая-то выходит. Посилання на коментар Поділитися на інших сайтах More sharing options...
архітектор Опубліковано: 12 липня 2009 Поділитись Опубліковано: 12 липня 2009 Там написано про потребляемую мощность 300-400 ватт. Это постоянно такое потребление, 24 часа в сутки? Ну, если пользоваться сантех приборами 24 часа в сутки, то да. Он включается, когда есть слив. Посилання на коментар Поділитися на інших сайтах More sharing options...
Maniac Опубліковано: 12 липня 2009 Автор Поділитись Опубліковано: 12 липня 2009 Ну, если пользоваться сантех приборами 24 часа в сутки, то да. Он включается, когда есть слив. А, тогда нормально, одобрямс Посилання на коментар Поділитися на інших сайтах More sharing options...
Maniac Опубліковано: 12 липня 2009 Автор Поділитись Опубліковано: 12 липня 2009 Хм, виходить що площа відведена під пандус та виїзд практично рівна площі окремого гаража. Чи доцільно в такому випадку робити підземний гараж? На семейном совете решили отказаться от гаража в доме. Будут машинки под солнышком стоять. Пользуюсь открытыми частными стоянками года 4, транспортные средства выживают нормально Если что, навес добавим. Вместо гаража будет спортзал со складом. Посилання на коментар Поділитися на інших сайтах More sharing options...
Freebird Опубліковано: 13 липня 2009 Поділитись Опубліковано: 13 липня 2009 ИМХО, гараж нужен для того, чтобы оставить машину на длительный срок. Хранение в отапливаемом гараже для машины вреднее, чем под навесом - хуже сохнет, больше подвержена коррозии и т.д. Навес от осадков сделайте обязательно. Продлите жизнь своему железному коню. Посилання на коментар Поділитися на інших сайтах More sharing options...
Maniac Опубліковано: 13 липня 2009 Автор Поділитись Опубліковано: 13 липня 2009 Навес от осадков сделайте обязательно. Продлите жизнь своему железному коню. Ок, передам пожелание архитектору. Посилання на коментар Поділитися на інших сайтах More sharing options...
Саня, Княжичи Опубліковано: 21 липня 2009 Поділитись Опубліковано: 21 липня 2009 Доверили форумчанину (имена позже, человек занят!) создание проекта. В сад стандартные ;) Первый же вариант по функционалу оооооочень понравился. Разве что размеры надо слегка уменьшить. Не нравится только одно - цокольный этаж. Очень многие говорят, что его наличие удорожает строительство. Меня же в нем больше беспокоит гараж на 2 машины. Насколько комфортно будет заезжать? Не будем ли мы лениться? Как с сыростью и водой? Хорошо вроде получилось. У меня похожий дом. Не нравится заезд в гараж, как в подвал. Стены и фундамент нужно хорошо гидро изолировать и утеплять. Я буду после ремонта в доме снимать всю отмостку и утеплять фундамент. Вот мой дом. Посилання на коментар Поділитися на інших сайтах More sharing options...
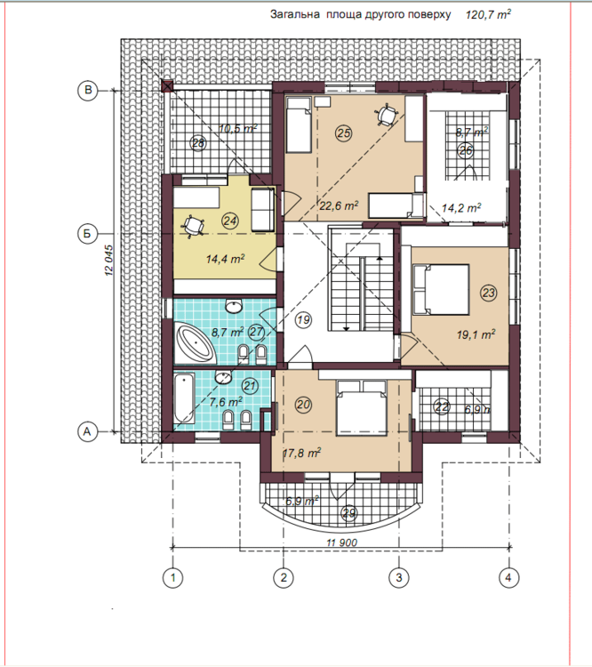
Embongo Опубліковано: 25 липня 2009 Поділитись Опубліковано: 25 липня 2009 А почему бы на 2 этаже толково не использовать часть коридора около комнаты 25? Тогда если передвинуть окна, то гардеробную можно сделать совместной или разбить поровну между 25 и 23 комнатой и достаточно приличный кусок коридора не будет гулять. В общем, что-то вроде этого: Посилання на коментар Поділитися на інших сайтах More sharing options...
Maniac Опубліковано: 25 липня 2009 Автор Поділитись Опубліковано: 25 липня 2009 У меня похожий дом. Не нравится заезд в гараж, как в подвал. Стены и фундамент нужно хорошо гидро изолировать и утеплять. Я буду после ремонта в доме снимать всю отмостку и утеплять фундамент. Вот мой дом. Гаража не будет Уже немного переиграли. Посилання на коментар Поділитися на інших сайтах More sharing options...
Maniac Опубліковано: 25 липня 2009 Автор Поділитись Опубліковано: 25 липня 2009 А почему бы на 2 этаже толково не использовать часть коридора около комнаты 25? Тогда если передвинуть окна, то гардеробную можно сделать совместной или разбить поровну между 25 и 23 комнатой и достаточно приличный кусок коридора не будет гулять. В общем, что-то вроде этого: Вариант хороший, но лучше, чтобы больше окон выходило на восток. А гуляющий коридор - типа свобода Посилання на коментар Поділитися на інших сайтах More sharing options...
Embongo Опубліковано: 26 липня 2009 Поділитись Опубліковано: 26 липня 2009 Вариант хороший, но лучше, чтобы больше окон выходило на восток. А гуляющий коридор - типа свобода Гулящий коридор - это клочья пыли, берущиеся непонятно от куда (из личного опыта);) А для спален прикольно, когда окна на восток выходят - солнышко спать не дает. А вот для комнат, где, например, дети постоянно играют лучше юго-восток, юг, тк на с-в и с-з солнце очень непродолжительно (зато на этих окнах фиалки цветут непереставая). Какова у Вас точная ориентация дома? Посилання на коментар Поділитися на інших сайтах More sharing options...
Юрий, Бровары Опубліковано: 27 липня 2009 Поділитись Опубліковано: 27 липня 2009 Ольга, спасибо за отзыв! Тогда скажу останавливаться на этом проекте (от Романса отказались) и рисовать фасад. Можете посмотреть и такой вариант. Это реальный дом и проект (ссылка на изображение устарела) (ссылка на изображение устарела) У меня от него остался где-то похожий только 1-й этаж (вместо топочной - бельевая, гардеробной - ещё один санузел,прямо из спальни, вместо терассы - зимний сад). Сделал себе цокольный и 2-й этажи для полного удовольствия и рациональности. На 2-м этаже 3 комнаты (можно спальни или что хош), холл и балкон. В цоколе гараж, топочная (котельня), сауна, душ, комната отдыха, кладовая, мастерская, кладовка. Вроде ничего не забыл.%) Посилання на коментар Поділитися на інших сайтах More sharing options...
Рекомендовані повідомлення
Створіть акаунт або увійдіть у нього для коментування
Ви маєте бути користувачем, щоб залишити коментар
Створити акаунт
Зареєструйтеся для отримання акаунта. Це просто!
Зареєструвати акаунтУвійти
Вже зареєстровані? Увійдіть тут.
Увійти зараз