Гончар Опубліковано: 18 лютого 2011 Поділитись Опубліковано: 18 лютого 2011 Ну так ведь у нас в Осокорках гаражи все строят по меже, прямо по границе с соседями и с улицей! Это садовым уставом разрешено! Садовый устав - это какой-то нормативный документ? Посилання на коментар Поділитися на інших сайтах More sharing options...
Белая Рысь Опубліковано: 18 лютого 2011 Поділитись Опубліковано: 18 лютого 2011 Да, это юридический документ, которым руководствуются в садовых товариществах. Он иногда может идти вразрез с общими нормами ДБН. Например, когда я начинала стройку, в уставе было написано, согласно ДБН, что отступ от межи для жилых зданий должен быть не менее 1 метра. Я именно так и сделала. А в прошлом году соседу не понравилось, что мы с другой соседкой затиснули его участок своими домами, и он добился, чтобы устав пересмотрели и записали расстояние до межи не менее 3 метров. 1 Посилання на коментар Поділитися на інших сайтах More sharing options...
dramaturg Опубліковано: 18 лютого 2011 Поділитись Опубліковано: 18 лютого 2011 А почему не нужен гараж? Вот Драматург считает, что даже на 2 машины нужен крытый гараж при доме! На счет двух машин не знаю, может и не обязательно Но на одну, если участок позволяет - обязательно. Вот вам реальный пример - в ночь с понедельника на вторник у меня запарафинировалась (читай "замерзла") солярка, антигель я забыл добавить. Что делать? Машину не завезти. Нужно отогревать. На сервис буксировать - там хотят 400 грн за отогрев экспрес, и порядка 100 за сутки простоя в обычном боксе. В общем благодаря опель-клубу таки отогрел машину своими силами. Но вот вам реальный пример! Был бы гараж - проблем бы не было. Дальше, аккумулятор не любит холода - это всем известно. Стартеру лучше маслать в теплой машине. Поверте, что на сервис из-за пустаков вы ездить не будете. Поменять фильтры, наконечники, стойки - все это легко сделать в домашних условиях. Нужна лишь яма и гараж. А так будете платить Кулибиным за такие простые работы, притом не факт, что они лучше сделают. Да и когда влажнасть большая и мороз, то машина покрывается коркой льда даже под навесом. А это означает, что утром вам нужно 15 минут секаса по отскребанию льда с машины. Уедите вы на море - машину лучше в гараж. В общем это лишь зима! А ведь куча нюансов и летом. Мне кажется, что на форуме люди отговаривают от гараж лишь в том случае, если не было опыта её эксплуатации, или если денег много и даже фильтры меняют на сервисе. У меня стена гаража соседа - это между нами забор )) Т.е. от забора никто не отступил ни метра. Но гараж был уже при покупке участка. Я ж не буду его склонять на то, чтобы он его разрушил... хотя мог бы по закону )) Ширина участка у меня 15 метров, глубина/длина 30 м. Гараж поставить можно, но не нужно ) Белая рысь правильно ответила - в обычном участке, да еще и в К-С районе, совсем другие требования. Точнее они строго по ДБН, а вот в кооперативах там свои нюансы. Посилання на коментар Поділитися на інших сайтах More sharing options...
Белая Рысь Опубліковано: 18 лютого 2011 Поділитись Опубліковано: 18 лютого 2011 М-дааа, надо думать, куда впихнуть гараж на 6-ти сотках, где есть новый и старый дом, душ и туалет... Плохо дело. Хоть и нет машины, а все равно плохо Что с проектом? Уговорили жену? Посилання на коментар Поділитися на інших сайтах More sharing options...
dramaturg Опубліковано: 18 лютого 2011 Поділитись Опубліковано: 18 лютого 2011 М-дааа, надо думать, куда впихнуть гараж на 6-ти сотках, где есть новый и старый дом, душ и туалет... Плохо дело. Хоть и нет машины, а все равно плохо Что с проектом? Уговорили жену? На 6 сотках, быть может, можно и обойтись без гаража))) Подружитесь с соседом - если чо, у него в гараже отогреете машину :D С женой пока думаю, кроим, меняем Посилання на коментар Поділитися на інших сайтах More sharing options...
Korni Опубліковано: 18 лютого 2011 Поділитись Опубліковано: 18 лютого 2011 ....куда впихнуть гараж на 6-ти сотках..... У нас на 4,5 сотках дом (150м.кв) + гараж (2этажа, общ. площадью 105м.кв)....+ сад какой-никакой.... Думаем третий дом ставить. Посилання на коментар Поділитися на інших сайтах More sharing options...
Белая Рысь Опубліковано: 18 лютого 2011 Поділитись Опубліковано: 18 лютого 2011 А план Вашего участка есть? С дорогой и выездом? Поделитесь! Посилання на коментар Поділитися на інших сайтах More sharing options...
Белая Рысь Опубліковано: 18 лютого 2011 Поділитись Опубліковано: 18 лютого 2011 На 6 сотках, быть может, можно и обойтись без гаража))) Подружитесь с соседом - если чо, у него в гараже отогреете машину :D С женой пока думаю, кроим, меняем Издеваетесь Вы надо мной! Мы с соседом перестреляем друг друга, если оружие в руках окажется:D Посилання на коментар Поділитися на інших сайтах More sharing options...
Белая Рысь Опубліковано: 18 лютого 2011 Поділитись Опубліковано: 18 лютого 2011 Как я люблю вестерны! А какие там лошади! Посилання на коментар Поділитися на інших сайтах More sharing options...
D@redevil Опубліковано: 18 лютого 2011 Поділитись Опубліковано: 18 лютого 2011 dramaturg Вы знаете, у меня в старом доме был гараж-его пользовали как сарай, а авто я всегда под домом бросала в доме мужа гараж на 2 авто, но при этом обе машины у нас стояли под домом, облом вылазить, открывать ворота(там обычные распашные), паковать машины в гараж, а потом утром с гаража всеравно выкатывать, чтобы прогрелись...в гараж машины загоняли только, если после То на утро надо масла уровень замерять или зимой после химчистки, чтобы высох салон:D а так гараж-склад резины. Мне наоборот нравится утром снег с машины отгребать-типа при деле, пока она греется:D в новом доме опять по глупости сделала гараж, ухайдокав массу денег на фундамент, стены, крышу, утепление крыши, отопление, ворота автоматические...а авто всеравно ставлю возле дома вот и думаю "а нафига мне тот гараж? лучше бы сделала лишнюю комнату в доме", что собственно и собираюсь реализовать со временем, когда настанет срок фасад переделывать-сниму ворота, сделаю больше окна и заложу въезд в гараж ГБ, а отопление у меня итак там есть;) ...ну а ТО авто своими руками я переросла еще лет в 25...теперь ловлю кайф от того, что приезжаю, отдаю ключи и иду пить кофе пока кто-то крутит гайки 1 Посилання на коментар Поділитися на інших сайтах More sharing options...
Korni Опубліковано: 18 лютого 2011 Поділитись Опубліковано: 18 лютого 2011 А план Вашего участка есть? С дорогой и выездом? Поделитесь! У себя в ветке описывал: пост №20 - без гаражика, правда, на тот момент... Посилання на коментар Поділитися на інших сайтах More sharing options...
Korni Опубліковано: 18 лютого 2011 Поділитись Опубліковано: 18 лютого 2011 Гараж с автоматическими воротами - ВЕЩЬ! Лично для меня - очень удобная..... Посилання на коментар Поділитися на інших сайтах More sharing options...
dramaturg Опубліковано: 18 лютого 2011 Поділитись Опубліковано: 18 лютого 2011 У нас есть черновой вариант проекта, переделанный с Валиного дома. Философия от моего проекта - гостинная со вторым светом таки на северовосток, а все остальное на юг и запад. Здесь одна машина и три спальни сверху, за счет этого дом получается до 300 метров. И кабинет-спальня на певром этаже здесь на юг. Вот: (ссылка на изображение устарела) (ссылка на изображение устарела) Пока еще в раздумьях с супругой - оставить наш, или взять этот. Посилання на коментар Поділитися на інших сайтах More sharing options...
Белая Рысь Опубліковано: 18 лютого 2011 Поділитись Опубліковано: 18 лютого 2011 dramaturg Вы знаете, у меня в старом доме был гараж-его пользовали как сарай, а авто я всегда под домом бросала в доме мужа гараж на 2 авто, но при этом обе машины у нас стояли под домом, облом вылазить, открывать ворота(там обычные распашные), паковать машины в гараж, а потом утром с гаража всеравно выкатывать, чтобы прогрелись...в гараж машины загоняли только, если после То на утро надо масла уровень замерять или зимой после химчистки, чтобы высох салон:D а так гараж-склад резины. Мне наоборот нравится утром снег с машины отгребать-типа при деле, пока она греется:D в новом доме опять по глупости сделала гараж, ухайдокав массу денег на фундамент, стены, крышу, утепление крыши, отопление, ворота автоматические...а авто всеравно ставлю возле дома вот и думаю "а нафига мне тот гараж? лучше бы сделала лишнюю комнату в доме", что собственно и собираюсь реализовать со временем, когда настанет срок фасад переделывать-сниму ворота, сделаю больше окна и заложу въезд в гараж ГБ, а отопление у меня итак там есть;) ...ну а ТО авто своими руками я переросла еще лет в 25...теперь ловлю кайф от того, что приезжаю, отдаю ключи и иду пить кофе пока кто-то крутит гайки Вот посмотрите на план Драматурга и скажите Ваше мнение: у него внизу справа либо гараж, либо комната, выходящая на юг!!!!! Делать гараж на юг -- это расточительство, в то время, как комната и гостиная -- на север! Выезд у них на юг, получается. Я его с трудом уговорила в гостиной, кроме северных окон, сделать еще западную выходную группу на террасу. Посилання на коментар Поділитися на інших сайтах More sharing options...
dramaturg Опубліковано: 18 лютого 2011 Поділитись Опубліковано: 18 лютого 2011 dramaturg Вы знаете, у меня в старом доме был гараж-его пользовали как сарай, а авто я всегда под домом бросала в доме мужа гараж на 2 авто, но при этом обе машины у нас стояли под домом, облом вылазить, открывать ворота(там обычные распашные), паковать машины в гараж, а потом утром с гаража всеравно выкатывать, чтобы прогрелись...в гараж машины загоняли только, если после То на утро надо масла уровень замерять или зимой после химчистки, чтобы высох салон:D а так гараж-склад резины. Мне наоборот нравится утром снег с машины отгребать-типа при деле, пока она греется:D в новом доме опять по глупости сделала гараж, ухайдокав массу денег на фундамент, стены, крышу, утепление крыши, отопление, ворота автоматические...а авто всеравно ставлю возле дома вот и думаю "а нафига мне тот гараж? лучше бы сделала лишнюю комнату в доме", что собственно и собираюсь реализовать со временем, когда настанет срок фасад переделывать-сниму ворота, сделаю больше окна и заложу въезд в гараж ГБ, а отопление у меня итак там есть;) ...ну а ТО авто своими руками я переросла еще лет в 25...теперь ловлю кайф от того, что приезжаю, отдаю ключи и иду пить кофе пока кто-то крутит гайки Вы просто не с Опель-клуба :D ЗЫ - гараж мне нужен исключительно для того (1) чтоб дизель зимой не замерз (люблю я дизель), (2) поколупаться в своем авто (вы уже переросли, а я еще нет 8-) - да и сколько раз убеждался, что даже у тех же официалов мастера не всегда знают ваше авто лучше вас), (3) подсобирать хламья, тьху, складировать нужные весчи (масла, резину, запасные части), (4) отогреть-посушить машину ... в общем как-то не мыслю я себя без гаража Посилання на коментар Поділитися на інших сайтах More sharing options...
dramaturg Опубліковано: 18 лютого 2011 Поділитись Опубліковано: 18 лютого 2011 Вот посмотрите на план Драматурга и скажите Ваше мнение: у него внизу справа либо гараж, либо комната, выходящая на юг!!!!! Делать гараж на юг -- это расточительство, в то время, как комната и гостиная -- на север! Выезд у них на юг, получается. Я его с трудом уговорила в гостиной, кроме северных окон, сделать еще западную выходную группу на террасу. Ну фасад на юг, следовательно гараж по-другому никак. Разве что сделать его на одно авто и еще впихнуть комнату на юг. Посмотрите план вверху. Посилання на коментар Поділитися на інших сайтах More sharing options...
D@redevil Опубліковано: 18 лютого 2011 Поділитись Опубліковано: 18 лютого 2011 Как для меня, в том плане катастрофически не хватает су на 1м этаже...или я не вижу где он? комната под лестницей-это котельная? БР, конечно, Вы правы, что задействовать такое большое помещение под гараж с южной сороны-расточительство....эх, если бы я был такой умный вчера, как моя жена сегодня(с) Korni возможно, Вы правы, но пока у меня нет откатных автоматических ворот, то авто я бросаю под домом в лесу-леньки мне распашные открывать, хоть за ними потом и автоматические гаражные имхо навес для авто, вписаный в ландшафт,-ничем не хуже...хотя, может быть я и поменяю свое мнение,когда все доделаю и перееду жить...а пока я оч жалею, что вместо гостевой спальни(или спальни для мамы) я сделала гараж:D ПС dramaturg а зачем Вам такой большой дом-300 квадратов? мы жили вдвоем в 150 и было много-3й этаж вобще не пользовали:D а вот убирать все это-ну его к монахам:D...да и внутрянка потянет таааких денюжков 1 Посилання на коментар Поділитися на інших сайтах More sharing options...
D@redevil Опубліковано: 18 лютого 2011 Поділитись Опубліковано: 18 лютого 2011 Вы просто не с Опель-клуба :D ЗЫ - гараж мне нужен исключительно для того (1) чтоб дизель зимой не замерз (люблю я дизель), (2) поколупаться в своем авто (вы уже переросли, а я еще нет 8-) - да и сколько раз убеждался, что даже у тех же официалов мастера не всегда знают ваше авто лучше вас), (3) подсобирать хламья, тьху, складировать нужные весчи (масла, резину, запасные части), (4) отогреть-посушить машину ... в общем как-то не мыслю я себя без гаража Не, я с хонда и субару клуба:D и так всю жисть-никак не могу свою жЭ на что-то другое уговорить, а то, на что она согласная мне не по карману...пока что ...откапиталив и подняв с колен 2 авто как-то быстро перерастаешь и балдеешь от того, что авто новое и ТО-только плановое ...у нас в киеве есть 3 гаража0и весь хлам там складируем...хотя с моей манией "выбросить усьо" хлама почти не осталось-только резина летняя и инструмент Посилання на коментар Поділитися на інших сайтах More sharing options...
dramaturg Опубліковано: 18 лютого 2011 Поділитись Опубліковано: 18 лютого 2011 Как для меня, в том плане катастрофически не хватает су на 1м этаже...или я не вижу где он? комната под лестницей-это котельная? БР, конечно, Вы правы, что задействовать такое большое помещение под гараж с южной сороны-расточительство....эх, если бы я был такой умный вчера, как моя жена сегодня(с) Korni возможно, Вы правы, но пока у меня нет откатных автоматических ворот, то авто я бросаю под домом в лесу-леньки мне распашные открывать, хоть за ними потом и автоматические гаражные имхо навес для авто, вписаный в ландшафт,-ничем не хуже...хотя, может быть я и поменяю свое мнение,когда все доделаю и перееду жить...а пока я оч жалею, что вместо гостевой спальни(или спальни для мамы) я сделала гараж:D ПС dramaturg а зачем Вам такой большой дом-300 квадратов? мы жили вдвоем в 150 и было много-3й этаж вобще не пользовали:D а вот убирать все это-ну его к монахам:D...да и внутрянка потянет таааких денюжков Санузел это и есть комната под лестницей, забыл бросить дверь. Там подвал под кухней еще есть - в нем котельная, насосная, электростанция и т.д. Я за большим домом не гнался. Просто были определенные мечты - просторная гостинная минимум 5х5, просторная кухня, второй свет (он, кстате, над гостинной). Вот этот проект вместе с подвалом и терассой получится дето 280 м. Даж не знаю почему, может из-за подвала. Не знаю, куда уже уменьшать. Итак уменьшил с 350 до 280 :D Посилання на коментар Поділитися на інших сайтах More sharing options...
dramaturg Опубліковано: 18 лютого 2011 Поділитись Опубліковано: 18 лютого 2011 Не, я с хонда и субару клуба:D и так всю жисть-никак не могу свою жЭ на что-то другое уговорить, а то, на что она согласная мне не по карману...пока что ...откапиталив и подняв с колен 2 авто как-то быстро перерастаешь и балдеешь от того, что авто новое и ТО-только плановое ...у нас в киеве есть 3 гаража0и весь хлам там складируем...хотя с моей манией "выбросить усьо" хлама почти не осталось-только резина летняя и инструмент Читаю ваши слова, смотрю на пол в профиле - и не что-то не сходится Посилання на коментар Поділитися на інших сайтах More sharing options...
D@redevil Опубліковано: 18 лютого 2011 Поділитись Опубліковано: 18 лютого 2011 Санузел это и есть комната под лестницей, забыл бросить дверь. Там подвал под кухней еще есть - в нем котельная, насосная, электростанция и т.д. Я за большим домом не гнался. Просто были определенные мечты - просторная гостинная минимум 5х5, просторная кухня, второй свет (он, кстате, над гостинной). Вот этот проект вместе с подвалом и терассой получится дето 280 м. Даж не знаю почему, может из-за подвала. Не знаю, куда уже уменьшать. Итак уменьшил с 350 до 280 :D ну если средства позволяют и построить, и потом оплатить содержание, то не вопрос. вот у меня друзья тоже 300 квадратов построили...коробку...денюжкав хватило только на частичную отделку первого этажа, воторой закрыли и так и живут в недострое+кредиты. Как по мне, то лучше дом в 2 раза меньше. хотелка скромнее, зато сразу "под ключ". Но это мое имхо с оглядкой на собственный карман и силы..тк поверьте, что состояние постоянной стройки утомляет даже самых больших энтузиастов этого дела;) 3 Посилання на коментар Поділитися на інших сайтах More sharing options...
D@redevil Опубліковано: 18 лютого 2011 Поділитись Опубліковано: 18 лютого 2011 Читаю ваши слова, смотрю на пол в профиле - и не что-то не сходится я полна сУрпризов мой муж, тогда еще будущий, тоже не верил глазам своим, читая форум и мои приключения с ремонтом авто:D думал я бородатый дядька с женским ником Посилання на коментар Поділитися на інших сайтах More sharing options...
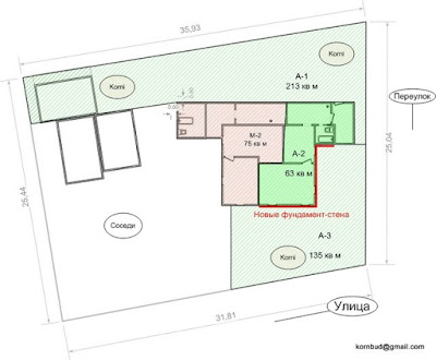
Белая Рысь Опубліковано: 18 лютого 2011 Поділитись Опубліковано: 18 лютого 2011 Корни, у Вас такой сложный участок, я долго разбиралась, но поняла. Вам повезло, что гараж заслоняет только санузлы (там, кажется, нет окон?), а окна гостиной только частично выходят на гараж. А почему гараж такой большой и неправильной формы? Из какого материала он сделан? А почему Вы не сделали гараж за домом с выездом в переулок? Нам если делать гараж возле "плохого" соседа, то закроется весь вид на наш новый дом. На фото место, где может быть гараж: слева направо: старый дом, новый дом, крыша соседа по меже: Посилання на коментар Поділитися на інших сайтах More sharing options...
Белая Рысь Опубліковано: 18 лютого 2011 Поділитись Опубліковано: 18 лютого 2011 Гараж с автоматическими воротами - ВЕЩЬ! Лично для меня - очень удобная..... А если автоматика испортится Посилання на коментар Поділитися на інших сайтах More sharing options...
Белая Рысь Опубліковано: 18 лютого 2011 Поділитись Опубліковано: 18 лютого 2011 У нас есть черновой вариант проекта, переделанный с Валиного дома. Философия от моего проекта - гостинная со вторым светом таки на северовосток, а все остальное на юг и запад. Здесь одна машина и три спальни сверху, за счет этого дом получается до 300 метров. И кабинет-спальня на певром этаже здесь на юг. Вот: Очень интересный проект! Оригинальный. А как выглядят фасады? Но я не поняла, где север-юг? Нет котельной, тамбура. Спальня почему-то маленькая и лестница опять не проработана. Валин проект мне кажется более концептуальным, гармоничным, хотя в нем многого нет. И он меньше Вашего, так? Там все подчинено принципу открытого пространства. Интересно бы посмотреть вживую, что у них получилось. Пока еще в раздумьях с супругой - оставить наш, или взять этот. Не спешите, нигде не горит. Думайте и посмотрите еще проекты. Посилання на коментар Поділитися на інших сайтах More sharing options...
Рекомендовані повідомлення
Створіть акаунт або увійдіть у нього для коментування
Ви маєте бути користувачем, щоб залишити коментар
Створити акаунт
Зареєструйтеся для отримання акаунта. Це просто!
Зареєструвати акаунтУвійти
Вже зареєстровані? Увійдіть тут.
Увійти зараз