ARCH INNOVATION Опубліковано: 18 вересня 2015 Поділитись Опубліковано: 18 вересня 2015 Как Вам такой домик? Конструктивная критика а так же флуд приветствуется. Строительство начинается со дня на день. Основные этапы будем выкладывать. Посилання на коментар Поділитися на інших сайтах More sharing options...
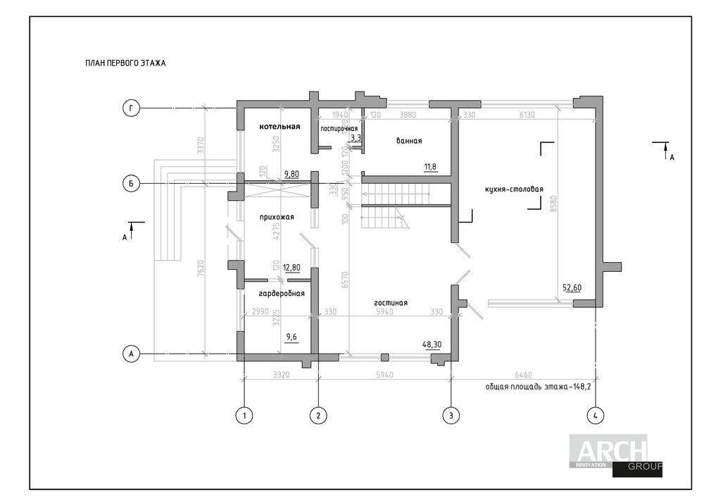
vadimv Опубліковано: 18 вересня 2015 Поділитись Опубліковано: 18 вересня 2015 а так же флуд приветствуется"Также", а не "так же" и "гостиная", а не "гостинная". ЗЫ: какое назначение комнаты возле входа? Посилання на коментар Поділитися на інших сайтах More sharing options...
ARCH INNOVATION Опубліковано: 18 вересня 2015 Автор Поділитись Опубліковано: 18 вересня 2015 ЗЫ: какое назначение комнаты возле входа? Котельная. Посилання на коментар Поділитися на інших сайтах More sharing options...
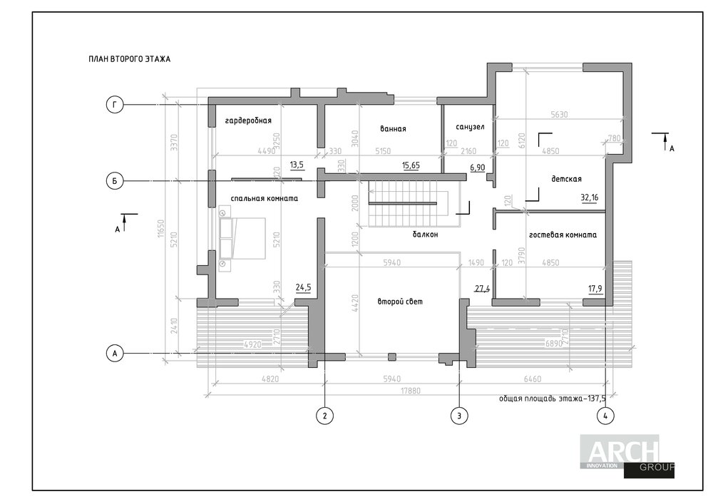
JFK Опубліковано: 18 вересня 2015 Поділитись Опубліковано: 18 вересня 2015 Балконы вещь бестолковая, ИМХО, увеличьте комнаты за их счет. Посилання на коментар Поділитися на інших сайтах More sharing options...
vadimv Опубліковано: 18 вересня 2015 Поділитись Опубліковано: 18 вересня 2015 Котельная.Отдельно от ванной? А над котельной спальня? Посилання на коментар Поділитися на інших сайтах More sharing options...
ARCH INNOVATION Опубліковано: 18 вересня 2015 Автор Поділитись Опубліковано: 18 вересня 2015 Балконы вещь бестолковая, ИМХО, увеличьте комнаты за их счет. Возможно, но пострадает архитектура. Добавлено через 1 минуту Отдельно от ванной? А над котельной спальня? Да, отдельно от ванной и от ванной на втором этаже. 1 Посилання на коментар Поділитися на інших сайтах More sharing options...
JFK Опубліковано: 18 вересня 2015 Поділитись Опубліковано: 18 вересня 2015 Возможно, но пострадает архитектура. Можно сделать с карнизом, углубленные как с другой стороны дома и ничего не пострадает. Посилання на коментар Поділитися на інших сайтах More sharing options...
ARCH INNOVATION Опубліковано: 18 вересня 2015 Автор Поділитись Опубліковано: 18 вересня 2015 Можно сделать с карнизом, углубленные как с другой стороны дома и ничего не пострадает. Там и так не маленькая квадратура. Посилання на коментар Поділитися на інших сайтах More sharing options...
JohnnyD Опубліковано: 18 вересня 2015 Поділитись Опубліковано: 18 вересня 2015 Та все зашибись. Вопрос только наличия средств и дальнейшей эксплуатации. А есть визуализации интерьера? 1 Посилання на коментар Поділитися на інших сайтах More sharing options...
ARCH INNOVATION Опубліковано: 18 вересня 2015 Автор Поділитись Опубліковано: 18 вересня 2015 Та все зашибись. Вопрос только наличия средств и дальнейшей эксплуатации. А есть визуализации интерьера? Нету, пока что до интерьера не добрались. Посилання на коментар Поділитися на інших сайтах More sharing options...
Музей Опубліковано: 21 вересня 2015 Поділитись Опубліковано: 21 вересня 2015 Как Вам такой домик? Конструктивная критика а так же флуд приветствуется. Строительство начинается со дня на день. Основные этапы будем выкладывать. Красиво і стильно. Рада за господарів. Чекаємо подробиць і фотки з будівництва. 1 Посилання на коментар Поділитися на інших сайтах More sharing options...
ARCH INNOVATION Опубліковано: 21 вересня 2015 Автор Поділитись Опубліковано: 21 вересня 2015 Красиво і стильно. Рада за господарів. Чекаємо подробиць і фотки з будівництва. Сегодня начали разбивку под ленту. Зальём плиту, сделаю фото отчет. Посилання на коментар Поділитися на інших сайтах More sharing options...
alexpr Опубліковано: 22 вересня 2015 Поділитись Опубліковано: 22 вересня 2015 Как Вам такой домик? Красивый, что тут скажешь... Газоблок? Посилання на коментар Поділитися на інших сайтах More sharing options...
ARCH INNOVATION Опубліковано: 22 вересня 2015 Автор Поділитись Опубліковано: 22 вересня 2015 Красивый, что тут скажешь... Газоблок? Первый этаж газоблок (пенобетон), второй этаж или газоблок или ЛСТК (пока, что газоблок, но я уже выслушал кучу брани от конструктора, поэтому возможно ЛСТК). 1 Посилання на коментар Поділитися на інших сайтах More sharing options...
Музей Опубліковано: 22 вересня 2015 Поділитись Опубліковано: 22 вересня 2015 Сегодня начали разбивку под ленту. Зальём плиту, сделаю фото отчет. Можете почати відразу з фасадів та інтерьєрів. Це цікавіше за бетон.:D 1 Посилання на коментар Поділитися на інших сайтах More sharing options...
JFK Опубліковано: 22 вересня 2015 Поділитись Опубліковано: 22 вересня 2015 Зачем строить из газоблока дом на миллион? Посилання на коментар Поділитися на інших сайтах More sharing options...
Музей Опубліковано: 22 вересня 2015 Поділитись Опубліковано: 22 вересня 2015 Зачем строить из газоблока дом на миллион? Щоб продати. Газоблок не такий поганий матеріал. 1 Посилання на коментар Поділитися на інших сайтах More sharing options...
ARCH INNOVATION Опубліковано: 22 вересня 2015 Автор Поділитись Опубліковано: 22 вересня 2015 Можете почати відразу з фасадів та інтерьєрів. Це цікавіше за бетон.:D Это точно кому эти траншеи сдались.:D Добавлено через 58 секунд Зачем строить из газоблока дом на миллион? А какой Ваш вариант правильного ответа? Посилання на коментар Поділитися на інших сайтах More sharing options...
JFK Опубліковано: 22 вересня 2015 Поділитись Опубліковано: 22 вересня 2015 А какой Ваш вариант правильного ответа? Про кирпич не слышали? Добавлено через 35 секунд Газоблок не такий поганий матеріал. Конструктор плохой))) 1 Посилання на коментар Поділитися на інших сайтах More sharing options...
fasad2 Опубліковано: 22 вересня 2015 Поділитись Опубліковано: 22 вересня 2015 второй свет -дурное дело, лучше комнату, площадь окон большая, как экономить газ?..крыша для виду плоская, но при хорошей зиме снежной -это какой же вес добавится к дому, это всё выдержит?? ну и почему в ванную через рагдероб? Посилання на коментар Поділитися на інших сайтах More sharing options...
ARCH INNOVATION Опубліковано: 22 вересня 2015 Автор Поділитись Опубліковано: 22 вересня 2015 второй свет -дурное дело, лучше комнату, площадь окон большая, как экономить газ?..крыша для виду плоская, но при хорошей зиме снежной -это какой же вес добавится к дому, это всё выдержит?? ну и почему в ванную через рагдероб? Вы рассуждаете чересчур рационально. По поводу входа в ванную через гардероб. Это пожелание заказчика, причём не самое плохое решение, как по мне. Посилання на коментар Поділитися на інших сайтах More sharing options...
Музей Опубліковано: 22 вересня 2015 Поділитись Опубліковано: 22 вересня 2015 ну и почему в ванную через рагдероб? Це дуже зручно. Особливо з ванної через гардероб. Добавлено через 1 минуту Про кирпич не слышали? Якби я не будувала будинок у сейсмозоні, то обрала би саме газобетон від хорошого виробника. 1 Посилання на коментар Поділитися на інших сайтах More sharing options...
ARCH INNOVATION Опубліковано: 22 вересня 2015 Автор Поділитись Опубліковано: 22 вересня 2015 крыша для виду плоская, но при хорошей зиме снежной -это какой же вес добавится к дому, это всё выдержит?? Именно для этих целей у нас в штате полтора конструктора. Добавлено через 3 минуты Про кирпич не слышали? Да, конечно. А, что на кирпиче сошелся клином белый свет? Посилання на коментар Поділитися на інших сайтах More sharing options...
JFK Опубліковано: 22 вересня 2015 Поділитись Опубліковано: 22 вересня 2015 Да, конечно. А, что на кирпиче сошелся клином белый свет? Нет, но Вы себе усложняете задание на ровном месте, в доме, в котором стоимость кирпича даже не будет влиять на цену. Чем газобетон лучше? Посилання на коментар Поділитися на інших сайтах More sharing options...
Музей Опубліковано: 22 вересня 2015 Поділитись Опубліковано: 22 вересня 2015 Чем газобетон лучше? Газобетон - рівний та цілий. А цегла - крива й бита. Посилання на коментар Поділитися на інших сайтах More sharing options...
Рекомендовані повідомлення
Створіть акаунт або увійдіть у нього для коментування
Ви маєте бути користувачем, щоб залишити коментар
Створити акаунт
Зареєструйтеся для отримання акаунта. Це просто!
Зареєструвати акаунтУвійти
Вже зареєстровані? Увійдіть тут.
Увійти зараз