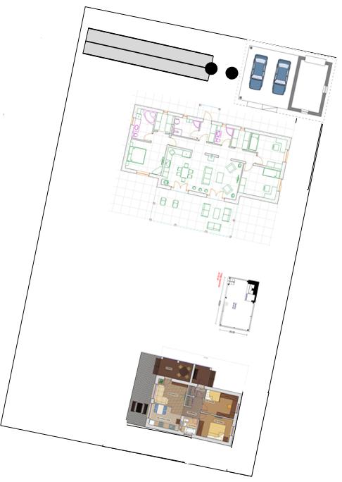
eam Опубліковано: 21 листопада 2015 Поділитись Опубліковано: 21 листопада 2015 День добрый. Решил и я выложить планировку дома, которая у меня получилась после небольших правок существующего проекта. Интересна критика как с точки зрения планировки, так и с точки зрения удешевления строительства. Итак, за основу взял вот этот проект - www.domproekty.ru/ru/proekty-domov/?id=210 и переделал его вот в такой: Основные моменты(хотелки) на которых основывался: - упростить верхнюю стенку (убрать выступы) дабы упростить крышу. Крышу планирую двускатную. Точнее 2 двускатные в форме буквы "Т" - как в оригинале - сгруппировать все мокрые зоны покомпактнее и поближе к котельной - увеличить террассу и сделать ее крытой - расположить служебные помещения с северной стороны На участок дом ложится примерно так: Север сверху. Фасад сверху и слева (участок угловой). Внизу отметил возможное расположение гостевого дома, который неизвестно будет или нет Интересно ваше мнение и аргументированная критика. Спс. ЗЫ. За, возможно, кривоватую реализацию планировки не ругайте - программу 3-й день только изучаю 1 Посилання на коментар Поділитися на інших сайтах More sharing options...
vadimv Опубліковано: 21 листопада 2015 Поділитись Опубліковано: 21 листопада 2015 Мне лично нравится, придраться не к чему. А не близко окна детских спален к забору? 1 Посилання на коментар Поділитися на інших сайтах More sharing options...
eam Опубліковано: 21 листопада 2015 Автор Поділитись Опубліковано: 21 листопада 2015 Мне лично нравится, придраться не к чему. А не близко окна детских спален к забору? Спс. На плане отступил положеные 3 метра от границы. Надо подумать мало ли это. В одной спальне окно можно перенести на другую стену (будет симметрично относительно взрослой спальни и южный фасад симпатичнее станет), но тогда восточный фасад будет не такой красивый. Хотя его там никто и не увидит особо. Посилання на коментар Поділитися на інших сайтах More sharing options...
Andrei constructor Опубліковано: 21 листопада 2015 Поділитись Опубліковано: 21 листопада 2015 Интересна критика Можно убрать камин с прохода и установить его в верхний правый угол (там кресло и растение сейчас)? Имхо если убрать центральный столб и сделать там широкий проход то избавимся от длинного коридора и пространство прихожей объединится с пространство большой и хорошо освещенной гостиной. Конструктивно это можно сделать без значительных проблем. Туалет возле детских можно поменять передвинуть вправо, а гардеробную ближе ко входу. При этом туалет спрячем относительно гостиной и к спальням ближе будет. У вас симметрия главного и дворового фасадов. Может для ее соблюдения на дворовом фасаде поставить окно в детскую (спальню)? Как вам такие решения? Котел в котельной какой будет? 1 Посилання на коментар Поділитися на інших сайтах More sharing options...
vadimv Опубліковано: 21 листопада 2015 Поділитись Опубліковано: 21 листопада 2015 На плане отступил положеные 3 метра от границы. Надо подумать мало ли это.У нас от окон комнат до беседки перед ними около 6 м - иногда чисто психологически хочется побольше простора. А с практической точки зрения - чем дальше от забора, тем больше утреннего солнца будет попадать в окна. 1 Посилання на коментар Поділитися на інших сайтах More sharing options...
eam Опубліковано: 21 листопада 2015 Автор Поділитись Опубліковано: 21 листопада 2015 Можно убрать камин с прохода и установить его в верхний правый угол (там кресло и растение сейчас)? Имхо если убрать центральный столб и сделать там широкий проход то избавимся от длинного коридора и пространство прихожей объединится с пространство большой и хорошо освещенной гостиной. Конструктивно это можно сделать без значительных проблем. Меня при этом смущает отсутствие несущей стены - не совсем понятно как в таком случае будет выглядеть стропилка, т.к. именно в том месте соединяются 2 двускатные крыши. Ну и еще момент - думал если ставить топку, то чтобы можно было ее использовать для отопления иногда и если перенести в угол то воздушный канал во взрослую спальню будет длиннее. Не знаю критично ли это. Туалет возле детских можно поменять передвинуть вправо, а гардеробную ближе ко входу. При этом туалет спрячем относительно гостиной и к спальням ближе будет. Да, я его там изначально и расположил Правда потом решил поменять местами с гардеробной чтобы уменьшить длину коммуникаций (вода, канализация, вытяжка). У вас симметрия главного и дворового фасадов. Может для ее соблюдения на дворовом фасаде поставить окно в детскую (спальню)? Согласен. Перенес окно одной спальни на южный фасад для симметрии с окном взрослой спальни. Как вам такие решения? Спасибо за комментарии. Я вам в личку с неделю назад писал - возможно скоро продолжим ;) Котел в котельной какой будет? Без понятия. По цене и возможности подключения газа я не узнавал еще. Пока особо не думал над этим. Думаю что будет газовый или электрический котел + твердотопливный резерв чтобы в нормы укладываться и экономить на отоплении. У нас от окон комнат до беседки перед ними около 6 м - иногда чисто психологически хочется побольше простора. А с практической точки зрения - чем дальше от забора, тем больше утреннего солнца будет попадать в окна. Думаю вы правы. На данном этапе решил перенести окно в одной спальне на другую стену. А со вторым подумаю еще отодвинуть дом ради него или нет. 1 Посилання на коментар Поділитися на інших сайтах More sharing options...
Andrei constructor Опубліковано: 21 листопада 2015 Поділитись Опубліковано: 21 листопада 2015 Меня при этом смущает отсутствие несущей стены - не совсем понятно как в таком случае будет выглядеть стропилка, т.к. именно в том месте соединяются 2 двускатные крыши. Там будет в уровне чердачного перекрытия несущая балка, которая заменит несущую стену. Ну и еще момент - думал если ставить топку, то чтобы можно было ее использовать для отопления иногда и если перенести в угол то воздушный канал во взрослую спальню будет длиннее. Не знаю критично ли это. Есть такое решение, когда от камина с закрытой топкой тянут воздуховоды для отопления разных помещений, но оно имхо не очень оправдывает себя, так как для полноценного отопления нужно тянуть воздуховоды во все помещения (не только в спальни), также такая система не беззвучно работает (нужно принудительно толкать воздух в разные помещения), что имхо будет мешать комфорту в доме. Также все это далеко не бесплатно))) Имхо лучше с этим не затеваться, а рассмотреть камин с закрытой топкой в качестве элемента дополнительного нагрева большого открытого помещения - кухня-студия, прихожая и коридор. По желанию вы его топите (например, в межсезонье или зимой) или когда собираются у вас гости. В общем балансе отопления этот прибор будет уменьшать, например, расход газа. И еще, по опыту проживающих в домах - топят они его не часто, хотя божились, что будет не так))) Посилання на коментар Поділитися на інших сайтах More sharing options...
AНДРЮША Опубліковано: 21 листопада 2015 Поділитись Опубліковано: 21 листопада 2015 Летом на террасе будет пекло, да и в помещениях тоже, особенно на кухне. 1 Посилання на коментар Поділитися на інших сайтах More sharing options...
Andrei constructor Опубліковано: 21 листопада 2015 Поділитись Опубліковано: 21 листопада 2015 За, возможно, кривоватую реализацию планировки не ругайте - программу 3-й день только изучаю Вполне прилично. Хорошо, что сразу ставите мебель. 1 Посилання на коментар Поділитися на інших сайтах More sharing options...
vadimv Опубліковано: 21 листопада 2015 Поділитись Опубліковано: 21 листопада 2015 Летом на террасе будет пекло, да и в помещениях тоже, особенно на кухне.Надо рассчитать свес крыши таким образом, чтобы он летом давал тень на окно. 2 Посилання на коментар Поділитися на інших сайтах More sharing options...
Andrei constructor Опубліковано: 21 листопада 2015 Поділитись Опубліковано: 21 листопада 2015 Летом на террасе будет пекло, да и в помещениях тоже, особенно на кухне. Вы правы. На южной террасе нужен навес. Выше навеса нужно будет думать Может быть ставить устройства уменьшающие инсоляцию в летний период. Либо уменьшать проемы. Добавлено через 1 минуту Надо рассчитать свес крыши таким образом, чтобы он летом давал тень на окно. Все так. Нужно решать проблему. 1 Посилання на коментар Поділитися на інших сайтах More sharing options...
eam Опубліковано: 21 листопада 2015 Автор Поділитись Опубліковано: 21 листопада 2015 И еще, по опыту проживающих в домах - топят они его не часто, хотя божились, что будет не так))) Об этом тоже читал на этом форуме Поэтому вполне возможно его и не будет. Тут еще в раздумьях. Вполне прилично. Хорошо, что сразу ставите мебель. Мерси за комплиман (с) Без мебели мне лично не понятны пропорции. Летом на террасе будет пекло, да и в помещениях тоже, особенно на кухне. Согласен есть такая проблема. Но ведь можно посмотреть и с другой стороны - в оставшиеся 3 сезона это позволит использовать солнце в качестве пассивного обогрева . Ну и именно такое расположение позволяет не видеть соседей сидя на террасе и/или беседке (ради чего, собственно, и покупался именно этот участок). Так что придется как-то думать и просчитывать крышу и ее свесы, как и сказали ниже. Надо рассчитать свес крыши таким образом, чтобы он летом давал тень на окно. На южной террасе нужен навес. Выше навеса нужно будет думать Может быть ставить устройства уменьшающие инсоляцию в летний период. Плюс может какие-то вьющиеся растения притенят немного ее. Кстати, встречал на этом форуме ссылку на карту (типа гугла) в которой можно посмотреть расположение солнца в любое время в конкретном месте. Может кто напомнит? Посилання на коментар Поділитися на інших сайтах More sharing options...
Andrei constructor Опубліковано: 21 листопада 2015 Поділитись Опубліковано: 21 листопада 2015 Кстати, встречал на этом форуме ссылку на карту (типа гугла) в которой можно посмотреть расположение солнца в любое время в конкретном месте. Может кто напомнит? www.forumstroy.com.ua/showthread.php/3889-Положение-и-движение-солнца-в-разные-периоды-года Пользуйтесь))) Добавлено через 1 минуту Но ведь можно посмотреть и с другой стороны - в оставшиеся 3 сезона это позволит использовать солнце в качестве пассивного обогрева . Типа стены Тромба (только в качестве стены должен быть пол с большой теплоемкостью). 1 Посилання на коментар Поділитися на інших сайтах More sharing options...
vadimv Опубліковано: 21 листопада 2015 Поділитись Опубліковано: 21 листопада 2015 может какие-то вьющиеся растения притенят немного ее.Или густые деревья (орех, шелковица или что вам больше нравится) - летом будут давать тень на окна, а зимой не будут мешать солнцу. Посилання на коментар Поділитися на інших сайтах More sharing options...
eam Опубліковано: 22 листопада 2015 Автор Поділитись Опубліковано: 22 листопада 2015 (змінено) Продолжаю рисовать и осваивать программу Единственное что на кровлю думаю имитацию фальца ретролайн (видел тут в одной теме его использовали), а такой текстуры нету у меня . Да и с цветом не определился еще, но вроде серый неплохо смотрится Поэтому примерный вид с серым Апдейт. Меня только что посетила очередная идея - а может отказаться от двускатной крыши над террассой и сделать перголу вместо нее? Благодаря этому: - намного упростится и удешевится крыша - свес крыши над окнами спален будет довольно большой (больше метра) что позволит от солнца их закрыть летом - при желании можно вообще отказаться от несущих внутренних стен и использовать фермы. Пока вижу только один минус в этом - не защищает от осадков. А хотелось бы иметь террассу защищенную от дождя. Змінено 22 листопада 2015 користувачем eam 3 Посилання на коментар Поділитися на інших сайтах More sharing options...
Andrei constructor Опубліковано: 22 листопада 2015 Поділитись Опубліковано: 22 листопада 2015 Пока вижу только один минус в этом - не защищает от осадков. А хотелось бы иметь террассу защищенную от дождя. Защитите. Сделайте плоское покрытие. Какая ширина террасы? Посилання на коментар Поділитися на інших сайтах More sharing options...
eam Опубліковано: 22 листопада 2015 Автор Поділитись Опубліковано: 22 листопада 2015 Защитите. Сделайте плоское покрытие. Какая ширина террасы? Клетка у меня на схеме 1м х 1м. Т.е. терраса 4х10м Посилання на коментар Поділитися на інших сайтах More sharing options...
Andrei constructor Опубліковано: 22 листопада 2015 Поділитись Опубліковано: 22 листопада 2015 Клетка у меня на схеме 1м х 1м. Т.е. терраса 4х10м Вполне можно уменьшить ширину до 3,5 м. Посилання на коментар Поділитися на інших сайтах More sharing options...
_zedd_ Опубліковано: 22 листопада 2015 Поділитись Опубліковано: 22 листопада 2015 Приятный дом! Чем рисуете? Посилання на коментар Поділитися на інших сайтах More sharing options...
Татьяна5 Опубліковано: 23 листопада 2015 Поділитись Опубліковано: 23 листопада 2015 О, домик на 100% в моём вкусе . Хорошая, понятная планировка. Какие размеры дома? Из какого материала? Я бы фермы ставила и не парилась внутренними стенами несущими. И на террасе тоже, там пролёт не простой. На перголе можно сделать крытой какую- то одну зону. Посилання на коментар Поділитися на інших сайтах More sharing options...
Gonchik Опубліковано: 23 листопада 2015 Поділитись Опубліковано: 23 листопада 2015 (змінено) Там будет в уровне чердачного перекрытия несущая балка, которая заменит несущую стену. Есть такое решение, когда от камина с закрытой топкой тянут воздуховоды для отопления разных помещений, но оно имхо не очень оправдывает себя, так как для полноценного отопления нужно тянуть воздуховоды во все помещения (не только в спальни), также такая система не беззвучно работает (нужно принудительно толкать воздух в разные помещения), что имхо будет мешать комфорту в доме. Также все это далеко не бесплатно))) Имхо лучше с этим не затеваться, а рассмотреть камин с закрытой топкой в качестве элемента дополнительного нагрева большого открытого помещения - кухня-студия, прихожая и коридор. По желанию вы его топите (например, в межсезонье или зимой) или когда собираются у вас гости. В общем балансе отопления этот прибор будет уменьшать, например, расход газа. И еще, по опыту проживающих в домах - топят они его не часто, хотя божились, что будет не так))) Для такой квадратуры и конструктива камин с закрытой топкой и разводкой (не принудительной) может быть использован как основной отопитель. При хорошей теплоизоляции стен, конечно же. В межсезонье так точно. Даже при том, что у меня разводки нет, топлю каждый день и газом в этом сезоне еще не пользовался (только для гвс и готовки). Если не ставить вентилятор, то шума не будет. Горизонтальные участки не более 5 метров длиной. Тем более чердак, насколько я понял, не жилой. И абсолютно необязательно вести во все помещения. Входная дверь на голой северной стене просит, чтобы ее защитили от ветра) Это один из моментов, которые хочу переделать в следующем доме. Террасу однозначно делать крытую. Змінено 23 листопада 2015 користувачем Gonchik 1 Посилання на коментар Поділитися на інших сайтах More sharing options...
Andrei constructor Опубліковано: 23 листопада 2015 Поділитись Опубліковано: 23 листопада 2015 Можно добавить мансардное окно-выход на кровлю (например, есть такие у фирмы Велюкс) Посилання на коментар Поділитися на інших сайтах More sharing options...
Gonchik Опубліковано: 23 листопада 2015 Поділитись Опубліковано: 23 листопада 2015 Можно добавить мансардное окно-выход на кровлю (например, есть такие у фирмы Велюкс) Там можно даже больше извратиться. Если накроют террасу непрозрачным материалом и отойдут от начального конструктива кровли, то в гостинной-кухне будет темновато. Можно потолок этого помещения снабдить парой мансардных окон с ДУ. Как тут, например. Хотя может Вы это и имели ввиду. 2 Посилання на коментар Поділитися на інших сайтах More sharing options...
Татьяна5 Опубліковано: 23 листопада 2015 Поділитись Опубліковано: 23 листопада 2015 Можно потолок этого помещения снабдить парой мансардных окон с ДУ. тогда нужно будет делать кровлю мансардного типа, что этому дому не нужно (ИМХО) что бы не было темно - надо террасу сделать так, как у ТС нарисовано - конек в конек с основным домом 1 Посилання на коментар Поділитися на інших сайтах More sharing options...
Gonchik Опубліковано: 23 листопада 2015 Поділитись Опубліковано: 23 листопада 2015 тогда нужно будет делать кровлю мансардного типа, что этому дому не нужно (ИМХО) что бы не было темно - надо террасу сделать так, как у ТС нарисовано - конек в конек с основным домом Только торец чем-то прозрачным зашить. Посилання на коментар Поділитися на інших сайтах More sharing options...
Рекомендовані повідомлення
Створіть акаунт або увійдіть у нього для коментування
Ви маєте бути користувачем, щоб залишити коментар
Створити акаунт
Зареєструйтеся для отримання акаунта. Це просто!
Зареєструвати акаунтУвійти
Вже зареєстровані? Увійдіть тут.
Увійти зараз