Vitaliy_Goy Опубліковано: 5 січня 2016 Поділитись Опубліковано: 5 січня 2016 Залили фундамент по проекту: залегание подушки на отметке -1200мм, ширина 1000мм высота 300мм, лента ширина 400мм высота над землей 500мм. Бетон В25, разбавляли водой (так как миксер приехал раньше положенного времени и ожидал около часа). Подушка и лента заливались каждый в один заход. Внутри фундамента выкопан грунт до подушки и засыпан речным песком около 70-80 см. Длина дома 8700мм, ширина 18600мм После заливки, в течении трое суток, образовались маленькие трещины сверху фундамента, которые были замазаны раствором. На следующий день был обильно полит фундамент и засыпан песком. После уехал в отпуск на две недели. Через 3 недели начали снимать опалубку и заметили 3 трещинки толщиной меньше 1мм, были замазаны раствором, с верху и практически до самой подушки (недоставали где то 20 см). Через 4 месяца, после дождей и морозов, имею вот это: Трещина номер 1 около 1,5мм: Трещина номер 2 меньше 1мм: Трещина номер 3 около 1 мм: Посилання на коментар Поділитися на інших сайтах More sharing options...
Татьяна5 Опубліковано: 5 січня 2016 Поділитись Опубліковано: 5 січня 2016 фундамент не нагруженный? коробки дома нет? 1 Посилання на коментар Поділитися на інших сайтах More sharing options...
tansss Опубліковано: 5 січня 2016 Поділитись Опубліковано: 5 січня 2016 Банально сначала фундамент неравномерно просел, а сейчас его подняло замёрзшей водой. Скорее всего а) неверно подготовлено основание, б) не достаточны усилены П-эшками или усами углы, с) усугубило пучением из-за отсутствия засыпки. Главный вопрос - что делать! Возвращайтесь к проектанту за назначением мероприятий по усилению! 1 Посилання на коментар Поділитися на інших сайтах More sharing options...
Propeller Опубліковано: 5 січня 2016 Поділитись Опубліковано: 5 січня 2016 По Вашему рассказу и расположению - это усадочные трещины. Они обычно образуются в бетоне в тех местах, где есть перебор с водой. После заливки щебень и песок начинают скользить по цементной пасте (смазке) вниз. При этом вода и часть цемента с ней (цементное молочно) отжимаются на периферию : вверх и к опалубке. Поэтому верху залитого жб элемента и в месте контакта бетона с опалубкой по мере испарения "лишней" воды могут появляться места напряжений, которые приводят к трещинам. Эти трещины обычно не глубокие. Почему зимой они стали шире? 4 месяца назад был сентябрь. Хорошее время для бетонных работ. Сейчас холодно и бетон стремится скукожиться. Коэффициент теплового линейного расширения/сжатия у бетона из разных источников - разный. В среднем 0,00001. Это значит, что ваш бетон набрал проектную прочность где-то в начале октября. При температуре +15С. Сейчас он остыл, ну пусть, до -10С. Теперь считаем. 0,00001 значит, что 1 мп бетона при изменении температуры на 1С удлиняется/укарачивается на 0,01 мм. Тогда при длине вашей длинной стены 18,6 м и снижении температуры с +15 С до - 10С получаем 0,01 мм х 18,6м х 25 = 4,65 мм. То есть, ваш фундамент (да и любой другой) дает , как бы, температурную усадку. При этом в его теле появляются напряжения, который хотят бетон порвать. Поэтому трещины, который были просто замазаны снаружи и стремились расшириться на суммарную величину почти 5 мм. Получилось меньше так как бетон сопротивляется (как ми должно быть) всяким деформациям. 1. Было бы неплохо оценить насколько эти трещины глубокие. Для этого хорошо бы высверлить в этих местах керны. Или пригласить спеца, который может это сделать специальным "акустическим" прибором. 2. Вы сказали трещин сверху. А они есть на фундаменте с обеих сторон? 2 Посилання на коментар Поділитися на інших сайтах More sharing options...
Vitaliy_Goy Опубліковано: 5 січня 2016 Автор Поділитись Опубліковано: 5 січня 2016 фундамент не нагруженный? коробки дома нет? Пока не нагружен (коробки нет), планируется 1,5 кирпича первый этаж, мансарда из газоблока. Добавлено через 3 минуты Банально сначала фундамент неравномерно просел, а сейчас его подняло замёрзшей водой. Скорее всего а) неверно подготовлено основание, б) не достаточны усилены П-эшками или усами углы, с) усугубило пучением из-за отсутствия засыпки. Главный вопрос - что делать! Возвращайтесь к проектанту за назначением мероприятий по усилению! Основание это родной грунт, подбирали лопатой аккуратно. Тоже думал про пучение из-за недостатка подсыпки. То есть 1,5 мм это критично, усиление обязательно? Добавлено через 1 минуту По Вашему рассказу и расположению - это усадочные трещины. Они обычно образуются в бетоне в тех местах, где есть перебор с водой. После заливки щебень и песок начинают скользить по цементной пасте (смазке) вниз. При этом вода и часть цемента с ней (цементное молочно) отжимаются на периферию : вверх и к опалубке. Поэтому верху залитого жб элемента и в месте контакта бетона с опалубкой по мере испарения "лишней" воды могут появляться места напряжений, которые приводят к трещинам. Эти трещины обычно не глубокие. Почему зимой они стали шире? 4 месяца назад был сентябрь. Хорошее время для бетонных работ. Сейчас холодно и бетон стремится скукожиться. Коэффициент теплового линейного расширения/сжатия у бетона из разных источников - разный. В среднем 0,00001. Это значит, что ваш бетон набрал проектную прочность где-то в начале октября. При температуре +15С. Сейчас он остыл, ну пусть, до -10С. Теперь считаем. 0,00001 значит, что 1 мп бетона при изменении температуры на 1С удлиняется/укарачивается на 0,01 мм. Тогда при длине вашей длинной стены 18,6 м и снижении температуры с +15 С до - 10С получаем 0,01 мм х 18,6м х 25 = 4,65 мм. То есть, ваш фундамент (да и любой другой) дает , как бы, температурную усадку. При этом в его теле появляются напряжения, который хотят бетон порвать. Поэтому трещины, который были просто замазаны снаружи и стремились расшириться на суммарную величину почти 5 мм. Получилось меньше так как бетон сопротивляется (как ми должно быть) всяким деформациям. 1. Было бы неплохо оценить насколько эти трещины глубокие. Для этого хорошо бы высверлить в этих местах керны. Или пригласить спеца, который может это сделать специальным "акустическим" прибором. 2. Вы сказали трещин сверху. А они есть на фундаменте с обеих сторон? Сейчас трещин осталось три и они сквозные. Посилання на коментар Поділитися на інших сайтах More sharing options...
jenkins Опубліковано: 5 січня 2016 Поділитись Опубліковано: 5 січня 2016 А геология была? Мне кажется там поднизом не очень прочное основание. 1 Посилання на коментар Поділитися на інших сайтах More sharing options...
Vitaliy_Goy Опубліковано: 5 січня 2016 Автор Поділитись Опубліковано: 5 січня 2016 А геология была? Мне кажется там поднизом не очень прочное основание. Да. Вот она. По поводу грунтовой воды, на 1 метре это нашли кристаллы воды но не воду. Колодцы в радиусе 50 метров на 12 метров роют. Посилання на коментар Поділитися на інших сайтах More sharing options...
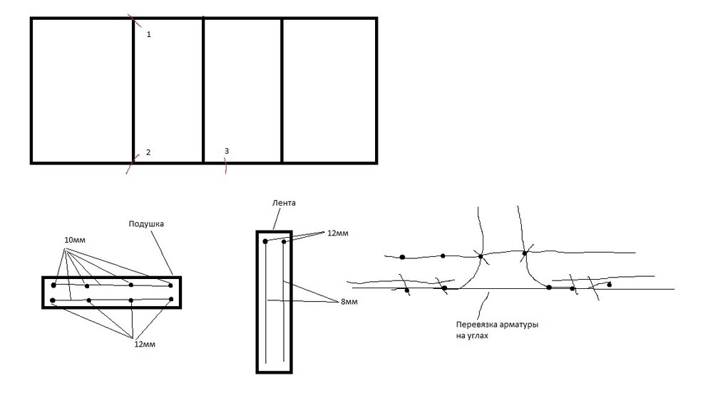
sashkaa Опубліковано: 5 січня 2016 Поділитись Опубліковано: 5 січня 2016 Залили фундамент по проекту: залегание подушки на отметке -1200мм, ширина 1000мм высота 300мм, лента ширина 400мм высота над землей 500мм. Бетон В25, разбавляли водой (так как миксер приехал раньше положенного времени и ожидал около часа). Подушка и лента заливались каждый в один заход. Внутри фундамента выкопан грунт до подушки и засыпан речным песком около 70-80 см. Длина дома 8700мм, ширина 18600мм [ATTACH]482331[/ATTACH] Через 4 месяца, после дождей и морозов, имею вот это: А что с армированием. Если так как на малюнке особенно в части стены то в принципе тут накоплено по мелочам. Подготовка, неверное армирование. некачественное бетонирование. И что за основание было под "подушкой". Хоть пленка была какая или лили просто по песку Посилання на коментар Поділитися на інших сайтах More sharing options...
Vitaliy_Goy Опубліковано: 5 січня 2016 Автор Поділитись Опубліковано: 5 січня 2016 А что с армированием. Если так как на малюнке особенно в части стены то в принципе тут накоплено по мелочам. Подготовка, неверное армирование. некачественное бетонирование. И что за основание было под "подушкой". Хоть пленка была какая или лили просто по песку Основание под подушкой грунт. В чем неправильность армировки? Некачественное бетонирование, что вы имеете ввиду? Пленки не было, подушка была залита на ровный грунт (его никто не копал, не рыхлил и т.д.) была вырыта ровная площадка с помощью совковых лопат. Подушка залилась отлично трещин не было. Даже после того как появились мелкие первые сквозные трещинки в ленте, подушка оставалась без намека на них. Посилання на коментар Поділитися на інших сайтах More sharing options...
Татьяна5 Опубліковано: 5 січня 2016 Поділитись Опубліковано: 5 січня 2016 см коммент ув Пропеллера + не нагруженный фундамент ИМХО, ждите спокойно весны, трещинки "затянутся" и на всякий случай таки кусочек весною выдолбать-посмотреть полов/плиты нет? 4 Посилання на коментар Поділитися на інших сайтах More sharing options...
Vitaliy_Goy Опубліковано: 5 січня 2016 Автор Поділитись Опубліковано: 5 січня 2016 см коммент ув Пропеллера + не нагруженный фундамент ИМХО, ждите спокойно весны, трещинки "затянутся" и на всякий случай таки кусочек весною выдолбать-посмотреть полов/плиты нет? Пока совсем "голенький", сверху лежит 2 бруса "5" и сверху рубероид, все. Ну надеюсь, что дальше не пойдет. И буду ждать весны, надеюсь ничего серьезного. Посилання на коментар Поділитися на інших сайтах More sharing options...
tansss Опубліковано: 5 січня 2016 Поділитись Опубліковано: 5 січня 2016 Очень интересные заключения по геологии.... П1 и П3???????????? Особенно курсив п3:) и далее с п5 по п8 ? Шо не слово - то противоречие со следующим!? Ясногородка _вышгородская или таки КС район? Фундамент исчо не нагружен, а уже с разрушениями!? Может и затянутся по весне! Посилання на коментар Поділитися на інших сайтах More sharing options...
Propeller Опубліковано: 5 січня 2016 Поділитись Опубліковано: 5 січня 2016 Сейчас трещин осталось три и они сквозные. Если трещина есть вверху и по обе стороны "ленточки", это не всегда значит, что трещина сквозная. Или Вы эти трещины проверили "на просвет"? То есть сквозь трещину видно, "свет в конце..." этой трещины? Посилання на коментар Поділитися на інших сайтах More sharing options...
tansss Опубліковано: 5 січня 2016 Поділитись Опубліковано: 5 січня 2016 Если трещина есть вверху и по обе стороны "ленточки", это не всегда значит, что трещина сквозная. Или Вы эти трещины проверили "на просвет"? То есть сквозь трещину видно, "свет в конце..." этой трещины? Друже, посмотрите на фотки ТС. Классика жанра... во внутренней части - прямо в стыке (углу) наружной и несущей... снаружи - напротив.... сверху видно их соединение!!! Не думаю, что тут нужна "керосиновая" или другая проба для подтверждения полного раскрытия трещины! Посилання на коментар Поділитися на інших сайтах More sharing options...
Propeller Опубліковано: 5 січня 2016 Поділитись Опубліковано: 5 січня 2016 Друже, посмотрите на фотки ТС. Классика жанра... во внутренней части - прямо в стыке (углу) наружной и несущей... снаружи - напротив.... сверху видно их соединение!!! Не думаю, что тут нужна "керосиновая" или другая проба для подтверждения полного раскрытия трещины! 1. По описанию ТС часть трещин появилась еще когда бетон был не камнем, а кашей, приближающейся к консистенции халвы. Неужели на том этапе на бетонную "кашу" как-то повлияла осадка грунта под фундаментом после заливки? Может ранее залитая пятка деформировалась под весом свежего бетона. Скажу так : не уверен. Может у Вас есть опыт. Я ж не строитель. Короче, трещины замазали раствором. 2. На 70% прочности бетона ленточку распалубили и обнаружили еще 3 миллиметровые трещины. Это был октябрь. Опять "промоина" под пяткой? Трещины замазали раствором. 3. Все фото трещин, кроме одной с раскрытием 1 мм как раз по местам "замазали трещину". 4. Поэтому сомневаюсь я, что эти трещины сквозные. Просто сомневаюсь. 5. Как сказала Татьяна5 у ТС до весны еще есть время. На месте ТС я бы, извините, потратил деньги на несложную экспертизу. Причем "под документ". Но это я. А я - нудный. 1 Посилання на коментар Поділитися на інших сайтах More sharing options...
Пий Опубліковано: 5 січня 2016 Поділитись Опубліковано: 5 січня 2016 и рассказывайте мне после этого о качественном бетоне из миксера Интересно,почему мой фундамент,который неделю лили с мешалки,и в котором внизу шлачная подушка,до сих пор не треснул ни грамма? Ну нагрузил до морозов-это один фактор. А может второй фактор,это то,что я твердо знаю из чего и как этот фундамент мешали?В том числе,сколько там было воды?И сколько цемента..и какого. Посилання на коментар Поділитися на інших сайтах More sharing options...
Vitaliy_Goy Опубліковано: 6 січня 2016 Автор Поділитись Опубліковано: 6 січня 2016 Очень интересные заключения по геологии.... П1 и П3???????????? Особенно курсив п3:) и далее с п5 по п8 ? Шо не слово - то противоречие со следующим!? Ясногородка _вышгородская или таки КС район? Фундамент исчо не нагружен, а уже с разрушениями!? Может и затянутся по весне! Ясногородка на границе с КС. Добавлено через 2 минуты Если трещина есть вверху и по обе стороны "ленточки", это не всегда значит, что трещина сквозная. Или Вы эти трещины проверили "на просвет"? То есть сквозь трещину видно, "свет в конце..." этой трещины? Буду на следующей неделе, попробую вечером просветить фонариком. Посилання на коментар Поділитися на інших сайтах More sharing options...
Vitaliy_Goy Опубліковано: 6 січня 2016 Автор Поділитись Опубліковано: 6 січня 2016 Пару фотографий подушки. На мои вопросы по поводу трещин к строителям. 1. Когда появились первые признаки: "это усадочные трещины, все нормально" даже что они с обеих сторон и сверху она тоже прослеживается "да, это усадочная трещина так как мы много разбавили водой" Потом пару месяц без увеличения трещин как количества так и размерности. 2. После того как пошли морозы: "они увеличились из-за морозного пучения, так как недостаточно подсыпанного грунта (песка)", что делать "весной будем смотреть". Всем спасибо за советы, замечания и предположения! Посилання на коментар Поділитися на інших сайтах More sharing options...
kleo_k Опубліковано: 6 січня 2016 Поділитись Опубліковано: 6 січня 2016 В подушке маловато перевязок на углах. Во вторых стоит связывать немного по другому - с внутренней части стороны одной стенки на внешнюю другой. Но в общем подушка должна держать хорошо. Думаю, что лучше добавить еще один ферхний армопояс поверху фундамента для усиления. А в дальнейшем лучше немного облегчить стены, например заменив 1.5 полнотелого кирпича на пустотелый 2НФ или на поротерм или газобетон. Откапывали и смотрели насколько глубоко трещина идет вниз фундамента? Если не глубоко, то дополнительный верхний армопояс должен решить проблему. Добавлено через 2 минуты Уже нашел, что трещины почти до подушки. Значит рвет сверху и дополнительный армопояс должен решить проблему. И главное не давайте строителям разбавлять водой бетон. Лучше вибратором и без фанатизма вибрировать. А в дальнейшем максимально подальше отведите воду от фундамента. 1 Посилання на коментар Поділитися на інших сайтах More sharing options...
Татьяна5 Опубліковано: 6 січня 2016 Поділитись Опубліковано: 6 січня 2016 то дополнительный верхний армопояс должен решить проблему. или защемленная плита, которая будет и армопоясом и черновым полом сразу 1 Посилання на коментар Поділитися на інших сайтах More sharing options...
Vitaliy_Goy Опубліковано: 6 січня 2016 Автор Поділитись Опубліковано: 6 січня 2016 В подушке маловато перевязок на углах. Во вторых стоит связывать немного по другому - с внутренней части стороны одной стенки на внешнюю другой. Но в общем подушка должна держать хорошо. Думаю, что лучше добавить еще один ферхний армопояс поверху фундамента для усиления. А в дальнейшем лучше немного облегчить стены, например заменив 1.5 полнотелого кирпича на пустотелый 2НФ или на поротерм или газобетон. Откапывали и смотрели насколько глубоко трещина идет вниз фундамента? Если не глубоко, то дополнительный верхний армопояс должен решить проблему. Над вторым армпоясом думал. Облегчил второй этаж, вместо кирпича будут блоки, первый уже некуда облегчать перекрытия то пустотелые плиты. Трещина изначально не доходила до подушки сантиметром 20, а сейчас не знаю. Посилання на коментар Поділитися на інших сайтах More sharing options...
kleo_k Опубліковано: 6 січня 2016 Поділитись Опубліковано: 6 січня 2016 Еще смущает поверхность фундамента. Уж очень сильно шероховатый фундамент вышел и много швов было замазано. Вы видели фундамент до замазывания после снятия опалубки? Подозреваю что бетон был далеко на B25. Также лучше делать пирог пола первого этажа грунту, чтобы уменьшить нагрузку на стены. 1 Посилання на коментар Поділитися на інших сайтах More sharing options...
tansss Опубліковано: 6 січня 2016 Поділитись Опубліковано: 6 січня 2016 или защемленная плита, которая будет и армопоясом и черновым полом сразу Вариант правильный, но надо учесть что её вес 8,7*18,6*0,16*2,6т = 67,3 тонны добавятся к общему весу дома! Посилання на коментар Поділитися на інших сайтах More sharing options...
Татьяна5 Опубліковано: 6 січня 2016 Поділитись Опубліковано: 6 січня 2016 Подозреваю что бетон был далеко на B25. его хватило бы и В20 с головою для этой задачи как примешь бетон - так он и выглядит, тем более, что фото зимнее, свою коррекцию цвета вносит Добавлено через 1 минуту Вариант правильный, но надо учесть что её вес 8,7*18,6*0,16*2,6т = 67,3 тонны добавятся к общему весу дома! ну, смысла в 16 см такой плиты, как бы, и нет , но это вопрос к конструктору ИМХО, спокойно жить до весны и там посмотреть , и уже потом "мамааааа, памагите" или "спи спокойно, друг сердеШный" Посилання на коментар Поділитися на інших сайтах More sharing options...
Vitaliy_Goy Опубліковано: 6 січня 2016 Автор Поділитись Опубліковано: 6 січня 2016 Еще смущает поверхность фундамента. Уж очень сильно шероховатый фундамент вышел и много швов было замазано. Вы видели фундамент до замазывания после снятия опалубки? Подозреваю что бетон был далеко на B25. Также лучше делать пирог полапервого этажа грунту, чтобы уменьшить нагрузку на стены. Швов не много,был замечен один. Шероховатый так как в некоторых местах оторвалась пленка с опалубки и доска начала впитывать сильно воду. По документам Б25 (но его разбавили водой, думаю сильно) Посилання на коментар Поділитися на інших сайтах More sharing options...
Рекомендовані повідомлення
Створіть акаунт або увійдіть у нього для коментування
Ви маєте бути користувачем, щоб залишити коментар
Створити акаунт
Зареєструйтеся для отримання акаунта. Це просто!
Зареєструвати акаунтУвійти
Вже зареєстровані? Увійдіть тут.
Увійти зараз