Dave Опубліковано: 4 липня 2007 Поділитись Опубліковано: 4 липня 2007 Стройка будет стартована в августе. По состоянию на сегодня еще идет проектирование дома (идет проработка АР и АС частей). Общая идея (эскиз, планировки) и часть проектной документации уже есть. В этом году планируем сделать только фундамент, цоколь, перекрыть все это дело плитами и законсервировать на зиму. Что касается остального, то ряд вопросов еще находится в процессе согласования . В частности, определяемся в отношении конструктива коробки, а точнее стен (консультируемся с участниками форума здесь: (ссылка устарела)). До заказа проекта мы проанализировали десятки разных вариантов, и, как водится, ни один не подошел на 100%. То маленькая гостиная, то тесно, то слишком много неиспользуемых площадей, и т.д. и т.п. (как водится, достаточно традиционная история ) В результате мы с женой заказали проект в строительной фирме. Делается он уже практически год, поскольку для нас это был период, в течение которого мы хорошо продумали, зачем и какой именно нам нужен дом. В процессе проработки эскизов неоднократно менялась сама концепция и требования. Проработали почти 30 вариантов (архитектору надо поставить памятник за долготерпение :-D), и, наконец, родился ДОМ. Так получилось, что он проектировался в большей степени изнутри. Внешний вид и фасады подчинены особенностям внутренней компоновки. Посему и начинаем с поэтажных планов. Посилання на коментар Поділитися на інших сайтах More sharing options...
Dave Опубліковано: 4 липня 2007 Автор Поділитись Опубліковано: 4 липня 2007 1-й этаж. Это почти студия. Максимум простора. Большая гостиная с вторым светом по совместительству является каминным залом и домашним кинотеатром. Лестница на второй этаж будет являться также и декоративным элементом. Лестница в цоколь спрятана за дверью. Из гостиной сделан выход на крытую террасу. В правом крыле предусмотрены две гостевые комнаты. Посилання на коментар Поділитися на інших сайтах More sharing options...
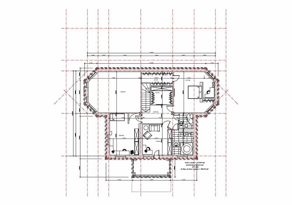
Dave Опубліковано: 4 липня 2007 Автор Поділитись Опубліковано: 4 липня 2007 2-й этаж. Это "приватная территория": спальня, детская, кабинет, гардеробная, санузлы. Посилання на коментар Поділитися на інших сайтах More sharing options...
sevlad Опубліковано: 5 липня 2007 Поділитись Опубліковано: 5 липня 2007 2-й этаж. Это "приватная территория": спальня, детская, кабинет, гардеробная, санузлы. Сделай вход в маленький санузел - из вашей спальни. В остальном - интересно... Посилання на коментар Поділитися на інших сайтах More sharing options...
КиевлянинЪ Опубліковано: 5 липня 2007 Поділитись Опубліковано: 5 липня 2007 а столовки не будет ? Посилання на коментар Поділитися на інших сайтах More sharing options...
Romka Опубліковано: 5 липня 2007 Поділитись Опубліковано: 5 липня 2007 рабочих на фундамент нашли? могу поделиться контактом тех кто делал мне - общее впечатление на твердые 4 балла Посилання на коментар Поділитися на інших сайтах More sharing options...
Dave Опубліковано: 5 липня 2007 Автор Поділитись Опубліковано: 5 липня 2007 2-й этаж. Это "приватная территория": спальня, детская, кабинет, гардеробная, санузлы. Сделай вход в маленький санузел - из вашей спальни. В остальном - интересно... Вход в маленький санузел из спальни у нас был на предыдущем эскизе, потом все-таки решили так не делать. Этот маленький санузел планируется для подрастающего поколения, а вход в большой мы хотели сделать из спальни. Но скомпоновать таким образом не получилось. Посему в результате маленький с/у оказался вблизи спальни, и вход в него сделали из холла. Посилання на коментар Поділитися на інших сайтах More sharing options...
Dave Опубліковано: 5 липня 2007 Автор Поділитись Опубліковано: 5 липня 2007 а столовки не будет ? Изначально мы действительно хотели сделать столовку - эдакий постоянный круглый стол в эркере. Но хотелось больше простора То, к чему пришли в результате: - мини-столовая реализована в составе довольно большой кухни - центр гостиной, там где сейчас нарисован угловой диван, является трансформируемым, именно там может быть реализована столовая и место приема гостей. Посилання на коментар Поділитися на інших сайтах More sharing options...
Dave Опубліковано: 5 липня 2007 Автор Поділитись Опубліковано: 5 липня 2007 рабочих на фундамент нашли? могу поделиться контактом тех кто делал мне - общее впечатление на твердые 4 балла Вроде как есть несколько вариантов, но еще не до конца определились. Так что буду признателен контакту (e-mail dave777@hotbox.ru). Посилання на коментар Поділитися на інших сайтах More sharing options...
Romka Опубліковано: 6 липня 2007 Поділитись Опубліковано: 6 липня 2007 проверяй почту Посилання на коментар Поділитися на інших сайтах More sharing options...
teninch Опубліковано: 23 липня 2007 Поділитись Опубліковано: 23 липня 2007 Dave особое спасибо за тойотовский сайт. Эт надо же так глубоко копать инет В каком стиле вам видется внешний и внутренний облик? Посилання на коментар Поділитися на інших сайтах More sharing options...
Dave Опубліковано: 10 серпня 2007 Автор Поділитись Опубліковано: 10 серпня 2007 Внешний вид пока что видится примерно вот так. Сейчас идет нулевой цикл, а фасады доводятся до ума. Крыша будет, по видимому, темно-темно-коричневая. Посилання на коментар Поділитися на інших сайтах More sharing options...
Dave Опубліковано: 10 серпня 2007 Автор Поділитись Опубліковано: 10 серпня 2007 ... и еще два вида Посилання на коментар Поділитися на інших сайтах More sharing options...
КиевлянинЪ Опубліковано: 10 серпня 2007 Поділитись Опубліковано: 10 серпня 2007 и какую смету вам строй фирма рисует ? Посилання на коментар Поділитися на інших сайтах More sharing options...
Dave Опубліковано: 10 серпня 2007 Автор Поділитись Опубліковано: 10 серпня 2007 и какую смету вам строй фирма рисует ? Фундамент + цоколь получается в районе 45к. Может показаться дорого, но у меня высокий полноценный цоколь с немаленькой террасой и крыльцом, у которых свой мини-фундамент + армопояс по всему периметру; грунт у меня "с вопросами". Коробку с внешней отделкой, окнами и дверью я хочу выгнать, уложившись ориентировочно в ~150к. Сейчас сравниваю варианты "стройфирма vs. бригада с прорабом". Второй вариант (бригада(ы) + прораб) по текущим прикидкам получается не так, чтобы и сильно дешевле при ощутимо больших затратах времени с моей стороны на управление процессом. 1 Посилання на коментар Поділитися на інших сайтах More sharing options...
Dron Опубліковано: 18 серпня 2007 Поділитись Опубліковано: 18 серпня 2007 Фундамент + цоколь получается в районе 45к. Может показаться дорого, но у меня высокий полноценный цоколь с немаленькой террасой и крыльцом, у которых свой мини-фундамент + армопояс по всему периметру; грунт у меня "с вопросами". Это в каких дензнаках? Если в американских, то считаю что очень дорого. В данный момент товарищь заложил фундамент, дом 12м х 18м, затраты 50 тыс грн (10 тыс доларов). Вошло: траншея, армопояс, блоки, монтаж блоков. Посилання на коментар Поділитися на інших сайтах More sharing options...
teninch Опубліковано: 18 серпня 2007 Поділитись Опубліковано: 18 серпня 2007 У меня вопрос- а откуда будет виден главный фасад. Дом развернут к дороге боком- от въезда вид обрезан, со стороны фонтанчика- неполучится- слишком близко. Что бы полюбоваться видом остается одно- подняться в небо и отлететь назад метров на 100 :-D . ЗЫ. вы не одиноки. я сам не могу ответить на тот же вопрос. Посилання на коментар Поділитися на інших сайтах More sharing options...
КиевлянинЪ Опубліковано: 19 серпня 2007 Поділитись Опубліковано: 19 серпня 2007 тоже хотел стартовать 01.08 не получилось, а как у Вас? Посилання на коментар Поділитися на інших сайтах More sharing options...
Ломастер Опубліковано: 20 серпня 2007 Поділитись Опубліковано: 20 серпня 2007 Фундамент + цоколь получается в районе 45к. Может показаться дорого, но у меня высокий полноценный цоколь с немаленькой террасой и крыльцом, у которых свой мини-фундамент + армопояс по всему периметру; грунт у меня "с вопросами". Это в каких дензнаках? Если в американских, то считаю что очень дорого. В данный момент товарищь заложил фундамент, дом 12м х 18м, затраты 50 тыс грн (10 тыс доларов). Вошло: траншея, армопояс, блоки, монтаж блоков. Дорого? Это смотря, что Dave называет "полноценным цоколем". Если это полноценный цокольный этаж с бытовыми и подсобными помещениями - то это нормально. А вот если просто высокий цоколь, то да - дорого. Посилання на коментар Поділитися на інших сайтах More sharing options...
K2 Опубліковано: 20 серпня 2007 Поділитись Опубліковано: 20 серпня 2007 Фундамент + цоколь получается в районе 45к. Может показаться дорого, но у меня высокий полноценный цоколь с немаленькой террасой и крыльцом, у которых свой мини-фундамент + армопояс по всему периметру; грунт у меня "с вопросами". Это в каких дензнаках? Если в американских, то считаю что очень дорого. В данный момент товарищь заложил фундамент, дом 12м х 18м, затраты 50 тыс грн (10 тыс доларов). Вошло: траншея, армопояс, блоки, монтаж блоков. мой цокольный этаж потянул 50 американских тыщ. не видя объект, не нужно кричать "дорого" (совет на будущее). Посилання на коментар Поділитися на інших сайтах More sharing options...
sweden Опубліковано: 21 серпня 2007 Поділитись Опубліковано: 21 серпня 2007 нам только фундамент вынес около 20 К. Посилання на коментар Поділитися на інших сайтах More sharing options...
Dave Опубліковано: 21 серпня 2007 Автор Поділитись Опубліковано: 21 серпня 2007 У меня вопрос- а откуда будет виден главный фасад. Дом развернут к дороге боком- от въезда вид обрезан, со стороны фонтанчика- неполучится- слишком близко. Что бы полюбоваться видом остается одно- подняться в небо и отлететь назад метров на 100 :-D . ЗЫ. вы не одиноки. я сам не могу ответить на тот же вопрос. Фронтальный фасад будет хорошо виден из угла участка, где планируется беседка/ место отдыха. Фасад с террасой будет полностью обозрим на подъезде, в т.ч. и с дороги, поскольку дом стоит на склоне холма порядка 2%. Посилання на коментар Поділитися на інших сайтах More sharing options...
Dave Опубліковано: 21 серпня 2007 Автор Поділитись Опубліковано: 21 серпня 2007 Фундамент + цоколь получается в районе 45к. Может показаться дорого, но у меня высокий полноценный цоколь с немаленькой террасой и крыльцом, у которых свой мини-фундамент + армопояс по всему периметру; грунт у меня "с вопросами". Это в каких дензнаках? Если в американских, то считаю что очень дорого. В данный момент товарищь заложил фундамент, дом 12м х 18м, затраты 50 тыс грн (10 тыс доларов). Вошло: траншея, армопояс, блоки, монтаж блоков. Дорого? Это смотря, что Dave называет "полноценным цоколем". Если это полноценный цокольный этаж с бытовыми и подсобными помещениями - то это нормально. А вот если просто высокий цоколь, то да - дорого. Сам фундамент дома, разумеется, дешевле. Упоминая цифру, я имел ввиду полноценный цокольный этаж (3 м) с бытовыми и подсобными помещениями и с окнами. Мощная лента (у меня "пучинистый" и частично просадочный грунт - в общем, с сюрпризами) на 53 куба, утепленный пол цокольного этажа с гидроизоляцией, фундаментные блоки, гидроизоляция блоков, верхний армопояс, стальные несущие балки, плиты перекрытий, монолитные элементы. Терраса (27 квадратов) соединена с основным фундаментом, имеет свою ленту, блоки и тоже перекрывается плитами. Крыльцо с тамбуром (16 квадратов) также имеет свой мини-фундамент и ленту. Посилання на коментар Поділитися на інших сайтах More sharing options...
Dave Опубліковано: 21 серпня 2007 Автор Поділитись Опубліковано: 21 серпня 2007 тоже хотел стартовать 01.08 не получилось, а как у Вас? Планирую начать рыть котлован 3 сентября. Перекрыть цокольный этаж и начать консервацию 31 октября. Посилання на коментар Поділитися на інших сайтах More sharing options...
Dave Опубліковано: 18 листопада 2007 Автор Поділитись Опубліковано: 18 листопада 2007 Наконец, выкроил время и выложил в Picasa фотоальбом с хронологией стройки в этом году. Здесь в меньшей степени про дом, и в большей степени про строительство капитального гаража и забора. По состоянию на сегодня цоколь полностью готов к укладке плит, но еще не перекрыт. Посилання на коментар Поділитися на інших сайтах More sharing options...
Рекомендовані повідомлення
Створіть акаунт або увійдіть у нього для коментування
Ви маєте бути користувачем, щоб залишити коментар
Створити акаунт
Зареєструйтеся для отримання акаунта. Це просто!
Зареєструвати акаунтУвійти
Вже зареєстровані? Увійдіть тут.
Увійти зараз