Propeller Опубліковано: 18 серпня 2009 Поділитись Опубліковано: 18 серпня 2009 Визуально уточняю. Правый вариант правильный. В идеале стена должна нависать над цоколем с наружной стороны создавая ему "естественный" козырек. Посилання на коментар Поділитися на інших сайтах More sharing options...
ivinn Опубліковано: 18 серпня 2009 Автор Поділитись Опубліковано: 18 серпня 2009 В таком случае, можно ли сделать так? Применимо к моему "пирогу". Посилання на коментар Поділитися на інших сайтах More sharing options...
Igor_M Опубліковано: 18 серпня 2009 Поділитись Опубліковано: 18 серпня 2009 В таком случае, можно ли сделать так? Применимо к моему "пирогу". Как раз писал вам... Просмотрел все еще раз внимательно... думал, я что-то пропустил вы наконец выложили окончательный вариант вашего вертикального "пирога"... Но вижу, что до конца еще далеко... Давайте "упростим" задачу. Точнее, правильно ее поставим, т.е. разработаем и утвердим техническое задание на проект фундамента. Итак, исходные данные (сведем все воедино): 1. Грунт - полная характеристика, включая УГВ 2. Характеристики дома - этажность, материал, подвал (цоколь) - да или нет 3. План дома (1-го этажа) с габаритами и капитальными стенами (в т.ч. внутренние) Потом мы с вами рассчитаем глубину заложения и толщину стен фундамента, высоту цоколя... Тогда мы с вами поймем, каков объем бетона потребуется, а потом уже и будем мудрить - где бутобетон, а где железобетон? и при этом попробуем "закатать" как можно больше вашего бута... Посилання на коментар Поділитися на інших сайтах More sharing options...
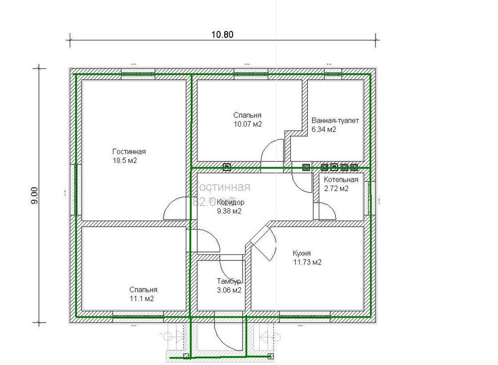
ivinn Опубліковано: 18 серпня 2009 Автор Поділитись Опубліковано: 18 серпня 2009 1.На участке есть погреб (яма). В нем целое лето дно влажное. Правда и вентиляции нету. Я брал кусочек земли (на вид глина) со дна ямы (~1.5м.), бросал в банку с водой и немножко недолго помешивал – кусочек со временем рассыпался. Большая вероятность, что суглинок и УГВ высокий. 2.Одноэтажный, газобетон, деревянное перекрытие, без подвала. 3. Зелёной линей указан основной фундамент, под несущие внутренние и наружные стены. Глубина я думаю где-то 1,2/1,4м. Внутренние перегородки по верхнему уровню основного фундамента положен на уровень земли без армирования, сделан будет после полной заливки основного фундамента. Посилання на коментар Поділитися на інших сайтах More sharing options...
Igor_M Опубліковано: 18 серпня 2009 Поділитись Опубліковано: 18 серпня 2009 1.На участке есть погреб (яма). В нем целое лето дно влажное. Правда и вентиляции нету. Я брал кусочек земли (на вид глина) со дна ямы (~1.5м.), бросал в банку с водой и немножко недолго помешивал – кусочек со временем рассыпался. Большая вероятность, что суглинок и УГВ высокий. 2.Одноэтажный, газобетон, деревянное перекрытие, без подвала. 3. Зелёной линей указан основной фундамент, под несущие внутренние и наружные стены. Глубина я думаю где-то 1,2/1,4м. Внутренние перегородки по верхнему уровню основного фундамента положен на уровень земли без армирования, сделан будет после полной заливки основного фундамента. Итак, что мы имеем: 1. Грунт - глина, суглинок... не очень хороший... по крайней мере с внешней стороны фундамента его точно нужно убрать и сделать обратную засыпку песком... дать слой щебня... с эти в конце разберемся 2. УГВ высокий, значит нужно будет сделать гидроизоляцию. Причем как вертикальную, так и горизонтальную 3. Дом не тяжелый, но грунт проблемный, поэтому толщину ленты нужно все-таки 400мм (так мне видится) Длина фундаментных стен - 55м, высота - 2м (я беру 1,2-1,3 м фундамент + 70-80 см цоколь) Объем бетона - 44 м3... Теперь подсчитайте - сколько вы сможете обеспечить бутобетона и потом посмотрим, как его объединить с железобетоном... Посилання на коментар Поділитися на інших сайтах More sharing options...
Igor_M Опубліковано: 18 серпня 2009 Поділитись Опубліковано: 18 серпня 2009 В таком случае, можно ли сделать так? Применимо к моему "пирогу". У меня такая же лобуда - фундамент 400мм, а блоки аэрок - 375... Сейчас я поглядываю в сторону каховки - они обещают через неделю начать выпуск паз-гребень, и у них в ассортименте есть 400мм.... Посилання на коментар Поділитися на інших сайтах More sharing options...
ivinn Опубліковано: 18 серпня 2009 Автор Поділитись Опубліковано: 18 серпня 2009 [quote=Igor_M; Сейчас я поглядываю в сторону каховки - они обещают через неделю начать выпуск паз-гребень, и у них в ассортименте есть 400мм.... QUOT Я так думаю, что до весны "созреют" точно. Посилання на коментар Поділитися на інших сайтах More sharing options...
Tugarin Опубліковано: 18 серпня 2009 Поділитись Опубліковано: 18 серпня 2009 У меня такая же лобуда - фундамент 400мм, а блоки аэрок - 375... Сейчас я поглядываю в сторону каховки - они обещают через неделю начать выпуск паз-гребень, и у них в ассортименте есть 400мм.... Здравствуйте. А смысл, цоколь ведь будете утеплять? В этом отношении не вижу проблем, просто ставится отлив над фундаментом. Посилання на коментар Поділитися на інших сайтах More sharing options...
ivinn Опубліковано: 18 серпня 2009 Автор Поділитись Опубліковано: 18 серпня 2009 Теперь подсчитайте - сколько вы сможете обеспечить бутобетона и потом посмотрим, как его объединить с железобетоном... Приблизительно 20/22м3 бутобетона, если понадобится то и больше смогу. Посилання на коментар Поділитися на інших сайтах More sharing options...
Propeller Опубліковано: 19 серпня 2009 Поділитись Опубліковано: 19 серпня 2009 В таком случае, можно ли сделать так? Применимо к моему "пирогу". Да. Не забывайте об утеплении надземной ж/б части цоколя. Посилання на коментар Поділитися на інших сайтах More sharing options...
Propeller Опубліковано: 19 серпня 2009 Поділитись Опубліковано: 19 серпня 2009 2. УГВ высокий, значит нужно будет сделать гидроизоляцию. Причем как вертикальную, так и горизонтальную Не надо делать вертикальную !!!!! Берегите деньги! Посилання на коментар Поділитися на інших сайтах More sharing options...
ivinn Опубліковано: 19 серпня 2009 Автор Поділитись Опубліковано: 19 серпня 2009 Вырисовывается окончательный вариант.:rolleyes: Посилання на коментар Поділитися на інших сайтах More sharing options...
Igor_M Опубліковано: 19 серпня 2009 Поділитись Опубліковано: 19 серпня 2009 Не надо делать вертикальную !!!!! Берегите деньги! оно конечно по логике можно и не делать.... если точнее, то не нужно делать. Достаточно нормальную горизонтальную, а фундамент пусть мокнет... Посилання на коментар Поділитися на інших сайтах More sharing options...
Igor_M Опубліковано: 19 серпня 2009 Поділитись Опубліковано: 19 серпня 2009 Здравствуйте. А смысл, цоколь ведь будете утеплять? В этом отношении не вижу проблем, просто ставится отлив над фундаментом. вот-вот, я просто хотел после написать... У меня такая схема - фундаментные стены (ФБС 400мм) "сдвинуты" вовнутрь дома на 50мм, т.е. газобетон (тоже думаю брать 400мм) нависает на 50мм над цоколем... и это есть хорошо... НО... цоколь действительно планирую утеплить эппс 100 мм, и теперь уже стены "утоплены" на 50 мм... Вопрос стоит - из чего сооружать отлив? И когда и как его делать? Есть мысли по поводу гранитной полосы по всему периметру... как крепить? Еще какие идеи будут? Посилання на коментар Поділитися на інших сайтах More sharing options...
Igor_M Опубліковано: 19 серпня 2009 Поділитись Опубліковано: 19 серпня 2009 Вырисовывается окончательный вариант.:rolleyes: Уже похоже на что-то завершенное... по крайней мере красиво. Думается, что правильнее утеплять цоколь СНАРУЖИ... Еще смущает примыкание "бетонов" там 40 см, а там - 30... и гидроизоляция там ни к чему... И не понял назначение арматуры внизу самом... И если все-таки думаете делать гидроизоляцию, то только с внешней стороны и на 50 см выше уровня грунта (достаточно обмазочной)... но можно и не делать, если сделаете обратную засыпку дренирующим грунтом (песок) и обеспечите отвод воды от стен фундамента... ... а в остальном,.... все хоро...:) Посилання на коментар Поділитися на інших сайтах More sharing options...
Igor_M Опубліковано: 19 серпня 2009 Поділитись Опубліковано: 19 серпня 2009 Вырисовывается окончательный вариант.:rolleyes: Пирог по грунту - то шо дохтор прописал! Посилання на коментар Поділитися на інших сайтах More sharing options...
ivinn Опубліковано: 19 серпня 2009 Автор Поділитись Опубліковано: 19 серпня 2009 В моём проекте, утепление фундамента делается с внутренней стороны. И все "гут." Посилання на коментар Поділитися на інших сайтах More sharing options...
datsko Опубліковано: 20 серпня 2009 Поділитись Опубліковано: 20 серпня 2009 газобетон нависает на 50мм над цоколем... и это есть хорошо... НО... цоколь действительно планирую утеплить эппс 100 мм, и теперь уже стены "утоплены" на 50 мм... Вопрос стоит - из чего сооружать отлив? И когда и как его делать? Есть мысли по поводу гранитной полосы по всему периметру... как крепить? Еще какие идеи будут? Те же страдания у меня...только блоки Поротерма. Пока нарисовали такой вариант. Посилання на коментар Поділитися на інших сайтах More sharing options...
Igor_M Опубліковано: 20 серпня 2009 Поділитись Опубліковано: 20 серпня 2009 Те же страдания у меня...только блоки Поротерма. Пока нарисовали такой вариант. Вам хорошо... у вас есть куда отлив прикрепить, а потом "спрятать" под штукатуркой.... а у меня по газобетону штукатурка 1,5-2мм... Сегодня архитектор предложил "прибить" отлив с капельником снизу к газобетону (этих выступающих 5 см)... Пока так и думаю, опять же эппс 5 см снизу подожмется... ведь эппс на дюбелях к бетону будет держаться "мертво" и "защемит" отлив... Как думаете - имеет право на жизнь такой вариант? Посилання на коментар Поділитися на інших сайтах More sharing options...
ivinn Опубліковано: 20 серпня 2009 Автор Поділитись Опубліковано: 20 серпня 2009 Если можно - нарисуй чертёж. Посилання на коментар Поділитися на інших сайтах More sharing options...
ivinn Опубліковано: 25 серпня 2009 Автор Поділитись Опубліковано: 25 серпня 2009 Какой марки бетон, и какие добавки можно (нужно) использовать для заливки бутобетона до уровня земли своими силами, т.е. в ручную, бетономешалкой? Общий объем бутобетонной ленты приблизительно 21м3. Из них чернового бута ~ 50-60% Правильно ли я выбрал пропорцию? Планирую залить за дней 10-12. Внутреннею гидроизоляцию использую для тог, чтобы земля не попадала в траншею вовремя бетонирования. Посилання на коментар Поділитися на інших сайтах More sharing options...
ivinn Опубліковано: 28 серпня 2009 Автор Поділитись Опубліковано: 28 серпня 2009 Какой марки бетон, и какие добавки можно (нужно) использовать для заливки бутобетона до уровня земли своими силами, т.е. в ручную, бетономешалкой? Общий объем бутобетонной ленты приблизительно 21м3. Из них чернового бута ~ 50-60% Правильно ли я выбрал пропорцию? Планирую залить за дней 10-12. Внутреннею гидроизоляцию использую для тог, чтобы земля не попадала в траншею вовремя бетонирования. Нужны добавки в бетон. Посоветуйте потенциальному покупателю. Посилання на коментар Поділитися на інших сайтах More sharing options...
Propeller Опубліковано: 28 серпня 2009 Поділитись Опубліковано: 28 серпня 2009 Нужны добавки в бетон. Посоветуйте потенциальному покупателю. Прочитайте здесь www.stroimdom.com.ua/forum/showthread.php?t=21759 пост #14. Посилання на коментар Поділитися на інших сайтах More sharing options...
ivinn Опубліковано: 28 серпня 2009 Автор Поділитись Опубліковано: 28 серпня 2009 Ок. А как на счет процентовки бетон- бут? Какой марки "бадяжить" бетон? Посилання на коментар Поділитися на інших сайтах More sharing options...
burguy30 Опубліковано: 2 вересня 2009 Поділитись Опубліковано: 2 вересня 2009 одним словом така ситуація рівень загального колодязя(лівньовки) ,куди можна підєднати дренаж- вищий за рівень дренажу, який потрібно буде провести по периметру будинку. різниця між найвищою точкою і входом в загальну систему каналізаціі -30 см.отже,найвища точка дренажноі системи буде на 30 см вище від рівня пдлоги в цоколі. для себе знайшов такий вихід. дренаж по периметру будинку пускаю нище рівня входу в загальну систему,так щоб найвища його точка була не вище рівня подушки.в місці зєднання з загальною системою каналізаціі ставлю вертикальну трубу через яку зедную нищий вхід мого дренажу і вищий вхід загальноі каналізаціі.для того ,щоб дренажна вода переходила в лівньовку поставлю в цій вертикальній трубі автоматичний насос-який викачуватиме воду по мірі надходження. чекаю від вас коментарів і зауважень! Посилання на коментар Поділитися на інших сайтах More sharing options...
Рекомендовані повідомлення
Створіть акаунт або увійдіть у нього для коментування
Ви маєте бути користувачем, щоб залишити коментар
Створити акаунт
Зареєструйтеся для отримання акаунта. Це просто!
Зареєструвати акаунтУвійти
Вже зареєстровані? Увійдіть тут.
Увійти зараз