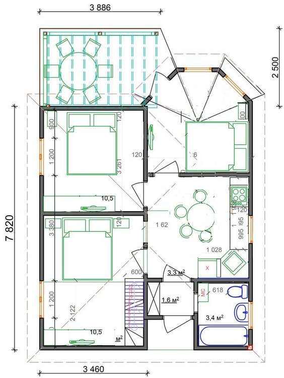
lavilong Опубліковано: 15 квітня 2016 Поділитись Опубліковано: 15 квітня 2016 Есть 2 проекта одноэтажников.. Какой на ваш взгляд лучше и почему.. Какие плюсы и минусы? 1. 2. Посилання на коментар Поділитися на інших сайтах More sharing options...
ПГС-Проект Опубліковано: 15 квітня 2016 Поділитись Опубліковано: 15 квітня 2016 В этих вариантах люди будут только спать и ср..ть. Отсувствуют залы, топочные. Во втором варианте в спальной размещена лестница куда-то. Очень сырые эскизы(не проекты!) имхо. 2 Посилання на коментар Поділитися на інших сайтах More sharing options...
lavilong Опубліковано: 15 квітня 2016 Автор Поділитись Опубліковано: 15 квітня 2016 высер защитан - а теперь по существу.. топочных нет, посколько отопление -- электрический ТП. Лестница - на технический неотапливаемый этаж.. на экскизе видно - что крыша вальмовая а не плоская.. изначально вопрос стоял по планировке.. Это переделаный эскиз из 2х комнатного дома. Задача - сделать из 2х комнатного 3х комнатный Посилання на коментар Поділитися на інших сайтах More sharing options...
ARCH INNOVATION Опубліковано: 15 квітня 2016 Поділитись Опубліковано: 15 квітня 2016 В этих вариантах люди будут только спать и ср..ть. имхо. Ужас, как не культурно. Но, правдиво Посилання на коментар Поділитися на інших сайтах More sharing options...
lavilong Опубліковано: 15 квітня 2016 Автор Поділитись Опубліковано: 15 квітня 2016 а что еще делают в доме?.. именно - едят и спят.. ну и то, на чем вы особо концентрируете внимание - представлено отдельным с/у.. Посилання на коментар Поділитися на інших сайтах More sharing options...
mastervovik Опубліковано: 15 квітня 2016 Поділитись Опубліковано: 15 квітня 2016 Поддержу ораторов - ужас какой-то! (имхо) Как вы хотите выжать три комнаты из 6х8? Это проект дачи или домика у моря для сдачи но не пмж. Поможет ему или мансарда или второй этаж... Посилання на коментар Поділитися на інших сайтах More sharing options...
eam Опубліковано: 15 квітня 2016 Поділитись Опубліковано: 15 квітня 2016 Это переделаный эскиз из 2х комнатного дома. Оригинал намного лучше чем ваши варианты переделок. Задача - сделать из 2х комнатного 3х комнатный Не меняя периметр и размеры дома это бывает возможно сделать в крайне редких случаях. Ваш изначальный вариант не попадает под эти случаи т.к. и так является минимально возможным по площади/удобству и пр. Выхать оттуда еще одну нормальную комнату нереально. Вариант 2 я прокомментировал в другой ветке Имхо, не совсем удачная планировка: - выход на террасу через гостевую спальню - один совмещенный санузел на 3 спальни - полное отсутствие каких-либо гардеробных/кладовок и пр вспомогательных помещений - вход с улицы прямо на кухню в обеденную зону.Ну а в первом варианте узкая комната где не подойти к кровате сбоку - это нечто. 1 Посилання на коментар Поділитися на інших сайтах More sharing options...
lavilong Опубліковано: 15 квітня 2016 Автор Поділитись Опубліковано: 15 квітня 2016 это действительно дача, а не дом для ПМЖ.. Кладовок нат как класса - это жилье а не хламовник.. для одежды - шкафы.. Посилання на коментар Поділитися на інших сайтах More sharing options...
eam Опубліковано: 15 квітня 2016 Поділитись Опубліковано: 15 квітня 2016 Кладовок нат как класса - это жилье а не хламовник.. На жилье это совсем не похоже :D пока конструктива - "0".. Какой конструктив вы хотите услышать? Вам уже сказали что все ваши варианты - это не для комфортного жилья. Ну невозможно нормально впихнуть все. а что еще делают в доме?.. именно - едят и спят.. ну и то, на чем вы особо концентрируете внимание - представлено отдельным с/у.. Вы не поверите, но в доме еще ЖИВУТ. А для нормальной жизни надо еще и место где спокойно посидеть и пообщаться, детям поиграть, взрослым кино посмотреть и при этом друг-другу не мешать 3 Посилання на коментар Поділитися на інших сайтах More sharing options...
lavilong Опубліковано: 15 квітня 2016 Автор Поділитись Опубліковано: 15 квітня 2016 это дача.. для сезонного проживания, летом.. когда птички поют.. солнышко светит.. на улице общаться.. возле мангала.. с детками в песочнице.., на чисмтом воздухе.. А что нужно еще для жилья?.. гостинная на 30 квадратов + бильярдная на 40 + каминный зал +гардеробная, две, + сауна и комната для прислуги - это Вам к Пшонке.. Посилання на коментар Поділитися на інших сайтах More sharing options...
mastervovik Опубліковано: 15 квітня 2016 Поділитись Опубліковано: 15 квітня 2016 На жилье это совсем не похоже Да, больше на хостел Если задача впихнуть побольше спален, то зачем воровать площадь прихожей/коридором? Сделайте отдельные входы (с улицы) во все комнаты Посилання на коментар Поділитися на інших сайтах More sharing options...
Музей Опубліковано: 15 квітня 2016 Поділитись Опубліковано: 15 квітня 2016 Поддержу ораторов - ужас какой-то! (имхо) Как вы хотите выжать три комнаты из 6х8? Это проект дачи или домика у моря для сдачи но не пмж. Поможет ему или мансарда или второй этаж... Таки ужас! "Позор пьянице и дебоширу Семен Семёнычу Горбункову!" Как мог ТС осквернить наш великий форум таким маленьким домиком!?:D Мне кажется, что первый вариант лучше, т.к. кухня-столовая сообщается с террасой. Я бы отделила горшок от ванной комнаты. Даже для двох-троих это неудобно. Для большего числа народу это уже катастрофа. Можно опустить стенку спальной и поставить в нишу ванну. Сверху получится отдельный горшок. Похоже, вариант очень экономный. Но эркер и економность никак не дружат. 4 Посилання на коментар Поділитися на інших сайтах More sharing options...
eam Опубліковано: 15 квітня 2016 Поділитись Опубліковано: 15 квітня 2016 это дача.. для сезонного проживания, летом.. когда птички поют.. солнышко светит.. на улице общаться.. возле мангала.. с детками в песочнице.., на чисмтом воздухе.. Так для дачного домика можно и такое построить. Под ваши требования подойдет Сделайте в каждую комнату свой вход с улицы и тогда сможете еще одну спальню сделать ;) А что нужно еще для жилья? Да хотя бы 2 горшка на 3 спальни должно быть. Вы тупо умыться утром не сможете пока не выстоите очередь с теми, которые по нужде хотят сходить. А ведь 3 спальни предполагает минимум 4 человека. 1 Посилання на коментар Поділитися на інших сайтах More sharing options...
mastervovik Опубліковано: 15 квітня 2016 Поділитись Опубліковано: 15 квітня 2016 Как мог ТС осквернить наш великий форум таким маленьким домиком! Сарказм не защитан - сам живу в 6х8, правда с мансардой С ужасом представляю если бы пришлось впихнуть 2 комнаты с мансарды в первый этаж Посилання на коментар Поділитися на інших сайтах More sharing options...
lavilong Опубліковано: 15 квітня 2016 Автор Поділитись Опубліковано: 15 квітня 2016 дом не для пмж.. на улице уже есть один горшок.. не думаю что будет большая очередь. У Инсана на строимдомовке было человек 70.. и один уличный горшок деревянный.. толпы и очередей небыло.. Посилання на коментар Поділитися на інших сайтах More sharing options...
vadimv Опубліковано: 15 квітня 2016 Поділитись Опубліковано: 15 квітня 2016 Есть 2 проекта одноэтажников.. Какой на ваш взгляд лучше и почему.. Какие плюсы и минусы?Оба хуже. 1. В хрущобе у нас была узкая спальня 2х4 - это ж-ж-жесть! 2. Лестница в спальне (на чердак) - мегаоригинально, как я уже писал. 3. В обоих вариантах нет гостиной (или хотя бы дивана (гостиной зоны) на кухне) и совмещенный санузел на 3 комнаты. 1 Посилання на коментар Поділитися на інших сайтах More sharing options...
eam Опубліковано: 15 квітня 2016 Поділитись Опубліковано: 15 квітня 2016 Оба хуже. 1. В хрущобе у нас была узкая спальня 2х4 - это ж-ж-жесть! 2. Лестница в спальне (на чердак) - мегаоригинально, как я уже писал. 3. В обоих вариантах нет гостиной (или хотя бы дивана (гостиной зоны) на кухне) и совмещенный санузел на 3 комнаты. Да бесполезно писАть. На все комментарии будет ответ дом не для пмж.и на улице все есть не думаю что будет большая очередь. а мне и так нравится 1 Посилання на коментар Поділитися на інших сайтах More sharing options...
ПГС-Проект Опубліковано: 15 квітня 2016 Поділитись Опубліковано: 15 квітня 2016 Ужас, как не культурно. Но, правдиво Пардон 1 Посилання на коментар Поділитися на інших сайтах More sharing options...
jara Опубліковано: 15 квітня 2016 Поділитись Опубліковано: 15 квітня 2016 Коли малюють великі будинки погано,коли маленькі погано!?Ви оприділіться вже!?Для дачі 1 варіант. 1 Посилання на коментар Поділитися на інших сайтах More sharing options...
mastervovik Опубліковано: 15 квітня 2016 Поділитись Опубліковано: 15 квітня 2016 Коли малюють великі будинки погано,коли маленькі погано! Где вы прочитали маленький - плохо? Замечание было во "впихивании-невпехуемого"... 1 Посилання на коментар Поділитися на інших сайтах More sharing options...
jara Опубліковано: 15 квітня 2016 Поділитись Опубліковано: 15 квітня 2016 Где вы прочитали маленький - плохо? Замечание было во "впихивании-невпехуемого"... Згодіться,що для сезонного проживання достатньо?! На море як їздили і менші знімали і нічого.Головне,що є тераса.То що так поставили двоспальні ліжка,неозначає,що так буде. І взагалі по моєму людина оприділилась,що їй потрібно,що тут критикувати. Посилання на коментар Поділитися на інших сайтах More sharing options...
lavilong Опубліковано: 15 квітня 2016 Автор Поділитись Опубліковано: 15 квітня 2016 Згодіться,що для сезонного проживання достатньо?! На море як їздили і менші знімали і нічого.Головне,що є тераса.То що так поставили двоспальні ліжка,неозначає,що так буде. Так.. ліжка я скопіював та розставив для прикладу.. у кімнаті з виходом на терасу буде вітальня з кутовим диваном. Спальні тіки дві. На першому малюнку в найменьшій кімнаті буде односпальне ліжко.. Зновтаки це як приклад.. 1 Посилання на коментар Поділитися на інших сайтах More sharing options...
jara Опубліковано: 15 квітня 2016 Поділитись Опубліковано: 15 квітня 2016 На мій погляд просто краще вихід на терасу з кухні,тому і вказала перший варіан і ще мені просто не подобаються еркериТільки привяжіть до ділянки,так щоб тераса не була на півдні! 1 Посилання на коментар Поділитися на інших сайтах More sharing options...
Виталий_Буча Опубліковано: 15 квітня 2016 Поділитись Опубліковано: 15 квітня 2016 Удивительно, как это ещё abelor не высказалась по поводу квартиры на земле... 2 Посилання на коментар Поділитися на інших сайтах More sharing options...
abelor Опубліковано: 16 квітня 2016 Поділитись Опубліковано: 16 квітня 2016 Вот зашла на форум. Улыбнуло. Удивительно, как это ещё abelor не высказалась по поводу квартиры на земле... Посилання на коментар Поділитися на інших сайтах More sharing options...
Рекомендовані повідомлення
Створіть акаунт або увійдіть у нього для коментування
Ви маєте бути користувачем, щоб залишити коментар
Створити акаунт
Зареєструйтеся для отримання акаунта. Це просто!
Зареєструвати акаунтУвійти
Вже зареєстровані? Увійдіть тут.
Увійти зараз