tick Опубліковано: 26 квітня 2016 Поділитись Опубліковано: 26 квітня 2016 Вітаю! Якийсь вже досить довгий час мрієм-розмірковуєм з сім'єю про будівництво будинку. (ну як багато хто мабуть розмірковує: ніби й не погано биб, але конкретних дій ніяких) За цей час кілька разів знімав на літо дачі на березі Десни (чудові місця), зрозумів, що в дачному кооперативі по 6 соток будувати не хочу. Також переконаний, що діти з нами жити не будуть, а отже немає необхідності в великій кількості спален, санвузлів і т.д. Одним словом, якось вималювались за цей час критерії до будинку, знайшовся участок і стало питання про будівництво. Намалював єскіз будинку в SketchUp, передав проектанту, зробив геологію і геодезію. Оскільки досвіду в будівництві немає (окрім кількох ремонтів), то почав вивчати інтернет простір на предмет всього, що стосується будівництва... і натрапив на цей сайт. Тут маю сказати ВЕЛИКЕ "дякую за Ваш бізнес" організаторам і всім учасникам форуму!!! Ну і сподіваюсь, що щось з цієї теми буде також комусь корисним. Отже, на даному етапі маю від проектанта ескізний проект. 6 Посилання на коментар Поділитися на інших сайтах More sharing options...
Ната_ДнДз Опубліковано: 26 квітня 2016 Поділитись Опубліковано: 26 квітня 2016 Здравствуйте! С открытием Вашей ветки!И-удачи,конечно! Хотя как по-мне: "переконаний, що діти з нами жити не будуть, а отже немає необхідності в великій кількості спален, санвузлів і т.д." и 240 кв.м. не совсем сопоставимые вещи...Многовато будет... 4 Посилання на коментар Поділитися на інших сайтах More sharing options...
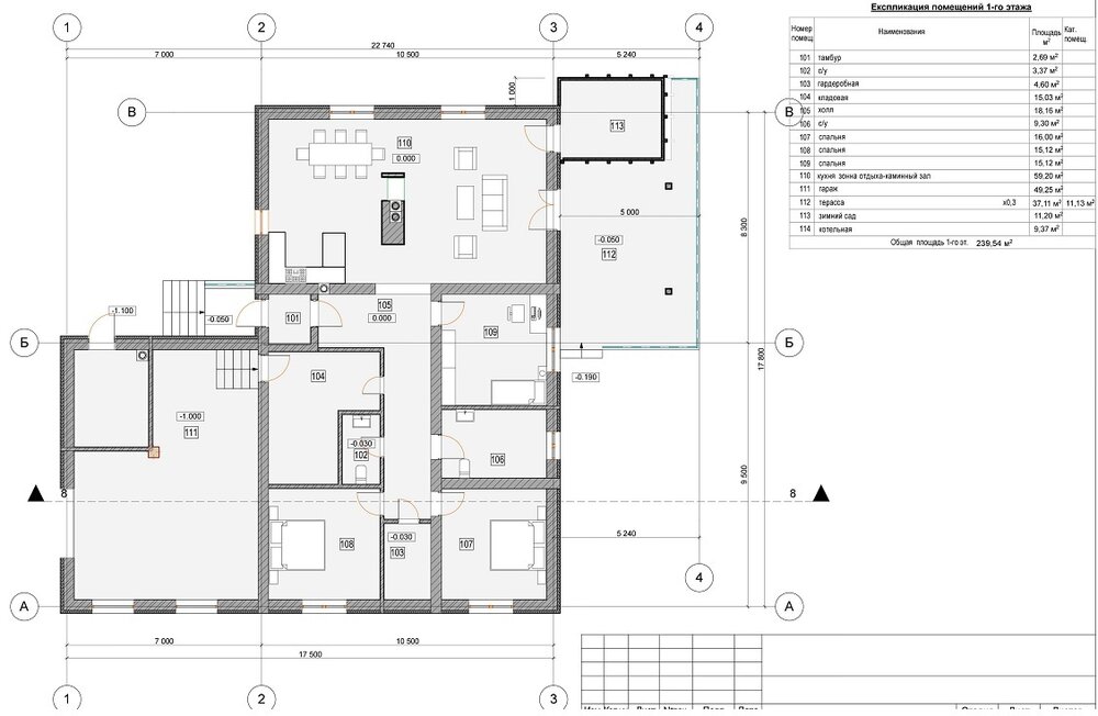
tick Опубліковано: 26 квітня 2016 Автор Поділитись Опубліковано: 26 квітня 2016 Дякую, ну може дещо й забагато, але там просто гараж 50м2 (не скільки для машини, скільки для різного мотлоху; горища зовсім немає) + терраса і зимовий сад включено. Реальна опалювальна площа десь біля 160м2. Також не зміг зменшити вітальню, а в остальному, як в анекдоті: меннньше не имелло смысла 1 Посилання на коментар Поділитися на інших сайтах More sharing options...
tick Опубліковано: 9 червня 2016 Автор Поділитись Опубліковано: 9 червня 2016 Вітаю! Почалось! Коротенький звіт за місяць. Поставив вагончика Поставив кілочки по кутах будинку Завів воду і електрику, поставив туалет Знайшов бригаду, трохи підрівняли участок і почали копати траншеї Траншеї викопали, арматуру пов'язали (фото завтра), завтра ллю! 1 Посилання на коментар Поділитися на інших сайтах More sharing options...
maktub Опубліковано: 9 червня 2016 Поділитись Опубліковано: 9 червня 2016 Гарний проект!Підпис) 1 Посилання на коментар Поділитися на інших сайтах More sharing options...
admn Опубліковано: 9 червня 2016 Поділитись Опубліковано: 9 червня 2016 Зачем так шифроваться? Фото не совсем удобно смотреть. 7 Посилання на коментар Поділитися на інших сайтах More sharing options...
tick Опубліковано: 11 червня 2016 Автор Поділитись Опубліковано: 11 червня 2016 Зачем так шифроваться? Фото не совсем удобно смотреть. Шифрування тут ні до чого. Я не маю дозволу сусідів на викладення в сіть фото їхніх приватних будинків. 5 Посилання на коментар Поділитися на інших сайтах More sharing options...
tick Опубліковано: 11 червня 2016 Автор Поділитись Опубліковано: 11 червня 2016 Залито 50м3 бетону . Вимушений був використати бетононасос, так як під'їзд до траншей є тільки з одного боку. Весь процесс зайняв 1.5 години. Потужна техніка! Через 3 години після заливки полив бетон водою, потім почалася злива. Якби така злива була до заливки, то наробила би біди з моїми траншеями. Мабуть тому ДБН і не передбачає лиття фундаменту в землю: дуже ризиковано. Ну і трохи фото. Посилання на коментар Поділитися на інших сайтах More sharing options...
murchik23 Опубліковано: 11 червня 2016 Поділитись Опубліковано: 11 червня 2016 Залито 50м3 бетону . Вимушений був використати бетононасос, так як під'їзд до траншей є тільки з одного боку. Весь процесс зайняв 1.5 години. Потужна техніка! Через 3 години після заливки полив бетон водою, потім почалася злива. Якби така злива була до заливки, то наробила би біди з моїми траншеями. Мабуть тому ДБН і не передбачає лиття фундаменту в землю: дуже ризиковано. Ну і трохи фото. Погода це не передбачена явище природи.мої траншеї так і поплили.так шо я вас вітаю залиттям. Посилання на коментар Поділитися на інших сайтах More sharing options...
eam Опубліковано: 11 червня 2016 Поділитись Опубліковано: 11 червня 2016 (змінено) Шифрування тут ні до чого. Я не маю дозволу сусідів на викладення в сіть фото їхніх приватних будинків. Внешний вид дома ну никак не является чем-то секретным, т.к. его может наблюдать любой прохожий. Я бы понял если бы там были люди замазаны, или номера машин, или интерьер, а вот фасад.... Не понимаю... ЗЫ. Гугл фото и аналоги вам в пример ;) Никакого разрешения никто и никогда не потребует на фото фасада. Змінено 11 червня 2016 користувачем eam 5 Посилання на коментар Поділитися на інших сайтах More sharing options...
sigma_shig Опубліковано: 11 червня 2016 Поділитись Опубліковано: 11 червня 2016 С почином! А какая глубина фундамента? По фоткам - очень глубоко. Я насчитал 6 труб - вводов. Зачем? Вода + канализация + электрика(?). А еще зачем? Посилання на коментар Поділитися на інших сайтах More sharing options...
tick Опубліковано: 11 червня 2016 Автор Поділитись Опубліковано: 11 червня 2016 Погода це не передбачена явище природи.мої траншеї так і поплили.так шо я вас вітаю залиттям. Дякую А що робили з траншеями, коли вони поплили? Просто мені страшно подумати, щоби така злива, як вчора у Києві пройшла на день раніше. Никакого разрешения никто и никогда не потребует на фото фасада. Тут справа не в формальному дозволі, а просто людині може бути неприємно, що хтось виклав у сіть фото його будинку крупним планом. Це ж мої сусіди Добавлено через 13 минут С почином! А какая глубина фундамента? По фоткам - очень глубоко. Я насчитал 6 труб - вводов. Зачем? Вода + канализация + электрика(?). А еще зачем? Дякую Ділянка з нахилом 55см по одній із осей на довжині будинку, тому глибина траншей різна: від 1.2м до 1.45м. Там навіть прийшлось робити уступ посередині, щоб не копати 1.8м. Бригада пропонувала дно траншеї також робити з нахилом, але я настояв на горизонтальному дні. Можна було робити похилими траншеї? В подальшому хочу поставити сонячні батареї і коллектор, але не на даху, а поряд з будинком на стійках. Тому оті гільзи, що під кутом - це для труб коллектора, поряд - для проводів сонячних батарей. Решта - каналізація, електрика в будинок і з нього. Вода пройде під фундаментом і гільза не закладалась. 1 Посилання на коментар Поділитися на інших сайтах More sharing options...
loader Опубліковано: 11 червня 2016 Поділитись Опубліковано: 11 червня 2016 Шифрування тут ні до чого. Я не маю дозволу сусідів на викладення в сіть фото їхніх приватних будинків. такого разрешения у гугла тоже нету например. не выдумуйте себе проблему оно и не требуется, т.к. вы фотографируете свой дом, а то что фасады соседей видимы с общих и часных територий то на то они и фасады. вы же не заглядуете специально за забор или в окно. но вобщемто конечно ваше право. 1 Посилання на коментар Поділитися на інших сайтах More sharing options...
tick Опубліковано: 23 червня 2016 Автор Поділитись Опубліковано: 23 червня 2016 Вітаю! Минулої суботи залив верхню частину фундаменту - 25м3. Витрати по фундаменту склали: Арматура, біля 2т 32000 Оренда техніки (крани,екскаватори,бетононасос,машини) 18500 Бетон, 75м3 74360 Дошка 10м3 26000 Інше 11584 Накладні 7780 Оплата робіт 60000 Всього 230224 2 Посилання на коментар Поділитися на інших сайтах More sharing options...
S1LENCE Опубліковано: 23 червня 2016 Поділитись Опубліковано: 23 червня 2016 Нормальний у Вас фундамент вийшов 1 Посилання на коментар Поділитися на інших сайтах More sharing options...
irina1969 Опубліковано: 23 червня 2016 Поділитись Опубліковано: 23 червня 2016 Шифрування тут ні до чого. Я не маю дозволу сусідів на викладення в сіть фото їхніх приватних будинків. Браво за відповідь ... наснаги до втілення мрії (й) 1 Посилання на коментар Поділитися на інших сайтах More sharing options...
admn Опубліковано: 23 червня 2016 Поділитись Опубліковано: 23 червня 2016 Вітаю! Минулої суботи залив верхню частину фундаменту - 25м3. Витрати по фундаменту склали: Арматура, біля 2т 32000 Оренда техніки (крани,екскаватори,бетононасос,машини) 18500 Бетон, 75м3 74360 Дошка 10м3 26000 Інше 11584 Накладні 7780 Оплата робіт 60000 Всього 230224 Спасибо за цифры. Не плохой старт. Почти 10 000 у.е. за фундамент. Фундамент конечно хороший, но это только начало затрат. Кстати, из чего строите дом? Вы уже делали предварительную смету стройки? Давайте больше фоток! Посилання на коментар Поділитися на інших сайтах More sharing options...
tick Опубліковано: 4 липня 2016 Автор Поділитись Опубліковано: 4 липня 2016 Спасибо за цифры. Не плохой старт. Почти 10 000 у.е. за фундамент. Фундамент конечно хороший, но это только начало затрат. Кстати, из чего строите дом? Вы уже делали предварительную смету стройки? Давайте больше фоток! Вибачаюсь за пізню відповідь, був без інтернету. Кошторис робив дуже приблизний по трьом етапам: фундамент, стіни, дах. тобто коробка. По фундаменту в плані було 210т.грн., по факту вийшло 230. Але це ще без фундаменту терраси, там ще 10м3 бетону, завтра ллю . Чого не передбачав в кошторисі, так це чорнового полу, думав робити його колись потім, а це буде наступний етап і ще 40м3 бетону + каналізація і інші комунікації. Якось так . Стіни - 380мм цегла 2НФ + 100мм мінвати + штукатурка. Взагалі, тим хто також мріє про невеликий одноповерховий будинок, варто врахувати, що фундамент не стає меншим (тобто дешевшим) від того, що у вас легкий будинок. Він все рівно буде на глибину промерзання і шириною згідно товщини стіни, як і для 2/3-х поверхових будинків. Але периметр фундаменту одноповерхового будинку буде в 2 рази більшим за периметр аналогічного по площі 2-поверхового, а отже - в 2 рази дорожчим. Така ж картина з дахом. Економія виходить на перекритті і сходах, але загалом гадаю, що 2-поверхова коробка вийде дешевше, ніж 1-поверхова. Посилання на коментар Поділитися на інших сайтах More sharing options...
S1LENCE Опубліковано: 5 липня 2016 Поділитись Опубліковано: 5 липня 2016 40м3 на чорнову стяжку??? Посилання на коментар Поділитися на інших сайтах More sharing options...
tick Опубліковано: 5 липня 2016 Автор Поділитись Опубліковано: 5 липня 2016 40м3 на чорнову стяжку??? По проекту стяжка 0.15м товщиною, армована 10-ю арматурою з кліткою 200мм. Загальна площа (разом з террасою 46м2) = біля 260м2. Посилання на коментар Поділитися на інших сайтах More sharing options...
S1LENCE Опубліковано: 5 липня 2016 Поділитись Опубліковано: 5 липня 2016 По проекту стяжка 0.15м товщиною, армована 10-ю арматурою з кліткою 200мм. Загальна площа (разом з террасою 46м2) = біля 260м2. так це плита, яка опирається на стрічку? Посилання на коментар Поділитися на інших сайтах More sharing options...
tick Опубліковано: 5 липня 2016 Автор Поділитись Опубліковано: 5 липня 2016 так це плита, яка опирається на стрічку? Ні, це плита по грунту. Посилання на коментар Поділитися на інших сайтах More sharing options...
S1LENCE Опубліковано: 5 липня 2016 Поділитись Опубліковано: 5 липня 2016 Ні, це плита по грунту. Це явний перебір. В чому сенс такої потужної плити? 3 Посилання на коментар Поділитися на інших сайтах More sharing options...
tick Опубліковано: 5 липня 2016 Автор Поділитись Опубліковано: 5 липня 2016 Це явний перебір. В чому сенс такої потужної плити? Точно не знаю, може тому, що внутрішні стіни, камін стоять на цій плиті. Яка товщина/армування буде достатньою? Ще є час поміняти . Посилання на коментар Поділитися на інших сайтах More sharing options...
tick Опубліковано: 5 липня 2016 Автор Поділитись Опубліковано: 5 липня 2016 Фото фундаменту без опалубки; дошка опалубки була закрита плівкою щоб використати в подальшому її на дах. Результат - поверхня бетону ніби полірована; не знаю, це добре чи не дуже . Ну і друге фото - потенційна проблема - тріщина поперек стрічки фундаменту. Товщина - павутина зверху, знизу цокольної частини сходить на ноль, але помітна зверху і з обох боків стрічки. Таких тріщин нарахував 5. Грішу на неправильний догляд за бетоном. Після заливки фундамент було вкрито плівкою. Протягом трьох днів стрічка зверху під плівкою була рясно вкрита водою, сама плівка зсередини вся була у каплях води і я вирішив, що цього досить. (До того ж прочитав в книзі, що при накриванні бетону плівкою поливати його непотрібно). Наскільки це погано? Посилання на коментар Поділитися на інших сайтах More sharing options...
Рекомендовані повідомлення
Створіть акаунт або увійдіть у нього для коментування
Ви маєте бути користувачем, щоб залишити коментар
Створити акаунт
Зареєструйтеся для отримання акаунта. Це просто!
Зареєструвати акаунтУвійти
Вже зареєстровані? Увійдіть тут.
Увійти зараз