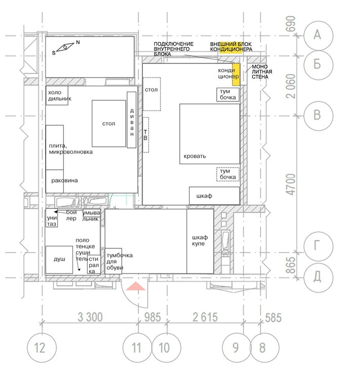
Аня767676 Опубліковано: 28 травня 2016 Поділитись Опубліковано: 28 травня 2016 Привет всем! Делаю ремонт в однокомнатной квартире в новострое, 23 этаж 25-этажного дома, дом монолитно-каркасный, окна и балкон выходят на северо-запад (см. планировку). Думаю, ставить ли кондиционер. Лично я к жаре спокойно отношусь, но в будущем квартира, возможно, будет под сдачу. Согласно правилам жилого комплекса, устанавливать внешний блок можно только там, где показано на схеме. Часть стены монолитная, ее штробить нельзя. Соответственно, внутренний блок будет подключаться не через задний выход,а боковой (см. схему). Выбираю между такими вариантами: 1. Не делать предустановку вообще, но подготовить кабель под кондиционер на высоте 20 см от потолка 2. Сделать розетку на высоте 20 см от потолка 3. Сделать розетку под кондиционером, если возникнет необходиомсть, то подключить кондиционер, и скрыть шнур в какой-нибудь короб. Буду благодарна за советы! Посилання на коментар Поділитися на інших сайтах More sharing options...
voltik.kiev.ua Опубліковано: 28 травня 2016 Поділитись Опубліковано: 28 травня 2016 1) внутренний блок ставится не в плотную в угол, а с отступом, иначе могут быть проблемы с карнизом и гардины "летают". 2) под планируемым внутренним блоком вмуровывается монтажная коробка в которую выводится "хвостик" кабеля 220 вольт. Эта коробка сверху штукатурится и заклеивается обоями. Когда вешается внутренний блок, "хвостик" достается и подключается во внутренний блок. Естественно, в щитке он должен быть на отдельном автомате. 1 Посилання на коментар Поділитися на інших сайтах More sharing options...
Музей Опубліковано: 28 травня 2016 Поділитись Опубліковано: 28 травня 2016 Привет всем! Делаю ремонт в однокомнатной квартире в новострое, 23 этаж 25-этажного дома, дом монолитно-каркасный, окна и балкон выходят на северо-запад (см. планировку). У меня тоже в высотке. Три окна на запад и три окна на север. Мы с кондиционерами и не жалеем об этом. В особо жаркие дни с кондеями комфортненне, чем без них., даже в помещениях выходящих на север. 1 Посилання на коментар Поділитися на інших сайтах More sharing options...
jokes Опубліковано: 1 червня 2016 Поділитись Опубліковано: 1 червня 2016 Не ставьте. Во-первых меньше проблем себе делаете. Во-вторых все знакомые кто ставил кондер в новостройках теперь признаются что поставили не думая, просто потому что "модно". По факту они включают его раз в вечность. В третьих через полгода использования любой кондер превращается в биологическую бомбу, пожалейте свое здоровье. У меня мансарда, 5 этаж, окна на юго-восток. Не ставил сразу и теперь уже даже не планирую. 1 Посилання на коментар Поділитися на інших сайтах More sharing options...
calimbo Опубліковано: 9 червня 2016 Поділитись Опубліковано: 9 червня 2016 Тоже не советую.Бесполезная дорогостоящая (читай энергоемкая) балалайка при отсутствии прямого нагрева стен от солнечных лучей. Моя квартира окнами ориентирована на северо-восток.Решил не ствавить. 1 Посилання на коментар Поділитися на інших сайтах More sharing options...
Аня767676 Опубліковано: 13 червня 2016 Автор Поділитись Опубліковано: 13 червня 2016 Не ставьте. Во-первых меньше проблем себе делаете. Во-вторых все знакомые кто ставил кондер в новостройках теперь признаются что поставили не думая, просто потому что "модно". По факту они включают его раз в вечность. В третьих через полгода использования любой кондер превращается в биологическую бомбу, пожалейте свое здоровье. У меня мансарда, 5 этаж, окна на юго-восток. Не ставил сразу и теперь уже даже не планирую. Спасибо за совет. А почему экологическая бомба? А если в машине кондер, то тоже? Посилання на коментар Поділитися на інших сайтах More sharing options...
захар 1977 Опубліковано: 13 червня 2016 Поділитись Опубліковано: 13 червня 2016 Спасибо за совет. А почему экологическая бомба? А если в машине кондер, то тоже? Напевно тому, що люблять дивитися СТБ. Щоб не було "бомби" його бажано чистити перед початком сезона. Знімається фільтр та миється, сам блок всередині бризгається спеціальним аерозолем і все гаразд. А ті які говорять не став переважно його ніколи і не мали. В мене стоїть і ніразу не пожалкував, що поставив, хоча і стіни метрові в старому польському будинку. Якщо надумаєте ставити то ставьте з функцією обігріву, в міжсезоння добре виручає щоб не запускати котел. 1 Посилання на коментар Поділитися на інших сайтах More sharing options...
Рекомендовані повідомлення
Створіть акаунт або увійдіть у нього для коментування
Ви маєте бути користувачем, щоб залишити коментар
Створити акаунт
Зареєструйтеся для отримання акаунта. Це просто!
Зареєструвати акаунтУвійти
Вже зареєстровані? Увійдіть тут.
Увійти зараз