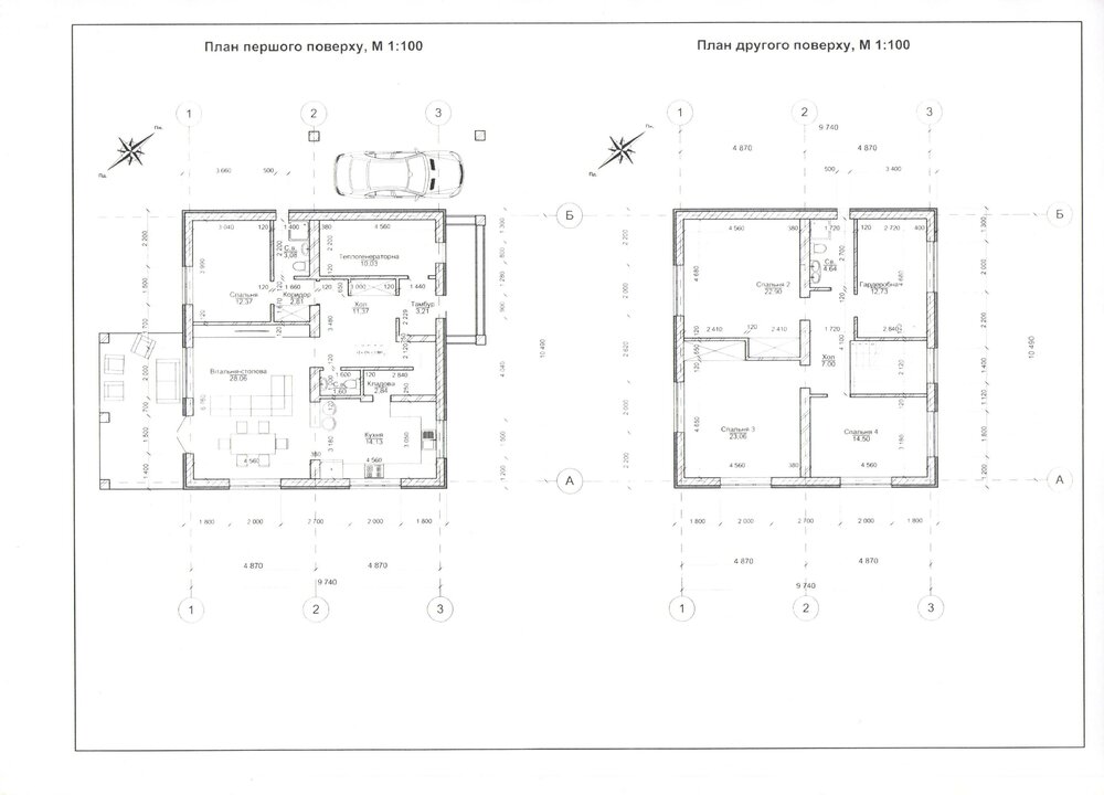
Simp Опубліковано: 29 серпня 2016 Поділитись Опубліковано: 29 серпня 2016 Добрый! Из проекта Zx12 я подогнал и переделал его под себя, упростил все что можно, получился вот такой вариант, возможно необходимо еще его как то покрутить.8 АР.pdf Посилання на коментар Поділитися на інших сайтах More sharing options...
Технология Строительства Опубліковано: 29 серпня 2016 Поділитись Опубліковано: 29 серпня 2016 Добрый! Из проекта Zx12 я подогнал и переделал его под себя, упростил все что можно, получился вот такой вариант, возможно необходимо еще его как то покрутить. Мне планировки понравились, пора разрабатывать архитектуру, конструктив, сети, стройпаспорт. Посилання на коментар Поділитися на інших сайтах More sharing options...
Simp Опубліковано: 29 серпня 2016 Автор Поділитись Опубліковано: 29 серпня 2016 (змінено) Мне планировки понравились, пора разрабатывать архитектуру, конструктив, сети, стройпаспорт. Что скажете по поводу лестницы у меня есть по ней сомнения предлагался еще другой вариант 2.6 на 2.1 и планировка там чуток другая, как из практики какой удобней будет пользоваться, свет холла понятно будет 2.8 на 2.8 посветлее. Да еще такой вопрос а что делать с окнами я так понимаю что желательно чтобы они дублировались с первым и вторым этажом были один над одним и в том же размере а то винегрет какой то получается. Змінено 29 серпня 2016 користувачем Simp Посилання на коментар Поділитися на інших сайтах More sharing options...
Simp Опубліковано: 29 серпня 2016 Автор Поділитись Опубліковано: 29 серпня 2016 Ну если нет критики и всем все нравится то может хотя бы отписались типо все классно молодец если Вы заметили то это 8 вариант вот подготовил еще вариант может все же поделитесь своим взглядом со стороны. Посилання на коментар Поділитися на інших сайтах More sharing options...
Музей Опубліковано: 29 серпня 2016 Поділитись Опубліковано: 29 серпня 2016 Крошечный домик в 2-х єтажах? У Вас маленький участок? На этом форуме, рассуждать о планировках без привязки к участку и информации о проживающих, давно стало признаком отсутствия опыта проживания в собственном доме. Посилання на коментар Поділитися на інших сайтах More sharing options...
Simp Опубліковано: 29 серпня 2016 Автор Поділитись Опубліковано: 29 серпня 2016 Крошечный домик в 2-х єтажах? У Вас маленький участок? На этом форуме, рассуждать о планировках без привязки к участку и информации о проживающих, давно стало признаком отсутствия опыта проживания в собственном доме. Да Вы правы опыт отсутствует проживаем в квартире, дом планируется на участке 9 соток + за ним будет добавлено 5 соток аренды под зеленую зону план щас добавлю. Проживать будет двое взрослых 3 детей дочка 14 лет и двойня ( м и д ) по 1 году дом без выступов почти квадратный, без балконов без доп. мостов холода, фундамент ушп, стены ГБ от 500 мм, крыша 4-скатная холодный чердак. 1 Посилання на коментар Поділитися на інших сайтах More sharing options...
Музей Опубліковано: 29 серпня 2016 Поділитись Опубліковано: 29 серпня 2016 На мой взгляд, планировка участка важнее планировок дома, .т.к жить Вы будете на участке. И чтобы не оказалось, что для навеса не хватает каких нить 0,5 метра, а для скважины есть место только возле соседского септика, планируйте дом в комплесе с прочими постройками, даже если обустраивать участок Вы будете несколько позже. На форуме многократно обсуждался вопрос одноэтажников. Поинтересуйтесь. С 3-мя детьми, Ваша жена пожалеет о решении в пользу двухэтажного дома уже на этапе заселения. А еще люди имеют привычку падать с лестницы. В результате, она с малышами переселится в ту комнатку на первом, а ВЫ будете наслаждаться полным вторым этажом. Оно Вам надо? У мну 20 х 50м. Дом 16х16. Одноэтажный. Добавлено через 2 минуты Очень важно учесть ориентацию по сторонам света, расположение соседских построек или других значительных объектов вблизи участка. Добавлено через 1 минуту Холодный чердак, газоблок - хороший выбор. конструкция фундамента будет зависеть от результатов геологии грунтов и определять это должен проектатнт, а не ВЫ. 2 Посилання на коментар Поділитися на інших сайтах More sharing options...
Simp Опубліковано: 29 серпня 2016 Автор Поділитись Опубліковано: 29 серпня 2016 На мой взгляд, планировка участка важнее планировок дома, .т.к жить Вы будете на участке. И чтобы не оказалось, что для навеса не хватает каких нить 0,5 метра, а для скважины есть место только возле соседского септика, планируйте дом в комплесе с прочими постройками, даже если обустраивать участок Вы будете несколько позже. На форуме многократно обсуждался вопрос одноэтажников. Поинтересуйтесь. С 3-мя детьми, Ваша жена пожалеет о решении в пользу двухэтажного дома уже на этапе заселения. А еще люди имеют привычку падать с лестницы. В результате, она с малышами переселится в ту комнатку на первом, а ВЫ будете наслаждаться полным вторым этажом. Оно Вам надо? У мну 20 х 50м. Дом 16х16. Одноэтажный. Добавлено через 2 минуты Очень важно учесть ориентацию по сторонам света, расположение соседских построек или других значительных объектов вблизи участка. Добавлено через 1 минуту Холодный чердак, газоблок - хороший выбор. конструкция фундамента будет зависеть от результатов геологии грунтов и определять это должен проектатнт, а не ВЫ. Да во многом Вы правы, с форумом я до воли долго дружу, а вот что касается строительства и изучением тем где онлайн идет стройки и обсуждения, начал следить с начала этого года несколько ведущих веток прочел полностью. На данный момент я работаю уже с архитектором, топо сьемку на днях ждем с, геологию тоже выполним, относительно сторон света данные у архитектора есть учитываем. Фундамент так же будет просчитан архитектором. Участок находится в интересном месте сосед только слева, с заду метров через 30 домик еще есть, с права деревья огородики природа и самое интересное это в переди там пойма реки Ирпень километра 2 вид на следующее село. Участок находится так сказать на возвышенности метров 5-6 от реки до самой реки 50 метров. Что касается одно или двухэтажного дома то перевес у нас выходит к 2 этажному, просто я пытался представить одноэтажный с 4 спальнями и его крышей и пятном застройки не то. 1 Посилання на коментар Поділитися на інших сайтах More sharing options...
vadimv Опубліковано: 30 серпня 2016 Поділитись Опубліковано: 30 серпня 2016 дом планируется на участке 9 соток + за ним будет добавлено 5 соток аренды под зеленую зонуАренда у гссударства нынче очень дорогая (у нас за 5 соток оно хочет 5000 грн в год). Проживать будет двое взрослых 3 детей дочка 14 лет и двойня ( м и д ) по 1 году Тогда определитесь, будете ли все проживать на 2-м этаже (в таком случае 4 спальни наверху и одна внизу) или наверху будут только дети (три спальни наверху и одна внизу). Посилання на коментар Поділитися на інших сайтах More sharing options...
Simp Опубліковано: 30 серпня 2016 Автор Поділитись Опубліковано: 30 серпня 2016 Аренда у гссударства нынче очень дорогая (у нас за 5 соток оно хочет 5000 грн в год). Тогда определитесь, будете ли все проживать на 2-м этаже (в таком случае 4 спальни наверху и одна внизу) или наверху будут только дети (три спальни наверху и одна внизу). По поводу аренды ориентировали на сумму поменьше тут ОСГ, возможно у Вас под за строй. А вот по поводу 3 или 4 спален на 2 этаже смущает то что задействовано будет только 2 спальни то есть пол этажа будет гулять а это не рационально. Посилання на коментар Поділитися на інших сайтах More sharing options...
vadimv Опубліковано: 30 серпня 2016 Поділитись Опубліковано: 30 серпня 2016 По поводу аренды ориентировали на сумму поменьше тут ОСГ, возможно у Вас под за строй.Тогда вопрос снимается, у меня действительно под застройку. А вот по поводу 3 или 4 спален на 2 этаже смущает то что задействовано будет только 2 спальни то есть пол этажа будет гулять а это не рационально.А как у вас получилось на 2-м этаже всего две спальни задействованных? Допустим, вы с женой на первом, тогда старшему ребенку 1 спальня, и двум младшим - еще по одной. Итого на 2-м этаже нужно 3 спальни. А если вы хотите вместе с детьми на 2-й этаж, то нужны 4 спальни (у вас есть такой вариант). Посилання на коментар Поділитися на інших сайтах More sharing options...
Simp Опубліковано: 30 серпня 2016 Автор Поділитись Опубліковано: 30 серпня 2016 Тогда вопрос снимается, у меня действительно под застройку. А как у вас получилось на 2-м этаже всего две спальни задействованных? Допустим, вы с женой на первом, тогда старшему ребенку 1 спальня, и двум младшим - еще по одной. Итого на 2-м этаже нужно 3 спальни. А если вы хотите вместе с детьми на 2-й этаж, то нужны 4 спальни (у вас есть такой вариант). Как раз я и хочу жить на 1 этаже меня на второй как то не тянет На 2 в одной спальни дочка старшая, во второй детвора в месте пока подростут в третей спальни будит типо игровая. Четвертое помещение пока под гардеробную выделил. На данный момент сильно смущает это две больших спальни по 23 квадратный метра. Посилання на коментар Поділитися на інших сайтах More sharing options...
ЧП Ненашев А Б Опубліковано: 30 серпня 2016 Поділитись Опубліковано: 30 серпня 2016 Да еще такой вопрос а что делать с окнами я так понимаю что желательно чтобы они дублировались с первым и вторым этажом были один над одним и в том же размере а то винегрет какой то получается. Гармоничнее смотрятся однотипные окна 1 и 2 этажа. И хочу поделиться своим впечатлением по входной двери. У Вас дверь в топочную и центральная входная в дом расположены рядом. Вам нужно будет ставить две одинаково красивые двери. А в топочную можно было бы ставить дверь попроще, если бы вход перенести на другой фасад. Подумайте над этим. 1 Посилання на коментар Поділитися на інших сайтах More sharing options...
Simp Опубліковано: 30 серпня 2016 Автор Поділитись Опубліковано: 30 серпня 2016 Гармоничнее смотрятся однотипные окна 1 и 2 этажа. И хочу поделиться своим впечатлением по входной двери. У Вас дверь в топочную и центральная входная в дом расположены рядом. Вам нужно будет ставить две одинаково красивые двери. А в топочную можно было бы ставить дверь попроще, если бы вход перенести на другой фасад. Подумайте над этим. Спасибо только заметил по рисунку что там возможно дверь - нет там точно окно открыл файл и четко видно окно 800 мм, дверь есть с тамбура в котельную, как вариант то я так и думал если будет ТТ котел то со стороны навеса под авто будет дверь, отдельно под котел с перегородкой, пока не решил будет ли он установлен. По поводу окон это я в курсе попросил вывести где возможно эту гармонию но к сожалению внутри так перекрутили что многое сместилось 1 Посилання на коментар Поділитися на інших сайтах More sharing options...
vadimv Опубліковано: 30 серпня 2016 Поділитись Опубліковано: 30 серпня 2016 (змінено) На 2 в одной спальни дочка старшая, во второй детвора в месте пока подростут в третей спальни будит типо игровая.Пока дом построите - они как раз и подрастут. :D ИМХО, хорошо, когда у каждого ребенка есть своя отдельная комната, лет этак с 3-4. ,На данный момент сильно смущает это две больших спальни по 23 квадратный метра.Так может первый этаж подсократить? Так ли уж там нужно 2 санузла, гостиная на 28 кв.м и кухня на 14? Змінено 30 серпня 2016 користувачем vadimv Посилання на коментар Поділитися на інших сайтах More sharing options...
Simp Опубліковано: 30 серпня 2016 Автор Поділитись Опубліковано: 30 серпня 2016 Пока дом построите - они как раз и подрастут. :D ИМХО, хорошо, когда у каждого ребенка есть своя отдельная комната, лет этак с 3-4. Так может первый этаж подсократить? Так ли уж там нужно 2 санузла, гостиная на 28 кв.м и кухня на 14? 1 этаж и так все ужал как только можно, гостиная-столовая не очень то и большая уже вышла от края дивана до стены где телик стоять будет 4 метра, за диваном столовый стол, ширины да немного есть лишней, кухня возможно чуток и можно уменьшить, туалет гостевой так сказать, да и место он мало занимает. Второй санузел чисто хозяйский под спальню. Посилання на коментар Поділитися на інших сайтах More sharing options...
Ter Опубліковано: 30 серпня 2016 Поділитись Опубліковано: 30 серпня 2016 Возможно, есть смысл поиграться с левой стороной и всунуть туда кластер из трех небольших комнат , при этом убрав лестницу (блин, вспоминаю недавнюю поездку на моря - на ступеньках этих забежных реально убиться можно - как по минному полю ходишь, заодно переиграв правую. По кухне-столовой - по ходу, срач будет и за тем маленьким столиком, и за большим, либо что-то не будет использоваться/простаивать. Возможно, есть смысл оставить только место под большой стол либо поставить кухонный уголок (6 человек влезают, а при желании и больше). 1 Посилання на коментар Поділитися на інших сайтах More sharing options...
Simp Опубліковано: 30 серпня 2016 Автор Поділитись Опубліковано: 30 серпня 2016 Возможно, есть смысл поиграться с левой стороной и всунуть туда кластер из трех небольших комнат , при этом убрав лестницу (блин, вспоминаю недавнюю поездку на моря - на ступеньках этих забежных реально убиться можно - как по минному полю ходишь, заодно переиграв правую. По кухне-столовой - по ходу, срач будет и за тем маленьким столиком, и за большим, либо что-то не будет использоваться/простаивать. Возможно, есть смысл оставить только место под большой стол либо поставить кухонный уголок (6 человек влезают, а при желании и больше). Продумывал и обговаривал такой вариант из 3 комнат в замен двум казарма получается какая то, а с другой стороны это не просто спальня у детей, это зона ихнего время провождения, кровать и стол для уроков, какие то игрульки и найдется чем полезным занять место. По кухне там есть типо барная стойка если в ней необходимость пока думаю, а стол большой переместил бы но некуда чтоб диван назад еще оттянуть. Посилання на коментар Поділитися на інших сайтах More sharing options...
Музей Опубліковано: 30 серпня 2016 Поділитись Опубліковано: 30 серпня 2016 Вам двухэтажность создаёт целый ряд проблем. Существует масса классных проектов для 4-х спален в 1 этаж. Я сторонник раздельных с.у, а для детей с.у просто должен быть раздельным: горшок с рукомойником и ванная комната. Добавлено через 8 минут Был у меня вариант плита у окна. Это ужасно. С плиты будет брызгать. Помыть снкинали это одно, а каждый раз мыть окно, это совсем другое "удовольствие". Мне очень нравятся проекты на американских сайтах. Очень продуманные планировки. Полистайте. В их проектах обязательно есть постирочная и отдельная зона для супругов (спальная, гардеробная, с.у). Полистайте. 1 Посилання на коментар Поділитися на інших сайтах More sharing options...
Simp Опубліковано: 30 серпня 2016 Автор Поділитись Опубліковано: 30 серпня 2016 Вам двухэтажность создаёт целый ряд проблем. Существует масса классных проектов для 4-х спален в 1 этаж. Я сторонник раздельных с.у, а для детей с.у просто должен быть раздельным: горшок с рукомойником и ванная комната. Добавлено через 8 минут Был у меня вариант плита у окна. Это ужасно. С плиты будет брызгать. Помыть снкинали это одно, а каждый раз мыть окно, это совсем другое "удовольствие". Мне очень нравятся проекты на американских сайтах. Очень продуманные планировки. Полистайте. В их проектах обязательно есть постирочная и отдельная зона для супругов (спальная, гардеробная, с.у). Полистайте. Да я прорисовал дом одноэтажный тоже квадратной формы он занял почти пол участка, и что мне ну очень не нравиться это крыши одноэтажек. Есть особенности при возведении фундамента, площади крыши, и самый главный перевес жена хочет 2 этажа С санузлом раздельного пользования Вы правы. По поводу плиты я также подымал вопрос, что лутьше переместить в какой то угол или просто сместить или окно убирать не хотелось бы. А можно пару ссылок на американский сайтик. Посилання на коментар Поділитися на інших сайтах More sharing options...
Simp Опубліковано: 31 серпня 2016 Автор Поділитись Опубліковано: 31 серпня 2016 Попробую впихнуть вариант одноэтажного дома. Думаю есть смыл создать новую тему. Посилання на коментар Поділитися на інших сайтах More sharing options...
Музей Опубліковано: 31 серпня 2016 Поділитись Опубліковано: 31 серпня 2016 А можно пару ссылок на американский сайтик. Уже три года, как я прошла этот тап. В закладках хранила интересные проекты. Теперь их нет. www.eplans.com/ 1 Посилання на коментар Поділитися на інших сайтах More sharing options...
vadimv Опубліковано: 31 серпня 2016 Поділитись Опубліковано: 31 серпня 2016 Попробую впихнуть вариант одноэтажного дома. Думаю есть смыл создать новую тему.Кроме двухэтажного и одноэтажного есть еще вариант неполного второго этажа: на первом примерно как у вас, а на втором всего пару комнат и санузел. Но лично я бы на вашем месте сделал два этажа - одну спальню на первом и три на втором. Одноэтажник с четырьмя спальнями - это сложно, а в три вы не поместитесь. 1 Посилання на коментар Поділитися на інших сайтах More sharing options...
Музей Опубліковано: 31 серпня 2016 Поділитись Опубліковано: 31 серпня 2016 Здесь на форуме кто-то выкладывал эту планировку. Посилання на коментар Поділитися на інших сайтах More sharing options...
Simp Опубліковано: 31 серпня 2016 Автор Поділитись Опубліковано: 31 серпня 2016 Но лично я бы на вашем месте сделал два этажа - одну спальню на первом и три на втором. Ну на данный момент у меня так и получается 4 помещение на 2 этаже это гардероб. Доработка по кухне вопрос с варочной поверхностью на против окна, барная стойка не пляшет и столовый стол может как то покрутить. А так пока все нравится 1 Посилання на коментар Поділитися на інших сайтах More sharing options...
Рекомендовані повідомлення
Створіть акаунт або увійдіть у нього для коментування
Ви маєте бути користувачем, щоб залишити коментар
Створити акаунт
Зареєструйтеся для отримання акаунта. Це просто!
Зареєструвати акаунтУвійти
Вже зареєстровані? Увійдіть тут.
Увійти зараз