Dimakiev Опубліковано: 9 травня 2020 Автор Поділитись Опубліковано: 9 травня 2020 Да. Лично видел мокрую стену в подвале и просевшую отмостку - подмыло от того что отечественный фитинг не герметично зажимал. И это ещё не худший вариант - бывает годами течь ищут... Пытался тоже самое у себя обнаружить с итальянскими фитингами - безуспешно... Но это дело такое - безумству храбрых поём мы песню... Вы сами сказали, не герметично зажимал. Не дожать можно любой фитинг, даже самый, самый дорогой в мире. Ведь побежал не фитинг сам от того что он бракован, а от того скорее всего что его не дожали когда монтировали. Посилання на коментар Поділитися на інших сайтах More sharing options...
Kubik Опубліковано: 9 травня 2020 Поділитись Опубліковано: 9 травня 2020 Это из серии, кто то, где то, когда то сказал у соседа и тд... Лично Вы встречали, что фитинг бежит Украинского производства ? Итальянский, Китайский или Украинский может побежать, и причин может быть масса, резинка зажата, не дожата гайка, труба не прошла плотно уплотнительные резинки и тд... Я встречал, лично, на вашем объекте, детали под торговой маркой "Спектр", текут. Правда они уже давно не украинские . Сейчас человек своими силами все переделывает. spektrplast.ru 2 Посилання на коментар Поділитися на інших сайтах More sharing options...
Dimakiev Опубліковано: 10 травня 2020 Автор Поділитись Опубліковано: 10 травня 2020 Я встречал, лично, на вашем объекте, детали под торговой маркой "Спектр", текут. Правда они уже давно не украинские . Сейчас человек своими силами все переделывает. spektrplast.ru Ну они Украинскими были, только до того периода пока не остались практически на другой территории, работали с ними пока не началась война ... Но прошло уже 6 лет, и поэтому за это время много других больших заводов открылось в Украине. Посилання на коментар Поділитися на інших сайтах More sharing options...
Kubik Опубліковано: 10 травня 2020 Поділитись Опубліковано: 10 травня 2020 Ну они Украинскими были, только до того периода пока не остались практически на другой территории, работали с ними пока не началась война ... Но прошло уже 6 лет, и поэтому за это время много других больших заводов открылось в Украине. Можно пример большого завода по производству цанговых фитингов, открывшегося в последнее время в Украине? Эта деталь с фото поставлена около двух лет назад, резина потекла, хорошо, что подошла от унидельты. Посилання на коментар Поділитися на інших сайтах More sharing options...
iks Опубліковано: 10 травня 2020 Поділитись Опубліковано: 10 травня 2020 (змінено) На самом деле, не понимаю, зачем городить такую конструкцию. Если у Вас городской водопровод, поставьте фильтр, за ним редуктор и подключите напрямую трубку. Зачем здесь еще емкость ??? Зачем редуктор, что бы заполнять емкость? Емкость, что боиться, давления в 3 Атм ? Редуктор давления нужен только для капельной трубки, что бы не сорвать ее с соединений, правильно работала, хотя сама трубка давление выдерживает в 3.5 Атм, вопрос только в сондинениях. Конечно на водопроводе, редуктор не нужен. Про самотек забудьте, с емкости 500л!!! Это изначально, большая ошибка и трата времени и денег. Городская вода стоит под 20 грн м3. Есть колодец из которого качать бесплатно. Колодец / насос / бочка. Бочка на высоте 2 метра очень мало. Из бочки качать тоже насосом. / Например самый простой """Насос для повышения давления Sprut GPD 15-9А (122122)""" """Насосная станция Optima OP-101 MINI MINI 0.12 кВт"" / Редуктор на 1 бар / капельная. Конечно на водопроводе, редуктор не нужен. как это не нужер? Говорили говорили и не надо. 1) водопровод города / редуктор / ПЭ трубка / трубка с эмитареми. 2) Бочка 250-500 литров на высоте от 2 метров. / фильтр / ПЭ трубка / трубка с эмитерами. Это цитата прошлая. я не вижу в варианте 2 с бочкой редуктора. Если бочка самотеком не продавит то выше я пишу о насосе. Может если с бочки качать насосом на огород надо редуктор или слабый насос на повышения давления который я привел в пример. 3) колодец / насос / редуктор / капельный. Система без бака. Змінено 10 травня 2020 користувачем iks Посилання на коментар Поділитися на інших сайтах More sharing options...
Dimakiev Опубліковано: 11 травня 2020 Автор Поділитись Опубліковано: 11 травня 2020 Городская вода стоит под 20 грн м3. Есть колодец из которого качать бесплатно. Колодец / насос / бочка. Бочка на высоте 2 метра очень мало. Из бочки качать тоже насосом. / Например самый простой """Насос для повышения давления Sprut GPD 15-9А (122122)""" """Насосная станция Optima OP-101 MINI MINI 0.12 кВт"" / Редуктор на 1 бар / капельная. как это не нужер? Говорили говорили и не надо. 1) водопровод города / редуктор / ПЭ трубка / трубка с эмитареми. Здесь редуктор нужен. 2) Бочка 250-500 литров на высоте от 2 метров. / фильтр / ПЭ трубка / трубка с эмитерами. В таком случае доп. насос, далее редуктор Это цитата прошлая. я не вижу в варианте 2 с бочкой редуктора. Если бочка самотеком не продавит то выше я пишу о насосе. Может если с бочки качать насосом на огород надо редуктор или слабый насос на повышения давления который я привел в пример. 3) колодец / насос / редуктор / капельный. Система без бака. Я бы пошел по пути, забыл про водопровод, забыл про емкость. Взял самый простой насос, для колодца, поставил редуктор и фильтр, и подключил капельный полив, самый простой и самый надежный вариант. И еще, это лента 1 Бар, трубка 1.8 Бар. 2 Посилання на коментар Поділитися на інших сайтах More sharing options...
Lyolik Опубліковано: 11 травня 2020 Поділитись Опубліковано: 11 травня 2020 В силу определенных причин, мне необходимо временно заглушить нескольк поливочных форсунок. Я всегда думал, что головки можно повернуть (написано же настройка 0-360)... но нет. Закрученная до упора форсунка все равно льет воду. Как правильно их заглушить? Форсунки у меня самые простые, вот такие: Спасибо Посилання на коментар Поділитися на інших сайтах More sharing options...
Vikctor Опубліковано: 12 травня 2020 Поділитись Опубліковано: 12 травня 2020 ... Как правильно их заглушить?... В хантеровском каталоге есть заглушки, вкручивающиеся на место форсунок. Дефицит походу. Мне продавец отгрузить не смог, хотя остальные редко покупаемые позиции отгрузил без проблем. Тоже сказал, что обычные форсунки можно до упора против часовой стрелки повернуть и литься не будет. Тоненькие струйки таки текут.. 1 Посилання на коментар Поділитися на інших сайтах More sharing options...
Dimakiev Опубліковано: 12 травня 2020 Автор Поділитись Опубліковано: 12 травня 2020 В силу определенных причин, мне необходимо временно заглушить нескольк поливочных форсунок. Я всегда думал, что головки можно повернуть (написано же настройка 0-360)... но нет. Закрученная до упора форсунка все равно льет воду. Как правильно их заглушить? Форсунки у меня самые простые, вот такие: Спасибо На сегодня выход пока один, обычная латунная заглушка с внутренней резьбой 3/8, выкручиваете форсунку и ставите заглушку. По другому ни как. Да все верно, в инструкции к форсунке, написано: Угол полива: 0° - 360°, но ни слова Хантер не пишет, что ее можно закрыть на 100%. Только про угол полива они упоминают. 1 Посилання на коментар Поділитися на інших сайтах More sharing options...
Lyolik Опубліковано: 12 травня 2020 Поділитись Опубліковано: 12 травня 2020 На сегодня выход пока один, обычная латунная заглушка с внутренней резьбой 3/8, выкручиваете форсунку и ставите заглушку. Да все верно, в инструкции к форсунке, написано: Угол полива: 0° - 360°, но ни слова Хантер не пишет, что ее можно закрыть на 100%. Спасибо. Я просто считал всегда, что 0° = заглушено Но реалии вносят свои коррективы. А если заглушку ставить, то прокладка будет нужна или смысла там в ней нет? Посилання на коментар Поділитися на інших сайтах More sharing options...
Dimakiev Опубліковано: 12 травня 2020 Автор Поділитись Опубліковано: 12 травня 2020 Спасибо. Я просто считал всегда, что 0° = заглушено Но реалии вносят свои коррективы. А если заглушку ставить, то прокладка будет нужна или смысла там в ней нет? Нет, фум ленты будет достаточно. 1 Посилання на коментар Поділитися на інших сайтах More sharing options...
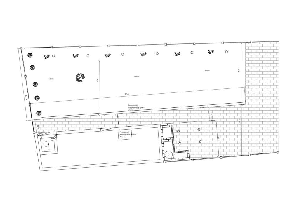
yusr Опубліковано: 15 травня 2020 Поділитись Опубліковано: 15 травня 2020 Добрый день. Можете подсказать по автоматическом поливу Hunter. Есть участок с газоном длина 15м ширина 4м. Хочу проложить магистраль трубой 25мм вдоль длинной стороны. Вопрос достаточно одной такой магистрали? Сколько и где нужно расположить выводы под дождеватели? Какие использовать дождеватили и форсунки .? Водопровод центральный. Посилання на коментар Поділитися на інших сайтах More sharing options...
Lyolik Опубліковано: 17 травня 2020 Поділитись Опубліковано: 17 травня 2020 На сегодня выход пока один, обычная латунная заглушка с внутренней резьбой 3/8, выкручиваете форсунку и ставите заглушку. Обычная латунная зуглушка 3/8 слетает с трубы Или я где-то ошибся или такая заглушка не подходит Посилання на коментар Поділитися на інших сайтах More sharing options...
Surtor Опубліковано: 17 травня 2020 Поділитись Опубліковано: 17 травня 2020 Вопрос, За счет чего достигается не замерзание воды в трубах для полива в холодное время года? Её на зиму сливают? Посилання на коментар Поділитися на інших сайтах More sharing options...
Narval Опубліковано: 17 травня 2020 Поділитись Опубліковано: 17 травня 2020 Вопрос, За счет чего достигается не замерзание воды в трубах для полива в холодное время года? Её на зиму сливают? Да сливают, еще и компрессором продувают. Посилання на коментар Поділитися на інших сайтах More sharing options...
Gitan Опубліковано: 18 травня 2020 Поділитись Опубліковано: 18 травня 2020 Вопрос по контроллеру X-core Hunter. У контроллера 3 программы: А, В, С Но если зон 8, то можно запрограммировать только три одинаковые программы дней полива и времени. Я правильно понял? Посилання на коментар Поділитися на інших сайтах More sharing options...
Antrate Опубліковано: 18 травня 2020 Поділитись Опубліковано: 18 травня 2020 Там вс' намного интересней. Я Вам сбрасівал ранее ссілку, там есть как настраивать по єтим программам. Посилання на коментар Поділитися на інших сайтах More sharing options...
Gitan Опубліковано: 18 травня 2020 Поділитись Опубліковано: 18 травня 2020 Там вс' намного интересней. Я Вам сбрасівал ранее ссілку, там есть как настраивать по єтим программам. Ссылку смотрел. Там коротко упоминается программирование нескольких включений на одну программу. Получается можно разное время включений из одной программы установить на каждую зону? Посилання на коментар Поділитися на інших сайтах More sharing options...
Dimakiev Опубліковано: 18 травня 2020 Автор Поділитись Опубліковано: 18 травня 2020 Обычная латунная зуглушка 3/8 слетает с трубы Или я где-то ошибся или такая заглушка не подходит А как она может слетать, если там резьба накручивается ? Варианта 2 всего: резьба накручивается или не накручивается. Добавлено через 5 минут Вопрос, За счет чего достигается не замерзание воды в трубах для полива в холодное время года? Её на зиму сливают? Полив необходимо ОБЯЗАТЕЛЬНО консервировать на зиму, при чем с использованием компрессора. Посилання на коментар Поділитися на інших сайтах More sharing options...
Gitan Опубліковано: 19 травня 2020 Поділитись Опубліковано: 19 травня 2020 ... Полив необходимо ОБЯЗАТЕЛЬНО консервировать на зиму, при чем с использованием компрессора. А можно подробнее? Подключается компрессор к системе и по зонам продувается? Какое давление компрессора надо? Посилання на коментар Поділитися на інших сайтах More sharing options...
Dimakiev Опубліковано: 20 травня 2020 Автор Поділитись Опубліковано: 20 травня 2020 А можно подробнее? Подключается компрессор к системе и по зонам продувается? Какое давление компрессора надо? Должен стоять продувочный кран, на трубе для полива, или на крайний случай через водяную розетку можно. Перекрываете кран подачи воды на полив. И каждую зону включаете последовательно минут на 5. Лично мы используем компрессор 8 атм, так как у нас это можно сказать в промышленных масштабах происходит. До достаточно будет и 4 атм. Но не надо пробовать автомобильным компрессором, я видел весной полив после консервации автомобильным компрессором 1 Посилання на коментар Поділитися на інших сайтах More sharing options...
Narval Опубліковано: 20 травня 2020 Поділитись Опубліковано: 20 травня 2020 Дуешь компрессором, сначала идет вода, затем пар, и когда оно пропадает, выключаешь, можно повторно дунуть 1 Посилання на коментар Поділитися на інших сайтах More sharing options...
mirohlebkr Опубліковано: 20 травня 2020 Поділитись Опубліковано: 20 травня 2020 Сколько может стоить проект автополива для этого участка? Там бочки 2шт по 1000л будут в конце участка в хвосте с лева. Тот хвост ниже уровня дома и двора на 4.5м. Вода со скважины с дебетом 30 кубов в сутки, давление воды выше 4 атм. Какие еще данные нужны для просчета списка всего необходимого? Посилання на коментар Поділитися на інших сайтах More sharing options...
Cossack Опубліковано: 21 травня 2020 Поділитись Опубліковано: 21 травня 2020 Но не надо пробовать автомобильным компрессором, я видел весной полив после консервации автомобильным компрессором а есть ли другие методы/способы консервации системы полива на зиму без продувки компрессором? Посилання на коментар Поділитися на інших сайтах More sharing options...
Vikctor Опубліковано: 21 травня 2020 Поділитись Опубліковано: 21 травня 2020 а есть ли другие методы/способы консервации системы полива на зиму без продувки компрессором? Оставить всё как есть. Если участок ровный или дождеватели в верхних точках без обратных клапанов, то с большой вероятностью вода после последнего полива и до морозов осталась только в трубах. Причём заполняет их не на всё сечение. С большой вероятностью они это переживут. Для верности можно установить сливной кран в приямке и сбросить излишнее давление перед морозами. У меня много лет насос зимует в приямке и ПНД труба торчит на полметра над землёй. Зимой в оттепель бывает мою авто присоединяя шланг именно к быстрому разъёму на конце этой трубы. Никаких проблем. Сейчас проложил отдельную ветку от приямка к парковке и вывел водорозетку. На зиму именно эту ветку сливать не собираюсь. Уверен, что траблов не предвидится. Я бы и остальные ветки не продувал, но у живущего рядом приятеля есть компрессор... 1 Посилання на коментар Поділитися на інших сайтах More sharing options...
Рекомендовані повідомлення
Створіть акаунт або увійдіть у нього для коментування
Ви маєте бути користувачем, щоб залишити коментар
Створити акаунт
Зареєструйтеся для отримання акаунта. Це просто!
Зареєструвати акаунтУвійти
Вже зареєстровані? Увійдіть тут.
Увійти зараз