Seymur Опубліковано: 29 серпня 2016 Поділитись Опубліковано: 29 серпня 2016 (змінено) Добрый день. Поджало время делать вентиляцию, срочно, а решение еще не принято. Помогите советом. Условия просты. Дом 60 кв.м. Из кухни и санузла каналы соединяются и дальше предполагается вытяжная труба 3 м. Вопрос в оптимальном диаметре трубы и присутствии вентилятора. Спасибо. Змінено 29 серпня 2016 користувачем Seymur Посилання на коментар Поділитися на інших сайтах More sharing options...
Seymur Опубліковано: 30 серпня 2016 Автор Поділитись Опубліковано: 30 серпня 2016 (змінено) А еще с удивлением увидел цены на вент. трубы от ВЕНТС-а. По сравнению с канализационными разница по цене в 3(три) раза. В чем прикол? Да, вижу что материал другой. Может токсичный какой-то? Так нет, в помещениях используются и противопоказаний нет. Ультрафиолет? Опять же, все закрыто теплоизоляцией и зонтик сверху. Плюс, на кан.трубы есть теплоизолирующие рукава, а на вент.трубы нет. Просветите, пжлст. Что мешает использовать канализационные трубы пусть не в приточной, как минимум в ВЫТЯЖНОЙ вентиляции? А даже если и в приточной: грунтовые теплообменники из канализационных труб, не из вентиляционных. Змінено 30 серпня 2016 користувачем Seymur Посилання на коментар Поділитися на інших сайтах More sharing options...
Romb Опубліковано: 30 серпня 2016 Поділитись Опубліковано: 30 серпня 2016 Добрый день. . Из кухни и санузла каналы соединяются и дальше предполагается вытяжная труба 3 м. Вопрос в оптимальном диаметре трубы и присутствии вентилятора. Спасибо. Кухня и санузел должны иметь отдельные трубы. Будет перетекание запахов.Иногда возможна и обратка ( при отсуствии клапана). На горшке дышать жареной картохой можно, а при жареньи картохи ... 100 -150 мм достаточно. Вентиляционщики против использования вентиляторов при небольших сечениях, а на практике ставят повсеместно. Канал. труба пойдет на ура . Имхо 1 Посилання на коментар Поділитися на інших сайтах More sharing options...
SON Опубліковано: 30 серпня 2016 Поділитись Опубліковано: 30 серпня 2016 Что мешает использовать канализационные трубы пусть не в приточной, как минимум в ВЫТЯЖНОЙ вентиляции? Каналы из пластиковых труб страдают конденсатом. Если хотите нормально, ставьте две АЦ трубы. На с/у хватит 100, на кухню при наличии газ. плиты 150 мм, дабы у газовщиков не возникало вопросов. Объединять с/у с кухней - озвучено выше. Про вентиляторы тут www.stroimdom.com.ua/forum/showthread.php?t=158125 1 Посилання на коментар Поділитися на інших сайтах More sharing options...
Seymur Опубліковано: 31 серпня 2016 Автор Поділитись Опубліковано: 31 серпня 2016 (змінено) Благодарю Romb. Благодарю SON. Ваши рекомендации оч-чень вовремя. Не получив ответы в первый же день, стал немного паниковать, ведь тема для меня просто горящая. Спасибо. Купил кан.трубы. Как бороться с конденсатом? Вернее с его последствиями. Может имеет смысл организовать некую емкость для его сбора. Как в холодильнике, пусть потом себе потихоньку испаряется. Впрочем, риск конденсата наиболее велик зимой. А зимой влажность воздуха в доме около 40 %. Спасет? У меня перекрытия деревянные, зашитые пластиковыми панелями. Поэтому, чтобы обеспечить вентиляцию и надпотолочного пространства тоже, вход в венттрубы будет еще выше. И именно поэтому вентрешетки кухни и с/у выходят в единый, смежный с надпотолочным пространством, объем. А оттуда воздух будет уходить в две параллельные вытяжные трубы по 110мм. Такова первоначальная концепция. Понимаю возможную проблему с запахами. Попробую. Не получится, переделаю по классике. Благо, там все легкодоступно. Газплита - это стратегический объект на случай отсутствия электричества. Пользуюсь только для жарки, что случается достаточно редко. Летом готовим в СВЧ, а зимой в печи. Поэтому полезное сечение вентрешеток буду регулировать так, чтобы основной поток вытяжного воздуха шел через санузел, поскольку, кроме уже озвученных опасений, две стены там обшиты имитацией под брус. Змінено 31 серпня 2016 користувачем Seymur Посилання на коментар Поділитися на інших сайтах More sharing options...
SON Опубліковано: 31 серпня 2016 Поділитись Опубліковано: 31 серпня 2016 ... чтобы обеспечить вентиляцию и надпотолочного пространства тоже, Лишнее. Нэма там шо вентилировать. И именно поэтому вентрешетки кухни и с/у выходят в единый, смежный с надпотолочным пространством, объем. Если не поздно, то исправляйте. Посилання на коментар Поділитися на інших сайтах More sharing options...
Seymur Опубліковано: 31 серпня 2016 Автор Поділитись Опубліковано: 31 серпня 2016 Если не поздно, то исправляйте. Ок. Буду исправлять, там все достаточно технологично. Еще раз, благодарю. Посилання на коментар Поділитися на інших сайтах More sharing options...
SON Опубліковано: 31 серпня 2016 Поділитись Опубліковано: 31 серпня 2016 Ок. Буду исправлять, там все достаточно технологично. ХЗ, не видел, спорить не стану. Кухню с с/у по вентиляции на крайняк можно объединять когда в с/у только душ/ванная. Посилання на коментар Поділитися на інших сайтах More sharing options...
Seymur Опубліковано: 2 вересня 2016 Автор Поділитись Опубліковано: 2 вересня 2016 ХЗ, не видел, спорить не стану. Кухню с с/у по вентиляции на крайняк можно объединять когда в с/у только душ/ванная. Нет, с/у совмещенный. Посилання на коментар Поділитися на інших сайтах More sharing options...
SON Опубліковано: 2 вересня 2016 Поділитись Опубліковано: 2 вересня 2016 Нет, с/у совмещенный. Дайте хоть какие-нить эскизы/чертежи сего безобразия. Мож чего умного/полезного ляпну. В смысле направлю на путь истинный. Посилання на коментар Поділитися на інших сайтах More sharing options...
Seymur Опубліковано: 5 вересня 2016 Автор Поділитись Опубліковано: 5 вересня 2016 (змінено) Дайте хоть какие-нить эскизы/чертежи сего безобразия. Мож чего умного/полезного ляпну. В смысле направлю на путь истинный. На счет пути истинного это я завсегда. Вот накрапАл в Пейнте по-быстрому. Крепление потолка и вагонки условно: воздух за ними проходит свободно. Вагонка до пола не доходит, там зазор 15 см. Потолок не герметичен, это пластиковые панели свободно лежащие на уголках - микрощелей для вентиляции там предостаточно. Хоть Вы и говорите, что там нечего вентилировать, мой опыт показывает: везде где воздух стоИт накапливается влага. Быстро ли, медленно ли его движение, но воздух не должен застаиваться. Наблюдения. До сих пор (два года) жил с дырой в перекрытии, которая выполняла роль вентиляции. Каких-то "экологических катастроф" не наблюдалось. Безусловно, после общения с белым другом бывет запах. Но, дальше С/У он не распространяется и в короткий промежуток времени, субъективно 2-3 мин., пропадает. Поэтому и утвердился в мысли, что для улучшения вентиляции достаточно будет просто добавить вент.трубы. Змінено 5 вересня 2016 користувачем Seymur Посилання на коментар Поділитися на інших сайтах More sharing options...
profeMaster Опубліковано: 5 вересня 2016 Поділитись Опубліковано: 5 вересня 2016 На с/у хватит 100, на кухню при наличии газ. плиты 150 мм А оттуда воздух будет уходить в две параллельные вытяжные трубы по 110мм если 150 мм взяли, то такую же и на выход поставить нужно, иначе сечение уменьшаете, а это не нужно. И 125 мм на с/у лучше, чем 100 Посилання на коментар Поділитися на інших сайтах More sharing options...
MCPetrov Опубліковано: 11 листопада 2016 Поділитись Опубліковано: 11 листопада 2016 Добрый день, всем! Тоже нуждаюсь в помощи по вентиляции. "Покурил" пару веток с форума, но так и не нашел решения проблемы. Вкратце у меня такая тема: Дом разделен на две половины. В двух половинах независимые дымоходы и вентиляционные отверстия. Дымоходы и вентиляция размещены по две стороны конька. В одной половине размещен твердотопливный котел. И когда его разжигают, то ко мне, через вентиляцию, затягивает дым с его дымохода. И если дома не открыть окна, то дым стелется по комнате (особенно тянет из под лестницы, хотя как туда попадает дым из вентиляции ума не приложу, не может же быть столько дырок в стене где есть вентиляция, чтоб дым пробивался в комнату). В общем в доме образуется обратная тяга. На улице видно, что дым от дымохода с другой половины не поднимается вверх, а стелется по крыше, и почему-то идет именно на мою половину, практически всегда. А дым от моего камина, который расположен на моей половине, и на моей стороне от конька, поднимается вверх и не попадает в вытяжку. А от той половины, от котла, всегда идет во все стороны, по крыше. И попадает ко мне в вытяжку. Дома приходится открывать окна, поскольку можно просто задохнуться. Такая тема происходит каждый день, как только разжигается котел, и может длиться от двух до четырех часов. Сейчас температура от 0С до +8С. И постоянно такая ерунда выходит. Хоть бери и затыкай вентиляционные каналы. Вот и пытаюсь решить эту проблему с вентиляцией, чтоб ко мне не попадал дым, в мою вентиляцию. Кстати, вентилятор в вент-канале никак не помогает. Только если дома открыть окна, но тогда приходится мерзнуть. Буру рад всем, кто даст дельные советы по такой проблеме! Посилання на коментар Поділитися на інших сайтах More sharing options...
SON Опубліковано: 12 листопада 2016 Поділитись Опубліковано: 12 листопада 2016 В двух половинах независимые дымоходы и вентиляционные отверстия. Притока ессно нет, как и у всех. :D И попадает ко мне в вытяжку. Вот и пытаюсь решить эту проблему с вентиляцией, чтоб ко мне не попадал дым, в мою вентиляцию. Рисуйте или фоткайте свои дым/вентканалы, бум лечить. Посилання на коментар Поділитися на інших сайтах More sharing options...
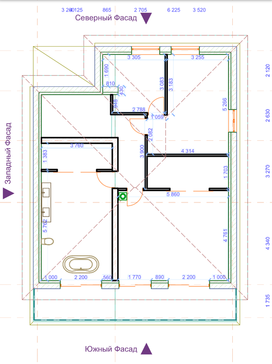
Олег 1981 Опубліковано: 13 листопада 2016 Поділитись Опубліковано: 13 листопада 2016 Доброго времени суток! Уважаемые специалисты прошу Вашей помощи! Дом когда строили вентканалы не заложили, строители решили что через стены попробивают отверствия ((. Сейчас хочу заложить каналы из труб для естественной вентиляции, но каких диаметров и можно ли свести все каналы в один выход? Дом двухэтажный на первом кухня объединённая с гостиной площадь 60 кв.м и санузел 12 кв.м. На втором три комнаты и санузел 24 кв.м Посилання на коментар Поділитися на інших сайтах More sharing options...
SON Опубліковано: 14 листопада 2016 Поділитись Опубліковано: 14 листопада 2016 Поэтажные планы со спецификацией помещений есть? Посилання на коментар Поділитися на інших сайтах More sharing options...
Олег 1981 Опубліковано: 14 листопада 2016 Поділитись Опубліковано: 14 листопада 2016 Поетажные есть Посилання на коментар Поділитися на інших сайтах More sharing options...
Олег 1981 Опубліковано: 14 листопада 2016 Поділитись Опубліковано: 14 листопада 2016 А спецификации нет ((. Второй этаж Посилання на коментар Поділитися на інших сайтах More sharing options...
SON Опубліковано: 14 листопада 2016 Поділитись Опубліковано: 14 листопада 2016 Котел (газ. ТТ), дымоход, топочная? Вечерком поточкую. Посилання на коментар Поділитися на інших сайтах More sharing options...
Олег 1981 Опубліковано: 14 листопада 2016 Поділитись Опубліковано: 14 листопада 2016 Дымоход на плане и на фото уже проложен это от камина, рядом не заложен проем в стене это для вентканала оставил. Котёл газовый с закрытой камерой сгорания планирую устанавливать на кухне и сверлить стену. Добавлено через 3 минуты И ещё на крыше выход сделан рядом с дымоходом камина, но там места максимум на один канал диаметром 260 и то если не перегораживать от дымохода Посилання на коментар Поділитися на інших сайтах More sharing options...
SON Опубліковано: 14 листопада 2016 Поділитись Опубліковано: 14 листопада 2016 каналы из труб для естественной вентиляции, но каких диаметров и можно ли свести все каналы в один выход? В оставленную нишу закладывайте две АЦ трубы Ф125 мм. На одну трубу посадите кухню, на вторую посадите два с/у. Если размер ниши позволит, то на кухню лучше заложить трубу Ф150 мм, чтоб у газовщиков в дальнейшем не возникало вопросов. Трубы в пределах стены заливаете раствором, выше перекрытия второго этажа утепляете. Вариант утепленной шахты на чердаке тож не исключается, при этом можно выйти двумя вентканалами и дымоходом через кровлю одним проходом. Любым доступным способом обеспечить приток в жилые помещения. Посилання на коментар Поділитися на інших сайтах More sharing options...
Олег 1981 Опубліковано: 15 листопада 2016 Поділитись Опубліковано: 15 листопада 2016 АЦ это асбестоцементные трубы? Если да то почему такие, я думал пластик вести. Если заложу на кухню 150, тогда через крышу пройдёт только одна труба, из с/у тогда в неё врезаться? И как мне на кухне сделать чтоб и естественная вентиляция была и принудительная над плитой работала ? Посилання на коментар Поділитися на інших сайтах More sharing options...
SON Опубліковано: 15 листопада 2016 Поділитись Опубліковано: 15 листопада 2016 (змінено) АЦ это асбестоцементные трубы? Да. Если да то почему такие, я думал пластик вести. www.stroimdom.com.ua/forum/showthread.php?t=97956 Если заложу на кухню 150, тогда через крышу пройдёт только одна труба, из с/у тогда в неё врезаться? Каналы должны быть обособленными, но вывести можно в одной шахте. И как мне на кухне сделать чтоб и естественная вентиляция была и принудительная над плитой работала ? Кухонный зонт - выхлоп на фасад через стену. У Вас с проходом дымохода через стропилку не все хорошо (очень плохо) в плане пожаробезопасности. Змінено 15 листопада 2016 користувачем SON Посилання на коментар Поділитися на інших сайтах More sharing options...
Олег 1981 Опубліковано: 15 листопада 2016 Поділитись Опубліковано: 15 листопада 2016 У Вас с проходом дымохода через стропилку не все хорошо (очень плохо) в плане пожаробезопасности По конкретнее пожалуйста и что нужно сделать чтоб исправить? Посилання на коментар Поділитися на інших сайтах More sharing options...
SON Опубліковано: 15 листопада 2016 Поділитись Опубліковано: 15 листопада 2016 Расстояние от огня/дыма в трубе до сгораемых конструкций: - 38 см до незащищенных - 25 см до защищенных Аргументы, что применен сэндвич не катят. Уже сгорел не один дом именно при таком проходе стропилки сэндвичем. 1 Посилання на коментар Поділитися на інших сайтах More sharing options...
Рекомендовані повідомлення
Створіть акаунт або увійдіть у нього для коментування
Ви маєте бути користувачем, щоб залишити коментар
Створити акаунт
Зареєструйтеся для отримання акаунта. Це просто!
Зареєструвати акаунтУвійти
Вже зареєстровані? Увійдіть тут.
Увійти зараз