Simp Опубліковано: 31 серпня 2016 Поділитись Опубліковано: 31 серпня 2016 Как разместить и какой формы должен быть одноэтажный дом на моем участке, с моими вводными? Дом планируется на участке 9 соток + за ним будет добавлено 5 соток аренды под зеленую зону. Проживать будет двое взрослых 3 детей дочка 14 лет и двойня ( м и д ) по 1 году. Посилання на коментар Поділитися на інших сайтах More sharing options...
baldegor Опубліковано: 31 серпня 2016 Поділитись Опубліковано: 31 серпня 2016 Как разместить и какой формы должен быть одноэтажный дом на моем участке, с моими вводными? Дом планируется на участке 9 соток + за ним будет добавлено 5 соток аренды под зеленую зону. Проживать будет двое взрослых 3 детей дочка 14 лет и двойня ( м и д ) по 1 году. Можно подробней о выделенном в цитате? Это как? Посилання на коментар Поділитися на інших сайтах More sharing options...
Simp Опубліковано: 31 серпня 2016 Автор Поділитись Опубліковано: 31 серпня 2016 Можно подробней о выделенном в цитате? Это как? В продолжении участка есть кусочек земли ничейный доступ к ниму только через мои 9 соток, вот этот кусок земли будет либо прихватезирован либо взят в аренду у Села, там ОСГ, газон, деревья, возможно барбекю без капитальных строений можно росположить. 1 Посилання на коментар Поділитися на інших сайтах More sharing options...
Simp Опубліковано: 3 вересня 2016 Автор Поділитись Опубліковано: 3 вересня 2016 Понравился этот проект своими размерами 14.6 на 13.1 крыша не высокая как у остальных с наклоном в 20 градусов, внутри немного поменять планировку, и что скажете если террасу вынести за пределы дома со своим навесом каким то? 1 Посилання на коментар Поділитися на інших сайтах More sharing options...
Музей Опубліковано: 4 вересня 2016 Поділитись Опубліковано: 4 вересня 2016 Понравился этот проект своими размерами 14.6 на 13.1 крыша не высокая как у остальных с наклоном в 20 градусов, внутри немного поменять планировку, и что скажете если террасу вынести за пределы дома со своим навесом каким то? Хорошо быть девушкой В розовом пальто. Можно и не в розовом Но, уже не то... Так и с этим проектом. Слегка поменять планировку... Террасу вынести... Это будет совсем другой проект. 2 Посилання на коментар Поділитися на інших сайтах More sharing options...
klubok Опубліковано: 5 вересня 2016 Поділитись Опубліковано: 5 вересня 2016 15 x 13 метров - это уже и не такой компактный дом. Площадь застройки - под 200 квадратов. Вы выбрали проект под три спальни, и в этом проекте уже видите много изменений. Значит Вам нужен другой проект. И в районе площади застройки под 200 квадратов есть выбор. Вам нужно смотреть дальше, на мой взгляд. На том же сайте откуда и этот проект - есть варианты. 1 Посилання на коментар Поділитися на інших сайтах More sharing options...
Simp Опубліковано: 5 вересня 2016 Автор Поділитись Опубліковано: 5 вересня 2016 15 x 13 метров - это уже и не такой компактный дом. Площадь застройки - под 200 квадратов. Вы выбрали проект под три спальни, и в этом проекте уже видите много изменений. Значит Вам нужен другой проект. И в районе площади застройки под 200 квадратов есть выбор. Вам нужно смотреть дальше, на мой взгляд. На том же сайте откуда и этот проект - есть варианты. Ну почему Z321 имеет 4 спальни, зеркально его надо развернуть, доработать гардеробную побольше, котельную, и подумать о хорошей террасе. Посилання на коментар Поділитися на інших сайтах More sharing options...
klubok Опубліковано: 5 вересня 2016 Поділитись Опубліковано: 5 вересня 2016 У Вас Три спальни и кабинет. Ну ОК, четыре спальни. Для чего Вам нужна топочная больше, чем в проекте? Каким размером она должна обладать? Например, для ТТ котла - возможно потребуется адаптация, в зависимости от выбранной мощности котла потребуется гильзовать трубу 180 в дымоходе, а может хватит 160. А если будет пеллетный ТТ котел, то какой размер бункера Вы поставите, и может быть даже после увеличения котельной места все равно не хватит. А разместить в котельной 4 м2 газовый котел - места хватит и электрокотел там же. Даже может и ТА поместится, среднего объема. За счет чего Вы видите увеличение котельной? Сделать меньше кухню? Увеличить площадь застройки дома? Если менять размеры дома, то - представьте сколько в готовом проекте нужно будет пересчитать, и это будет стоить доп денег. По стоимости такой готовый проект, с доработками может стоить как индивидуальный проект. Тоже самое с гардеробной. За счет чего ее сделать? Забрать часть кабинета? А как это повлияет на расположение окна в кабинете, как это повлияет на примыкающую к кабинету спальню? На мой взгляд терраса у этого дома соответствует его размерам, выглядит органично и ничего менять не стоит. На мой взгляд, у данного проекта основной недостаток - много места съедают коридоры. 1 Посилання на коментар Поділитися на інших сайтах More sharing options...
dmitriylaser Опубліковано: 5 вересня 2016 Поділитись Опубліковано: 5 вересня 2016 Этот хороший проект, продуманый и менять его сложно. Действительно увеличение котельной например вниз по картинке- влечет за собой изменение облика фасада и не в лучшую сторону. Основной недостаток этого проекта- нет ярко выраженой направленности дома по сторонам света. Если принять за оптимальное размещение- спальни на восток, хозпомещения на север, гостинная и терасса на юг, кабине+ванная на запад, то попробуйте развернуть его на своем участке. Кстати я так понимаю что на картинке участка север вверху? Сразу думайте что еще и где будет на територии (гараж, навес, септик, беседка, баня, хозблок, дет. площадка и т.д.). Нарисуйте план схему -обсудим, а потом и за дом можно браться... 1 Посилання на коментар Поділитися на інших сайтах More sharing options...
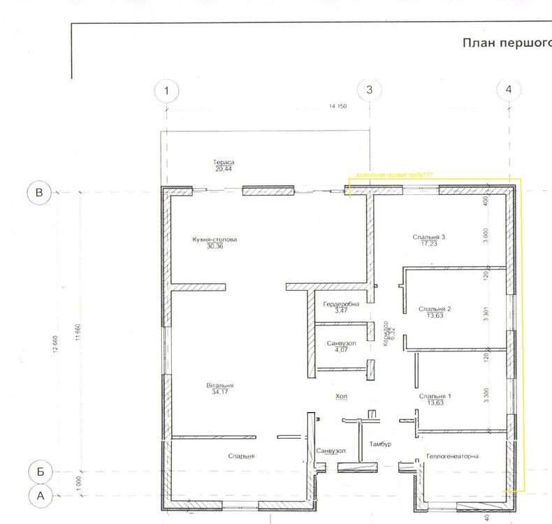
Simp Опубліковано: 5 вересня 2016 Автор Поділитись Опубліковано: 5 вересня 2016 У Вас Три спальни и кабинет. Ну ОК, четыре спальни. Для чего Вам нужна топочная больше, чем в проекте? Каким размером она должна обладать? Например, для ТТ котла - возможно потребуется адаптация, в зависимости от выбранной мощности котла потребуется гильзовать трубу 180 в дымоходе, а может хватит 160. А если будет пеллетный ТТ котел, то какой размер бункера Вы поставите, и может быть даже после увеличения котельной места все равно не хватит. А разместить в котельной 4 м2 газовый котел - места хватит и электрокотел там же. Даже может и ТА поместится, среднего объема. За счет чего Вы видите увеличение котельной? Сделать меньше кухню? Увеличить площадь застройки дома? Если менять размеры дома, то - представьте сколько в готовом проекте нужно будет пересчитать, и это будет стоить доп денег. По стоимости такой готовый проект, с доработками может стоить как индивидуальный проект. Тоже самое с гардеробной. За счет чего ее сделать? Забрать часть кабинета? А как это повлияет на расположение окна в кабинете, как это повлияет на примыкающую к кабинету спальню? На мой взгляд терраса у этого дома соответствует его размерам, выглядит органично и ничего менять не стоит. На мой взгляд, у данного проекта основной недостаток - много места съедают коридоры. Котельную планировал 8-10 квадратов возможно это и ошибочно но поставить туда планируется ТН ему понадобится буфер. емкость, солнечный коллектор, электро котел, возможно ТТ для него будет перегородка сразу же и отдельный вход еще не определился, стиральная и сушильная, система фильтрации воды, насосное оборудование скорей всего в приямке в скважине. Гардероб обязательно нужен 5 человек будет проживать. Да согласен если если начать перемещении террасы то вид теряется но как по мне щас она для нас маловата. Добавлено через 6 минут Этот хороший проект, продуманый и менять его сложно. Действительно увеличение котельной например вниз по картинке- влечет за собой изменение облика фасада и не в лучшую сторону. Основной недостаток этого проекта- нет ярко выраженой направленности дома по сторонам света. Если принять за оптимальное размещение- спальни на восток, хозпомещения на север, гостинная и терасса на юг, кабине+ванная на запад, то попробуйте развернуть его на своем участке. Кстати я так понимаю что на картинке участка север вверху? Сразу думайте что еще и где будет на територии (гараж, навес, септик, беседка, баня, хозблок, дет. площадка и т.д.). Нарисуйте план схему -обсудим, а потом и за дом можно браться... Да все правильно говорите по сторонам света Север вверху, по поводу территории плотно не продумывал еще. К сожалению участок не большой вот и планировал с моделировать оптимальный для нас план дома и посадить его на участок. Посилання на коментар Поділитися на інших сайтах More sharing options...
klubok Опубліковано: 6 вересня 2016 Поділитись Опубліковано: 6 вересня 2016 Котельную планировал 8-10 квадратов возможно это и ошибочно но поставить туда планируется ТН ему понадобится буфер. емкость, солнечный коллектор, электро котел, возможно ТТ для него будет перегородка сразу же и отдельный вход еще не определился, стиральная и сушильная, система фильтрации воды, насосное оборудование скорей всего в приямке в скважине. Гардероб обязательно нужен 5 человек будет проживать. Да согласен если если начать перемещении террасы то вид теряется но как по мне щас она для нас маловата. М-да уж. А на сколько глубоко вы изучали тему по ТН? Если на уровне том, что ТН отапливают дома "на шару из воздуха-воды-земля греет с КПД 300%", и у Вас нет времени разбираться с этой технологией - осмелюсь рекомендовать забыть про ТН. На мой взгляд, это просто зарытые деньги, которые никогда не принесут Вам экономического эффекта. Но если Вы уже изучили все аспекты ТН, и эти аспекты учитывая стоимость Вас не пугают и ТН Вам нужен, - то выбирайте модель, и вы увидите сколько места Вам нужно в котельной под блоки ТН, нужно ли копать скважины или как закапывать на участке надцать сот метров трубы. Буферная емкость в 1000 л займет у вас по площади уже 1 м2. А буферная емкость нужна не только для ТН, но и для ТТ, и для электрокотла ,если экономить на топке дома используя ночной тариф за электричество. Также, Вы наверное уже в курсе, чтобы подключить ТТ, ТН, Электрокотел, солнечные темы к буферной емкости, - нужен очень не простой ТА, а может даже и не один. ТТ Котел - бывают разные, если пеллетный - то нужно место под бункер. ТТ котел нужно ставить так, чтобы от передней стенки (загрузочной) свободного расстояния должно быть 1 -1.2 метра, плюс вокруг ТТ должно быть место, чтобы его обслуживать. Плюс солнечные коллекторы, плюс электрокотел (ну он места много не занимает). Сколько Вам обойдется подключение газа и света на участок? Просто возникает вопрос - зачем столько источников тепла? Плюс их все нужно будет увязать между собой, плюс автоматика, плюс ИБП, плюс аккумуляторы.... На мой взгляд, сумма денежных средств на установку ТН и Солнечных коллекторов со всей обвязкой, позволят Вам эти деньги альтернативно использовать в качестве оплаты за отопление только газом на пару десятков лет. А что будет с установленным ТН через это время, - это еще вопрос. Система фильтрации воды разная бывает, и места по-разному занимает. Насос под систему отопления и подогрев воды много места не занимает под площадь дома, что у Вас на картинке. Ну и делать постирочную в топочной - это утопия 100%, если в топочной живет ТТ котел. Поправьте меня если я ошибаюсь, но мне кажется у Вас пока "каша" в голове. 3 Посилання на коментар Поділитися на інших сайтах More sharing options...
Simp Опубліковано: 6 вересня 2016 Автор Поділитись Опубліковано: 6 вересня 2016 М-да уж. А на сколько глубоко вы изучали тему по ТН? Если на уровне том, что ТН отапливают дома "на шару из воздуха-воды-земля греет с КПД 300%", и у Вас нет времени разбираться с этой технологией - осмелюсь рекомендовать забыть про ТН. На мой взгляд, это просто зарытые деньги, которые никогда не принесут Вам экономического эффекта. Но если Вы уже изучили все аспекты ТН, и эти аспекты учитывая стоимость Вас не пугают и ТН Вам нужен, - то выбирайте модель, и вы увидите сколько места Вам нужно в котельной под блоки ТН, нужно ли копать скважины или как закапывать на участке надцать сот метров трубы. Буферная емкость в 1000 л займет у вас по площади уже 1 м2. А буферная емкость нужна не только для ТН, но и для ТТ, и для электрокотла ,если экономить на топке дома используя ночной тариф за электричество. Также, Вы наверное уже в курсе, чтобы подключить ТТ, ТН, Электрокотел, солнечные темы к буферной емкости, - нужен очень не простой ТА, а может даже и не один. ТТ Котел - бывают разные, если пеллетный - то нужно место под бункер. ТТ котел нужно ставить так, чтобы от передней стенки (загрузочной) свободного расстояния должно быть 1 -1.2 метра, плюс вокруг ТТ должно быть место, чтобы его обслуживать. Плюс солнечные коллекторы, плюс электрокотел (ну он места много не занимает). Сколько Вам обойдется подключение газа и света на участок? Просто возникает вопрос - зачем столько источников тепла? Плюс их все нужно будет увязать между собой, плюс автоматика, плюс ИБП, плюс аккумуляторы.... На мой взгляд, сумма денежных средств на установку ТН и Солнечных коллекторов со всей обвязкой, позволят Вам эти деньги альтернативно использовать в качестве оплаты за отопление только газом на пару десятков лет. А что будет с установленным ТН через это время, - это еще вопрос. Система фильтрации воды разная бывает, и места по-разному занимает. Насос под систему отопления и подогрев воды много места не занимает под площадь дома, что у Вас на картинке. Ну и делать постирочную в топочной - это утопия 100%, если в топочной живет ТТ котел. Поправьте меня если я ошибаюсь, но мне кажется у Вас пока "каша" в голове. Был вопрос зачем такая большая топочная Вы сами пол страницы написали. ТТ котел под вопросом и если он будет яж написал что он будет в отдельном помещении с отдельным входом но честно жить с ним как то в топочной не очень хочется, по ТН если Вы заметили подпись мою то занимаясь бурением скважин и выполняя бурение под зонды, все наружные работы принесут мне большое удовольствие при выполнении. Что касается самого ТН есть спецы есть реальные объекты, не все так страшно как о нем пишут, электрокател для подстраховки, свет стандартное подключение, газ так же но еще не узнавал возможно его и не будем подключать. Ну про размеры системы фильтрации к счастью так же имею представление с 2000 года ею занимаюсь , буду обезательно стараться изготовить скважину с водой не требуемой системы фильтрации. С по стирочной если там не будет ТТ и есть место по чему б и нет, там постоянно избыток температуры зимой быстро будет просыхать опять же место надо побольше. Каша как без нее но услышать по больше мнений и критики "каша" по немного подъедается и становиться по светлее Посилання на коментар Поділитися на інших сайтах More sharing options...
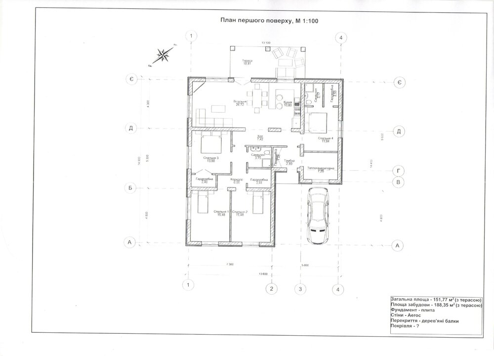
Simp Опубліковано: 11 вересня 2016 Автор Поділитись Опубліковано: 11 вересня 2016 Попробовали еще пару планировок одноэтажника, если у них право на жизнь? Посилання на коментар Поділитися на інших сайтах More sharing options...
dmitriylaser Опубліковано: 12 вересня 2016 Поділитись Опубліковано: 12 вересня 2016 если у них право на жизнь? Вот перерисовал Ваши варианты под свое виденье. 1 Посилання на коментар Поділитися на інших сайтах More sharing options...
Simp Опубліковано: 12 вересня 2016 Автор Поділитись Опубліковано: 12 вересня 2016 Вот перерисовал Ваши варианты под свое виденье. Чуток интересней вышло. Посилання на коментар Поділитися на інших сайтах More sharing options...
seyvalter Опубліковано: 13 вересня 2016 Поділитись Опубліковано: 13 вересня 2016 от чого не терплю - так це порушення зонування будинку. Аксіома для мене - вхідна група - обслуговуючі приміщення (кухня, санвузол, гардероб, топкова), - а у глибині будинку - спальні + вітальня. Беремо звичайну логістику - прийшов з роботи - треба роздягнутись (має бути тамбур + гардероб), далі - закинути продукти у холодильни (кухня), помити руки і полегшити душу (сан.вузол) - і лише тоді - вітальня (де проводиться вечір) - і лиш тоді - спальня. Плюс приміщення повинні бути максимально звязані не лише функціонально - але і комунікативно - щоб не тягати воду і каналізацію з одного кутка будинку на інший і не мурувати героїчно 5 коминів. Моя Вам порада - зверніться до профі. архітектора який за 2-3 тисячі зробить Вам хочаб продуманий ескіз (з урахуванням Ваших побажань звичайно). 3 Посилання на коментар Поділитися на інших сайтах More sharing options...
Simp Опубліковано: 13 вересня 2016 Автор Поділитись Опубліковано: 13 вересня 2016 от чого не терплю - так це порушення зонування будинку. Аксіома для мене - вхідна група - обслуговуючі приміщення (кухня, санвузол, гардероб, топкова), - а у глибині будинку - спальні + вітальня. Беремо звичайну логістику - прийшов з роботи - треба роздягнутись (має бути тамбур + гардероб), далі - закинути продукти у холодильни (кухня), помити руки і полегшити душу (сан.вузол) - і лише тоді - вітальня (де проводиться вечір) - і лиш тоді - спальня. Плюс приміщення повинні бути максимально звязані не лише функціонально - але і комунікативно - щоб не тягати воду і каналізацію з одного кутка будинку на інший і не мурувати героїчно 5 коминів. Моя Вам порада - зверніться до профі. архітектора який за 2-3 тисячі зробить Вам хочаб продуманий ескіз (з урахуванням Ваших побажань звичайно). Как раз эти эскизы и делаем вместе архитектор, с моими пожеланиями но видать я не до конца или не правильно объясняю вот и получаются такие планы Посилання на коментар Поділитися на інших сайтах More sharing options...
seyvalter Опубліковано: 13 вересня 2016 Поділитись Опубліковано: 13 вересня 2016 пічалька. ну нічого. у моїй парактиці бувало і по 16 варіантів планування доки шва доходили. Дерзайте - бо є що. Посилання на коментар Поділитися на інших сайтах More sharing options...
mastervovik Опубліковано: 13 вересня 2016 Поділитись Опубліковано: 13 вересня 2016 Беремо звичайну логістику - прийшов з роботи - треба роздягнутись (має бути тамбур + гардероб), далі - закинути продукти у холодильни (кухня), помити руки і полегшити душу (сан.вузол) - і лише тоді - вітальня (де проводиться вечір) - і лиш тоді - спальня. Не согласен по сортиру и гостиной! Гостиная должна быть после прихожей или же в центре, зачем что бы гости ходили через весь дом (кухю и т.п.) в гостиную? А вот из гостиной должен быть быстрый доступ в любое помещение, на то она и гостиная. Сортир тоже центровать, с работы это хорошо но с работы ты приходишь раз в день а в туалет шлепать ночью через весь дом, или там из кухни - "не алё" ИМХО. 1 Посилання на коментар Поділитися на інших сайтах More sharing options...
Simp Опубліковано: 18 вересня 2016 Автор Поділитись Опубліковано: 18 вересня 2016 Хорошо быть девушкой В розовом пальто. Можно и не в розовом Но, уже не то... Так и с этим проектом. Слегка поменять планировку... Террасу вынести... Это будет совсем другой проект. А можно попросить Вас показать Ваш план дома, спасибо Посилання на коментар Поділитися на інших сайтах More sharing options...
Музей Опубліковано: 20 вересня 2016 Поділитись Опубліковано: 20 вересня 2016 (змінено) Участок 20х50м. Отступили от соседей справа и слева по 0,5 + массивные подпорные стенки, т.к. мы на склоне, и со стороны въезда отступили угол, т.к. там проходит газовая труба. По итогу, участок не более 9 соток. Почти как у Вас. Не так уж и мало места. Север вверху. С момента покупки участка до закладки фундамента 2 недели. Времени на раздумия было совсем мало. А сейчас бы сделала дом на 2 метра длиннее, чтобы котельная и кладовая были побольше . На участке есть навес 14х7 и ХБ 5х9. Змінено 20 вересня 2016 користувачем Музей 1 Посилання на коментар Поділитися на інших сайтах More sharing options...
Simp Опубліковано: 3 жовтня 2016 Автор Поділитись Опубліковано: 3 жовтня 2016 Поздравляю всех архитекторов с Всемирным днем архитектора 1 Посилання на коментар Поділитися на інших сайтах More sharing options...
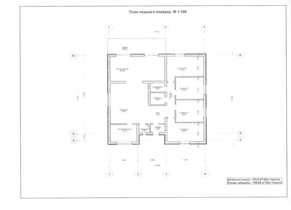
Simp Опубліковано: 5 жовтня 2016 Автор Поділитись Опубліковано: 5 жовтня 2016 Возможно такое будет размещение дома не мало места остается, размеры дома 15 на 13 м. Посилання на коментар Поділитися на інших сайтах More sharing options...
Studio Z500 Опубліковано: 6 жовтня 2016 Поділитись Опубліковано: 6 жовтня 2016 Как разместить и какой формы должен быть одноэтажный дом на моем участке, с моими вводными? Дом планируется на участке 9 соток + за ним будет добавлено 5 соток аренды под зеленую зону. Проживать будет двое взрослых 3 детей дочка 14 лет и двойня ( м и д ) по 1 году. Здравствуйте! Вы можете написать нам запрос на почту или в личные сообщения, и мы поможем вам подобрать проект по всем интересующим Вас параметрам. project@z500.biz 1 Посилання на коментар Поділитися на інших сайтах More sharing options...
Simp Опубліковано: 6 жовтня 2016 Автор Поділитись Опубліковано: 6 жовтня 2016 Здравствуйте! Вы можете написать нам запрос на почту или в личные сообщения, и мы поможем вам подобрать проект по всем интересующим Вас параметрам. project@z500.biz Да я и так тока на Вашем сайте сижу все проекты пересмотрел пока приглянулся вот этот проект: z500.com.ua/projekt/z204_bg.html Посилання на коментар Поділитися на інших сайтах More sharing options...
Рекомендовані повідомлення
Створіть акаунт або увійдіть у нього для коментування
Ви маєте бути користувачем, щоб залишити коментар
Створити акаунт
Зареєструйтеся для отримання акаунта. Це просто!
Зареєструвати акаунтУвійти
Вже зареєстровані? Увійдіть тут.
Увійти зараз