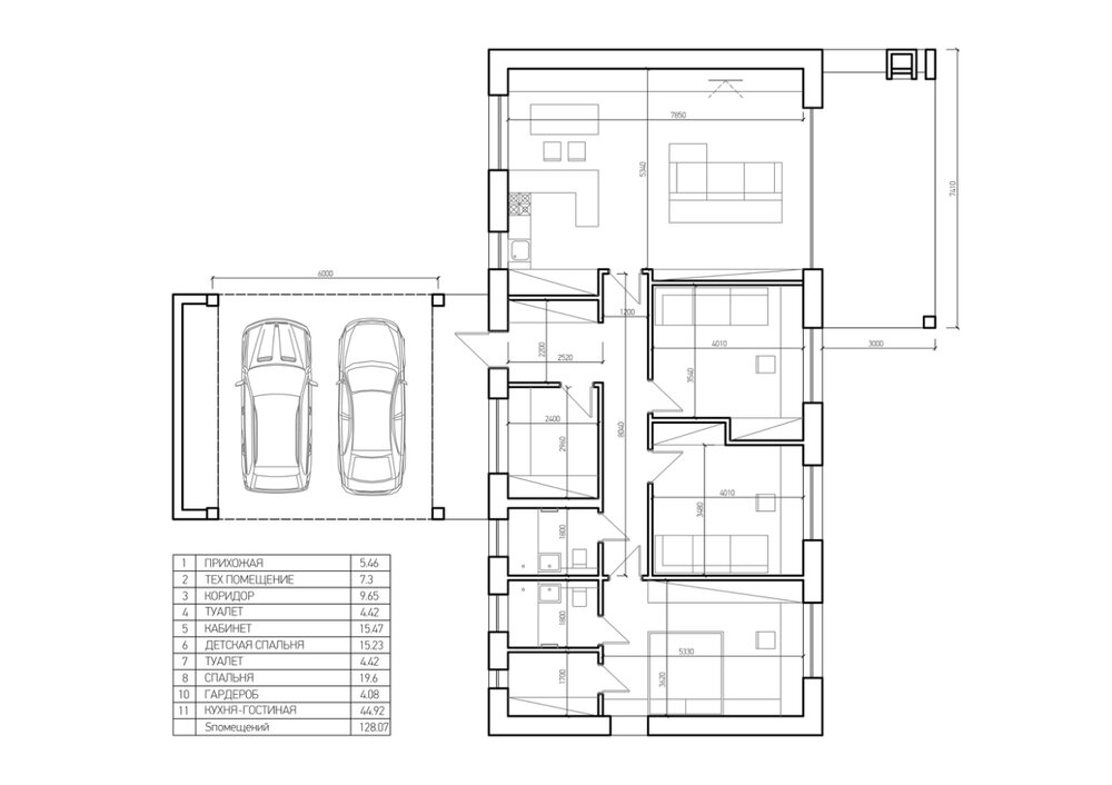
Lessy Опубліковано: 20 листопада 2016 Поділитись Опубліковано: 20 листопада 2016 Добрый вечер! Думали, рисовали и получился вот такой вот проект одноэтажного дома(во вложеном файле) Участок 10 соток, размером приблизительно 30 на 33 метра. Въезд на участок с южной стороны. Есть ограничения по участку : самая высокая часть участка это юго-западная. То есть оптимально дом размещать в этой части. Дом предполагается для постоянного проживания 2-х взрослых и 1-2 детей. Для себя определили что хотим 3 спальни в доме и хотели разместить их на востоке, но возможно одну из спален разместить и на западе. В итоге вышел дом - вагон. Крутили - крутили проект, но осталось пока что так как есть. Посоветуйте, что можно придумать с проектом, чтобы как-то уменьшить коридор, который сейчас образовался. И возможно есть какие-то замечания от тех кто уже построился и может указать на явные ошибки. По поводу южного фасада, понимаю что там не оптимальное остекление и тд, но поворачивать туда зону гостиной не хотелось, так как в той стороне дорога. Спасибо за критику и советы!) Посилання на коментар Поділитися на інших сайтах More sharing options...
yriy1 Опубліковано: 20 листопада 2016 Поділитись Опубліковано: 20 листопада 2016 1-2 детей. Детей мало Посилання на коментар Поділитися на інших сайтах More sharing options...
Lessy Опубліковано: 20 листопада 2016 Автор Поділитись Опубліковано: 20 листопада 2016 Детей мало Ну один точно есть уже скажем так)) а дальше как пойдёт... И ещё забыла уточнить что площадь не более 130. А если меньше выйдет, то вообще прекрасно будет. Но комнаты не должны быть мелкими. Как-то так. Посилання на коментар Поділитися на інших сайтах More sharing options...
yriy1 Опубліковано: 20 листопада 2016 Поділитись Опубліковано: 20 листопада 2016 По левой стороне 5 комнат Не пойму назначения Посилання на коментар Поділитися на інших сайтах More sharing options...
Lessy Опубліковано: 20 листопада 2016 Автор Поділитись Опубліковано: 20 листопада 2016 По левой стороне 5 комнат Не пойму назначения Снизу вверх : гардероб, санузел в спальне, общий санузел, топочная-кладовая, тамбур-прихожая Посилання на коментар Поділитися на інших сайтах More sharing options...
apxitektop.s Опубліковано: 20 листопада 2016 Поділитись Опубліковано: 20 листопада 2016 Посоветуйте, что можно придумать с проектом, чтобы как-то уменьшить коридор, который сейчас образовался. И возможно есть какие-то замечания от тех кто уже построился и может указать на явные ошибки. По поводу южного фасада, понимаю что там не оптимальное остекление и тд, но поворачивать туда зону гостиной не хотелось, так как в той стороне дорога. длинный, узкий коридор в 1200 мм, не как в поезде, как вы писали выше, но конечно же не комильфо, в то же время, участок у вас позволяет сделать что то нормальное. Коридор, это зона , где встречаются и пересекаются все жители вашего дома, он действительно узкий и длинный. Тут тяжело посоветовать что то одно поменять, как по мне, вы знаете необходимый набор помещений, по поводу размещения относительно сторон света - а настолько ли важно это вам, касаемо всех 3х спален, неужели все члены вашей семьи ) хотят именно встречать солнце утром именно в своей спальне и всю жизнь об этом мечтали ? Ведь не всегда и не всем это кардинально важно. Просто советом что то поменять - тут тяжело, я бы поменял концепцию зонирования 2 Посилання на коментар Поділитися на інших сайтах More sharing options...
vadimv Опубліковано: 20 листопада 2016 Поділитись Опубліковано: 20 листопада 2016 По поводу южного фасада, понимаю что там не оптимальное остекление и тд, но поворачивать туда зону гостиной не хотелось, так как в той стороне дорога.ИМХО, место гостиной как раз с южной стороны и со стороны дороги. У вас это совпадает. Спальни можно разнести по разнам сторонам, например 1 - на восточную сторону, а 2 - на западную или наоборот. А с северной стороны сделать все технические и подсобные помещения. Посилання на коментар Поділитися на інших сайтах More sharing options...
Lessy Опубліковано: 20 листопада 2016 Автор Поділитись Опубліковано: 20 листопада 2016 длинный, узкий коридор в 1200 мм, не как в поезде, как вы писали выше, но конечно же не комильфо, в то же время, участок у вас позволяет сделать что то нормальное. Коридор, это зона , где встречаются и пересекаются все жители вашего дома, он действительно узкий и длинный. Тут тяжело посоветовать что то одно поменять, как по мне, вы знаете необходимый набор помещений, по поводу размещения относительно сторон света - а настолько ли важно это вам, касаемо всех 3х спален, неужели все члены вашей семьи ) хотят именно встречать солнце утром именно в своей спальне и всю жизнь об этом мечтали ? Ведь не всегда и не всем это кардинально важно. Просто советом что то поменять - тут тяжело, я бы поменял концепцию зонирования Одну спальню пробовали на запад, но не вышло нормально разместить санузлы и тех помещение. Концепцию тоже пробовали менять, но без коридора не вышло, так как хотим чтобы общая зона была отделена от спальной. То есть чтобы гостиная не была проходной. Поэтому и образовался этот коридор. Может есть какие-то способы убрать коридор и не делать гостиную проходной? Добавлено через 5 минут ИМХО, место гостиной как раз с южной стороны и со стороны дороги. У вас это совпадает. Спальни можно разнести по разнам сторонам, например 1 - на восточную сторону, а 2 - на западную или наоборот. А с северной стороны сделать все технические и подсобные помещения. С точки зрения теория я понимаю, что южная сторона больше всего подходит для террасы, но там парковка - машины, дорога мне как-то не очень уютно отдыхать на такой террасе. Да и вида на участок не будет ( а в забор смотреть не хочется. Поэтому и была выбрана восточная сторона. С неё вид на участок открыт и солнце есть.. Ну и немного с юга попадает на неё.. Но спасибо за совет!) 1 Посилання на коментар Поділитися на інших сайтах More sharing options...
Технология Строительства Опубліковано: 20 листопада 2016 Поділитись Опубліковано: 20 листопада 2016 Думали, рисовали и получился вот такой вот проект одноэтажного дома Извините, на барак похоже. Вы бы с/у для комнат поставили рядом, 1 с/у для спальни Ваш с мужем, другой для детей отдельно, если взрослые, или общий сделать 1. Коридор образовался длинный и шириной 1.2 м. Вопрос следующий, почему не хотите одноэтажный дом + мансарда? 3 Посилання на коментар Поділитися на інших сайтах More sharing options...
vadimv Опубліковано: 20 листопада 2016 Поділитись Опубліковано: 20 листопада 2016 С точки зрения теория я понимаю, что южная сторона больше всего подходит для террасы, но там парковка - машины, дорога мне как-то не очень уютно отдыхать на такой террасе. Да и вида на участок не будет ( а в забор смотреть не хочется. Поэтому и была выбрана восточная сторона. С неё вид на участок открыт и солнце есть.. Ну и немного с юга попадает на неё..Я не предлагаю делать террасу на юг, пусть будет на восток, как у вас нарисовано. Но саму гостиную лучше сделать с южной стороны дома. И в ней пару окон (или одно большое) на юг. Тогда у вас зимой и ранней весной будет солнце в самой посещаемой части дома, а это очень важно. То, что это окно будет на улицу - не критично. Надеюсь, хотя бы метров пять у вас до забора будет? А так, как нарисовано сейчас (всего лишь маленькое окно в спальне) - солнца будет не хватать. 2 Посилання на коментар Поділитися на інших сайтах More sharing options...
mib Опубліковано: 20 листопада 2016 Поділитись Опубліковано: 20 листопада 2016 Тогда у вас зимой и ранней весной будет солнце в самой посещаемой части дома Как раз в то время когда никого нет дома, дети на учебе родители на работе. пусть будет на восток Там ей и место, ведь она максимально востребована утром с чашкой кофе и солнышко еще радует и вечером, а к этому времени уже солнце ушло на северо\запад. У меня северо западная терраса там летом без штор нельзя, а сейчас там холодно и солнце уже не спасает Посилання на коментар Поділитися на інших сайтах More sharing options...
Andrei constructor Опубліковано: 21 листопада 2016 Поділитись Опубліковано: 21 листопада 2016 Дом предполагается для постоянного проживания 2-х взрослых и 1-2 детей. Для себя определили что хотим 3 спальни в доме и хотели разместить их на востоке, но возможно одну из спален разместить и на западе. В итоге вышел дом - вагон. одноэтажный дом площадью 133 м2 с нужным размещением 3-х спальных комнат, так решали проблему длинного и узкого коридора gidproekt.com/tipovoj-proekt-charli-odnoetazhnyj-dom-s-chetyrmya-komnatami.html 1 Посилання на коментар Поділитися на інших сайтах More sharing options...
Lessy Опубліковано: 21 листопада 2016 Автор Поділитись Опубліковано: 21 листопада 2016 Извините, на барак похоже. Вы бы с/у для комнат поставили рядом, 1 с/у для спальни Ваш с мужем, другой для детей отдельно, если взрослые, или общий сделать 1. Коридор образовался длинный и шириной 1.2 м. Вопрос следующий, почему не хотите одноэтажный дом + мансарда? Про мансарду думали и про 2 этажа, но как-то больше преимуществ нашли в одножтажном. Хотя сейчас всё выглядит не так радужно. Добавлено через 2 минуты Я не предлагаю делать террасу на юг, пусть будет на восток, как у вас нарисовано. Но саму гостиную лучше сделать с южной стороны дома. И в ней пару окон (или одно большое) на юг. Тогда у вас зимой и ранней весной будет солнце в самой посещаемой части дома, а это очень важно. То, что это окно будет на улицу - не критично. Надеюсь, хотя бы метров пять у вас до забора будет? А так, как нарисовано сейчас (всего лишь маленькое окно в спальне) - солнца будет не хватать. Если гостиная на юг, то кухня и столовая на парковку выходит. Не очень уютно. Это если координально ничего не менять а просто отобразить симметрично дом. И камин мангал перекроет южное солнце на террасе ( В общем надо крутить опять и всё заново.. Посилання на коментар Поділитися на інших сайтах More sharing options...
vadimv Опубліковано: 21 листопада 2016 Поділитись Опубліковано: 21 листопада 2016 одноэтажный дом площадью 133 м2 с нужным размещением 3-х спальных комнат, так решали проблему длинного и узкого коридора gidproekt.com/tipovoj-proekt-charli-odnoetazhnyj-dom-s-chetyrmya-komnatami.htmlЗдесь то, за что меня постоянно пинают ногами - двери детских выходят в гостиную.В общем надо крутить опять и всё заново.. А как вам такой вариант: 2 Посилання на коментар Поділитися на інших сайтах More sharing options...
Lessy Опубліковано: 21 листопада 2016 Автор Поділитись Опубліковано: 21 листопада 2016 одноэтажный дом площадью 133 м2 с нужным размещением 3-х спальных комнат, так решали проблему длинного и узкого коридора gidproekt.com/tipovoj-proekt-charli-odnoetazhnyj-dom-s-chetyrmya-komnatami.html Спасибо! Но в этом проекте тоже есть ряд недостатков, гостиная полупроходная и коридор по сути остался. Добавлено через 8 минут Здесь то, за что меня постоянно пинают ногами - двери детских выходят в гостиную. А как вам такой вариант: Тут почти все идеально) мы от этого проекта отталкивались и в этого вышел вагон. Но в этом проекте не хватает кладовка-гардеробной большой в доме. Топочная не справится с этой миссией. Дорисовывая к этому проекту то что хотелось (кладовку, с/у в родительскую спальню и большую топочную) и прменяв соответственно конфигурацию и вышел дом-вагон. Но с проектом вы угадали, это то что нравится. 1 Посилання на коментар Поділитися на інших сайтах More sharing options...
antonych Опубліковано: 23 листопада 2016 Поділитись Опубліковано: 23 листопада 2016 Мне кажется, недостаточно изолировано общее пространство от приватного, т.е. спален. Там будет много хождения по коридору. Посилання на коментар Поділитися на інших сайтах More sharing options...
Технология Строительства Опубліковано: 27 листопада 2016 Поділитись Опубліковано: 27 листопада 2016 Про мансарду думали и про 2 этажа, но как-то больше преимуществ нашли в одножтажном. Хотя сейчас всё выглядит не так радужно. Ну и какие там преимущества в Вашем варианте? Посилання на коментар Поділитися на інших сайтах More sharing options...
Рекомендовані повідомлення
Створіть акаунт або увійдіть у нього для коментування
Ви маєте бути користувачем, щоб залишити коментар
Створити акаунт
Зареєструйтеся для отримання акаунта. Це просто!
Зареєструвати акаунтУвійти
Вже зареєстровані? Увійдіть тут.
Увійти зараз