Linux Опубліковано: 8 травня 2017 Автор Поділитись Опубліковано: 8 травня 2017 Обновил план с учетом предложений и своего ИМХО. Решил что надо все таки достроить дом и там разместить тамбур и котельную. В котельную впихнуть все невпихуемое - котел, может в будущем два, щит електропроводки, коллектора тёплого пола, вентиляцию может, думаю пока хватит. Кстати где и какая будет мебель вообще нет понятия, как планировать розетки, в комнатах на кухне? Посилання на коментар Поділитися на інших сайтах More sharing options...
Тюня Опубліковано: 8 травня 2017 Поділитись Опубліковано: 8 травня 2017 Сори, но по вашим рисункам видно, что делает это непрофессионал Вам надо эту идею отдать нужным людям, чтобы довели до ума Посилання на коментар Поділитися на інших сайтах More sharing options...
Linux Опубліковано: 9 травня 2017 Автор Поділитись Опубліковано: 9 травня 2017 Я делаю это сам. И я даже в помине не знаю как это делать. Параллельно читаю о всем что будет строиться, учусь. Чертеж кривоват потому как ещё изучаю как чертить и что чертить. На днях перечерчу начисто с реальными размерами и толщинами, но перед этим хочу уже знать как и что будет, чтоб меньше потом перерисовывать. Вот по этому и спрашиваю может кто закритикует все это ). Отдать у нас в селе некому, если нанимать проектантов, тогда проще новый строить ИМХО. Что очень бы хотелось но не будет Почему так - к осени выселяют с съемной квартиры, с двумя детьми снова переезжать уже не охота и года уже не те, да и шмоток полно за собой таскать. Вот в срочном порядке надо сделать свой дом. Пришлась по душе и деньгам коробка, которую надо сделать жилой на 30% к осени. Само собой денег не густо, так как на этот год строек не планировал. Если совсем выходит лажа так и скажите Посилання на коментар Поділитися на інших сайтах More sharing options...
normal Опубліковано: 9 травня 2017 Поділитись Опубліковано: 9 травня 2017 Дымохода нет вообще, коробка накрытая и все Странно, на фотке торчит выход дымохода, вы же не планируете его переносить или менять крышу... коробка, которую надо сделать жилой на 30% к осени За лето без опыта, понимания и плана работ нереально ИМХО, только придумать какое-то временное решение как перезимовать: типа первым делом сделать черновое перекрытие - подбить пароизоляцию по потолку, а между балками 25 см. мин.ваты, затем например купить камин и пустить сендвич-трубу в этот дымоход, привезти большую кучу дров, поставить кровати возле камина и надеяться, что в санузле не замерзнет вода. Либо электрообогревателями вместо камина, а газовый проект и разводка отопления это не самая быстрая часть и которая не делается сразу по голой коробке На новом плане как-то вообще не в тему коридор с пятью дверями и в топочной двери должны быть на улицу, а не вовнутрь, без ТТ котла топочная не обязательна. Я например планирую газ котел на кухне и резервное камином, но сперва поменял окна и утеплил фасад (чтобы газовые трубы потом не перекидывать), да просто выбрать камин и подвод воздуха к нему это месяцы ушло на изучение тонкостей, а над планировкой думали все три наверное... Пока не придумаете как с детьми перезимовать, то все финансы в стройку не вкладывайте 1 Посилання на коментар Поділитися на інших сайтах More sharing options...
Тюня Опубліковано: 9 травня 2017 Поділитись Опубліковано: 9 травня 2017 Я делаю это сам. И я даже в помине не знаю как это делать. Хотелось бы Вам как то помочь, но могу только еще раз накидать идеи по планировке, а вы это нарисуете сами и посмотрите Опираясь на Ваш последний рисунок Убираем тамбур и все, что вы достроите делаем топочной, хозяйственной и постирочной комнатой, в одном помещении, чтобы не делать много маленьких и тесных каморок Вход делаем в коридоре по центру, да, тамбура не будет, и дверей будет там много, но будет лучше, чем сейчас В планировке спален - вернитесь к старому варианту, вы зачем то подвинули стены и уменьшили кладовку - верните то, что было, поставьте везде нормально кровати, лишнее окно в одной из спален убрать !!! уже писала По кухне - планировку надо изменить!! Где нормальный стол - вместо этого какой-то дизайнерский вариант (плохого дизайнера) И куча мебели зачем-то Пробуем кухню сформировать буквой П, в том числе под окном, а ближе к центральному проходу помещаем обычный нормальный прямоугольный стол для всей семьи, и так, чтобы к нему во всех сторон (хотяб с 3) можно было подойти Да, еще опять потерялась лестница, с этим надо поиграться - она должна вписаться в первой трети дома, может быть можно выстроить ее в объеме хозяйственной комнаты, и постирочную потом воткнуть под нее 1 Посилання на коментар Поділитися на інших сайтах More sharing options...
Linux Опубліковано: 9 травня 2017 Автор Поділитись Опубліковано: 9 травня 2017 Странно, на фотке торчит выход дымохода, вы же не планируете его переносить или менять крышу... Я сам его увидел на фото, но когда был под крышей забывал глянуть где он. Дымоход только сверху, бутафория Под крышей ничего нет, на другой фотке видно. За лето без опыта, понимания и плана работ нереально ИМХО, только придумать какое-то временное решение как перезимовать: типа первым делом сделать черновое перекрытие - подбить пароизоляцию по потолку, а между балками 25 см. мин.ваты, затем например купить камин и пустить сендвич-трубу в этот дымоход, привезти большую кучу дров, поставить кровати возле камина и надеяться, что в санузле не замерзнет вода. Либо электрообогревателями вместо камина, а газовый проект и разводка отопления это не самая быстрая часть и которая не делается сразу по голой коробке Где то так и будет. Пол будет водяной тёплый, сверху по бетону так и планирую селиться, только в одной комнате - кухня + гостинная, остальные комнаты будут даже не оштукатурены (успею оштукатурю). Топочные, туалеты ванны, тоже самое стяжка с тёплым полом. Проводка будет разведена магистральная полностью, розетки и другая мелочь только там где надо на первых порах. Потолок минвата и пароизоляция, только на кухне + гостинной будет потолок гипс и оштукатурены стены. Я понимаю что времени очень мало, может временныю квартиру найду, есть у нас со всеми удобствами сразу, дороговато но не надо будет тащить весь свой хлам, на пару месяцев потяну. Делать тоже не сам все буду что то сам, для чего то люди наймутся. Буду очень стараться Добавлено через 5 минут На новом плане как-то вообще не в тему коридор с пятью дверями и в топочной двери должны быть на улицу, а не вовнутрь, без ТТ котла топочная не обязательна В топочной будет не только газовый котёл, там будет коллектор тёплого пола, насос этого же пола, думаю над электрокотлом и трёхфазным подключением (может подскажите выгодно это или нет, при трёхзонном тарифе топить электро?) Добавлено через 2 минуты Убираем тамбур и все, что вы достроите делаем топочной, хозяйственной и постирочной комнатой, в одном помещении, чтобы не делать много маленьких и тесных каморок Вход делаем в коридоре по центру, да, тамбура не будет, и дверей будет там много, но будет лучше, чем сейчас Такой вариант я уже рисовал, подумал что тамбур будет главней, чтоб холода меньше поступало снаружи. Но сделать постирочную там идея понравилась. Добавлено через 2 минуты По кухне - планировку надо изменить!! Где нормальный стол - вместо этого какой-то дизайнерский вариант (плохого дизайнера) И куча мебели зачем-то Пробуем кухню сформировать буквой П, в том числе под окном, а ближе к центральному проходу помещаем обычный нормальный прямоугольный стол для всей семьи, и так, чтобы к нему во всех сторон (хотяб с 3) можно было подойти Сори, это я с самого начала поигрался моделями ( к реальности оно имеет очень мало общего. Пока не определился с стенами и дверями нет смысла ставить мебель. Вот так игрушки и остались до сих пор стоять. С дня на день сделаю с нуля реальный чертёж с прикидкой мебели. Добавлено через 3 минуты Да, еще опять потерялась лестница, с этим надо поиграться - она должна вписаться в первой трети дома, может быть можно выстроить ее в объеме хозяйственной комнаты, и постирочную потом воткнуть под нее Лестницу вы просмотрели, она между спальнями. Мансарда замораживается на неопределённое время Посилання на коментар Поділитися на інших сайтах More sharing options...
Тюня Опубліковано: 9 травня 2017 Поділитись Опубліковано: 9 травня 2017 Лестницу вы просмотрели, она между спальнями. Как-то не очень лестница в том месте Лучше ее увести из первой зоны - прихожая, топочная Посилання на коментар Поділитися на інших сайтах More sharing options...
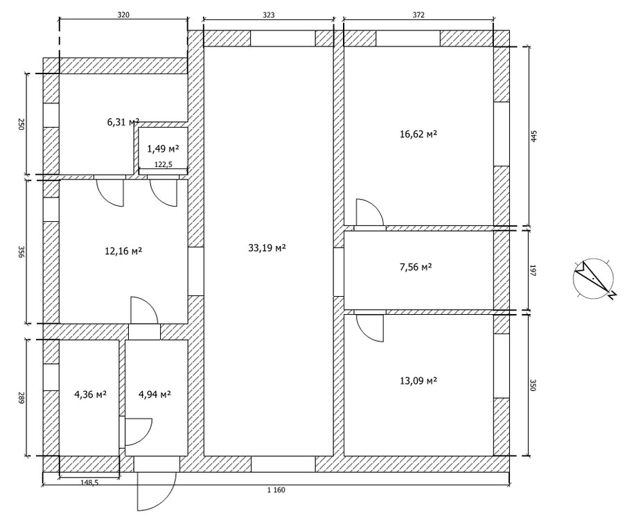
Linux Опубліковано: 14 липня 2017 Автор Поділитись Опубліковано: 14 липня 2017 Вот к чему пришел в конце концов Посилання на коментар Поділитися на інших сайтах More sharing options...
dushes86 Опубліковано: 16 липня 2017 Поділитись Опубліковано: 16 липня 2017 Вот к чему пришел в конце концов Почему бы Вам не рассмотреть СОВСЕМ другую планировку? Например, ту, что предлагала abelor. Ваша, может, и рабочая, но явно не самая удачная и уж точно не самая современная. Приоритетность тамбура - тема спорная, как по мне. Его беда в том, что у многих он имеет свойство превращаться в хламосборник - оно Вам надо?мой совет - вход в дом не с угла, а в окно вашей гостинной на плане, как предлагалось выше. И не в тамбурочек, а в просторный холл. 2 Посилання на коментар Поділитися на інших сайтах More sharing options...
Linux Опубліковано: 16 липня 2017 Автор Поділитись Опубліковано: 16 липня 2017 Беда в том что дом уже построен. Стены капитальные, перемещать как вздумается не выйдет, вернее будет очень затратно. Это как компромисс между то что есть, то что надо и то что надо быстро. В тамбуре надеюсь будет чисто там планируется только раззутся и легкая вешалка для повседневной одежды. А вот в прихожей та что дальше думаю заложить окно и на всю ширину установить встроенный шкаф. Смущает, не будет темно там очень? Свет искусственный понятно что будет днем включен. Насколько это будет правильным? Может окно оставить? Посилання на коментар Поділитися на інших сайтах More sharing options...
Музей Опубліковано: 18 липня 2017 Поділитись Опубліковано: 18 липня 2017 Беда в том что дом уже построен. Стены капитальные, перемещать как вздумается не выйдет, вернее будет очень затратно. Это как компромисс между то что есть, то что надо и то что надо быстро. В тамбуре надеюсь будет чисто там планируется только раззутся и легкая вешалка для повседневной одежды. А вот в прихожей та что дальше думаю заложить окно и на всю ширину установить встроенный шкаф. Смущает, не будет темно там очень? Свет искусственный понятно что будет днем включен. Насколько это будет правильным? Может окно оставить? Выложите точный чертёж того, что уже построено. Будем думать, что можно с ним делать. Возможности часто лучше видны посторонним глазом, чем собственным. 1 Посилання на коментар Поділитися на інших сайтах More sharing options...
AndyAntonov Опубліковано: 19 липня 2017 Поділитись Опубліковано: 19 липня 2017 Если речь о силикатном кирпиче, то худшего и не придумаешь. Если не на фундамент — не вижу криминала. Его качество уже давно выше субстанции под названием «красный кирпич». Видать, сложнее испоганить. 1 Посилання на коментар Поділитися на інших сайтах More sharing options...
MariiaAnna Опубліковано: 29 липня 2017 Поділитись Опубліковано: 29 липня 2017 У нас между домом и фундаментом есть прослойка, но ни чем не заполняли и все ок Посилання на коментар Поділитися на інших сайтах More sharing options...
goga777 Опубліковано: 5 серпня 2017 Поділитись Опубліковано: 5 серпня 2017 таки достроить дом и там разместить тамбур и котельную. В котельную впихнуть все невпихуемое - котел, может в будущем два скажите зачем вам это нужно? ИМХО коробка это всего лишь 25% от дома под ключ, и вы эту часть заведомо ущербной изготавливаете. Но отделку и инженерию придется все равно делать нормальную. Итого в финале что у вас получится? Да и со старыми коробками и тем как их строили разное бывает. 2 Посилання на коментар Поділитися на інших сайтах More sharing options...
Рекомендовані повідомлення
Створіть акаунт або увійдіть у нього для коментування
Ви маєте бути користувачем, щоб залишити коментар
Створити акаунт
Зареєструйтеся для отримання акаунта. Це просто!
Зареєструвати акаунтУвійти
Вже зареєстровані? Увійдіть тут.
Увійти зараз