Зигзаг Удачи Опубліковано: 12 вересня 2009 Поділитись Опубліковано: 12 вересня 2009 (змінено) Длительные маневры по земельным вопросам завершились логическим концом - участок есть, заезд на него организован, 5 кВт электроэнергии на столбе у дороги присутствует, скважина планово начнет делаться в воскресенье...... так что с потихоньку начинаем строиться Змінено 12 вересня 2009 користувачем Зигзаг Удачи добавление фото Посилання на коментар Поділитися на інших сайтах More sharing options...
Зигзаг Удачи Опубліковано: 22 вересня 2009 Автор Поділитись Опубліковано: 22 вересня 2009 Работы продолжаются: - сделала скважина, оказалось что уровень воды не позволяет использовать насосную станцию, пришлось ставить глубинный насос "Водолей" - разметка траншей - и собственно откапывание траншей для фундамента Посилання на коментар Поділитися на інших сайтах More sharing options...
Igor_M Опубліковано: 22 вересня 2009 Поділитись Опубліковано: 22 вересня 2009 Работы продолжаются: - сделала скважина, оказалось что уровень воды не позволяет использовать насосную станцию, пришлось ставить глубинный насос "Водолей" - разметка траншей - и собственно откапывание траншей для фундамента Поздравлямс... Ай-да молодца! Вижу, что разметочку траншеи делаете с пониманием... ... и траншейка такая с зиг-загом... наверное, все должно получиться удачно! Посилання на коментар Поділитися на інших сайтах More sharing options...
aidback Опубліковано: 22 вересня 2009 Поділитись Опубліковано: 22 вересня 2009 Работы продолжаются: - сделала скважина, оказалось что уровень воды не позволяет использовать насосную станцию, пришлось ставить глубинный насос "Водолей" - разметка траншей - и собственно откапывание траншей для фундамента Поздравляю! С почином Вас! Посилання на коментар Поділитися на інших сайтах More sharing options...
mrd Опубліковано: 22 вересня 2009 Поділитись Опубліковано: 22 вересня 2009 ... завершились логическим концом и- участок есть..., 5 кВт электроэнергии на столбе у дороги если не секрет, сколько щас реально земля в ПБ стоит? и сколько подключение к 5 кВт? спасибо! Посилання на коментар Поділитися на інших сайтах More sharing options...
Alex044 Опубліковано: 22 вересня 2009 Поділитись Опубліковано: 22 вересня 2009 если не секрет, сколько щас реально земля в ПБ стоит? и сколько подключение к 5 кВт? спасибо!Вопрос некорректный. Надо уточнять, какая земля Вас интересует. В коттеджной застройке, на поле или в селе? Ещё вроде есть дачные участки на ПБ. В общем, на поле, но не на голом поле, в августе я смотрел участок за 42 тыс./10 соток. По улице были установлены опоры, но кабель ещё не был натянут. До асфальтированной дороги 100-150 метров. В селе были предложения по 3700 за сотку, но узкой формы, типа продают пол огорода. Посилання на коментар Поділитися на інших сайтах More sharing options...
Alex044 Опубліковано: 22 вересня 2009 Поділитись Опубліковано: 22 вересня 2009 - сделала скважина, оказалось что уровень воды не позволяет Есть вопросы по скважине. 1. Глубина? 2. Диаметр трубы и что за труба? 3. Цена вопроса за п/м? 4. Как долго бурили скважину? Попадались ли камни? Посилання на коментар Поділитися на інших сайтах More sharing options...
Alex044 Опубліковано: 22 вересня 2009 Поділитись Опубліковано: 22 вересня 2009 Вагончик у Вас зачетный, если не секрет, то сколько стоил? Посилання на коментар Поділитися на інших сайтах More sharing options...
Зигзаг Удачи Опубліковано: 22 вересня 2009 Автор Поділитись Опубліковано: 22 вересня 2009 Поздравлямс... Ай-да молодца! Вижу, что разметочку траншеи делаете с пониманием... ... и траншейка такая с зиг-загом... наверное, все должно получиться удачно! Спасибо, разметку сделали-то нормально, но трактор траншеи покопал как Бог на душу положил... сейчас исправляем Посилання на коментар Поділитися на інших сайтах More sharing options...
Зигзаг Удачи Опубліковано: 22 вересня 2009 Автор Поділитись Опубліковано: 22 вересня 2009 Поздравляю! С почином Вас! Спасибо Посилання на коментар Поділитися на інших сайтах More sharing options...
Зигзаг Удачи Опубліковано: 22 вересня 2009 Автор Поділитись Опубліковано: 22 вересня 2009 если не секрет, сколько щас реально земля в ПБ стоит? и сколько подключение к 5 кВт? спасибо! Реально расброс цен по земле просто ненормальный - от 7 до 30 за сотку... у меня земля была в огородах, поэтому для меня земельный вопрос решался для выезда... 5 квт - 800 дол под ключ, правда по срокам получилось пару месяцев 1 Посилання на коментар Поділитися на інших сайтах More sharing options...
Зигзаг Удачи Опубліковано: 22 вересня 2009 Автор Поділитись Опубліковано: 22 вересня 2009 Есть вопросы по скважине. 1. Глубина? 2. Диаметр трубы и что за труба? 3. Цена вопроса за п/м? 4. Как долго бурили скважину? Попадались ли камни? 1. 30 метров 2. труба 125 нПВХ российская 3. 280 грн за метр 4. Приехали бурить в девять утра, в четыре дня я уже пробовал воду ;) камней не было, была глина, потом твердая глина, потом песок 1 Посилання на коментар Поділитися на інших сайтах More sharing options...
valeria Опубліковано: 22 вересня 2009 Поділитись Опубліковано: 22 вересня 2009 С почином Вас, соседушка! Посилання на коментар Поділитися на інших сайтах More sharing options...
Зигзаг Удачи Опубліковано: 22 вересня 2009 Автор Поділитись Опубліковано: 22 вересня 2009 С почином Вас, соседушка! Спасибо, Валерия Посилання на коментар Поділитися на інших сайтах More sharing options...
Зигзаг Удачи Опубліковано: 22 вересня 2009 Автор Поділитись Опубліковано: 22 вересня 2009 Вагончик у Вас зачетный, если не секрет, то сколько стоил? Вагончик стоил в 2006 году 15000 грн Посилання на коментар Поділитися на інших сайтах More sharing options...
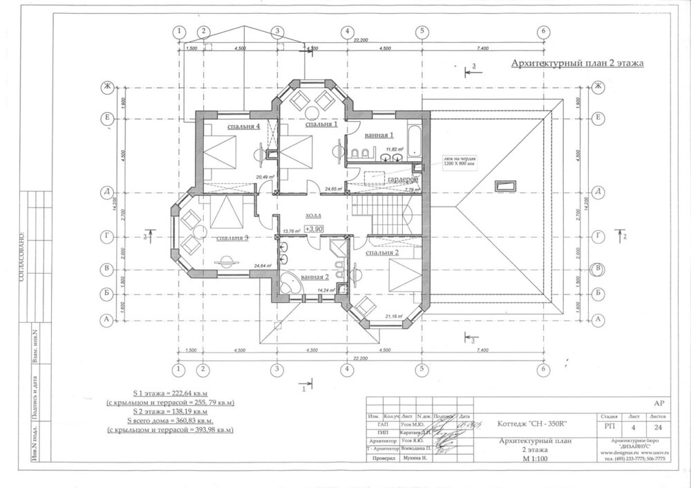
Зигзаг Удачи Опубліковано: 25 вересня 2009 Автор Поділитись Опубліковано: 25 вересня 2009 Продолжается зачистка траншей после экскаватора.... Забыл выложить план второго этажа, добавляю.. 1 Посилання на коментар Поділитися на інших сайтах More sharing options...
Alex044 Опубліковано: 25 вересня 2009 Поділитись Опубліковано: 25 вересня 2009 На какой улице строитесь, если не секрет? Посилання на коментар Поділитися на інших сайтах More sharing options...
Зигзаг Удачи Опубліковано: 25 вересня 2009 Автор Поділитись Опубліковано: 25 вересня 2009 На какой улице строитесь, если не секрет? Ответил в личку ;) 1 Посилання на коментар Поділитися на інших сайтах More sharing options...
архітектор Опубліковано: 25 вересня 2009 Поділитись Опубліковано: 25 вересня 2009 Продолжается зачистка траншей после экскаватора.... Забыл выложить план второго этажа, добавляю.. На фото видно, что грунты внизу траншеи отличаются от тех, что выше. На глаз - там вроде как вода или влага? Посилання на коментар Поділитися на інших сайтах More sharing options...
Зигзаг Удачи Опубліковано: 25 вересня 2009 Автор Поділитись Опубліковано: 25 вересня 2009 На фото видно, что грунты внизу траншеи отличаются от тех, что выше. На глаз - там вроде как вода или влага? Отличаются, но только цветом - ниже идет какая-то более темная глина, она же и более твердая. До песка докопались только на глубине 3 метра, когда вынимали грунт под помещение под гаражом. Посилання на коментар Поділитися на інших сайтах More sharing options...
архітектор Опубліковано: 25 вересня 2009 Поділитись Опубліковано: 25 вересня 2009 Отличаются, но только цветом - ниже идет какая-то более темная глина, она же и более твердая. До песка докопались только на глубине 3 метра, когда вынимали грунт под помещение под гаражом. Я так понял, геологию не далали? Если фундамент опирается на разные по характеристикам грунты (часть на песок-часть на глину), то возможна неравномерная усадка. Цвет грунта - это только визуальная характеристика, более важны для надежности фундамента физико-механические свойства грунтов. Я делал реконструкцию дома в ПБ по ул. Борщаговской, под домом плохая земля. Когда откапывали под фундамент пристройки - там жижа оказалась. Посилання на коментар Поділитися на інших сайтах More sharing options...
Зигзаг Удачи Опубліковано: 25 вересня 2009 Автор Поділитись Опубліковано: 25 вересня 2009 Я так понял, геологию не далали? Если фундамент опирается на разные по характеристикам грунты (часть на песок-часть на глину), то возможна неравномерная усадка. Цвет грунта - это только визуальная характеристика, более важны для надежности фундамента физико-механические свойства грунтов. Я делал реконструкцию дома в ПБ по ул. Борщаговской, под домом плохая земля. Когда откапывали под фундамент пристройки - там жижа оказалась. Геологию не делали, но видели как строят соседний дом с цоколем на глубину в 3 метра, вот там один угол был на песке, остальные на глине.... Физико-механические свойства на мой взгляд достаточные - я сегодня смотрел как строители вручную копали траншеи под колонны, глина очень твердая.... по всему периметру фундамента грунт одинаков... завтра пройдем виброплитой, сделаем подсыпку ПГС сантиметров с 15, уплотним и я думаю что все должно стоять нормально... Да и удельное давление на грунт всего лишь 1,5 кгс/см кв Посилання на коментар Поділитися на інших сайтах More sharing options...
Зигзаг Удачи Опубліковано: 30 вересня 2009 Автор Поділитись Опубліковано: 30 вересня 2009 Готовим дно траншей, песок, щебень, уплотнение... Посилання на коментар Поділитися на інших сайтах More sharing options...
Зигзаг Удачи Опубліковано: 30 вересня 2009 Автор Поділитись Опубліковано: 30 вересня 2009 Делаем армокаркасы (на первом фото приспособа для гибки арматуры) и жолоба для приема бетона, дальняя стенка будет на расстоянии 16 метров от миксера. Посилання на коментар Поділитися на інших сайтах More sharing options...
Зигзаг Удачи Опубліковано: 6 жовтня 2009 Автор Поділитись Опубліковано: 6 жовтня 2009 Залили монолитную подушку под установку фундаментных блоков. Как оказалось делать это все в траншеях крайне неудобно и кроме всего прочего при каждом неаккуратном движении сверху подсыпается грунт... Тем не менее все было залито вроде без сильных косяков. Выстаивается 3 дня до среды и будем укладывать блоки. А пока есть время принимаем кирпич, цемент и тп Посилання на коментар Поділитися на інших сайтах More sharing options...
Рекомендовані повідомлення
Створіть акаунт або увійдіть у нього для коментування
Ви маєте бути користувачем, щоб залишити коментар
Створити акаунт
Зареєструйтеся для отримання акаунта. Це просто!
Зареєструвати акаунтУвійти
Вже зареєстровані? Увійдіть тут.
Увійти зараз