Veronika Vilpe Опубліковано: 24 листопада 2017 Поділитись Опубліковано: 24 листопада 2017 Честно говоря никогда не замечал особой корреляции влажности в доме с нахождением в доме. Куда более важна влажность на улице... Ну вы же лежа на пляже в Греции окна в доме не забыли закрыть и он у вас не из соломы Вопрос удаления избытка влаги в доме стал рассматриваться, когда частный дом стал комфортным для проживания: в доме появилась ванна и туалет, вместо "до витру" и "на речку", кухня, постирочная. Это основные источники влаги в доме. Посилання на коментар Поділитися на інших сайтах More sharing options...
Veronika Vilpe Опубліковано: 24 листопада 2017 Поділитись Опубліковано: 24 листопада 2017 Blaktigra- у вас что вентиляционный выход установлен в спальне? Посилання на коментар Поділитися на інших сайтах More sharing options...
blacktigra Опубліковано: 25 листопада 2017 Поділитись Опубліковано: 25 листопада 2017 Blaktigra- у вас что вентиляционный выход установлен в спальне? Устанавливать вытяжной канал естественной вентиляции в спальне это даже для меня чересчур. Нет, не установлен. А вы с какой целью интересуетесь? Пытаетесь понять как я 30 кубов насчитал? Кстати, вот сделал фото вент-выхода. У меня мансарда пока не утеплена, поэтому есть доступ. На нем видно что за материал используется для утепления, и как он прилегает к трубе. Там дальше виднеется что-то похожее на вспененный полиуретан, похоже что он там таки есть. Тут мне крыть нечем, не зря вы в Финляндию ездили. Но учитывая толщину теплоизоляции ее эффективность для меня под большим сомнением. Дефлектор препятствует попаданию осадков в воздуховод. Причины обмерзания и другие страшилки разбирались подробно в других темах, кому интересно могут почитать. А защита от осадков это единственная функция дефлектора? Добавлено через 8 минут Кстати, все хочу спросить, и забываю. Вот вы говорите, что если использовать канальный вентилятор то конденсата не будет. Но ведь вентиляторы же разные бывают, с разным расходом и разной напорной характеристикой. Вот как мне быть уверенным, что установив вентилятор, у меня не будет конденсата? Только установка вентилятора это достаточное условие? Или важен определенный расход воздуха? Возможно у вас методика определения минимально достаточного расхода есть? Я жмот, и не хочу выбрасывать тепло на улицу. Буду весьма признателен. Посилання на коментар Поділитися на інших сайтах More sharing options...
Veronika Vilpe Опубліковано: 25 листопада 2017 Поділитись Опубліковано: 25 листопада 2017 Устанавливать вытяжной канал естественной вентиляции в спальне это даже для меня чересчур. Нет, не установлен. А вы с какой целью интересуетесь? Пытаетесь понять как я 30 кубов насчитал? Кстати, вот сделал фото вент-выхода. У меня мансарда пока не утеплена, поэтому есть доступ. На нем видно что за материал используется для утепления, и как он прилегает к трубе. Там дальше виднеется что-то похожее на вспененный полиуретан, похоже что он там таки есть. Тут мне крыть нечем, не зря вы в Финляндию ездили. Но учитывая толщину теплоизоляции ее эффективность для меня под большим сомнением. А защита от осадков это единственная функция дефлектора? Добавлено через 8 минут Кстати, все хочу спросить, и забываю. Вот вы говорите, что если использовать канальный вентилятор то конденсата не будет. Но ведь вентиляторы же разные бывают, с разным расходом и разной напорной характеристикой. Вот как мне быть уверенным, что установив вентилятор, у меня не будет конденсата? Только установка вентилятора это достаточное условие? Или важен определенный расход воздуха? Возможно у вас методика определения минимально достаточного расхода есть? Я жмот, и не хочу выбрасывать тепло на улицу. Буду весьма признателен. я пытаюсь понять куда вы 6 вент.выходов установили, информации об одной комнате дома маловато для анализа. По поводу эффективности изоляции, если бы вы были первым эксперементальным покупателем вент.выходов, то таки да, изучали бы на нашем доме как работает теплоизоляция и что нужно менять или оставить. Более 30 лет завод выпускает вент.выходы, за это время инженеры нашли лучшую формулу для пенопоулиритана. По теплородности даже каменная вата уступает, поэтому толщина пенопоулиритана может быть меньше, чем мы бы утепляли ватой. Плюс пенопоулиритан дополнительно защищает металл от корозии. Что касается дефлектора, вы правильно сказали, что при движении воздушных масс создает дополнительную тягу, при сильном ветре препятствует задуванию обратной тяги (эти функции он выполняет, когда установлен в правильном месте на кровле а именно выше конька). Методики подбора вентилятора у нас есть к нашим крышным вентиляторам Вильпе, графики, испытания, расчеты потери давления и т.д. По канальным вентиляторам нет. напишите сечение воздуховодов, материал, длина каждой магистрали, есть ли повороты, попробуем помочь, если не я, то специалистов по данной категории вентиляторов на форуме много. Пропускную способность вент.выхода вы знаете. Понимаю ваше желание оставить все тепло в доме, поделюсь своим опытом: у меня дома установлен на вентиляцию дома крышный вентилятор Вильпе Е 120. Днем он работает в среднем на 50 процентов от его мощности, ночью ставлю на минимум, сейчас нет под рукой таблицы, чтобы сказать точно, приблизительно это где-то не более 30м3/ч. Проблемы с конденсатом за четыре года проживания в доме нет как и проблемы выхолаживания. Посилання на коментар Поділитися на інших сайтах More sharing options...
interdalnoboy Опубліковано: 10 січня 2018 Поділитись Опубліковано: 10 січня 2018 Підкажіть будь-ласка. Робочі зробили вентиляцію у кухні і ванній кімнаті - просто зробили отвір на горище і провели туда сіру каналізаційну трубу. Зараз у будинку ще не живу, так як ідуть внутрішні роботи, але з цих "каналів" капає постійно конденсат. Далі вони планують ці труби вивести за межі будинку горизонтально і сам вивід буде у районі піддашків. на моє питання про конденсат вони кажуть зщо це через надмірну вологість у приміщенні. Чи можна їм вірити і чи треба щось міняти? до отворів вже проведена проводка на вентилятори, але їх ще не включали. Добавлено через 2 минуты Днем он работает в среднем на 50 процентов от его мощности, ночью ставлю на минимум, сейчас нет под рукой таблицы, чтобы сказать точно, приблизительно это где-то не более 30м3/ч. Проблемы с конденсатом за четыре года проживания в доме нет как и проблемы выхолаживания. а як регулюється його потужність? світла він, як я розумію, бере зовсім мало? Посилання на коментар Поділитися на інших сайтах More sharing options...
SON Опубліковано: 10 січня 2018 Поділитись Опубліковано: 10 січня 2018 але з цих "каналів" капає постійно конденсат. Кто бы мог подумать. Чи можна їм вірити і чи треба щось міняти? https://www.stroimdom.com.ua/forum/showthread.php?t=97956 Заметьте, теме уже больше 5 лет. 1 Посилання на коментар Поділитися на інших сайтах More sharing options...
interdalnoboy Опубліковано: 10 січня 2018 Поділитись Опубліковано: 10 січня 2018 Виходить що тут допоможе утеплнення всієї довжини труби? Посилання на коментар Поділитися на інших сайтах More sharing options...
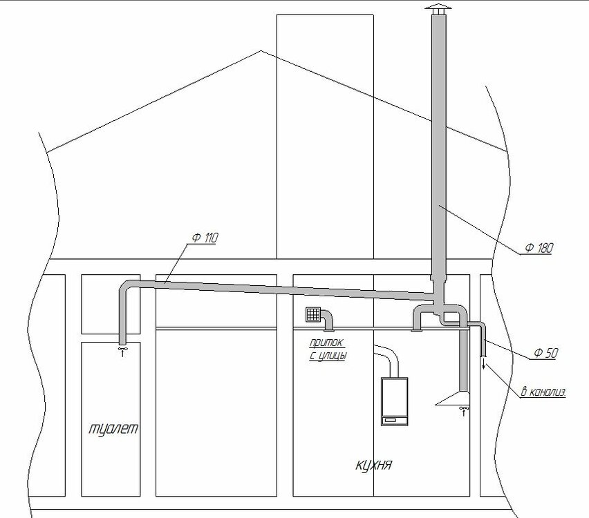
Veronika Vilpe Опубліковано: 10 січня 2018 Поділитись Опубліковано: 10 січня 2018 Підкажіть будь-ласка. Робочі зробили вентиляцію у кухні і ванній кімнаті - просто зробили отвір на горище і провели туда сіру каналізаційну трубу. Зараз у будинку ще не живу, так як ідуть внутрішні роботи, але з цих "каналів" капає постійно конденсат. Далі вони планують ці труби вивести за межі будинку горизонтально і сам вивід буде у районі піддашків. на моє питання про конденсат вони кажуть зщо це через надмірну вологість у приміщенні. Чи можна їм вірити і чи треба щось міняти? до отворів вже проведена проводка на вентилятори, але їх ще не включали. Добавлено через 2 минуты а як регулюється його потужність? світла він, як я розумію, бере зовсім мало? правильно ли я вас поняла, что у вас нет кирпичных шахт, а есть только разводка воздуховодов 110 пластиковой трубой, которая обрывается на чердаке?можно вас попросить план дома и на нем прорисовать схему существующих воздуховодов. мощность вентилятора Vilpe регулируется переключателем скорости, который устанавливается в доме, в удобном для управления вентилятором месте. В среднем вентилятор потребляет 38вт. Посилання на коментар Поділитися на інших сайтах More sharing options...
interdalnoboy Опубліковано: 10 січня 2018 Поділитись Опубліковано: 10 січня 2018 так, ніяких шахт немає - просто два куска сірої труби які ведуть через перекриття з кухні та санвузла на горище. В среднем вентилятор потребляет 38вт. 38 ват в час чи в день? Посилання на коментар Поділитися на інших сайтах More sharing options...
Veronika Vilpe Опубліковано: 11 січня 2018 Поділитись Опубліковано: 11 січня 2018 так, ніяких шахт немає - просто два куска сірої труби які ведуть через перекриття з кухні та санвузла на горище. 38 ват в час чи в день? Понятно, но для лучшего понимания, нужен план дома. Из санузла может это они вам вентиляцию канализационного стояка вывели, а вентиляцию самого помещения -нет. По кухне тоже не понятно, это вентиляция кухонной вытяжки или вентиляция самой кухни? В доме газовое оборудование планируете? На ваш вопрос по вентилятору отвечаю: 38вт/час, получается -46 квт/месяц(по нынешним тарифам за свет 1,68грн/квт= 77,28 гривен в месяц). Посилання на коментар Поділитися на інших сайтах More sharing options...
interdalnoboy Опубліковано: 11 січня 2018 Поділитись Опубліковано: 11 січня 2018 Из санузла может это они вам вентиляцию канализационного стояка вывели, а вентиляцию самого помещения -нет. По кухне тоже не понятно, это вентиляция кухонной вытяжки или вентиляция самой кухни? В доме газовое оборудование планируете? Звичайно газовий котел, плита. В санвузлі вентиляція самого приміщення, там буде стояти вентилятор накладний, а кухні - буде стояти витяжка. поки що і там і там просто дирки на горище. Посилання на коментар Поділитися на інших сайтах More sharing options...
Veronika Vilpe Опубліковано: 11 січня 2018 Поділитись Опубліковано: 11 січня 2018 Звичайно газовий котел, плита. В санвузлі вентиляція самого приміщення, там буде стояти вентилятор накладний, а кухні - буде стояти витяжка. поки що і там і там просто дирки на горище. а в каком помещении дома будет установлен газовый котел? Посилання на коментар Поділитися на інших сайтах More sharing options...
interdalnoboy Опубліковано: 12 січня 2018 Поділитись Опубліковано: 12 січня 2018 В кухні. Котел установлений уже Посилання на коментар Поділитися на інших сайтах More sharing options...
Veronika Vilpe Опубліковано: 12 січня 2018 Поділитись Опубліковано: 12 січня 2018 В кухні. Котел установлений уже Тогда в кухне можете забыть про принудительную вытяжку. Там должен быть канал естественной вентиляции и организован приток, сечение притока и сечение вытяжного канала должны вам дать газовщики, у них возьмите ТУ. Посилання на коментар Поділитися на інших сайтах More sharing options...
blacktigra Опубліковано: 12 січня 2018 Поділитись Опубліковано: 12 січня 2018 Тогда в кухне можете забыть про принудительную вытяжку. Там должен быть канал естественной вентиляции и организован приток, сечение притока и сечение вытяжного канала должны вам дать газовщики, у них возьмите ТУ. А можно, пожалуйста, ссылку на пункт в нормативной документации, в котором есть запрет на установку зонтов с вытяжным вентилятором в помещении кухни, если там установлен котел? Добавлено через 4 минуты на моє питання про конденсат вони кажуть зщо це через надмірну вологість у приміщенні. Чи можна їм вірити і чи треба щось міняти? до отворів вже проведена проводка на вентилятори, але їх ще не включали. Если дом герметичный, качественно уложен паробарьер с проклейкой стыков, хорошие уплотнители на конах и дверях, то течь будет всегда, как бы вы не утепляли. Единственный выход - подключать вытяжные трубы через тройник с лейкой для отвода конденсата, как подключают дымоходы. Если дом не очень герметичный, то со временем подсохнет, и зимой проблем быть не должно из-за неорганизованного притока через разного рода неплотности в стенах, перекрытии и т.д. 1 Посилання на коментар Поділитися на інших сайтах More sharing options...
Veronika Vilpe Опубліковано: 12 січня 2018 Поділитись Опубліковано: 12 січня 2018 А можно, пожалуйста, ссылку на пункт в нормативной документации, в котором есть запрет на установку зонтов с вытяжным вентилятором в помещении кухни, если там установлен котел? ДБН В 2.5-20-2001.С.31 (п.6.38) и приложение Ж, отвод продуктов сгорания. прочитайте внимательно и поймете, почему нельзя. У еще лучше газовщики объясняют. Посилання на коментар Поділитися на інших сайтах More sharing options...
blacktigra Опубліковано: 12 січня 2018 Поділитись Опубліковано: 12 січня 2018 ДБН В 2.5-20-2001.С.31 (п.6.38) и приложение Ж, отвод продуктов сгорания. прочитайте внимательно и поймете, почему нельзя. У еще лучше газовщики объясняют. Цитирую пункт 6.38: 6.38 Установку газового отопительного оборудования суммарной тепловой мощностью до 30 кВт разрешается предусматривать в помещении кухни (независимо от наличия плиты и проточного водонагревателя) или в обособленном помещении, внутренний объем кухни при установке отопительного оборудования с отводом продуктов сгорания в дымоход, должен быть на 6 м3 больше, предусмотренного 6.28. Отвод продуктов сгорания от отопительных аппаратов тепловой мощностью до 30 кВт разрешается производить через дымоход или через наружную стену здания (в соответствии с приложением Ж). Не могли бы вы указать, где именно в этом пункте указан запрет? Перечитал приложение Ж, там также не нашел. Посилання на коментар Поділитися на інших сайтах More sharing options...
SON Опубліковано: 12 січня 2018 Поділитись Опубліковано: 12 січня 2018 При атмосферном котле (колонке) и герметичных окнах кухонная вытяжка (зонтик) легко переворачивает тягу в дымоходе. Сам видел. :D Если в современных котлах стоит хоть какой-то датчик тяги и котел уходит в аварию, то с древними газ колонками не все так радужно. С т.з. здорового глузду, надеяться на датчик трохи стремно. Чего встречалось по жизни - тяга в дымоходе переворачивалась, датчик тяги не срабатывал, т.к. из дымохода шел подсос холодного воздуха с улицы разбавляя выхлоп, и тупо не хватало температуры для сработки. Датчики начинаются от 75 гр. Выхлоп ессно валил в кухню. 2 Посилання на коментар Поділитися на інших сайтах More sharing options...
Veronika Vilpe Опубліковано: 12 січня 2018 Поділитись Опубліковано: 12 січня 2018 Цитирую пункт 6.38: Не могли бы вы указать, где именно в этом пункте указан запрет? Перечитал приложение Ж, там также не нашел. в приложении Ж подробно описаны ТУ обустройства вытяжных естественных каналов. Ключевое слово “естественной”вентиляции. Любая принудительная вентиляция при определенных условиях будет опрокидывать тягу. Поэтому, ради собственной безопасности- нельзя. Посилання на коментар Поділитися на інших сайтах More sharing options...
blacktigra Опубліковано: 12 січня 2018 Поділитись Опубліковано: 12 січня 2018 в приложении Ж подробно описаны ТУ обустройства вытяжных естественных каналов. Ключевое слово “естественной”вентиляции. Любая принудительная вентиляция при определенных условиях будет опрокидывать тягу. Поэтому, ради собственной безопасности- нельзя. Вероника, приложение Ж называется "Отвод продуктов сгорания", там не идет речь о вытяжных естественных вентиляционных каналах. Повторю свой вопрос: "А можно, пожалуйста, ссылку на пункт в нормативной документации, в котором есть запрет на установку зонтов с вытяжным вентилятором в помещении кухни, если там установлен котел?" Про возможное опрокидывание тяги в естественном вентканале я в курсе, но ведь даже не уточнили какой планируется газовый котел - с открытой или закрытой камерой сгорания. Посилання на коментар Поділитися на інших сайтах More sharing options...
SON Опубліковано: 12 січня 2018 Поділитись Опубліковано: 12 січня 2018 Есть запрет на вытяжную мех. вентиляцию, не конкретно кух. зонты. Не помню в каком документе, но точно есть. Посилання на коментар Поділитися на інших сайтах More sharing options...
Veronika Vilpe Опубліковано: 12 січня 2018 Поділитись Опубліковано: 12 січня 2018 Вероника, приложение Ж называется "Отвод продуктов сгорания", там не идет речь о вытяжных естественных вентиляционных каналах. Повторю свой вопрос: "А можно, пожалуйста, ссылку на пункт в нормативной документации, в котором есть запрет на установку зонтов с вытяжным вентилятором в помещении кухни, если там установлен котел?" Про возможное опрокидывание тяги в естественном вентканале я в курсе, но ведь даже не уточнили какой планируется газовый котел - с открытой или закрытой камерой сгорания. отвод продуктов сгорания путем обустройства вент.шахт или вход/выход на фасад, в зависимости от конфигурации газового котла. я тоже сейчас не могу быстро найти документ, в котором прописана норма на запрет мех.вентиляции, но 100 процентов он есть, лично его читала. И логика газовщиков правильна, они подразумевают, что в случае поломки газового оборудования, при отсутствии в помещении второго вент.канала с мех.вентиляцией утекачка газа не попадет в комнату, а потихоньку будет уходить в канал отвода продуктов горения. При наличии кух.зонта с вентилятором исход совсем другой, газ пойдет в кухню. Посилання на коментар Поділитися на інших сайтах More sharing options...
Vito black Опубліковано: 12 січня 2018 Поділитись Опубліковано: 12 січня 2018 Ну кухонный зонт пару часов работает ... Не думаю, что при наличии в помещении людей его оставят включенным. Приток - это да. Посилання на коментар Поділитися на інших сайтах More sharing options...
Vito black Опубліковано: 12 січня 2018 Поділитись Опубліковано: 12 січня 2018 Я так понял -так вообще не получится сделать ... А как тогда сделать? 2 этаж, центр города, исторический фонд Посилання на коментар Поділитися на інших сайтах More sharing options...
Vito black Опубліковано: 12 січня 2018 Поділитись Опубліковано: 12 січня 2018 А если разделители потоков в трубу вставить? 1 Посилання на коментар Поділитися на інших сайтах More sharing options...
Рекомендовані повідомлення
Створіть акаунт або увійдіть у нього для коментування
Ви маєте бути користувачем, щоб залишити коментар
Створити акаунт
Зареєструйтеся для отримання акаунта. Це просто!
Зареєструвати акаунтУвійти
Вже зареєстровані? Увійдіть тут.
Увійти зараз