Dendnepr Опубліковано: 13 вересня 2019 Автор Поділитись Опубліковано: 13 вересня 2019 Если же будите делать так как на разрезе, то за счет стойки и конькового прогона - высота установки затяжки (потолочной балки) - вообще пофигу, а стропила проходят сечением 200*50. Но опять же, район "кукушки" (слухового окна)... Шаг стропил 630 мм. в осях - под вату, шириной 600 мм., и плотностью ~ 30-40 кг/м3 (по заявке продавцов). Хотя, при угле скатов 40 градусов, любую вату придется удерживать шпагатом, или брать вату большей плотности, но цена.... Спасибо большое. Именно со стойками под коньком и планирую. Центральная несущая стена этому способствует Посилання на коментар Поділитися на інших сайтах More sharing options...
Dendnepr Опубліковано: 28 листопада 2019 Автор Поділитись Опубліковано: 28 листопада 2019 Что-то совсем лень писать. На чтение с телефона хватает, а писать с телефона-не могу Итак. После принятия газоблока на плиты-пошел процесс. Но медленно. Работает один каменщик. Но мне так и легче. Успеваю у него подсобником быть и на работу мотать и детей со школ, тренировок забирать. Таким образом оплачиваю ему только квадратные метры кирпичной кладки и кубатуру газоблока. Немного подняли стены, приняли остатки кирпича. Часть удалось поднять наверх. Кстати, чего-то манипуляторщики с неохотой соглашаются заезжать с дороги на участок и поднимать грузы на перекрытие. Добрались до аттиковой высоты. Поставили гусак, прицепили отвес (по центру стены) и натянули шнурки. т.к. был выбран газоблок 500 мм, а его на складах для поштучной торговли практически никто не держит, было заказано с завода с запасом и округлено до целой паллеты. Осталось немного. Пришлось резать в нужный размер для фронтона холодного чердака. Лобзиком неплохо получалось, пока не затупилась пилочка. Начало сильно низ в сторону уводить вручную получалось ровнее 5 Посилання на коментар Поділитися на інших сайтах More sharing options...
Dendnepr Опубліковано: 28 листопада 2019 Автор Поділитись Опубліковано: 28 листопада 2019 И понеслось. Фронтон растет и еще выше и еще выше вырос К сожалению недоглядели прогноз погоды и свежая кладка попала под ливень. Укрыть, как следует не успели. буду думать, как отмывать В промежутке успел поучаствовать в подъеме яхт, чтоб хоть капитан не вычеркнул из экипажа за прогулы 6 Посилання на коментар Поділитися на інших сайтах More sharing options...
Dendnepr Опубліковано: 28 листопада 2019 Автор Поділитись Опубліковано: 28 листопада 2019 Примерились к внутренним стенам. Разложили кирпичики по контуру продолжили кладку трубы для ТТ котла (резервное отопление, на случай пропажи электричества). Труба из полнотелого кирпича, гильзовка нержавейкой 1 мм. Кладка внутри дома на глиняную смесь. Для тонкости швов. Поэтому связка с вентканалом через пластины (разная толщина шва). От потолка пойдет уже кладка на обычном растворе и на швах нормальной толщины. с перевязкой и сеткой и кирпичами Также немного подрубил плиту (не повредив несущую арматуру), чтоб влез сендвич 150\220 из нержавейки для будущей трубы камина или каминофена в зале. Решил, что проведу трубу через второй этаж в таком виде. В коробе, за дверью спальни начал делать армопояс под мауэрлат. Из-за связки пояса с колоннами-пришлось хомуты одевать и вязать по месту Отдельно хочу отметить момент зачистки перемычек от ржавчины. Почти все чистил болгаркой разными насадками. И наждачкой и проволочной щеткой. Пыль столбом, проволока в штаны впивается. Руки от болгарки устают. Делал в несколько заходов пару дней. В итоге на последние перемычки нашел пескоструй И за 300 грн и 40 минут мне почистили 9 метров 100-го уголка. И чего я раньше не додумался? Ой. Полетел за детьми. Опять некогда дописать 7 Посилання на коментар Поділитися на інших сайтах More sharing options...
shneider_vova Опубліковано: 28 листопада 2019 Поділитись Опубліковано: 28 листопада 2019 Пропесоченные изделия надо сразу прогрунтовать. В течении суток. Потом поздно 1 Посилання на коментар Поділитися на інших сайтах More sharing options...
Dendnepr Опубліковано: 29 листопада 2019 Автор Поділитись Опубліковано: 29 листопада 2019 Пропесоченные изделия надо сразу прогрунтовать. В течении суток. Потом поздно Так и было. Протер растворителем и погрунтовал в тот же день 1 Посилання на коментар Поділитися на інших сайтах More sharing options...
Dendnepr Опубліковано: 29 листопада 2019 Автор Поділитись Опубліковано: 29 листопада 2019 Псле того, как подогнали стены лестницы-пришло время залить верхнюю лестничную площадку. Был установлен швеллер 100 мм, очень удачно обнаружилось нужное количество нужных кусков арматуры. Причем 14 мм, даже резать не пришлось. поперек этих прутков уложил арматуру 8 мм. Бетонировал, как всегда-очень густым бетоном, с минимально возможным В/Ц соотношением. С обязательным использованием пластификатора. Осадка конуса Даже при толщине 10 см-использую вибратор. позволят равномерно уложить даже густой бетон. Через пару дней раскрыл пленку-отличный результат И сразу изготовлен второй марш лестницы 3 Посилання на коментар Поділитися на інших сайтах More sharing options...
Dendnepr Опубліковано: 29 листопада 2019 Автор Поділитись Опубліковано: 29 листопада 2019 Процесс потихоньку идет. День короткий, решил сделать освещение. Купил два китайских прожектора, кабель и прицепил на фронтоны изнутри. Теперь можно и в 16 часов (после захода солнца) провести подготовку на следующий день. Риштовки поставить, кирпича и песка наготовить. Параллельно закрыл одно окно. Сквозняк в этой комнате пропал. Там я красил перемычки. Надо остальные закрыть Наготовил шпильки для крепления мауэрлата. 12 мм. длина 500 мм. Буду забивать в газоблок на несколько сантиметров, для лучшей фиксации при заливке. гайка и шайба-чуть выше -чтоб замонолитилось в бетоне. над самим поясом натянул два шнурка на разной высоте (над самым поясом и чуть выше), по отвесу. чтоб легче было шпильки в одну линию выставлять. Сами шпильки пока не крепил. Сначала закреплю кабель греющий. Про кабель-есть вероятность, что заливать пояс придется зимой. Ловить несколько теплых дней-не словишь. Противоморозные присадки-не панацея. В инструкции написано, что все равно нужно принимать меры против замораживания бетона, особенно в первый день, два. Поэтому на ОЛХ была найдена бухта кабеля ПНСВ-1,2 мм длиной 150 метров за 200 грн. Т.к. подключать буду к 220 В напрямую, то длина должна быть не менее 110 метров. У меня две отдельностоящие колонны по 6 метров и два армопояса по 12,7 метра+каждый стоит на 4 и 5-ти колоннах по 1,8 метра. Поэтому буду резать на куски и соединять последовательно медным кабелем 2,5 мм Начал крепить "волнами", но фигня с длиной получается. В итоге првел тремя нитками, одни из которых опускалась в колонны 4 Посилання на коментар Поділитися на інших сайтах More sharing options...
Dendnepr Опубліковано: 10 грудня 2019 Автор Поділитись Опубліковано: 10 грудня 2019 Как-то не до фоток было. Процесс кладки медленно и неуклонно приближается к завершению Пару фоток Сегодня каменщик должен закончить все внутренние стены. Остается ему доложить два кОмина с вентканалами. по 3 метра кладки вверх осталось.. И тут вопрос. В одном комине идет три вентканала и одна гильзованая труба от ТТкотла. В другом тоже три вентканала и один стояк канализаци и с фановой трубой. Как правильно оформить выход дымохода и фановой канализации? Думаю так: Дымоход нужно выпускать выше "накрывки". Сам кирпичный комин будет утеплен и зашит профилем, а трубу выше кирпича лучше поставить сендвич? Типа такого, только из нержавейки. фото из этого сообщения Фановая труба тоже должна выходить выше накрывки? ее тоже утеплять надо? 2 Посилання на коментар Поділитися на інших сайтах More sharing options...
Gitan Опубліковано: 10 грудня 2019 Поділитись Опубліковано: 10 грудня 2019 Крышка над трубой дымохода не нужна. Имхо. Посилання на коментар Поділитися на інших сайтах More sharing options...
Dendnepr Опубліковано: 10 грудня 2019 Автор Поділитись Опубліковано: 10 грудня 2019 Крышка над трубой дымохода не нужна. Имхо. я больше про утепление выступающей из утепленной кирпичной кладки трубы спрашиваю Посилання на коментар Поділитися на інших сайтах More sharing options...
serviks Опубліковано: 10 грудня 2019 Поділитись Опубліковано: 10 грудня 2019 (змінено) я больше про утепление выступающей из утепленной кирпичной кладки трубы спрашиваю Трубу дымохода необходимо утеплять обязательно (минимизировать образование конденсата). Что до фановой трубы, то у нас стояла неутеплённая из нержавейки и через 4 года сгнила, т.к. по словам установщиков оказалась из "партии некачественной нержавейки". Типа не повезло. В замен поставили тоже из нержавейки, но утепленную типа "сендвич", как у Вас на фото. Можно, конечно, поставить пластиковую трубу (фановую), тогда можно не утеплять. выход фановой и трубы дымохода осуществляется сквозь накрывки, как у Вас на фото в сообщении #350 Змінено 10 грудня 2019 користувачем serviks Посилання на коментар Поділитися на інших сайтах More sharing options...
dushes86 Опубліковано: 10 грудня 2019 Поділитись Опубліковано: 10 грудня 2019 а что будет на том кусочке фасада, который сейчас не облицован? 1 Посилання на коментар Поділитися на інших сайтах More sharing options...
Vikctor Опубліковано: 10 грудня 2019 Поділитись Опубліковано: 10 грудня 2019 ... выход фановой и трубы дымохода осуществляется сквозь накрывки, как у Вас на фото в сообщении #350 ДокУмент в доказательство будет? В ДБН это описано. Подсказываю - с фановой всё наоборот, чем с дымоходом... Посилання на коментар Поділитися на інших сайтах More sharing options...
serviks Опубліковано: 10 грудня 2019 Поділитись Опубліковано: 10 грудня 2019 ДокУмент в доказательство будет? В ДБН это описано. Подсказываю - с фановой всё наоборот, чем с дымоходом... т.е. фановая под накрывкой, а вентканалы сквозь? Посилання на коментар Поділитися на інших сайтах More sharing options...
Vikctor Опубліковано: 10 грудня 2019 Поділитись Опубліковано: 10 грудня 2019 т.е. фановая под накрывкой, а вентканалы сквозь? Себе можете и так сделать конечно. У меня нет кОминов, но на фото у застройщиков я обычно видел отверстие сбоку на 10-15 см ниже оголовка. 2 Посилання на коментар Поділитися на інших сайтах More sharing options...
Dendnepr Опубліковано: 10 грудня 2019 Автор Поділитись Опубліковано: 10 грудня 2019 а что будет на том кусочке фасада, который сейчас не облицован? Там будет терасса. Продолжение крыши. И под навесом стена будет обшита деревом. 1 Посилання на коментар Поділитися на інших сайтах More sharing options...
serviks Опубліковано: 10 грудня 2019 Поділитись Опубліковано: 10 грудня 2019 Себе можете и так сделать конечно. У меня нет кОминов, но на фото у застройщиков я обычно видел отверстие сбоку на 10-15 см ниже оголовка. Поздно) Уже лет 6 назад сделал проходку фановой через колпак как у ТС на картинке и был уверен, до этого момента, что всё сделал абсолютно правильно, что фановая должна быть выше вентканалов. Только на картинке труба дымохода, а у меня фановая Надо на досуге почитать ДБН. Посилання на коментар Поділитися на інших сайтах More sharing options...
eam Опубліковано: 10 грудня 2019 Поділитись Опубліковано: 10 грудня 2019 Поздно) Уже лет 6 назад сделал проходку фановой через колпак как у ТС на картинке и был уверен, до этого момента, что всё сделал абсолютно правильно, что фановая должна быть выше вентканалов. Только на картинке труба дымохода, а у меня фановая Я у себя фановую выводил отдельно от вентиляции но все равно ниже. На картинках ее обычно в коминах выводят вбок не доходя до верха а вентиляцию вверх. Насколько я понял то изза того что из фановой воздух как раз вниз идет и если будет над вентиляцией то при опрокидовании вентиляции может затянуть вонь в дом 1 Посилання на коментар Поділитися на інших сайтах More sharing options...
Dendnepr Опубліковано: 10 грудня 2019 Автор Поділитись Опубліковано: 10 грудня 2019 Я у себя фановую выводил отдельно от вентиляции но все равно ниже. На картинках ее обычно в коминах выводят вбок не доходя до верха а вентиляцию вверх. Насколько я понял то изза того что из фановой воздух как раз вниз идет и если будет над вентиляцией то при опрокидовании вентиляции может затянуть вонь в дом Наоборот. Вычитал, что фановпя труба должна быть выше на 0,1 метра уреза Комина вентканалов Тут Корни дал ссылку на ДБН https://www.stroimdom.com.ua/forum/showpost.php?p=2744268&postcount=26 А тут Крышник написал, что лучше утеплять и фановую тоже. Без ссылок, но своими словами https://www.stroimdom.com.ua/forum/showpost.php?p=2825997&postcount=35 2 Посилання на коментар Поділитися на інших сайтах More sharing options...
serviks Опубліковано: 10 грудня 2019 Поділитись Опубліковано: 10 грудня 2019 Я у себя фановую выводил отдельно от вентиляции но все равно ниже. На картинках ее обычно в коминах выводят вбок не доходя до верха а вентиляцию вверх. Насколько я понял то изза того что из фановой воздух как раз вниз идет и если будет над вентиляцией то при опрокидовании вентиляции может затянуть вонь в дом На сколько помню, то руководствовался тем, что метан легче воздуха и проблем по этой причине не должно быть и конструктор так советовал делать. Да и на форуме что-то подобное читал. Во всяком случае переделывать уже точно не буду, т.к. с опрокидыванием тяги не сталкивался и, соответственно, дискомфорта не испытываю по причине отсутствия неприятных запахов, но для общего развития ДБН почитаю. Сорри ТС за флуд. Посилання на коментар Поділитися на інших сайтах More sharing options...
Dendnepr Опубліковано: 11 грудня 2019 Автор Поділитись Опубліковано: 11 грудня 2019 пару фоток с объекта 10 Посилання на коментар Поділитися на інших сайтах More sharing options...
dushes86 Опубліковано: 11 грудня 2019 Поділитись Опубліковано: 11 грудня 2019 Не многовато ли оставляете кирпича в интерьере? 1 Посилання на коментар Поділитися на інших сайтах More sharing options...
Dendnepr Опубліковано: 12 грудня 2019 Автор Поділитись Опубліковано: 12 грудня 2019 Не многовато ли оставляете кирпича в интерьере? Так ещё к штукатурке не приступали. ;) Большая часть будет оштукатурена. Кирпич будет только на лестнице. И на втором этаже одна стенка между детскими спальнями. . А на первом этаже колонны ещё. И стенка в между топочной и гостевой спальней. Посилання на коментар Поділитися на інших сайтах More sharing options...
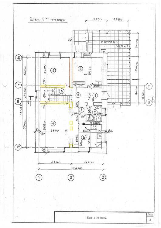
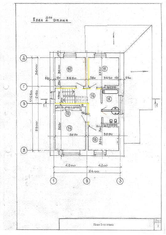
Dendnepr Опубліковано: 12 грудня 2019 Автор Поділитись Опубліковано: 12 грудня 2019 Желтым обозначил лицевую кладку из лицевого кирпича, оранжевым черновой кирпич, но лицевая кладка. Общие размеры дома увеличились на 5 см в длину и ширину (не указал на схеме) -под раскладку кирпича. Сказались немного меньшие размеры кирпича от стандартных 250 мм (244-246 мм). По первому этажу изменили тамбур. Отказались от перестенка в прихожую. и перенесли дверь в санузел на другую стенку. По второму этажу тоже изменения. Там где планировали большой санузел-(над кухней), будет швейно-, глажечная комната жены. А санузел сделали раздельным, увеличив коридор Не умею пользоваться скачапами и прочими архикадами 1 Посилання на коментар Поділитися на інших сайтах More sharing options...
Рекомендовані повідомлення
Створіть акаунт або увійдіть у нього для коментування
Ви маєте бути користувачем, щоб залишити коментар
Створити акаунт
Зареєструйтеся для отримання акаунта. Це просто!
Зареєструвати акаунтУвійти
Вже зареєстровані? Увійдіть тут.
Увійти зараз