ChuykoArchitecture Опубліковано: 8 березня 2018 Поділитись Опубліковано: 8 березня 2018 Вітаю, мене звати Кирило, я практикуючий архітектор, ось вже більше 10 років. Проектую все: і генплани, і котеджі, і громадські будинки. Інтер'єри і аж до меблів. Я б сказав не проектую, а створюю середовище для людей. За час своєї діяльності зробив біля 100 проектів по всій Україні (і не лише), різної складності (бували і невеликі павільйони, а бували і величезні спорткомплекси). В цій темі пропоную задавати питання: по проектуванню, по будівництву, по ремонту. По всьому що зв'язано з будовою. Від правильного вибору ділянки та грамотного проектування, до вибору опоряджувальних матеріалів. Естетичну сторону не обговорюємо (хоча не обіцяю). Я сповідую світогляд простоти, функціональності та енергоефективності. Для прикладу, ось один проект, виконаний для учасника цього форуму. Проект з дуже цікавою історією та публікацією в журналі "Хмарочос" Задавайте питання, а я радо відповім. 2 Посилання на коментар Поділитися на інших сайтах More sharing options...
Дельфін Опубліковано: 9 березня 2018 Поділитись Опубліковано: 9 березня 2018 Ризикну запитати - це проект чого у вас на фото? Посилання на коментар Поділитися на інших сайтах More sharing options...
Terminator2049 Опубліковано: 9 березня 2018 Поділитись Опубліковано: 9 березня 2018 Первый вариант по дизайну, нормальный, но конечный - отпугивающий, чёрный дом. Посилання на коментар Поділитися на інших сайтах More sharing options...
ChuykoArchitecture Опубліковано: 9 березня 2018 Автор Поділитись Опубліковано: 9 березня 2018 Ризикну запитати - це проект чого у вас на фото? Проект приватного будинку площею 140 кв.м. Особливістю є те що він каркасний. А, ну і специфічний вигляд. Але є і більш традиційні будинки Первый вариант по дизайну, нормальный, но конечный - отпугивающий, чёрный дом. Так, будинок вийшов дуже специфічний. Але замовника влаштував його вигляд, мало того замовник сам наштовхнув мене на таке рішення (мені бракнуло сміливості), тому, вважаю, завдання вирішене правильно. Та й прийшов я сюди не за естетикою, це особиста справа кожного. Або ж естетику обговорювати не на загал, в приватних повідомленнях. Я більше на технічні та планувальні питання готовий відповідати. 1 Посилання на коментар Поділитися на інших сайтах More sharing options...
tort Опубліковано: 12 березня 2018 Поділитись Опубліковано: 12 березня 2018 Від правильного вибору ділянки та грамотного проектування, до вибору опоряджувальних матеріалів. Ну то почнемо з вибору ділянки. Як її правильно вибрати? Посилання на коментар Поділитися на інших сайтах More sharing options...
ChuykoArchitecture Опубліковано: 12 березня 2018 Автор Поділитись Опубліковано: 12 березня 2018 (змінено) Ну то почнемо з вибору ділянки. Як її правильно вибрати? Чудове питання. Для початку скажу загальну фразу що "кожна ділянка індивідуальна та підбирається під конкретну людину чи сім'ю", але детальніше теж розкажу. Вибір ділянки треба почати з питання - що саме на ній має бути, та де саме вона має бути? Місто, приміська зона, район або область? Вибір залежить від вашого світогляду та стилю життя. Якщо у вас малі діти, ви активний та компанійський, працюєте у місті, та життя не уявляєте без постійного спілкування з людьми - краще не розглядати ділянки віддалені від міста. Навіть якщо у вас дві машини у сім'ї. Є навіть дослідження що переселення у великий власний будинок за містом з більшим часом добирання зменшує рівень задоволення життям, ніж проживання у меншій оселі, але ближче до міста. Тобто весь комфорт від власного подвір'я, великого дому, співу птахів нівелюється часом добирання до роботи та стояння в пробках. Має значення які будинки плануєте розмістити на ділянці (будинок для постійного проживання, дача, відпочинковий будинок)? Якої площі, будинок, яка поверховість, скільки людей житиме, якого віку? Які додаткові будівлі повинні бути на ділянці - бані, альтанки, гаражі, майстерні? Чи є якісь особливі побажання по благоустрою ділянки - город, сад, чи просто ландшафт з альпійськими гірками чи японським садом каменів? Це все зводиться до площі ділянки. Вра***те що велика площа ділянки - не завжди перевага. Адже на ділянці треба зробити благоустрій, потім її доглядати та утримувати. З місцерозташуванням та площею визначились. Тепер перевіряємо більш практичні та бюрократичні моменти. Чи дозволяє генплан будівництво на ділянці?Чи є нормальний під'їзд до ділянки? Чи зможете ви туди доїхати чи виїхати після снігопаду, чи після сильного дощу? Чи є якісь обмеження (захисні зони від комунікацій, підприємств водойм), та й просто чи не заносить вітром запах з свиноферми за 3 кілометри, і чи поряд нема сміттєзвалища? Бажано орієнтуватись які грунти, чи нема підтоплюваності, сповзань, щоб потім не було сюрпризів при проектуванні чи будівництві. Перевіряєте наявність комунікацій, можливість та вартість їх проведення. Не слухайте запевнення що "та тут недалеко газ тягнути, сільрада зробить цього року". Тільки документальні підтвердження. Щоб потім не ставити своїм коштом трансформаторну, бо потужності бракує, а газу не буде найближчі 100 років. І звичайно - на всі ці правила можна не зважати, якщо ви чітко знаєте та усвідомлюєте що робите. Змінено 12 березня 2018 користувачем ChuykoArchitecture Посилання на коментар Поділитися на інших сайтах More sharing options...
teonit Опубліковано: 13 березня 2018 Поділитись Опубліковано: 13 березня 2018 Ну то почнемо з вибору ділянки. Як її правильно вибрати? Я бы посоветовал приехать на участок несколько раз в разные дни недели и время суток. Хорошо бы пройтись пешком по "своей" и соседним улицам, посмотреть на соседей, не только ближних. Обычно по дому можно представить хозяев. Также не помешает вживую познакомиться с потенциальными соседями. Заодно узнаете положительные и отрицательные стороны будущего места жительства. Иногда бывают сюрпризы: сосед-идиот, который слушает музыку во дворе так, что его слышно за 200м; весенние потопы; вечные проблемы с электроэнергией; кроты; комары; а вот тут, за поворотом, у нас кладбище (или скоро будет)... 1 Посилання на коментар Поділитися на інших сайтах More sharing options...
ChuykoArchitecture Опубліковано: 13 березня 2018 Автор Поділитись Опубліковано: 13 березня 2018 Я бы посоветовал приехать на участок несколько раз в разные дни недели и время суток. Хорошо бы пройтись пешком по "своей" и соседним улицам, посмотреть на соседей, не только ближних. Обычно по дому можно представить хозяев. Также не помешает вживую познакомиться с потенциальными соседями. Заодно узнаете положительные и отрицательные стороны будущего места жительства. Иногда бывают сюрпризы: сосед-идиот, который слушает музыку во дворе так, что его слышно за 200м; весенние потопы; вечные проблемы с электроэнергией; кроты; комары; а вот тут, за поворотом, у нас кладбище (или скоро будет)... Все вірно. Цей етап вже варто проходити після того як визначились з конкретною ділянкою. Щоб закріпити рішення про придбання. Посилання на коментар Поділитися на інших сайтах More sharing options...
Ihtiandr Опубліковано: 14 березня 2018 Поділитись Опубліковано: 14 березня 2018 (змінено) Доброго дня. Питання по проекту з публікаціъ в журналі "Хмарочос". 1. Односкатний дах, так розумію. Який уклон в проекті і під який матеріал даху. (фальц, профнастіл. бітумна чер?) 2. Дах без горища? Яка висота стелі на 2 поверсі, чи є якийсь дискомфорт від висоти стелі особливо в спальнях та ванній кімнаті (типу можна було б опустити нижче фальш стелею). 3. Якщо дах без холодного горища як організована вентиляція кровельного покриття на односкатному даху. Знизу вверх? якщо орієнтація верхного конька даху на захід. Вітра в зимовий період, як раз коли потрібна активна вентиляція даху, дують с західу частіше. 4. який аргумент був відмови від свісів даху порівняно з першим варіантом проекту (з дизайну причини, чи конструктивні прични типу вітрового навантаження чи довжини стропил) Змінено 14 березня 2018 користувачем Ihtiandr доповнення Посилання на коментар Поділитися на інших сайтах More sharing options...
ChuykoArchitecture Опубліковано: 14 березня 2018 Автор Поділитись Опубліковано: 14 березня 2018 Доброго дня. Питання по проекту з публікаціъ в журналі "Хмарочос". 1. Односкатний дах, так розумію. Який уклон в проекті і під який матеріал даху. (фальц, профнастіл. бітумна чер?) 2. Дах без горища? Яка висота стелі на 2 поверсі, чи є якийсь дискомфорт від висоти стелі особливо в спальнях та ванній кімнаті (типу можна було б опустити нижче фальш стелею). 3. Якщо дах без холодного горища як організована вентиляція кровельного покриття на односкатному даху. Знизу вверх? якщо орієнтація верхного конька даху на захід. Вітра в зимовий період, як раз коли потрібна активна вентиляція даху, дують с західу частіше. 4. який аргумент був відмови від свісів даху порівняно з першим варіантом проекту (з дизайну причини, чи конструктивні прични типу вітрового навантаження чи довжини стропил) 1. Ухил даху 10 градусів, матеріал - профнастил. Фальц в бюджет не вписався. 2. Дах без горища. В нижчій частині даху у найнижчій точці висота приміщення 2.20 м, у найвищій точці - 3.50 м. Горище робити змісту не було, там вийшла б пазуха, в яку навіть толком не добратись. Ось розріз: 3. Вища частина даху виходить на південь, вентиляція буде в повітряному прошарку, там де обрешітка. До того ж так як будинок каркасний, цей повітряний прошарок можна сполучити з вентзазором фасаду. Тобто весь контур будинку закрити вітрозахистом. 4. Від звісів даху відмовились по естетичних питаннях. Так захотів замовник. Доречі були варіанти зі звісом Посилання на коментар Поділитися на інших сайтах More sharing options...
ARCH INNOVATION Опубліковано: 16 березня 2018 Поділитись Опубліковано: 16 березня 2018 А мне понравился черный верх! смело и классно! молодцы 1 Посилання на коментар Поділитися на інших сайтах More sharing options...
ChuykoArchitecture Опубліковано: 16 березня 2018 Автор Поділитись Опубліковано: 16 березня 2018 А мне понравился черный верх! смело и классно! молодцы Дякую. Особлива подяка замовнику, що пішов на такий сміливий крок. 1 Посилання на коментар Поділитися на інших сайтах More sharing options...
Anyska Опубліковано: 17 березня 2018 Поділитись Опубліковано: 17 березня 2018 Допоможіть, будь ласка! Купили однокімнатну квартиру у забудовника в будинку, який ще будується! Подивились по кресленню і зрозуміли, що можна зробити з однієї кімнати дві, шляхом поставлення перегородки та вікна. Звернулись до забудовника - він відмовляється це робити, без об'єктивних на те причин. Звернулись до архітектора проекту, який в свою чергу сказав що це можливо, але назвав суму в пів вартості усієї квартири! Як можна вийти з цієї ситуації? Невже нема, чітко визначених законом цін на внесення змін до плану, і архітектор має право називати ціни які йому впали з неба? Можливо є ще якісь варіанти добитись омріяного та внесення змін до плану квартири? Посилання на коментар Поділитися на інших сайтах More sharing options...
ChuykoArchitecture Опубліковано: 17 березня 2018 Автор Поділитись Опубліковано: 17 березня 2018 Допоможіть, будь ласка! Купили однокімнатну квартиру у забудовника в будинку, який ще будується! Подивились по кресленню і зрозуміли, що можна зробити з однієї кімнати дві, шляхом поставлення перегородки та вікна. Звернулись до забудовника - він відмовляється це робити, без об'єктивних на те причин. Звернулись до архітектора проекту, який в свою чергу сказав що це можливо, але назвав суму в пів вартості усієї квартири! Як можна вийти з цієї ситуації? Невже нема, чітко визначених законом цін на внесення змін до плану, і архітектор має право називати ціни які йому впали з неба? Можливо є ще якісь варіанти добитись омріяного та внесення змін до плану квартири? Доброго дня. Щоб сказати що можна і що не можна робити - треба побачити план квартири. Бажано з планом всього поверху. І планами поверхів вище і нижче, якщо вони відрізняються. Якщо ставити додаткове вікно, а це втручання у зовнішні стіни, - змінюється фасад, змінюється конструктив будинку. Тобто додавання одного вікна може потягнути за собою переробку ВСЬОГО проекту будинку. Щодо ціни, названої архітектором за цю роботу, - немає визначених законом цін. Так як немає визначених законом цін на картоплю, чи джинсові куртки. Ціни формує ринок. Можливо архітектору невигідно братись за конкретно цю роботу (це невдячна та марудна робота, повірте), тому й називає таку суму щоб від нього відстали. Хочете конкретнішої поради - показуйте план квартири, тоді можна говорити. Посилання на коментар Поділитися на інших сайтах More sharing options...
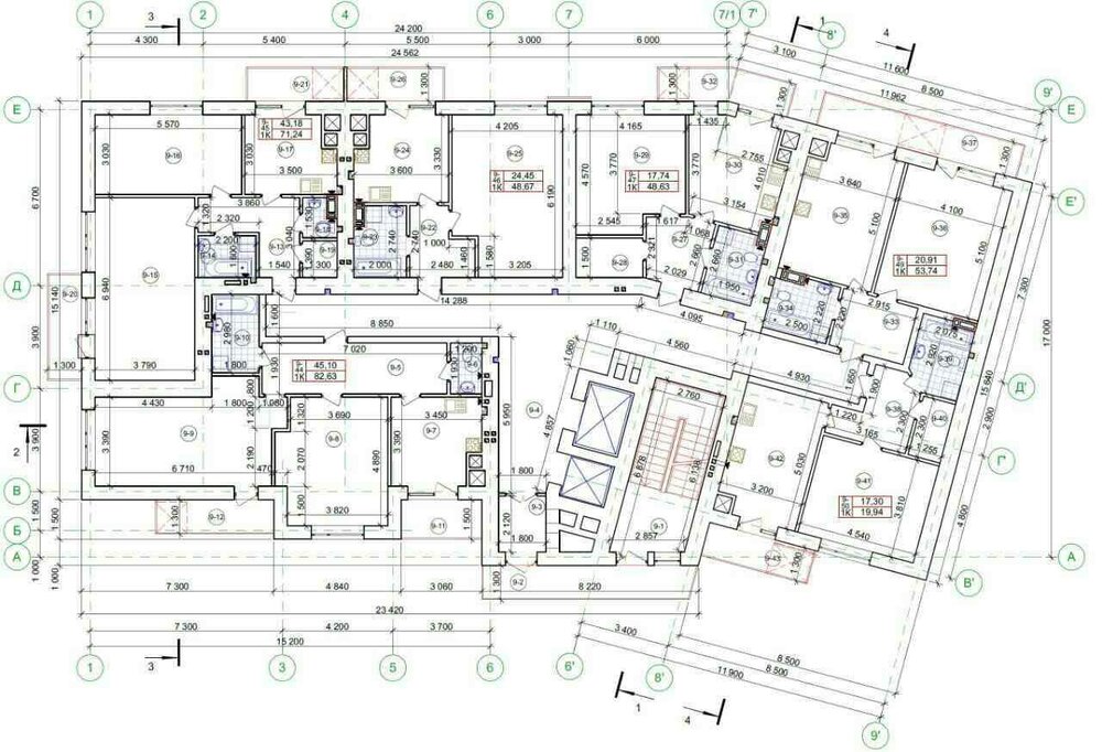
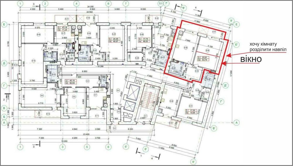
Anyska Опубліковано: 26 березня 2018 Поділитись Опубліковано: 26 березня 2018 Доброго дня. Щоб сказати що можна і що не можна робити - треба побачити план квартири. Бажано з планом всього поверху. І планами поверхів вище і нижче, якщо вони відрізняються. Якщо ставити додаткове вікно, а це втручання у зовнішні стіни, - змінюється фасад, змінюється конструктив будинку. Тобто додавання одного вікна може потягнути за собою переробку ВСЬОГО проекту будинку. Щодо ціни, названої архітектором за цю роботу, - немає визначених законом цін. Так як немає визначених законом цін на картоплю, чи джинсові куртки. Ціни формує ринок. Можливо архітектору невигідно братись за конкретно цю роботу (це невдячна та марудна робота, повірте), тому й називає таку суму щоб від нього відстали. Хочете конкретнішої поради - показуйте план квартири, тоді можна говорити. Подивіться, будь ласочка, план квартири. Чи можливо зробити так як я хочу? І якщо так, то скільки це може коштувати сьогодні, на етапі будівництва будинку, і після його здачі? Зорієнтуйте, будь ласка, в сумі , яка в мене піде на це все після здачі будинку! наперед дякую! Посилання на коментар Поділитися на інших сайтах More sharing options...
ChuykoArchitecture Опубліковано: 26 березня 2018 Автор Поділитись Опубліковано: 26 березня 2018 Подивіться, будь ласочка, план квартири. Чи можливо зробити так як я хочу? І якщо так, то скільки це може коштувати сьогодні, на етапі будівництва будинку, і після його здачі? Зорієнтуйте, будь ласка, в сумі , яка в мене піде на це все після здачі будинку! наперед дякую! [ATTACH]609510[/ATTACH] [ATTACH]609511[/ATTACH] [ATTACH]609512[/ATTACH] Схоже на те що будинок цегляний. В тій стіні,де ви плануєте вікно, можуть йти комунікації: витяжні канали, каналізаційні стояки. Малоймовірно, але можуть бути. Навіть якщо вони на відстані будуть - треба це враховувати. Треба бачити весь проект, особливо конструктивний та інженерний розділи. Вікно зробити можна, але це зміни в проект, а також таке дійство зачіпає авторське право архітектора, який робив цей проект. Навіть якщо хтось погодиться це робити - треба дозвіл автора. Треба пройти експертизу проекту, враховуючи зміни. Залучити конструктора, проектантів по інженерії, архітекторів. Якщо вони погодяться це робити. Я б не погодився. Або на всіх поверхах так робити, або на жодному. Після здачі будинку такий самий шлях, але вам треба буде дозвіл УСІХ мешканців будинку на такі зміни. Тепер задайте собі питання - для чого саме потрібно вам друге вікно? Вам треба дві окремі спальні? Скільки людей, якого віку, проживатиме у квартирі? Де у вас буде вітальня? Якщо ви зробите дві роздільні кімнати, то це вийде двокімнатна квартира, а для неї вже вимагається два санвузли, також одна кімната має бути площею не менше 17 кв.м., друга - не менше 10 кв.м. А у вашому варіанті дві по 10 кв.м. Експертиза такого не пропустить. Раджу розглянути варіант перепланування без втручання в зовнішні стіни. Посилання на коментар Поділитися на інших сайтах More sharing options...
Anyska Опубліковано: 27 березня 2018 Поділитись Опубліковано: 27 березня 2018 Схоже на те що будинок цегляний. В тій стіні,де ви плануєте вікно, можуть йти комунікації: витяжні канали, каналізаційні стояки. Малоймовірно, але можуть бути. Навіть якщо вони на відстані будуть - треба це враховувати. Треба бачити весь проект, особливо конструктивний та інженерний розділи. Вікно зробити можна, але це зміни в проект, а також таке дійство зачіпає авторське право архітектора, який робив цей проект. Навіть якщо хтось погодиться це робити - треба дозвіл автора. Треба пройти експертизу проекту, враховуючи зміни. Залучити конструктора, проектантів по інженерії, архітекторів. Якщо вони погодяться це робити. Я б не погодився. Або на всіх поверхах так робити, або на жодному. Після здачі будинку такий самий шлях, але вам треба буде дозвіл УСІХ мешканців будинку на такі зміни. Тепер задайте собі питання - для чого саме потрібно вам друге вікно? Вам треба дві окремі спальні? Скільки людей, якого віку, проживатиме у квартирі? Де у вас буде вітальня? Якщо ви зробите дві роздільні кімнати, то це вийде двокімнатна квартира, а для неї вже вимагається два санвузли, також одна кімната має бути площею не менше 17 кв.м., друга - не менше 10 кв.м. А у вашому варіанті дві по 10 кв.м. Експертиза такого не пропустить. Раджу розглянути варіант перепланування без втручання в зовнішні стіни. Ну добре, і от якщо я це все буду робити, скільки воно буде коштувати для мене? Ну хоча б приблизно? (я хочу зрозуміти чи мені взагалі є сенс думати про це все і тим більше починати робити). Друге вікно мені потрібно для того, щоб замість однієї спальні стало дві. Взагалі як на мене, план квартири далеко не доскональний, не раціонально використаний метраж. Як вот подумати, в мене зараз трьох кімнатна квартира загальною площею 64 м2 з роздільним санузлом, і гарними просторими двома кімнатами, та однією маленькою і з невеликою кухнею. А тут стільки, здавалось би, площі, ну можна було б зробити з неї двох кімнатну? Я хочу щоб там де кухня, була в мене кухня-вітальна, ну і 2 кімнати. Бо дві кімнати в будь якому разі краще ніж одна. І, як на мене, то це взагалі брєд що зробили такі вимоги 17 та 10 м2 ? З якого і звідки взагалі вони взяли ці цифри, якщо кучу людей взагалі живе в кімнатках по 6 м2, в гуртожитках і в дуже малогабаритних однушках. І ок, навіть якщо розглядати це все з того що ніби так правильно, і так має будуватись то блін, тоді розглянемо інше законодавство, як на рахунок того що діти мають жити в окремих кімнатах від батьків, а + те, що хлопчик з дівчинкою також не можуть жити в одній кімнаті, то що, тоді тим в кого нема грошей на 100м2, не народжувавти дітей і не жити? чи як тоді виходити з ситуації? а чому ж тоді не застосовують те законодавство яке стосується не забезпечених сімей,і в однушці живуть по 5 людей, і це норма, ніхто не думає про те, що якось дуже мало м2 як для 5-ти людей...А про два санузла на дві кімнати, я взагалі мовчу. Вибачаюсь, це просто мій крик душі! Посилання на коментар Поділитися на інших сайтах More sharing options...
ChuykoArchitecture Опубліковано: 27 березня 2018 Автор Поділитись Опубліковано: 27 березня 2018 Ну добре, і от якщо я це все буду робити, скільки воно буде коштувати для мене? Ну хоча б приблизно? (я хочу зрозуміти чи мені взагалі є сенс думати про це все і тим більше починати робити). Друге вікно мені потрібно для того, щоб замість однієї спальні стало дві. Взагалі як на мене, план квартири далеко не доскональний, не раціонально використаний метраж. Як вот подумати, в мене зараз трьох кімнатна квартира загальною площею 64 м2 з роздільним санузлом, і гарними просторими двома кімнатами, та однією маленькою і з невеликою кухнею. А тут стільки, здавалось би, площі, ну можна було б зробити з неї двох кімнатну? Я хочу щоб там де кухня, була в мене кухня-вітальна, ну і 2 кімнати. Бо дві кімнати в будь якому разі краще ніж одна. І, як на мене, то це взагалі брєд що зробили такі вимоги 17 та 10 м2 ? З якого і звідки взагалі вони взяли ці цифри, якщо кучу людей взагалі живе в кімнатках по 6 м2, в гуртожитках і в дуже малогабаритних однушках. І ок, навіть якщо розглядати це все з того що ніби так правильно, і так має будуватись то блін, тоді розглянемо інше законодавство, як на рахунок того що діти мають жити в окремих кімнатах від батьків, а + те, що хлопчик з дівчинкою також не можуть жити в одній кімнаті, то що, тоді тим в кого нема грошей на 100м2, не народжувавти дітей і не жити? чи як тоді виходити з ситуації? а чому ж тоді не застосовують те законодавство яке стосується не забезпечених сімей,і в однушці живуть по 5 людей, і це норма, ніхто не думає про те, що якось дуже мало м2 як для 5-ти людей...А про два санузла на дві кімнати, я взагалі мовчу. Вибачаюсь, це просто мій крик душі! Якщо суто технічні питання - це дійство обійдеться у вартість кількох метрів кутників чи швелерів, заробляння відкосів, часткового ремонту фасаду. Не дуже й дорого. Якщо зробити правильно то все буде стояти і функціонувати. Але проблем можна собі нажити. Починаючи від зіпсованих стосунків з сусідами, і закінчуючи судовими позовами від ОСББ, тих же сусідів, та будь-хто може почати вам псувати життя. Щодо норм і законів - такі вони є. Зараз почались зрушення, намагаються їх адаптувати під сьогоднішні вимоги та здоровий глузд. Адже наші норми адаптовані під масове будівництво, яке було поширене 50 років тому назад в умовах централізованої економіки. Їх складно виконувати в сучасних реаліях. Щодо планування - так, планують неграмотно. Так, однокімнатна квартира площею 64 кв.м. - нерозумно. Скорше всього забудовник зекономив на проекті, проектант за ті гроші не став дуже сильно старатись, зробив як йому простіше. А постраждав покупець, ще й за свої гроші. Маючи справу з новобудовами не раз хочеться дати по рукам як забудовникам так і будівельникам. Вихід - вимагати кращого. Не будують якісно бо нема попиту, і так продасться. Як тільки почнуть вимагати - забудовники одразу почнуть звертати увагу на вимоги покупця. А хто не звертатиме - збанкрутує. Так що по-людськи я вас розумію, але як архітектор - раджу розглянути варіанти без втручання у фасад. Посилання на коментар Поділитися на інших сайтах More sharing options...
Anyska Опубліковано: 30 березня 2018 Поділитись Опубліковано: 30 березня 2018 А Ви, як архітектор, бачите якісь варіанти перепланування на двох кімнатну квартиру без втручання у фасад? Я бачу лише одни - перенесення перегородки, за рахунок зменшення площі кухні і тої кімнати зробити ще одну, але тоді ж вони будуть не комфортні для життя, бо кімнати та кухня вийдуть довгими та вузькими. Посилання на коментар Поділитися на інших сайтах More sharing options...
ChuykoArchitecture Опубліковано: 30 березня 2018 Автор Поділитись Опубліковано: 30 березня 2018 А Ви, як архітектор, бачите якісь варіанти перепланування на двох кімнатну квартиру без втручання у фасад? Я бачу лише одни - перенесення перегородки, за рахунок зменшення площі кухні і тої кімнати зробити ще одну, але тоді ж вони будуть не комфортні для життя, бо кімнати та кухня вийдуть довгими та вузькими. Вам потрібно дві спальні, чи те що називається двокімнатною квартирою? Скільки там людей житиме, якого віку? Це все треба знати. А то можна зробити дві кімнати, а жити там буде неможливо. Доречі, ваша квартира не відповідає нормативам, так як житлова кімната не має інсоляції, тому що перед єдиним вікном з неї є лоджія. Можете сказати про це забудовнику. Посилання на коментар Поділитися на інших сайтах More sharing options...
Anyska Опубліковано: 30 березня 2018 Поділитись Опубліковано: 30 березня 2018 Вам потрібно дві спальні, чи те що називається двокімнатною квартирою? Скільки там людей житиме, якого віку? Це все треба знати. А то можна зробити дві кімнати, а жити там буде неможливо. Доречі, ваша квартира не відповідає нормативам, так як житлова кімната не має інсоляції, тому що перед єдиним вікном з неї є лоджія. Можете сказати про це забудовнику. Мені потрібно дві спальні, я вже навіть думала про те, щоб поставити перегородку на кухні, і зробити з неї кімнату, а кухня була б прохідною, але це є також неможливим по нормам (як мені сказали). Там буду жити я з чоловіком (25-26 років), ну і звичайно планується в майбутньому поповнення сім*ї, для того ж і потрібно ще другу кімнатку. Можете, будь ласка, підказати де я можу почитати про ті нормативи, щоб мати на що посилатись? Посилання на коментар Поділитися на інших сайтах More sharing options...
ChuykoArchitecture Опубліковано: 30 березня 2018 Автор Поділитись Опубліковано: 30 березня 2018 Мені потрібно дві спальні, я вже навіть думала про те, щоб поставити перегородку на кухні, і зробити з неї кімнату, а кухня була б прохідною, але це є також неможливим по нормам (як мені сказали). Там буду жити я з чоловіком (25-26 років), ну і звичайно планується в майбутньому поповнення сім*ї, для того ж і потрібно ще другу кімнатку. Можете, будь ласка, підказати де я можу почитати про ті нормативи, щоб мати на що посилатись? dbn.co.ua/load/normativy/dbn/dbn_v_2_2_15_2015_zhitlovi_budinki_osnovni_polozhennja/1-1-0-1184 - ось основний норматив по житлових будинках. Зі свого досвіду скажу вам що якщо робити все так як написано в нормах - вийде хрущовка. Власне ці норми для хрущовок і написані. Якщо вам потрібно дві спальні, з можливістю в майбутньому розмістити дитяче ліжко, - робіть велику спальню, ставте велике двоспальне ліжко. Можна відгородити скляною перегородкою, таким чином поділити кімнату на дві частини. Коли буде дитина - частина буде батьківською, частина дитячою. Синім кольором позначена скляна перегородка. Або варіант з спальним місцем у ніші. Це краще, бо хоча б вентиляція буде. Посилання на коментар Поділитися на інших сайтах More sharing options...
tort Опубліковано: 31 березня 2018 Поділитись Опубліковано: 31 березня 2018 Звернулись до забудовника - він відмовляється це робити, без об'єктивних на те причин. Звернулись до архітектора проекту, який в свою чергу сказав що це можливо, але назвав суму в пів вартості усієї квартири!Забудовник вам відмовив. Вже забудьте про вікно. І доречі там цілком об'єктивні причини. Пожежна стіна. Ніяких вікон, отворів тощо. Архітектор наврядчи що вирішує, бо отут він посередник. Скоріше зрубить бабло. Після введення в експлуатацію теж саме вам розкаже власник будинку. продавайте це, купуйте двокімнатну. Посилання на коментар Поділитися на інших сайтах More sharing options...
ChuykoArchitecture Опубліковано: 1 квітня 2018 Автор Поділитись Опубліковано: 1 квітня 2018 Трохи розповів про типові помилки при заміні вікон для Економічної Правди - Прозора економія, або Як уникнути помилок при заміні вікон Заміна вікон не завжди допомагає зменшити рахунки за тепло. Причини часто пов'язані із слабким розумінням деяких технічних аспектів. Автор зібрав найтиповіші помилки. Квитанції за тепло переконують все більшу кількість українців зайнятися енергоефективністю власних будівель. Дізнавшись, що 15-20% тепла втрачається через вікна, громадяни часто починають саме з них. Тож з весни і до осені біля міських сміттярок можна бачити десятки старих дерев'яних віконних рам. Утім, заміна вікон далеко не завжди допомагає зменшити рахунки за тепло. Причини можуть бути різними, однак здебільшого вони пов'язані із слабким розумінням деяких аспектів заміни вікон. Автор зібрав найтиповіші помилки. Посилання на коментар Поділитися на інших сайтах More sharing options...
Anyska Опубліковано: 2 квітня 2018 Поділитись Опубліковано: 2 квітня 2018 dbn.co.ua/load/normativy/dbn/dbn_v_2_2_15_2015_zhitlovi_budinki_osnovni_polozhennja/1-1-0-1184 - ось основний норматив по житлових будинках. Зі свого досвіду скажу вам що якщо робити все так як написано в нормах - вийде хрущовка. Власне ці норми для хрущовок і написані. Якщо вам потрібно дві спальні, з можливістю в майбутньому розмістити дитяче ліжко, - робіть велику спальню, ставте велике двоспальне ліжко. Можна відгородити скляною перегородкою, таким чином поділити кімнату на дві частини. Коли буде дитина - частина буде батьківською, частина дитячою. Синім кольором позначена скляна перегородка. Або варіант з спальним місцем у ніші. Це краще, бо хоча б вентиляція буде. Дуже Вам дякую! Добавлено через 12 минут Забудовник вам відмовив. Вже забудьте про вікно. І доречі там цілком об'єктивні причини. Пожежна стіна. Ніяких вікон, отворів тощо. Архітектор наврядчи що вирішує, бо отут він посередник. Скоріше зрубить бабло. Після введення в експлуатацію теж саме вам розкаже власник будинку. продавайте це, купуйте двокімнатну. Забудовник відмовив без об'єктивних причин, сказавши, що просто не хоче цього робити на етапі будівництва, а коли він здасть будинок то як він сказав *робіть собі що хочете*. Таку ж відповідь отримали всі сусіди які хотіли робити перепланування, не зачіпаючи зовнішності будинку. Архітектор сказав, що можна це зробити, просто назвав дуже дуже величезну суму (як на мене, не реальну). Навіть якщо я її продам, мені не вистачить грошей на двох кімнатну квартиру, якби я мала гроші на двушку то купила б її одразу. Посилання на коментар Поділитися на інших сайтах More sharing options...
Рекомендовані повідомлення
Створіть акаунт або увійдіть у нього для коментування
Ви маєте бути користувачем, щоб залишити коментар
Створити акаунт
Зареєструйтеся для отримання акаунта. Це просто!
Зареєструвати акаунтУвійти
Вже зареєстровані? Увійдіть тут.
Увійти зараз