asmodian Опубліковано: 22 червня 2018 Автор Поділитись Опубліковано: 22 червня 2018 У меня участок 17,5х38,5. Почему-то я не вижу дом со входом не с фасада. Хотя надо подумать. Посилання на коментар Поділитися на інших сайтах More sharing options...
mib Опубліковано: 22 червня 2018 Поділитись Опубліковано: 22 червня 2018 Почему-то я не вижу дом со входом не с фасада. Хотя надо подумать. У меня дом вообще развернут на 180 градусов Калиткой я пользовался один раз когда проверял работоспособность замка А так вы заехали во двор на машине через ворота прошли ко входу в дом и больше необходимости ходить на фасадную сторону у вас нет 3 Посилання на коментар Поділитися на інших сайтах More sharing options...
asmodian Опубліковано: 22 червня 2018 Автор Поділитись Опубліковано: 22 червня 2018 Фасад участка у меня смотрит на юго-восток. Если поворачивать дом торцом к фасаду - то которым из? Посилання на коментар Поділитися на інших сайтах More sharing options...
shneider_vova Опубліковано: 22 червня 2018 Поділитись Опубліковано: 22 червня 2018 У меня тоже торцом к улице, но у меня участок вытянут вдоль улицы, поэтому там логично было повернуть главный фасад к участку, а не к дороге. 2 Посилання на коментар Поділитися на інших сайтах More sharing options...
mib Опубліковано: 22 червня 2018 Поділитись Опубліковано: 22 червня 2018 Фасад участка у меня смотрит на юго-восток. Если поворачивать дом торцом к фасаду - то которым из? вот как то так 2 Посилання на коментар Поділитися на інших сайтах More sharing options...
asmodian Опубліковано: 22 червня 2018 Автор Поділитись Опубліковано: 22 червня 2018 Вы меня прямо успокоили) Спасибо всем огромное. Скорее всего так и сделаю. Еще вопрос, у кого как реализован армпояс и несущие стены внутри дома? Выход на чердак из топочной делали? Посилання на коментар Поділитися на інших сайтах More sharing options...
vadimv Опубліковано: 22 червня 2018 Поділитись Опубліковано: 22 червня 2018 вот как то такИМХО, это хороший вариант, если улица с севера. А если с юго-востока (как у ТС), то гостиная окажется на северо-западе. Летом то еще ничего, а зимой там совсем грустно будет. 1 Посилання на коментар Поділитися на інших сайтах More sharing options...
mib Опубліковано: 22 червня 2018 Поділитись Опубліковано: 22 червня 2018 А если с юго-востока (как у ТС), то гостиная окажется на северо-западе. Летом то еще ничего, а зимой там совсем грустно будет.у меня примерно так и получилось, зимой вообще нет никаких претензий, а вот летом терраса плотно зашторена 4 Посилання на коментар Поділитися на інших сайтах More sharing options...
asmodian Опубліковано: 22 червня 2018 Автор Поділитись Опубліковано: 22 червня 2018 Примерно в том месте, где уважаемый mib нарисовал терасу, у меня начинаются березы. Как раз завтра собрались ехать на участок с архитектором и на месте все перемерять. 4 березы хотелось оставить, они как раз полукругом растут, внутри круглая беседка просится. Добавлено через 2 минуты смотря из чего будут стены зависит армопояс. у меня в полтора кирпича, армопояса нет, решил что в этом случае это лишнее. Планируется газоблок 250 или 300 под утепление минватой. Крыша обычная, стопильная. Добавлено через 50 секунд у меня примерно так и получилось, зимой вообще нет никаких претензий, а вот летом терраса плотно зашторена Так как у меня там березы и большая тень, думаю шторы не пригодятся. 1 Посилання на коментар Поділитися на інших сайтах More sharing options...
mib Опубліковано: 22 червня 2018 Поділитись Опубліковано: 22 червня 2018 Примерно в том месте, где уважаемый mib нарисовал терасу, у меня начинаются березы. Как раз завтра собрались ехать на участок с архитектором и на месте все перемерять. 4 березы хотелось оставить, они как раз полукругом растут, внутри круглая беседка просится. Если не влезет и терраса и парковка то дом можно на пару метров сдвинуть в сторону дороги, а парковку сделать сбоку и возможно тогда поместится и березы не пострадают Так как у меня там березы и большая тень, думаю шторы не пригодятся. Все очень даже может быть, березы это вообще классно 3 Посилання на коментар Поділитися на інших сайтах More sharing options...
Vikctor Опубліковано: 22 червня 2018 Поділитись Опубліковано: 22 червня 2018 ...Планируется газоблок 250 или 300 под утепление минватой. ... Вот так вот настроят, а потом появляются темы по форуму о трещинах и плохом материале газоблоке... 7 Посилання на коментар Поділитися на інших сайтах More sharing options...
shneider_vova Опубліковано: 22 червня 2018 Поділитись Опубліковано: 22 червня 2018 Если газоблок, делайте толстую (400-500 мм)стену и не утепляйте. Хотите утеплять - берите кирпич 250 мм (380) и вату. А вообще нужен конструктор-архитектор. Иначе мы тут совместно насоветуем... 5 Посилання на коментар Поділитися на інших сайтах More sharing options...
asmodian Опубліковано: 23 червня 2018 Автор Поділитись Опубліковано: 23 червня 2018 Вот так вот настроят, а потом появляются темы по форуму о трещинах и плохом материале газоблоке... Это мои мысли, до проектирования еще не дошли. Считаете 250 мало? 300 достаточно будет? 400 можно не утеплять? Точка росы ведь будет внутри стены, потом замерзнет и потрескается. Или я не прав? Кирпич ведь дороже намного получится. Или нет? Посилання на коментар Поділитися на інших сайтах More sharing options...
shneider_vova Опубліковано: 23 червня 2018 Поділитись Опубліковано: 23 червня 2018 Это мои мысли, до проектирования еще не дошли. Считаете 250 мало? 300 достаточно будет? 400 можно не утеплять? Точка росы ведь будет внутри стены, потом замерзнет и потрескается. Или я не прав? Кирпич ведь дороже намного получится. Или нет? 1) кирпич сам по себе не дороже. надо считать со стоимостью фасада. Газобетон, например, можно вообще не отделывать какое-то время, а после утепления кирпича надо все равно делать мокрый или вентилируемый фасад. 2) D300 400 мм или D400 500 мм можно спокойно не утеплять. Ничего со стеной из-за точки росы не будет 3 Посилання на коментар Поділитися на інших сайтах More sharing options...
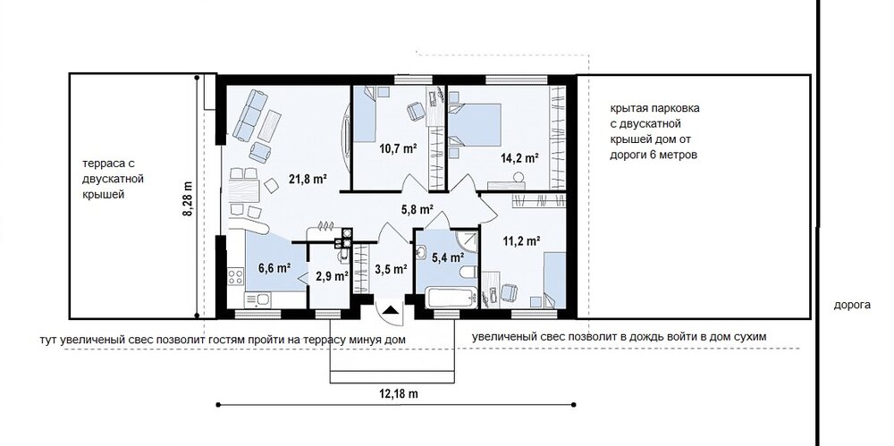
asmodian Опубліковано: 7 липня 2018 Автор Поділитись Опубліковано: 7 липня 2018 продолжаю расчистку участка и рисуем проект. Спилил сегодня березы, осталось покорчевать пни и убрать 3 елки. Оставили 3 березы для тени. В будущем и их уберем скорее всего. Пока пусть растут. [/img] [/img] Видно конечно не очень. Но суть думаю понятна. Отступ от дороги до дома 6м. Там будут стоять машины. Раздвижные ворота справа. Выход на терасу из зала будет смещен левее. Как-то так. Критикуйте пожалуйста) Посилання на коментар Поділитися на інших сайтах More sharing options...
asmodian Опубліковано: 7 липня 2018 Автор Поділитись Опубліковано: 7 липня 2018 корридор длинный и узкий жесть - убрать бы его вообще. Куда же его убрать?)) Посилання на коментар Поділитися на інших сайтах More sharing options...
Ната_ДнДз Опубліковано: 8 липня 2018 Поділитись Опубліковано: 8 липня 2018 Спилил сегодня березы, осталось покорчевать пни и убрать 3 елки. Оставили 3 березы для тени. В будущем и их уберем скорее всего. что же за убожество такое??? а ещё тему так красиво и романтично назвали...неужели у Вашего архитектора не нашлось ни вкуса,ни опыта вписать дом в такую красоту,не уничтожая её?....нет никакого желания что-то Вам советовать...извините за резкость. 7 Посилання на коментар Поділитися на інших сайтах More sharing options...
asmodian Опубліковано: 8 липня 2018 Автор Поділитись Опубліковано: 8 липня 2018 что же за убожество такое??? а ещё тему так красиво и романтично назвали...неужели у Вашего архитектора не нашлось ни вкуса,ни опыта вписать дом в такую красоту,не уничтожая её?....нет никакого желания что-то Вам советовать...извините за резкость. А вы задумывались о постройке дома под лиственными деревьями? Я изначально думал их оставлять. Но все-все меня отговаривали. В итоге убедили. Во-первых листья, которые будут на крыше и во всех водостоках забивать их и гнить там. Во вторых дерево (по разным причинам) падающее на крышу - штука, как я думаю, малоприятная. Меня эти доводы убедили. А давать, или не давать совет - решать Вам. Простите, что разочаровал. Спасибо за прямоту. 2 Посилання на коментар Поділитися на інших сайтах More sharing options...
vadimv Опубліковано: 10 липня 2018 Поділитись Опубліковано: 10 липня 2018 Обсуждали сегодня с архитектором проект. Он пока набросок сделалКак планируете делать крышу? В частности, как планируете перекрывать пролет в гостиной? Посилання на коментар Поділитися на інших сайтах More sharing options...
agela Опубліковано: 10 липня 2018 Поділитись Опубліковано: 10 липня 2018 asmodian, вы уверены, что одного с/у вам хватит!? Посилання на коментар Поділитися на інших сайтах More sharing options...
asmodian Опубліковано: 10 липня 2018 Автор Поділитись Опубліковано: 10 липня 2018 Как планируете делать крышу? В частности, как планируете перекрывать пролет в гостиной? Крыша двускатная, крытая металлочерепицей (по всей видимости). Между несущей стеной посредине и наружной стеной дома будет проложен швеллер или двутавр (если я правильно понял) и все это соединено в единый армпояс с наружными стенами. Выложу для обсуждения, когда будут прорисованы эти элементы. Добавлено через 38 секунд asmodian, вы уверены, что одного с/у вам хватит!? В хоз-помещении предусмотрено место под второй унитаз и умывальник. Скорее всего он там и будет. Посилання на коментар Поділитися на інших сайтах More sharing options...
vadimv Опубліковано: 10 липня 2018 Поділитись Опубліковано: 10 липня 2018 Крыша двускатная, крытая металлочерепицей (по всей видимости). Между несущей стеной посредине и наружной стеной дома будет проложен швеллер или двутаврВ принципе, я так и думал. Но швеллер дороговастенько обойдется. И потом вам его придется как-то маскировать на потолке. Есть вариант попроще: вместо одной несущей стены по оси дома сделать две стены поперек. Перекрыться балками и на них поставить вальмовую крышу. Тут, кстати, и второй санузел нарисован: 1 Посилання на коментар Поділитися на інших сайтах More sharing options...
asmodian Опубліковано: 10 липня 2018 Автор Поділитись Опубліковано: 10 липня 2018 В принципе, я так и думал. Но швеллер дороговастенько обойдется Такой вариант тоже рассматривали. Но остановились на показанном мной. Посилання на коментар Поділитися на інших сайтах More sharing options...
Сарочка Опубліковано: 15 липня 2018 Поділитись Опубліковано: 15 липня 2018 что же за убожество такое??? а ещё тему так красиво и романтично назвали...неужели у Вашего архитектора не нашлось ни вкуса,ни опыта вписать дом в такую красоту,не уничтожая её?....нет никакого желания что-то Вам советовать...извините за резкость. Ага, сначала ровняем пилем все, потом начнём насыпать горки и сажать березки и ели. . Называется выкинули и закопали «лишние» деньги. В моем случае спил пяти крупных дубов вылился предыдущему владельцу участка в крупный штраф, вынудивший продать участок. Мне, изменением экосистемы вплоть до поднятия общего уровня воды, произрастаниям новых видов трав, с которыми трудно бороться. Так что семь раз отмерь, один отрежь. В вашем случае падение березы на крышу не грозит(ло) ещё лет 50 2 Посилання на коментар Поділитися на інших сайтах More sharing options...
asmodian Опубліковано: 26 липня 2018 Автор Поділитись Опубліковано: 26 липня 2018 Выбираем кровельный материал для крыши. Металлочерепица или цементно-песчаная черепица? Посилання на коментар Поділитися на інших сайтах More sharing options...
Рекомендовані повідомлення
Створіть акаунт або увійдіть у нього для коментування
Ви маєте бути користувачем, щоб залишити коментар
Створити акаунт
Зареєструйтеся для отримання акаунта. Це просто!
Зареєструвати акаунтУвійти
Вже зареєстровані? Увійдіть тут.
Увійти зараз