HumanKM Опубліковано: 20 вересня 2018 Поділитись Опубліковано: 20 вересня 2018 Шановне панство, підкажіть мені як найшвидше по монтажу відкатних воріт. На вихідних маю приварити до стовпців закладні для петель калітки і для механізмів відкатних воріт. Якщо з каліткою все зрозуміло, то по воротам неможу нагуглити нормальних схем знайти. Короче мене цікавить, де, які і для чого закладні я маю вивести зі стовпців для подальшого монтажу відкатних воріт. Може схеми людські маєте, люблю коли графічно показано. Дякую. Посилання на коментар Поділитися на інших сайтах More sharing options...
blacktigra Опубліковано: 21 вересня 2018 Поділитись Опубліковано: 21 вересня 2018 Шановне панство, підкажіть мені як найшвидше по монтажу відкатних воріт. На вихідних маю приварити до стовпців закладні для петель калітки і для механізмів відкатних воріт. Якщо з каліткою все зрозуміло, то по воротам неможу нагуглити нормальних схем знайти. Короче мене цікавить, де, які і для чого закладні я маю вивести зі стовпців для подальшого монтажу відкатних воріт. Може схеми людські маєте, люблю коли графічно показано. Дякую. В соседней теме обсуждалось: https://www.stroimdom.com.ua/forum/showpost.php?p=4551422&postcount=35 1 Посилання на коментар Поділитися на інших сайтах More sharing options...
Вратарь Опубліковано: 25 вересня 2018 Поділитись Опубліковано: 25 вересня 2018 Не успел ответить ТС. Возможно пригодится остальным. 3 Посилання на коментар Поділитися на інших сайтах More sharing options...
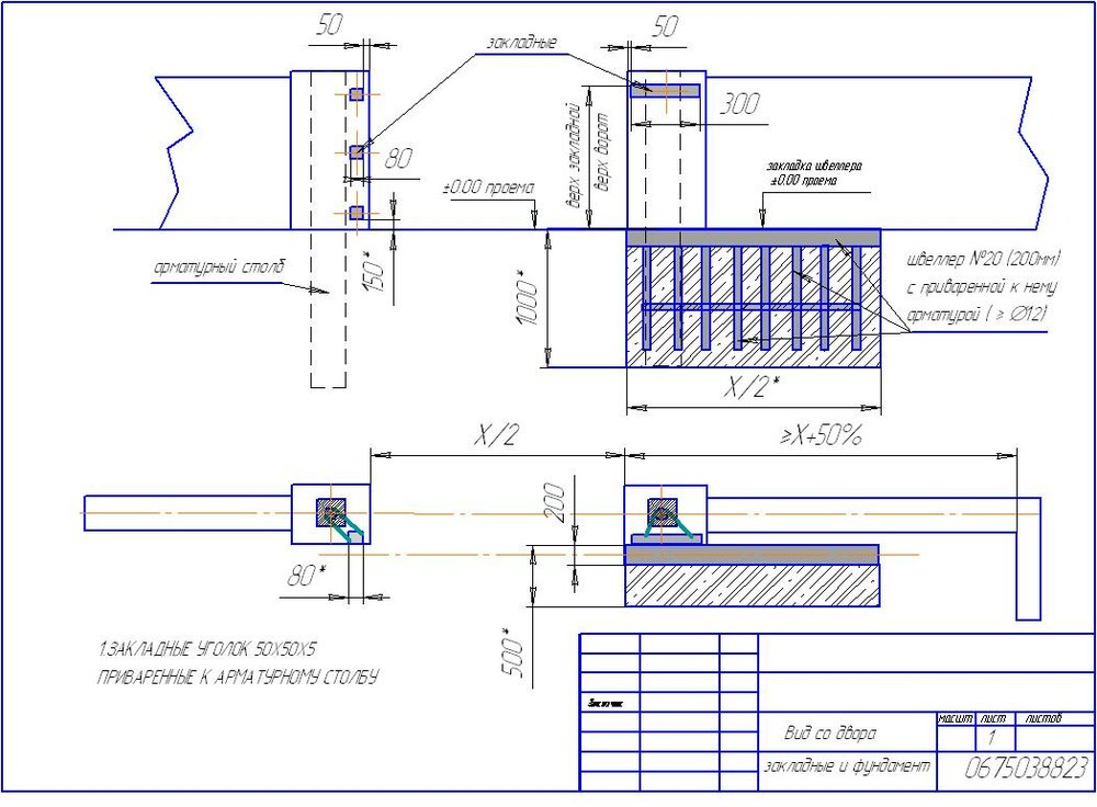
HumanKM Опубліковано: 25 вересня 2018 Автор Поділитись Опубліковано: 25 вересня 2018 Два питання 1. А нахіба по середині третя закладна? Адже як я розумію туди на всю висоту стовпчика профільна труба вварюється і вже до неї потім уловлювачі? 2. А нахіба така величезна закладна? там же тільки направляючі ролики? Хіба не достатньо просто вивести уголок чи шмат профільної труби? Посилання на коментар Поділитися на інших сайтах More sharing options...
muvic Опубліковано: 25 вересня 2018 Поділитись Опубліковано: 25 вересня 2018 відповім за Вратаря Схема - загальна. Універсальна для різних випадків. Невеликі ворота - достатньо 2 закладних на протилежному стовпі. Щодо закладної для верхніх роликів - іноді не роблять притворну трубу на стовпі біля бетонної подушки, а приварюють пластину одразу для закладної. Ну і, звісно ж, нормальна верхня пластина на 4 ролики тільки на ролінгцентр, довга. інші фурнітури мають зазвичай пару коротеньких бздиньок. Посилання на коментар Поділитися на інших сайтах More sharing options...
HumanKM Опубліковано: 25 вересня 2018 Автор Поділитись Опубліковано: 25 вересня 2018 відповім за Вратаря Схема - загальна. Універсальна для різних випадків. Невеликі ворота - достатньо 2 закладних на протилежному стовпі. Щодо закладної для верхніх роликів - іноді не роблять притворну трубу на стовпі біля бетонної подушки, а приварюють пластину одразу для закладної. Ну і, звісно ж, нормальна верхня пластина на 4 ролики тільки на ролінгцентр, довга. інші фурнітури мають зазвичай пару коротеньких бздиньок. Пройом воріт 3,3м. Висота до 1,8м. Зашивка профнастил. Це для розуміння розмірів і ваги моїх майбутніх воріт. Питання по роликам -чи є необхідність в тих роликах від ролінгцентр? В брата на воротах просто пара роликів - вже років 7 працюють, нарікань немає. Посилання на коментар Поділитися на інших сайтах More sharing options...
muvic Опубліковано: 25 вересня 2018 Поділитись Опубліковано: 25 вересня 2018 Можете просто випустити кутник металевий, 40 мм, 50 мм тощо. Нормально зв'яжіть його з центральним металевим стовпчиком. Довжина закладної у горизонті = (ширина притворної труби) + 15-20 мм, щоб нормально було варитися, не попалити цеглу. Вертикальна вісь закладної приблизно 130 мм від внутрішнього краю стовпчика. Залежить від того наскільки ширшою за отвір буде зашита частина. Ширина отвору 3300 дозволяє робити будь-який "нахльост". Єдине що я б радив - з'ясувати характеристики листа, загальну та робочу ширину, зробити внутрішню довжину каркасу для зашивки з розрахунку (загальна+робоча+робоча), щоб не різати лист. Наприклад, є загальна ширина 1200, робоча 1160. Тобто формула ширини зашитої частини становитиме, для воріт з труби 50х50: 50 мм + 1200 + 1160 + 1160 + 50 = 3620 мм. Ну плюс зазорчик можна дати. Тобто ворота будуть доходити до середини стовпчика, де і робити вертикальну вісь закладної. 1 Посилання на коментар Поділитися на інших сайтах More sharing options...
Вратарь Опубліковано: 26 вересня 2018 Поділитись Опубліковано: 26 вересня 2018 А нахіба по середині третя закладна? Адже як я розумію туди на всю висоту стовпчика профільна труба вварюється і вже до неї потім уловлювачі? Средняя закладная нужна для приварки трубы. Когда варите трубу к двум закладным ее выгибает дугой. Выбор фурнитуры за Вами. На прошлой неделе заменил опорные каретки фурнитуры Standart Rolling Center на воротах, установленных в 2004-м году. 4000х2100 мм., зашивка филенкой с двух сторон, вес ворот 450-500 кг. Направляющая труба в отличном состоянии. 1 Посилання на коментар Поділитися на інших сайтах More sharing options...
KeySims Опубліковано: 26 вересня 2018 Поділитись Опубліковано: 26 вересня 2018 Два питання 1. А нахіба по середині третя закладна? Адже як я розумію туди на всю висоту стовпчика профільна труба вварюється і вже до неї потім уловлювачі? 2. А нахіба така величезна закладна? там же тільки направляючі ролики? Хіба не достатньо просто вивести уголок чи шмат профільної труби? [ATTACH]633264[/ATTACH] Можно выпустить, аналогично левому столбу, три закладных... Посилання на коментар Поділитися на інших сайтах More sharing options...
HumanKM Опубліковано: 26 вересня 2018 Автор Поділитись Опубліковано: 26 вересня 2018 Закладні сьогодні приварив, все ок, всім дякую. Хочу уточнить один момент, а саме по встановленню привода. В схемах вказується де ставиться шматочок швелера під привід. Поїхав подивився на працюючі зо 5 років ворота і зробив висновок що мотор можна встановити де завгодно (в рамках швелера того що 1/2 ширини воріт) Чи так це? бо мені треба максимально відсунути привід. Мо якось тупо описав, тому на схемі покажу. Посилання на коментар Поділитися на інших сайтах More sharing options...
Вратарь Опубліковано: 27 вересня 2018 Поділитись Опубліковано: 27 вересня 2018 HumanKM, сдвигайте привод, место установки не принципиально. 1 Посилання на коментар Поділитися на інших сайтах More sharing options...
Рекомендовані повідомлення
Створіть акаунт або увійдіть у нього для коментування
Ви маєте бути користувачем, щоб залишити коментар
Створити акаунт
Зареєструйтеся для отримання акаунта. Це просто!
Зареєструвати акаунтУвійти
Вже зареєстровані? Увійдіть тут.
Увійти зараз